附件 10.52
办公室租赁协议
由和之间
RFP林肯293有限责任公司
和
Valeritas, Inc.
日期:2017年5月10日
|
|
目 录
|
页 |
| 第一条 |
基本租赁条款摘要 |
1 |
| 1.1 |
导言 |
1 |
| 1.2 |
基础数据 |
1 |
| 1.3 |
展品列举 |
4 |
| 第二条 |
房地和认知权的说明 |
5 |
| 2.1 |
处所的位置 |
5 |
| 2.2 |
授权权利和保留 |
5 |
| 2.3 |
第一要约权 |
5 |
| 第三条 |
租赁期限:房舍条件 |
7 |
| 3.1 |
租期 |
7 |
| 3.2 |
延期选择 |
7 |
| 3.3 |
房地条件 |
7 |
| 3.4 |
早期占有 |
7 |
| 3.5 |
房东的工作 |
8 |
| 3.6 |
承租人津贴;承租人有义务为承租人分担房东多余的工作费用 |
9 |
| 3.7 |
房东和房客的初步工作;延误 |
9 |
| 3.8 |
适用于建筑的一般规定 |
12 |
| 3.9 |
建筑代表 |
12 |
| 第四条 |
租金 |
12 |
| 4.1 |
租金支付 |
12 |
| 4.2 |
房地产税 |
12 |
| 4.3 |
承租人在业务费用中所占份额 |
14 |
| 4.4 |
检查权 |
16 |
| 4.5 |
任何延期期间的基本租金 |
16 |
| 第五条 |
房地的使用 |
17 |
| 5.1 |
允许使用 |
17 |
| 5.2 |
遵守法律 |
17 |
| 5.3 |
保险风险 |
18 |
| 5.4 |
电气设备 |
19 |
| 5.5 |
租客业务公约 |
19 |
| 5.6 |
标志 |
19 |
| 5.7 |
危险材料 |
20 |
| 第六条 |
安装、改动和增加 |
21 |
| 第七条 |
转让和转售 |
22 |
| 7.1 |
禁止 |
22 |
| 7.2 |
接受受让人的租金 |
24 |
| 7.3 |
转租租金 |
24 |
| 7.4 |
收回权 |
25 |
| 第八条 |
维修和保养 |
25 |
| 8.1 |
租客义务 |
25 |
| 8.2 |
房东义务 |
25 |
| 第九条 |
由房东提供的服务;公用事业 |
26 |
| 9.1 |
房东服务 |
26 |
| 9.2 |
各方无法控制的原因 |
26 |
| 9.3 |
单独计量的公用事业 |
26 |
| 9.4 |
服务中断 |
27 |
| 第十条 |
赔偿 |
27 |
| 10.1 |
赔偿 |
27 |
| 10.2 |
租客的风险 |
28 |
|
|
目 录
|
页 |
| 10.3 |
第三方造成的伤害 |
28 |
| 10.4 |
安全 |
28 |
| XI |
保险 |
28 |
| 11.1 |
公共责任保险 |
28 |
| 11.2 |
危险保险 |
29 |
| 11.3 |
建设期保险 |
29 |
| 11.4 |
保险证据;保险标准 |
29 |
| 租金减免保险 |
30 |
|
| 11.6 |
相互放弃移交 |
30 |
| 11.7 |
房东保险 |
30 |
| 第十二条 |
伤亡 |
30 |
| 12.1 |
“实质性损害”和“部分损害”的定义 |
30 |
| 12.2 |
建筑物部分损坏 |
30 |
| 12.3 |
对建筑物的重大损害 |
31 |
| 12.4 |
减租 |
31 |
| 12.5 |
杂项 |
31 |
| 第十三条 |
显赫领域 |
32 |
| 13.1 |
取取权的终止权 |
32 |
| 13.2 |
赔偿金的支付 |
32 |
| 13.3 |
减租 |
33 |
| 13.4 |
杂项 |
33 |
| 第十四条 |
违约 |
33 |
| 14.1 |
租客的违约 |
33 |
| 14.2 |
房东的违约 |
35 |
| 第十五条 |
房东进入房舍 |
36 |
| 15 |
房东的使用权 |
36 |
| 第十六条 |
抵押人的权利 |
36 |
| 16.1 |
从属和管辖 |
36 |
| 16.2 |
通知抵押人和地租出租人;治愈的机会 |
37 |
| 16.3 |
租金的转让 |
37 |
| 16.4 |
不打扰协议 |
37 |
| 第十七条 |
杂项规定 |
38 |
| 17.1 |
字幕 |
38 |
| 17.2 |
绑定和保险 |
38 |
| 17.3 |
不放弃 |
38 |
| 17.4 |
无协议和满意 |
38 |
| 累积补救办法 |
38 |
|
| 17.6 |
部分失效 |
39 |
| 17.7 |
地主的治愈权;生存权 |
39 |
| 17.8 |
ESTOPPEL证书 |
39 |
| 17.9 |
经纪 |
40 |
| 17.10 |
整个协议 |
40 |
| 17.11 |
持有 |
40 |
| 17.12 |
对应部分 |
40 |
| 17.13 |
建筑和图形使用 |
40 |
| 17.14 |
当租约具有约束力时 |
41 |
| 17.15 |
保证金 |
41 |
| 17.16 |
法律费用 |
41 |
| 17.17 |
不放弃 |
41 |
|
|
目 录
|
页 |
| 17.18 |
静乐盟约 |
41 |
| 17.19 |
房东不承担个人责任 |
42 |
| 17.20 |
通知 |
42 |
| 17.21 |
机械师的助听器 |
42 |
| 17.22 |
记录 |
43 |
| 17.23 |
租客的财务状况 |
43 |
| 17.24 |
放弃反诉 |
43 |
| 17.25 |
同意 |
43 |
| 17.26 |
地役权 |
43 |
| 17.27 |
财产变更 |
44 |
| 17.28 |
盟约 |
44 |
| 17.29 |
拍卖 |
44 |
| 17.30 |
权威 |
44 |
| 17.31 |
缔约方关系 |
44 |
| 17.32 |
租赁权 |
44 |
| 17.33 |
保密 |
45 |
| 17.34 |
美国爱国者法认证 |
45 |
| 放弃陪审团审判 |
45 |
租赁
这份由业主和租户(定义见下文)签订的租约涉及位于马萨诸塞州马尔伯勒波士顿邮政路293号、称为波士顿邮政路企业中心的大楼(“大楼”)的空间。“地段”一词是指大厦所在的一块土地,在马尔堡税务图上称为第11号地段77座;而“物业”一词是指该地段及其不时的所有改善工程,包括大厦。
本文书双方在此商定如下:
第一条
基本租赁条款摘要
1.1导言
下文在本文书的其余部分及其附件中作了进一步补充,列出了本租赁的基本术语,并酌情构成本租赁中使用的某些术语的定义。
1.2基本数据
|
|
|
|
|
|
| 日期: |
2017年5月10日。 |
| 房东: |
RFP Lincoln293,LLC,马萨诸塞州一家有限责任公司 |
| 业主的现时通讯地址: |
RFP林肯293有限责任公司 |
| 付款地址: |
LPC商业服务公司。 注意:Sean V. Chrisom,高级副总裁 |
| 管理代理: |
LPC商业服务公司。 |
| 租户: |
Valeritas, Inc.,特拉华州公司 |
| 租客现时的通讯地址: |
Valeritas, Inc. |
| 租客占用处所后租客的邮寄地址: |
Valeritas, Inc. |
| 房地: |
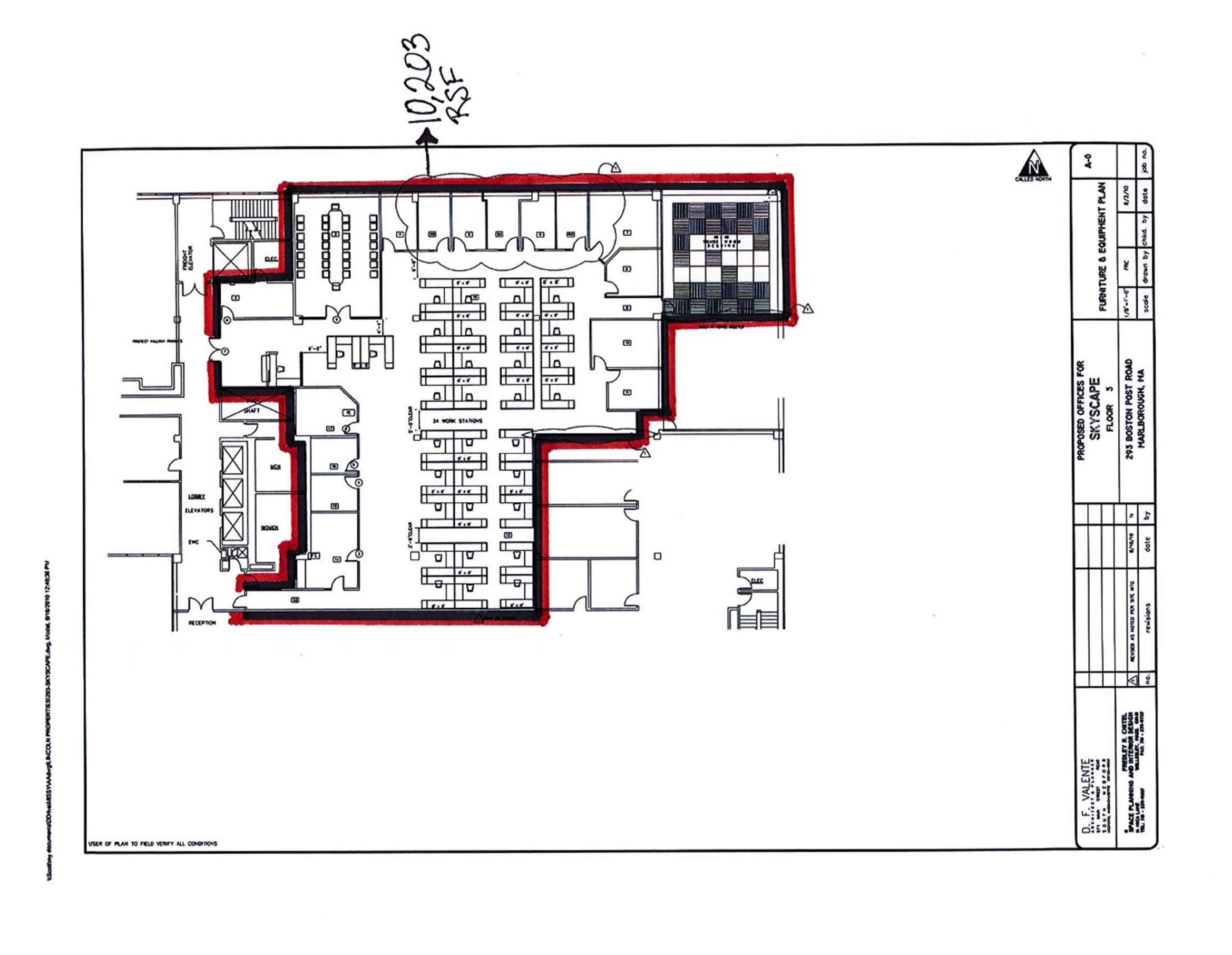
一个包含约10203平方英尺可出租空间的区域如本协议所附附件 A-1所示,位于大楼三楼的房地(根据实际平方英尺房地加上1.175%的“附加”系数计算)。如本文件所附附件 A-2所示,房地内还包括大楼较低一层(“较低一层空间”,当与第三层空间一起提及时,“房地”)约4968平方英尺的可出租面积(根据房地实际面积加上1.175%的“附加”系数计算)。 |
1
| 租期: |
自任期开始日起计七十六(76)个月。 |
| 任期开始日期: |
业主的工程已基本完成,而业主已提前最少五(5)个工作日通知租客。预期任期开始日期为2017年10月15日(见第3.7节,关于这一“外部日期”) |
基本租金:
1.三楼空间
2.下层空间
|
|
|||
|
|
|
|
|
| 月期 |
年度基数 租金 |
每平方 脚 |
月租 |
|
|
|
|
|
| 1-4个月: |
$*** |
不适用 |
不适用 |
| 5-12个月: |
$34,776.00 |
$7.00 |
$2,898.00 |
| 13-24月 |
$36,018.00 |
$7.25 |
$3,001.50 |
| 月25-36 |
$37,260.00 |
$7.50 |
$3,105.00 |
| 月37-48 |
$38,502.00 |
$7.75 |
$3,208.50 |
| 49-60个月 |
$39,744.00 |
$8.00 |
$3,312.00 |
| 第61-76个月 |
$40,986.00 |
$8.25 |
$3,415.50 |
|
|
|
|
|
|
|
|
*在最初租赁年度的第5-12个月,一次性每月基本租金应假设以8000.00平方英尺的可出租面积为基础,并采用适用的每平方英尺定价。 * *就本租约而言,“租期年”的定义是指全部或部分包括在租期内的连续12个月期间;自租期开始日起至租期开始日一周年前一天午夜止的第一个租期年。任期开始或结束时任何部分日历月的基本租金应按比例适当分摊。 |
|
|
* * *免费租金:尽管有上述规定的基本租金或本租约所载的任何其他相反条款或规定,只要承租人在本租约下没有违约,超出任何适用的通知(如有),以及在免费租期(定义见下文)内任何适用的补救期届满,承租人有权减免每月基本租金的分期付款(但仍须对根据本合同应支付的任何其他适用费用(如有)承担责任,包括额外租金和电费),或所谓的“免费租金”期,等于租期(“免费租期”)的第一个完整的四(4)个日历月。
|
2
|
|
|
| 保证金数额: |
保证金最初应为94138.13美元,但须减少如下: (i)只要租客在免费租期最后一天的三(3)周年当日并无违约,则在租客开始根据本协议缴付租金后的一个历月的第三个周年的保证金,须减至18,627.63元,并将该款额退还租客,而余下的余额,则为租期后十二(12)个月期间的余额的保证金; (ii)只要承租人在免租期最后一天的四(4)周年当日没有发生违约,在承租人根据本协议开始支付租金后的一个历月的第四周年,保证金须额外减少18,627.63元,该等款额须退还承租人,其余部分则作为承租期下十二(12)个月期间的余额的保证金;及 (iii)租客在免租期最后一天的五(5)周年当日并无违约,则在租客开始根据本协议缴付租金后的历月第五周年的保证金须额外减少18,627.63元,该款额须退还租客,而余下的余额则为租期余期的保证金。 (四)保证金另受本租约第17.15条管辖。此种数额应在本文中定义为“保证金数额”。
|
| 保证人:
|
不适用 |
| 许可用途: |
一般办公室、研究及发展、制造、化验室及/或其附带的任何合法用途,以及经业主同意的任何其他用途,只要该等其他用途(i)根据适用的分区及其他政府规例属合法的权利事项,及(ii)与建筑物内其余租用空间当时的用途相一致及互补,则不得无理拒绝该等用途。 |
|
|
|
|
|
|
| 租户的比例份额: |
8.49%,基于可出租的房舍平方英尺(包括三楼空间和下层空间),基于实际平方英尺的房舍加上1.175%的房舍“附加”系数,以及可出租的总建筑面积约178697平方英尺。业主可在房舍及(或)建筑物内可供出租楼面面积的总平方尺有任何增加或减少时,根据房舍内可供出租楼面面积的平方尺与建筑物内可供出租楼面面积的平方尺比较,不时调整租户的比例份额,因为该比例可能会不时有实际增加或减少。
|
3
| 基本税额: |
2018财政纳税年度(即2017年7月1日至2018年6月30日)的税款(定义见第4.2(a)节),即“基本纳税年度”。
|
| 基本业务费用: |
2017日历年,即“基本业务年度”的业务费用(定义见第4.3节)。
|
| 停车和装卸码头: |
根据本租约第2.2节的规定,租客有权在非排他性的“可用”基础上使用为大楼服务的停车区内的42个停车位。
|
| 经纪人: |
LPC商业服务公司。 |
|
|
高纬环球美国公司。
|
| 房东建筑 代表: |
LPC商业服务公司。
|
| 租户建筑
|
Valeritas, Inc.
|
1.3展览的列举
附件 A-1:显示第三层空间的平面图
附件 A-2:显示较低层空间的平面图
附件 b:故意删除
附件 c:规则和条例
附件 d:建筑物遵守的法定假期
附件 e:清洁规格
4
第二条
房地和认知权的说明
2.1房地位置
业主特此向租客承租,而租客亦特此向业主承租大厦内A-1及A-2号展品所指明的处所,但须符合本租约的条款及条件。附件 A中的任何物件均不得视为表示处所或建筑物的面积、尺寸或形状须精确如所示,而各方的意图只是在附件A-1及A-2上以图解而非精确地显示处所及建筑物的布局。然而,就本租赁而言,(一)三楼空间为10,203,(二)下层空间为4,968,(三)大楼为178,697,可供出租的建筑面积在本租赁的初始或任何续租期内不得重新计量。
2.2授权权和保留
租客作为处所的附属物,有权与其他有权使用处所或地段内的公用设施,包括大厦内的公用人行道、车道、大堂、走廊、坡道、电梯和楼梯,以及自助餐厅和健身室。该等权利须始终受业主不时以适当通知订立的合理规则及规例所规限,并受业主指定及不时更改拟如此使用的区域及设施的权利所规限,但该等更改不得对租客进入及使用处所造成重大不利影响。承租人须按每1,000平方尺可出租处所的泊车位比率3.4个车位,获授予在泊车区内最多使用52个车位的非专属权利。租约并不禁止或以其他方式限制业主在不通知租客的情况下不时更改该等泊车位的布局或类型,但业主不得减少可供租客使用的泊车位数目,而该等更改的布局或类型须至少与现时配置的一样方便于建筑物。除业主不时订立合理规则,而租客已获通知租客外,租客有权与大厦所有其他租客一样,在租期内免费使用该等泊车位,先到先得,但以第1.2条所列租客泊车位数目为限。业主须统一及勤勉地执行各租客租约的泊车规定。
房地内不包括附件 A所指空间的屋顶或天花板、地板及所有围墙,但其内表面及围墙门窗(不包括外窗)除外。业主保留在处所内安装、使用、保养、修理及更换(但须以不会无理干扰租客使用处所的方式)公用设施线、竖井、管道等的权利,但须位于该处所的吊顶以上(如无吊顶,则在屋顶及(或)地板甲板三(3)尺内)、地面以下或紧贴拆卸的墙壁或柱子。
业主同意修理因安装任何该等物品而对处所造成的任何损坏。该等公用设施线路、竖井、管道等不得视为本租赁下处所的一部分。业主亦保留更改或迁移任何公用设施的权利,但自助餐厅及健身中心须留在大厦内,并有权更改大厦停车场的路线。
2.3第一要约权
但承租人未发生违约(定义见第十四条),且在承租人选择行使其在本合同项下的权利时已超过任何适用的通知和补救期,承租人有权自本租赁日期起至本租赁日期后,在第一次要约的整个租期(根据本合同可延长)内,一次性租赁与建筑物第三层处所相邻的任何可供占用的空间(“可用空间”),在符合并符合本条第2.3款规定的条款和条件以及此类可用空间当时现有承租人的任何权利的前提下。如在自本租契日期起至本租契剩余租期(根据本租契可予延展)的任何时间内,有任何可用空间,业主须将该等可用空间以书面通知租客(“业主可用空间通知书”),该通知书须包括该等可用空间可供租客占用的预期日期及楼面图
5
显示由业主合理厘定的大致可出租面积。承租人只有在承租人接获业主的可用空间通知(即当时的实质通知)后三十(30)天内,向业主发出书面通知,才有权租赁该等可用空间的全部或部分。如果承租人如此选择租赁全部或部分可用空间,则该可用空间应按照本租赁中所载的相同条款和条件租赁,租期应在现有租赁的同一日期届满,但以下情况除外:此类空间的基本租金应等于根据本租赁为房地支付的当时的基本租金(按每可出租平方英尺计算);但就适用的可用空间而言,运营费用升级的基准年应为租户占用适用的可用空间后的第一个完整的日历年,而房地产税升级的基准年应为租户占用适用的可用空间后的第一个完整的会计年度,在符合上述规定的情况下,适用的可用空间应在向租户交付此种可用空间后成为本协议规定的房地的一部分。业主须向租客交付该等可用空间的独家、干净的拥有权,而该等可用空间的供暖、通风及空调(HVAC)、电力、管道、机械及消防/生命安全系统均须在良好的工作秩序下为该等可用空间服务。经了解和同意,适用的可用空间应由承租人按当时的“原样”、“在何处”的条件租赁,而无需业主保证或表示,而业主没有义务完成任何工作,为承租人的使用和占用准备可用空间。在承租人作出这一选择后,并自适用的可用空间交付之日起生效,并在剩余期限和任何延长期限内生效:(a)本租赁中使用的“房舍”应包括适用的可用空间;(b)房舍的可出租平方英尺应增加,以包括适用的可用空间的可出租平方英尺
空间;(c)年度基本租金应等于本租赁规定的基本租金加上本租赁所确定的适用可用空间的基本租金的总和;(d)租户有权免费使用每1,000平方英尺的可用空间最多增加3.4个停车位;(e)“租户的比例份额”,仅用于适用的可用空间,应为按本租赁第1.2节规定的方式计算的百分比,加上适用的可用空间的可出租面积。为确认将上述可用空间包括在内,业主须拟备一份反映上述条款的租约修正案,并将任何可用空间包括在内,而业主及租客须迅速签立及交付该修正案。业主同意作出合理努力,解除对可用空间占用人的任何搁置,并以其他方式取得对可用空间的占有,包括但不限于对搁置程序的机构和勤勉起诉。尽管本条第2.3条另有相反规定,如业主因任何理由而未能在业主可用空间通知书所述日期后九十(90)天内将可用空间交付租客,租客即有权终止接受业主对可用空间的要约,并可根据本条第2.3条免除租用可用空间的任何义务。为本协议的目的,当任何租赁或占用协议(包括延长期)已届满或将于六(6)个月内届满,或业主已选择不延长现时承租人的租约,而自本租约日期起生效的与该等可用空间有关的任何先前选择、权利或租赁权利已届满或已被放弃,而业主可不受限制地将该等空间租予第三方,则该等空间须视为“可供占用”。
如果承租人未能及时行使其在本合同项下的任何权利,则根据本合同授予的关于适用的可用空间的权利在所有目的上均应视为放弃,而业主可将适用的可用空间租赁给任何一方,并按不附带承租人任何权利的任何条款租赁。
承租人明白,承租人根据本条所享有的权利,在本租约的执行及交付日期之前,受授予在大厦第三层有空间的大厦其他承租人的下列首次要约权利所规限及从属的权利所规限:
Vasco数据安全–目前是Suite 340的租户
FC USA,Inc. –目前是301套房的租户
6
第三条
租赁期限:房舍条件
3.1租赁期限
本租期为本条例第1.2条所指明的“租期”,自租期开始日起,至其后第七十六个(第七十六个)历月的最后一日止(“租期”)(如租期开始日发生在一个历月的第一天以外的任何其他日期,则加上任何部分历月),除非根据下文第3.2条延长租期或根据本条例的条款提早终止租期,包括根据第十四条给予业主的权利。
3.2延期选择
租客可选择将本租期延长一(1)六十(60)个月,只就整个处所或三楼空间(“延长租期”),方法是在租期届满前九(9)个月,向业主发出选择延长租期的通知,但租客在发出该通知的日期及延长租期的生效日期,在适用的通知及补救期之后,并无违反本协议的规定。该等延期须与本租约所载的条款、契诺及条件相同,但(a)租客无权再将租期延展至超过本60个月的延长期,(b)延长期不设免费租期(公平市场租金价值厘定时另有规定的除外),及(c)延长期的基本租金须按以下第4.5节所厘定的公平市场租金价值(包括适用经更新的营运成本及税项基准年数)计算。
3.3房地条件
除本租约另有明文规定外,租客租赁处所的条件是“如在任何情况下”,但有一切过失,而无任何种类或性质的、由业主在事实上或法律上明示或默示的陈述或保证,亦无需向业主追索该处所的性质、条件或可用性。除业主工程外,承租人须自行承担费用、开支及风险,对处所进行任何为承租人使用及/或占用处所所所所需的改动、改善或安装。尽管如此,除业主工程外,业主须自付费用于生效日期交付处所:(一)不含石棉物料及任何其他获法律承认为“危险”或“有毒”的物料;(二)符合所有适用法律及守则的规定;(三)为处所服务的暖气、通风及空调(HVAC)、电气、管道、机械及消防/生命安全系统处于良好的工作状态;(四)空置、不含个人财产,并拆除下层处所的所有铁丝网。尽管如此,本条第3.3条并不规定业主有义务在交付处所前,在下层处所安装任何暖气、通风、空调、电力、管道、机械及消防/生命安全系统,但以截至交付日期尚未安装,而是在业主工程范围内为限。
3.4早期占有
但(a)承租人不干预或延迟业主或其代理人或承建商完成业主工程,及(b)承租人已及时缴付作为承租人在业主工程费用中所占份额的所有应付款项,承租人有权在生效日期前三十(30)天进入处所,以安装设备、家具、电线及建立一般业务。承租人须就承租人在处所的活动所引致的任何损害或延误负法律责任。但承租人并未从处所开始经营其业务,且在符合租约的所有条款及条件(支付租金的义务除外)的情况下,上述活动不构成向承租人交付处所的管有权,而租期亦不得因上述活动而开始。在进入处所之前,租客应获得租赁所要求的所有保险,并应向房东提供上述保险的证明。租客须与业主大厦经理协调进入事宜,而进入事宜须符合本租约的所有条款及条件及作为附件 C所附的规则及规例。
7
3.5房东的工作。
(a)不迟于生效日期,业主须安排将业主所管有的所有建筑及机械工程图则及文件(包括硬拷贝及CAD格式的图则及文件)交付租客审阅(或以其他方式提供给位于大厦较低层的图则室内的租客),以便租客建筑师审阅及完成业主为该处所所所进行的工程的租客装修规划,其中须载有足够的详细资料,以便业主(或认可承建商)取得所有适用的许可证及政府批准,并在其他方面与业主的工程相一致(“建筑图纸”)。业主向租客陈述其已向租客提供该大厦第三层的全套CAD图则及该大厦其余部分的硬拷贝图则,但不能向租客或其建筑师保证其可提供租客或其建筑师可能要求的该大厦的其他现有建筑或机械图则。承租人须安排在2017年6月15日或之前将建筑图纸交付业主批准,而业主的批准不得无理扣留、附加条件或延迟,并须在承租人将建筑图纸交付业主后五(5)天内予以批予或扣留。如业主不同意建议的建筑图纸,业主须合理详细地指明不同意的依据,而租客须安排其建筑师修订建筑图纸,以弥补该等不足,并迅速将该等修订呈交业主。业主对任何该等经修订的建筑图纸的覆核范围,只限于承租人的建筑师对业主在其不批准通知书内所指明的项目所作的更正。业主须在接获该等经修订的施工图后五(5)天内,将业主对该等经修订的施工图的批准或不批准通知租客,而该程序须继续进行,直至业主批准施工图(该等经批准的施工图构成“经批准的施工图”)为止。业主和租客确认并同意在2017年7月1日前全面批准批准的建筑图纸,以便各方有足够的时间及时
批准业主认可的承建商,并按照本租约完成业主的工作。
(b)如前(a)段所述,业主及租客须于2017年7月1日或之前,就须在认可建筑图纸所示的处所内进行的工程,由业主(由认可承建商并透过认可承建商)在生效日期前,依据认可建筑图纸而达成协议(“业主工程”)。作为业主工作的一部分,承租人有权在处所内安装暖气、通风和/或空调装置,其后维持和操作其本身的暖气、通风和/或空调装置,以便为处所提供暖气、通风和制冷,包括但不限于承租人要求并经业主合理批准的处所外部分建筑物或土地上的设备和支撑构筑物(统称“补充暖通空调”),而补充暖通空调须经业主合理批准,更具体地见本条例第3.5(a)条。业主和租客同意互相合作,以最后确定业主的工作时间表。业主工程费用中承租人在业主工程费用中所占份额的部分,须由承租人负担,余额须全部由业主负担及支付,详情载于下文第3.6条。业主工程须由根据本租约选定的业主认可承建商进行,而业主工程的费用,在不限制前述一般性的情况下,包括(a)按照认可建筑图纸拆卸现有装修工程及建造处所的全部费用,(b)与业主工程有关的所有物料及劳力的费用及所有许可证费用,(c)与此有关的完整建筑及工程费用(包括租户建筑师的费用),(d)须支付予林肯地产公司(或任何附属实体)的建筑管理费,相等于业主工程所谓“硬性成本”的百分之三(3%),及(e)AIA文件A111(1987版)所界定的“工程成本”(亦特别包括认可承建商的一般条件的成本)。否则,业主的工作须以良好和熟练的方式进行。
尽管本租约另有相反规定,但业主及租客在此同意,除非包括在业主工程内,否则业主无须负责建造、迁移或安装安全读卡器、办公室家具、保安系统、内部/外部电讯、语音及数据电缆或其他电话、数据及通讯设备(统称为“租客的初步工程”),业主亦无须为此缴付任何款项。承租人有权在房舍入口处和房舍内安装自己的安全系统,作为承租人初始工程的一部分。
8
3.6租户津贴;承租人有义务为承租人分担房东多余的工作费用
(a)业主同意为业主的工作费用提供不超过357,105.00美元的资金(“TI津贴”),而租户(由业主自行选择)有责任向认可承包商或业主支付超过TI津贴(“租户在业主工作费用中所占份额”)的任何和所有业主工作费用(作为根据认可承包商的总合同(“总合同”)支付的第一美元,直至根据总合同应支付的余额等于TI津贴)。如果业主工作的总成本低于TI津贴,租户有权将TI津贴中未使用的部分作为基本租金的每月抵免额分配,直至全部使用。承租人在业主工作费用中所占的份额,须由业主自行选择和指示,(i)由承租人直接支付给认可承建商(由业主聘用),或(ii)在业主必须为总合同支付任何TI津贴资金之前支付给业主,直至业主工作的剩余费用等于TI津贴(考虑到在先前的申请中支付的所有金额以及在认可承建商支付任何未决的申请时)。业主应租客要求,须向租客提供足够的备份及详情(包括至今为止交付予业主及/或认可承建商的所有已签立的留置权豁免,以确保工程及物料到位,以及证明业主须足额拨付TI津贴的证据),以证明(i)标准AIA表格所载的截至目前由租客征用并由其缴付的业主工程费用总额,及(ii)完成业主工程的余下费用总额,以及先前由租客出资的金额,作为业主工程费用中租户分担的部分。承租人须在业主作出书面指示后十(10)个工作日内,向承租人缴付承租人分担的业主工作费用(向认可承建商或业主),而承租人在该十(10)个工作日内,如无任何诚信争议,须向业主交付(并须包括该争议的详细依据)。如承租人就所指称的所欠款额确有诚意争议,则须将所有无争议的款额,(视属何情况而定)及时支付予业主或认可承建商。业主的建筑师须在接获该份租客争议通知书的副本后十(10)个工作日内,就任何有争议的款额的支付作出决定,而该建筑师在该等事宜上的决定为最终决定,并对各方具有约束力。如承租人在该十(10)个营业日后没有就任何诚信争议及时缴付承租人分担的业主工程费,或在业主建筑师就任何争议作出最后裁定后十(10)个营业日内没有及时缴付该等款额,则该失约即构成本租约项下的金钱违约,其后业主可选择就该等失约行使本条所列的任何补救办法。如业主的工作费用少于TI津贴,则在承租人收到业主的确认书后十(10)个营业日内,向承租人偿还承租人在业主工作费用中所占份额的任何多付款项,正如上文(i)及(ii)段所规定,证明业主工作费用。如果承租人没有及时支付承租人在业主工作费用中所占的份额,则所有这些应付和欠款应按租赁利率计算,该利率应在未支付的承租人在业主工作费用中所占份额之外计算和支付利息。一旦业主有义务根据本协议为TI津贴提供资金,它应及时直接向经批准的承包商支付完成业主工程所需的所有款项(但须遵守任何商定的变更单和任何相关费用,但须根据业主与经批准的承包商签订的完成此项工程的总合同及时支付其他费用),但须按照经批准的承包商与业主签订的总合同的要求,向经批准的承包商采购所有备份和细节(包括所有已执行的留置权豁免)。
在任何情况下,业主均无权同意认可承建商所提出的任何更改命令,或以其他方式同意增加业主的工程费用,导致在未经承租人事先书面同意的情况下增加承租人在业主工程费用中所占的份额。如业主和租客就更改令达成一致,增加了业主的工程费用,则应以适当的AIA表格作为证明,而租客应与业主明确约定,在业主有义务执行和交付该更改令或指示认可承建商相应修改业主工程范围之前,增加该更改令应占该一般合同费用增加的业主工程费用的份额。
3.7房东和房客的初步工作;延误。
(a)在任何租客延误的情况下,业主同意使用尽职调查安排在2017年10月15日或之前完成业主的工程(“在外日期”)。业主无须安装任何
9
不符合《认可建造图》或不符合适用法律、条例或守则的改善工程。如因政府规管、异常稀少或无法取得劳工或材料、劳工困难、伤亡或其他合理地超出业主控制范围的原因(资金短缺除外)而出现延误,则应将延迟期间延长。
(b)如业主因租客延误(下文所界定的术语)而使处所基本不完整而不能在外部日期给予处所的管有权,则在业主本可交付处所的日期(在已基本完成业主的工作后)之后的每一天(如租客延误的话),须延长该期限的生效日期(及外部日期),否则,业主须在其后有义务在租客纠正该租客延误后,尽快按照本租约的规定及时交付处所。如发生租客延误的情况,外租日期每延长一天,免费租期即告缩短。“租客延误”一词如适用,指下列任何一种情况:(i)租客未能及时向业主或认可承建商支付作为租客分担的业主工作费用而应支付的任何款项;(ii)租客未能按照业主在此规定的任何时限向业主交付完成或进行业主工作的图则及规格,包括但不限于租客未能安排在六月十五日前将施工图纸交付业主,2017年;或(iii)因租户的变更单、变更单要求或处理、授权和/或撤回变更单要求或选择材料或考虑是否继续办理变更单所涉及的时间而导致或与之有关的任何延迟,未能基本完成业主的工作;(iv)租户在批准任何项目、材料或其他与业主工作有关的工作或材料方面的任何延迟;(v)租户在与其相关的图则或规格方面出现错误或未完成;(vi)租户的建筑师(如果一人如此聘用)造成的延迟,(vii)因租客或其雇员、代理人或承建商(其通知将由业主提供予租客)而在实质上完成工程方面所造成的任何其他延误;但如租客在该两(2)个营业日期间内纠正该租客的延误,则在该两(2)个营业日期间内,不得将外租日期延后或减少免费租期。在确定与租客延误有关的任何延误的长度时,该延误的累积效应应予适用。
(c)在承租人延误及不可抗力事件(定义见下文)或任何其他超出业主合理控制范围的延误(资金短缺除外)的情况下,如业主因业主的工程未基本完成或该等处所尚未完成并可供占用而不能在外部日期(可能已按本条例的规定延长)给予处所的管有权,而该等延误持续至外部日期之后,承租人有权作出以下选择:(i)如延误持续至2017年12月15日之后,则可,但没有义务以全部费用和费用完成业主的工作,并在取得所有权后有权将该等款项记入自本合同所界定的租期开始之日起根据本合同到期和应付的未来基本租金(在任何免费租期之后),(并须向业主提供书面备份文件,说明承租人在申请任何此类基本租金抵免之前是否已支付了此类费用),(ii)如果延迟持续到2017年12月15日之后,业主可在12月24日之前向业主发出书面通知,自2017年12月15日起终止本租约,自2017年起,本租约终止,双方除向承租人退还保证金和预付租金外,不再承担本租约项下的其他义务,但根据本租约中明确规定在租约到期或提前终止后仍有效的条款除外,或(iii)如果延迟持续超过外部日期,委员会可在外部日期后五(5)天内向业主发出通知,以选择延长业主工程的完成时间,在此情况下,委员会须在外部日期后实质上完成业主工程的每一天获得每日基本租金抵免额,而基本租金抵免额须在免费租期之外,但不得超过相当于延迟六十(60)天的基本租金抵免额,即使该等延迟已超过六十(60)天。尽管如此,如承租人未能及时支付承租人在业主工作费用中所占的份额,则承租人并无根据本条第3.7(c)条享有的权利,除非该等未能支付的款项只涉及根据第3.5条所设想的涉及诚信争议的未付款额。
(d)在承租人将建筑图纸交付业主后,业主须以竞争方式将业主的工程投标予最少三(3)名互相可接受的合资格总承建商(如在建筑图纸成为认可建筑图纸前有更改,则该等更改须在投标过程中作为增编或更改命令处理)。租客有权
10
包括另外一名准总承建商,业主须向该总承建商就业主工程提出投标。在这一竞争性投标过程之后,业主和租户应相互合作,选择一个双方都能接受的、有适当资格的总承包商(包括但不限于租户有权与拟议的总承包商面谈,并确定投标是否符合要求)。如果业主和租客尽管作出了这些努力,但仍不能就相互接受的总承包商达成协议,则租客有权在业主批准下最终选择总承包商(最终选定的总承包商,即“经批准的承包商”),而不是不合理地、拒绝、附加条件或延迟,只要该总承包商完全有资格及时承担和完成业主的工作,并获得充分和合法的保险和执照。承租人在收到认可承建商的最后出价估价或最后出价及业主工程费用的详细说明后一(1)星期内,有权以书面批准或不批准业主工程的该等费用。如承租人不批准该项费用,承租人须在业主接获承租人的不批准通知后五(5)天内与业主及认可承建商会面,以(a)就建筑图纸或认可建筑图纸的修订达成协议,以便将业主工程的费用减至(i)等于或少于TI津贴,或(ii)承租人可接受的金额,或(b)与认可承建商就减少业主工程的费用进行谈判。在所有情况下,核准承包商应在2017年7月15日或之前选定并聘用,以便有足够的时间及时完成业主的工作。
(e)租客的所有初步工程,须与业主的工程协调,而任何其他工程,均须由业主进行,并须以维持和谐的劳资关系及不损害建筑物或干扰建筑物运作的方式进行,但安装家具的工程除外,则须由业主首先批准的承建商或工人进行,而业主的批准不会被无理拒绝。除承租人在承租人的首次工程和/或任何承租人的改建工程开始前由承租人认可的承租人进行的工程外,承租人应:取得因此而需要的所有执照和许可证;向业主交付其所有承建人和分包人的名称声明;并安排每个承建人投保法定数额的工人赔偿保险,涵盖承建人和分包人的所有雇员;商业一般责任保险和财产损失保险,商业一般保险限额为1000000美元/2000000美元,财产损失保险限额为1000000美元/2000000美元,500,000美元(所有该等保险须由业主合理批准的公司承保,并指定承租人为受保人,并指定业主的承租人为额外受保人),并须向业主交付所有该等保险的证明书。承租人同意在承租人的首次工程的处所上所作的任何工程的全部费用到期时立即支付,并且不导致或允许任何与此有关的劳务或材料的留置权附加在处所或财产上,并立即解除任何可能附加的留置权(或在提交留置权的通知发出后三十(30)天内解除该留置权)。承租人的初步工程完成后,承租人须迅速向业主交付由每名承建商、分包商、物料供应商、建筑师、工程师或其他提供与该工程有关的劳工、物料或其他服务的一方签立的原始留置权解除和放弃,并据此无条件解除和放弃该一方就与该工程有关的劳工、物料或服务所享有的所有留置权、索偿和其他权利。
(f)业主的工程及依据第3条规定须由业主进行的任何其他工程,在租客开始占用处所作准许用途时,须当作已获租客批准,但任何“打孔清单项目”及任何潜在缺陷除外。业主在收到此种打孔清单项目清单后,应立即开始并努力完成此种项目,并在收到此种打孔清单项目后三十(30)天内完成。
(g)租客承担充分和完整的责任,确保业主的工作足以充分满足租客在房舍内经营业务的需要和要求,以及租客对房舍的使用。业主批准认可建筑图纸或任何与业主工程有关的图则、规格、图则或其他项目,或业主对业主工程的表现、监督或监察,均不构成业主就该设计是否足以供租客使用处所而向租客作出的任何保证或订立的契约。
11
3.8适用于建筑的一般规定。
承租人及业主(包括认可承建商)根据本租约所规定或准许进行的所有建筑工程,均须以良好及熟练的方式进行,并须符合所有适用的法律及政府当局的所有条例、规例及命令。业主和租客可各自在合理时间检查对方的工作,并须就观察到的缺陷发出通知。
3.9建筑代表。
每一方均授权另一方在规划和施工方面依赖第1.2条所指的一方的任何建筑代表或下文指定的任何人通过通知依赖该方的一方以替代或补充的方式代表该方采取的批准和其他行动。
第四条
租金
4.1租金支付
基本租金(按本条第1.2条所指明的差饷计算)及依据本租约须缴付的额外租金或其他费用,须由租客在付款地址或业主不时藉通知租客而指定的其他地方,向业主缴付,而无须任何要求、反索偿抵销或扣除,但本租约另有具体规定的除外。
(a)除免费租期另有规定外,自租期开始之日起,基本租金及租客按比例分摊的税额超额部分及租客按比例分摊的经营成本超额部分的每月分期付款,须于本租期内每个历月的第一天预先支付。在本租赁中,“租赁年度”一词系指在租赁期限内的任何历年或其中的一部分。
(b)任何部分月份的基本租金及租客按比例分摊的溢税额及租客按比例分摊的营运费用溢额额,须由租客根据该月份的天数及该年度的天数,按该比率向业主缴付。承租人按月须缴付的任何其他费用,如按以下规定,亦须按比例分摊。
(c)就本协议而言,基本租金和租客在任何部分月份按比例分摊的税款和租客按比例分摊的营运费用,以及租客根据本协议应支付的任何其他费用,应被视为“租金”。“额外租金”或“额外租金”包括承租人根据基本租金以外应向业主支付的所有其他款项,除非本租约另有规定,否则额外租金须在业主提出书面要求后三十(30)天内支付,并附有证明该等要求的发票。
(d)未在到期日起十(10)天内支付的租金,其利率(“租赁利率”)等于(i)美国银行或其后继者不时收取的所谓最优惠利率加上每年百分之二(2%)或(ii)法定允许的最高利率中的较低者,从到期日起直至支付为止。
(e)如承租人根据本协议应缴付的任何租金或任何其他款项在到期日期起计十(10)天内未予缴付,则承租人须就该等款项仍未缴付的每个月或其中部分的每笔迟缴款项缴付250.00元的滞纳金。上述滞纳金须在业主因该等滞纳金而采取的任何其他补救措施之外而支付,而不是不包括该等其他补救措施,包括但不限于就上述滞纳金支付利息的义务。
4.2房地产税
(a)“税”一词系指市政服务的所有税项和摊款(包括但不限于公共改善或福利的摊款)以及市政服务税项性质的其他收费或收费,在租期内或与租期有关的任何时候,这些税项和摊款可对市政服务进行评估、征收、确认或征收,或属于市政服务税项或与市政服务有关的税项或与市政服务税项有关的税项或费用,或属于市政服务税项或与市政服务税项有关的税项或与市政服务
12
对该建筑物及地段或其任何部分的留置权,或对该建筑物及地段的任何租金,或对该建筑物或地段的任何遗产、权利或权益的留置权,或对该财产或其任何部分的占用、使用或管有权,以及对与该建筑物或地段有关的任何个人财产征收从价税。税款不包括因业主不缴税款或在到期时提交任何税款或资料申报表而招致的任何罚款。业主表示,该建筑物及该地段是经全面评估的,并不受任何税务减免或特别评估的规限。
(1)如麻萨诸塞州联邦、其任何政治分区或对该建筑物有司法管辖权的任何其他政府当局征收税款、评税、收费或费用,而业主须以此种税款的替代或作为此种税款的补充,或(2)就租金征收税款,以替代或作为对该建筑物或地段或其任何部分和/或与该建筑物或该地段或其任何部分有关的个人财产征收的税款的补充,则征收所有此种税款、评税,费用或收费(“替代税”)须当作构成本条例所订的税项,但任何该等替代税的计算,须犹如该建筑物及土地是业主的唯一财产,而业主收取的租金是业主的唯一收入一样。税项亦须包括业主在缴付的年度内为寻求减征或限制增征任何税项而招致的一切合理费用及讼费,而不论是否取得减征或限制。租客须按租客的基本税年及以往的缴款,就业主在租期内所获的任何该等净减税额,按比例取得抵免额。除上述关于替代税的规定外,税收不应包括任何遗产、消费税、遗产、继承、转让、赠与、专营权、净收益或资本股税。
“税期”一词是指根据适用法律需要缴纳税款的期间。因此,根据麻萨诸塞州现行法律,税期是指从一个历年的7月1日至下一个历年的6月30日。
(b)自2018年7月1日起的课税期起,如任何课税期的税款超过基本税额,租客须向业主缴付租客按比例所占的超额部分(“税额超额部分”),作为额外租金。租客须按比例向业主缴付每月分期付款,以计算业主不时合理计算的每个税期的预计税额超额,并在税期结束后作出调整,以计算该税期的实际税额超额。业主须向租客提供税期内所有税单的副本,以及根据本款要求作出的任何通知或付款。如在任何税期内的每月分期付款总额大于租客在该税期内的实际税额超出部分的比例份额,租客有权从租客在本协议项下的租金债务中获得该差额的抵免额;如租期已届满,而租客对业主并无任何未清偿的金钱债务,则业主须立即将该款额支付予租客。如该等每月分期付款的总额少于该税期的该等法律责任,租客须在收到业主的发票后三十(30)天内,连同与该发票有关的所有证明文件及备用文件,向业主缴付该等差额的款额。
(c)如承租人须就任何税项缴付承租人所占比例的税项,而该税项须予调整,以顾及任何减免或退款,则承租人有权就根据本协议所承担的租金义务取得贷项,款额为承租人在该项减免中所占比例,或以扣除业主为取得该项减免或退款而支付的费用或开支,包括但不限于评估师及律师费(但该等费用原先并不包括在税项内),或如租期已届满,而承租人对业主并无未清偿的金钱责任,业主须立即向租客缴付该款额。未经业主事先书面同意,租客不得申请减免房地产税。
(d)承租人须在拖欠款项前缴付根据承租人在处所内、处所内、处所内、处所内、处所内或周围或与承租人使用处所有关的商业装置、陈设、存货、设备及所有其他个人财产而征收的所有税款。如承租人的任何个人财产须以业主的不动产或个人财产进行评估,则承租人须在接获业主的书面陈述,述明适用于承租人财产的税款后二十(20)天内,向业主缴付可归属于承租人的税款。
13
4.3承租人在业务费用中所占份额
自2018年1月1日起,如租期内任何历年的业务费用(定义见下文)超过基本业务年度的业务费用(即基本业务费用),租客须向业主支付超出部分的按比例分摊的租金(“业务费用超出部分”),作为额外租金。租客须按租期内每一租约历年的预计营运费用超额额,按比例每月向业主缴付分期付款,款额须由业主不时合理计算,但在该租约历年期间不多于一次,并在该租约历年结束后作出调整,以计算该租约历年的实际营运费用超额额。业主须在每个租期结束后九十(90)天内,交付一份在整个租期内一贯适用的细目细目的实际开支报表。如果在任何租赁日历年内,每月分期付款的总额大于租户在该租赁日历年内实际经营费用超额部分的比例份额,则租户有权从租户的每月分期付款中获得贷项,原因是本合同项下的预计经营费用超出该差额的数额,或者,如果租赁期限已满,且租户对房东没有未清偿的货币债务,房东应立即将该数额支付给租户。如该等每月分期付款的总额少于该租赁历年的该等法律责任,租客须在接获业主的发票后三十(30)天内,连同与该发票有关的所有证明文件及备用文件,向业主缴付该等差额的款额,作为额外租金。
在本租赁中,“经营成本”一词系指业主在经营、投保、修理、装备、保养、更换、管理、清洁和保护(统称“经营”)建筑物、建筑物的供暖、通风、电气、管道和其他系统及地段(统称“物业”)方面发生的一切费用和开支,包括但不限于以下各项:
(1)业主或其代理人因雇用昼夜监督、看门人、杂工、木匠、工程师、消防员、机械师、电工、水管工、警卫、清洁工及其他人员而招致的一切费用(包括就服务、工资、薪金及其他补偿、社会保障、失业及类似税项、工人补偿保险、伤残津贴、退休金、住院治疗、退休计划及团体保险、制服及工作服及其清洁,以及根据任何集体谈判协议就业主或其代理人的服务而招致的费用),以及从事监督上述任何人的工作的人员;但雇用与财产经营有关的非全时工作人员的费用应予公平调整;(2)在财产经营过程中提供或使用的服务、材料和用品的费用,包括但不限于履行业主根据本租约第8.2和9.1节承担的义务的费用;(3)支付与财产经营有关的法律费用和其他专业费用的金额,但不包括就(x)就租约的谈判或强制执行而支付的费用;及(y)寻求减税;(4)保险费及商业上合理的免赔额,由业主以诚意厘定,但以所需为限,包括但不限于根据本租约第11.5条规定的租金减免保险及根据本租约第11.7条规定的业主意外伤害保险;(5)电费、机油费、天然气费、蒸汽费,(6)建筑物内的水和下水道使用费(以家庭用途为限,包括与建筑物的下水道或化粪池系统组件有关的其他费用和开支,但不包括因任何租户在建筑物内任何已拆除的处所内使用而产生的所有水和下水道使用费);(7)除雪和清除、景观美化以及维护和操作灌溉系统的费用;(8)支付给独立承包商的为该建筑物的运营提供的服务、材料和用品的金额;(9)运营费用,更换、修改和(或)增加(一)在本租赁日期之后首先生效的任何政府机构的法律、法规、条例或指示所规定的改进或设备,以及因此而必须进行的任何修理或拆除,(二)因建筑物机械或设备故障而必须进行的维修或拆除,而根据合理的合理和惯常的建筑物管理做法,类似财产的谨慎所有人会选择更换这些机械或设备,而不是修理,或(三)旨在改善效用,任何楼宇系统的效率或容量;(11)安装楼宇内联网或有关的布线(“INC”)及维持、维修、固定及更换现有的INC以供楼宇内所有租户使用的费用(不包括业主单位的工程,但如任何INC只为单一租户服务);(12)根据服务合约向独立承建商支付清洁、经营、管理、保养及维修楼宇及上述公用区域的费用(该等费用可支付予业主的附属公司);(13)
14
a管理费按大楼租金总额的百分比计算;但条件是管理费不得超过租金总收入的3%;(14)与健康俱乐部、自助餐厅设施或其中其他公用设施的运营有关的所有其他净费用;但任何相关收入(通过租金付款、会员费等方式)应首先用于确定任何此类净费用。营运成本亦须包括该建筑物(由业主合理厘定及分配)所占的任何部分(如有的话):(i)该建筑物在营运、保养、维修、保险及缴付与其他建筑物或土地共用的任何公用或共用设施(如任何所谓的“回路”通路、蓄水池、下水道及其他公用设施线)时所招致或可归于该建筑物的费用,便利设施等;(ii)穿梭巴士服务(只要业主须提供该服务);(iii)有关人员及行政及或服务人员的费用,而该等人员的职责并不只限于业主分配予该建筑物及/或物业的建筑物及/或地段;(iv)业主根据任何地役权、牌照、经营协议、声明、限制性契诺或与经营、保养、修理、管理、保险及缴付其他建筑物或土地中的房地产税有关的文书而缴付的款项;但截至本协议日期为止,本句中所述的运营成本不存在转嫁给大楼租户的情况。业务费用可以直接支付,也可以通过偿还方式支付,并应包括适用于此的税款。
尽管有上述规定,以上未列明的任何费用或承租人以书面批准的任何费用,均应不计入营运费用,包括:(一)修缮设计或建造缺陷的费用;(二)折旧;(三)抵押贷款的利息和本金支付以及其他债务费用和地面租赁付款(如果有的话),以及因房东迟付这些款项而被评估的任何罚款;(四)房地产经纪人租赁佣金或补偿;(五)房东获得补偿的任何费用或支出(或其部分),无论是通过保险收益还是其他方式;(六)律师费、费用、支出,与建筑物的现有和未来租户谈判和/或执行租约而产生的广告和营销及其他费用;(vii)业主在管理和经营建筑物时未实际使用的场地租金;(viii)因业主、其雇员、代理人、承包商或受让人违反租赁条款和条件或任何有效的适用的建筑法规、政府规则、条例或法律而产生的所有费用或开支(包括罚款、罚款和法律费用),(ix)除上述管理费外,业主联属公司的任何附属公司因在大厦内或大厦内提供服务而增加的间接费用或利润,但以该等服务的成本超过该等服务的竞争成本为限;(x)为该大厦的租户或任何其他租户建造租户装修工程的成本;(xi)该大厦的任何其他租户特别收取及支付的营运成本;(xii)特别服务及货品的成本,或向该建筑物或物业的任何其他承租人提供的材料;(xiii)基本建设改善,除非(x)须遵守在本租约生效日期后首先生效的法律及限制,(Y)因现有建筑物机器或设备出现故障而需要,而一名审慎的同类物业拥有人会根据合理及惯常的建筑物管理惯例,选择更换该等机器或设备而非修理,或(z)旨在改善任何建筑物系统的效用、效率或容量,在每宗个案中,须在其使用年期内摊销,连同业主为资助该等资本改良而借入的任何款项的未摊销余额的利息;或在业主并非为资助该等资本改良而借入该等款项的情况下,不包括额外的利息费用;(十四)与个别承租人的纠纷和(或)业主所组成的一个或多个法律实体的存在、维修或与财产无关的业务所引起的费用和开支;(十五)因业主、其代理人、承包商、雇员的疏忽或故意不当行为而必须进行的维修费用,(xvi)在符合上文(xiii)的规定下,开发和建造该物业的费用或该物业的其他改进或增建费用,不论是否为资本支出;(xvii)业主因开发或建造该物业而招致的税款及任何其他政府付款;(xviii)从该物业移走或补救危险物质的费用;(xix)支付给某人或商号的任何款项,与业主共同拥有和控制的公司或其他实体,其金额超过了在没有此种关系的情况下按公平原则支付的金额;(xx)购买雕塑、绘画和其他艺术品的费用;(xxi)物业经理或楼宇主管级别以上的高级职员、行政人员和行政雇员的薪金、奖金和福利,如果物业经理或楼宇主管或任何低于该级别的人员与其他建筑物共用或负有与包含该处所的建筑物无关的其他职责,只有可分配的部分
15
这些人的薪金、奖金和福利应列入营业费用;以及(xxii)替换和应急准备金。
尽管有任何与此相反的规定,承租人在第一个租赁年度后的每一租赁年度内,不包括房地产税(建筑物的比例份额)、房东保险、冰雪清除和水电费(“不可控制的凸轮费用”)在内的任何超额运营费用的比例份额,在非累积基础上,每年不得超过承租人在上一个租赁年度实际支付的这些相同运营费用(在相同的除外情况下)所占超额运营费用的比例份额的105%。
如在任何租契历年的全部或部分期间(包括但不限于本租契期限的任何部分发生的历年,包括基本经营年度),业主并没有向建筑物的任何部分执行或提供任何物品(该部分的费用,如由业主执行或提供给建筑物的该部分,则构成经营费用的一部分),原因是建筑物的该部分没有被占用或租赁,则营运费用须当作增加的款额,相等于业主在该期间如已将该等物品交付或提供给该建筑物的95%而合理地会招致的额外费用及开支。
4.4检查权。
业主须准许承租人在承租人负担费用的情况下,并在正常营业时间内,但就任何承租日历年(包括基本经营年度)只审阅一次承租人的发票及与适用的承租日历年的经营成本有关的报表,以核实经营成本及承租人在其中所占的份额,但须在承租人接获业主的年度报表后120天内,向承租人发出有关承租人希望覆核的通知,并须在其后由承租人尽职尽责地展开此项覆核及检控。业主须向租客提供与任何该等期间的营运费用有关的任何该等覆核后备文件的一部分。业主所作的任何营运成本报表或帐目,均对租客具有约束力及结论性,除非(i)租客在该120天期间内妥为提出覆核要求,及(ii)在该覆核要求后120天内,租客须以书面通知业主,租客对该报表的正确性提出异议,并指明声称该报表不正确的特定方面。进行审查的会计师或会计师事务所不应根据所发现的指称的多收费用的百分比获得赔偿。任何转租人不得有权进行覆核,而任何受让人不得在该受让人没有管有处所的任何期间进行覆核。除承租人的高级职员、雇员、会计师、律师和贷款人外,承租人同意任何经营成本审查的结果应由承租人严格保密,不得透露给任何其他人或实体。
4.5任何延期期间的基本租金。
在本租约的延长期内(如租客根据上文第3.2节行使延长租期的选择权),租客须支付的年度基本租金为自适用的延长期的第一天起所厘定的处所的公平市场租金价值。
“公平市场租金价值”系指延长期限内房地租金的市场价格,包括更新的业务费用和税收基准年,其基础是当时就该物业所在区域的可比空间进行公平交易所支付的租金,包括所有相关因素。公平市场租金价值应确定如下:
在租客行使延长租期的选择权后三十(30)天内,业主须将业主对公平市场租金价值的厘定,以书面通知租客。租客须当作已接受业主的上述通知所载的租金金额,而该租金比率须最终当作公平市场租金价值,除非租客在业主发出通知后七(7)个营业日内以书面通知业主,表示租客对业主的上述决定有争议,在此情况下,各方须按下述方式进行公平市场租金价值的厘定。
16
如果承租人对业主确定公平市场租金价值有异议,而业主和承租人不能在30天内就公平市场租金价值达成协议,则应按以下方式确定:业主和承租人应在该三十(30)天期限届满后十天内各自指定一名独立评估师,由该评估师独立确定公平市场租金价值。如果这类评估师如此确定的数额之间的差额不超过这类数额中较低者的百分之十(10%),则公平市场租金价值应等于如此确定的总额的百分之五十(50%)。如如此厘定的款额之间的差额超过该等款额中较低者的百分之十(10%),则该两(2)名评估师须在其后十(10)天内委任第三名评估师,但如该等评估师未能在该十(10)天内委任,则业主或租客可要求大波士顿房地产委员会或其任何继承组织在该要求后十(10)天内委任一名评估师,而业主及租客均须受在该十(10)天内如此作出的委任的约束。如该评估师在该十(10)天内并无获委任,则业主或租客可向任何具司法管辖权的法院提出申请,要求该法院作出该等委任。由原评估师、大波士顿房地产委员会或该法院任命的任何评估师,应受指示在其任命后二十(20)天内,按照此处所载的这一术语的定义确定公平市场租金价值。第三次评估超过前两次评估中较高者,公允市场租金价值为前两次评估中较高者;第三次评估低于前两次评估中较低者,公允市场租金价值为前两次评估中较低者。在所有其他情况下,公平市场租金价值应等于第三次评估。尽管有上述规定,如果任何一方未能在上述规定的10天期限内指定其评估人(该方在本文中称为“未获批准的一方”),另一方可向未获批准的一方送达通知,要求未获批准的一方在发出通知后十(10)天内指定其评估人。如果未获批准的一方不得在上述十天内以指定其评估师的方式作出答复,则另一方指定的评估师应为唯一的评估师,其对公平市场租金价值的确定对租客和房东具有约束力和决定性。每一方当事人应当支付其指定的鉴定人的费用和开支,但第三名鉴定人的费用和开支由当事人平均分担。根据本协议委任的所有评估师应为房地产经纪人或MAI评估师,具有不少于十(10)年的租赁空间或评估与位于波士顿地铁西区市场的大楼类似的房地产的租赁权益价值的经验。上述裁定应是结论性的、最终的、对当事人具有约束力的,并可在对当事人有管辖权的任何法院强制执行。
如果双方不能在延长期的第一天之前就公平市场租金价值达成协议(或上述仲裁程序尚未结束),承租人应按照租赁中确定的初始期限最后一个月的基本租金增加额,每月支付基本租金(以及本合同项下的所有额外租金和其他付款),直至按照本合同的规定最终确定公平市场租金价值为止,在此期间,如有必要,应作出适当的追溯基本租金调整付款或退款。
第五条
房地的使用
5.1允许使用
租客同意,租客只可为本租约第1.2条所指明的许可用途而使用及占用处所,而不得作其他用途。
租客须遵从并须安排其雇员、代理人及受邀者遵从业主为妥善规管建筑物及地段而不时订立的合理规则及规例,但业主须就该等规则及规例向租客发出合理的事先通知,而该等附加规则及规例一般适用于建筑物内的所有租客,但不同情况有理由作出不同处理的情况除外。
5.2遵守法律
租客须自费迅速遵从所有适用的法律、条例、规则、规例、命令、占用证明书、有条件使用证明书或其他许可证、差异、契诺及纪录限制,
17
业主的工程师或其他顾问的建议,以及任何火险保险承保人、评级机构或政府机构的规定,不论是否反映现行政策的改变,亦不论其期限或期限的任何部分,均与租客占用及使用房舍有关,现已生效或日后可能生效的火险承保人、评级机构或政府机构的规定,承租人完成承租人的初步工程及承租人进行的任何更改,但承租人可推迟遵从该等法律及限制,但承租人须以诚意及适当的法律程序质疑该等法律及限制的有效性。业主须自费及自费遵从一般适用于建筑物整体的所有法律及限制,而即使本条例另有相反规定,承租人亦无须作出在本租约日期后可采纳或颁布的任何法律及限制所规定的任何结构更改、更改、加建或更正,除非因承租人的作为、承租人的更改或承租人将处所用于许可用途以外的目的而有需要。业主同意迅速补救任何已注意到或发出的与该建筑物有关的违例情况,而该等违例情况须阻止租客对处所作出任何更改,或阻止租客在处所内开业或经营业务。租客同意,不得在该处所内进行非法、不当或违反任何法律及限制的买卖或占用,亦不得扰乱其他租客安静享用大厦。租客须取得政府或准政府当局的任何及所有批准、许可证、牌照、差异等,包括但不限于租客使用处所所所所需的任何及所有批准、许可证、牌照、差异等,包括但不限于与租客的初步工程有关的任何建筑工程及装置所需的任何批准、许可证、牌照、差异等,以及租客于当日或当日所作的更改或加建,或有关处所;但租客如未先给予业主一个合理机会,以审查任何批准申请及所有与此有关的资料及图则,并取得业主的书面同意,则不得寻求或申请任何批准,而该书面同意不得被无理拒绝、附加条件或延迟。在承租人提出要求后,凡任何具有司法管辖权的政府机构要求由承租人加入,则承租人须参与申请任何批准,而承租人须在承租人提出要求后,以其他方式合理地与承租人合作。在任何情况下,承租人应负责支付与获得所有批准有关的所有费用、开支和费用。除房东的工作外,在不限制上述规定的一般适用的情况下,承租人应负责使房舍符合《美国残疾人法》(42 U.S.C.第12101条等)的要求,包括但不限于对房舍所作的任何改动,以及根据《美国残疾人法》颁布的《建筑物和设施无障碍指南》的要求,这些规定和无障碍指南可能会不时修订(统称为“ADA”)。除业主的工作外,租客须负责在整个租期内使处所符合ADA的规定。承租人不能获得或延迟获得任何此种批准,在任何情况下都不应减少、延迟或终止承租人在本合同项下的租金、付款和履约义务。承租人须自费(i)因承租人特别使用处所而对任何法律及限制所规定的处所进行一切安装、修理、改建、增建或改善;(ii)使处所配备一切所需的安全设备及器具;及(iii)符合业主及承租人的所有对处所、建筑物及地段适用的合理规定。租客不得在处所的任何楼面上放置超过(a)经业主建筑师核证的该等楼面的设计承载量为每平方尺的楼面负载量及(b)法律容许的每平方尺的楼面负载量中较低者。业主保留订明所有营业机器及机械设备(包括保险箱)的重量及位置的权利,而这些机器及机械设备须放置以分配重量。
5.3保险风险
租客不得准许任何处所的使用,而该等处所将使该处所可作废,或除非租客支付下述可归属于该处所的额外保险费,否则不得增加建筑物或有关财产内容的任何保险的保费,或违反新英格兰火灾保险评级协会(或任何继承组织)不时订立的任何法律或规例,或须对建筑物作出任何更改或加建。业主须将任何该等情况以书面通知租客,而租客须在该通知发出后三十(30)天内予以纠正。如承租人未在订明时限内补救,承租人须在书面要求后三十(30)天内,向业主偿还因承租人使用处所而引起的所有额外保险费的费用。任何此种数额应视为本合同项下的额外租金。
18
5.4电气设备
除一般办公设备、照明制造、实验室、研究及发展设备,包括但不限于电脑、复印机及打印机外,租客不得在没有业主书面同意的情况下,将任何个别或集体运作的装置、器具或设备,以超过为处所服务的电力系统容量的功率,而该等装置、器具或设备,如业主可合理地厘定,而该等装置、器具或设备,须经业主审核租客的电力使用情况,以确定租客是否符合本合约的规定。如业主自行决定准许超量使用,租客须支付额外租金等超量电力的费用,以及为提供或计量该等超量电力而须安装任何额外的立管、电表或其他设施的费用。
5.5租客业务公约
(a)平等权利公约
除业主在清洁、维修及保养、处所的使用及占用方面所负的责任外,除本租约其他章节所订的契诺外,租客须自费:(1)保持处所门窗内所有玻璃的内部合理清洁;(2)迅速将被租客打破的处所内任何有裂痕或破碎的玻璃更换成相同种类和质量的玻璃;(3)保持处所清洁、有序和卫生(但条件是,业主须负责处所的定期清洁,除非租客在向业主发出书面通知后,选择与其本身的代理人进行此项定期清洁,而在此情况下,租客须自费进行此项清洁,而无须根据本租约获得任何信贷);(4)保管任何垃圾或垃圾,(5)保持所有租客的机械装置不受震动及可能传至物业外的巨响影响,直至业主或业主的代理人移走物业内的垃圾或其他垃圾;及(6)遵守及遵守业主不时合理订立并向租客提供的所有规则及规例,包括但不限于本合约所附附件 c所载的规则及规例。
(b)消极盟约
就处所及公用地方的使用及占用而言,承租人在业主的合理判断下,不会:(1)在处所的任何前厅或入口、其附近的人行道或走廊或处所外部的其他地方,放置或保存任何垃圾、垃圾或其他物品,以遮挡任何走廊、楼梯、人行道或公用地方;(2)导致或容许处所散发或排除令人反感的气味;或(3)实施或容受实施,处所上的任何废物或任何公共或私人滋扰或其他行为或事物,而该等行为或事物可能会扰乱该建筑物的任何其他租客或占用人的安静享受,或将处所的任何部分用于或准许将其用于任何非法目的。
5.6迹象
除本条另有规定外,租客不得在建筑物或处所内放置任何可从处所外(包括但不限于窗户的内外表面)看见的标志、标语牌或类似物品。业主须在建筑物大堂的红木租户名册上,按租户所占的比例,提供建筑物标准字样,以标明租户的正式名称及建筑物地址,但须由业主负担费用。租客须自掏腰包,在业主事先批准下,为处所提供其本身的标志,而该标志的设计及外观须与建筑物内其他租客的标志保持一致,不得被无理扣留。在安装后,租客须在处所的入口处维持其现有的标志,并须取得业主的同意,而不是不合理地拒绝对其作出任何修改。就位于波士顿邮政道企业中心入口处地段的任何纪念碑标牌而言,承租人须根据其承租人的比例份额及整体可用的标牌面积,在该纪念碑上提供一个标牌区域,费用由业主承担。
19
5.7危险材料
承租人或其任何雇员、代理人、受邀者、持牌人、承建商、代表或承租人负责的任何其他人或实体(统称“承租人的代理人”)均不得使用、维护、制造、允许或携带处所或财产,或在处所或财产上或从处所或财产(不论是进入地面、进入任何下水道或化粪池系统、进入空气、通过场外清除或其他方式)运输或处置任何危险物质(如下文所界定),未经业主同意。承租人须迅速向业主交付从任何政府机构或官员收到的影响处所的任何通知、命令或其他函件的副本,以及有关所指称违反《环境规定》(下文所界定)的通知、命令或其他函件。房舍内的任何危险物质,以及所有容器,均应按照所有适用的法律和限制使用、保存、储存和处置。
承租人须使业主(连同其高级人员、董事、股东、合伙人、实益拥有人、受托人、经理人、成员、雇员、代理承建商及抵押人)免受任何及所有环境损害(下文所界定的)的损害及赔偿,而受赔偿的各方可因下列原因而承受或承受的环境损害(下文所界定的):(1)在租客或租客代理人占用该处所或其任何部分期间内或从该处所出现或释放任何危险物质,是由租客或租客代理人造成的;(2)任何危险物质的存在或释放,(3)承租人或承租人代理人违反环境规定的活动或其他作为或不作为;及(4)承租人违反本条例第5.7条所订的任何承租人义务的任何适用通知及补救期,但承租人的赔偿不包括业主或业主代理人的故意不当行为或疏忽。除根据本租约承租人或在法律上或衡平法上承租人对业主所负的任何其他义务及法律责任外,本条的条文亦属例外。如本条与本租约任何其他条文有冲突,则对承租人施加最严格规定的条文即属管制。承租人根据本条第5.7条所承担的义务,在本租赁期满或终止以及房舍所有权转移之后仍然有效。此处使用的下列术语应具有下述含义:“危险物质”系指任何物质:(i)根据《综合环境应对、赔偿和责任法》、42 U.S.C.第9601条及以下各条、M.G.L.第21C章、M.G.L.第21d章或M.G.L.第21E章以及根据该法律颁布的条例被定义为或将被定义为危险物质、危险废物、危险材料或石油的任何物质;或(ii)具有毒性、爆炸性、腐蚀性、易燃性、传染性、放射性、致癌性,对健康或环境具有致突变性或其他危害,并且受到管制或将受到管制,其存在需要根据任何适用的法律进行调查或补救。“环境要求”是指所有适用的法律、任何和所有批准的规定以及本租赁的条款和条件,只要这些条款和条件与危险物质的释放、维护、使用、保存、运输、处置或产生有关,包括但不限于与报告、许可、许可、人员健康和安全、调查、遏制、补救和处置有关的条款和条件。“环境损害”是指所有责任、伤害、损失、索赔、损害(无论特殊、间接或其他)、和解、律师费和顾问费、罚款和罚款、利息和费用以及环境场地调查、报告和清理的费用,包括但不限于与以下方面有关的费用:对使用该建筑物或地段的人的场地状况或健康进行的任何调查或评估;风险评估和监测;任何清理、补救,任何政府机构规定或业主的环境顾问合理推荐的拆除或修复工程;业主财产价值的任何合理下降;业主财产中可出租或可使用空间的损失或限制所造成的任何合理损害;或业主财产的销售或融资受到不利影响所造成的任何合理损害。业主的同意或批准,不得以任何方式解释为就移走、围堵的方法、方法或方式,或就上述情况而符合适用法律的其他规定,向业主施加任何法律责任。本条第5.7条的条款适用于任何危险物料的运输、贮存、使用或处置,而不论租客是否因此而取得业主的同意,但本租约并不限制或以其他方式修改本条第5.7条第一句所载的取得业主事先同意的规定。此处所载的同意要求不适用于普通办公产品或与许可用途有关的产品,这些产品可能含有最低数量的危险材料和危险物质;但是,租户的赔偿义务不因此类产品的存在而减少。
20
业主须将承租人(连同其高级人员、董事、股东、合伙人、实益拥有人、受托人、经理人、成员、雇员、代理人及承建商)免受任何及所有环境损害(如上文所界定)的损害及补偿,而该等环境损害(如上文所界定)是由获补偿的各方因在该物业上、物业内或物业外存在或释放任何危险物质而可承受或被施加的,但因(1)在租客或租客代理人任期内或物业内、物业内或物业外存在或释放任何危险物质而引起的范围除外,(2)因租客或租客代理人的作为、不作为或失责而在物业上、物业内或物业外出现或释放任何危险物质;(3)租客或租客代理人违反环境规定的活动或其他作为或不作为;及(4)违反根据本条第5.7条承租人的任何义务,但业主的赔偿不包括承租人或租客代理人的疏忽或故意不当行为。除业主根据本租约或在法律上或衡平法上对租客所负的任何其他义务及法律责任外,本条的条文亦属例外。如本条与本租约的任何其他条文有冲突,则对业主施加最严格规定的条文即属管制。
尽管在此有任何相反的规定,租客无须负责在租期开始日期当日、当日或之前位于建筑物或物业内、当日或下方、而不是由租客或其代理人带到物业内的与清除或补救不符合适用法律的危险物料有关的费用及开支。业主保证并声明目前房舍内没有危险材料。
第六条
安装、改动和增加
业主的工程完成后,租客在租期生效日期后,不得对处所进行任何改建、改善、增建、公用设施安装或修理(以下统称“改建”),除非按照本第六条并经业主事先书面同意,业主同意在以下十(10)天内不无理地拒绝、限制或拖延非结构改建(非结构改建是指不影响建筑物的结构、屋顶、外部或机械、电气、管道、生命安全或建筑物或处所的其他建筑物系统的改建)。租客须连同租客要求批准进行任何该等改建、增建或改善的请求,提交一份具体的请求,以供业主决定在租约期满或提前终止时是否必须拆除该等改建、增建或改善,而业主须在该请求提出后十(10)天内将其关于改建、拆除的决定通知租客及租客的承建商;但租客无须承担拆卸责任,亦无须拆除任何改建,除非其他办公用房一般不能使用。该决定对业主和租客、其继承人和受让人均具有约束力。如业主未能以书面向租客提供答覆,租客无须在租期届满或提早终止时移走上述改建、增建或改善工程,而该等改建及承建商须获批准。在任何情况下,业主批准对处所进行的任何拟议改建,均不构成业主表示该工程符合任何适用的法律和限制的规定,包括但不限于《反倾销措施》的规定。在不限制本协议任何条款的情况下,业主将不会批准任何增加建筑物的建造、保险或税项或业主向处所提供服务的费用的改建,除非租客首先作出业主可接受的保证,以支付该等增加的费用。租客所作的一切改建,均须按照业主已合理地以书面批准的图则及规格(在法律及规定所规定的须向任何政府当局呈交的图则及规格范围内),依据已妥为发出的许可证,并按照所有法律及限制,按照本租约的规定,以良好及一流的方式,使用与基地建筑标准材料质量相同或更佳的新材料,并在租客使用处所之前,不受任何留置权和产权负担,在进行任何该等更改后,租客须取得任何规定的证明书(占用证明书除外)。所有改建工程须由承租人选定并经业主以书面合理批准的一名或多于一名承建商进行。租客须向业主偿还其因检讨图则而招致的任何合理自付费用。如因租客作出任何更改而导致业主有义务遵从ADA或任何其他法律或限制,而该等遵从规定要求业主对建筑物的任何部分作出任何改善或更改,作为征得业主同意的条件,则业主有权要求租客在建造任何建筑物前向业主缴付款项
21
由租客更改,任何改善或更改的全部合理费用业主有义务根据上述法律及限制完成。在任何适用的通知及补救期届满后,业主有权停止任何不符合本租约规定的工程,并可自行选择修理或移走不符合规定的工程,费用由租客承担。承租人在此就承租人的更改所引致的任何留置权、产权负担及违反法律及限制的情况,向业主作出弥偿,并使业主免受损害。在任何适用的通知和补救期之后,提交任何留置权或产权负担,或因承租人的变更而引起的违反法律或限制的行为,即构成本协议项下的违约,承租人须自费履行、取消或解除与任何变更有关的所有该等留置权,并在业主提出本协议第17.21条所述的书面要求后三十(30)天内,将该等留置权从记录中删除(或可将该等留置权作为担保)。承租人根据本合同承担的修缮和赔偿义务,包括承租人向业主偿还修缮或拆除改建费用的义务,在本租约终止后仍然有效。租客在处所内进行的所有改建均须留在处所内(除非业主指示租客在本租约按照上述条文终止或届满时将其移走),而在终止或届满时,须作为该处所的一部分交还,但租客在租期前或租期内以租客成本安装的通常贸易家具及设备(如可移动)除外,租客须在本租约终止或届满前将该等贸易家具及设备全部移走。租客同意修理因上述移走而对处所造成的任何及所有损坏(包括将业主按照上述条文指示的租客改建工程移走),或如业主如此选择,则在发出帐单后,立即向业主支付任何该等修理的合理费用。在承租人进行任何改建工程的任何时间,须备有符合本租约第11条规定的保险,费用由承租人承担,并须在任何该等工程开始前,向业主提供证明该等保险范围的保险证明书。尽管如此,租客仍可在没有业主批准的情况下作出外观改动,但租客须遵从在处所内进行工程的规定,以及在按照本租约的租期届满或终止时将处所移走的规定。
第七条
转让和转售
7.1禁止
尽管有本租赁的任何其他规定,但除许可转让的情况外,承租人不得直接或间接地自愿或非自愿地转让、抵押、质押或以其他方式转让本租赁或本租赁的任何权益或转租(该条款不限于授予特许权、许可证等),或允许任何其他人或实体占用房产的全部或任何部分,但在每一种情况下均未事先得到业主的明确书面同意,而业主的同意不得被无理拒绝、附加条件或延迟。在不受限制的情况下,业主如不批准任何转让或转租,即属不合理,业主合理地认为:(i)建议的转租人或受让人是现时的承租人或预期的承租人(指该承租人在过去三个月内曾获出示该建筑物的空间或曾获出示或曾提出租赁空间的要约)(ii)任何转租承租人或受让人使用处所,违反业主在任何其他租约中所给予的任何使用限制,或会导致业主违反其在另一租约或协议下的义务,而该租约或协议是业主的一方,而租客已收到事先通知;(iii)业主已由拟受让人或转租人起诉或被其起诉,或曾与拟受让人发生法律纠纷(iv)拟受让人或转租人的业务对物业的泊车设施、升降机、公共区域、设施或公用设施所造成的负担,会大过承租人所施加的负担,根据业主的合理判断;(v)承租人在提出请求时,超过适用的通知和补救期,没有履行其在租约下的任何义务;(vi)受让人或转租人参与的业务与本协议下的许可用途相冲突;(vii)受让人或转租人打算将处所用作行政套房;(viii)受让人或转租人是政府或准政府实体,或政府或准政府机构的机构、部门或工具,而该机构或机构目前并不占用大楼的任何空间。但在任何情况下,承租人不得将本租约转让或将处所的全部或任何部分转租给在提出请求时依法被司法宣告破产或无力偿债的拟设受让人或分租承租人,或在提出请求时已为债权人的利益转让财产的拟设受让人或分租承租人,或在提出请求时已为债权人的利益转让财产的拟设受让人或分租承租人
22
要求接管人、监护人、保管人、非自愿破产中的受托人或类似人员已被有管辖权的法院指定负责管理拟议受让人或分承租人财产的全部或任何实质性部分,或在提出请求时已根据现在或以后颁布的《破产法》的任何规定提出重组申请,或在提出请求时,拟议受让人或分承租人已提出重组申请,或根据现时或以后颁布的《破产法》的任何条文作出安排,并为债务人提供清偿、清偿或延长偿付债务的时间的计划。租客未经业主明示同意而转让本租契或转租全部或部分处所(以下所列准许转让除外),即属无效、无效及不具任何效力或效力。此项禁止包括但不限于因法律的实施、合并、合并、重组、收购、转让或其他改变承租人的公司或所有权结构而发生的任何转让、转租或其他转让,但须遵守本条第7.1款最后一款的规定。根据本条第7.1条提出的任何同意请求,须详细列出业主合理满意的建议受让人或转租承租人的身分,以及拟作出转让或转租的重要条件,包括但不限于就该等转让或转租而须缴付的租金,而该等要求须视为租客就该等转让或转租所呈交的资料所作的代表(“租客要约通知书”),而业主须在接获租客要约通知书后二十(20)天内,(a)合理地同意或拒绝同意该项转让或转租,或(b)如本条例第7.4条适用,则行使其收回权利。如业主未能在该二十(20)天期限内以书面向租客提供答覆,则该建议的转让或转租须当作获业主批准,而业主已根据第7.4条放弃其收回权利。
在任何情况下,如业主同意任何转让或转租,原在此指定的承租人仍须对承租人在本合同项下的义务承担全部责任,包括但不限于支付租金和根据本合同提供的其他款项的义务,此种责任不得因本合同未来的任何修改、修改或延期或任何进一步的转让、其他转让或转租而受到任何影响,承租人在此不可撤销地同意任何和所有此类交易;但如果在任何此类转让后对本合同进行修改,以增加承租人的义务,则原名称的承租人,除非其同意该等修改,只须对本租赁下的义务承担法律责任,而该等义务是在该等修改之前已存在的。租客同意在帐单发出后三十(30)天内,向业主支付业主就任何转让或转租要求而招致的一切合理的法律费用及其他自付费用,但不包括准许的转让,每次转让或转租的总额不超过20000.00美元。受让人以业主满意的商业上合理的形式,同意受本合同项下所有承租人义务的约束,包括但不限于支付本租约及本契约所规定的所有租金及其他款额的义务,以防止进一步转让或其他转让或转租,即为任何准许转让的有效性的一个条件。
在不限制业主根据本协议所享有的权利的情况下,如租客转让本租约以供考虑,或租客将整个处所转租(以下所列的准许转让除外),租金超过租客根据本协议所须支付的租金,或如租客将部分处所转租的租金超过租客根据本协议所须支付的租金的转租部分,则租客须向业主支付额外租金,在承租人收到转让和转租的代价(或其现金等价物)后,承租人收回与任何转租或转让有关的合理律师费、经纪佣金、广告费用、现金津贴、承租人装修费用和免费租金后,立即收取该等超额租金的百分之五十(50%)。本款7.1款的规定应适用于本租赁的每一项转让以及全部或部分房地的每一次转租,但许可受让人除外。为本条第7.1款的目的,“租金”一词系指所有租金和额外租金,在每一种情况下均应扣除租户与此种交易有关的费用,包括但不限于经纪人费用和佣金、法律费用和装修费用、免费租金和津贴以及广告费用。
尽管有本第七条的任何其他规定,承租人可将本租约或将处所或其任何部分未经业主同意而转让给(i)承租人的任何全资附属公司或任何母公司;(ii)与承租人共同控制的任何附属公司或实体,或与承租人的母公司或子公司共同控制的任何附属公司或实体;(iii)承租人、承租人附属公司、承租人合伙人、承租人附属公司、承租人母公司的任何实体,或与Tenant共同控制下的实体是股东或合伙人或其他权益持有人;或(iv)任何实体取得其全部或实质上全部资产或股份或权益
23
承租人,通过合并、合并、收购或其他业务重组((一)、(二)、(三)或(四)项中的每一项均为“许可转让”,每一受让人或承租人在此项下均为“许可受让人”),该等准许转让不得视为本条第7.1款所指的转让或转租,亦不得依据前款规定须经业主同意或批准,或须缴付任何超额租金,但在任何该等情况下,(1)业主收到任何该等交易的事先书面通知(除非根据适用法律或保密规定,此种事先通知是禁止的),及(2)在任何情况下,租客不得免除其在本租约下的义务。如业主就租赁的转让提出要求,经许可的受让人应签署并向业主交付商业上合理的承担协议。另据了解,(a)租客或与其合并或合并的实体的所有权或类似权益的股份可定期公开或私下出售,(b)租客的股票或其他股权可通过“场外”市场或任何公认的证券交易所转让,或与租客的股份或其他股权的公开发行有关,并且根据本条第七条转让或转租的禁止或条件不适用于任何此类活动。
尽管本租约另有相反规定,租客可在无业主同意及无须向业主汇出任何利润或超龄款项的情况下,准许第三方(个别地称为“空间共享者”)使用及占用与租客共有的部分处所,但不得超过处所总面积的百分之二十(20%),前提是(i)该安排将在违约发生时自动终止,并持续超过本租赁下的任何适用通知和宽限期;(ii)任何空间共享者应按照本租赁的所有适用条款使用房地,包括但不限于本租赁第2条;(iii)在任何情况下,空间共享者对房地任何部分的使用均不得产生或被视为产生任何权利,(iv)任何空间分享者占用的房舍部分与承租者占用的房舍部分,不得由房舍内的法定拆墙分隔,亦不得按法律规定分隔,以与电梯平台或公共走廊建立独立的入口。该空间共享者对全部或任何部分处所的任何此类使用均不构成或被视为转租,且不应免除承租人在本租赁下的任何义务或责任。
7.2接受受让人的租金
业主在转让、转租或其他本第七条禁止的转让后,接受支付租金、额外租金或其他费用,不应视为业主同意任何此种转让、转租或其他转让,也不应构成放弃业主的任何权利或补救。
7.3转租租金
以下条款和条件适用于承租人对全部或任何部分处所的任何转租,并应被视为包括在本租赁下的所有转租中,无论是否明确纳入其中:
承租人在此绝对无条件地将承租人在承租人订立的任何转租产生的所有租金和收入的全部权益转让给业主,而业主可收取该等租金和收入,并将该等权益适用于承租人在本租赁下的义务;但承租人在履行本租赁下的义务时出现违约,直至超出适用的通知和补救期,承租人可收取、收取和享受该等转租产生的租金。业主不得因此或任何其他将该等租金转让予业主,或因向转租人收取租金而被当作已承担或承认任何转租,或因承租人未能履行及遵守承租人根据该转租而对该转租人承担的任何义务,包括但不限于承租人退还任何保证金的义务,而被当作对转租人负有法律责任。租客在此不可撤销地授权并指示任何该等转租客,在接获业主的书面通知,述明在任何适用的通知及补救期之后,在履行租客根据本租约所承担的义务时出现金钱违约时,向业主支付根据转租而到期的租金。如业主因租客失责而终止本租约,业主可自行选择并无任何义务要求任何转租客向业主委托,在此情况下,业主须承担租客在该转租下的义务,由行使该选择权至该转租终止为止;但业主无须就该转租客向租客支付的任何预付租金或保证金,或承租客在该转租下的任何其他先前失责承担法律责任。
24
7.4收回权。
除与准许转让或空间共享者有关外,就本租赁的任何转让或整个处所的转租,在本租赁的整个剩余期限内,须经业主同意,而非同意任何拟议的转让或转租,业主有权但无义务在三十(30)天通知租客后终止本租赁并收回处所,除非在业主通知租客行使其终止本租赁的选择权后五(5)个工作日内,租客以书面通知业主,租客正撤回其要求业主同意该项转让或转租的要求,而在此情况下,业主行使终止该选择权即属无效,并无进一步的效力。
第八条
维修和保养
8.1承租人的义务
承租人订立契约,并同意承租人在整个租期内保持整洁和清洁,并保持良好的秩序、状况和维修,处所及其每一部分(以及根据本租约准许的任何标志),但根据本租约条款由业主负责的维修除外(包括但不限于根据第11.6条的规定,业主须向承租人偿还因业主或任何雇员、代理人根据本租约的作为、不作为、疏忽或失责而导致的维修、修理或以其他方式纠正任何状况的费用,或业主的承建商或其行为须由业主负责的任何其他一方)、火灾或其他伤亡造成的损害,或因行使征用权及合理损耗而造成的损害,而租客须在租期届满或终止时在该等情况下交出处所。合理损耗不包括任何损坏或恶化,而该损坏或恶化本可由承租人或承租人以其他方式履行其在本租约下的所有义务而加以适当维修而避免。承租人、承租人的承建商或承租人的代理人、雇员、受邀者,或任何由承租人、透过承租人或根据承租人提出申索的人,如因建筑物内任何地方,包括处所的任何地方受损而须作出的修理费用,须由承租人承担。如承租人依据本协议的条款须进行修理,业主可要求承租人立即进行修理,而如承租人没有、拒绝或忽略开始进行修理,并在提出要求后以合理的方式完成修理,业主可(但无须承担义务)进行或安排进行修理,而承租人的股票或业务可能因此而蒙受的任何损失或损害,则无须向承租人负责。如业主作出或安排作出该等修理,租客同意租客应要求立即向业主支付该等修理的合理自付费用,而如租客未按要求向业主偿还,则业主须享有根据本协议就不支付租金或其他费用而订定的补救办法。
8.2房东的义务
除第十二条及第十三条另有规定外,业主同意自本租契日期起,保持建筑物的结构构件及屋顶、公用设施及建筑物系统、公用走廊、入口、洗手间、电梯、自助餐厅及演习室、为建筑物及喷水灭火系统服务的停车区的铺面及该物业的所有其他公用设施的良好秩序、状况及维修,但除第11.6条另有规定外,承租人须根据本租契向业主偿还保养、维修的费用,作为额外租金,或以其他方式更正因承租人或承租人的任何雇员、代理人或承建商或承租人对其行为负责的任何其他一方的作为、不作为、疏忽或失责而引起的任何状况。除本条第8.2条另有明文规定外,业主无须负责进行任何改善或修理,而除非租客已通知业主需要进行该等修理,而业主并无在其后的合理时间内开始进行该等修理,否则业主无须对任何未能进行该等修理负法律责任。
业主须统一执行本协议所附附件 c所载的规则及规例,但任何其他租客或大厦占用人,或与他们有业务往来的人,如违反该规则及规例,业主无须向租客承担法律责任。
25
第九条
由房东提供的服务;公用事业
9.1房东服务
业主同意,在租期内,自费提供以下服务:(i)在星期一至星期五上午8时至下午6时及星期六上午8时至下午1时期间,提供法定假日除外,详情见附件 d:在正常供暖及空调季节,房舍内的供暖及空调设施,大致相当于大波士顿郊区内楼龄相当、设备类似的写字楼内的供暖及空调设施;(ii)提供冷热水,供普通厕所、饮水、洒水装置、茶水间、洗手间、清洁及饮水之用。如承租人为任何其他目的(包括但不限于与处所内的业务有关)而需要用水,则承租人须向业主支付一笔由业主订明的适当费用,以偿还该等特别用水及有关下水道使用费(包括向业主偿还计量承租人使用情况的费用);(iii)提供非专属乘客电梯服务;(iv)透过业主的雇员或独立承建商,按照作为附件 e所附的规格,提供一般清洁服务;及(v)透过业主的雇员或独立承建商,应租客的合理预先要求,业主可向其提供额外的楼宇营运服务,而该服务须由租客支付,但须由业主合理及方便地提供。
业主进一步同意安排该地段的泊车区、车道及行人道合理地远离积存的污垢、垃圾、垃圾、冰雪,安排该地段的景观美化保持整洁及吸引人的状况,保持该地段的泊车区在合理需要时保持照明,并履行上文第8.2条所列的保养及维修责任。根据租客不时提出的要求,业主须作出合理努力,在上述时间以外的时间提供服务,而租客须在发票发出后三十(30)天内,将该等服务的合理费用(由业主诚意厘定和/或分配)作为额外租金偿还业主(但该等超时服务不适用于三楼空间的分表电力)。自本租约生效日期起,业主并无义务在处所内提供除公用设施及设备以外的其他公用设施或设备。未经业主事先书面同意(业主不得无理拒绝同意),租客不得在处所内安装或使用任何额外的空调或暖气设备。如租客需要额外的公用设施、器具、机器或设备,则其安装、保养及费用为租客的唯一责任,但任何该等安装须取得业主的书面同意,而业主不得无理拒绝同意。
9.2各方无法控制的原因
在最大限度上使本租约依法生效的情况下,业主和租客在因不可抗力事件(如本文所定义)而无法履行本租约下的任何义务时,或因另一方或另一方的雇员、承建商、代理人、雇员、持牌人或任何由业主或租客、通过或根据业主或租客提出申索的人的任何作为、疏忽或失责而未能履行本租约下的任何义务时,在任何情况下均不对任何一方负有法律责任,除非根据本租约条款特别准许,否则根据本条第9.2条或本租约任何其他条文作出的特别或相应损害赔偿;但在任何情况下,不可抗力事件均不得免除租客支付租金的责任。
9.3单独计量的公用事业
租客须在到期时,直接向该公用事业公司缴付所有已提供予处所的电费(不论用作提供暖气或作其他用途),而该等电费现已由该公用事业公司分别计量或向该处所开帐单。处所的电力须分别计量,而该等电表须以租客的名义放置,而与该等电表有关的电费则须由租客直接向电力公司缴付。房舍的电力服务须包括与租客的灯、插头有关的所有电费,以及操作可变风量强制空气系统的加热部件所需的电力服务。尽管如此,业主和租客仍确认并同意,下层空间目前没有单独计量电力
26
用法。如租客选择安排将下层空间单独计量以供用电,该等计量可包括在业主工程内。如承租人选择不安排将下层空间单独计量以供用电,业主有权向承租人开具发票,而承租人须在租金到期时缴付业主合理厘定的下层空间用电的公平部分。业主应租客的要求,须为向租客开出发票的该等电费提供合理的备用金。
9.4服务中断
尽管本租约另有相反规定,但如处所的任何一层的全部或重要部分不能租用,或处所的任何一层的服务中断,以致租客不能凭藉由不可抗力事件(如本租约所界定)所引起的情况或因任何其他理由(除非租客或其代理人的作为、不作为或疏忽)而在该处所的任何一层连续三(3)天或更长时间内合理地操作,处所的楼面租金须予减低,直至该处所的楼面已恢复至业主不可租用或中断服务前的状况为止。
第十条
赔偿
10.1赔偿
在本协议依法生效的最大限度内,承租人应向房东(连同其高级职员、董事、股东、合伙人、实益拥有人、受托人、经理、成员、雇员、代理人、承包商和抵押权人)提供赔偿,保护他们免受(a)直接或间接因承租人或承租人的承包商、持牌人、代理人、受雇人、继承人、受让人或雇员根据本租赁的任何条款或契诺(包括但不限于违反附件中规定的《房东细则和条例》的任何行为)而直接或间接引起的索赔、费用或责任(a),(b)因任何意外、伤害或损坏而直接或间接地与处所或建筑物有关,或因任何意外、伤害或损坏而直接或间接地对任何人或财产造成的,或因任何意外、伤害或损坏而直接或间接地对任何人或财产造成的,(c)在处所外但在建筑物内或地段上发生的任何意外、伤害或对任何人或财产的损害(如该意外、伤害是由业主或其雇员、代理人、承建商,包括但不限于与业主的工作有关或因业主的工作而产生的任何该等索偿所引致),或由于承租人、承租人的承建商、持牌人、代理人、雇员、雇员或顾客,或任何由承租人或透过承租人提出申索的人的任何疏忽或故意不当行为而导致或声称已造成损害;但如上述赔偿因业主、其代理人、雇员及雇员的疏忽或故意不当行为而导致,则上述赔偿不适用。
本赔偿须包括但不限于就所有开支、合理的律师费及就任何该等申索或法律程序而招致的法律责任而作出的赔偿,以及由业主可接受的大律师为该等申索或法律程序作出的答辩,而业主可接受租客保险人的大律师为该等申索或法律程序作出的答辩。根据业主的要求,租客须直接代表业主并为业主的利益为任何该等申索或法律程序作出抗辩。
在本协议可依法生效的最大限度内,业主须向承租人(连同其高级人员、董事、股东、合伙人、实益拥有人、受托人、经理人、成员、雇员、代理人及承建商)作出赔偿、抗辩及拯救无害的承租人(连同其高级人员、董事、股东、合伙人、实益拥有人、受托人、经理人、成员、雇员、代理人及承建商)因业主或业主的承建商、持牌人、代理人、雇员、承继人、受让人或雇员根据本租约的任何条款或契诺,或业主或该等人未能遵守任何规则、命令、规例而直接或间接产生的索偿、开支或法律责任(a),或任何公共当局现时或其后有效的合法指示;或(b)直接或间接地因任何意外、伤害或损害在建筑物内或地段上的任何人或财产而引起的,而该等意外、伤害或损害是由或声称是由任何
27
业主或业主的承建商、持牌人、代理人、雇员、雇员或客户的疏忽或故意不当行为;但上述赔偿不适用于因承租人、其代理人、雇员及雇员的疏忽或故意不当行为而提出的索赔。本弥偿及保持无害协议须包括但不限于弥偿所有开支、合理的律师费及就任何该等索偿或法律程序而招致的法律责任,以及由租客可接受的大律师为该等索偿或法律程序辩护,而业主保险人的大律师则为租客可接受。根据租客的要求,业主须直接代表租客并为租客的利益为任何该等申索或法律程序作出抗辩。
10.2租户的风险
在本协议可依法生效的最大限度内,承租人同意其使用和占用处所(和建筑物)的风险由承租人承担;业主对因任何理由造成承租人的家具、固定装置、设备或其他个人财产的灭失或损坏不负任何责任或法律责任;业主对因电缆和电线断裂、破裂、停止或泄漏而给承租人或由承租人或其财产主张的人造成的灭失或损坏不负任何责任或法律责任,水、煤气、下水道或蒸汽管、洒水装置,以及屋顶漏水等,但因业主或其授权代理人的疏忽或故意不当行为而造成的损害或伤害除外。本条第10.2条的条文,自本租契执行起及之后,直至租期届满为止,以及在租客可使用或占用处所或建筑物的任何部分的另一段期间内适用。
10.3第三方造成的伤害
承租人同意,对于因占用建筑物任何部分的人的作为或不作为,或因占用建筑物任何部分的人的作为或不作为,或因电缆、电线、水、煤气、下水道、蒸汽管或类似事项的断裂、破裂、横穿、停止或泄漏而造成的任何损失或损害,业主无须向承租人或向承租人或向承租人或向承租人或向承租人或向承租人或向承租人或向承租人或向承租人或向承租人或向承租人或向承租人或向承租人或向承租人或向承租人或向承租人或向承租人或向承租人或向承租人或向除非与因业主或其授权代理人的疏忽或故意不当行为而造成的损害或伤害有关。
10.4安全
业主须继续提供进入大厦的卡钥匙进出系统及自本租约日期起现行的其他保安程序,而业主同意,在符合适用的法律及规定及业主合理的保安程序的规定下,房舍将可每周7天、每天24小时进出。尽管如此,承租人对保护承租人、其代理人、雇员、承包人和被邀请人以及承租人和承租人的代理人、雇员、承包人和被邀请人的财产不受第三方行为的影响承担一切责任。本条文并不阻止业主在业主的唯一选择下,为该建筑物或其任何部分实施与该建筑物所在区域内其他一级物业的其他保安措施相类似的保安措施,在这种情况下,租客须参与该等保安措施,而该等保安措施的合理费用须包括在营运费用的定义内。业主有权但无义务要求所有进入或离开大厦的人向保安表明身份,并合理地证明应准许该人进入大厦。
XI
保险
11.1公共责任保险
自承租人因任何理由首次进入处所之日起,在整个租期内,承租人须取得并保持有效,其后,只要承租人占用处所的任何部分,在发生的基础上自费承担商业一般责任和财产损失保险,该等保险为每次发生的伤害、死亡、财产损失或任何一次发生的其他保险损失提供不少于1000000美元/合计2000000美元的保障,以保护作为被保险人的承租人,
28
并指定业主、业主的按揭人、物业经理及管理代理人为额外受保人,以应付在处所或其任何部分发生的人身伤害、人身伤害、死亡、财产损坏或其他一般责任保险损失的索偿。每份该等保单均须令业主合理满意。只要承租人不拥有或租赁任何公司车辆,就无须购买汽车责任保险。此外,自任期开始日期起,及其后整个任期内,承租人须自费提供及维持或安排提供及维持工人补偿保险(符合国家工人补偿法的规定)及雇主责任保险,涵盖承租人在处所的所有雇员。承租人还应诚信努力,确保所有承包人、分包人、供应商、租赁雇员和临时雇员都得到适当的工人赔偿保险。
11.2危险保险
承租人同意在整个租期内,自承租人因任何理由首次进入处所之日起,并在承租人占用处所的任何部分,为承租人支付的任何租赁资产改良以及承租人的所有固定装置、设备和其他个人财产投保,使其免受火灾或其他伤亡造成的损坏或毁坏,其金额相当于该财产的全部重置费用。任何此类保险都可以直接和/或通过使用覆盖多个地点的一揽子或伞式保险来实现。租客同意自租客因任何理由首次进入处所之日起,在整个租期内,并在租客占用处所的任何部分后,维持完全有效的工伤赔偿和雇主责任保险,并按法律规定维持赔偿责任限额。
11.3建设期保险
承租人或代表承租人在处所或建筑物上或其周围进行非修饰性改建、拆卸或建筑工程的任何时间,包括承租人进行首次工程的任何时间,承租人均须保持并要求其承建商保持全面有效,并在每种情况下以业主合理可接受的保单执行下列保险范围:
(1)承租人在建造或改建过程中的改善及改善工程及个人财产的建造商风险及财产保险。承租人可代替承租人的承建商提供建造商风险保险;及
(2)法律规定的形式和数额的工人补偿或类似保险。
租客须安排在该建筑物或处所内或其周围的任何工程展开前,将一份或多于一份该等保险的证明书交付业主,而业主如有失责,除业主的任何其他权利或补救外,有权但无义务取得任何或全部该等保险,费用由租客承担。本条第11.3款的规定在本租赁期满或提前终止后仍然有效。
11.4保险证据;保险标准
承租人的保险人须尽力在三十(30)天前向业主发出取消保单的通知。在租客进入处所之前,有关该等保单的适当证明书须交存业主。保险证明书须述明保险人须尽力提供最少三十(30)天的注销通知。续期保单证明书须于先前保单期满时提供予业主。任何续期、补交及签注亦须存放于业主,如属续期,则须在先前保单期满后10天内如此存放。根据本协议所规定的保险,须由一间认可地位的良好和有偿付能力的保险公司,以业主合理满意的形式和实质写成,该保险公司获准在麻萨诸塞州经营业务,一般投保人的评级不少于A-,财务评级不少于VII类(在最新的Best公司保险报告中的评级),而该公司须为业主合理满意的公司。承租人须购买、维持及投保该保险,并须支付所有保费及费用,而在承租人未能维持该保险时(亦不限制任何其他补救办法)
29
业主可(但无义务)购买、维持及投保该等保险或支付该等款项,而在此情况下,租客同意按要求向业主支付该等保险的款额,作为本协议项下的额外租金。
11.5租金减免保险
业主可选择在租期内备存和维持完全有效的市价租金减免保险,以防止在发生火灾或其他伤亡的情况下租金的减免或损失,其款额最少相当于业主合理厘定的租客在当时的租期内须缴付的租金的款额。就本租赁而言,此种保险的所有保费均应列入业务费用;但如果市场费率租金减免保险不包括在基本经营年度的业务费用中,为计算租户在任何特定租赁年度的业务费用超额部分中所占的比例,市场费率租金减免保险的费用应在计算租户在该租赁年度业务费用超额部分中所占的比例时,按假设基准列入基本经营年度的业务费用。
11.6相互放弃移交
合同双方应各自在合同双方根据合同维持或要求维持的财产、处所或位于其上或其中的任何个人财产、固定装置或设备的任何财产保险单上获得适当的条款或背书,据此,保险人放弃代位权或同意放弃有利于任何一方、其各自的代理人或雇员的追偿权。在取得此种条款和/或背书后,每一方当事人在此同意,不论此种损失或损害的原因或来源如何,包括但不限于此种另一方当事人或其代理人或雇员的疏忽,均不对对方当事人或其代理人或雇员提出任何索赔或寻求向对方当事人或其代理人或雇员追偿。
11.7房东保险
业主须在整个租期内维持并保持有效:(a)火灾或其他伤亡对建筑物造成的损失或损害的保险,该保险可包括在火灾及扩展保险范围保险或“特别形式”保险内,金额在商业上合理,至少相当于该保险的全部重置费用;(b)商业一般责任保险,金额由业主合理厘定,与物业所在地区的审慎业主所持有的金额相等;及(c)业主厘定的其他保险范围及保单。任何此种保险可直接和/或通过使用涵盖一个以上地点的全面保险来实现,并可包含业主酌情选择的商业上合理的免赔额。所有这类保险的费用应作为营业费用的一部分。
第十二条
伤亡
12.1“实质性损害”和“部分损害”的定义
本文所用的“实质性损害”一词,是指在业主的合理和善意估计中,在正常情况下,不能预期在此种修理工作开始之日起九十(90)个历日内予以修理的损害。任何非“实质性损害”的损害都是“部分损害”。在任何损害发生后三十(30)天内,业主须将业主建筑师的合理裁定通知租客(“业主伤亡通知书”),该等损害是“重大”或“部分”。
12.2建筑物部分损坏
如在租期内,建筑物因火灾或其他伤亡而有部分损坏,而该等损坏对租客使用本租约所设想的处所造成重大干扰,则业主须立即着手将建筑物恢复至其在紧接第
30
但是,发生这种损害的条件是,在任何情况下,房东都没有义务花费超过房东实际收到的保险收益,加上房东承担的任何免赔额。
12.3对建筑物的重大损害
如在租期内,建筑物因火灾或其他伤亡而受到重大损害,而该等损害如对租客使用本租约所设想的处所造成重大干扰,则业主须在合理需要的范围内迅速恢复该建筑物,以使租客能够使用该处所,除非业主须在该损害发生后九十(90)天内,通知租客业主选择终止本租约,但在任何情况下,业主均无义务支出超过业主实际收到的保险收益,加上业主所携带的任何免赔额,但业主不得终止本租约,除非业主同样终止该建筑物内其他租客的租约,而该等租客在紧接该等损坏前,须将该建筑物内最少80%的部分合为一体。业主有权在建筑物受到重大损害时作出上述选择,不论该损害是否严重干扰租客对处所的使用。如业主须发出该通知,则本租约须自该通知发出之日起终止,其效力及效力犹如该日期是原先确定为本协议有效期届满之日的日期一样。如业主在该处所损坏或毁坏的日期后九(9)个月内仍未将该处所复原至本条第12.3条所规定的程度,则该九个月期间须延展至因业主无法合理控制的事项而延误完成该等复原的程度,或如该处所在租期的最后十二(12)个月内受到重大损坏,租客可在该九个月期间结束后三十(30)天内,并在该恢复工程实质完成前,或如在过去十二(12)个月内,在该伤亡(视属何情况而定)发生时,向业主发出有关选择的书面通知,以选择终止本租约。如租客如此选择终止本租契,则本租契及本租契的期限须在业主接获租客终止通知的日期后三十(30)天终止及终止,除非在该日期或之前,业主已大致完成该项恢复。
12.4租金减免
如在租期内,建筑物须因火灾或伤亡而受损,而该等损害须在实质上干扰租客使用本租约所设想的处所,则租客根据本租约须缴付的租金,在因该等损害而干扰租客使用处所的期间,须按比例减少一部分,但须顾及租客须在多大程度上停止租客使用处所,但该项减损或减损须于业主已将该处所或其原来由业主建造的部分(不包括承租人的任何固定装置、家具、设备等或承租人在该处所进行的工程)大致恢复至该处所在该损害发生前的状况后的二十(20)天届满。
12.5杂项
在任何情况下,业主如因任何超出其合理控制范围的原因(包括但不限于任何适用的法律、守则、条例、规则或规例的规定、影响处所的按揭或地租持有人拒绝向业主提供可归于该等修复的保险收益净额,或该等收益不足以支付该等修复或修复的全部费用)而无法进行,则业主在任何情况下均无义务根据本条第十二条进行任何修复或修复工程,但在业主确定任何该等因由存在后,应合理地迅速终止本租约,或免除其恢复责任的条件,并着手恢复本合同另有规定的处所。此外,在任何情况下,业主无须对由租客或为租客的利益而进行的处所的任何改动、增补或改善(租客须全部修理或恢复),或对由或为业主以外的一方建造或安装的处所或建筑物的任何固定装置或部分,或对并非业主财产的处所或建筑物的任何固定装置或部分,作出任何修理或进行任何修复工程。
31
第十三条
显赫领域
13.1取用的终止权
如处所或其部分使余款(如在实际可行的最大限度内重建)在物理上不适合租客的用途,须以谴责或征用权的方式(包括超过180天的临时占用)或出售以代替谴责,则业主或租客可选择在租客被剥夺管有权后三十(30)天内,向另一方发出终止本租约的通知,以终止本租约。
此外,如该建筑物(其中可包括处所)或地段的太多部分须如此取走、谴责或出售,或因依据公共或准公共当局所作的任何事情而招致任何直接或相应的损害,以致该等建筑物继续经营将不合算,则业主或租客可选择终止本租约,方法是在该等建筑物的生效日期后三十(30)天内,将该等选择通知另一方。
如处所的任何部分被如此取走或被判有罪,或受到该等损害,而本租约并未按照上述条文终止,则业主须在业主就该等判罪而作出裁定后,立即将在该等判罪法律程序中可判给业主的净额中所需的款额,用于将处所恢复为合理地适合承租人根据本条例所准许的用途的建筑单位。如如此判给业主的净额不足以支付如此修复处所的费用,业主可按业主的合理估计,但并无义务提供该等不足的款额,并尽一切合理的努力,将处所恢复为该建筑单位,或业主可在业主厘定修复的估计费用后的合理时间内,向租客发出通知,终止本租约;但业主不得终止本租约,除非业主同样终止该建筑物内其他租客的租约,而该等租客在紧接收回或谴责该建筑物的部分之前,最少须终止该建筑物部分的80%。
如业主在占用处所的日期后九(9)个月内仍未将处所复原至本条第13.1条所规定的范围,则该九个月期间须延展至因业主无法合理控制的事项而延迟完成该等复原的程度,或如处所或其任何部分须在租期的最后十二(12)个月内取得,则在任何一种情况下,租客可选择在该九个月期间结束后三十(30)天内,或如在过去十二(12)个月内,在收回时及在该等修复工程基本完成前(视属何情况而定),向业主发出关于该项选择的书面通知,以终止本租契。如租客如此选择终止本租契,则本租契及本租契的期限即告终止及终止,犹如该终止日期是在业主接获租客终止通知的日期后三十(30)天的日期,即为本租契的原定终止日期一样,除非在该日期或之前,业主已实质上完成该项恢复。
业主保证并声明,业主并不知悉任何目前有待处理或可能由政府接管或计划接管的任何处所。
13.2赔偿金的支付
业主须保留并在此接受,而租客亦在此授予及转让业主所有权利,以追讨建筑物及地段的损害及在此设定的租赁权益,以及追讨因上述占用或损坏而应计或以后应计的补偿。承租人订立契约,交付业主不时要求的进一步转让及保证。本条文并不解释为阻止租客在任何定罪法律程序中就租客在处所内安装的任何租客工装装置的价值提出申索,而该等申索须由租客承担费用,以支付搬迁费用、租客改建费用,以及就租客在此设定的租赁权益提出申索,但该等申索并不影响业主根据本条文可向接管当局追讨的补偿款额。
32
13.3减免租金
在任何此类占用处所的情况下,租金或其公平和公正的比例,应根据所遭受损害的性质和程度,在适当和公平的情况下,并根据处所的可用面积或不可用面积,暂停或减少租金。
13.4杂项
在任何情况下,业主如因任何超出其合理控制范围的原因,包括但不限于任何适用的法律、守则、条例、规则或规例的规定,或任何抵押权人的规定,而不能根据本条第十三条作出任何修理,则无须承担任何义务。此外,业主无须对由业主以外的一方建造或安装的处所或建筑物的任何部分进行修理或并非业主的财产,而承租人有义务对承租人由承租人或为承租人的利益而对处所进行的任何改建、增建或改善进行任何修理和修复。
第十四条
违约
14.1租户违约
(a)在任何时候发生下列事件中的任何一项或多项(在此称为“承租人违约”):
(i)租客在业主向租客发出欠付租金的书面通知后五(5)个营业日内,不缴付租金或根据本租约应付的任何其他金额,包括租客在业主工作费用中所占的份额;
(ii)承租人不履行或不遵守承租人须履行或遵守的任何其他契诺或条文,而承租人须在向承租人发出指明该等疏忽或失责的通知后三十(30)天内不作出补救,或如该等失责的性质令承租人无法在该三十(30)天期间内作出合理补救,则承租人须不能迅速开始补救,并以勤勉和持续的方式追诉该等补救,直至完成,除非承租人因本租约第14.2条所界定的不可抗力而延误(而本租约及业主根据本租约所承担的义务,不因承租人不能履行其根据本租约所承担的任何义务而受到影响或损害,如该等不能履行或延误是因不可抗力事件而造成的,承租人履行该等义务的时间须延展至该等延误的期间);
(iii)除适用法律另有规定外,如特此设立的产业须在执行时或藉其他法律程序取得,或如承租人须依法被司法宣布破产或资不抵债,或如承租人的产业须为债权人的利益而转让,或如承租人的产业须由有管辖权的法院委任接管人、监护人、保管人、非自愿破产中的受托人或其他类似人员掌管承租人的全部或任何实质部分,或如承租人须根据现时或以后颁布的任何法律条文提出重整申请,而该等法律程序在该程序开始后六十(60)天内并无被驳回,或如承租人须提出重整申请,或根据该等法律的任何条文作出安排,规定债务人清偿、清偿或延长偿还债务的时间;
则在任何该等情况下,业主可立即或在其后的任何时间,按照所有适用的法律,收回与业主以前的遗产相同的财产,并可在不被视为犯有任何非法侵入罪的情况下,将租客及由租客、租客或租客根据租客租客租客租客租客租客租客租客租客租客、租客租客租客租客租客租客租客租客租客、租客租客租客租客租客租客租客租客租客租客租客租客及在不损害任何补救办法的原则下,否则该等补救办法可用于拖欠租金或在违反契约前作出,及/或业主可向租客发出通知而终止本租契,而本租契须在该通知发出后的第5天终止,犹如该第5天是在本租约原订为本租约期限届满的日期一样(租客在此放弃根据M.G.L. c.186,§ 11所订的任何赎回权利(如有的话),但该等权利可合法放弃),然后租户将退出并将房产交回
33
但承租人仍须按本条的规定负法律责任。在法律许可的范围内,如果租客因违反本租约的任何契诺和条件而被驱逐或被剥夺财产,或业主取得处所的管有权,租客在此明确放弃任何现行或未来法律所授予或根据任何现行或未来法律所授予的任何和所有赎回权。如发生上述终止、进入或重新进入的情况,业主有权在适用法律许可的范围内移走和存放租客的财产以及由租客、通过租客或根据租客提出申索的人的财产,费用由租客承担,如租客未在终止、进入或重新进入的三十(30)天内作出收取该等财产的安排,而业主如此选择,(x)在公开拍卖或私人出售时出售该等财产,并将所得款项净额用于支付承租人欠业主的所有款项,并将余款(如有的话)支付予承租人,或(y)以业主选择的任何方式处置该等财产,承租人特此在法律允许的最大限度内同意,在终止、进入或重新进入处所后三十(30)天,承租人对处所内剩余的任何财产不享有任何权利、所有权或权益。
(b)承租人订立契约,并同意,即使本租约如前述终止,或业主以简易程序、终止或其他方式进入或重新进入,承租人仍须在本租约原订明的日期缴付并须承担法律责任,款额相当于根据本租约条款预留的若干期租金及其他费用,如本租约未终止,或如业主未如上所述进入或重新进入,则该等租金及其他费用将在本租约的条款下到期,以及该等处所是否全部或部分重新出租或空置,或租期少于租期的剩余时间,或租期的全部;但如业主将该处所重新出租,租客有权在扣除重新出租该处所所招致的一切费用(包括但不限于合理整备场地以作重新出租;经纪费、律师费等)及收取与此有关的租金后,获得扣除业主在重新出租时收取的租金净额的抵免额。作为另一种选择,在业主选举时,租客须在终止合约时向业主支付一笔款项,作为损害赔偿,该款项在终止合约时是指超出部分(如有的话)按现值折现的款额,如果租客完全遵守租赁条款,超过当时的现金租金价值(预先),在当时未到期的租期内,该等租期将继续有效,则该等租金及其他利益在本租期的剩余时间内根据本租期应累积的租金及其他利益的公平市值。就本条而言,“租期的剩余部分”不包括根据本租约第3.2节可供租客使用的延长期,但如租客已按照第3.2节的规定行使延长租期的选择权,则属例外。为本条的目的,如果业主选择按照前一句要求承租人支付损害赔偿金,应计算的总金额应假定承租人的按比例分摊的税款和承租人的按比例分摊的经营费用,就该未到期期限的余额而言,分别为发生此种终止、进入或重新进入的税款和租赁年份的数额。
(c)如承租人因简易程序或其他方式而有任何失责、再入、进入、期满及丧失管有权的情况,业主可(i)以业主或其他名义将处所或其任何部分重新出租,租期可由业主选择,相等于或少于或超过否则会构成租期余额的租期,并可在业主认为适宜或有需要的范围内给予合理的减让或免费租金,以重新出租处所,及(ii)作出该等更改,作为业主在其唯一的判断中认为为重新出租该处所的目的是可取的或必要的,对处所进行修理和装修;而业主按照上述规定采取的任何行动,均不得实施或解释为免除承租人根据上述规定所负的法律责任。经特别了解及议定,业主有权就任何重新出租处所而考虑所有有关因素,而该等因素是老练的发展商在确保更换处所的承租人时会考虑的,例如但不限于大厦的一级质素及任何该等更换承租人的财政责任。在任何情况下,业主均不得对没有重新出租处所,或在重新出租处所的情况下,对没有根据重新出租收取租金承担任何法律责任,而租客在此放弃在适用法律许可的范围内,业主为减轻租客的损害所必须承担的任何义务。业主同意在终止、进入或重新进入本第十四条的情况下与经纪人一起列出房舍,但本条款规定的业主列出房舍的义务独立于租户在本第十四条下的义务,并且不应被解释为在业主违反或据称违反该义务的情况下,租户有权抵销根据本条款应支付的任何款项。在任何情况下,业主均无须有义务优先于该建筑物内的任何其他处所或业主所拥有的任何其他建筑物,将该处所重新出租。尽管本条例另有相反规定,业主仍同意业主须作出合理努力,以减轻因
34
租户的默认。经商定并有一项谅解,即业主向商业经纪人提供关于该空间的可利用情况的充分资料(以该经纪人赚取的惯常经纪费为基础),并在合理的营业时间内提供房舍供准租户检查,即视为履行了业主减轻损害的义务,以及根据与大厦内其他空间承租人所用的形式大致相同的租赁协议形式,接受有信誉的人或实体对处所(或其合理部分)提出的商业上合理的要约,而无须作出重大改变(而业主无须接受任何有信誉的人或实体按大厦当时租金而提出的商业上合理的要约以外的任何要约)。
(d)如在任何时间有本租赁的受让人或租客在本租赁中的任何权益,则本条(a)(iii)段所述与该受让人有关的任何事件的发生,即构成租客在本租赁中的违约。
(e)业主根据本条例可诉诸的指明补救办法,并非旨在排除业主在任何时候合法有权享有的任何补救办法或补救手段,而业主可援引法律或衡平法所容许的任何补救办法(包括特定履行的补救办法),犹如本条例并无订定具体补救办法一样。
(f)除本条例第17.16条另有规定外,该条规定须管制业主与租客之间的法律责任的分配,由业主或代表业主为执行其在本条例下的权利而招致的一切费用及开支(包括但不限于合理的律师费及开支),或因租客的任何失责而招致的一切费用及开支,须由租客支付,但条件是业主是胜诉的一方,或已就该等事宜作出有利于业主的和解。
(g)在租客违约或本租约期满或终止时,业主有权根据麻萨诸塞州通则第239章或其他适用的法规进行简易程序,并有权收回法律允许的其他占有权。
本租赁不得限制或损害业主因本租赁的终止而在破产、无力偿债或类似程序中证明和取得相当于在证明损害赔偿时和管辖证明损害赔偿的程序时有效的任何法规或法律规则所允许的最高数额的权利,不论该数额是否高于、等于或低于上述损失或损害赔偿的数额。
本租赁合同中凡提及“违约”、“违约”、“违约”、“违约事件”或类似含义的词语,均应解释为在任何适用的通知和宽限期之后违约。凡提及租赁中所载的“支出”、“费用”、“费用”和类似含义的词语,均应解释为指实际发生的合理的第三方支出、费用和开支。
14.2房东违约
除非及直至业主在30天内,或在租客向业主发出通知后,合理地指明业主没有履行任何该等义务的地方后,为纠正任何该等失责而合理需要的额外时间,否则在任何情况下,业主在任何情况下均不得失责,但如出现紧急情况,业主应在租客发出通知后立即着手补救,则属例外。各方当事人的明示谅解和协议以及业主同意执行本租约的一项条件是,在任何情况下,租客均无权因业主的违约而终止本租约,或寻求减免或抵消基本租金或其他租金,但租客有权因该违约而依法或公平地寻求所有其他补救办法。租客在此放弃追讨因业主的任何作为、不作为或失责而引起的惩罚性或相应损害赔偿的权利。本租约及承租人在本合约项下的义务,不因业主不能履行其在本合约项下的任何义务或延迟履行而受到影响或损害,但如该等不能履行或延迟是由于不可抗力事件(定义见下文)所致,则业主履行该等义务的时间须延展至该等延迟期间。如本文所用,“不可抗力事件”应为任何
35
因天灾、战争、内乱、火灾、水灾或其他伤亡、劳动困难、缺少或无法获得劳动力、材料或设备、政府规章、异常恶劣的天气或超出该当事方合理控制范围的其他原因(资金短缺除外)造成或导致的延误。
第十五条
房东进入房舍
15.1房东的出入权
业主及其代理人、承建商及雇员有权在不少于二十四(24)小时的事先通知(紧急情况除外)下,或在紧急情况下的任何时间,在租客代表的陪同下(只要租客合理地提供一名代表),在所有合理时间进入处所,以便检查处所或建筑物,或进行修理或改建,或对建筑物进行增建,而业主亦有权在不少于二十四(24)小时的通知下,在所有合理的时间,向该建筑物任何部分的预期或现有按揭承押人或购买人提供存取服务。为保证业主可进入处所,租客须向业主提供租客在提供进入处所的通道时所用的所有钥匙的副本。业主将运用商业上合理的努力,在房舍内进行业主所需的任何维修,而不会影响租客在房舍内经营业务的能力。
在租期届满前九(9)个月起的期间内,业主可在不少于二十四小时的所有合理时间内,合理出入处所(24)为向准租客展示该等物品而提前数小时发出通知。
第十六条
抵押人的权利
16.1从属和管辖
(a)如任何按揭持有人或包括在本租赁日期后签立和记录的处所的地租财产持有人如此选择,则承租人在本租赁下的权益应从属于该持有人的权利,但该持有人须通过商业上合理的不受干扰协议,以书面同意承认承租人在本租赁下根据本租赁的条款和条件所享有的权利,以及承租人履行本租赁下承租人的义务;或
(b)如任何按揭持有人或包括在本租赁日期前签立和记录的处所的土地租赁财产持有人如此选择,则本租赁及租客在本租赁下的权利,在权利上须高于该持有人的权利,其效力与本租赁在任何该等按揭的签立、交付和记录之前已签立和交付、记录或已记录本租赁的法定通知相同。
任何上述持有人就上文(a)款作出的选择,须以通知租客的方式行使,其方式与业主根据本租约向租客发出通知的方式相同,而如发出该通知,则该排序次序对该持有人当时或其后根据该按揭或与该地租有关而作出的所有垫款具有效力。就上文(b)款作出的任何选择,须在该持有人向租客发出通知后生效,其方式与业主根据本协议向租客发出通知的方式相同,或在有关的登记处或记录处记录一份文书,而该持有人将其在该按揭或地租下的权利置于本租约之下。
(c)承租人须在业主、影响处所的任何按揭或信托契据的持有人或影响处所的任何地契下的出租人的要求下,签立并向该当事人交付一份委托协议,规定承租人须在该按揭或信托契据被取消赎回权或代替该等按揭或信托契据的转让或该等地契的终止时,向该持有人或出租人委托,并纳入该当事人合理要求的其他条款和条件,前提是该协议包括商业上合理的不干扰协议,由该另一方承认承租人在本租约下的权利。受
36
如业主、其继承人或转让人所作的任何按揭或信托契据被提起取消赎回权的法律程序,或在根据该等按揭或信托契据行使出售权的情况下,承租人须根据该等按揭或信托契据行使出售权,或在任何土地租赁终止的情况下,如有要求,承租人须在该等取消赎回权、出售或终止时,或在任何代替取消赎回权的契据的批予下,将该等承租人或土地出租人的出售权委托给买方或土地出租人,并承认该等买方或土地出租人为本租赁下的业主。
(d)租客应业主的要求,同意不时签立和交付业主为执行本条第16.1条的条文而合理地认为有需要的任何文书,但该文书并不增加租客在本条下的义务或减少租客在本条下的权利,或减少业主在本条下的义务,或以其他方式对在此设定的租赁权益产生不利影响。
16.2通知抵押人和地租出租人;治愈的机会
在接获任何人、商号或其他实体(或代表任何该等人的业主)的书面通知后,承租人须在向业主发出的任何通知中,将该按揭、商号或其他实体(或代表该等人的业主发出的书面通知),表示其持有的按揭包括作为抵押处所的一部分的处所,或表示该按揭是根据以业主为土地承租人的租契而订立的土地出租人,其中包括该处所作为已除名处所的一部分,承租人须将该按揭或土地出租人的任何通知抄送该承租人或土地出租人,而该承租人或土地出租人对业主的任何失责的纠正,须视为业主的履行。因此,业主一方的任何作为或不作为,如会使租客根据本租约条款或根据法律有权免除租客根据本租约所承担的义务,则该作为或不作为,即不具有上述效力,除非及直至该持有人或地租出租人在接获该通知的副本后,在超过适用的通知及补救期后,在业主发出上述失责通知后三十(30)天内,未能或拒绝纠正或纠正所投诉的状况,或如该失责在该期间不能得到纠正,如在该三十(30)天内,该持有人或地租出租人并未开始寻求纠正该失责所需的补救办法,亦未勤勉地寻求该等补救办法,但本条或本租约其他条文所载的任何规定,均不得当作对该持有人或地租出租人施加任何义务,以纠正或纠正任何该等状况
16.3租金的转让
关于业主将业主在本租约中的权益或根据本租约须缴付的租金(在性质上或在其他方面有条件)转让予包括处所在内的物业的按揭或地租持有人的任何转让,租客同意:
(a)由业主签立及由该按揭的持有人或地租出租人接受该按揭,不得视为该持有人或地租出租人承担业主在本合约项下的任何责任,除非该持有人或地租出租人藉向租客发出的通知,以其他方式作出具体选择;及
(b)除上述情况外,该持有人或土地出租人只有在该持有人的按揭被取消赎回权并取得处所的管有权时,才被视为已根据本条例承担业主的义务,如属土地出租人,则须视为该土地出租人根据本条例承担业主的地位。
业主在此同意,承租人根据本条第16.3款将根据本协议须支付的租金转让给任何该等承租人或土地出租人,不应被视为违反租约。
16.4不干扰协定
业主表示,截至本合同签立之日,(i)除Santander Bank,N.A.(“现有抵押权人”)持有的抵押外,没有任何现有的高级抵押;(ii)没有任何现有的高级租赁。自本租赁日期后三十(30)天内,业主将为租客免费向现有抵押权人取得一份就本租赁订立的商业上合理的不受干扰协议(“SNDA”)。业主亦须向任何未来的出租人或本协议所述的高级按揭持有人索取承租人的SNDA。
37
第十七条
杂项规定
17.1标题
本租赁通篇的标题仅为方便或参考之用,绝不应被视为定义、限制、解释、描述、修改或增加本租赁任何条款的解释、构造或含义。
17.2 Bind和Inure
除本合同另有明文规定外,本租赁的义务应与土地一起承担,本租赁对合同双方及其各自的继承人和受让人具有约束力,并对其有利。本文提及承租人的继承人和受让人并不是要构成对承租人转让的同意,而是仅提及业主以后可以按照第七条的规定同意某一特定转让的情形。业主将其在本租赁中的权益作为担保转让给在该建筑物上持有按揭的贷款人,或由该贷款人接受,或由该贷款人依据上述转让而行使其任何权利,均不得以任何方式当作该贷款人承担业主在本协议下的任何义务,除非该贷款人另有书面选择,或除非该贷款人已根据上述按揭完成取消抵押品赎回权的程序。凡处所由一名或多于一名受托人拥有,业主的责任须对业主的信托产业具有约束力,但对信托的任何受托人、受益人或股东个别并无约束力。
17.3不放弃
业主或租客不因违反本租约的任何契诺或条件而寻求补救,或不坚持严格履行本租约的任何契诺或条件,不应被视为放弃该等违反,或阻止原本会构成违反的事后作为具有原违反的全部效力和效果。业主在知悉违反本租约任何契诺的情况下收取租金或附加租金,除非该放弃是由业主以书面签署,否则不得当作业主放弃该项违反。业主或租客对任何协议或职责的明示或默示的同意或放弃,或对任何协议或职责的违反,不得解释为对该协议或职责的放弃或同意,或对任何其他协议或职责的违反。
17.4无协议和满意
业主接受金额低于当时应交租金的最低款额及额外租金,不得当作是由于该租金的最早分期付款,亦不得当作任何支票上的任何批注或声明,或任何附有任何支票或付款的信件,作为租金的任何批注或声明,是一项协议及抵偿,而业主可接受该等支票或付款,但不损害业主追讨该等分期付款的余额的权利,或在本租约或在法律上或在股本上所规定的权益中寻求任何其他补救的权利。
17.5累积补救办法
业主根据本租约条款可诉诸的具体补救办法是累积的,并不打算排除在租客违反本租约任何条文的情况下其合法有权获得的任何其他补救办法或补救手段。除本租约所规定的其他补救办法外,业主有权以强制令对违反或企图违反本租约的任何契诺、条件或条文,或对强制执行任何该等契诺、条件或条文的法令,施加限制。除本合同另有规定外,本合同所规定的承租人的任何义务(包括但不限于租金和其他金钱义务、修缮义务和赔偿业主的义务)在本合同期满或提前终止后仍然有效,而在任何适用的通知和补救期届满后,承租人应立即偿还业主为纠正承租人未能履行任何此种义务而招致的任何费用(尽管在本合同期满或提前终止后,业主可能会作出此种补救)。即使本租契另有相反规定,如业主在租契最后一天后两(2)年的日期或之前没有向租客收取租金
38
在该法案适用的年份,则业主须当作已放弃支付依据该法案而应支付的任何当时未付租金(即业主不得就该年度届满后超过两(2)年的任何一年提出法案或更正、修订或更新法案)。
17.6部分无效
如果本租赁的任何条款或规定或其任何部分或其对任何人或情况的适用在任何程度上无效或不可执行,则本租赁的其余部分和该条款或规定以及本租赁的条款或规定对除其无效或不可执行的人或情况以外的人或情况的适用不受影响,并且本租赁的每一条款均应在法律允许的最大范围内有效和可执行。
17.7房东的治愈权;生存权
如承租人在任何时间超过适用的通知及补救期而不履行本租约所订的任何义务,则业主有权而非有义务进入处所和/或履行该义务,即使本租约并无就该等失责而就业主代为履行该等义务订立任何具体条文。在履行任何该等义务时,业主可支付任何款项或作出任何其他作为。业主如此缴付的所有合理款项(连同按租息计算的利息),以及与业主履行任何该等作为有关的所有必要的附带费用及开支,均须当作是本租约所订的额外租金,并须在提出书面要求后立即支付予业主;而如租客没有缴付该等款项,则业主对租客没有缴付租金,享有与业主根据本合约所订的相同的权利及补救。业主可行使上述权利,但不得放弃其任何其他权利,亦不得解除租客在本租约下的任何义务。除本合同另有规定外,本合同所规定的承租人的任何义务(包括但不限于租金和其他金钱义务,以及赔偿业主的义务),在本合同期满或提前终止时仍然有效,而承租人须立即偿还业主为纠正承租人未能履行任何该等义务而招致的任何费用(尽管业主可在本合同期满或提前终止后作出此种补救)。
17.8 ESTOPPEL证书
租客同意租期生效日期,并在其后不时应业主提出不少于十五(15)天的书面要求,签立、承认并向业主交付书面声明,证明本租约未经修改,且完全有效,租客对其根据本租约须缴付的租金及其他费用的义务,以及根据本租约履行其其他契诺的义务,并无抗辩、抵销或反索,以及业主或租客在本租约项下并无任何未改正的违约行为(如有任何修改,本租赁经修改后具有完全的效力和效力,并说明所作的修改,如有任何抗辩、抵销、反诉或违约,则以合理详细的方式说明),以及租金和其他费用的支付日期。依据本条第17.8条交付的任何该等陈述书,可由包括处所在内的财产的任何预期购买人或抵押权人或该等抵押权人的任何预期受让人所依赖,但承租人无须为承租人以诚意合理地作出的证明而承担任何法律责任。
业主同意租期生效日期,并在租客提出不少于十五(15)天的书面要求后,不时签立、承认并向租客交付一份书面声明,证明本租约未经修改,且完全有效,业主对其在本租约下的义务没有抗辩、抵销或反诉,也没有履行其在本租约下的其他契诺,且业主或租客在本租约下不存在未纠正的违约行为(或,如有任何修改,本租赁经修改后具有完全的效力和效力,并说明所作的修改,如有任何抗辩、抵销、反诉或违约,则以合理详细的方式说明),以及租金和其他费用的支付日期。依据本条第17.8条交付的任何此种陈述,可由包括处所在内的财产的任何预期购买者或抵押权人或任何此种抵押权人或任何其他当事方的任何预期受让人所依赖。
39
17.9经纪
本合同的每一方均保证并声明,除上文第1.2节所指的经纪人外,本合同没有与任何房地产经纪人或代理人就本交易进行交易,并同意抗辩、赔偿并使另一方免受因本租赁而产生的任何和所有佣金或费用索赔的损害,而这些索赔对每一方当事人而言与该方的保证和陈述是不一致的。业主须按照经纪人与业主之间的另一项协议,负责就此项交易而欠经纪人的佣金或费用。本条在本租赁期满或提前终止后继续有效。
17.10整个协议
业主和租客之间的所有谈判、考虑、陈述和谅解均纳入本合同,本合同明确取代与本合同有关的任何建议书或其他书面文件。任何与此种事项有关的事先或同时达成的协议或谅解均不具有效力。除本租约另有说明外,承租人在此承认,没有任何地产经纪、业主或任何上述人士的雇员或代理人就物业或物业的状况或用途,或就本租约涉及的任何其他事宜,向承租人作出任何口头或书面保证或陈述。本租约只可藉业主与租客之间的书面协议加以修改或更改,而业主的任何雇员或代理人的作为或不作为,均不得更改、更改或更改本租约的任何条文。
17.11停用
如承租人因任何理由而在租期届满后,未经业主书面同意而扣留或占用处所(或其任何部分),承租人的权利不得超过承租人(或由业主自行选择,该等扣留须构成每月的租期,任何一方可在提前30天向另一方发出书面通知后终止该等租期);而在任何情况下,承租人须负责在该期间缴付租金,款额相当于紧接本租约终止日期前须缴付的基本租金的百分之一百五十(150%),而该等租赁在适用范围内须按租约所载的相同条款及条件支付。此外,如承租人在该期限届满后或在未经业主书面同意而提前终止的情况下,须扣留超过30天,则承租人须承担与该期限届满或提前终止有关的费用、损失及损害(包括合理的律师费),并须因承租人在本租约终止时未能将处所的管有权移交业主而招致与该期限届满或提前终止有关的费用、损失及损害。本条不得解释为准许该等扣留,或因该等扣留而限制业主的其他权利及补救。
17.12对应方
本租赁以任何数目的对应单位签署,每份副本相同,其中任何一份副本本身应被视为完整,并可作为证据提出或用于任何目的,而无需出示其他副本。以传真或便携式文件格式(PDF)交付本租赁的已执行对应方,其效力应与交付已执行对应方的原件同等。
17.13建筑和图形使用
根据麻萨诸塞州的法律,对本租赁进行管辖、解释和解释,而承租人同意就本租赁引起的或与本租赁有关的任何争议、索赔或诉讼,服从该联邦任何法院(联邦或州)的属人管辖权。在解释本租赁时,在形式上应以女性代词或中性代词取代男性代词,反之亦然,在上下文允许或要求的任何地方,应以复数代单数,以单数代复数。如果有不止一方承租人,承租人的契约应是每一方的共同义务和若干义务;如果承租人是合伙企业,承租人的契约应是每一方的共同义务和若干义务和商号的义务。
40
17.14当租赁具有约束力时
业主的雇员或代理人无权订立或同意订立租约或与此有关的任何其他协议或保证。提交本文件供审查和谈判并不构成租赁要约,也不构成对房地的保留或选择,本文件只有在业主和租户双方签署和交付本文件后才具有效力和约束力。
17.15保证金
在执行和交付本租约的同时,承租人须向业主交付保证金(“保证金”),保证金为保证金金额(如第1.2条所界定),由现金组成。在本合同期限内及其任何延期,以及在本合同期限届满后的60天内,或在承租人管有处所或在本合同项下对业主的义务未得到履行之后的任何时间内,保证金应作为承租人在本合同项下的义务的充分和及时履行的担保;该现金可在不发出通知或要求的情况下不时用于承租人在本合同项下的未偿债务,但须遵守适用的通知和补救期。租客无权要求业主如此申请保证金,租客亦无权将保证金贷记在租金或根据本协议须支付的其他款项上;不得因此而产生利息。在此,房东和租客之间没有就上述保证金建立任何信托关系。承租人承认,在承租人违约的情况下,保证金不是任何形式的预付款,也不是业主损害赔偿的一种措施;业主没有义务将保证金作为单独的资金或支付利息,但可以将保证金与自有资金混合。租客在此放弃任何与本条例第17.15条不一致的法律条文。保证金须于租客开始按照本租约第1.2条的条文缴付租金的第三个月起的租期内减少。
17.16法律费用
如果本合同的任何一方当事人是由另一方当事人提起或针对另一方当事人提起的涉及强制执行该另一方当事人的任何权利和补救办法的任何诉讼的一方当事人,或由于另一方当事人不履行其在本合同项下的义务而引起的任何诉讼的一方当事人,则该诉讼的胜诉当事人,或因对另一方当事人(视情况而定)提出索赔而卷入该诉讼的当事人,应从另一方收取该一方在审判和上诉期间因该诉讼而产生的一切费用和合理的律师费。
17.17不放弃
向业主的任何雇员或业主的代理人或雇员交付钥匙,并不作为终止本租约或交出处所的行为。
17.18《安静的享受之约》
在符合本租约条款及条文的规定下,并在任何适用的通知及补救期内缴付租金、额外租金及其他应付款项及遵守本租约所有条款及条文后,租客有权在本租约期内合法、和平地及悄悄地拥有、持有、占用及享用处所,而不受业主或任何根据业主合法申索的人或业主的任何其他租客的阻碍或驱逐;上述安静享受契约代替任何其他明示或默示的契约。
41
17.19地主概不负个人责任
租客同意只看业主在当时拥有的建筑物及地段的权益,或业主作为地租承租人持有权益时的权益,以及租金、收入及其他收益,以向业主追讨任何判决;现特别约定,业主的任何成员(不论业主是个人、合伙、商号、法团、受托人或其他受托人)或业主的任何合伙人、投保人、高级人员、经理、成员、股东或董事,任何持有业主权益的人为受托人的任何信托,或任何上述任何权益的承继人,均不得就任何该等判决或就向承租人支付任何金钱责任而承担个人法律责任。本租契所载的业主契约,只对业主及业主的继承人在业主及业主的继承人各自拥有本租约所订的业主权益期间所发生的违约行为,对业主及业主的继承人具有约束力。尽管本租约另有相反的条文,但在任何情况下,业主不得对租客或租客代理人因任何原因而蒙受的任何间接、特别或相应的损害负法律责任。尽管本租契另有相反的条文,但除非第5.7及17.11条另有规定,否则在任何情况下,租客不得对业主或业主代理人因任何原因而蒙受的任何间接、特别或相应的损害负法律责任。
17.20通知
凡根据本租约的条款,须或可向业主或租客发出通知,则该通知须以书面形式发出,并须以专人送达或挂号或挂号邮件、预付邮资或所谓的“特快专递”邮件(如联邦特快专递或美国邮政特快专递)发出:
如拟寄给业主,则寄给第1.2条所列地址的管理代理人,并附上一份副本,寄给第1.2条所列地址的业主,寄给(i)Thomas W. Tavenner,Jr. Esq.,Dalton & Finegold LLP,34 Essex Street,Andover,Massachusetts 01810,和(ii)Lincoln Property Company,1000 McKinney Avenue,Suite 1000,Dallas,Texas 75201,或寄给业主日后不时以类似通知指定的其他地址。
如拟寄给租客,请按本租约第一页所列地址寄给租客,并附上寄给租客律师J. Goodwin Bland,Esq.,Morgan Lewis & Bockius LLP,101 Park Avenue,New York,New York 10178的任何默认通知的副本,或寄给租客以后不时以类似通知指定的其他地址或地址。
所有这些通知应在交付、试图交付或拒绝时生效,以上述预定收件人的一个或多个地址为准,以先发生的为准。
17.21机械公司的许可证
租客同意立即解除(通过付款或提交所需保证金或其他方式)对处所和/或业主权益的任何机械师、材料师或其他留置权或产权负担,这些留置权可能产生于或看来是到期支付的任何劳务、服务、材料、用品或设备,指称这些劳务、服务、材料、用品或设备是在处所内、处所上或附近为租客提供的,但不包括本租约所界定的任何业主工程的留置权。如承租人在提交申请的通知发出后三十(30)天内未能如此解除该留置权或产权负担,则除业主的任何其他权利或补救措施外,业主可(但无义务)解除该留置权或产权负担,并可解除该留置权或产权负担(以付款或以提交所需保证金或其他方式)及业主为上述任何目的而缴付的任何款额,以及业主在促使解除该留置权方面或与促使解除该留置权有关的一切实际及法律及其他开支,包括实际律师费,以及与此有关的一切必要开支,承租人须在向承租人交出任何帐单或报表后十(10)天内,向承租人偿还该帐单或报表,而该帐单或报表如未付,可视为额外租金。本租赁不得阻止承租人对承租人的任何财产给予担保权益或动产抵押,本租赁不得阻止承租人善意地对任何此种留置权提出异议。
42
17.22记录
租客同意不在租约内记录,但如适用法律要求,为了保护租客在房舍中的权益,合同双方应另一方的请求,同意以可记录的形式,并遵守适用法律,合理地使房东的律师满意,签署所谓的租约备忘录或简式租约。在任何情况下,该文件均不得载列承租人根据本租约须缴付的租金或其他费用;而任何该等文件均须明示该文件是根据本租约所载的条文签立的,并非旨在更改本租约的条款及条件。
17.23租户的财务状况
租客保证并声明,就本租约而向业主或业主代表提供的所有资料,均属真实及正确,而就租客的财政状况而言,亦适当反映该等资料,而截至本租约日期并无重大不利变动。根据业主的要求,承租人须向业主提供承租人的现行财务报表(如经审计的报表是最近代表承租人拟备的,或经承租人财务总监以其他方式核证为真实及正确的),而该等财务报表须由承租人自行负担费用及开支。所有提供给房东的信息都应严格保密。尽管如此,如果承租人的股本随后在国家证券交易所(根据联邦证券法的定义)进行交易,并且承租人最近的10-K(如果最近的话,10-Q)或为在澳大利亚国家证券交易所上市的实体提供的类似财务文件随时可供公众查阅(即通过互联网),则业主应从这些来源获得同样的文件,而这种文件将满足本租约第17.23条的要求。
17.24放弃反诉
如业主因承租人根据本协议发生的失责事件而启动任何简易程序以管有处所,则承租人在此放弃在任何该等程序中提出任何性质或种类的非强制性反申索的权利;但承租人有权在本租约另有准许的范围内对业主提出单独的诉讼,只要承租人不试图将该诉讼与业主的简易程序合并或以其他方式合并。
17.25同意
除本租约另有具体规定外,业主根据本租约拟给予的任何同意或批准,可由业主全权及绝对合理的酌情决定权予以拒绝或拒绝。凡在本租约中须取得业主的同意或批准,而该等同意或批准不得被无理拒绝、延迟或附加条件,但业主仍须拒绝、延迟或附加条件,租客无权就金钱损害提出任何申索,而租客在此放弃对金钱损害的任何申索(租客亦不得以任何抵销方式申索金钱损害,反诉或抗辩)所依据的是承租人提出的任何要求或主张,即业主不合理地拒绝、拖延或限制其同意或批准;在这种情况下,承租人的唯一补救办法是为具体履行、强制性救济或宣告性判决而提起的诉讼或程序,以及合理的律师费。
17.26减持
业主保留不时给予业主认为必要或可取的地役权、权利和专用的权利,并安排记录包裹地图和限制,只要这些地役权、权利、专用、地图和限制不会对租客使用处所造成不合理的实质干扰。承租人须在业主提出要求后十(10)天内签署上述任何文件,而承租人不签署该文件即构成承租人的失责。在物业附近竖立的任何构筑物,不论是由业主或第三者,妨碍租客的视线、空气或光线,均不影响本租约,亦不对业主施加任何法律责任。
43
17.27财产变更
业主有权不时更改该物业的大小、形状、位置、数目及范围(以下统称“更改”),包括但不限于建筑物的内部及外部、公用区域及其构件、电梯、自动梯、洗手间、暖通空调、电力系统、通讯系统、防火及探测系统、管道系统、保安系统、泊车控制系统、车道、入口、停车位,泊车区及园景区;但该项更改不得(a)不合理地减少租客进出建筑物及处所的次数,(b)不合理地减少电梯或其他服务或设施,使其脱离业主在本租约中所规定的水平,或(c)对租客使用处所作许可用途造成不利影响。就该等更改而言,业主可(其中包括)在物业内架设脚手架或其他所需构筑物,限制或取消进入该物业部分的通道,包括公共区域的部分,或在该建筑物内进行工程,而该等工程可能会在该建筑物内产生噪音、灰尘或留下碎屑。租客在此同意,该等更改及业主就该等更改而采取的行动,绝不构成对租客的建设性驱逐,或使租客有权获得任何减租。尽管本条例另有相反规定,业主须作出商业上合理的努力,尽量减少对租客使用、占用或进入处所的任何重大干扰,但除非业主的重大过失或故意不当行为所致,否则业主无须对该等更改所引致的对租客业务的任何直接或间接损害或干扰负任何责任或因任何理由而须向租客承担法律责任,租客亦无权就该等更改或与该等更改有关的业主的行动所引致的任何不便或烦扰而向业主索取任何补偿或损害赔偿,除非该等更改或更改是由业主的重大疏忽或故意不当行为所致,并导致租客不能在该处所的任何部分连续经营超过三(3)天,则租客就该处所的租金,将由第四(4)日起减至租客可合理地恢复其在该处所的业务之日止。
17.28盟约
本租约须解释为犹如本租约所载的业主契诺是独立的,并非附属的,而租客在此放弃任何相反法律的利益。租客须遵守或履行的本租契的所有条文,均属契约及条件。
17.29次拍卖
承租人不得自愿或非自愿地对处所或财产进行任何拍卖,也不得准许其进行拍卖。违反本节规定在房地或公共区域举行任何拍卖,即构成本条款规定的违约。
17.30权威
如果承租人是公司、有限责任公司、信托或普通或有限合伙企业,则承租人及其代表该实体执行本租赁的每个人声明并保证该个人获得正式授权代表该实体执行和交付本租赁,该实体获得正式授权签订本租赁,并且本租赁可根据其条款对该实体强制执行。如租客是法团、信托或合伙企业,租客须应要求向业主交付令业主满意的授权证据。
17.31缔约方关系
本租赁合同双方或任何第三方不得将本租赁合同中的任何内容视为或解释为建立委托人与代理人、合伙企业、合营者或房东与租客之间的任何关联关系。
17.32租赁权
业主保留绝对权利在物业中实施业主全权酌情决定的其他租赁,而租客并不依赖任何表示任何特定租客或数目的租客将占用物业。
44
17.33保密性
双方承认并同意这份租约的条款是保密的。披露本协议的条款可能会对业主就大厦的其他租约进行谈判的能力产生不利影响,并可能损害业主与大厦其他租户的关系。承租人同意,承租人及其合伙人、高级人员、董事、雇员、经纪人和律师(如有的话),未经业主事先书面同意,不得向任何其他人或实体披露本租约的条款和条件,而业主可自行决定给予或拒绝给予该等条款和条件,除非财务披露或证券备案或与拟议转让或转租、出借人、拟议合营者或投资者有关,或与承租人的合法经营理由有关。据了解和商定,业主对违反本条文的唯一记念是寻求具体履行本条文,并寻求强制性救济,以防止违反或继续违反本条文。
17.34美国爱国者法认证
(a)证书。根据乔治·W·布什总统于2001年9月24日签署的第13224号行政命令,贷款人和租客双方在此证明:
(1)它不是直接或间接地为或代表任何行政命令或美国财政部指名为恐怖分子、“特别指定的国民和被封锁的人”或根据外国资产管制局执行或管理的任何法律、命令、规则或条例被禁止或被封锁的人、实体、国家或交易的任何个人、团体、实体或国家行事;和
(2)它没有直接或间接地代表任何此种个人、团体、实体或国家从事此种交易,也没有直接或间接地代表任何此种个人、团体、实体或国家煽动或促进此种交易。
(b)赔偿。业主和租客双方在此同意对因违反上述证明而引起或与之有关的任何和所有索赔、损害、损失、风险、责任和开支(包括合理的律师费和费用)进行抗辩、赔偿和使对方免受损害。
17.35放弃陪审团审判
在任何诉讼、诉讼程序和/或聆讯中,房东和承租人对房东或承租人就因本租约而产生的任何事项或以与本租约有关的任何方式对房东和承租人的关系提出的任何诉讼、申索、反诉或交叉申诉,房东和承租人在此放弃各自由陪审团审判的权利
此空格留出空白–要关注的签名页
45
作为证明,本合同双方自上文第1.2节所述日期起已盖章签署本文书。
| 房东 |
RFP林肯293有限责任公司 |
|||
|
|
a马萨诸塞州有限责任公司 |
|||
|
|
|
|
||
|
|
签名: |
Lincoln Route 20(MA),a Delaware有限责任公司 |
||
|
|
|
公司,其管理成员 |
||
|
|
|
|
||
|
|
|
签名: |
非会员经理公司,一家德克萨斯公司,其经理 |
|
|
|
|
|
|
|
|
|
|
Gregory S. Courtwright |
||
|
|
|
姓名: |
Gregory S. Courtwright |
|
|
|
|
职位: |
副总裁 |
|
| 租客 |
Valeritas, Inc. |
||
|
|
a特拉华州公司 |
||
|
|
|
|
|
|
|
|
|
|
|
|
|
/s/埃里克·卢塞拉 |
|
|
|
|
姓名: |
埃里克·卢塞拉 |
|
|
|
职位: |
CFO |
46
展品A-1
显示现有三楼空间的平面图

47
附件 A-2
显示较低层空间的平面图

48
附件 b
故意删除
49
展品c
细则和条例
波士顿邮政路293号
马萨诸塞州马尔伯勒
如果租赁条款与《规则和条例》发生冲突,则由租赁条款控制。
|
|
|
| 1. |
暖气、照明及管道:如有暖气、照明或管道装置出现问题,应立即通知业主。承租人不得让房舍的门在夜间不上锁。 |
|
|
|
| 2. |
入口、人行道、道路、前庭、通道、走廊、大堂、电梯及楼梯,不得由租客、租客代理人、雇员、雇员、持牌人或访客作保或阻拦,亦不得为进出房舍以外的任何目的而使用。业主保留合理限制及规管承租人、承租人代理人、雇员、雇员、持牌人及访客及向承租人交付物品的人使用大厦上述公共区域的权利。 |
|
|
|
| 3. |
水厕及盥洗室及其他水暖装置,不得用作建造该等设施的用途以外的其他用途,亦不得在该等设施内投放或放置清扫用品、垃圾、破布或其他物质。承租人、其雇员、雇员、代理人、访客或持牌人因疏忽而滥用固定装置或处置上述装置而引致的损害或维修费用,须由承租人承担。 |
|
|
|
| 4. |
所有保险箱及重型设备或机器的重量及位置,须经业主批准。 |
|
|
|
| 5. |
在门、平板和建筑物目录上刻字须经业主批准;不得在外窗上刻字。 |
|
|
|
| 6. |
未经业主同意,不得将电话服务、电灯服务、信使服务或作任何其他用途的电线置于处所内。 |
|
|
|
| 7. |
不得遮挡建筑物任何部分的门或其他地方的玻璃,而该等玻璃可透过该等玻璃进入建筑物的任何部分。 |
|
|
|
| 8. |
除残疾人外,不得将自行车、车辆或动物带入或存放在处所或建筑物内或建筑物周围,但自行车可存放在指定的自行车架上。 |
|
|
|
| 9. |
在租客首次迁入处所的工作完成后,须使用电梯或楼梯或通过大楼主入口的其他家具或办公设备进出建筑物的活动,须限于业主指定的营业时间后进行。所有该等移动均须在业主的监督下进行,并须按租客与业主在表演前藉预先安排而议定的方式进行。租客提出的这种预先安排,将包括业主就物品移动的时间、方法和路线作出的决定,以及安全、外观或其他合理的考虑所施加的合理限制,包括禁止将设备或任何其他物品带入建筑物,以及有关物品通过建筑物的方法,并在业主的合理酌处权的规限下作出决定。承租人须与其承建商一起承担因任何该等移动或财产被移动或对从事或不从事该移动的人或公众,包括因承租人或其承建商在进入该物业至工程完成期间所安排的与该承租人有关的疏忽或故意行为而损坏或受伤的设备、财产及业主人员所造成的损害的一切风险。除非与业主或其代理人或承建商的疏忽或不当行为有关,否则业主无须对任何从事上述财产的人的作为,或因与租客安排所进行的搬迁有关的任何作为而对任何上述财产或人造成的任何损害或损失负法律责任。 |
50
|
|
|
| 10. |
不得将任何物品从窗户抛出或带进窗户,也不得将任何物品留在建筑物外的房舍窗台上。 |
|
|
|
| 11. |
任何人不得在大厅、走廊或厕所中游荡。 |
|
|
|
| 12. |
业主、其代理人及雇员可在合理时间及在合理通知下进入,以履行其保养及经营处所的职责。 |
|
|
|
| 13. |
未经业主同意,任何租客不得使用除《租契》所订明的方法以外的任何取暖方法。 |
|
|
|
| 14. |
因承租人违反任何规则及规例而对建筑物或处所或任何人或财产造成的损害,须由承租人承担。 |
|
|
|
| 15. |
租户入住结束后,所有货物,包括包裹、办公用品等,必须在正常营业时间内通过货梯交付。在营业时间之后交付的任何物品必须得到房东的书面批准,而承租人将负责支付在交付期间监督进入大楼的保安人员的费用。 |
|
|
|
| 16. |
承租人不得容许送货车辆的停泊或站立妨碍任何车道、行人路、停车区或其他公共区域的使用。 |
|
|
|
| 17. |
除装有橡胶轮胎和加厚护板的手推车外,任何手推车或送货小推车不得在任何空间内或在建筑物的公共大厅内由租客或工作人员或其他人使用,以交付或接收商品。 |
|
|
|
| 18. |
所有交付给Tenant的货物必须由Tenant接受。业主及其代理人或雇员将不接受、签收或持有租户的邮件、包裹或交付。 |
|
|
|
| 19. |
租客不得发出或准许发出任何不适当或令人不安的噪音、气味或震动,或以其他方式不合理地扰乱或干扰建筑物的占用,不论是使用任何设备、乐器、收音机、电视机、会说话的机器、不符合音乐标准的噪音、鸣笛、唱歌或以任何其他方式。 |
|
|
|
| 20. |
未经业主事先通知和批准,不得安装任何额外的锁或安全装置。新的锁或重新键入必须与房东协调,并键入建筑物主系统。 |
|
|
|
| 21. |
承租人须对其授权在非营业时间进入大厦的人负责,并须对应发给出入证的人负责及协调。承租人须保持出入证纪录最新,并须以雇员姓名作适当识别。 |
|
|
|
| 22. |
所有租客要求业主提供的服务,均须透过大厦管理处管理。未经管理处的协调,租客不得与业主的雇员及代理人独立订立合约,租客亦不得要求业主的雇员或代理人为或向任何租客或其他人接收或携带讯息。 |
|
|
|
| 23. |
任何入口、通道、门、电梯、电梯门、走廊或楼梯均不得堵塞或遮挡,亦不得将任何垃圾、垃圾、垃圾或任何性质的物料放置、清空或抛入该等地方,亦不得在任何时间使用该等地方,但租客、租客代理人、雇员或受邀人进出的地方除外。 |
|
|
|
51
| 24. |
任何箱子、板条箱、托盘或其他此类材料不得存放在建筑走廊或其他公共区域。当租客必须处置板条箱、箱子等时,租客有责任在上午8时及下午6时之前或之后处置,以避免在正常营业时间内在公共区域内可见或移动该等碎片。这些物品将作为晚间清洁服务的一部分予以拆除,费用由房东承担。 |
|
|
|
| 25. |
每名租客须与业主的雇员合作,保持租住的处所整洁。 |
|
|
|
| 26. |
除非本租契另有规定,租客不得在建筑物内的任何部分作标记、涂漆、钻孔或以任何方式污损,但租客在处所内的室内设计部件及陈设或认可的标牌除外。除首次迁入外,未经业主事先书面同意及业主指示,不得为电线钻孔、切割或穿线。 |
|
|
|
| 27. |
除非本租契另有规定,租客或其雇员、雇员、代理人、访客或持牌人,均不得在任何时间将任何易燃、易燃或易爆的液体、化学品或物质(包括圣诞树及装饰品)带到处所或在处所内存放,但附带使用的物品除外,但租客须将该处所的位置通知业主,并作出足够的安全存放规定。除经UL批准或业主安装的器具外,不得在处所内操作或放置任何空间加热器或风扇。 |
|
|
|
| 28. |
租户不会在机械或电气面板、暖通空调设备或其他机械设备附近放置家具或橱柜,以防止人员为日常或紧急通道所需的设备或设备提供服务。搬走这些家具供业主进出的费用将由租客承担。 |
|
|
|
| 29. |
处所或建筑物内的任何空间,不得用作制造、住宿、睡觉、贮存在急救包内通常未发现质量或数量的药物或药品,或用作合法用途。 |
|
|
|
| 30. |
租客不得在已拆除的处所或建筑物的任何部分放置、安装或操作任何引擎、炉灶或机械,或在其上或其中进行机械操作或烹饪,但租客的微波炉、冰箱、档案服务器室的额外冷却设备(须经业主合理批准)、办公室及通讯设备除外。 |
|
|
|
| 31. |
承租人会与所有承租人安排的承建商及安装技师协调,在承租人提供任何建筑或安装服务前,向承租人提供该等服务。本条文适用于由承租人安排的承建商在大厦内进行的所有工程,包括安装电话、电报设备、电气装置及附属装置,以及安装任何性质影响大厦的地板、墙壁、木制品、装饰、窗户、天花板、设备(承租人的办公设备除外)或任何其他有形部分的工程。 |
|
|
|
| 32. |
禁止在大楼的公共入口、前厅、通道、走廊、大厅、电梯、楼梯和厕所内吸烟。Tenant负责将此政策通知其所有供应商、服务提供商、代理商、雇员、被许可人和访客。业主保留权利,要求任何(在上述公共区域)从事吸烟行为的人,在其选择下,立即停止吸烟或离开大厦的公共区域。 |
|
|
|
| 33. |
禁止在大厦及停车场内拉票、拉客及兜售。业主和租客应合作防止这种情况发生。 |
|
|
|
| 34. |
租客须将租客、其雇员、服务提供者、代理人及访客的泊车限制在租约所指明的泊车位数目及业主所指定的泊车区内,并须遵守不时张贴及分发的合理泊车规则及规例。 |
|
|
|
| 35. |
在发生紧急情况或灾难通知时,无论是练习演习、误报还是实际发生,租户都将撤离房舍和建筑物。 |
|
|
|
52
| 36. |
承租人会将其所知悉、发生或存在于房屋或建筑物内的任何意外、意外、伤害或危险,通知业主。 |
|
|
|
| 37. |
租户将被要求参加建筑公司提供的回收和其他费用削减方案。 |
|
|
|
| 38. |
业主保留废除本规则的权利,并有权订立业主判断不时需要的其他合理规则及规例,以保障处所及(或)建筑物的安全、保护、小心及清洁、处所的运作、维持处所的良好秩序,以及保障租客、其代理人、雇员及受邀者的安全及舒适,而该等规则及该等规则在作出时及给予租客的通知,均对租客具有约束力,其方式犹如业主原先无歧视地订明及强制执行一样。 |
53
法定假日
波士顿邮路公司中心
马萨诸塞州马尔堡
元旦
阵亡将士纪念日
独立日
劳动节
感恩节
圣诞节
在所有其他假日,房舍服务将由经理酌情根据建筑物的占用情况而提供。
54
表e:
清洁时间表
波士顿邮政道293号
马萨诸塞州马尔伯勒
按照以下时间表提供清洁服务。
清洁处所须于下午六时后进行。
每周五次
A.大堂、入口及走廊(楼宇公用区域)
|
|
|
| 1. |
真空整个铺有地毯的区域,完成后将家具更换到原来的位置。 |
|
|
|
| 2. |
发现干净的地毯并清除地毯上的其他异物。 |
|
|
|
| 3. |
潮湿的拖布会根据需要洒出,使地板保持干净、无条纹的状态。 |
|
|
|
| 4. |
清空所有废物容器,现场清洁外表面,并根据需要更换衬板。 |
|
|
|
| 5. |
除尘所有主大堂家具和所有水平和垂直的表面在触手可及,回到原来的位置,当完成。 |
|
|
|
| 6. |
清洁和抛光电梯轨道,现场清洁电梯镶板,鞍座和门内外需要。 |
|
|
|
| 7. |
现场清洁电梯地毯,根据需要去除口香糖和其他异物。 |
|
|
|
| 8. |
警察外部正门,根据需要清除杂物(烟头等)。 |
|
|
|
| 9. |
斑点清洁和抛光所有金属明亮的工作,留下一个明亮的,无条纹的条件。 |
|
|
|
| 10. |
现场清洁所有的墙壁,门和隔断玻璃。 |
|
|
|
| 11. |
清洁和消毒所有饮水机。 |
|
|
|
| 12. |
粉尘灭火器盒子。 |
|
|
|
| 13. |
妥善布置所有家具和阅读材料。 |
B.洗手间
|
|
|
| 1. |
用消毒剂清扫和大坝拖把整个地板表面与批准的消毒剂地板清洁和干燥,使地板在一个干净,无条纹的条件。 |
|
|
|
| 2. |
彻底清洁和消毒所有水槽盆、小便池和马桶,使马桶座盖保持直立位置。 |
|
|
|
| 3. |
根据需要清空并清洗更换衬板的所有废物贮器。 |
|
|
|
| 4. |
清空和清洁卫生巾废物容器,并根据需要更换衬垫。 |
|
|
|
| 5. |
清洁和抛光所有镜子,镀铬固定装置,金属光亮工作和分配器。 |
|
|
|
55
| 6. |
补齐所有马桶、毛巾、座套、肥皂和卫生巾分配器。 |
|
|
|
| 7. |
在水槽、毛巾分配器、小便池、隔板和门周围发现干净的墙壁。 |
|
|
|
| 8. |
防尘隔板,镜子和框架的顶部。 |
C.会议室/教室区域
|
|
|
| 1. |
清空所有废物容器,现场清洁外表面,并根据需要更换衬板。 |
|
|
|
| 2. |
将所有桌子、椅子、椅子底座、桌子、文件柜和其他家具除尘。 |
|
|
|
| 3. |
干净的柜台和电话。 |
|
|
|
| 4. |
妥善布置所有家具和阅读文学作品。 |
|
|
|
| 5. |
发现干净的地毯和地毯保护器。 |
D.办公区
|
|
|
| 1. |
清空所有废物容器,根据需要更换衬里,以防止异味、溢出或任何令人反感的外观。 |
|
|
|
| 2. |
用经过防尘处理的防尘拖把对所有坚硬的地板表面进行清扫和除尘拖把。 |
|
|
|
| 3. |
将触手可及的所有水平和垂直表面(如书桌、桌子和橱柜台面以及储藏室)除尘,不要干扰书桌上的文件或附件。 |
|
|
|
| 4. |
潮湿的拖把溢出,使地板处于干净,无牛排的状态。 |
|
|
|
| 5. |
根据需要现货清洁地毯,去除口香糖和其他异物。 |
|
|
|
| 6. |
对所有铺有地毯的交通通道、办公室、教室、会议和隔间区域进行真空处理。 |
|
|
|
| 7. |
对所有租户的午餐室/咖啡厨房/用餐区进行吸尘和清洁。发现干净的桌子, |
|
|
|
| 8. |
餐厅餐厅/咖啡厨房/用纸巾的就餐区。 |
|
|
|
| 9. |
妥善布置所有家具和阅读材料。 |
E.楼梯和电梯
|
|
|
| 1. |
警察楼梯间,根据需要清除杂物。 |
|
|
|
| 2. |
发现干净的门和墙面(尤其是楼梯墙)。 |
|
|
|
| 3. |
吸尘所有地毯和区域地毯。 |
|
|
|
| 4. |
干净明亮的电梯轨道。 |
F.其他服务
|
|
|
| 1. |
警察在外面按条目。 |
|
|
|
| 2. |
保持看门人的衣橱整洁有序。 |
|
|
|
| 3. |
只开指定的灯。 |
56
|
|
|
| 4. |
在24小时内通知Lincoln Properties任何问题通知(如灯烧坏、分配器坏了、门把手坏了等)。 |
G.建筑物外部
|
|
|
| 1. |
在适用的情况下,清空外部垃圾桶和清洁烟灰缸。 |
每周三次
A.入口大厅
|
|
|
| 1. |
清扫和湿拖整个硬面地板,更换所有家具到原来的位置,完成。 |
每周一次
A.大堂、入口和走廊
|
|
|
| 1. |
干净的楼梯间玻璃留下明亮的条纹自由状态。 |
|
|
|
| 2. |
根据需要刷和清洁门限。 |
|
|
|
| 3. |
抛光硬面地板,如果需要,以使他们能够呈现最好的外观。 |
|
|
|
| 4. |
将触手可及的所有窗台和平面除尘。 |
|
|
|
| 5. |
排尘口、扩散器和烤架。 |
|
|
|
| 6. |
吸尘所有软垫家具。 |
|
|
|
| 7. |
除尘所有的高隔断壁架,模具,窗台,踢脚板和低壁架。 |
B.楼梯和电梯
|
|
|
| 1. |
真空地毯楼梯和楼梯平台。 |
|
|
|
| 2. |
警察并清除所有废物和杂物。 |
|
|
|
| 3. |
根据需要对地毯进行定点清洁,去除口香糖和其他异物。 |
|
|
|
| 4. |
灰尘扶手、门框、壁架和其他触手可及的平面。 |
|
|
|
| 5. |
对所有通风口、扩散器和烤架进行除尘。 |
|
|
|
| 6. |
除尘所有的高隔断壁架,模具,窗台,踢脚板和低壁架。 |
C.办公区
|
|
|
| 1. |
从墙壁、门和电灯开关上发现干净的污迹和手印。 |
|
|
|
| 2. |
清扫和湿拖把所有坚硬的地面,留下一个干净的,无条纹的条件。 |
|
|
|
| 3. |
用消毒剂湿擦电话。 |
|
|
|
| 4. |
防尘椅底座和其他低矮的壁架。 |
57
|
|
|
| 5. |
将触手可及的所有窗台和其他平面除尘。 |
|
|
|
| 6. |
排尘口、扩散器和烤架。 |
|
|
|
| 7. |
吸尘所有软垫家具。 |
|
|
|
| 8. |
除尘所有的高隔断壁架,模具,窗台,踢脚板和低壁架。 |
D.洗手间
|
|
|
| 1. |
将触手可及的所有水平表面除尘。 |
E.建筑物外部
|
|
|
| 1. |
清扫所有外部楼梯和楼梯平台。 |
每月一次
A.大堂、入口和走廊
|
|
|
| 2. |
电梯底板和内部的真空边缘。 |
|
|
|
| 3. |
根据需要从踢脚线上发现干净的污迹和擦伤。 |
|
|
|
| 4. |
粉尘迷你百叶窗。 |
B.楼梯和电梯
|
|
|
| 1. |
灰尘扶手。 |
|
|
|
| 2. |
在触手可及的地方发现干净的门和墙面。 |
|
|
|
| 3. |
地毯和混凝土沿踢脚板的真空边缘,直立的真空吸尘器将无法到达。 |
|
|
|
| 4. |
水泥楼梯间的真空边缘。 |
每季度一次
A.大堂、入口及走廊(建筑物的公共区域)
|
|
|
| 1. |
每三个月(每年四次)剥蜡、擦洗和打蜡瓷砖地板一次。 |
B.洗手间
|
|
|
| 1. |
每三个月(每年四次)剥蜡、擦洗和打蜡瓷砖地板一次。 |
74
58