文件
沙利文中心
伊利诺伊州芝加哥市
办公室租赁
之间
南方一州Propco,L.L.C.,
特拉华州有限责任公司
作为房东,
和
Centro,Inc.
特拉华州公司
作为租户
2015年2月17日
目 录
|
|
|
|
|
|
|
第一条.基本租赁信息
|
1
|
|
|
|
第二条。租赁协议
|
6
|
|
|
|
第三条。可选择续订、处所条件/ROFO
|
6
|
|
|
|
第四条。租金
|
13
|
|
|
|
第五条:遵守法律;使用
|
18
|
|
|
|
第六条。保证金
|
19
|
|
|
|
第七条。服务
|
19
|
|
|
|
第八条。租赁权益改善/津贴
|
20
|
|
|
|
第九条。修理、改建和清洁
|
22
|
|
|
|
第十条.电力服务
|
24
|
|
|
|
第十一条。由业主填写
|
24
|
|
|
|
第十二条。转让和转租
|
25
|
|
|
|
第十三条。留置权
|
26
|
|
|
|
第十四条。弥偿及申索的放弃
|
27
|
|
|
|
第十五条。保险
|
28
|
|
|
|
第十六条。放弃代位权
|
29
|
|
|
|
第十七条。伤亡损失
|
29
|
|
|
|
第十八条。谴责
|
30
|
|
|
|
第十九条。违约事件
|
31
|
|
|
|
第XX条。补救措施
|
32
|
|
|
|
第二十一条。责任限制
|
33
|
|
|
|
第22条。无弃权
|
33
|
|
|
|
第23条。安静的享受
|
33
|
|
|
|
第24条。搬迁
|
33
|
|
|
|
|
|
|
|
|
|
第二十五条。等待
|
33
|
|
|
|
第二十六条。抵押权保护;禁止反言证书
|
34
|
|
|
|
第二十七条。律师费
|
35
|
|
|
|
第二十八条。通知
|
35
|
|
|
|
第二十九条。例外权利
|
35
|
|
|
|
第XXX条。交出处所
|
36
|
|
|
|
第三十一条。杂项
|
36
|
沙利文中心
办公室租赁
本办公室租赁协议(以下简称“租赁”)是由特拉华州有限责任公司One South State Propco,L.L.C.(“房东”)和特拉华州公司Centro,Inc.(“租户”)于2015年2月17日(“生效日期”)签订的。
以下列出了本租约中提及的基本数据,并在适当情况下构成以下术语的定义:
第一条。
基本租赁信息
以下列出了本租约中提及的基本数据,并在适当情况下构成以下术语的定义:
|
|
|
|
|
|
|
第1.01节房东:
|
|
南方一州Propco,L.L.C., 特拉华州有限责任公司 房东联邦税号:36-4376049 |
|
|
|
第1.02节业主的管理代理人:
|
|
|
|
Joseph Freed and Associates LLC,
伊利诺伊州的一家有限责任公司
|
|
|
|
第1.03节业主通知地址:
|
|
|
|
南方一州Propco,L.L.C。
C/O Joseph Freed and Associates LLC
33South State Street,Suite400
伊利诺伊州芝加哥60603
注意:总法律顾问
复印至:
C/O Winthrop Realty Trust
7Bulfinch Place
500套房
马萨诸塞州波士顿02114
收件人:Jay Cramer
和
Elad Canada Inc.
央街5001号1405套房
多伦多,On M2N6P6
收件人:总法律顾问
|
|
|
|
|
|
|
|
|
|
第1.04节业主缴付租金的地址:
|
|
|
|
通过检查到Lockbox:
南方一州Propco,L.L.C。
邮政信箱74888
伊利诺伊州芝加哥60694-4888
通过电子转账到被冻结的帐户:
帐户名称:【*】
ABA:【*】
帐户编号[*]
|
|
|
|
第1.05节承租人【法定名称】:
|
|
|
|
Centro,Inc.特拉华州的一家公司
租户联邦税号:【*】
|
|
|
|
第1.06节租户通知地址:
|
|
|
|
拥有日期之前:
222W.Hubbard St.,4TH 地板
伊利诺伊州芝加哥60654
收件人:Jan Naddy
在占有日期及之后:
11E.Madison,6楼
伊利诺伊州芝加哥60602
收件人:Jan Naddy
|
|
|
|
第1.07节租赁生效日期:
|
|
|
|
2015年2月17日 |
|
|
|
|
|
|
|
|
|
第1.08节建筑物;中心:
|
|
|
|
|
那些被公开命名为麦迪逊街边上的沙利文中心的土地和改善项目, 沃巴什大道, 门罗街和道富街, 芝加哥, 伊利诺伊州, 除公开标明为Heyworth大楼的土地和建筑物外, 银匠大厦, Mentor大楼和麦迪逊街和门罗街之间的南北公共道路,包括零售和办公部分,以下称为“大楼”。“建筑物”还应包括, 在房东的选举中, 其他建筑物, 与建筑物共同经营的他人所有的构筑物和地块或成片的土地。建筑物内的建筑物或构筑物的零售部分,以及业主不时拥有或租用的任何其他零售建筑物或构筑物,并与之一起作为购物中心经营, 与公共区域一起, “所有由业主拥有或租赁的地块或成片土地,连同上述项目一起运营的时间,以下定义为“中心”, |
|
|
|
第1.09节前提:
|
|
|
|
|
第六届(6届)TH )有阴影的建筑物的地板附件A。
|
|
|
|
第1.10节零售区域:
|
|
|
|
|
与购物中心的运营有关的建筑物的一部分,该部分不时被租赁,用于或打算用于该部分。零售面积(但不是办公面积)是指业主为支付租金的租户的专有使用和占用而确定的中心总建筑面积,该面积应由业主不时计算,并应排除公共区域和存储区域,如果有的话,与业主根据公认的购物中心行业原则不时确定的零售区域分开租赁。建筑物的建筑面积是指零售面积加上办公面积的总和。零售区域的描述将在业主在其办公室或其管理代理人办公室不时维护的记录中列出,并应租户的合理要求提供给租户检查。零售区域的大小可能会不时发生变化。 |
|
|
|
|
|
|
|
|
|
第1.11节办公区域:
|
|
|
|
|
沙利文中心的那部分,不包括零售区域和除零售区域和办公区域外不时使用的区域(如果有的话),业主打算并保留不时租赁商业办公室,零售的不合格权利,以及其他相关目的或其任何组合。办公面积的测量应采用业主建筑师确定和应用的经修改的建筑物所有者和管理者协会(“BOMA”)标准(经修订的1996年)(“经修订的BOMA1996年标准”)。业主有权不时减少办公面积,并在业主为一般办公或类似目的租赁该额外空间之日及之后,不时在办公区域内增加可出租的额外空间并被支付租金的租户占据。 |
|
|
|
第1.12节可出租正方形
画面:
|
|
|
|
该房产的可出租平方英尺被认为是70,107平方英尺,是根据业主建筑师确定并适用的经修改的建筑物所有者和管理者协会标准(1996年修订)(“经修改的BOMA1996年标准”)测量的。租户和业主同意不重新测量单位的面积。
|
第1.13节基本租金:
|
|
|
|
|
|
|
|
|
|
|
|
|
期间-每月
(月份数通过
月份)
|
每平方英尺的年基本租金 |
年基本租金 |
每月基本租金 |
|
生效日期至12日TH 月份
|
$27.50 |
$1,927,942.50 |
$160,661.88 |
|
13TH 到24岁TH 月份
|
$28.05 |
$1,966,501.35 |
$163,875.11 |
|
25TH 到36岁TH 月份
|
$28.61 |
$2,005,831.3 8 |
$167,152.61 |
|
37TH 到48岁TH 月份
|
$29.18 |
$2,045,948.00 |
$170,495.67 |
|
49TH 到60岁TH 月份
|
$29.77 |
$2,086,866.96 |
$173,905.58 |
|
61St到72岁ND 月份
|
$30.36 |
$2,128,604.30 |
$177,383.69 |
|
73RD 通过84TH 月份
|
$30.97 |
$2,171,176.39 |
$180,931.37 |
|
85TH 到96年TH 月份
|
$31.59 |
$2,214,599.92 |
$184,549.99 |
|
97TH 通过108TH 月份
|
$32.22 |
$2,258,891.92 |
$188,240.99. |
|
109TH 通过120TH 月份
|
$32.86 |
$2,304,069.75 |
$192,005.81 |
只要承租人没有违约,基本租金、费用和税款的100%将在开始日期开始至开始日期之后的第6个完整日历月的最后一天结束的期间内减少。根据本款减除的基本租金、费用和税款以下称为“减租金额”。
第一选择期基本租金;第一选择期市场租金(定义见第3.02A节)
第二选择期基本租金;第二选择期市场租金(定义见第3.02b节)
|
|
|
|
|
|
|
第1.14节租户按比例所占份额:
|
用于税收:以房地的可出租平方英尺数作为分子,并以不时在地面及以上的办公面积的可出租平方英尺数作为分母的分数,该分数是利用经修订的Boma1996标准计算得出的。最初,分母使用的可出租平方英尺应为743,852。
费用:这一部分的分子是按照第1.12节的规定,房地内可出租的建筑面积的平方英尺数,分母是办公面积的可出租的建筑面积的平方英尺数,在一层或更高的地方不时出现,使用修改后的BOMA1996标准计算。
最初,分母使用的可出租平方英尺应为743,852。
|
|
|
|
第1.15节基准年支出:
|
2015日历年支付的费用(定义见第4.03节)。
|
|
|
|
第1.16节基准年税收:
|
税款(定义为第4.04节第111条)在2015日历年评估和征收。 |
|
|
|
第1.17节占有日期:
|
第五个(5)TH )在房东告知房客房东的工作基本完成后的第二天。房东承诺并同意在2015年7月1日之前,尽商业上合理的努力完成房东的工作。
|
|
|
|
第1.18节期限:
|
从生效日期(定义见下文)开始的一百二十(120)个完整日历月的期限,除非根据本租约提前终止,否则该期限至一百二十(120)个日历月的最后一天结束TH )开始日期(“终止日期”)之后的完整日历月。“生效日期”是一百二十(120)天。TH )拥有日期后的第二天。根据业主的要求,业主和租户应按照所附的格式签订一份“生效通知书协议”。附件c .本租赁的“期限”应包括承租人已及时行使的任何续签选择权。
|
|
|
|
第1.19节施工津贴:
|
根据第8.03节的规定,应支付5,258,025.00美元(PSF75,000美元)
|
|
|
|
第1.20节保证金:
|
1,750,000美元的信用证形式。看第六条
|
|
|
|
第1.21节担保人:
|
无 |
|
|
|
第1.22节经纪人:
|
Avison Young-Chicago,LLC(租户和房东经纪人)
|
|
|
|
第1.23节允许使用
|
一般办公室,没有其他用途。
|
|
|
|
|
|
|
|
|
|
第1.24节营业日:
|
每周的星期一到星期五,不包括元旦、阵亡将士纪念日、独立日、劳动节、感恩节和圣诞节(“假日”)。房东可以指定额外的假期,前提是额外的假期通常被芝加哥“市中心”的其他写字楼认可。 |
|
|
|
第1.25节法律:
|
指任何市政,政府或准政府实体的所有适用法规,守则,条例,命令,规则和条例。 |
|
|
|
第1.26节优先购买权:
|
看第3.03节
|
|
|
|
第1.27节续订选项:
|
两个六十(60)个连续的日历月选项。看第3.02节
|
|
|
|
第1.28节承租人的终止权:
|
看第3.04节
|
|
|
|
第1.29节承租人租赁房屋的权利:
|
看第3.05节
|
|
|
|
第1.30节正常营业时间:
|
这栋楼是早上8点。营业时间:下午6:00。工作日营业时间为上午8:00至下午1:00,星期六营业时间为上午8:00至下午1:00。
|
|
|
|
第1.31节房东工作:
|
指房东根据以下规定有义务在房屋中完成的工作附件d .
|
|
|
|
第1.32节展品清单:
|
附件A(房地概况和位置)
附件B(收缩空间的位置)
附件C(生效通知书)
附件D(业主工作)
附件E(规则和条例)
附件F(冷凝器水费)
|
第二条。
租赁协议
房东将房屋出租给房客,房客从房东那里租赁房屋,以及与其他人一样,有权使用房东不时指定的沙利文中心的任何部分,以供房客共同使用,以及房东授予的其他此类权利,例如人行道、公共走廊、楼梯、电梯门厅、洗手间、自动售货机区域和为办公区服务的大堂区域(“公共区域”)。尽管本租约的生效日期发生在本租约的占有日期之后,但承租人和房东仍签订契约,并同意其在本租约下的各自义务自生效日期开始。
第三条。
可选择续订、处所条件/ROFO
第3.01节处所的条件:在业主履行业主工作义务的前提下,该房屋将在其“现状”,“现状”,“位置”的条件和配置中的占有日期被租户接受。通过占有这处房产,承租人同意房东的工作是实质性的。
已完成,仅受打孔清单项目(定义见下文)的约束,处所处于良好状态和令人满意的状态,并且除房东的工作外,房东对处所,建筑物或沙利文中心的任何其他部分的状况没有任何陈述或保证。尽管在此有任何相反的规定,业主向租户保证,在管有日期,该房产的结构将是健全的,没有漏水,并且为该房产服务的机械设备将处于良好的工作状态和维修状态。业主进一步承诺,业主的工作应按照所有法律,并以良好和工人般的方式,使用新材料的质量,至少等于业主的最低标准的办公面积。
就本租约而言,“基本完成”和/或“基本完成”是指业主的工作已经完成,以至于租户可以占有该房屋,并且可以(i)将其用于以下目的,或者开始执行租户的工作(只要租户拥有租户工作许可证),有房东建筑师的证书为证。
在房东通知房客房东的工作基本完成后十(10)天内,房客和房东应,对房屋进行一次徒步检查,以创建一个打孔清单,其中列出了仍然需要完成的项目,尽管房东的工作基本上已经完成(这些项目被称为“打孔清单项目”)。一旦双方就“打卡清单”项目达成一致,房东应在30天后完成这些项目。
如有任何争议, 或者什么时候, 房东的工作已经基本完成, 业主建筑师关于业主工程已基本完成的声明应被推定为正确的。如果租户不接受(或不同意)业主建筑师的陈述, 然后在租户收到房东的通知后十(10)天内,房东的工作基本完成, 租客须通知业主, 以书面形式, 详细说明承租人声称的业主工程未基本完成的项目,以及其指定的建筑师的名称,以审查争议(前提是承租人应承担举证责任,以克服假设业主的建筑师证明是正确的)。在租户书面通知业主业主,业主的工作没有完成后的十五(15)天内, 房客和房东同意用诚信的努力来解决关于是否, 或者什么时候, 房东的工作已基本完成。如果, 在所说的15天里, 双方无法解决争端, 然后,租户和房东应共同选择第三方架构师(“第三方架构师”)来确定是否, 或者什么时候, 房东的工作已基本完成。如果双方无法就第三方架构师达成一致, 然后,租户和业主应各自选择一名建筑师,然后两名建筑师应选择第三方建筑师来做出这样的决定。第三方架构师对是否, 或者什么时候, 业主的工作已取得实质性的完成,应是结论性的,并对租户和业主双方都有约束力。每一方应支付费用和开支, 如果有的话, “他们的建筑师和第三方建筑师的费用应在租户和房东之间平均分摊。,
第3.02节续订选项:
a.租户,在终止日期前十二(12)个月内以书面形式通知业主,应有权选择将本租约的期限延长六十(60)个日历月,从一百二十七(127)日的第一天开始TH )生效日期之后的一个日历月,并于第一百八十六(186)日的最后一天结束TH )生效日期(“第一个期权期”)之后的日历月,根据本租赁的所有条款,契约和条件以及以下规定的第一个期权期市场租金,但前提是在上述通知发出之时和时间
第一个选择期开始,租户是开放和经营的场所,以使用在租赁规定,并不是在以下违约。
“第一期市场租金”的金额应等于反映净租金的年度市场租金, 不动产税和经营费用, 基础租金上涨, 租户信誉, 租户改善津贴, 然后,在第一个选择期(“第一个选项市场租金标准”)开始时,不相关的第三方之间就中环子市场和东环子市场中的可比级办公楼同意并接受经纪佣金和所有其他市场诱导。业主和租户同意使用诚信EFF01TS在租户行使其续租选择权后的三十(30)天内达成上述第一期市场租金。如果双方不能在三十(30)天的期限内就第一期市场租金的金额达成协议, 然后,租户和房东应共同选择第三方伊利诺伊州房地产经纪人(“第三方经纪人”)熟悉的第一个期权市场租金标准,以确定第一个期权期间的市场租金。如双方未能就上述第三方经纪达成协议, “然后,租户和房东应各自选择熟悉第一期权市场租金标准的伊利诺伊州房地产经纪人,然后这两个经纪人应选择第三方经纪人来做出这样的决定。,
第三经纪人对第一个选择期市场租金的确定应是决定性的,并对租户和业主双方都有约束力。每一方应支付其经纪人的费用和开支(如果有的话),第三方经纪人的费用应由承租人和房东平均分担。
B.租户,在第一个选择期的最后一天之前12个月内,以书面形式通知业主,将有权选择将本租约的期限再延长六十(60)个日历月,从一百八十七(187)日的第一天开始TH )开始日期之后的一个日历月,并在二百四十六(246)日的最后一天结束TH )根据本租赁的所有条款,契约和条件以及下文规定的第二个选择期市场租金,在开始日期(“第二个选择期”)之后的日历月,但在上述通知发出之时及在第二个选择期开始之时,租客已开放并经营该处所,以供租赁所列明的用途,而并非在本协议项下失责。
“第二选择期市场租金”的金额应等于反映净租金的年度市场租金, 不动产税和经营费用, 基本租金上涨;租户信誉, 租户改善津贴, 然后,在第二个选择期(“第二个选择期市场租金标准”)开始时,不相关的第三方之间就中环子市场和东环子市场中的可比级办公楼同意并接受经纪佣金和所有其他市场诱导。业主和租户同意在租户行使其续租选择权后的三十(30)天内,通过真诚的努力达成上述第二个选择期的市场租金。如果双方无法在三十(30)天的期限内就上述第二个选择期市场租金的金额达成一致, 然后,租户和业主双方应共同选择第三方伊利诺伊州房地产经纪人(“第三方经纪人”)熟悉第二个期权市场租金标准,以确定第二个期权期间的市场租金。如双方未能就上述第三方经纪达成协议, “然后,租户和房东应各自选择熟悉第二个期权市场租金标准的伊利诺伊州房地产经纪人,然后这两个经纪人应选择第三方经纪人来做出这样的决定。,
第三经纪人对第二个选择期市场租金的决定应是决定性的,并对租户和业主双方都有约束力。每一方应支付其经纪人的费用和开支(如果有的话),第三方经纪人的费用应由承租人和房东平均分担。
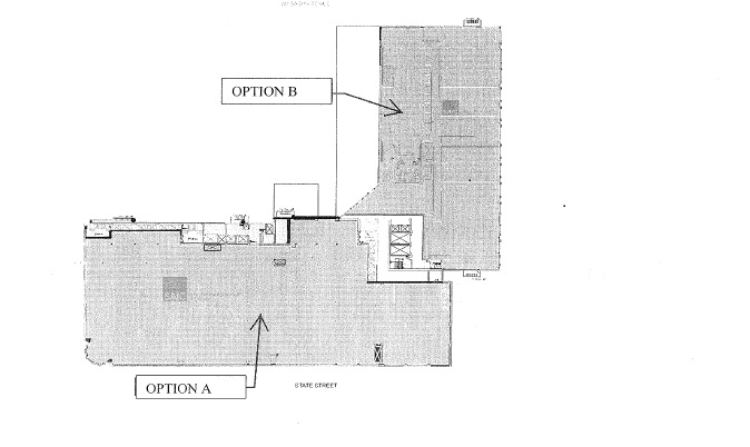
第3.03节优先购买权:在本协议有效期内的任何时间(“第一个要约期”),房东同意不时向租户提供第七(7)条的全部或任何部分TH )在第一个要约期间,根据以下规定的条款和条件,建筑物的楼层(“第一个要约空间”)变为“可供租赁”(以下定义)。
在业主积极寻求善意的第三方潜在租户获得第一个提供空间时,第一个提供空间应被视为“可供租赁”;但在所有情况下,“可供租赁”的首次出售空间应服从占用首次出售空间的现有租户的权利。业主不应被视为已提供了首次提供的空间。通过与潜在租户或经纪人协商以试图确定首次提供空间的现行市场价格进行租赁,也不应禁止房东与潜在租户进行谈判对于第一个提供空间,只要业主在执行对潜在的第三方租户的第一个提供空间的租赁之前遵守本3.03节的规定。
当第一个提供空间可供租赁时,房东应书面通知租户(y)现行市场价格(定义见下文)和(z)(如果适用)现行市场建设津贴(定义见下文)。
在业主书面通知后的十五(15)天内,租户应立即书面通知业主是否愿意租赁首次提供的空间。如果少于第一个提供空间的整个I11层变得可用,则租户将仅有权租赁第一个提供空间中可用的那一部分。如果整个7TH 第一个提供空间的楼层变得可用,租户可以选择租赁(a)所有第一个提供空间,或(b)仅租赁第一个办公空间的一部分,在本文所附的附件G上显示为“空间A”,或(c)仅指在本文所附附件G上显示为“空间B”的第一办公空间的一部分。如果(i)租户选择不行使其租赁第一个要约空间的权利,或者租户未能在上述15(15)天内向房东发出行使该权利的书面通知,然后,业主可以在不另行通知承租人的情况下,不受承租人的任何权利的约束,将第一个提供空间以其选择的租金和条款出租给第三方。
如果租户及时选择行使其权利,租赁上述(a)-(c)中确定的全部或部分第一个要约空间, 但不同意业主对现行市场价格及/或现行市场建筑津贴的决定, 那么房东和房客应该协商, 真诚地, 双方就现行市场汇率及/或现行市场建筑免税额达成协议。如果业主和租户无法在业主收到租户行使其租赁首个提供空间的权利后十(10)天内就现行市场价格和/或现行市场建设津贴达成一致, 然后,租户和房东应共同选择熟悉Loop写字楼市场的第三方伊利诺伊州房地产租赁经纪人(“第三方经纪人”),以确定上述现行市场价格和/或现行市场建设津贴。如双方未能就上述第三方经纪达成协议, 然后,租户和房东应各自选择一个熟悉Loop Office Market的伊利诺伊州房地产租赁经纪人,然后这两个经纪人应选择第三方经纪人来做出这样的决定。第三经纪人对现行市场价格和/或现行市场建设补贴的决定应是决定性的,并对承租人和房东双方都有约束力。每一方应支付费用和开支, 如果有的话, “他们的经纪人和第三经纪人的费用应在租户和房东之间平均分摊。,
如果租户及时选择行使其租赁第一个要约空间的权利(i)该第一个要约空间的租赁(或租赁修订)应由租户执行,该首次提供空间的租期须于业主与租客议定的日期开始,租金
对于首次提供的空间,应为上述确定的现行市场价格和/或现行市场建设津贴,首次提供的空间的期限应与本租赁的期限一致,(v)有关租户建筑工程的规定应符合下文第3.03节的规定。
如果, 经过真诚的谈判, 根据第3.03节的规定, 房东和承租人无法就租赁(或租赁修改)条款达成协议对于第一个提供空间如上所述(不包括根据本第3.03节第五段最终确定的现行市场价格和/或现行市场建设津贴的确定),在Elate租户行使其租赁第一个要约空间的权利后的三十(30)天内, 如果在接到房东的通知后十五(15)天内,租客和房东不能就租赁(或租赁修改)的条款达成一致,房东应书面通知租客, 然后,业主可以按照其选择的租金和条款,将第一个报价空间出租给第三方, 无需通知承租人,且不受承租人任何权利的限制;前提是该第三方支付的租金不低于现行市场价格的90%。如果第三方支付的租金低于现行市场价格的90%, 或者业主未能在最初通知后的二百七十(270)天内执行第一个提供空间的租赁, 然后在与任何第三方执行第一个要约空间的租赁之前, 业主应再次书面通知租户,第一个提供的空间可供租赁,租户应, 再一次, 拥有第3.03节中规定的权利,
只有在以下情况下,房东才被要求向租户提供第一个提供空间:(i)本租约完全生效,(ii)租户在本租约下没有违约(在任何适用的通知和补救期限到期后,和100%(100%)的处所由Centro,Inc.或Centro,Inc.的继任者占用或根据允许的转让(定义见下文第12.05节)进行转让,因为本协议项下的第一个要约权仅用于Centro,Inc.的利益,或Centro,Inc.的继任者或根据允许的转让进行转让。
如果承租人根据本第3.03条租赁第一个要约空间,第一个要约空间的基本租金应为当时的市场价格。如本文所用,“现行市场价格”应是业主真诚确定的年度市场租金价格,并应反映净租金价格,房地产税和运营费用,基本租金上涨,期权数量和期权期限,租户信誉,租户改善津贴,经纪佣金和所有其他市场诱因,然后同意并在不相关的第三方之间接受在中环子市场和东环子市场完成的同等级别办公楼的租赁。
如果租户选择租赁第一个要约空间,但是,在上述规定的四十五(45)天期限届满时或之前,向房东发出书面通知,以执行该第一个要约空间的书面租赁(或租赁修订),租户拒绝业主对现行市场价格和/或(如适用)现行市场建设补贴(如下所述)的确定,然后业主可以按其选择的租金和条款将首次提供的空间租赁给第三方,除非上述第三方支付的租金低于现行市场租金的百分之九十(90%),否则无须通知承租人,并不享有承租人的任何权利。
如果租户选择租赁第一个要约空间,但(i)未能为该第一个要约空间执行书面租赁(或租赁修订)(前提是业主应以商业上合理的方式与租户合作,以便租户有书面租赁,或租赁修订,以执行该首次报价空间)或在上述F01IH设定的45(45)天期限届满之日或之前,向房东发出书面通知,拒绝房东对现行市场利率和/或(如果适用)现行市场建设津贴的确定,则承租人应自动被视为
已拒绝业主对现行市场价格及/或(如适用)现行市场建筑津贴的决定,业主其后可按其所选择的租金及条款,将首次提供的空间出租予第三方,除非上述第三方支付的租金低于现行市场价格的90%(90%),否则无须通知承租人,并不享有承租人的任何权利。
如果租户选择租赁第一个提供的空间, 第一个提供空间的租赁应包含以下有关租户建筑工程的规定:业主应向租户提供价值等于现行市场建筑津贴的建筑津贴。如本文所用, “现行市场建筑津贴”应是(i)租户通常可获得的与第一个提供空间相似的空间的建筑津贴(现金), 由业主真诚地决定,然后在不相关的第三方之间同意并接受,在中环子市场和东环子市场完成的公平交易中,对类似级别的办公楼进行租赁, 或业主有义务按照基本建筑标准建造第一个提供空间,该标准可供租户使用,其空间与第一个提供空间相似, 由业主真诚地决定,然后在不相关的第三方之间同意并接受,在中环子市场和东环子市场完成的公平交易中,对类似级别的办公楼进行租赁, 或以上(i)或的组合,
第3.04节承租人的终止权:
如果在不可抗力的情况下,业主无法在2015年11月30日之前基本完成业主的工作,租户有权在此后的任何时间通过书面通知业主终止本租约。
b.只要(i)本租约完全有效, Centro占用了100%(100%)的处所, Inc., 或Centro, 股份有限公司的继承人或根据允许的转让进行的转让(由于本协议项下的终止权仅用于Centro的利益, Inc., 或Centro, Inc.的继承人或根据允许的转让进行的转让), (三)承租人在本租约下并无违约(在任何适用的通知及补救期限届满后, 如本文所述), 承租人有权, 在书面通知房东(“终止通知”)后, 在提前终止日之前的十五(15)个日历月内,以书面形式通知业主终止所有房产的租赁并且不迟于提前终止日(以下定义)之前的十二(12)个日历月,在这种情况下,本租赁应在提前终止日终止。“提前终止日期”是生效日期的第7个周年纪念日。,
如果租户选择终止本租赁(根据本第3.04条的规定),则租户应在向房东发出终止通知的同时向房东支付终止费(以下定义)。
“终止费”的金额等于(a)(i)施工津贴的未摊销部分,减租金额的未摊销部分(定义见第1.13节),以及第1.22节中列出的支付给经纪人的佣金的未摊销部分的总和,和(b)等于在提前终止日之前发生的三(3)个日历月的基本租金,费用和应缴税款的金额。上述(a)小节中所述的金额应从开始日期起,在120个日历月内以直线方式摊销,并应包括从提前终止日到终止日的一段时间内每年8%的利息系数。应承租人的书面要求,业主应在承租人提出书面要求后30天内,向承租人提供第1.22条所列支付给经纪人的佣金金额。
如果承租人未能根据第3.04条及时行使其终止本租约的权利,或者本租约未完全生效,或者如果承租人在本租约下违约(在任何适用的通知和治愈期到期后,或如果租户未能及时向房东支付终止费,或者如果Centro,Inc.或Centro占用的房屋少于100%(100%),根据允许的转让,Inc.的继承人或转让,因为本协议项下的终止权仅是为了Centro,Inc.或Centro,Inc.的继承人或根据允许的转让进行的转让的利益,那么,承租人根据第3.04条终止本租赁的权利将是无效的,并且承租人根据第3.04条试图或据称行使其终止权的任何尝试或声称的行使,应由房东选择,通过书面通知承租人而无效。
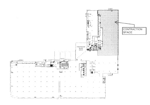
第3.05节承租人租赁房屋的权利:在本租约生效日期的第7(i11)周年之后的那部分期间,房东同意Centro,Inc.或Centro,股份有限公司的继任人或根据允许的转让进行的转让(因为本合同项下的处所的承包权仅旨在为Centro,Inc.或Centro的利益,Inc.的继承人或根据允许的转让进行的转让)有权将所附租赁计划中显示为“收缩空间”的房屋的20%(20%)退还给房东附件b .
租户应在第七(7)个日历月之前的十二(12)个日历月内通过书面通知房东(“契约通知”)行使其在第3.05条下的权利TH )生效日期的周年纪念日。如果承租人行使了第3.05条规定的权利,“约定日期”应为第十二(12)条之后的一天TH )业主收到收缩通知后的日历月,租户应在不迟于收缩日期将收缩空间交给业主。承租人订立契约,并同意:(i)应要求向业主偿还业主在独立于承租人保留的处所余额的情况下占用收缩空间的费用;或(ii)完全由业主承担费用,收缩区与租户保留的处所的余地分开。自收缩日起及之后,只要租户已腾空,基本租金和租户的比例份额应进行调整,以反映租户继续占用的可出租平方英尺。
如果租户选择按照本第3.05条的规定签订房屋合同,则租户应在向房东发出合同通知的同时向房东支付合同费用(下文定义)。
“收缩费”等于(a)(i)建筑津贴的未摊销部分,减租金额的未摊销部分,以及第1.22节中列出的支付给经纪人的佣金的未摊销部分的百分之二十(20%),和(b)等于在提前终止日之前发生的三(3)个日历月的基本租金,费用和应缴税款的金额。以上(a)小节中所述的金额应从生效日期开始,在120个日历月内以直线方式摊销,并应包括从收缩日到终止日这段时间内每年8%的利息系数。应承租人的书面要求,业主应在承租人提出书面要求后30天内,向承租人提供第1.22条所列支付给经纪人的佣金金额。
如果承租人根据本第3.05条的规定选择承包该房产,如果其保留的房产部分包含该房产所在楼层的所有浴室,则尽管本租约中有任何相反规定,业主有权允许(租户也有权允许)占用房屋所在楼层的其他租户使用合同房屋内的卫生间。
第3.06节户外空间:只要租户严格遵守第3.06节的规定,并且芝加哥市(“市”)批准了该规定,租户就有权使用该部分
建筑物的屋顶,可通过房屋(“屋顶空间”)作为室外露台进入。如果租户希望将屋顶空间用作室外露台,则租户应自行承担费用,完成上述使用所必需的任何和所有工作(“屋顶工作”);前提是在开始屋顶空间的任何工作之前,租户应拥有由伊利诺伊州许可的建筑师准备的屋顶工程的计划和规范(“屋顶计划”),并将其提交给房东以供其审查和批准,该批准不得被无理地拒绝或延迟。如果业主认为有必要由结构工程师审查屋顶图则,业主有权这样做,费用由租户承担。
在业主批准屋顶计划后,租户有权进行屋顶工作,但须遵守以下条件:(i)租户应从城市获得屋顶工作的建筑许可证,屋顶工作应以良好和工人般的方式进行,并应符合所有适用的法律,包括《美国残疾人法》,在进行屋顶工作期间,承租人须从处所进入屋顶空间,并须在处所内进行所有布置,承租人不得在屋顶空间上建造任何与其作为室外露台使用不一致的改进,(v)屋顶工程的进行不得干扰该建筑物内任何其他租客的业务。
一旦建成,租户使用屋顶空间应遵守以下规定:(a)租户应向业主提供有关其使用的所有城市许可证和执照的副本(如果有的话),(b)租客不得容许屋顶空间的楼面负荷超过业主的结构工程师的建议,及(c)租客须遵从城市的任何条例或规例或所批出的牌照或许可证的所有规定。
租户使用屋顶空间的权利是不可转让或转让的,屋顶空间只能在Centro,Inc.或Centro100%(100%)占用的前提下使用,由于屋顶空间的使用权仅是为了Centro,Inc.或Centro,Inc.的继承人的利益,或根据许可的转让而转让的,因此根据许可的转让,Inc.的继承人或转让。如果业主不能使用屋顶空间,除了业主故意的不当行为以外的任何其他原因,业主对租户不承担任何责任。
业主保留权利,要求租户,在租赁48小时书面或口头通知,停止使用屋顶空间,由于维护和维修的建筑物或中心,包括但不限于,维修,在屋顶空间附近或上方的区域进行清洁和擦窗。在紧急情况下,不需要提前通知。
自租户开始进行屋顶工程之日起及之后,即使本租约中有任何相反规定,租户仍应自行承担维护,维修并在必要时更换(a)安装在屋顶空间上的任何及所有露台改进,(b)该屋顶空间所在的建筑物的该部分的屋顶及屋顶膜,以及(c)在该屋顶空间竖立的任何其他改善工程。如果租户未能遵守此维修义务,业主应有权在本租约中规定的任何适用通知和治愈期届满后,进行上述维修或代理!更换并向租户收取相同的费用,外加10%的管理费,该金额应视为本协议项下的额外租金。
第四条。
租金
第4.01节付款:作为本租赁的对价,承租人应向业主支付本租赁期间的基本租金和额外租金总额,不作任何抵销或扣除。“额外租金”是指租户需要向房东支付的所有金额(不包括基本租金)。额外租金
基本租金有时统称为“租金”。“承租人应支付所有租金并对其承担责任, 销售和使用税(但不包括所得税), 如果有的话, 根据适用的法律对租金征收或以租金计量。基本租金和经常性的每月额外租金费用应在租期内每个日历月的第一天提前支付,而无需通知或要求, 但租期第一个历月的基本租金须于承租人签立本租约时支付。所有其他租金项目应在房东开出账单后30天内或之前由租户到期支付。所有租金的支付都应以美元为单位,使用充足的支票或房东可接受的其他方式(如自动借记或电子转账)。如果承租人到期未付任何款项或分期付款, 承租人应向业主支付相当于逾期租金5%的管理费, 但在某一公历年内,租客有权获得5天的宽限期,以支付不超过2次的迟缴租金。如果该期限在一个日历月的第一天以外的一天开始,或在一个日历月的最后一天以外的一天结束, 每月基本租金和租户费用调整(定义见第4.03节)。)和租户的税收调整(定义见第4.04节)。)该月应根据该日历月的天数按比例分配。业主接受的租金低于正确的数额,应视为支付的最早的租金到期。在支票或付款所附的支票或信件上的背书或声明不应被视为协议和满意, 任何一方均可接受支票或付款,但不得损害该方收回余款或寻求其他可用补救办法的权利。“承租人支付租金的契约独立于本租约中的所有其他契约。,
第4.02节支付租户的费用调整和税收调整:承租人应支付一笔金额(“费用调整”),该金额应为承租人按比例分担的超出部分的费用, 如果有的话, 指在基准年期间每个日历年的费用。承租人应支付一定金额(“税收调整”),该金额应为承租人对超出部分的税收按比例分配的份额, 如果有的话, 指在基准年期间对每个日历年征收或发生的税款。在任期内的任何部分日历年应按小数处理, 基于任何部分月份的月数和天数。业主应向承租人提供合理的, 诚实信用地估计在任期内每个日历年的费用和税收总额。在每月的第一天或之前, 房客每月应向房东支付分期付款,金额相当于房客在房东估计的总费用和税款中所占比例份额的十二分之一。如果房东确定其估计值有重大错误, 业主可向租户提供一份修订后的估价书.在收到经修订的估计数后, 租户的每月付款应以修订后的估计数为基础。如果业主在日历年度的1月1日之前没有向租户提供费用和税款总额的估计, 租户应继续支付每月分期付款的基础上一年的估计,直到业主向租户提供新的估计。在新的评估结果公布后, 租户根据上一年的估计每月支付分期付款的任何月份都应进行调整。租户应在收到新的估价后30天内向业主支付任何未付的款项。“任何多付的款项都应记入下一期到期的未来额外租金的贷方。,
在每个日历年结束后,房东应向租户提供有关日历年的实际费用或税款(视情况而定)以及费用调整或税款调整(视情况而定)的实际金额的报表,对于这样的日历年(每个这样的报表,一个“调节报表”)。如果租户在一个日历年实际支付的费用调整或税收调整的估计金额超过了最终为该日历年确定的相应费用调整或税收调整的实际金额(视情况而定),业主应将租户多付的任何款项用于支付到期的额外租金或下一期到期的租金,但前提是在确定多付的款项之前期限届满,业主应在先扣除应付的租金金额后将任何多付的款项退还给租户。如果估计的金额
租户在该日历年实际支付的费用调整或税收调整的金额少于相应的费用调整或税收调整的实际金额(视情况而定),对于该年度,租户应向房东支付,在收到相关的费用或税款(视情况而定)的对账报表后30天内,对有关日历年的任何少付款项。
第4.03节定义的费用:“费用”是指每个日历年与办公区域的运营,维护,维修和管理有关的所有成本和费用,包括大堂和电梯以及办公区租户共同使用的办公区公共区域的一部分,包括但不限于:
劳动力成本,包括,工资,薪金,社会保障和就业税,医疗和其他类型的保险,制服,培训,退休和养老金计划。
b.按办公区域总租金的3%收取的管理费(“管理费”)、配置和维护管理办公室的费用、会计和簿记服务、与租赁或收款活动无关的法律费用以及其他行政费用。业主有权自行或通过关联公司直接执行或提供本租赁项下的任何服务(包括管理服务)。除管理费外,房东提供的额外服务的费用不得超过如果房东与具有可比技能和经验的非关联实体就此类服务签订独立合同将产生的此类服务的费用。
c.服务费用,包括支付给服务提供者的金额以及零部件、用品、工具、设备和其他材料的租赁和采购费用。
D.业主为保险支付的保险费和免赔额,包括工人补偿、特殊形式损失财产保险、地震、一般责任、租金损失、电梯、锅炉和机械以及类似建筑物的业主通常不时投保的其他保险。
e.电费(定义如下)和水费, 气体, 煤炭, 蒸汽和下水道, 但不包括根据第10.01及10.02条由租客直接向业主偿还的费用。“电费”指:(i)业主支付的电费, 是否对公用事业公司或其他供应商;与能源管理计划有关的费用, 是否向公用事业公司或其他提供者提供;在法律允许的范围内, 业主就选择公用事业公司和就电力合同进行谈判和管理所提供的服务收取的费用。电费应按以下方式调整:(x)业主收到的补偿标准以上电费的金额应从电费中扣除;(y)业主支付给办公区域内各租户空间的电费(无论是单独计量的还是合理估计的), 应从电费中扣除。,
f.根据第9.02节对现有改进和设备进行维护、修理和更换的费用。
g.对沙利文中心进行的资本改进的摊销成本(与在日常业务过程中安装的替换部件或组件不同),其主要目的是减少运营费用成本或以其他方式提高沙利文中心的运营效率;或在本租赁生效日期之后,必须遵守已颁布或首先解释为适用于沙利文中心的任何法律。改善资本的成本应由业主在投资回收期(定义如下)内摊销。“回收期”是指
合理估计资本改进所节省的成本与资本改进的总成本相等所需的一段时间。
如果房东为沙利文中心支付费用, 是否根据互惠的地役权协议, 共同地区协议, 与非办公区租户或其他租户租赁, 分摊的成本和费用的一部分分配给办公区, 根据房东的合理判断, 应被视为费用。费用不应包括:资本改良成本(本第4.03节(g)中规定的除外);折旧;利息;抵押贷款的本金支付以及业主的其他非经营性债务;在业主获得保险或谴责收益补偿的范围内的维修或其他工作费用;与办公区域租赁空间有关的费用, 包括经纪佣金;租赁优惠, 包括减租和建筑补贴, 授予特定租户;与出售有关的费用, 办公区域的融资或再融资;罚款, 因迟缴税款(第4.04节中的定义)或费用而产生的利息和罚款;与构成房东的实体的创建和运营相关的组织费用;或任何罚款或损害赔偿“业主根据本租约向租户付款,或根据各自的租约向办公区域的其他租户付款。,
如果在任何一个日历年度内,办公区没有被完全占用,或者如果业主在日历年度内的任何时间都没有为办公区的可出租总面积提供服务,则费用应由业主选择,确定该办公区域的办公空间是否已全部占用,且业主在该日历年度内一直为该办公区域的可出租总面积提供服务。应通过适当调整受办公区占用情况变化影响的费用构成部分的成本来进行本款下的费用外推。
第4.04节税收定义:“税收”指:
a.对沙利文中心的所有不动产税和其他评估,包括但不限于对特殊改善区和建筑改善区的评估,全部或部分替代或补充任何此类税收和评估征收的税收和评估,以及沙利文中心根据任何互惠的地役权协议,公共区域协议或类似协议在任何房地产税收和评估中所占的份额;
b.业主使用的与沙利文中心的运营、维护和维修有关的所有个人财产或类似财产税;以及
c.与以上(a)和(b)中所述的任何税收负债的监控,控制或寻求减少有关的所有成本和费用,包括但不限于房东为遵守,审查和上诉税收负债而产生的任何成本。
没有限制, 税收不应包括任何收入, 资本征费, 专营权, 股本, 礼物, 遗产税或遗产税。如果在任何时候改变当时的征税方法,以使任何新的或附加的税, 评估, 利维, 征收或收费或其任何部分应对房东征收到位或部分替代税收或预期增加的税收, 或者除了税收, 并须以该建筑物或该建筑物的任何部分或该建筑物的租金或其他收入作为全部或部分的量度,或以该建筑物或该建筑物的任何部分或该建筑物的租金或其他收入为基础, 那么所有这些新的税收, 评估, 征费, 强制、强制或部分强制、强制、强制或强制 在一定程度上,他们是如此的衡量或基础, 应包括在税款中,但前提是该建筑物是房东的唯一财产,而房东从该建筑物获得的收入是房东的唯一收入。如果特殊评估是分期支付的, 该年度的税款应仅包括分期付款的金额以及该年度到期应付的任何利息。对于所有其他的房地产税, 该年度的税收,
在业主的选举中,包括该年度的应计、评估或其他费用,或该年度的应付款项,前提是业主的选举应在整个任期内始终如一地适用。如果在租期内的任何一年都获得了税收减免,那么该年的税收将追溯调整,房东应根据调整向租户提供抵免额(如果有的话)。
第4.05节考试权:租户可以, 在收到业主的开支结算单后90天内, 向业主发出书面通知(“审查通知”),告知租户打算审查业主有关年度的费用记录。在收到复查通知后的合理时间内, 业主应在正常营业时间内提供所有相关记录,以便租户进行审查。如果有任何记录保存在沙利文中心办公室以外的地方, 租户可以在其他地点查看记录,也可以支付复制记录并将其运送到沙利文中心办公室的合理费用。租户必须利用自己的全职, 受薪雇员或在检查混合用途建筑物的费用记录方面有经验的独立注册会计师(“CPA”), 哪个注册会计师必须得到业主的合理的事先批准。如果租户保留了注册会计师来审查房东的记录, 注册会计师不得以或有费用为基础获得补偿。收到检查报告后, 租户将向房东提供一份副本和所有随附的数据。承租人应独自承担所有费用, 考试所发生的费用和开支。在所有记录提供给租户后的六十(60)天内, 租户有权向业主发出书面通知(“异议通知”),合理详细地说明对业主该年度费用说明书的任何异议。如果承租人未能在上述六十(60)天的期限内向房东发出异议通知,或未能在上述九十(90)天的期限内向房东提供复审通知, 承租人应被视为已不可撤销地批准业主的费用声明,并应被禁止就该年度的费用提出任何索赔。如果租户及时向房东提供了异议通知, 业主和租户应真诚合作,解决租户异议通知书中提出的任何问题。如果业主和租户在问题中确定当年的费用低于报告的金额, 房东应向房客提供一笔抵减下一期租金的信贷,金额为房客多付的款项。同样, 如果业主和租户确定该年度的费用高于报告的金额, 承租人应在30天内向房东支付任何未付的款项。任何考试所涵盖的时间不得超过紧接考试之前的一个日历年。承租人审查的记录和审查的结果应由承租人保密。本部分涉及审查权利的所有协议,承租人均将予以保密, 在检查中获得的任何信息以及根据本协议进行的任何检查的结果, 并应促使进行上述检查的雇员或注册会计师对这些信息保密。房东可能会要求房客和房客的代理人执行一份所谓的“保密信”。“在任何情况下,除非租户已经支付并继续支付到期的所有租金,并以其他方式履行其在本租约下的义务,否则不得允许租户查看房东的记录或对任何费用声明提出异议。,
第4.06节暖通空调收费:除第10.01及10.02条所载的电费外,租客须按第10.01及10.02条所载的规定,为处所的高压交流电服务缴付费用。附件f 附件。
第4.07节费用上限:尽管本租约中有任何相反规定,承租人有义务支付费用(不包括除雪费用、保险、水电费和其他不可控制的费用):
(i)在基准年之后的第一个日历年,不超过(a)支出(不包括除雪费用、保险费)的百分之一百零五(105%)的数额,
(b)基年的费用(不包括除雪、保险、水电费和其他不可控制的费用);以及
在基年之后的第二个日历年,不超过基年支出(不包括除雪、保险、水电费和其他不可控费用)的(a)105%(105%),减去基年的(b)费用(不包括除雪、保险、水电费和其他不可控制的费用);以及
在基年之后的第三个日历年,不超过支出(不包括除雪、保险费用)的百分之一百零五(105%)的百分之一百零五(105%),(b)基年的费用(不包括除雪、保险、水电费和其他不可控制的费用);以及
此后的每个日历年,租户支付费用的义务(不包括除雪费用、保险、水电费和其他不可控制的费用)应按照上述规定的相同方式设定上限。
例如,假设以下情况:基准年的实际支出(不包括除雪、保险、水电费和其他不可控制的成本)为2.00PSF,在接下来的三个日历年的实际支出为:2.08PSF;2.16PSF;和2.45PSF;然后是租户的支出义务,每个日历年的相应上限如下:(i)基准年--0.00美元的费用,没有上限;(ii)基准年之后的第一个日历年--0.08PSF/年的费用以及每年$.10PSF的上限(即$2.00PSF的105%=$2.10PSF减$2.00PSF);基准年之后的第二个日历年-$.16PSF的费用和$.21PSF/年的上限(即$2.00PSF的105%=$2.21PSF的105%)负号2.00美元PSF);基准年之后的第三个日历年-0.32美元PSF的费用和0.32美元PSF/年的上限(即2.00美元PSF的105%=2.32美元PSF的105%)负号PSF2.00美元)。
如果上述语言与示例之间存在冲突,或者上述语言中存在歧义,则示例应进行控制。
第五条。
遵守法律;使用
处所只可作准许用途,不得作任何其他用途。承租人不得将处所用于任何目的或以任何方式使用或允许其使用,这些目的或方式是非法的,对人身或财产构成危险的,或在房东的合理意见下,干扰沙利文中心的任何其他承租人或干扰沙利文中心的运营。租户应遵守所有法律,包括《美国残疾人法》,有关租户的业务经营以及场所的使用,条件,配置和占用。租户在收到通知后10天内,应向房东提供其收到的有关违反或涉嫌违反任何法律的通知的副本。承租人应遵守所附的规则和条例。附件e 以及业主不时采用并以书面形式交付给承租人的其他合理规则和规定。租户还应使其代理人,承包商,分包商,雇员,客户和分租户遵守所有规则和规定。业主在执行各项规章制度时,不得歧视承租人。
承租人有权在24/7/365的基础上进入建筑物。
第六条。
保证金
在执行本租约时,承租人应向房东交付金额为1,750,000.00美元的不可撤销的无条件备用信用证(“信用证”)。信用证应由金融机构签发,其形式和内容应为业主合理接受。信用证应在一定程度上规定:在开证人至少提前三十(30)天书面通知业主之前,信用证不会被取消;在这种情况下,信用证不会被取消。该信用证至少在其到期日前三十(30)天没有续签,业主可以在信用证终止前的任何时间提取该信用证。如果承租人没有违约,承租人有权保留/减少信用证,使其在以下期间反映以下金额:
|
|
|
|
|
|
|
25TH 到36岁TH 月份
|
$1,458,334.00 |
|
37TH 到48岁TH 月份
|
$1,166,668.00 |
|
49TH 到60岁TH 月份
|
$875,002.00 |
|
61St到72岁ND 月份
|
$583,336.00 |
|
73RD 通过84TH 月份
|
$291,670.00 |
信用证不是租金的预付款,也不是租户对损害赔偿责任的衡量标准。业主可以在不影响任何其他补救措施的情况下,不时使用信用证的全部或部分来支付逾期租金或解决租户的任何未解决的违约问题。如果业主如此申请信用证,承租人应按要求将信用证恢复到原来的金额。业主应在确定租户的费用调整和税收调整后45天内将信用证退还给租户,该期间发生的日历年为841个月。如果业主转让其在房产中的权益,业主可以将信用证转让给受让人,转让后,业主对信用证的返还不承担进一步的责任。
第七条。
服务
第7.01节业主提供的服务:业主应向租户提供以下服务:
a.该处所所在每层厕所的供水服务;
b.在正常的工作时间内,在可比建筑物的标准温度或政府当局要求的温度和数量下,按季节提供暖气和空调。在业主合理要求的提前通知下,租户有权在正常营业时间以外的时间接受高压空调服务。承租人应支付业主的额外服务费用,这是业主不时合理确定的;
c.第9.02节所述办公区的保养和维修;
工作日公共区域的看门人服务。在工作日为该场所提供看门人服务。如果租户的使用、地板覆盖或其他改进需要的特殊服务超过了办公区域的标准服务,则租户应单独支付可归因于任何其他清洁服务的额外费用;
e.电梯服务;
f.按照并遵守第十条的条款和条件,向办公场所供电,以供一般办公之用;
g.为办公区的正常运作而合理需要或适当的其他服务。
第7.02节未能提供:业主未能提供服务,或由于适用法律而中断或终止服务,任何设备发生故障,进行维修,改进或改建,或发生任何事件或导致业主无法合理控制地提供水,煤气,电,以及提供给建筑物或在建筑物中使用的其他公用事业(“服务失败”)不应使房东对租户承担责任,不会导致租金减少,也不会免除租户履行任何契约或协议的义务。但是,如果由于房东造成的服务故障,导致该场所或该场所的重要部分在超过连续五(5)个工作日的时间内无法使用,那么租户将作为其唯一的补救措施,则有权在第6(6)天起的期间内收到根据本协议应支付的租金的减免额。TH )服务故障的连续工作日,并在服务已恢复之日结束。如果整个房屋没有因为服务失误而变得不能使用,那么承租人有权获得的减免额应根据不能使用且未被承租人使用的房屋的百分比按比例分配。但是,在任何情况下,业主都不应对因保安服务、人员或设备的故障或与之相关的任何损失或损坏,包括承租人财产的盗窃(第十五条中的定义),向承租人负责。如果由于持续三十(30)天以上的服务失败而使整个房屋无法使用,并且服务失败是由房东造成的,则承租人有权立即终止本租约。
第八条。
租赁权益改善/津贴
第8.01节租赁权益的改善。所有由租户在物业内建造的改善工程(统称, “租赁权改良”或“承租人的工作”)应由房东拥有,并应保留在房屋内,而不向承租人提供补偿。然而, 房东, 在租赁权益改善安装之日起六十(60)天内,以书面形式通知租户, 可以要求租户删除由租户提供或为租户的利益而提供的任何租赁权益改进,并且房东决定租户应删除(统称为“必需的可移动资产”)。没有限制, 双方同意,所需的可移动物品可包括内部楼梯, 可拆卸的分区, 高架地板, 地板加固, 保险库, 滚动文件系统和任何类型的结构更改和修改, 特殊的灭火系统和设备。业主指定的需要搬迁物,由承租人在终止日期前搬走。承租人对该房产的占有应遵守本租约的所有条款和条件, 包括按租期最后一个月的有效租金每日支付租金的义务。承租人应修复因安装或拆除所需的可移动物品而造成的损坏。承租人未及时移走所需的动产或者进行相关的修缮的, 房东, 由租户承担费用, 可移走和处置所需的可移动财产,并进行所需的修理。尽管有上述规定, 租户, 当它请求批准一项拟议的变更(定义见第9.03节)时, 可以书面要求业主告知租户,该变更或变更的任何部分是否将被指定为必需的可移动的。在收到租户的要求后十(10)个工作日内, 业主须以书面通知租客更改的部分, 如果有的话, 将构成必需的可移动的财产。业主向租户声明,该物业的天花板上有石棉(“ACM”),除非适用的环境法要求将其拆除, 须留在处所内。如果适用的环境法律要求由于租户的原因而删除上述含石棉材料,
工作,或者如果租户的工作扰乱了中心的任何ACM,因此,必须根据适用的法律删除ACM,租户应删除与租户的部分工作相同的内容,并符合适用的环境法。如果中心中的任何其他租户在其空间中执行的工作干扰了场所内的ACM,则房东将促使该租户遵守有关在场所内删除所述ACM的适用法律。
第8.02节租户的工作计划。在开始租户的工作之前, 承租人应向业主提供业主可合理接受的平面图和说明书;业主可合理接受的承包商名称(前提是业主可以指定与沙利文中心系统有关的特定承包商);合同副本;必要的许可和批准;业主合理要求的承包商和分包商保险金额的证据;以及业主合理要求的任何履约担保。租户契约,并同意竞标总承包商谁将执行租户的工作。承租人有权在365年7月24日使用建筑物的货运电梯来提升承租人的工作材料,只要承租人首先与房东安排使用该电梯。承租人也有权在承租人与房东约定的时间内使用建筑物装卸码头,费用由房东按惯例收取。计划和计划的变更 在办公区域执行工作的规定和程序, 在合理必要的范围内,以避免对办公区的使用者造成干扰, 有权指定执行承租人工作的时间。如果业主认为结构工程师有必要对租户的平面图进行审查, 房东有权这样做, 费用由租户承担。租户应保证租户的工作符合所有保险要求和法律。“业主对租户工作的认可不应成为业主的陈述或保证,即租户的工作符合适用的法律或足以供租户使用。, 规范还必须提交给业主的批准。租户的工作应按照所有法律,并以良好和工人般的方式使用新材料建造,其质量至少应等于业主指定的作为办公区域最低标准的质量。业主可指定合理规则
第8.03节津贴。只要承租人不拖欠这份租约, 并受下一段所述的限制, 业主须向租客的承办商及物料承办商付款, 作为“施工津贴”,一笔高达5258025.00美元(75.00美元)的款项将用于规划, 建筑/工程费, 拆除, 租户的工程建设成本, 和建设管理/监督费, 家具, 固定装置和设备费用以及移动费用(统称为, “实际建设成本”), 上述款项应直接支付给承租人的承包人。(a)承租人在处所内完成的所有承租人工作,均应按照本租约和承租人图则的规定基本完成(b)承租人应为承租人的工作向房东提供一份经宣誓的标准“业主”声明书/宣誓书, (c)租户应•已向业主提供了一份经宣誓的“总承包商”声明/誓章,以证明租户的工作;(d)租户应已向业主提供了所有总承包商的最终留置权豁免, 作为租户工作的一部分提供服务或材料的分包商和材料商;(e)租户应向房东提供由适当的政府实体颁发的房屋占用证书(或同等的文件)的副本;(f)租户应已在AutoCAD格式的光盘上向业主提供了租户工作的“完工”图,
承租人有权要求业主每月向承租人的承包商和材料商支付一部分建筑津贴,条件是承租人遵守上文(b)、(c)和(d)款的规定(前提是为了满足本【d】款的要求,承租人应向业主提供所有总承包商、分包商和作为承租人工作的一部分提供服务或材料的材料的部分留置权豁免)以及承租人实际完成的工作的金额和
在要求付款的房地内安装的设备超过了所要求的建筑津贴的数额;此外,前提是租户遵守上文(a)至(f)款关于建筑津贴最后部分的规定。
租户和业主应在业主的产权保险公司的办公室建立标准的施工托管(“施工托管”),目的是业主为施工津贴提供资金,租户支付租户的工作费用。业主和租户应遵守施工托管的规定,租户应支付100%的费用。所有的支付租户的工作应通过建设代管资金。除非业主的贷款人或权益合伙人要求,施工托管将不要求(i)所有权公司在每次获得部分施工津贴时都签发日期的机械师留置权背书,或有一名检查建筑师批准每次抽签;但前提是(i)和/或需要上述条件,费用由承租人承担。
尽管本合同有任何相反规定,承租人应将不超过下列数额的建筑津贴用于以下实际建筑费用:(一)788703美元的建筑管理费/监督费;(二)1402140美元的家具、固定装置和设备费用及搬迁费。
在开始建造租户的工作之前,租户应向房东提供预算,显示租户的工作的预期成本。如果承租人的工程预算表明承租人的工程费用超过了建筑津贴的金额,在房东有义务为建筑津贴的任何部分提供资金之前,承租人应使用其自有资金,通过建筑托管,支付超出建筑津贴和租户支付的部分租户工作的费用,应是房东有义务支付建筑津贴的一个条件。
第九条。
修理、改建和清洁
第9.01节租户的维修义务:承租人应自行承担费用,迅速对本租赁合同项下不属于业主明确责任的处所进行所有维护和维修,并应保持处所的良好状态和维修,合理的损耗和伤亡损失除外。租户的维修义务包括但不限于:
a.地板和墙面;
b.内部隔断;
c.门、门锁、铰链和门框;
d.拆除墙的内侧;
e.电子、电话和数据电缆及相关设备,包括由承租人安装或专为承租人利益安装并位于房地或建筑物其他部分的管道(统称为“电缆”);
f.辅助空调设备、私人淋浴和厨房,包括热水炉、管道和专为租户服务的类似设施;以及
由租户聘用的承包商进行的改建,包括相关的空调平衡。所有工作都应按照下面第9.03节中描述的规则和程序进行。
如租客在业主通知后超过15天仍未修葺该处所(但如遇紧急情况,无须发出通知),业主可作出修葺,承租人应在收到发票后30天内向业主支付合理的修理费,并支付相当于修理费5%的管理费。
第9.02节业主的维修责任:业主应承担费用,保持和维护良好的维修和工作状态,并在以下情况下进行维修和进行维护:
a.沙利文中心的基础和结构要素;
b.一般服务于办公区域的机械(包括高压交流电,但不包括辅助高压交流电设备和系统)、电气、管道和消防/生命安全系统;
c.共同领域;
苏利文中心的屋顶;
e.办公区域的外窗;以及
为办公区域服务的电梯。
在收到需要维修的通知后,房东应立即进行维修(考虑到维修的性质和紧迫性),由房东负责。
第9.03节变更:未经业主的书面同意,承租人不得对房屋进行改建、增建或改善,也不得在该房屋或沙利文中心的其他部分安装任何电缆(统称为“改建”),在每种情况下,该同意不得被不合理地拒绝或附带条件,或延迟。但是,任何符合以下所有条件的变更(“表面上的变更”)都不需要业主的同意:
a.具有化妆性质,如油漆、壁纸、挂画和安装地毯;
b.不是可见的外部的场所或沙利文中心;
c.不会影响沙利文中心的系统或结构;以及
D.不要求在墙内或天花板以上或在房地地板上进行工作。
然而, 即使在不需要同意的情况下, 外观更改的执行应遵守本第9.03节的所有其他规定。在开始工作之前, 承租人应向业主提供业主可合理接受的平面图和说明书(外观上的改动除外);业主可合理接受的承包商名称(前提是业主可以指定与沙利文中心系统有关的特定承包商);合同副本;必要的许可和批准;业主合理要求的承包商和分包商保险金额的证据;以及业主合理要求的任何履约担保。更改的计划和规格也必须提交给业主的批准。改建工程应采用质量至少与业主指定为办公区域最低标准的质量相当的新材料,以良好和工人般的方式进行。房东可以指定合理的规则, 在办公区域执行工作的规定和程序, 在合理必要的范围内,以避免对办公区的使用者造成干扰, 有权指定,
可以进行修改的时间。租户应在收到业主为第三方审查租户的非装饰性改建计划而支付的金额的发票后30天内偿还业主。完工后,租户应提供“完工”图则(外观更改除外)、完工宣誓书、留置权的全部和最终豁免,以及涵盖所有劳动力和材料的已收帐单。租户应保证变更符合所有保险要求和法律。业主对变更的批准不应是业主对变更符合适用法律或足以供租户使用的陈述或保证。
第十条。
电气服务
第10.01节标准使用计费:承租人在处所内使用的电力,须由承租人以下任一方支付:
a.在业主开出账单后30天内,由租户单独向业主收取费用,或由适用的公用事业公司单独收取费用,由租户直接支付。最初, 该处所的电力服务将透过现有的电力组件供应,并可, 在任期内, 由一家或多家发电公司提供, 输电和配电服务, 电费可以由几个不同的组成部分组成,也可以由这类服务的单独收费组成, 比如一代, 分销和搁浅成本费用。业主有权选择任何一间为该物业提供电力服务的公司, 将办公区和办公场所的电气服务与其他物业和建筑物的电气服务结合起来, 通过中间商和(或)买方团体购买电力,并改变电力的提供者和购买方式;但在任何情况下,电费不得超过建筑物所在地区的现行费率;或,
由公共事业单位直接计费.
第10.02节过度用电:租户使用的电力服务,无论在电压、额定容量、超出正常营业时间的使用或总负荷方面,均不得超过业主认为是办公区标准的范围。如果租户要求允许使用多余的电力服务,房东可以拒绝同意,或者可以在房东合理选择的条件下同意(包括但不限于安装公用事业服务升级,电表,亚表,空气处理器或冷却装置),额外的使用(在法律允许的范围内),安装和维护费用应由租户支付。业主有权单独为处所计量用电情况,并有权通过测量或其他公认的方法计量用电情况。
第十一条。
由业主填写
房东, 它的代理人, 承办商及代表可进入该处所视察或展示该处所, 清洁和修理, 对房产的改建或增建, 并进行或协助修理, 沙利文中心任何部分的改建或扩建, 包括其他租户的房产。除在紧急情况下或在正常营业时间后提供清洁和其他沙利文中心服务外, 业主应向租户提供合理的提前入住通知, 可口服给药。如为保障租客及其雇员的安全而有合理需要, 业主有权暂时关闭全部或部分房产以进行维修, 修改和添加。然而, 除非在紧急情况下, 如果工作可以在周末和正常营业时间后合理完成,房东将不会关闭该场所。“房东的进入不应构成建设性的驱逐,也不应使房客有权获得减租或减租。,
第十二条。
转让和转租
第12.01节需要同意:除了允许的转移(在第12.05节中定义)。(以下),未经房东事先书面同意,承租人不得转让,转租,转让或抵押本租赁中的任何权益,也不得允许任何第三方使用房屋的任何部分(集体或单独的“转让”),该同意不应受到不合理的限制,延迟,如果房东不选择根据以下第12.02条行使其终止权,则可扣留。在没有限制的情况下,我们同意,在以下情况下,房东的同意不应被认为是不合理的拒绝:
(a)拟受让方的财务状况不符合业主用于选择具有类似租赁义务的办公区租户的标准,或业主认为合理的信誉不佳;
b.考虑到其他租户的业务和沙利文中心的声誉,拟议受让人的业务不适合沙利文中心,或将导致侵犯另一租户的权利;
c.拟受让方为政府机构;
d.承租人未完全遵守本租约中的任何条款;或
E.由于拟议的转让,沙利文中心或房地的任何部分都可能受到其他或不同法律的约束。
承租人无权因房东不合理地拒绝同意拟议的转让而获得金钱损失,承租人的唯一补救措施是通过特定的履行或宣告性判决来执行任何此类规定。任何试图违反本条的转让,应由业主选择,是无效的。业主对一次或多次转让的异议,不应视为业主对任何后续转让的批准权的放弃。在任何情况下,任何转让或许可转让均不得解除或免除承租人在本租约下的任何义务。
第12.02节请求同意:作为请求房东同意转让的一部分,租户应向房东提供财务报表(形式,内容和房东可能合理要求的经证明的准确性),一份完整的拟议转让副本,转租和其他合同文件以及房东可能合理要求的其他信息,包括信用和声誉参考。房东应在收到所需信息和文件后30天内,以书面形式通知租户:
a.以业主合理指定的方式签署同意书,同意转让;或
b.合理地拒绝书面同意转让;或
c.除许可转让的情况外,对承租人拟转让或转租的部分,行使终止本租赁的权利。任何此类终止应在租户请求同意的转让的建议生效日期生效。
即使业主不同意转让,只要业主的实际合理成本和费用合理,租户应在业主提出同意请求的同时,向业主支付750.00美元的审查费用,用于业主对任何允许的转让或要求的转让进行审查
(包括合理的律师费)超过$750.00,租户应偿还业主的实际合理成本和费用,以代替固定的审查费。
第12.03节经济利益:在房东同意转让的情况下,租户应向房东支付因转让而获得的全部租金的50%,该租金超过了租户在转让所涵盖的部分房屋和期限内应向房东支付的租金。承租人应在收到多余对价后五(5)天内,向业主支付业主应分担的任何额外对价。租户可以从超出部分中扣除所有合理的和习惯的费用,直接产生的租户归因于转让(业主的审查费除外),包括经纪费,律师费和建筑费用。如果租户在货币违约(定义在下面的14.01节),业主可以要求所有转租付款直接支付给业主,在这种情况下,租户应收到的任何付款(减去业主的任何超额份额)的租金抵免额。
第12.04节其他转移:除以下有关许可转让的规定外,如果承租人是公司,有限责任公司,合伙企业或类似实体,并且,如果在任何时候拥有或控制大多数有表决权的股份/权利的实体因任何原因(包括但不限于合并,合并或重组)而发生变化,则这种所有权或控制权的变化应构成转让。如果承租人或承租人的担保人(如果有的话)是其未偿还股票在公认的证券交易所上市的实体,则上述规定不适用。
第12.05节允许的转移:承租人可以通过购买,合并,合并或重组的方式将其在本租赁下的全部权益转让给承租人的继承人,而无需房东的同意,前提是满足以下所有条件(“允许的转让”):
a.承租人遵守本租约的所有条款;
b.承租人的继承人应拥有和控制承租人的全部或基本全部资产;
c.承租人的继承人的净值应至少等于在本租约生效之日的承租人净值或在拟议的购买、合并、合并或重组前一天的承租人净值中的较高者;
d.承租人继承人的使用与许可的使用相同;以及
租户应就购买、合并、合并或重组事宜向业主发出书面通知。房客给房东的通知应包括信息和文件,表明上述每一项条件已得到满足。如果业主提出要求,承租人的继承人应签署一份商业上合理的承担协议;
承租人仍有责任履行承租人在本租约下的义务。
第十三条。
留置权
承租人不得允许技工或其他留置权被放置在沙利文中心、处所或承租人的租赁权益上,与任何由承租人完成或据称为承租人的利益而完成的工作或服务有关。如有留置权,租客须在业主通知其提出留置权后20天内,通过解决导致留置权的索赔,或以业主及其抵押权人满意的方式对留置权进行担保或保险,或以适用的留置权法律规定的方式解除留置权,完全解除留置权。如果承租人未能解除留置权,那么,除业主的任何其他权利或补救措施外,业主可以对留置权进行担保或保险,或以其他方式解除留置权
留置权。承租人应在收到房东的发票后五(5)天内,偿还房东为保证或保险留置权或解除留置权而产生的任何费用,包括但不限于合理的律师费(如果并在法律允许的范围内)。
第十四条。
弥偿及申索的放弃
第14.01节租户赔偿:除非是由于房东或任何房东关联方的疏忽或故意的不当行为(定义如下)造成的, 承租人应作出赔偿, 保护和控制地主, 它的受托人, 成员, 校长, 受益人, 合作伙伴, 军官们, 董事, 员工, 抵押权人(定义见第16.01节)、律师、代理人和任何受托人, 成员, 经理人, 校长, 受益人, 合作伙伴, 军官们, 董事, 员工, 上述任何一方的律师和代理人及其各自的继承人和受让人, 包括但不限于, 一个南方的Propco, L.L.C.;南州街一号, L.L.C.;一个南道富的投资者, L.L.C.;One South State Street Developer LLC;One South State Street Land Co., Inc.;UBS Real Estate Securities Inc.;New Heights Sullivan LLC;WRT One South State Lender, WRT-Elad One South State Equity, L.P.;宣威-威廉姆斯公司;Joseph Freed and Associates LLC;和合伙人, 军官们, 董事, 成员, 经理人, 上述所有人及其任何继承人或受让人以及此类合伙人的任何成员的代理人和雇员, 成员, 经理人, 军官们, 代理人和雇员及其任何继承人或受让人(“房东关联方”)不承担任何责任, 义务, 损害赔偿, 处罚, 索赔, 行动, 成本, 费用和开支, 包括, 没有限制, 合理的律师费和其他专业费用(如果并在法律允许的范围内), 可能会被强加于, 由业主或任何业主关联方承担或主张,以及由于租户的任何作为或不作为(包括违反法律)而在房屋中发生的任何第三方人身伤害和第三方个人财产损失索赔, 承租人的关联方(定义如下)或承租人的任何受让人, 承包商或许可证持有人。在法律禁止的范围内或在法律责任的范围内,本节中的任何内容均不应视为要求承租人赔偿房东, 伤害, 损失, 成本, “损害或费用是由房东的严重疏忽或故意不当行为引起的。,
第14.02节房东赔偿:除非是由于租户或任何租户关联方的疏忽或故意不当行为(定义如下)造成的, 房东应赔偿, 保护和控制租户, 它的受托人, 成员, 校长, 受益人, 合作伙伴, 军官们, 董事, 员工, 律师, 和代理人(“租户关联方”)不受任何第三方人身伤害和第三方个人财产责任的影响, 义务, 损害赔偿, 处罚, 索赔, 行动, 成本, 费用和开支, 包括, 没有限制, 合理的律师费和其他专业费用(如果并在法律允许的范围内), 可能会被强加于, 因业主的作为或不作为(包括违法行为)而引起的或与之相关的,由承租人或任何承租人关联方引起的或针对承租人或任何承租人关联方提出的, 业主的关联方或任何业主的承包商。在法律禁止的范围内或在责任范围内,本节中的任何内容均不应视为要求房东赔偿承租人, 伤害, 损失, 成本, “损坏或费用是由租户的严重疏忽或故意不当行为引起的。,
第14.03节免责声明:在法律允许的范围内,业主和业主相关方不应对所有对租户业务损失或损害的索赔,或对租户财产或任何人的财产的损失,盗窃或损害的索赔承担责任,并且租户放弃索赔,由于风或天气原因,任何洒水器、暖气或空调设备、任何电线或任何气体、水或蒸汽管发生故障,任何下水管道或落水管出现堵塞,任何水箱、抽水马桶爆裂、渗漏或运行,屋顶、天窗、楼梯、门道、窗户、步道或任何其他地方或其上或附近的地方的排水管或其他管道、水、雪或冰
建筑物,业主或业主关联方以外的任何一方的任何作为或不作为,以及任何不在业主合理控制范围内的原因。承租人应根据下文第十五条为自己投保此类损失。
第十五条。
保险
第15.01节租户保险:租户应购买和维护以下保险,所有保险范围应为主要和非缴费的,(“租户保险”),由其单独承担费用:
a.商业一般责任保险,适用于房地/业务、产品/已完成的业务、合同责任(为第14.01节所载的赔偿提供保险)和人身伤害/广告伤害,适用于业主不时接受的所有关于伤害、死亡和财产损害的索赔、要求或诉讼,但对于一人或多人受伤或死亡以及财产损失,每次事件不低于5,000,000美元,每个地点不低于5,000,000美元,加上每次事件和每个地点的“保护伞”或“超额”责任保险总额至少为3,000,000美元;
b.特殊形式的损失原因(“一切险”)财产和业务中断保险,包括洪水和地震保险,以重置成本价值全额投保,并附有重置成本背书,涵盖承租人的所有个人财产,包括但不限于承租人的商业固定装置、设备、家具,房屋内或周围的地板和墙布及其他个人财产(“承租人的财产”);
c.根据房舍所在国的要求和适用法规可能要求的数额提供工人赔偿保险,包括放弃保险人对第15.01(e)节规定的任何额外被保险人进行赔偿的权利;以及
雇主责任保险,每次至少1,000,000.00美元。
E.任何为租户投保的公司,其保单持有人的评级应不低于当时最新一版的《A.M.最佳公司评级指南》中规定的“X级”。所有商业一般责任保险单应指明承租人为指定的被保险人和业主(或任何继承人), 房东关联方, 房东的物业经理, 以及他们各自的成员, 校长, 受益人, 合作伙伴, 军官们, 董事, 员工, 和特工, 及业主的其他指定人作为该等指定人的权益出现, 作为额外的被保险人。所有房客保险的保险单都应附有背书,如有任何变化,保险人应至少提前30天书面通知房东及其指定人, 取消, 保险终止或失效。承租人应在生效日期的较早日期之前向房东提供一份证明承租人已投保的保险证书,或以任何理由向兴高采烈的承租人提供对该房产的占有, 并且在保险范围到期之前至少续保15次。尽管本租约中有任何相反的规定, 如果承租人在接到业主通知后五(5)天内没有遵守本条的要求, 房东可以获得这样的保险,并保持同样的效果, 且承租人应在业主要求时,向业主支付上述保险费的费用,作为额外租金,
第15.02节房东的保险要求:在此期间,房东应按照房东满意的条件(i)与办公区域有关的责任保险,与公司一起携带或安排携带(i),但每次发生的费用不少于2,000,000美元,一人或多人受伤或死亡的总费用不少于2,000,000美元,以及每次事故的财产损失保险或
火灾损失和其他风险,包括100%的重置成本,包括故意破坏和杂项恶作剧背书,以及租金保护保险,以及房东认为适当的其他保险。如果业主提供的责任保险包含可扣除费用或自保保留计划,则业主为此类可扣除费用或自保保留计划支付的费用,包括合理的准备金,应被视为责任保险费用的一部分。业主根据第15.02条购买的保险费用应包括在费用中。
第15.03节不代替义务的保险:除非有相反的明确规定,任何一方的保险限额不应限制该一方在本租约下的责任。
第十六条。
放弃代位权
尽管本租约中有任何相反的规定, 业主和租户特此放弃,并应促使其各自的保险公司放弃任何和所有的追索权, 索赔, 对另一方及其各自受托人的诉讼或诉讼理由, 校长, 受益人, 合作伙伴, 成员, 军官们, 董事, 特工, 和员工, 对于业主、租户或任何一方可能发生的任何损失或损害, 通过或通过房东或房客, 视情况而定, 关于承租人的财产, 这栋楼, 前提, 沙利文中心对大楼的任何扩建或改进, 办公场所, 沙利文中心, 或其任何内容, 包括所有的追偿权, 索赔, 由于业主或任何业主相关方的疏忽或租户或任何租户相关方的疏忽而引起的诉讼或诉讼原因, 哪些损失或损害是(或可能是), “本租约所要求的保险是否已包含在保险范围内;但这种放弃不应扩展到任何一方保险的任何免赔额,并且每一方仍有权就其过失或不当行为从另一方获得补偿。,
第十七条。
伤亡损失
第17.01节业主的终止权:如果房屋的全部或任何部分被火灾或其他伤亡损坏,租户应立即书面通知业主。在因火灾或其他伤亡而使处所的全部或部分重要部分无法维持的任何一段时间内,对于处所无法维持且承租人未使用的部分,租金应予减收。在以下情况下,业主有权终止本租约:
建筑物或沙利文中心的任何部分将被损坏,因此需要对建筑物或沙利文中心的其他部分进行实质性的更改或重建(无论该场所是否已被损坏);
b.法律不允许业主以与火灾或伤亡前基本相同的形式重建该建筑或沙利文中心的任何其他建筑;
c.房舍已遭受重大损坏,而且在事故发生之日还有不到两年的期限(不包括任何未行使的延期选择权);或
任何抵押权人都要求将保险收益用于支付抵押债务。
业主可行使其权利,以书面形式通知承租人在事故发生之日起60天内终止本租约。
如果房东不终止这份租约, 业主应开始并继续进行合理的努力,以在业主保险范围内修复和恢复建筑物和租赁权益的改善(不包括租户违反本租约进行的任何改建);前提是, 如果业主合理地确定伤亡是由租户的疏忽或故意不当行为引起的火灾或伤亡, 租户关联方或任何租户的受让人, 承包商、许可证持有人或被邀请人, 业主恢复租赁权益的改善可能是以收到租户支付的任何扣除额为条件的。然而, 在任何情况下,业主都不应被要求花费超过业主收到的保险收益。业主不应对因火灾或其他伤亡事故或因损坏的修复而对承租人的财产或承租人的业务造成的任何损失或损害承担责任。业主和租户特此放弃与本条所述事项有关的任何法律规定, 并同意他们各自对损坏或毁坏房屋的权利应是本租约中明确规定的权利,
第17.02节修理和修复;终止权:如因火警或其他伤亡而使处所的全部或任何部分不能维持,业主须在合理的时间内,使业主选择的建筑师或总承包商向业主和租户提供书面估算,以使用标准工作方法(“完工估算”)基本完成房屋的修复和恢复并使房屋可使用所需的时间。如果完工估计数表明,自开始修复之日起270天内,该房产不能继续使用,则不论上文第17.01节有何规定,业主有权在收到竣工估价书后90天内,以书面形式通知承租人终止租赁。
如果业主被要求,或选择按照上述规定进行重建,但未能在开始修复之日起270天内完成,则承租人有权在给予业主至少三十(30)天的书面通知后终止该租赁,该通知必须在修理和恢复开始之日起270天内和修理和恢复开始之日起360天内发给房东。如果业主未能在上述三十(30)天到期前基本完成此类重建,则本租约应自第十日(30)天起终止,并且任何一方均不对另一方承担本协议项下的任何义务。
第十八条。
谴责
如果房屋的全部或任何重要部分被依法征用或征用作任何公共或准公共用途,任何一方均可终止本租约, 通过征用域或私人购买来代替其(“获取”)。如果占用了办公区或沙利文中心的任何部分,导致该办公区或沙利文中心的其余部分不适合使用,则房东也有权终止本租赁。为了行使其终止租赁的权利, 房东或房客, 视情况而定, 必须在拍摄后45天内向对方提供书面的终止通知。任何此类终止应自实际采取之日起生效。如果这份租约没有终止, 沙利文中心可出租的面积, 办公区可出租的面积, 处所的可出租平方英尺面积及承租人的比例份额, 如果适用, 进行适当的调整。另外, 被征用或废弃的房产的任何部分的租金应在本租赁的未到期期限内减除,自该部分房产的实际征用发生时生效。所有的赔偿都是因为一次偷窃, 或销售收入, 应为业主的财产, 承租人明确放弃的任何获得补偿或收益的权利。然而, 租户可以单独提出索赔,费用由租户的财产和租户的合理搬迁费用承担, 前提是提交索赔不会减少业主本应获得的赔偿金,
第十九条。
违约事件
发生以下任何违约事件时,承租人应被视为本租约的违约:
第19.01节货币违约:但是,如果在向承租人发出书面通知(“货币违约”)后五(5)天内仍未支付全部或任何部分的租金,如果租户在任何连续12(12)个日历月内拖欠租金超过两(2)次,则无需发出此类通知。
第19.02节非货币违约:承租人未遵守本租约中任何条款、约定、条件和协议(货币违约除外),由承租人订立或遵守,如果在向承租人发出书面通知后三十(30)天内未纠正此种违约行为。但是,如果租户不遵守规定的情况不能在三十(30)天内合理地得到纠正,则应允许租户有合理必要的额外时间(不超过60天)来纠正这种情况,只要:
a.租户在三十(30)天内开始修复故障,并且
B.租户努力采取行动,纠正错误,并在合理的额外期限(不超过60天)内使租户重新遵守租约。
但是,如果租户不遵守规定造成了危险情况,则必须在通知租户后立即纠正这种情况。此外,如果业主在任何12个月期间内两次通知租户未遵守租赁的任何特定条款,规定或契约,则租户随后违反该条款,规定或契约的行为应由业主选择,是不可救药的租户违约事件。
第19.03节无力偿债:承租人或任何担保人无力偿债,欺诈债权人进行转让,或为债权人的利益进行转让,或书面承认无力在到期时偿还债务。
第19.04节接收器;Levy:接管人或类似的官员被任命为租户或担保人的业务,财产,事务或收入(如果有的话);或租户在本租赁中的权益是根据执行或其他法律程序在任何针对租户的诉讼中征收的。
第19.05节租赁权损失:租赁财产是通过法律程序或法律操作取得的。
第19.06节休假;放弃:租户迁出或放弃该房产。
第19.07节留置权:租户允许对中心或建筑物提出机械师的留置权或留置权索赔,而租户未遵守第十三条的规定。
第19.08节相关默认值:在任何其他租赁或与房东的协议(包括但不限于任何租赁或停车协议)下,租户在任何通知和治愈期之后都是违约的。
第XX条。
补救措施
第20.01节业主权利:在任何违约情况下,房东有权不经进一步通知或要求(第十九条规定的情况除外)根据法律或衡平法追求其任何权利和补救措施,包括以下任何一种或多种补救措施:
a.终止本租约, 在这种情况下,租户应立即将房产移交给房东。如果租户没有交出房产, 房东可能, 遵守适用的法律,并在不影响任何其他权利或补救措施的情况下, 进入并占有该房产,驱逐并驱逐房客, 承租人的财产和占用全部或部分房产的任何一方。承租人应按要求向业主支付逾期未付的租金以及因承租人违约而可能遭受的其他损失和损害, 不管是因为房东不能以合理满意的条件出租房屋,还是因为其他原因, 包括, 没有限制, 所有转租的费用(定义如下),以及因减租或未能转租而可能产生的任何不足之处。“转让费用”应包括业主在转让或试图转让房屋时所发生的所有合理费用, 包括, 没有限制, 合理的法律费用, 经纪佣金, 改建的费用和给予新租户的其他优惠或津贴的价值,
b.在不终止租约的情况下,终止承租人对该房产的占有权, 而且, 在遵守适用法律的情况下, 驱逐并驱逐房客, 承租人的财产和占用该房产全部或任何部分的任何一方。业主应遵守适用的法律,将房产的全部或任何部分, 在不通知租户的情况下, 对于可能大于或小于该期限余额的期限,并在此种条件下(其中可能包括特许权), 免费的租金和场所的改建),并作为业主的绝对自由裁量权决定的用途。业主可以收取和收取所有租金和其他收入从重新分配.承租人应按要求向业主支付到期未付的全部租金, 所有转帐费用以及因转帐或未能转帐而产生的任何不足之处。业主不应对未能转让全部或任何部分的处所或未能收取任何租金负责或承担法律责任。"除非向承租人发出书面终止租赁通知,否则重新进入或占有该房产不应被解释为业主选择终止该租赁,,
c.业主可选择收取(a)截至本租约终止日期的所有应累算租金或租客的管有权,以代替根据上文第20.01A或20.01B条计算的损害赔偿,(b)相等于租客在余下租期内须支付的租金总额,按当时有效的最优惠利率(定义见下文第20.02条)折成现值计算,减去当前的公平租赁价值的前提下,在剩余的期限,类似的折扣,扣除所有预期的费用后,重新安置。
业主可以,但不应有义务,在任何时候纠正租户的违约,无论是否有通知,也没有放弃或解除租户的任何义务,与这种违约。业主为补救违约而产生的费用,加上10%的管理费,以及自业主产生此种费用之日起按第20.03节规定的利率计算的利息,应由租户根据要求向业主支付。
第20.02节再入:除非在本租约中有明确规定,否则收回或重新进入处所的全部或任何部分并不能免除承租人在租约下的责任和义务。房东的任何权利或补救措施都不应排除任何其他权利或补救措施。每项权利和补救措施都是累积性的,并且是房东现在或以后在法律或衡平法上可获得的任何其他权利和补救措施的补充。
第20.03节默认利息:如果业主宣布租户违约,业主有权收取任何未付租金的利息,利率等于最优惠利率加4%,但在任何情况下都不得超过业主可能依法收取的最高利率。就本协议而言,“最优惠利率”应是由在伊利诺伊州开展业务的房东选择的联邦保险银行公开宣布为其最优惠或基本利率的年利率。房东对执行一项或多项补救措施的宽容不应构成对任何违约的放弃。
第二十一条。
责任限制
尽管本租约中有任何相反的规定,业主(和任何继承业主)对承租人的责任应限于业主在建筑物中的利益。承租人应仅考虑业主在建筑物中的利益,以收回针对业主的任何判决或裁决。业主或任何业主关联方均不应对任何判断或缺陷承担个人责任。在对业主的违约行为提起诉讼前至少10个工作日,承租人应向业主和抵押权人(定义见下文第26条)提供关于该建筑物或房产的抵押(定义见下文第26条),通知,并应给出合理的时间来纠正所称的违约行为。
第22条。
无弃权
一方当事人未在违约发生时立即宣告违约,或延迟对违约采取行动,均不构成对违约的放弃,也不构成禁止反悔。任何一方都不能行使自己的权利。违约不应构成放弃其对任何后续违约的权利。任何一方的明示同意或放弃,均不得影响对另一方的任何契约、条件或义务的任何违反,但放弃或同意中规定的除外,且仅限于放弃或同意中规定的时间和范围内。业主收到承租人的房屋钥匙,并不构成对该房屋的接受或放弃。
第23条。
安静的享受
在遵守本租赁条款的前提下,只要承租人支付租金并充分履行其所有契约和协议,承租人应并可以和平地拥有和享有该房产,而不受房东或通过房东的干扰。本契约和业主的所有其他契约仅在其或其各自拥有建筑物的期间内对业主及其继承人具有约束力,而不是业主或业主相关方的个人契约。
第24条。
搬迁
业主无权在租期之前或期间重新安置租户。
第二十五条。
等待
如果承租人未能在本租约期满或提前终止时交出房产,则在租约终止或期满后对房产的占用应为租赁。
承租人在租赁期满期间对房屋的占用应遵守本租约的所有条款和规定。承租人应支付相当于基本租金的150%加上紧接延期前一段时间应支付的额外租金的100%的金额(在延期期间,每月不扣减部分月份的费用)。在本租约期满或提前终止后,承租人的延期或承租人的付款不得被解释为延长租期或阻止房东通过简易程序或其他方式立即收回对该房产的占有。除支付上述金额外, 如果房东不能将房产交付给新房客, 或者为新租户做一些改进, 由于承租人的留置,且在房东通知承租人房东不能交付财产后5天内,承租人未能搬出房屋, 或者进行改进, 承租人应对业主承担一切损失赔偿责任, 包括, 没有限制, 间接损害赔偿, “那个房东遭受了留置的痛苦。,
第二十六条。
抵押权保护;禁止反言证书
第26.01节次级抵押贷款:承租人接受此租赁,并服从于任何抵押,信托契据,地面租赁,开发协议或其他留置权,现在或以后产生的处所,建筑物或沙利文中心,以及续期,修改,再融资和扩展(统称为“抵押”)。享有抵押权的一方应称为“抵押权人”。“这一条款是自动生效的。抵押权人有权在任何时候将其抵押权从属于本租赁,而不是使其抵押权高于本租赁。
第26.02节抵押权人有权补救:如果房产的全部或任何部分在任何时候都是抵押的对象,并且承租人已收到有关该抵押的书面通知和抵押权人的地址,则承租人不得就业主在本租约下的任何失责行为行使任何权利或采取任何补救措施,而必须先向该等承按人发出书面通知,并以合理的细节指明该失责行为,及。为该等承按人提供合理机会,使其能代表业主履行责任。
第26.03节对抵押权人的修改:如果任何抵押权人信托要求修改本租约,该修改不会给承租人带来任何成本或费用的增加,也不会以任何其他方式实质性地改变承租人在本租约下的权利和义务,则在这种情况下,承租人同意本租约可以这样修改。租户还同意在提出此类要求后的十(10)个工作日内执行和交付任何要求证明此类修改的文件。
第26.04节律师:如果继承者要求将业主在租赁中的全部或部分权益转让给继承者,承租人应免费向继承者转让权益,并承认该受让人为本租赁合同下的新业主。
第26.05节禁止反言证书:业主和租户应在收到对方的书面请求后10个工作日内,按照对方的合理要求(包括但不限于潜在的抵押权人或买方),执行并向对方交付禁止反言证书,而不收取任何费用。禁止反悔证书应包括一份声明CE1,声明该租约未经修改(禁止反悔证书中所标识的除外),并具有完全的效力和效力,说明租金和其他费用已支付的日期,表示在该当事方实际了解的情况下,不存在违约(或陈述所谓违约的性质),该承租人已接受该房产及其状况,并对其进行了改善,没有就此向房东或任何其他方提出索赔,也没有表明可能合理要求的与该租赁有关的其他事项。
第二十七条。
律师费
如果任何一方对另一方提起诉讼,要求其违反或执行本租约的任何契约或条件, 该诉讼的胜诉方有权从非胜诉方收取其所有费用和开支, 包括, 没有限制, 合理的律师费及其利息,按违约率计算。如业主介入任何诉讼,而租客是其中一方以执行或保护其权益或权利,或业主因租客的作为或不作为而成为任何诉讼的一方, 业主有权从承租人那里收取业主的所有费用和开支, 包括, 没有限制, 合理的律师费及其利息,按违约率计算。如果承租人介入任何诉讼,业主是一方来执行或保护其利益或权利,或者如果承租人是由于业主的作为或不作为而成为任何诉讼的一方, 房客有权从房东那里收取房客的所有费用和开支, 包括, 没有限制, 合理的律师费及其利息,按违约率计算,
第二十八条。
通知
如果有需求, 请求, 批准, 同意或通知(统称为“通知”)应由或可能由另一方给予任何一方, 通知应以书面形式发出,并以挂号或挂号信方式发送,并要求提供回执, 或在第I条规定的当事人各自的通知地址以隔夜或当日快递服务方式发送, 除非租客已迁出该处所(或租客的通知地址并非该处所), 且租户已腾空该地址),且未向房东提供新的通知地址, 业主可按本条所述的任何方式或法律允许的任何其他方式送达通知。每一份通知如采用当日速递服务送达,则在送达时应被视为已发出及送达, 存款后一(1)个工作日内提供通宵快递服务, 在该通知存入邮件之日起三(3)个工作日,前提是该当事方有收据证明该物品已存入邮件,并在该日期预付了邮资, 或者, 如租客已迁出处所或租客的其他通知地址,但并无提供新的通知地址, 以上述方式将通知存入美国邮件后的三(3)个工作日。任何一方都可以, 在任何时候, 以本文所述的方式向另一方发出有关新地址的书面通知,以更改其通知地址。任何通知, 请求, 同意, 批准, 房东的管理代理人可以给出房东的沟通或要求, 而这样的通知, 需求, 请求, 批准, 同意或沟通应被视为就像它是由房东给出的, 具有相同的力量和效果。,
第二十九条。
例外权利
本租约不授予任何在沙利文中心或其周围的灯光或空气的权利。业主除外,并将屋顶的使用权完全保留给自己, 电话, 电器壁橱和清洁壁橱, 设备室, 业主用来提供服务的立管或类似区域, 对土地的权利和对房屋底层的改善, 在建筑物的结构天花板之上的改进和空权, 在房子的拆墙外的改善和空气权利, 以及在该建筑物或沙利文中心内用于安装公用线路和其他为该建筑物或沙利文中心的使用者服务的装置的区域。业主有权更改建筑物的名称或地址。业主应有权采取行动,因为它应决定,以试图保护人员或财产的情况下,认为威胁到沙利文中心或其居住者的安全, 包括但不限于, 全部或部分苏利文中心疏散, “这种行为不应影响承租人在本租约下的义务或责任。,
房东也有权在房东认为适当的情况下对沙利文中心进行其他更改,前提是这些更改不会对租户使用或占用许可使用的场所的能力产生重大不利影响。如果业主合理地确定存在对建筑物造成重大损害或对业主的雇员或建筑物居住者造成人身伤害的迫在眉睫的危险,业主也有权(但没有义务)暂时关闭建筑物。业主可暂时关闭大楼的情况应包括但不限于电力中断、飓风、内乱和威胁。在这种情况下关闭建筑物不应构成推定驱逐,也不应使租户有权获得减租或减租。
第XXX条。
交出处所
在本租约或承租人的占有权到期或提前终止时, 承租人应将承租人的财产(第XV条中的定义)从房屋中移走, 离开并把房子交给房东, 扫帚干净, 而且井然有序, 状态和修复, 普通磨损和伤亡损失除外。还应要求承租人按照第八条的规定搬走所需的动产。如果承租人在本租约终止或承租人的占有权终止后10个工作日内未移走承租人的任何财产和所需的可移动财产, 房东, 由租户自行承担费用, 有权(但没有义务)移除和存储租户的财产。业主不应对价值负责, 保护或保管承租人的财产。承租人应向房东支付, 根据要求, 租户物业的开支及储藏费。另外, 如果承租人未能将承租人的财产从房屋或仓库中移走, 视情况而定, 书面通知后10日内, 业主可以认为承租人的全部或部分财产被遗弃, 以及对承租人财产的所有权应被视为立即归属于业主。,
第三十一条。
杂项
本租约及双方的权利和义务应根据伊利诺伊州的法律进行解释、解释和执行,业主和租户在此不可撤销地同意位于伊利诺伊州库克县的州和联邦法院的管辖权和适当地点。如果本租约的任何条款或规定在任何程度上无效或不可执行,则本租约的其余部分不受影响,并且本租约的每项规定应在法律允许的最大范围内有效和执行。本租赁条款和章节的标题和标题仅是为了方便起见,对租赁的任何部分的解释不产生任何影响。
B.承租人不得记录本租约或其任何备忘录。
在法律允许的范围内,业主和租户在任何诉讼、诉讼或反诉中放弃陪审团对任何因本租约引起的或与本租约有关的事项的审判。
d.只要规定了一段时间供业主或租户采取行动,执行此种行动的期限应延长,延长的天数应为实际因要求执行方以外的罢工、天灾、劳动或物资损失、战争等原因而延迟执行的天数,内乱和履约方无法合理控制的其他原因(“不可抗力”)。但是,不可抗力事件不应延长任何一方支付租金或其他款项的期限,也不应延长任何一方书面行使选择权或权利的期限,或创造任何期限,租户可能会扰乱活动以外的场所,或允许租户延迟开始日期。
E.业主有权全部或部分转让和转让其在本租赁协议项下以及在本协议所指的建筑物和/或财产项下的所有权利和义务,转让后,业主应免除本租赁项下的任何进一步义务,承租人同意仅向业主的利益继承人寻求履行此类义务的权利。
F.Tenant表示它已直接与经纪人进行了交易,并且仅与经纪人进行了交易,作为与此租赁有关的经纪人。租户应赔偿业主和业主相关方,使其免受任何其他声称在本租赁中代表租户的经纪人的所有索赔。业主同意赔偿和保持租户和租户的关联方不受所有索赔的经纪人和任何其他经纪人声称已代表业主与本租赁。
G.租户契约,保证和表示:(1)每个执行,(2)本租约对承租人具有约束力;(3)承租人在其组织状态下是有组织的并合法存在的并有资格在该房产所在的国家开展业务。如果有一个以上的租户,或者如果租户是由一个以上的一方或实体组成的,则对租户施加的义务应是所有各方和实体的共同和多项义务。由任何一个人或实体发出或作出的通知,付款和协议,应被视为已由他们所有人发出或作出,并与他们所有人作出。
对于承租人行使授予承租人的任何扩展、更新或扩展权利来说,时间是至关重要的。本租赁仅应在双方之间建立房东和租户的关系,而不是合伙、合资企业或任何其他关系。本租约以及本租约中的契约和条件仅应确保业主和租户及其允许的继承人和受让人的利益,并仅对其具有约束力。
期限届满,不论是否因时间的流逝而终止,均不应免除任何一方在本租约期满或提前终止之前产生的或在本租约期满或提前终止后可能继续产生的任何义务。在不限制前一句的范围的情况下,同意承租人在第4.01、4.02节、第八、十三、十四、二十、二十五和三十条下的义务应在本租约期满或提前终止后继续有效。
J.房东已将本租约的副本交付给租户,仅供租户审查,且交付该租约并不构成对租户的要约或选择权。本租约对任何一方无效,除非该一方签署了本租约的正本并将其发送给另一方。
双方先前达成的所有谅解和协议均被本租约所取代,Patty均不依赖本租约中未明确规定的任何保证,声明或陈述。只有业主和租户签署书面协议,才能修改本租约。
L.租户,在书面要求后的15个工作日内,应向房东提供当前的财务报表和房东可能合理要求的其他信息,以创建租户的“业务概况”,并确定租户履行其在本租约下的义务的能力。
M.本租约及以下证物(可能包含本租约的附加条款)和附件构成双方就本租约标的达成的全部协议,并取代所有先前与该房产有关的协议和谅解,包括所有谈判、租赁建议,意向书及其他文件和通信
所有这些事先的谈判、协议和谅解应被视为与本租约合并。所有附于本租约的证物均作为本租约的一部分,如同完整地插入本租约。本租约可以在任何数量的对应方中签署,所有此类对应方应构成一份相同的文书。任何一方当事人对任何一方当事人的签名都可以删除,并附加在任何一方当事人的签名上。
【页面余额为空白】
业主和租户已执行本租约的日期和年度的第一个书面。
|
|
|
|
|
|
|
|
|
| 房东: |
|
|
|
南方一州Propco,L.L.C., 特拉华州有限责任公司 |
|
|
|
| 由: |
一家南道富有限责任公司,
一家伊利诺伊州的有限责任公司,
其管理成员
|
|
|
|
| 由: |
南道富投资公司,L.L.C.,
一家伊利诺伊州的有限责任公司,
它的经理
|
|
|
|
| 由: |
/s/Laurance H.Freed |
|
Laurance H.Freed,经理 |
|
|
|
|
|
|
| 租户: |
|
|
| Centro,Inc.,特拉华州的一家公司 |
| 由: |
/s/Michael Bruns |
| 名称: |
Michael Bruns |
| 头衔: |
首席财务官 |
附件a
处所
附件b
收缩空间的位置
附件c
开始信件
(例子)
日期:
租户:
地址:
回复:关于CE1IAIN租赁的生效日期为___________________________,由特拉华州有限责任公司L.L.C.作为业主和______________________________________、_________________作为承租人,在___________________________________________________________________________该建筑的楼层位于伊利诺伊州芝加哥市沙利文中心。
亲爱的________________:
根据上述租赁的条款和条件,承租人接受对该房产的占有,并同意:
1.租赁的开始日期是____________________。
2.租约的终止日期是____________________。
请在所提供的空白处签署本生效通知书的所有三个副本,并将两个已完全执行的副本退还给我,以确认您接受上述条款的占有和同意。
真诚的,
物业经理
同意并接受:
租户:
由:
名称:
头衔:
日期:
附件d
房东的工作
A.建筑构件
1.A.地面平整
现有的地板将准备好,以便于安装胶水地毯,只有小的找平/修补由租户或租户的承包商。
楼层的变化将被解决,以满足代码和ADA的可访问性。
2.B.干净的地板状况
地板应合理地避免现有地毯、瓷砖和/或VCT胶和残留物,以便于安装胶水地毯,而无需租户进行额外的拆卸和/或大量修补。地板的防渗层必须防火,并用混凝土或其他合适的填充材料密封。
目前贯穿地板、天花板和墙壁的废弃管道将被拆除,并用混凝土或其他合适的填充材料密封。
3.C.周边石膏板状况
周边的石膏板条件,包括膝墙,圆柱,壁柱和窗户口袋,应被木板,胶带,砂纸,底漆,防火保险箱和填缝完整,并准备租户完成油漆。
周边的窗户将按照建筑标准进行维修。要对窗框进行油漆或修饰,使其看起来颜色一致。
4.D.核心墙板的状况
核心墙板条件,包括核心墙和柱子应被胶带,砂纸,底漆,防火保险和填缝完整,并准备租户完成油漆。
5.E.核心墙门、框架和五金件
核心墙门、框架和五金件应符合所有适用的建筑规范。门和框架将是,平滑和准备就绪,以供租户完成油漆。
外门将被密封。
6.共同走廊
新的公共走廊,根据规范与建筑标准完成。通往公共走廊的出口门、门框和五金件应符合适用的规范.
7.f.盥洗室
新的公共盥洗室,按规范的要求用于商业用途:符合ADA标准的摊位,小便池,台面,纸张分配器/处置,通道等。
建筑标准饰面包括但不限于台面、水槽、水龙头、卫生间隔板、天花板材料和饰面、照明、六英尺高的瓷砖墙和瓷砖地面。Centro是否应该选择设计和建造这6座建筑?TH 楼层卫生间,业主将向Centro提供建筑标准津贴,任何额外费用将由租户负责。
8.G.视窗
将安装建筑标准的窗户覆盖物。
B.H.结构部分
1.一.地板负荷
活载:每平方英尺100磅(静态80磅,活载20磅)。这座建筑的一部分重125磅。
实时负载包括所有内部改进和内容
(过多的文件或其他负载将由建筑结构工程师进行审查。)
j.MEPFP 组件
1.k.暖通空调设计标准和参数
该系统的设计和制造符合或超过了最新的美国供暖制冷和空调协会的设计标准,该标准发表在《Ashrae基本原理和系统手册》(1997年)第26章-气候设计信息中,具体如下:
“一般暖通空调设计温度-冷却温度(分贝/MWB)0.4%
“加热设计温度为99.6%。
高压交流电操作标准I最低标准:
夏季:室内温度不超过78华氏度,室外温度达到95华氏度,室内温度不超过74华氏度。
冬季:室内温度低于72华氏度,室外温度达到-10华氏度。
操作小时数
星期一至星期五上午6时至下午6时
星期六上午6:00至下午1:00
l.冷却负荷密度
冷却负荷密度。业主应提供以下供暖/供冷能力:
照明负荷:1。根据芝加哥建筑规范,每平方英尺5瓦。
设备负荷:每平方英尺6.0瓦。
c.人员:每125个可用平方英尺1人
m.冷凝水和冷却水
冷却塔的容量为1200吨冷凝水,分为两个600吨的电池。冷凝器水可用于补充计算机机房和下班后的冷却设备。
有500吨冷冻水可用。
n.通风/室外风量
通风系统应满足或超过《芝加哥建筑规范》和ASHRAE对室内空气质量的要求。
o.冷却器
安装了4台2-680吨机组和Z-900吨机组的高效冷水机组。其中一台680吨的冷水机组配备了变速压缩机。所有冷冻机均采用非臭氧消耗制冷剂134-a。
1.1便士。机械零件
q.办公楼层3-7层、13-15层
基础建筑暖通空调系统应包括以下最低限度的组成部分:
A.变风量,组合式空气处理单元,配有供、回/排风扇,混合模块部分,冷水冷却和热水加热盘管,过滤器和变频驱动器。该单元将配备DDC控制器,并具有与现有的基地建筑霍尼韦尔控制系统的接口功能。
一个主要的,外露的矩形管道回路,用于未来连接租户的空气分配系统.该基础建筑暖通空调设备是专为租户安装的变风量分配系统利用标准,无风扇动力,变风量箱,没有再热盘管。基础建筑的暖通空调系统是为从空调空间返回空气而设计的。
周长加热
州街周界热水周界翅片管单位有盖。每个单元通常为14’-0"或更小,并由丹佛斯阀门手动操作,该阀门可根据加热需求打开或关闭。该系统独立于服务于同一区域的变风量盒子运行。
WABASH周界热水周界翅片管单元带盖。每个单元通常为14’-0"或更小,并由丹佛斯阀门手动操作,该阀门可根据加热需求打开或关闭。该系统的运行独立于服务于同一区域的变风量盒子。
排气系统
将为公共厕所区域和看门人壁橱提供一个完整的排气系统。在南面的电梯附近的风扇单元将进行维修,以降低噪音。
能源管理系统
该建筑能源管理系统采用了霍尼韦尔的计算机控制,可以监控每个区域内每个电子变风量箱的温度和风扇。租户VAV盒是由租户的恒温器控制,作为传感器的冷却需求在每个区域。Honeywell系统允许计算机调节每一个电子变风量控制箱。
所有已有或即将安装的MEPFP组件(包括丹佛斯阀门)在空间移交给租户时将处于良好的工作状态。
2.0r。电气设计准则
电气系统的设计和建造应根据实际需求来支持基础建筑的电气要求和租户的电力使用。除非承租人另有规定,承租人设计应基于以下设计荷载:
a.租户的预期照明负荷=每码每平方英尺1.5盏灯
b.租户预期电力负荷=每平方英尺4.0瓦
C.可根据特殊要求提供额外的电力负荷
2.1秒。电气元件
基础建筑电气系统应包括以下最低限度的部件:
多个电网馈电。
馈电和服务到基地大楼的电力服务室,以确保根据基地大楼的设计能力和租户的改进设计。
c.一次维修(按要求提供安培),480/277伏,3相,4线,用于基础建筑机械负载到每个电气壁橱。每个服务相关的馈线都要在每个电气壁橱进行计量。该建筑应为道富提供一(1)个电气壁橱,为沃巴什提供一(1)个电气壁橱。
d.每个壁橱应为以下各项提供空间:
一个(1)400安培CT表插座
一个(1)400安培、480/Z77伏配电面板
一台120/208伏特的变压器,42块电路板
一个(1)120/208伏,42个电路板板,用于租户电源,包括浴缸断路器和配件
一个(1)120/208伏,42个电路板板,用于租户照明,包括浴缸,断路器和配件
e.所有基础建筑机械设备的电气要求(包括面板、仪表配件、变压器等),包括屋顶设备、机房设备、Yay盒、电气基板等(参见本规范的HVAC部分)。
基础建筑的生命安全和报警系统,包括一套完整的灭火通信和烟雾检测系统。
根据管理规范的要求,提供应急分配系统.
H.满足上述租户补充电力需求的基础建筑电力容量(包括面板、仪表配件、变压器、TVSS等)。
3.t.管道
基础建筑管道系统应包括以下最低限度的组成部分:
公共卫生间的设计准则应以建筑规范为基础
每个楼层有一个公共的(1)门卫壁橱,带污水池。
两个共同的(2)建筑标准的每层水冷却器,除非管理规范要求更高的密度。
d.水、废物和排气口的核心区域通道。
4.u.消防
基础建筑防火系统应包括以下最低限度的组成部分:
根据当地所有市政建筑规范设计和设计的完整的、全面运行的消防系统。
b.适用的建筑规范所要求的低阀和篡改开关。
5.v.生命安全
房东应提供以下能力:
A.生命安全系统
B.多个电网馈电
C.应急发电机为租户出口照明和出口标志提供服务的能力
D.房东是为生命安全系统提供管道的人
D.W.低压元件
1.低电压
沙利文中心利用最先进的电信基础设施和服务,包括以下内容:为建筑物提供服务的多个服务提供商,每一条都有独立的光纤传输到安全的POP;RCN电缆(下载速度为每秒60兆);原生以太网(每秒10兆)速度的光纤骨干网;有线电视;DS-3、T-1、分数T-1、ISDN,和DSL服务可用;视频会议之间和建筑物内的局域网和广域网.租户可以自费安装从Netpop到6的专用跑道。TH 地板。
E.X.杂项项目
1.Y.货运电梯
在施工、安装家具和搬运过程中的货车应免费提供给租户,而不收取房东的费用。业主应在租赁期内及以后的任何续租期内至少维持一部可运行的货梯,且货梯必须能够无障碍地进入租户的整个空间。
这座大楼有三部货运电梯:
1辆车-6英尺x6英尺x7英尺4000磅的容量,服务楼层B1至15层。
2辆7。5英尺x18.5英尺x8英尺7000磅容量服务楼层B3至12。
2.Z.楼宇电梯
5节车厢完全现代化的ADA无齿轮牵引电梯,位于州街,服务楼层从LL到12层。
8个完全现代化的ADA无齿轮牵引电梯在沃巴什服务1至15层。
麦迪逊有4部完全现代化的ADA无齿轮牵引电梯,服务于1至9楼。
所有服务楼层的电梯都将配备可操作的灯笼和呼叫按钮。
如果租户提出要求,电梯可以锁在租户楼层,不能停在租户楼层,费用由租户承担。
3.AA。安全系统
办公室大堂安装了数码相机系统,并设有24小时出入大楼的门卡。
4.BB。装卸码头
在正常营业时间内,承租人不得因使用装卸码头而收取费用。早上6点到晚上8点。
B.承租人在建造期间可在装货码头设置一个指定的垃圾箱
C.装卸码头要经过霍尔登法院,
一个码头可容纳三辆40英尺长的拖车,为两辆货车提供服务--7.5英尺x18.5英尺x8英尺7000磅服务楼层B3至12层
一个码头,能装一辆40英尺的拖车,一辆货车,6英尺x6英尺x
7英尺4000磅的容量服务楼层B1至15。
5.抄送。工作时间限制
业主将定义建筑工作时间的限制,租户承包商可以或不工作时,收到计划和租户的承包商。
6.DD。最终清洁
业主到周转房打扫干净,以备租户工作之用.
7.EE。规则8:规章/保险(随租约提供)
业主应提供建筑规则和规定以及保险要求与租赁.
附件e
规则和条例
在适用的情况下,下列规则和条例应适用于处所、建筑物、停车库(如果有的话)和附属设施。大写的术语与租约中定义的含义相同。
1.人行道、门道、门厅、走廊、楼梯及其他相类的地方,不得由租客阻碍,亦不得由租客用作任何目的,但出入处所除外。不得在这些区域内放置、倾倒或丢弃垃圾、垃圾或材料。承租人在任何时候都不应允许承租人的雇员在公共区域或建筑物或财产的其他地方闲逛。
2.管道固定装置及用具只可作设计上所作的用途,而不得在固定装置或用具内扔掷或放置清扫用具、垃圾、破布或其他不适宜的物料。承租人、其代理人、雇员、持牌人、被邀请人或承包商对固定装置或装置造成的损害,应由承租人赔偿,业主不应对损害负责。
3.不得在建筑物的窗、门或其他部分涂上或贴上任何标志、广告或告示,但颜色、大小、式样及放置在业主首先书面批准的地方的标志、广告或告示除外。所有的租户身份和套间号码在入口处的处所应安装由业主,由租户的费用和支出,使用的标准图形的建筑物。除非与悬挂轻型图片及墙壁装饰有关,否则不得将钉子、钩子或螺丝插入处所或建筑物的任何部分,但楼宇维修人员除外。
4.业主可以在大楼的一楼(主大堂)提供和维护一个按字母顺序排列的目录板或其他目录设备,列出租户,除非业主事先以书面形式酌情同意,否则不得允许使用其他目录。
5.未经业主事先书面同意,承租人不得在处所或建筑物内的任何门上放置任何锁,业主有权随时保留并使用处所内和进入处所的所有锁的钥匙。业主须向租客提供合理数量的处所入口门锁钥匙,费用由租客承担,租客不得制造任何重复的钥匙。所有钥匙应在本租约到期或提前终止时退还给房东。
6.所有承包商、承包商代表和安装技术人员在建筑物内进行的工作应得到业主的事先批准,并应遵守业主的标准规则、条例、政策和程序,这些规则、条例、政策和程序可能会不时修订。
7.搬进或搬出建筑物的家具或办公设备,或由租户发送或接收需要使用电梯、楼梯、大厅区域或装卸码头区域的商品或材料。租户应事先征得业主的同意,方可使用,并应提供详细的活动清单。如果得到房东的批准,该活动应在房东的监督下并按照房东要求的方式进行。承租人应承担因活动而造成的物品损坏和任何人受伤的一切风险。如果业主或其他任何一方的设备、设备或人员因活动或与活动相关而受到损坏或伤害,承租人应对由此造成的任何损坏承担全部责任。
或损失。租户承认,任何货运电梯的使用都取决于可用性;乘客电梯不应用于这些目的。
8.业主有权批准重型设备或物品在房屋内或周围的重量、大小或位置。因承租人的财产的安装、维护、经营、存在或迁移而对建筑物造成的损害,应由房东负责修复,费用由承租人自行承担。
9.走廊门不使用时,应保持关闭。
10.承租人不得:(1)在建筑物内制造或允许任何不适当的、令人反感的或令人不快的噪音或气味,或以其他方式干扰其他承租人或与他们有业务往来的人;(2)在建筑物的任何部分招揽业务或分销业务,或安排分销业务,传单、宣传材料或其他广告;或(3)在建筑物内进行或允许进行业主认为可能构成妨害的其他活动。
11.除协助残障人士的动物外,任何动物不得带进该建筑物或在该处所内或附近饲养。
12.承租人不得在房屋、建筑物内或财产周围使用或保存易燃、易爆或危险的液体或物质。未经业主事先书面同意,承租人不得在处所或物业的任何其他部分之内或附近使用、贮存、安装、洒出、移走、释放或处置任何含石棉材料或任何固体,根据《美国法典》第42章第9601条及以下条款或现在或以后可能生效的任何其他适用的环境法的规定,现在或随后被视为有毒或有害的液体或气体材料。租户应遵守与租户使用这些材料有关的所有法律,并应独自承担减少和拆除的费用。
13.承租人不得以任何方式或目的使用或占用处所,而该等方式或目的可能会损害处所或建筑物的声誉或损害其现时或将来的价值。承租人不得将处所的任何部分用于住宿、睡觉或任何非法目的,也不得允许将处所的任何部分用于此种目的。
14.承租人、业主、承包人不得采取违反劳动合同或者造成停工、纠察、劳动干扰、劳动争议的行为,或干扰房东或任何其他租户或居住者的业务,或干扰沙利文中心任何人的权利和特权(“劳动中断”)。劳动干扰所针对的一方应采取必要的行动解决劳动干扰,并应拆除纠察线,并立即终止导致劳动干扰的场所中的任何工作和/或承包商。承租人不得向业主或业主的任何相关方提出损害赔偿要求,也不得因上述行为而延长租期的生效日期。
15.承租人不得在处所或建筑物的任何其他区域内安装、操作或维护会使电力系统超载的电气设备,使其超出业主单独决定的适当、有效和安全操作的能力。未经业主事先书面同意,承租人不得向房屋提供制冷或供暖设备,包括但不限于使用电子或燃气供暖设备。承租人不得使用超过其比例的电话线和其他电信设施来为建筑物提供服务。
16.承租人不得操作或准许他人操作硬币或代币操作的电子订书机或类似设备(包括但不限于电话、储物柜、厕所、秤、游戏机)
设备和机器的销售饮料,食品,糖果,香烟和其他商品),但机器专供租户的雇员使用,然后只有在操作不违反租赁的任何其他租户的建筑物。
17.除业主指定的区域外,禁止在建筑物内或建筑物外的人行道上使用自行车和其他车辆。
18.业主可能会不时采用系统和程序,以确保沙利文中心的安全和安保,其居住者,进入,使用和内容。租户,其代理人,雇员,承包商,客人和受邀者应遵守业主的制度和程序。无论如何,这些系统和程序不应构成房东对安全或保障的任何保证或保证。
19.业主有权禁止租户使用沙利文中心的名称或进行任何其他宣传,如果业主唯一合理地认为这些宣传可能会损害沙利文中心的声誉或其可取性。在接到业主的书面通知后,租户应立即停止并停止此类宣传。
20.承租人不得在该建筑物或该财产内游说、招揽或兜售.
21.任何租客或其代理人、雇员、承办商、宾客或受邀人士,均不得在该处所或沙利文中心入口前的公用地方或人行道吸烟或准许吸烟,除非业主已将公用地方或该等人行道宣布为指定吸烟区,否则上述各方亦不得容许在处所内的烟雾进入公用地方或沙利文中心的任何其他部分。业主已将办公区指定为禁烟建筑,并有权继续删除或修改该指定。
22.业主有权指定和批准房屋的标准窗户覆盖物,并有权制定规则,以确保建筑物呈现出统一的外观。承租人须在合理切实可行的范围内,确保处所内的窗户在暴露于阳光直射的情况下,将遮盖物关闭。
23.只有在业主指定的时间、区域和出入口,才能将货物运入或运出该处所。承租人不得以可能妨碍任何其他承租人使用其处所或公共区域、任何行人使用或任何不符合良好商业惯例的使用的方式,向处所或从处所交付货物。
24.清洁人员的工作不得在下午5:30后受到租户的妨碍,并且在办公室空置的任何时候都可以进行清洁工作,并由房东向租户提供适当或合理的通知。窗户、门和固定装置可随时清洁。承租人须提供足够的废物及垃圾容器,以防止清洁服务遇到不合理的困难。
附件f
冷凝器水费
业主可安装水表,以量度冷凝器水流量至楼宇作高压空调用途。业主可评估与高压空调服务有关的合理计算的水电费.业主可选择按每吨/年250美元的金额,作为上述补偿,业主可在开工之日的每一周年日,按其用水成本增加的百分比,评估该单位每年的冷凝器水费,凝汽器水系统和水处理的维护和维修.
另外, 在某种程度上,租户或租户所在的楼层拥有独特的HVAC系统或这种系统的独特组件(“独特的HVAC系统”), 业主可以选择向租户收取账单,租户应支付租户分担的这种独特的HVAC系统的成本和费用,包括(i)直接和间接的人工成本, 包括附加福利, 用于操作, 修理, 维护和更换业主合理配置的唯一高压空调系统, 不包括领班或主管以上业主的管理工资成本, 及其他维修, 用于产生或以其他方式提供HVAC服务的独特HVAC系统的维护和更换成本。承租人在一项成本或费用中所占的份额,应按该项目的成本或费用乘以一个比率计算, “其分子是该房产的可出租平方英尺,其分母是该楼层由成本或费用项目提供的面积的可出租平方英尺。,
在所有情况下,如果房东选择收取实际费用,房东可以每月提前收取此类费用,并在年底后进行对账。业主收取的费用应在租金到期之日支付。
参展商
ROFO空间的位置