查看原文
免责申明:同花顺翻译提供中文译文,我们力求但不保证数据的完全准确,翻译内容仅供参考!
ex-10.15 24 d575528dex1015.htm ex-10.15 ex-10.15

图表10.15

Logue Avenue441租赁协议

通过和在此之间

Logue Avenue Associates,LLC441

(“房东”)

elance,inc.

(“租户”)


基本租约资料

 

租赁日期:    2007年3月27日   
房东:   

Logue Avenue Associates,LLC441

特拉华州有限责任公司

管理机构:    Dostart Development Company,LLC

房东的和

管理代理的地址:

  

C/O DOSTART开发公司

大街777号

帕洛阿尔托,CA94301

租户:   

elance,inc.

特拉华州的一家公司

  
租户地址:    以供通知    用于记帐
  

elance,inc.

罗格大道441号150套房。

山景城,CA94043。

  

elance,inc.

罗格大道441号150套房。

山景城,CA94043。

土地:    展品中所描述的不动产“a-1”
大楼:    位于罗格大道441号的两层建筑,山景城,如图所示,附于此作为展览“a-2”
套房:    150   
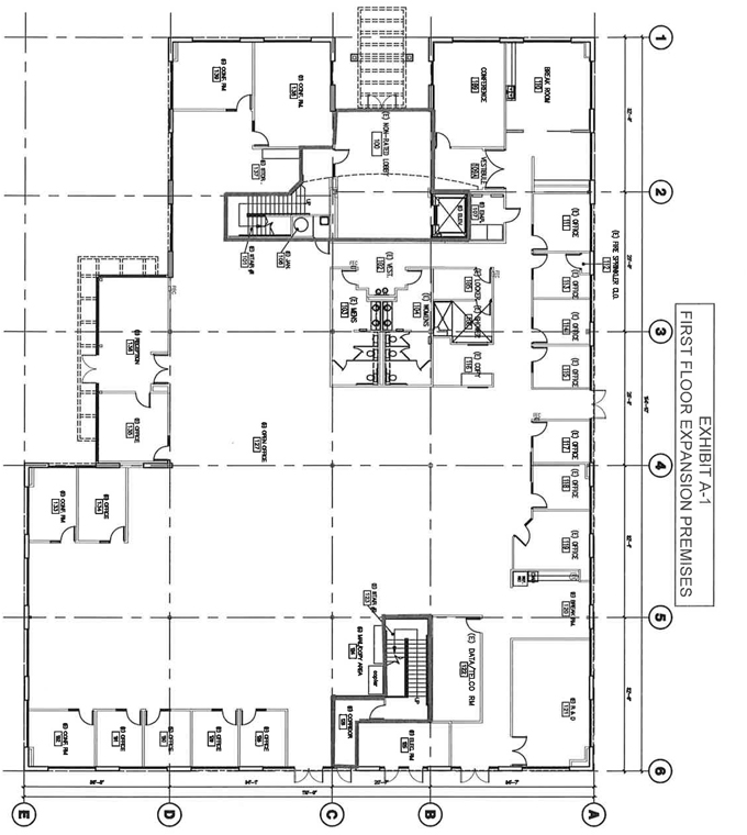
房地:    建筑物一楼的一部分,如附于此的平面图“A”所示,包括侧厅的专用部分。
房地的可出租面积:    14,889平方英尺可出租。对外墙的外表面和内墙的中线进行了面积测量,但没有扣除内垂直穿透。
该建筑物的可出租面积:    31,864平方英尺。   
泊车位:    见租约第34段。   
租户使用该处所的情况:    办公室,研究和发展。   
租赁期限:    三(3)年(“任期”)。   
预定开始日期:    2007年5月1日。   
开始日期:    见租约第2(a)段。   
失效日期:    日期是生效日期三周年的前一天。
租金生效日期:    2007年5月1日。   

 

我-


租户津贴:    不适用。   
基本租金:    月份:    每月每可出租平方英尺的租金:
   01-12    $2.25
   13-24:    $2.31
   25-36:    $2.39
   (所有租期均由租金生效日期起计算)
基本租金调整数:    见上文   
租户按比例分摊的费用和租户分担的费用和房地产税:    46.73%   
保证金:    见第32段。
租约担保人:    n/a   
经纪人:    Colliers International(租户)&CPS/CORFAC International(业主)
经纪人的费用或佣金(如有的话),由下列机构支付:    房东   

上述基本租赁信息在此并入本租赁并成为本租赁的一部分。本租约中对任何基本租约资料的每一次提述,均指上文所载的有关资料,并须解释为包括根据与该等资料有关的特定段落所提供的所有条款。在任何基本租赁信息与租赁之间发生冲突时,应由后者进行控制。

 

展品“A”    房地   
展品“A-1”    陆地   
展品“a-2”    建筑物   
展品“a-3”    项目   
展品“B”    工作信函   
展品“C”    细则和条例   
展品“D”    生效日期备忘录   

【下一页有签名】

 

ii-


房东:

Logue Avenue Associates,LLC,

特拉华州有限责任公司

通过:  

/s/stevedostart

姓名:   史蒂夫·多斯塔特
其:   经理人
租户:  

Elance,Inc.,

特拉华州的一家公司

通过:  

/s/fabio rosati

姓名:   法比奥·罗萨蒂
其:   总裁兼首席执行官
通过:  

s/ved sinha

姓名:   韦德·辛哈
其:   副总裁,产品

 

-iii-


租赁协议

本租赁协议由特拉华州有限责任公司441Logue Avenue Associates,LLC(以下简称“房东”)与特拉华州股份有限公司Elance,Inc.(以下简称“租户”)于2007年3月27日订立及订立。

在并受下文所列条款、契诺及条件规限下,业主特此向租客及租客出租该等处所(“处所”),而该等处所由附于本文件的图则(“A”)所示的建筑物部分组成,(以下简称“大楼”)。建筑物所在的土地列于附件“A-1”(“土地”),建筑物列于附件“A-2”的场地平面图上。该土地连同该建筑物、任何及所有其他改善工程被称为“工程”,包括基本上如附连展品“A-3”上的横斜线所示的面积。术语“公共区域”是指项目内业主未指定专供租户或项目任何其他租户或其他占用人使用的所有区域和设施,包括但不限于停车区、通道和周边道路、人行道,园境区、垃圾箱、康乐场地、一楼公用设施(例如大厦电机房)等。业主应允许租户在不增加任何费用或开支的情况下,使用目前位于房地内的立方体和电话系统,保持其现状,无需任何代表或担保,以满足租户的需要。

1.占用和使用。租户未经业主事先书面同意,可为基本租约资料所指明的目的而使用及占用处所,亦不得作其他用途或作其他用途。业主不得无理拒绝、附加条件或拖延同意。租户有权(除第34段另有规定外)根据业主不时订立的规则及规例,与业主及项目的其他占用人(如有的话)共同使用公用地方。承租人须当作为在按照第2(a)段的条文所厘定的生效日期占用全部处所。

2.期限和占有。

(a)本租契的年期(“年期”)须于2007年5月1日(“开始日期”)开始,除非根据本租契的明订条文提早终止,否则须于届满日期(定义见下文)届满。“到期日”应为生效日期三周年前一天,除非租约根据本租约的明确规定提前终止。如业主因任何理由而不能在预定生效日期将处所的管有权交付租客,则本租契并不无效或可予撤销,业主亦无须就因此而引致的任何损失或损害向租客承担法律责任。虽有上述规定,如业主未能在2007年5月1日或之前(按租客延误或不可抗力延误的每一天的每日延长计算)基本完成业主的全部工作(定义见下文第2(b)条),将处所的管有权交付租客,租户有权在租期届满后五(5)天内随时向业主发出书面通知,终止本租约。在开工日期后五(5)个工作日内,双方应签署一封信函,确认开工日期,并证明承租人已接受交付房地,该信函所附表格为“D”(“开工日期备忘录”)。任何一方当事人未请求执行或未执行生效日期备忘录,不得以任何方式改变生效日期。

(b)虽有第2(a)款的规定,租客仍有权在本租契全面签立后的任何时间提早占用处所,但(i)租客须订立契诺,并同意任何租客均非租客的雇员,客人或被邀请者将干扰业主工作的进行和完成,(ii)业主对租客因租客或租客的雇员的干扰而造成、或因租客或租客的雇员的干预而导致业主工作延误,不负任何法律责任,客人或被邀请者在执行业主工作时,(iii)租客须迅速遵从业主或业主承建商提出的任何及所有要求,将其物业从业主执行业主工作的地区或其周围移走,(iv)业主无须负上法律责任,租客特此放弃租客对业主各方可能提出的所有申索(该等申索的定义见下文第10(a)条),而租客同意就该处所内或其周围的任何人或财产所受的任何伤害或损害,作出弥偿及保持无害

 

- 1 -


由业主的工作引起或因业主的工作引起或与业主的工作有关,包括但不限于中断向服务器室提供的暖通空调服务(除非因业主的疏忽或故意不当行为引起)。承租人提早占用处所须受本租约所有条款及条件规限,但(i)租期须在生效日期前开始,(ii)承租人无须就自交付提早占用处所起至租金生效日期止的期间缴付每月基本租金。

(c)租客须按“现状”接受处所,但业主须按适用的法律及规例,以良好及工人般的方式,并使用建筑标准材料及饰面,自费接受处所,对作为证据“B”(统称为“业主的工作”)的单独工作文件(“工作文件”)中所述的房地进行这些改进:

(d)业主从以下租赁财产中预留(i)包围处所的所有外墙及窗户,以及位于处所内的所有空间,作垂直穿透、导管、电力及所有其他公用设施、空调、水槽或其他建筑物设施、使用该等设施及经该处所通往该处所以供操作之用维修、修理或更换,以及(ii)不时在不不合理地干扰租客使用的情况下,安装、移走或重新安置上述任何设施,以供该建筑物的任何部分使用,并将其迁往不会对租客使用该处所造成重大干扰的地点,进入和使用位于处所内的地方或设施,并为建筑物的其他部分提供服务或提供服务(例如,例如,升降机、增压室、门房壁橱,以及毗邻建筑物升降机的电梯机房),对建筑物进行改建或增建,改变或重新安置任何其他公共区域设施或任何其他公共设施,并对其进行改变或改建或扩建,但此种改变不得在任何重大方面增加承租人在租约下的义务。业主应作出商业上合理的努力,尽量减少因业主履行本款规定的义务而对租户在房地内开展的业务造成的任何实质性干扰。业主除享有本租约所指明的租客权利外,对公用地方拥有唯一及专属的管有及控制权利,本项目的所有其他公共区域和上文第2(d)段所述的保留区域或设施,这些区域或设施位于房地内。

 

3.

租金;租金调整;额外费用和税收。

(a)每月基本租金。自2007年5月1日(“租金起息日”)起,租客须在整个租期内向业主缴付基本租约资料(“基本租金”)所指明的年租金。租客须于每月第一天或之前,按月等额分期缴付租金预先以美国的合法货币支付(除第12款另有明文规定外,无须事先提出任何要求,也无须扣除或抵销任何款项),第20条及第21条)按基本租约资料所指明的地址通知业主或其管理代理人,或通知业主或其管理代理人不时以书面指定的其他商号或地方。第一个月的租金应在承租人执行本租约时支付。租客须在须缴付租金的地方向业主缴付本租约所规定的所有费用及任何其他款额(“附加费”),而业主如不缴付附加费,其补救方法与如不缴付租金,在不违反本租约第19(a)段所规定的通知和补救权利的前提下。如租金生效日期应在日历月第一天以外的日子发生,或届满日期应在日历月最后一天以外的日子发生,则该分数个月的租金及额外费用须按日分摊。

(b)基本租金调整数。第3款(a)项规定的每月基本租金应按照基本租赁资料的规定,在开始日期的每一周年调整。

(c)额外费用和税款。

(1)附加费用的定义:为本第3款(c)项的目的,下列术语应具有下文所列的含义:

 

- 2 -


(a)“纳税年度”系指自本租赁开始之日起的日历年1月1日起连续十二(12)个月的期间。

(b)“租户份额”系指基本租赁信息中如此规定的百分比数字。

(c)“不动产税”是指对项目或业主的任何个人财产征收的、或与项目或业主的任何个人财产有关的、为项目或业主的任何个人财产的运作所需的、或在项目或业主的任何个人财产的运作中使用的装饰性的所有税项、评税和收费,或业主对该项目或该等个人财产的权益。房地产税应包括但不限于所有一般房地产税以及警察、消防或其他政府服务的一般和特别摊款、收费、收费或摊款(包括开工日期后征收的过境费或住房费)或声称对建筑物有利的费用(但前提是,租户支付的房地产税的任何退款(作为租户的房地产税份额的一部分)应记入根据本租赁到期的下一期租金的贷项,或如果本租赁到期,应迅速退还租户)、服务费而不是税款以及就订立本租契或建筑物内任何其他空间租契的行为,或就建筑物或其任何部分的使用或占用而征收的任何税项、费用或消费税,或根据任何租约或与租用建筑物内空间有关的业务而须缴付的租金,而该租金现时或以后是由美利坚合众国加利福尼亚州或任何政区公营法团向业主征收或评估的,区或任何其他政治或公共实体,并须包括任何其他税项、费用或其他货物税,不论该等税项、费用或货物税如何描述,而该等税项、费用或货物税可全部或部分征收或评定为任何其他地产税的替代物或附加物,无论现在是否习惯,或在双方当事人考虑在本租赁之日。房地产税还应包括与质疑、确定或减少房地产税的程序有关的合理的法律费用、费用和付款;但此种费用,费用和付款不超过租户在租期内实际节省的房地产税。房地产税不应包括:(一)继承税、赠与税、遗产税、特许经营税、转让税、遗产税或股本税,或以业主从各种来源获得的净收入计量的所得税;(二)任何影响费,对业主征收特别摊款或其他苛捐杂税,以此作为项目初期开发或建设的条件;或因业主迟缴房地产税而征收的任何迟缴费用和罚款,除非租户不履行其付款义务应缴滞纳金或罚款的房地产税分期缴纳时的租金,如果对项目征收任何摊款,租户没有义务支付超过租户在任何课税年度应支付的本金和利息最低分期付款的份额,如果房东选择以允许的最高分期付款数目支付摊款的话即使房东全额支付了摊款,但前提是,该租客无须负责因该建筑物的另一租客(租客的受让人或分租客除外)所作的任何改善或因该建筑物的任何特定用途而向该建筑物征收的评估的任何部分另一个房客干的,业主应在收到所有评估通知书后迅速交付副本,但无论如何不得迟于提出上诉的最后一天的四十五(45)天(但业主须在该日之前收到该通知书)。如果租户希望质疑对该项目征收的房地产税,租户应将此意向书面通知业主。业主应有十五(15)天的时间将其选择通知租户,以便(i)质疑评估或(ii)不质疑评估。业主如无回应,即表示业主已选择不对评估提出质疑。如果租户希望直接对评估提出质疑,则应通知业主其这样做的意图,然后业主应与租户充分合作,努力对这种重新评估提出质疑(包括以业主的名义执行和备案),任何必要的合理文件),条件是承租人支付此种质疑的所有费用并交付保证金或支付任何其他必要费用,以防止在此种质疑待决期间对项目留置权;但是,业主有权在任期的最后两(2)年内批准任何此类异议,不得无理拒绝批准。租户应在适用期间享受减税的好处。

 

- 3 -


(d)“费用”是指业主为管理、经营、保养和维修该建筑物而支付或招致的全部费用和合理费用,包括但不限于(i)空调、电力、供暖、机械等费用,通风和所有其他公用设施以及与此有关的用品和设备及维修和服务合同的费用;修理和一般维修和清洁的费用;火灾、扩大保险范围、锅炉、洒水器、公共责任、财产损坏、租金损失的费用,地震(如可按商业上合理的费率购买)和其他保险;(iv)管理费、合理的法律费用、业主聘用的与建筑物的运作直接有关的所有独立承包商的费用,或业主在提供与建筑物有关的管理服务时合理收取的费用,(但管理费不得超逾基本租金的3%);及(v)在生效日期(a)后对建筑物作出的任何资本改善的成本(按照下一句的条文摊还),作为节省劳力的装置或为达致其他经济上的节省该建筑物的运作或维修(合理人预期可借此实际节省开支,(b)修理或更换已不能提供所需服务的资本项目,或(c)在本租契日期后对建筑物作出的(不包括对任何其他租客的处所作出的改善),而在租契签立日期时并不适用于该建筑物的任何政府法律或规例所规定的。上述基本建设改进的费用和根据本租约应由承租人负责的任何其他基本建设改进的费用,应在根据公认会计原则确定的有关资本项目的使用寿命内摊销,但在任何情况下,不得超过十(10)年,连同业主为建造该等资本改善工程而借入的资金的未摊销馀额的利息,按照《华尔街日报》公布的这一期间的“最优惠利率”,这些资金将提前支取,再加上2%(“利率”)。租户根据本合同要求支付的与业主实施的任何伤亡保险有关的任何与基本建设改进有关的“可扣减”金额,应按照公认会计原则在修复工程的使用寿命内摊销;条件是,然而,租户不应对超过(i)$10,000或(ii)实际损失的百分之十(10%)两者中较大者的任何可扣除金额负责。

即使本条例另有规定,开支并不包括,而租客在任何情况下均无须依据本条例第3或7(b)条缴付费用,(aa)与工程的初步建造或建筑物所在土地的取得有关的任何费用;(bb)向租客或任何其他租客提供租客改善工程的费用;(cc)偿债(包括但不限于财务费用、利息、本金,就建筑物及(或)建筑物所在的不动产所记录的任何按揭或信托契据而须缴付但未根据第3(d)款予以偿还的扣押款项及滞纳金,但根据第3(d)款所征收的还本付息及融资费除外(v)第3(c)(1)(d)款;(dd)特别服务费用,向任何租户提供的货物或材料;(ee)折旧;(ff)管理费,不论是否支付给业主、其附属公司或任何其他方,超过基本租金的3%(3%);(gg)业主欺诈造成的费用,(h)业主有权获得并已从他人获得补偿的费用(包括如果业主遵守第2款的规定,业主本应通过本租约规定的业主保险获得的保险补偿(二)纠正房舍原建筑中的任何建筑或设计缺陷的费用,(j)在任期内对建筑物的结构要素(包括混凝土倾斜墙)、屋顶结构(包括膜)、地基、平板玻璃(因施工原因而不是因破坏而破裂)进行修理、更换和升级,(k)业主根据第39段赔偿租户的任何费用;(ll)广告费或促销费;(mm)租赁佣金;(nn)事故发生后的任何修理或重置费用,但以通过保险或在任何可扣减数额的范围内偿还为限(oo)谴责当局造成的任何修理或更换费用;(pp)诸如暖通空调设备等任何基础建筑设备的租金付款,(q)法律费用、会计费用或与建筑物和财产的管理无直接关系的任何种类的咨询费用(与业主的业务相对

 

- 4 -


合伙)或本租约其他地方没有明文规定的任何费用;(rr)付给与业主有关的联属公司或各方的服务或材料的任何费用,但以该等费用超过该等服务或材料的公平市价为限(业主的3%管理费须当作(ss)业主已在本租约其他地方弥偿租客的款额及罚款,逾期付款的处罚和费用,除非租户未能及时支付租金和其他费用;(tt)自获得建筑许可证之日起因违反适用于建筑物的法律而必须进行的修理或建造;(uu)艺术品;(vv)发生的费用和开支业主就改善建筑物(不包括处所)以符合伤残或人寿保险规定而作出的补偿,或《生命安全法》、法令、法规或其他法律,包括但不限于《美国残疾人法》,在获得建筑许可建造建筑物时生效;(二十)装修、重新装修费用,(yy)支付给业主执行人员或高级职员或合伙人的工资、薪金、费用和附带福利;(zz)业主所得税、超额利润税、特许经营税的任何费用,或业主业务的类似税项;(aaa)该建筑物内租客或任何其他租客并非依据该租客租约的营运开支条文(包括但不限于本条例第3(c)条的条文)而被收取的任何费用;(bbb)任何修葺工程的费用业主因建筑物被全部或部分毁坏或因建筑物的一部分被谴责而作出的赔偿,但以业主根据本租约的规定须维持的任何保险单所支付的费用为限;(CCC保险费如因使用或可归因于使用而增加,另一租户的占用或行为;(ddd)业主根据与本款类似的条款通过保险获得补偿或由建筑物租户以外的其他各方以其他方式获得补偿的任何项目的费用;(eee)向相关公司、实体支付的任何业务费用(f)建筑物最初建造时使用的工具和设备的费用;(g)为任何租户进行的任何工作或服务的费用或向其提供的设施的费用在更大程度上或以比为租客进行的工程或为租客提供的设施更有利的方式进行;(hhh)为租客进行的工程或提供的服务或为租客提供的设施的费用,单独向特定租户收费,并由特定租户支付;(iii)租赁给其他租户的建筑物空间改建费用,(jjj)业主为弥补其过失或履行本租约明确规定的工作而支付的加班费或其他费用,应由业主承担;或(kkk)向地面出租人支付的地租或类似款项。

所有费用和开支应按照一贯适用的普遍接受的不动产管理惯例确定(应计项目应与业主的业务相适应)。

(e)“费用年”系指自2007年1月1日起每连续十二(12)个月期间。

(二)缴纳房地产税:业主收到任一纳税年度的税单后,合理及时缴纳,业主应向租户提供一份报表,其中应包括一份税单副本(此处称为“业主税单”),列明该课税年度的房地产税数额以及租户在其中所占的份额。除非下文第3(c)(4)款另有规定,租户应在业主开出账单后三十(30)天内,在不违反租户在第3(c)(1)(c)款中的争议权利的情况下,向业主支付租户在实际房地产税中的份额。在任何情况下,房东都不能收回超过实际税收的100%。

(3)开支的支付:如业主依据上文第2(b)段的条文提早交付占用处所,而租客开始在该处所经营业务,则由开始日期(或租客开始在该处所经营业务的日期)起计生效日期前的处所),除非第3(a)段另有规定,否则租客须在该开支年度的每个月的第一天或之前,预先向业主缴付该开支年度租客所分担开支的十二分之一(十二分之一)作为额外费用,以业主合理估计并由业主向租客收取的款额为限,业主有权初步厘定每月估计数,并不时修订该等估计数,但在任何情况下,每历年不得多于两次。在每一费用年度终了后的情况下,应尽快,

 

- 5 -


业主应向租户提供一份报表(在此称为“业主费用报表”),合理详细地列出该费用年度的费用和租户应分担的费用。如租客在该开支年度的实际开支中所占的份额超过租客在该开支年度所支付的估计开支,则租客须向业主支付款项,但须顾及租客在第3(c)(1)(d)段中的争议权利,租户在收到业主支出报表后三十(30)天内支付的实际支出份额与租户实际支出份额之间的差额,而租客就任何该等开支年度所支付的总额,如超逾租客在该等开支年度的实际开支中所占的份额,(如业主的开支结算表迟于开支年度结束后九十(90)天交付,则连同该超出部分的利息,自费用年度终了后九十(90)天起至此种超出部分贷记或全额退还之日止的利率,应贷记入下一期承租人应向业主支付的租金,或如果该期租金已到期须于三十(30)天内交还租客,业主因租户付款(作为租户分担费用的一部分)而收到的项目水电回扣,只要在租约期满后两年内或在租约终止前收到,即应转交租户。如果确定承租人在租期最后一年多付了费用(包括退还适用于承租人的水电费),则业主须在业主作出上述决定的日期后第30(30)天或之前,向租客偿还上述超收款项(如超收款项的利息是在费用年度结束后第90(90)天或之前作出的,则须连同租期届满,自该费用年度结束后九十(90)天起至该超期未全额偿还之日止的利率)。依照本款发生的任何争议,均应依照本租赁合同的仲裁条款解决。

(4)其他:由于(i)业主贷款人要求开立代管账户(即业主贷款人要求的保险和税项),业主应在适用期限之前支付任何房地产税或费用,或(ii)由于服务或事宜(例如保险或税项)的惯常做法是向第三方发单当局预付款项,业主可(i)将该等物品包括在业主就该等物品须由业主支付的日期前的期间所作的预算内;及(ii)如业主在该等物品须由业主支付的日期前尚未收取该等物品的全部款额,房东可将这笔全额馀额列入每月额外费用订正估计数。如开业日期(或如业主依据上文第2(b)段的条文提早交付占用处所,而租客是在起生效日期)或届满日期应为课税年度及/或开支年度的第一天以外的日期,房客在房地产税和费用中所占份额,就开始营业日期(如业主依据上文第2(b)段的规定提早交付占用处所,而租客是在该日开始营业的)的课税年度及/或开支年度而言起生效日期前其在处所的事务)须按比例分摊,

(5)审核:租客在收到业主的开支报表或税项报表后一百八十(180)天内,有权查阅业主与该等开支报表及税项报表有关的簿册及纪录。承租人在进行该项检验时,须同意并须安排进行该项检验的代理人及雇员以书面同意将该等簿册及纪录所载的任何及所有资料保密,除非租客与业主就额外收费有任何争议,否则租客可向审裁人披露该等资料,但租客须在法律程序中订明为保守该等资料的机密性而合理需要的保护令或其他命令。这种检查可以由租户的雇员进行,也可以由租户选择的会计师事务所或审计事务所进行,这些会计师事务所或审计事务所习惯于从事这类活动,不收取或有费用。业主与租客之间就上述审查或审核结果所达成的妥协、和解或调整所取得的所有资料,均须由租客及租客所选择的任何会计或审计事务所严格保密,除非在业主与租客之间的任何诉讼或仲裁程序中,就该项审查或审计,向租客的顾问,或按适用法律的规定,作出任何合理需要的披露。如果租户根据这种审计确定,租户认为其在适用的支出报表或税率表所涉年度多付了费用或房地产税,租户应在收到适用的费用报表或税单之日起二百一十(210)天内将其争议通知业主。通过任何此类审查或审计获得的所有信息,以及业主和租户之间就此类审查或审计结果达成的任何妥协、和解或调整

 

- 6 -


除业主与租客之间就该项审查或审计而进行的任何诉讼或仲裁中有任何合理需要披露予租客的顾问外,租客及租客所聘用以进行该项审查或审计的任何会计或审计事务所均须严格保密,或根据适用法律的要求。房客向房东发出纠纷通知后,房东和房客应在此后三十(30)天内设法解决纠纷。当事人不能在三十(30)天内解决争议的,应当按照本租赁合同第四十款的规定通过仲裁解决争议。如租客在任何该等仲裁程序中占优势,则业主须迅速向租客偿还该等超额款项,而如该等超额款项超过业主就该审计所涵盖的税项或开支年度所缴付的实际开支或地产税的百分之四(4%),业主须承担审核费用,最高限额为5,000元,并按利率偿还逾期款项及利息。此外,如承租人在该等仲裁中胜诉,租户有权在仲裁胜诉后十五(15)天内向业主发出书面通知,证明租户选择行使上述权利,从而对过去三(3)年内的同一费用或税项进行审计。上述审计应依照本款的规定进行。如租户未能在一百八十(180)天内反对任何该等开支报表或税项报表,或要求对该等开支报表或税项报表进行独立审计,则该等开支报表及/或税项报表即为最终报表,不得作出任何审计、质疑或调整。

(d)滞纳金。租户认识到,延迟支付任何基本租金或额外费用将导致业主的行政开支,而额外开支的程度极难确定,而且在经济上也不切实际。因此,租户同意,如果在业主发出书面通知之日起三(3)天后仍未支付任何基本租金或额外费用,则此种未支付的基本租金或额外费用的数额应增加租户应向业主支付的滞纳金,作为附加费用,数额相当于拖欠基本租金或附加费用数额的百分之五(5%)(或任何抵押权人因逾期支付每月抵押贷款而可能收取的不超过百分之六(6%)的较高数额)。此外,任何未付基本租金、附加费、滞纳金及其他未付款项,须按年息10%或“主要”、“基数”两者中较大者累算利息,《华尔街日报》报道的美国银行NT&SA的“指数”或“参考”率在上述五(5)个营业日的最后一天加2%(2%),但在任何情况下都不大于法律允许的最高比率(“违约率”),但如美国银行NT&SA停止设立或公布“Prime”、“Base”、“Index”或“Reference”利率,不论其名称或名称为何,则违约率须参照“Prime”、“Base”的平均数厘定,《华尔街日报》报道的花旗银行(Citibank N.A.)和大通曼哈顿银行(Chase Manhattan Bank,N.A.)的“指数”或“参考”汇率(如果这两家银行机构公布的汇率不止一种,则所使用的汇率应为这两家银行机构公布的最高数额)。虽有上述规定,业主无须在任期内的任何两(2)年期间内提供多于两(2)次上述通知,自第三次不付款之日起,即该款项到期日后三(3)天内,在无须业主通知的情况下,就该第三次不付款而累积的迟付费用。租客同意,该款额是业主因租客逾期付款而蒙受的损失及开支的合理估计,并可由业主收取以支付该等损失及开支。第3款(d)项的规定并不免除承租人在到期之日或之前缴付基本租金或额外费用的义务,或以任何方式影响房东根据第19款采取的补救办法【房东的补救办法】,如果任何基本租金或额外费用到期后仍未支付。

(e)额外租金:承租人除基本租金或额外费用外,在本合同项下应支付的所有款项均应作为“额外租金”支付,并统称为“额外租金”。

4.对使用的限制。租客不得在该处所内或其周围作出或容许作出任何会妨碍或干扰该建筑物或该工程的其他租客或占用人的权利,或会伤害或不合理地烦扰他们的事情,不得使用或容许该处所作任何非法用途,租客亦不得在该处所内、该处所内或其周围造成、维持或容许任何滋扰。租客不得在该处所内、该处所内或该处所周围制造或容受他人制造任何废物。上述限制应平等地适用于建筑物和项目的所有租户或占用者。

 

- 7 -


5.遵守法律。承租人不得使用该处所或准许在该处所内或该处所周围作出任何会以任何方式抵触现行或日后可能制定或颁布的任何法律、法规、条例或政府规则或规例的事情。租客不得在该处所内或其周围作出或准许作出任何事情,亦不得携带或存放任何会以任何方式提高该工程或其任何内装物的保险费率的东西(除非租客同意支付该等增加的费用),或致使取消该等保险,而租客须立即遵从所有法律、规程、条例及政府规则,费用及费用全由租客负担,现已生效或日后可能生效的规例或规定,以及任何防火委员会承保人或其他现时或日后组成的类似团体有关或影响处所的状况、使用或占用的规定,(i)租户对处所的独特使用,(ii)租户所作或为租户所作的改建或改善,或(iii)租户的疏忽或故意失当行为所致。上述限制和义务应平等地适用于该建筑物的所有租户或居住者。第5款的规定绝不应限制承租人支付租约第3款所述费用的义务。任何具有司法管辖权的法院在针对租客(不论业主是否租客的一方)的诉讼中所作的判决或接纳租客,已如此违反任何该等法律、法规、条例、规则、规例或规定,即为业主与租客之间该等违反事项的确证。业主代表租客并向租客保证,该建筑物由业主设计及建造的部分,须符合所有适用的法律、规则、规例、条例、建筑守则及任何公共主管当局的命令,包括但不限于与生效日期生效的危险物质(定义见下文)有关的危险物质。

6.更多的改动。租户有权在未经业主同意的情况下作出改动(“小改动”),只要这种改动不违反下列四项条件中的任何一项(在大改动的定义中),并且在任何历年的费用不超过10000美元。租户不得作出或容受作出任何额外的改动、增补或改善,而该等改动、增补或改善如超逾上文所列明的款额限制,或(i)对建筑物的结构或其电力、水管、暖通空调或其他系统有实质影响,或(ii)从处所外部可见,(三)未经业主事先书面同意,不符合本合同规定的租户许可用途,或(四)通常不被认为是惯常办公用途和(或)研究与开发用途(“重大改建”)的典型用途,业主不得无理拒绝、附加条件或拖延同意。业主在收到租户的书面批准请求后十五(15)个历日内未予批准,即构成业主批准。处所内、处所上或处所外的任何改动(不论是重大改动或轻微改动),除租客的动产家具及设备外,均属租客在租期内的财产,并须在租期结束时成为业主的财产,而无须向租客作出补偿。所有轻微改动均须由租客作出,费用及开支全由租客承担;如业主同意作出任何重大改动,则租客须按照业主合理批准的图则及规格,自费作出该等重大改动,而任何承办商或租客选择的人作出上述选择,必须先获得业主的合理书面批准。在租期届满或提前终止时,租客须应业主的要求,在业主的选择下,(i)由租客负担全部费用及开支,并须尽职尽责地立即撤销租客所作或为租客而作出的任何重大更改,业主指定须移走(但如租客在安装该等重大改动前提出书面要求,业主须在该时候通知租客该等重大改动是否必须在本租约届满或提前终止时移走),并在正常损耗及租客根据第20或(ii)段就伤亡损害所享有的权利及承担的义务的规限下,将处所恢复至生效日期的原状,并向业主支付合理估计费用。

7.维修和保养。

(a)业主应负责下列维修和保养义务:(i)建筑物外部(包括玻璃)、结构部分、屋顶结构(包括薄膜)和混凝土板的维修和保养;(ii)建筑物电气、机械系统的维修和保养,(三)停车场、庭院、人行道、入口通道、草坪、园林绿化及其他类似设施。在紧急情况下,租户有权直接与业主认可的业主联系,并下令维修。如果业主和租户之间就应由哪一方支付上述维修和保养费用发生争议,应根据本租约第40款通过仲裁解决争议。

 

- 8 -


(b)租客须保养及维修处所的内部部分及只为处所服务的任何改善工程,例如保安系统,以及租客或其代表在处所内安装的任何额外租客改善工程、改建或增补工程,不包括其任何结构性部分或业主根据第7(a)段有义务承担的部分。租户须负责其电话及其他通讯电缆的安装、操作及维修费用,该等电缆须由进入建筑物的地点起计至处所及整个处所。根据《加州民法》第1941条和第1942条,或根据现行或今后生效的任何类似法律、法规或条例,房客特此放弃并放弃由房东支付修理费的权利。此外,承租人特此放弃并解除其根据《加利福尼亚州民法》第1932(1)条或根据目前或今后生效的任何类似法律、法规或条例终止本租约的权利。如租客在业主发出书面通知三十(30)天后仍未能尽职尽责地进行租客所需的修葺工程,业主可负担租客的费用,而业主所招致的合理开支,须在呈交账单或报表后三十(30)天内,立即作为额外租金予以偿还;但如属非紧急修理,租户有权在收到业主书面通知后十(10)个工作日内以书面形式通知业主,租户如有争议,应由租户进行修缮。如租客向业主提供上述书面通知,业主及租客须在其后二十(20)天内设法解决争议。当事人不能在二十(20)天内解决争议的,应当依照第四十款的规定通过仲裁解决。在纠纷解决之前,业主不得进行任何非紧急维修。业主进行紧急维修时,租户有权在租户得知紧急维修消息之日起十(10)个工作日内以书面形式通知业主,承租人对是否需要进行此种修理或此种修理的费用是否属于业主在本租约下的责任提出异议。如租客将该争议通知业主,则业主及租客须在其后二十(20)天内,设法解决该争议。当事人不能在二十(20)天内解决争议的,应当依照第四十款的规定通过仲裁解决。

(c)第7款(a)项和第7款(b)项的目的是界定业主和租户履行各种维修和保养职能的义务;有关费用的分配载于第7款(c)项和第3款。租户须承担维修或保养内部或外部、结构或其他方面的全部费用,以保持处所及建筑物的良好运作状况及状况,产生于(i)租客对处所作出的任何更改或修改的履行或存在;(ii)装置,租户财产或固定装置的使用或操作;租户财产或固定装置在建筑物内外或在房舍内及其周围的移动;或除非因上述任何情况而产生的任何索赔通过业主投保的保险得到偿付(或如业主维持本租约第10(f)段规定的保险,本应由业主根据本租约规定投保的保险予以偿付),适用于第11段放弃代位权或第20段另有规定的租客或其任何受雇人、雇员、承建商、代理人、访客或持牌人的作为、不作为或疏忽,或承租人或任何该等人对处所的特定用途、特定占用或使用方式或占用。

(d)除因上述任何一项而产生的申索由业主所投保的保险予以偿付、由第11段中的代位求偿权的放弃所涵盖或由第20及21段另有规定外,就以下各项而言,租金并无宽减除了房东的毛外。业主如因楼宇任何部分(包括处所)或其固定装置、附属物及设备的维修、保养、更改或改善而对租客的业务造成任何损害或干扰,业主无须负上任何法律责任。

8.留置权。租客须保持处所不因其所进行的工程、所提供的物料或所承担的义务而有任何留置权。如租客在(i)租客实际获悉施加任何该等留置权的日期后二十(20)天内,或(ii)租客接获业主就该等留置权发出的书面通知的日期后二十(20)天内,除本条例及法律所规定的所有其他补救措施外,业主亦有权而非有义务,安排以其认为适当的方式予以释放,包括支付引起这种留置权的求偿款。业主支付的所有该等款项及因该等款项而招致的一切开支,均须视为额外租金,并须由租客应要求向其支付,并按利率计算利息。业主有权随时在楼宇内张贴及张贴任何

 

- 9 -


法律准许或规定的通知,或业主认为适当的通知,以保护业主、处所、建筑物及与该建筑物有利害关系的任何其他方面免受机械师和物质人留置权的影响,而租客须于五(5)个营业日前向业主发出在该处所内开始施工的通知。

9.转让和转租。

(a)除非本条第9款另有规定,否则租客不得直接或间接、自愿或依法出售、转让、抵押、质押或以其他方式移转或抵押以下处所或租客的租赁产业的全部或任何部分(统称为“转让”),或准许处所由租客以外的任何人占用,或将处所(统称“分租”)或其任何部分转租,而无须业主事先书面同意,业主不得无理拒绝同意或拖延同意。在不以其他方式限制业主拒绝同意任何建议转租或转让的准则下,如果房东拒绝同意(i)拟议转租承租人或受让人的信誉不能为房东合理接受(例如,没有合理证据表明转租承租人或受让人能够支付向转租承租人或受让人收取的租金),拟议的转租承租人或受让人对房地的使用不符合基本租赁资料所述的允许承租人对房地的使用,这种拒绝同意应推定为合理的。如业主同意转租或转让,租客其后可按第9款所列条款及条件订立有效的转租或转让。

(b)租客如欲在任何时间订立本租契或处所或其任何部分的转租契,须先以书面通知业主其意愿,而该通知书须载有(i)建议受让人的姓名或名称(ii)拟在该处所经营的受让人、分租客或占用者的业务的名称;(iii)拟转让或分租的条款及条文;(iv)如属分租,为将处所内进出、使用浴室、楼梯及升降机所需的部分设置为公用地方而作出的安排,及拟转租处所的使用及享用所需的拟转租人的类似权利,以及该等权利须符合所有适用的法律;及(v)业主合理地要求的关于拟转租处所的受让人、转租人或占用人的财务资料。

(c)在业主接获第9(b)段指明的通知后十(10)个营业日内的任何时间,业主可向租客发出书面通知,选择(i)就租客通知内指明的处所部分(只要(a)分租期限(包括分租承租人延展或续期该期限的任何权利)终止本租契有关处所的部分将于任期届满前六(6)个月的日期或之后届满,或(b)此处的指名租客、透过准许转让而成为受让人的任何转让实体(定义见下文)及其任何联属公司,在迁出租客通知书所指明的处所部分后,不会集体占用,根据本租约,该建筑物至少有5000平方英尺可用面积),并按比例减免租金和其他费用,租户将合作建立租户给业主的通知中所述的“公共区域”;(ii)同意转租或转让,其同意不得无理拒绝、附加条件或拖延;或(iii)不批准转租或转让,并说明其具体理由。即使第9(c)段另有规定,业主仍无权享有第(i)段所列的权利,(ii)如转租予“联属公司”(下称“联属公司”),或如转租或转让是就“准许转让”(下称“准许转让”)而作出的,则属第9(c)款第(ii)及(iii)项所指的情况。如业主就部分楼宇选择上文第(i)款所述的方案,租客须随时提供合理及适当的通道进入该部分楼宇及使用任何公用设施,而业主有权全权酌情将该部分处所作任何合法用途而使用或转租。如业主在上述十(10)个营业日内同意转租或转让,租客其后可在业主同意后三百六十五(365)天内,但不得迟于上述三百六十五(365)天届满,根据租客根据第9(b)段向业主提交的通知书所载的条款及条件,订立该处所或其部分的转让或转租。业主未在上述十(10)个营业日内同意或拒绝同意拟议的转让、产权负担或转租,应视为业主对此表示同意。业主有前款第(一)项规定的收回权利,但不行使的,转租或者转让所得的收益,由转租承租人或者受让人按照百分之五十(50%)的比例分给业主

 

- 10 -


50%(50%)付给租户,扣除与房地转租具体有关的合理费用,包括经纪费用、合理的法律费用和租户改善费用后,全部在转租期内摊销。转租利润的定义是,转租空间按比例面积,分租人支付的租金总额(包括业务费用偿还款)超过承租人支付给房东的租金总额(包括税收、保险和业务费用)的部分。

(d)业主对租客的任何转让或转租的同意,并不解除租客根据本租契须履行的任何义务,不论该等义务是在该项转让或转租之前或之后产生的。业主对任何转让或转租的同意,并不免除租客就任何其他转让或转租取得业主书面明示同意的义务。任何不符合第9款规定的转让或转租均属无效,并由业主选择,构成租客在本租约下的重大失责行为。业主接受拟受让人或转租承租人的租金、附加费或额外租金,不构成业主同意该项转让或转租。

(e)下列各项应视为承租人在本租约中权益的自愿转让:承租人的任何解散、合并、合并或其他重组;承租人的股本不公开交易的,向一个人或实体出售或转让拥有所有类别承租人已发行、未偿还和有权投票选举董事的全部合并表决权的百分之五十(50%)以上的股份。尽管第9段有任何相反的规定,租户可在未经业主事先书面同意及不受业主终止或不受上文第9(c)段所规定的租金分享权规限的情况下,进行下列任何转让(“准许转让”):(1)租户可将其在租赁中的权益转让予法团、合伙企业、专业法团,有限责任公司,或因合并、合并或其他重组而产生的有限责任合伙企业(“转让实体”),只要转让实体在紧接此类交易之后的净值等于或大于承租人在本租赁之日和紧接此类交易之前的净值;以及(2)承租人可转让该租赁给购买或以其他方式获得承租人全部或基本上全部资产的转让实体,只要这样的获取转移实体在紧接这样的交易之后具有等于或大于在紧接这样的交易之前的日期的承租人的净值。

(f)每名受让人、转租承租人或其他受让人须按本第9(f)段的规定,承担租客在本租契下的所有义务,并须与租客共同及各别就缴付租金、附加费及额外租金负上法律责任,及为履行本协议所载承租人须履行的所有条款、契诺、条件及协议;但受让人、转租承租人、承按人,质权人或其他受让人仅对业主承担转让或转租所列金额的租金责任,并只须履行租赁所规定的与转租的房产部分有关的义务或与转让或转租的房产利息有关的义务转让的租约,任何转让均不对业主具约束力,除非受让人或租客须向业主交付一份转让的对应物及一份可记录形式的文书,而该文书须载有受让人在实质上及形式上令业主满意的承担契诺,符合第9款(f)项的要求,但受让人不履行或拒绝履行此种承担文书,不应免除或解除受让人的上述赔偿责任。

(g)尽管有与此相反的第9款的任何其他规定,租户仍有权不经业主同意,但至少在此之前十(10)天书面通知业主,并且不受业主终止合同或享有上文第9(c)款规定的租金分享权的限制将承租人在该处所的全部或任何部分的租赁或转租中的权益转让予联属公司(定义见下文),但(i)联属公司须在该项转让的同时,向业主交付一份书面转让通知书及一份假设协议,据此,联属公司须承担及同意去表演,遵守和遵守本租约的条款、条件、义务和规定,以及(ii)在本租约有效期内,该实体在任何时候都是附属公司。租客根据第9(g)段作出的转租或转让,并不解除租客在本租约下的责任。在此使用的“关联公司”一词是指并统称为控制租户、由租户控制或与租户共同控制的公司或其他实体,通过拥有(一)50%(50%)以上的已发行有表决权的股票或(二)股票、合伙企业、成员资格或其他所有权权益,规定有权控制适用实体的业务、交易和活动。

 

- 11 -


10.保险和赔偿。

(a)业主须弥偿(i)就任何人或财产所受的任何伤害或损害而提出的任何及所有申索或法律责任,包括任何合理的律师费(但在任何情况下均不包括任何间接损害或业务损失,但如该等申索或中发生的业主的故意不当行为而导致的责任),(ii)因业主、其代理人、雇员、承建商、雇员(统称业主、“业主一方”)的疏忽或故意不当行为而造成的任何及所有申索、损失或法律责任,包括业主违反本租约而对租客物业费造成的损害(但不包括任何间接损害或业务损失)。

(b)业主无须对租客负上法律责任,而租客特此放弃因任何因由或因任何因由(业主各方的疏忽或故意失当行为除外)而对业主各方就处所内或其周围的任何人或财产所造成的任何伤害或损害而提出的一切申索,包括业主在建筑或物业管理方面的疏忽或故意失当行为),但并不限制前述条文的一般性,不论该等疏忽或故意失当行为是由屋顶、墙壁或处所或建筑物的其他部分漏水所致,还是由气体、火警、石油、电力所致,或处所、建筑物或其任何部分之内、之上或周围的任何因由(因业主一方疏忽或故意不当行为所引致的因由除外)。租户承认,业主投保的任何伤亡保险都不包括租户的收入损失或租户或租户个人财产在房地内安装的房舍改建所造成的损失。租用者须在租期内维持第10(d)段所述的保险。如果本款的规定与关于危险物质赔偿责任的租约第39款的规定不一致,则应由后者加以控制。第10条第10款(b)项的任何规定无意也不应被视为凌驾于第11款的规定之上。

(c)地主方的疏忽或故意不当行为所引致的范围除外,租客须就以下对任何人或财产造成的任何伤害或损害,向业主作出弥偿及使业主不受伤害,并就任何及所有申索或法律责任向业主作出抗辩:(i)发生于该处所内或该处所内;(ii)发生于,或工程的任何其他部分,而该等伤害或损害须由租客、其代理人、受雇人、雇员或受邀请人(统称租客,包括“租客各方”)的疏忽或故意不当行为所引致,或(iii)租客违反本租约所引致。租客亦同意就任何及所有申索、损失,向业主作出弥偿及使业主免受其害,并作出抗辩,(x)承租人违反本租约的行为和/或(y)承租人在项目内或与项目有关的任何工作或业务的进行,包括但不限于任何有害物质的释放、排放、储存或使用所引起的责任(包括对业主财产的损害),危险废物、有毒物质、油、炸药、石棉或类似材料。如果本款的规定与关于危险物质赔偿责任的租约第39款的规定不一致,则应由后者加以控制。第10条第10款(c)项的规定无意也不应被视为凌驾于第11款的规定之上。

(d)承租人应自费购买下列保险,并在保险期内继续有效:

(1)商业一般责任保险,包括合同责任,最低合并单一责任限额为300万美元(300000美元)。此种保险应将业主列为附加被保险人,应具体包括承租人在本合同项下承担的责任,并旨在作为基本保险,而不是超出或分担为业主或代表业主实施的任何其他有效的、现有的和适用的保险,并须规定业主在任何取消或更改承保范围前,须收到保险人发出的三十(30)天书面通知;

(2)“一切风险”财产保险(包括(但不限于)锅炉及机械(如适用的话);由租客或代表租客安装在处所内的任何改建工程的洒水损毁、故意破坏及恶意损坏)租客自费安装在处所内的所有租赁权益改善工程,以及租客的全部个人财产该等保险须包括《建筑物条例》的条文(就该等条文将适用的改动而言)。此种保险的数额应等于上述总额的全部重置费用,并应提供与标准ISO所有风险表格中的承保范围相当的承保范围,当此种表格补充了上述所需的承保范围时,并应指明业主为损失受款人;

 

- 12 -


(三)工伤保险;以及

(四)法律规定的其他保险。

第10款(d)项规定的所有保险单应由每一承运人签发,每一承运人的最佳保险报告保险单持有人等级不低于A级,财务规模类别不低于VIII级。租客须在生效日期当日或之前,以及其后在业主提出书面要求后十(10)个营业日内,随时向业主交付该等保险的保单或证明书。如租客未能在上述期限内取得及维持该等保险的全部效力,或未能在上述期限内交付该等保险单或证明书,业主可自行选择为租客取得该等保险单或证明书,而其费用须于帐单交付租客后五(5)个营业日内,作为额外租金支付予业主。

(e)对于在本合同期满或终止之前发生的任何索赔或赔偿责任,本合同期满或终止后,本合同第10款的规定继续有效。

(f)业主须就该工程保有火灾保险及“一切险”(地震及水灾除外,但业主可自行选择)所承保的风险,可以在“重置费用”的100%基础上包括这一保险(尽管在这一保险下可以包括合理的扣除额),但条件是可以以商业上合理的费率获得这一保险。业主保险:(i)须为建筑物投保;(ii)不承保租客或其代表在处所内安装的任何改建工程;(iii)须订有《建筑物条例》条文;及(iv)须就为期十二(12)个月的租金中断保险作出规定。在任何情况下,业主不得同意任何此类保单下的任何共同保险义务(超出标准免赔额)。业主还应维持商业一般责任保险,包括但不限于合同责任保险(或附有合同责任背书的保险),每次保险金额不少于300万美元(300000美元),用于人身伤害或死亡和财产损失。尽管业主有上述投保义务,但在商业上合理的情况下,业主仍可修改上述承保范围。如果承租人不同意此种保险在商业上是合理的或认为没有必要,则承租人有权将此种事项提交仲裁。但是,如果在上述仲裁中以承租人为准,并且扣除额增加,则承租人应在发生伤亡时对增加的扣除额承担全部责任。

11.放弃申索及代位求偿权。尽管本租约另有规定,但在本豁免并不使各自的保险单失效或受损的范围内,双方应解除彼此及其各自的代理人、雇员、继任人,受让人和分租人对(i)项实际投保的风险所造成或导致的对任何人的伤害或对任何财产的损害承担一切责任,在根据该保险单收取款项的范围内(除非根据任何该等保险单未能收取款项是由于受保人没有遵从或遵守有关该等法律责任的保险单的条款及条件所致,此种释放不受此种限制)、(二)根据本租约必须投保的,或(三)通常由“一切风险延伸保险”财产和伤亡保险标准格式承保的,而不论如此释放的实体的疏忽或故意不当行为如何。业主及租客须各自根据他们其中一人在保险期内的任何时间所维持的所有火灾、盗窃及其他财产保险,向各自的保险人投保或承保该工程或其任何部分的内容,一方的保险人放弃对另一方的一切代位求偿权(如果有的话),房东和房客应各自赔偿因未能获得这种放弃而造成的任何损失或费用,包括合理的律师费。

12.服务和公用事业。

(a)在符合本条例其他条文及规则及规例的规定下,租客须负责安排及直接支付循环再造、清洁、保安、运输管理及纾缓计划、电话、电缆及数码服务,以及任何垃圾收集、供水、供电、供气的费用,或由租户使用或专为租户服务的其他公用设施或服务(即分别计量到房地或其一部分的公用设施);业主应配合租户安排此种服务的努力。此外,业主有义务为大厦提供暖通空调服务,包括

 

- 13 -


以及根据展览“B”的规定为该项目提供雨水排放系统和排水服务。房客同意随时与房东充分合作,并遵守房东为供暖、通风和空调系统的正常运作和保护而可能规定的一切合理条例和要求。

(b)在不违反本协定其他条款及细则和条例的情况下,业主应负责安排(在不违反业主根据第3款(c)项规定有权获得偿还的情况下)向公共区域提供下列物品:

(一)季节性的热水、冷水、电力、集中供热和空调,温度和数量由业主认为是标准的,或者由适用的法律、法规、规章和规章允许或者控制的;

(二)日常维护和修理;以及

(三)灯具、灯泡、镇流器。

(4)此外,除本条例其他条文及规则及规例另有规定外,业主须负责安排(但业主有权依据第3(c)(i)段的条文获发还款项)在建筑物外提供公用设施及服务,(ii)由租客及建筑物内一名或多于一名其他租客使用或为他们提供服务的垃圾收集器、水、电力、气体或其他公用设施或服务(即并非分别计量于处所或其部分的公用设施)。

(c)除非该等器具或装置已包括在业主批准的租客的舱位图则内,否则除非业主书面同意,否则租客不得使用处所内任何在使用时负荷过重的器具或装置(即不合理地扣留、调整或延迟使用该等器具或装置)。实质上超出所设计的建筑物负荷)上的建筑物或其结构或系统,包括但不限于,电子数据处理机和使用超出建筑物设计量的多馀照明或电压的其他机器,而没有为上述设备或装置的安全和充分运作提供必要的(业主有合理的酌处权)改动。

(d)如业主认为合理,租户使用业主向大厦提供的任何公用设施或服务,超出租户使用山景区内类似办公室空间作准许用途的惯常用途(包括但不限于营业时间以外的用途),租客须在业主向租客出示该等额外公用设施或服务的发票后十(10)天内,向业主支付提供该等额外公用设施或服务的费用,以及业主在厘定租客须缴付的费用时所招致的一切费用。租户为所有额外水电和(或)服务收取的费用应构成额外租金。

(e)一楼的暖通空调系统应于星期一至星期五上午7时至下午6时(“营业时间”)自动运行。租户应在下班后有一个开关,以便在非营业时间内启动大楼一楼的暖通空调系统。暖通空调系统的非营业时间运行费用应由租户承担,费用由业主直接承担,业主不加价。此外,业主应合理分配业主在建筑物内提供服务和公用设施的可变费用(如公用设施,如果多个租户同时在可预测和一致的基础上使用该系统,则应根据他们的实际使用情况在大楼内的租户之间作出合理努力,分配业馀费用。

(f)业主不得因(i)该装置而在本条例下失责,亦不得当作已将租客逐出,亦不得就(i)该装置直接或间接引致的任何损害负上法律责任,亦不得因(i)该装置而减低在本条例下预留的租金,使用或中断使用与上述公用设施和服务有关的任何设备;未能提供或拖延提供业主应提供的任何服务,如果这种未能提供或拖延是由于上帝的行为或各种因素、任何性质的劳动干扰造成的业主不能合理控制的任何其他事故或其他情况(上述任何一种,“不可抗力”),或

 

- 14 -


修理或改善处所或建筑物;或(iii)限制、削减、配给或限制使用水或电、气体或任何其他形式的能源,或任何为处所或建筑物提供服务的其他服务或公用设施。但是,上述规定不应被视为限制业主对上一句所述任何行为或事件的赔偿责任,这些行为或事件是业主的严重疏忽或故意不当行为造成的。此外,业主应有权以合理的方式自愿与国家、州或地方政府机构或公用事业供应商合作,以减少能源或其他资源的消耗。

13.承租人的证书。租客须在接获业主书面通知起计十(10)个营业日内,不时签立禁止反言证明书,该等证明书须发给(i)业主的任何承按人或准承按人,(ii)业主的全部或任何部分或权益的任何买方或准买方该项目,或(iii)任何一方以业主指明的表格取得业主的权益,证明该等事实(如属实),并同意该等承按人或买方合理地规定的通知条文及其他事宜;但,在任何情况下,任何该等不容反悔证明书均无须修订本条例的条文。业主及任何承按人或买方,或准承按人或买方,均可倚赖依据本条第13款交付的租客证明书。如果租户提出要求,业主应向租户提供类似的证明。

14.等一下。任何经业主同意而在租期届满后持有的物业,须解释为每月租金的125%(125%)的租赁,连同业主就根据这份租约,并须在适用的范围内,按本文所指明的条款及条件办理。任何未经业主同意的留置,均构成租客的失责行为,并使业主有权按照第19段的规定重新进入处所。

15.从属关系。承租人无须为达成从属关系而签立任何额外文件,本租契在任何时候均须服从及从属于:(i)影响该建筑物或该建筑物所在的土地或两者的现有或以后可能签立的所有地面租契或基础租契;及(ii)任何按揭或契据的留置权现在存在或以后可能以任何数额执行的信托,而该建筑物,土地、地面租赁或基础租赁,或业主在上述任何项目中的权益或财产,被指定为担保。虽有上述规定,业主仍有权将任何该等地面租赁或基础租赁或任何该等留置权从属于或安排从属于本租赁。如任何地面租契或基础租契因任何理由而终止,或任何按揭或信托契据被取消抵押品赎回权,或因任何理由而作出代替取消抵押品赎回权的转易契,则即使租客处于从属地位,根据业主利益继承人的选择,将该继承人的权益转让给业主并成为租客。租客契诺并同意应业主要求,以商业上合理的形式签立及交付任何额外文件,以证明本租约相对于任何该等地面租约或基础租约或任何该等按揭或信托契据的优先权或从属地位。租客须在业主提出书面要求后二十(20)天内签立、交付及记录任何该等文件,但该等文件须为租客合理接受。

16.规则和条例。承租人应忠实遵守和遵守本租约所附作为“C”证物的规则和条例,以及业主不时对其所作的一切合理、非歧视性的修改和增补。业主不应对该建筑物或项目的任何其他租户或占用者不履行上述规则和条例的行为负责。在合理排除的情况下,业主应以不歧视的方式将规则和条例适用于建筑物中的所有租户。如本租约的条款、契诺、协议及条件与业主不时修订及修订的规则及规例所载的条款、契诺、协议及条件有明确及直接冲突,本租约须予以管制。

17.由房东重新入住。业主保留并应在任何合理时间,经合理的事先通知(二十四(24)小时),但紧急情况除外,并须遵守租客合理的安全防范措施和租客随时陪同业主的权利,有权重新进入处所视察,提供看门人服务及业主根据本条例须向租客提供的任何其他服务(除非租客正在提供该等服务),并向准买家、按揭人或租客展示处所(至于准租客,仅在租期的最后六(6)个月内),以寄

 

- 15 -


不负责任的通知,或本租约或法律另有规定或准许的通知,以及更改、改善(如属更改或改善处所内部,只有在法律或第7款有此要求的情况下,才可进入)或修缮业主有义务或有权更改的房舍和建筑物的任何部分,按照本租契的条款进行改善或修理,并可为此目的而竖立、使用及保养棚架、喉管、导管及其他必需的构筑物,而该等构筑物是根据所进行工程的性质而合理地需要在处所内及通过处所而建造的。业主对任何不便、干扰、业务损失概不负责,如业主行使本款所保留的任何权利,则因业主进入及依据本款行事而造成的滋扰或其他损害,以及租客无权享有租金或附加费的宽减或扣减。除业主的疏忽或故意不当行为外,租户特此放弃要求赔偿对租户业务造成的任何伤害、不便或干扰、任何占用损失或对房舍的安静享受以及由此造成的任何其他损失。为上述每项目的,业主须时刻备有并保留一把钥匙,用以开启处所内、处所上及处所周围的所有门,但租客的保险库及保险箱或(事先指定的)特别保安区除外,而业主有权使用业主认为在紧急情况下打开该等门所需或适当的任何及所有方法,以进入处所的任何部分,以及进入处所的任何部分,业主以任何上述方式或以其他方式取得的或其部分,在任何紧急情况下,不得解释为或当作是强行或非法进入或扣留处所,或实际或推定为驱逐,指处所或其任何部分的租客。业主在重新入住时,应尽最大努力不不合理地干扰租户使用该处所或在该处所经营的业务。

18.无力偿债或破产。委任接管人接管租客的全部或实质上全部资产,或为债权人的利益而将租客作一般转让,或租客在任何无力偿债、破产、重组或其他债务人济助程序下已采取或遭受的任何行动,除非在九十(90)天内解除破产呈请、接管扣押或第三方寻求的其他补救办法,否则不论现有的或以后修订或制定的租约,业主均可选择构成租客违反本租约。一旦发生任何此类事件或在此之后的任何时候,本租约应在业主向租户发出书面终止通知后五(5)天终止。在任何情况下,本租约均不得因法律的施行、自愿或非自愿破产程序或其他方式而转让或可转让;在任何情况下,本租约或本租约项下的任何权利或特权均不得在任何破产、无力偿债情况下成为租客的资产,重组或其他债务人救济程序。

19.违约。

(a)租客未能履行或履行根据本租契订立的任何契诺、条件或申述,即构成下文所规定的适当补救期限届满时的“失责”。租客须有三(3)个营业日,由业主发出书面通知之日起计(该通知须代替而不是增补《加州民事诉讼法典》第1161条所规定的通知),以补救房租的支付,额外费用或额外租金。租客须有三十(30)天的期限,由业主发出书面通知的日期起计,在该期限内纠正本租约所订的任何其他失责行为;但如属除缴付租金外的任何失责行为,额外收费或额外租金如在三十(30)天内不能合理地补救,如租客在业主通知后三十(30)天内开始补救,并继续努力进行补救,则该失责行为不得当作未获补救。租户违约未获补救时,业主除享有法律上或衡平法上给予业主的任何其他权利或补救外,还应享有下列权利和补救:

(1)《加利福尼亚州民法典》第1951.2条所规定的权利和补救办法,包括但不限于追回判给未付租金时的价值,根据上述第1951.2条(b)款计算,判给期限结束后馀下时间的额外费用和额外租金超过租户证明可合理避免的同一时期租金损失额;

(2)《加利福尼亚民法典》第1951.4条所规定的权利及补救措施,该等权利及补救措施容许业主继续有效的本租约,并强制执行其在本租约下的所有权利及补救措施,包括追讨到期应付的租金、附加费及额外租金的权利,只要业主不终止租户的管有权;但是,如果业主选择行使其

 

- 16 -


第19(a)(2)段所述的补救措施和业主不终止本租约,租户应继续有权根据本租约第9段的所有规定转让或转租。业主主动维护或保存房屋的行为、重新出租房屋的行为或指定接管人以保护其在本租约下的利益,均不构成终止承租人的占有权;

(三)依照适用法律通知承租人终止本租赁的权利;

(4)如业主选择终止本租约,则有权及有权进入处所并将所有人及财产移走,以及有权及有权将该等财产存放于公众仓库或其他地方,费用由租客承担,并由租客依据适用的加州法律承担。

(b)业主须有三十(30)天的期限,由租客发出书面通知的日期起计,在该期限内补救本租约所订的任何失责行为;但如有任何失责行为不能在三十(30)天内合理地补救,如业主在租客获通知后三十(30)天内开始补救,并继续努力进行补救,则该失责行为不得当作未获补救。租客同意以挂号邮递方式,向任何承按人及/或信托契据持有人(承按人)发出送达业主的失责通知书副本,但须在该通知书发出前,以书面通知租客(借转让租金及租约通知书),(或其他)该等承按人的地址。承租人还同意,如果业主未能在本租约规定的时间内纠正这种违约行为,则承按人须有额外三十(30)天的时间(但租客须在业主三十(30)天期间开始时同时通知承按人及租客通知业主;否则承按人须自获通知之日起计有六十天的时间),以纠正该失责行为或者如果这种违约不能在这段时间内得到纠正,则如承按人已在该适用期间内开始并正努力寻求补救该失责行为所需的补救,则须给予补救该失责行为所需的额外时间(包括但不限于为补救该失责行为所需的启动止赎程序),在这种情况下,在采取这种补救措施期间,不得终止租约;但是,如果这种违约行为对承租人使用和享用房地造成重大干扰,抵押权人的这种额外时间应限于额外的三十(30)天。

20.火灾等造成的损害。如处所或建筑物因火警或其他伤亡事故而受损,业主须立即修理该处所或建筑物,但承租人不得选择按下述规定终止本租约,并可根据联邦、州和具有管辖权的地方政府当局的法律和条例,在此种损害发生之日起六(6)个月内进行此种修理。业主应修缮的工程范围应包括业主的工程,但不包括租户或其代表在房地内安装的任何改建工程。在这种情况下,本租约应继续完全有效,但承租人有权从损坏之日起,并在业主根据本合同进行修理时,按比例减免租金、额外费用和额外租金。如果有这样的租金减免,则须以以下各项中较大者为准:(i)因该等损害而不能出租的处所的面积占该处所总面积的比例;或(ii)该等损害及业主作出该等修理在多大程度上须干扰该业务由处所内的租客经营,(ii)第(ii)条只限于业主根据本租约第10段所订的业主义务而投保的“一切险”财产保险所容许的减租保险范围内。在此种损害发生之日起三十(30)天内,业主应在损坏发生之日起六(6)个月内通知租户,业主是否有合理意见(并由第三方建筑师或总承包商作出合理书面确认)可进行此种修理,此种确定对业主和租户均有约束力,如不能在损坏之日起六(6)个月内进行修理,业主可在损坏之日起三十(30)天内选择:(i)将业主修理损坏的意图通知租客,并尽力进行修理,在此情况下,本租约须继续全面有效,租客须负责全面维修及修复由租客或其代表安装在处所内的任何改建工程,以及租金,附加费用和附加租金应按本合同规定予以减免;或(ii)在通知中指明的日期通知租户业主选择终止本合同,该日期不得少于三十(30)天,也不得超过通知发出后六十(60)天。业主发出终止通知的,本租赁合同应在该通知规定的日期终止。如果房东通知房客,房东的修复需要六(6)个月以上的时间,房客应有权在收到房东通知后十五(15)天内终止租约,具体规定如下

 

- 17 -


业主以书面通知其选择终止租约;如租客以书面通知终止本租约(如业主根据紧接的前一句终止本租约),租客无须为业主在有关损害的保险下的免赔额(但根据租客在本租契第10(f)段所提出的要求而增加的免赔额除外)承担法律责任,而业主亦无须为租客修复该建筑物或房地.,如租客或业主终止租约,租金及附加费须根据该等损害对租客在处所内经营的业务造成的干扰程度,按比例扣减,而租客须缴付上述经削减的租金及直至终止日期为止的额外费用。业主同意退还租户任何租金和额外费用之前支付的任何一段时间后,上述终止日期。业主根据本条例在处所内所作的修理,只包括业主的工作,而不包括因火警或其他原因而对租客财产造成的损坏,或对任何镶板、装饰、栏杆的修理或更换,业主亦无须修理由租户或由租户负担费用而安装在处所的地面复盖物或任何改建、加建、固定装置或改善工程。承租人特此放弃《加利福尼亚州民法》第1932.2条和第1933.4条的规定。即使本条例另有相反规定,如建筑物的任何部分发生重大伤亡,而业主因该伤亡而获得的净保险收益为修复费用的百分之九十(90%)或较低百分比,重建或替换(前提是在发生伤亡时业主已有符合本租约要求的保险),则业主没有义务进行此种恢复、重建或替换,除非业主书面选择这样做。就本租约而言,“重大伤亡”指使建筑物净可出租面积的35%(35%)或以上不能使用,或对该建筑物的使用造成重大不利影响的伤亡。如果业主因发生符合前两句所述条件的重大伤亡事故而选择终止本租约,业主必须在伤亡事故发生之日起六十(60)天或之前书面通知租户终止租约。如果业主根据上述重大伤亡规定选择终止租赁,则经业主贷款人批准,租户有权全额支付保险收益的任何短缺,并促使业主恢复房地。租户必须行使上述恢复重大伤亡的权利,向业主发出书面通知,说明其选择这样做,并证明其有能力在业主向租户发出终止通知后十(10)个工作日内支付任何短缺的保险收益。

21.征用域。如超过10%(10%)的处所或超过10%(10%)为该处所服务的泊车位的任何部分,须根据征用权取得或拨作征用,或以转让代替征用或拨作征用,租客有权选择终止本租约;但承租人因占用超过百分之十(10%)的泊车位而终止的权利无效,条件是:(i)业主在占用后九十(90)天内在土地上建造停车场以取代上述泊车位,但须经承租人合理批准设计,(ii)如该泊车构筑物不能在上述九十(90)天内建造,业主在该九十(90)天内以书面同意在收租后二百七十(270)天内兴建该停车场,并在办公时间内提供代客泊车服务(不收费或不向租客收取费用),数目相等于已被如此占用或占用的泊车位,如业主同意兴建泊车构筑物,则须迅速展开并努力将该泊车构筑物的建造工程进行至完成为止。在上述任何一种情况下,业主均须收取(而租客亦须应业主的要求向业主转让)与行使上述征收权有关而可能支付的任何收入、租金、酬金或利息,而租客不得就凭借该等法律程序而支付的任何部分款项向业主提出申索,不论是否归因于本租约未届满期间的价值,但租客有权就下列事项向谴责当局提出呈请:(i)租客以自有资金支付的任何改建或租客改善工程的当时未摊还费用(相对于房东提供的任何津贴);租户贸易固定装置的价值;租户的搬迁费用;租户的善意,业务损失和业务中断;(v)数额的二分之一,即(a)本租约的奖金价值中较低者,或(b)超出应付给业主的地面出租人(如有的话)和抵押或其他第三方留置权持有人的款额的裁定款额,而该抵押权或其他第三方留置权是以业主的地面租赁产业或该物业的简单拥有权为抵押的。如处所的一部分须如此征用、拨用或转易,而本租约任何一方均不得选择终止本租约,而处所亦因该部分征用、拨用或转易而受损,业主应收回根据本租约继续使用的房舍,费用由业主承担;但条件是,业主无须修理或修复租客财产所受的任何伤害或损坏,亦无须修理或修复租客安装在处所内或由租客负担费用的任何改动。其后,馀下时间根据本租约须缴付的租金及额外费用

 

- 18 -


租期须按比例缩短,以致其后租客须缴付的款额,须按未如此收取的处所部分占该等收取前处所总面积的比例计算。即使第21段另有规定,如处所任何部分的暂时使用或占用须在租用期内根据征用权取得或拨用,本租契不受该项征用或征用的影响,而租客须继续全数缴付其在租期内须缴付的所有租金及其他费用;如有任何该项征用或征用,租客有权收取在租期内就处所的使用或占用而判给的补偿的部分,而业主有权收取任何判给的款项中有关在租期结束后恢复处所及使用及占用处所的费用的部分。如该临时占用期间超过九十(90)天,并不合理地干扰租客使用处所或工程公用地方,则租客有权终止租约,除非业主同意提供本条第一句第(ii)节所述的代客泊车服务(不向租客收取费用)。

22.房东卖掉了。如业主出售或以其他方式转让其在处所的权益,则自出售或转易日期起及之后,业主即获免除其在租契下的责任(包括业主在第39条下的责任),只有当房东将租客的任何保证金转让给继承人,而继承人以书面承担房东在转让生效之日及之后应履行的义务(包括房东根据第39段承担的义务)时,租客才应将此种义务转让给继承人。

23.业主执行的权利。除第20及21段另有明文规定外,承租人根据本租约任何条款须履行的所有契诺及协议,均须由承租人独自承担费用及开支,而租金、附加费或额外租金不得减免。如租客未能作出任何作为或缴付根据本条例须作出或缴付的任何款额,而该等不作为或款额须持续至第19段所述的疗养期届满后,业主可但并无义务作出该等作为或缴付任何款额,并且在不免除或免除租客的任何义务的原则下,租客须按照本租契的规定作出或履行任何该等付款或作出任何该等作为。业主如此支付的所有合理款项及所有必需的附带费用,连同按第3段所指明的利率计算的利息,自业主如此支付之日起,须按要求作为额外租金支付予业主。

24.交出房舍。

(a)在租期届满或其续期时,或在本租约终止前的其他时间,租客须将处所的管有权,连同业主所作的或属于业主的一切改善或加建,和平地交付业主,而不论该等改善或加建是由谁作出的,并须符合所收到的相同条件(例如,业主工程完成后的处所),或首次安装的处所,但须符合第21及39段的规定,并须符合正常损耗,以及租客根据第20段就伤亡损害、火警、地震、天灾而享有的权利及承担的义务,或业主根据本租约条款有义务修理或更换的任何项目除外(但业主有权根据第3款向租客收取修理和更换费用)。承租人在本租约终止时,可自行承担费用,移走属于承租人的所有个人财产、动产家具、贸易固定装置和设备,但条件是承租人须修理因移走这些财产而造成的任何损坏。未被移走的财产应视为承租人放弃的财产,其所有权随即转移给房东,但不包括任何知识产权。应房东的要求,但只有当房东有权根据第6款的规定要求搬迁时,房客才能搬迁,费用由房客承担,由租客安装或由租客负担费用而对处所作出的任何或所有改动,以及租客可能留下的属于租客的所有可移动家具及设备,并修理因移走该等家具及设备而造成的损坏。

(b)租客自愿或以其他方式交出本租契,或相互取消本租契,均不构成合并,并须由业主选择终止所有或任何现有的分租或转租,或可由业主选择终止,以转让任何或所有该等转租或转租的形式经营。

 

- 19 -


25.弃权。如业主或租客放弃履行本租约所载的任何条款、契诺或条件,则该项放弃不得当作放弃其后违反本租约所载的任何条款、契诺或条件的行为。此外,业主接受租金、附加费或额外租金,并不构成租客放弃先前违反本租约任何条款契诺或条件的行为,而不论业主在业主接受租金时是否知悉先前的违反行为,额外费用或额外租金。任何一方未能在任何时间内执行本租约的任何条款、契诺或条件,不应视为放弃或减少该一方此后坚持由另一方严格履行本租约的权利。任何一方对本租约所载任何条款、契诺或条件的放弃,只能以放弃方签署的书面文件作出。

26.通知。除本租契另有明文规定外,根据本租契发出或规定须发出的任何汇票、陈述书、通知、要求、要求或其他通讯,只有在以书面作出或以核证邮件、所要求的回执、信誉良好的隔夜承运人或亲自交付的情况下,方具效力,(i)租客在基本租契资料所载的租客地址;或(ii)业主在基本租契资料所载的业主地址;或(iii)业主或租客为此目的借发出通知而指定为其新地址的其他地址根据第26款的规定,任何该等汇票、陈述书、通知书、要求书、要求书或其他通讯,如以核证邮件送交,须当作已于回执显示交付或拒绝交付之日交付或发出,收件人接受信誉良好的隔夜承运人交付货物并签字的日期,或信誉良好的隔夜承运人表示拒绝交付货物的日期,或亲自交付货物的日期。如租客获书面通知承按人、地面或基础出租人的身分及地址,租客须以挂号或核证邮递方式,向该承按人、地面或基础出租人发出业主根据本租约条款不履行责任的书面通知而该等承按人或地面或基础出租人须为。在承租人行使其可利用的任何补救办法之前,给予补救这种违约行为(如第19(b)段所界定)的机会。

27.承租人应缴纳的税款。租户应在拖欠租金前至少五(5)天支付对租户位于房地内或其周围的设备、家具、固定装置和其他个人财产征收或评估的所有税款。如业主财产(包括但不限于该财产)的评估价值因其中包括租客或其代表在该处所内安装的任何改建工程或租客的设备、家具、固定装置或其他个人财产的评估价值而有所增加,租客须向业主付款,应业主书面要求,向业主征收的税款,或因上述增加摊款而征收的税款比例。

28.【故意省略】

29.继承者和分配者。除第9段及第22段另有规定外,本协议所载的条款、契诺及条件对本协议各方及其各自的法律代表、遗产代理人、继承人及受让人均具约束力,并符合其利益。

30.律师费。如租客或业主对因本租约而引致的其他声明书或其他形式的宽免提起任何诉讼,包括业主为追讨租金、附加费或额外租金或管有处所而提出的任何诉讼,败诉方应向胜诉方支付一笔合理的律师费,律师费应视为在诉讼开始时产生的费用,不论诉讼是否被起诉判决,均应支付律师费。

31.光和空气。租客契诺及同意此后可能竖立的任何构筑物(不论是否由业主竖立)所减少的光线、空气或景观,均不使租客有权根据本租约获减租,亦不会引致业主对租客的任何法律责任,或以任何其他方式影响本租约或承租人在本合同项下的义务。

32.保证金。

(a)在租客签立本租约的同时,租客须向业主缴存保证金$33,500.25。

 

- 20 -


(b)租户契约,并同意在租户财政年度前三个季度的每个季度结束后三十(30)天内向业主提供(1)经租户首席财务官核证的租户季度财务报表,(二)承租人会计年度终了后六十(60)日内经审计的年度财务报表。如任何该等财务报表显示租客拥有少于5,000,000元的未支配现金及现金等价物,或租客未能及时交付任何该等财务报表,则租客须向业主缴存款项,而无须业主通知或要求,现金数额足以将保证金增加到相当于当时每月基本租金的两(2)倍,该等按金须在(1)租客向业主交付该等财务报表的日期或(2)租客交付紧接前一句所指明的该等财务报表的截止日期中较早者作出。这笔款项是保证承租人履行租约的押金,在实际偿还承租人(或根据房东的选择最后受让人,如果有承租人的利息的话)之前,应继续是房东的唯一和单独的财产。租户只有在其向租户付款的所有先决条件得到满足后,才能赚取上述款项。由于这一数额在衡平法上都是业主的单独财产,业主无需将其与普通账户分开,也无需为其使用支付利息。如果租户在到期时不支付租金或其他费用,或在其他方面不遵守本租约的任何规定,包括租户在度假后有义务根据房东的选择修复或清洁房地,租客须当作并无获得退还按金的权利,但业主并无用作缴付拖欠的租金或其他费用的部分除外,或支付业主因租户违约而有义务支付的任何其他款项,或赔偿业主可能因此而遭受的任何损失或损害。业主可保留其合理地认为必要的那部分保证金,以便在租户休假后恢复或清洁房地,使其达到本合同要求租户在期满或期满前离开房地的条件。除非适用于承租人违约,否则保证金不应被定性为租金。

(c)依据上文第32(a)及32(b)条存放于业主的所有款项,均为保证租客履行租契的按金,并在租客(或业主选择最后一名租客(如有的话)根据本条所享有的权益的受让人)实际获偿还之前,仍为业主的唯一及独立财产。租户只有在其向租户付款的所有先决条件得到满足后,才能赚取上述款项。由于这一数额在衡平法上都是业主的单独财产,业主无需将其与普通账户分开,也无需为其使用支付利息。如果租户在到期时不支付租金或其他费用,或在其他方面不遵守本租约的任何规定,包括租户在度假后有义务根据房东的选择修复或清洁房地,租客须当作并无获得退还按金的权利,但业主并无用作缴付拖欠的租金或其他费用的部分除外,或支付业主因租户违约而有义务支付的任何其他款项,或赔偿业主可能因此而遭受的任何损失或损害。房东可保留其合理认为必要的那部分保证金,以便租户在度假后恢复或清洁房舍。除非适用于承租人违约,否则保证金不应被定性为租金。

(d)如业主选择使用或运用上文第32(c)段所规定的全部或任何部分按金,租客须于书面要求后十(10)个营业日内以现金向业主付款,相当于业主使用或使用的保证金的那一部分的金额,而租客没有这样做,即构成对本租约的重大违反。上一句规定的十(10)个营业日通知,在法律不禁止的范围内,应构成对法律或条例所要求的违约通知的完全满足。

33.公司权威;财务信息。每名代表租客执行本租契的人特此立约,并保证获授权执行本租契。租客在此承诺并保证租客是一间获正式授权及现有的法团,租客在加州已有及有资格经营业务,而租客有充分的权利及权力订立本租约。应业主要求,租户应向业主提供业主合理满意的证据,以确认上述契约和保证。租客在此向业主作出进一步契诺及保证,所有已向业主提供或须向业主提供的与租客业务有关的财务资料及其他描述性资料,在交付业主时,在所有要项方面均属准确及完整。

 

-21-


34.停车。承租人有非专属权利使用其在该土地上按比例分摊的停车位,四舍五入至倒数第二低的停车位总数(相当于每1000平方英尺可出租房地约3.8个停车位)。在业主有权报销费用(包括但不限于政府费用)的前提下,业主在租期内不得向租户或租户的雇员或访客收取使用此种停车场的费用。业主有权和选择将土地上的部分或全部停车位按比例保留给建筑物内的租户(包括租户)专用。

35.杂项。

(a)此处的段落标题是为了便于参考,绝不应界定、增加、限制或描述本租约任何条款的范围或意图。“地主”一词包括地主及其继承人和受让人。本租约由一人以上签署的,本合同项下的义务为连带责任。“承租人”一词或代之以该词的任何代词应表明并包括男性或女性、单数或复数、个人、公司或法人团体及其各自的继承人、执行人、管理人和许可转让人,视上下文而定。

(b)时间是本租约及其所有条文的要旨。本租约在各方面均受加利福尼亚州法律管辖。本租约及其证物包含本合同双方的所有协议,并取代以前的任何谈判。除本租约及其证物所列明的事项外,业主并无作出任何表示,双方亦无达成任何谅解。除非本合同双方另有书面协议,否则本合同不得修改。

(c)如本条例的任何条文因任何理由而不能强制执行或无效,则所有其他条文均须具有并继续具有十足的效力及效力。

(d)租客缴付租金、附加费及额外租金,而只要租客在第19段所指明的适用补救期间届满后并无根据本租契失责,承租人在租期内可对所有由业主或通过业主合法提出索赔的个人或实体和平、安静地享有房地;但须遵守本租约的规定。

(e)本租约可由对应方签立,每份租约须为正本,但所有正本均须构成一(1)份文书。

36.房客补救办法和房东补救办法。租户应只考虑业主在项目中的利益,以便从业主那里收回任何判决。业主,或业主是有限责任公司、其成员或经理人,或业主是合伙企业、其普通合伙人或有限合伙人,或业主是法团、其董事、高级人员或股东,均无须对任何该等判决负上个人法律责任。为强制执行该判决而取得的任何留置权,以及为强制执行该判决而征收的任何执行税,须受制于任何按揭或信托契据(不包括为欺诈债权人而设立的按揭或信托契据,即欺诈性转易契);但,然而,任何该等判决及任何该等判决的签立,均不受或从属于任何按揭或信托契据,而该等按揭或信托契据须于作出该等判决的日期后在圣克拉拉郡的官方纪录内设定或记录lien.,业主在项目中的权益应包括业主获得的任何保险收益,只要业主可以获得这些收益,以及支付给业主的任何谴责赔偿金,承租人支付的不适用于支付上述地产税和费用的地产税和费用,以及任何保险公司所欠房东的任何赔偿权。

37.房地产经纪人。每一方均表示未曾以任何方式与任何地产经纪、查找人或其他人就本租约进行交易,但基本租约资料内所指名的任何经纪除外,该经纪如赚取费用或佣金,应按基本租赁信息中的规定支付。每一方应使另一方免受任何其他经纪人、查找者或另一方已处理或据称已处理的其他人可能对另一方提出的任何索赔所造成的一切损害。

 

- 22 -


38.租赁生效日期。提交本文书供承租人审查或签署并不构成对租赁的保留或选择,在业主和承租人双方签署和交付之前,本文书不作为租赁或以其他方式有效。

39.危险物质赔偿责任。业主应根据租户的书面要求,提供下列报告(“环境报告”)供租户审阅:(i)12月2日加利福尼亚州山景城罗格大道441号第一阶段环境场地评估及土壤和地下水质量评估,199年,由Lowney Associates编写(项目#1509-1);2002年1月18日,由国家评估公司编写(项目02-8012.1),加州山景城罗格大道441号专业办公楼第一阶段场地评估报告。除环境报告中指出的情况外,业主表示并保证,据其所知,房地和项目目前没有石棉、有毒废物、地下储存罐和其他危险物质,其数量超过了法律规定的最大限度。此外,除环境报告中指出的情况外,业主还表示,它没有收到任何关于有毒或危险物质存在的任何违反或声称违反的书面通知,在该项目中或在该项目下,或在与该项目有关的任何未决或预期的调查或其他行动中。

(a)危险物质的定义。为本租约的目的,“危险物质”应统称为石油、易燃炸药、石棉、放射性材料、危险废物、有毒或受污染物质或类似材料,包括但不限于适用环境法规定的任何“危险物质”、“危险废物”、“危险材料”或“有毒物质”,条例或规例。

(b)租户赔偿。租户免除业主对业主的任何责任,免除对业主的所有索赔,并应就任何和所有索赔、诉讼、损失、费用(包括调查、清理、监测、恢复费用和合理的律师费)对业主、其雇员、合伙人、代理人、附属机构和附属组织进行赔偿、辩护和追究其责任,因财产损害(包括业主财产价值的减少)、因释放、制造、排放、处置、使用或储存在...上的危险物质直接引起或与之有关的人身伤害或死亡而造成的损害或责任,不论是可预见或不可预见的,或在租期内由租客或其雇员、代理人或承建商在物业或处所内进行。承租人关于危险物质的赔偿条款应在租约终止后继续有效。租户已通知业主(i)除其办公室用途附带的非物质数量的有毒物料(例如复印机墨粉、典型的清洁清洁物料)外,及(ii)除其研发用途附带的非物质数量的有毒物料外,承租人不得在建筑物内使用物质数量和危险物质,并应在符合任何适用法律的范围内予以遵守。如果租户打算在其研究和开发用途方面使用超出办公室租户典型水平的任何危险物质,租户应(i)向业主提供书面通知,说明这些危险物质的特性和租户的拟议使用计划,此种危险物质的储存和处置、此种使用、储存和处置须经业主批准,不得无理扣留、附加条件或拖延批准,以及(ii)在业主行使合理酌处权时提供业主满意的证据,(a)租户已与一间负责任的化学品供应商及废物收集及处置公司订立合约;(b)租户已遵守所有适用于该等危险物质的法律;及(c)租户已采取业主可合理接受的二级围封程序。租户应向业主提供季度报告,说明其研究和开发用途中超出办公室租户典型水平的任何危险物质的使用和储存情况,并应在租户获悉或有理由相信存在危险物质时立即通知业主是否有任何有害物质的释放,在房子里或房子周围。

 

- 23 -


(c)业主赔偿。业主免除租客对租客的任何法律责任,免除对租客的所有申索,并须在业主对工程项目的权益范围内,对租客、其高级人员、雇员及代理人作出弥偿、抗辩及保持其无害,针对(i)任何政府机构为清理截至本租契日期存在于该财产或处所之内或之下或在其上释放、制造、排放、处置、使用或储存的危险物质而采取的任何及所有行动,业主或其雇员在财产内或财产下(包括但不限于任何地下水污染)的费用,包括法律诉讼、调查、清理、监测和恢复的费用,包括合理的律师费,(ii)任何第三方提起的任何和所有财产损害诉讼,如果并在一定程度上在任何一种情况下,由于截至本租赁之日财产或房舍上、内或下存在危险物质,或由于房东或其雇员在财产上、内或下释放、制造、排放、处置、使用或储存危险物质,以及(iii)任何和所有索赔诉讼、损失、费用(包括调查、清理、监测、恢复的费用和合理的律师费)、因财产损害(包括承租人财产价值的减少)而造成的可预见或不可预见的损害或赔偿责任、由释放的危险物质直接造成或与之有关的人身伤害或死亡业主或业主的雇员在本租约日期之前或任何时候制造、卸货、处置、使用或储存在该物业或处所之内或之下。本业主赔偿条款中有关有害物质的条款应在租约终止后继续有效。

40.争端的仲裁。

(i)仅因业主与租客就金额少于五万元($50,000)的金钱失责而引致的任何争议或申索(i),但不包括不按时支付租金和其他费用,以及本租约或作为证据“B”附于本租约的工作函中明确规定须通过仲裁解决的任何其他事项,须按照美国仲裁协会的规则以仲裁方式解决,而对仲裁员所作裁决的判决,可输入任何有司法管辖权的法院。

注意:通过在下面的空格中草签,您同意由加州法律规定的中立仲裁机构裁决本“争议仲裁”条款前一段所列事项引起的任何争议,您将放弃您可能拥有的任何权利在法庭或陪审团审判中对争端提起诉讼。通过在下面的空格中签名,您就放弃了发现和上诉的司法权利,除非这些权利具体包含在“争议仲裁”条款中。如果你在同意这一条款后拒绝接受仲裁,你可能被迫根据加州民事诉讼法的授权进行仲裁。你方同意这一仲裁条款是自愿的。

我们已经阅读并理解上述内容,同意将本“争议仲裁”条款第一款所列事项引起的争议提交中立仲裁。

同意中立仲裁:/s/stevedostart(房东):/s/fabiorosati(租户)。

41.标牌。承租人有权将其姓名显示在建筑物入口处纪念碑标志的较低位置。(业主保留权利给予另一租户在大厦前面的标志)。任何标志(包括在纪念碑标志上加上租户的名字)都必须得到业主和适用的管理机构的批准。所有标牌费用由租户承担。

 

- 24 -


为昭信守,双方已于上述日期签立本租约。

 

房东:
441Logue Avenue Associates,LLC A Delaware Limited Liability Company
通过:  

/s/stevedostart

姓名:   史蒂夫·多斯塔特
其:   经理人
租户:  

elance,inc.

特拉华州的一家公司

通过:  

/s/fabio rosati

姓名:   法比奥·罗萨蒂
其:   总裁兼首席执行官
通过:  

s/ved sinha

姓名:   韦德·辛哈
其:   副总裁,产品

 

-25-


展品“A”

房地

 

LOGO


展品“A-1”

陆地

加利福尼亚州圣克拉拉县MountaView市的不动产,描述如下:

所有的一号包裹,如1984年2月3日记录在圣克拉拉县记录的地图第27页第524册中的包裹地图所示。

APN:160-57-013

arb:159-43-042

 

图表A-1-页


展品“A-2”

建筑物

 

LOGO

 

图表A-2-第1页


展品“A-3”

项目

 

LOGO

 

图表A-3-第1页


展品“B”

工作信函

1.业主的工作:租客须按原样接受处所(不论附表1所附的图则如何描述处所),但业主须按照适用的法律及规例,以良好及象工人一样的方式,自费接受处所,并使用建筑标准材料及饰面,对处所作出以下改善(统称“业主工作”):

(a)重建用于进入大楼二楼的前厅,以消除从前厅进入房地内会议室的通道(预计重建后的房地将按本文件附表1所示配置,视任何适用的政府当局的要求而定);

(b)将处所内所有染色或损坏的天花板瓷砖更换为新的天花板瓷砖;

(c)确保所有灯具正常工作,并在必要时安装新灯泡;

(d)清洗所有窗户,并以专业方式清洁处所;

(e)为大楼和房地提供所有机械、暖通空调和电气系统,使其运行状况良好,并将暖通空调设备的吨位以及相应的管道和通风能力增加到7吨,为服务器室提供服务;以及

(f)在租期内提供所有现有地板家具供租户使用(但在租期终止后,这些家具仍应是业主的财产)。

除上述工作外,业主保证,在大楼最初建造时,房舍和大楼符合《反倾销协定》的规定。

 

图表B-第1页


附表1

房地的预期重新配置

 

LOGO

 

图表B-第2页


展品“C”

细则和条例

1.行人路、出口、入口、升降机及楼梯不得被租客阻塞,亦不得被租客用作进出处所以外的任何用途。租户、租户的雇员或受邀请者,除非获得业主授权或根据租约第46段的规定,否则不得登上建筑物的屋顶。

2.除非租约另有明文规定,否则未经业主事先书面同意,租客不得在处所或建筑物任何部分上刻上、涂上、贴上、装设或以其他方式展示从处所外部可见的标志、标语牌、图片、姓名、广告或告示其同意不得无理拒绝、附加条件或拖延,而业主有权移走任何该等标志、标语牌、图片、姓名、广告或通知,而无须通知租客及由租客支付费用。如业主已在租契签立前或签立后的任何时间给予租客上述同意,则上述同意绝不构成放弃或解除本条例或租契的任何条文,并须当作只关乎业主如此同意的特定标志、标语牌、图片、名称、广告或通知,而不得解释为无须就任何其他该等标志、标语牌、图片、名称取得业主的特定书面同意。(198年第25号法律公告广告或通知。

3.未经业主事先书面同意,不得将窗帘、窗帘、百叶窗、百叶窗、遮阳帘、遮阳帘或其他复盖物、遮阳篷、衣架或装饰物附连、悬挂或放置在处所内的任何窗户、门或天井内,或与该等窗户、门或天井有关连使用。在任何情况下,经业主事先书面同意,所有此类物品均应安装在业主的窗罩内,不得从建筑物外部以任何方式可见。不得将任何物品放置或存放在窗台上,使其从建筑物外部可见。任何物品不得放置在从建筑物外面看起来不美观的玻璃隔板或门上。

4.业主认为在任何入侵、暴民、骚乱、公众骚乱或其他情况下宜采取此种行动的持续期间,业主保留通过关上门或其他方式阻止进入建筑物的权利,为了租户的安全以及保护建筑物和建筑物内的财产。

5.租客或其雇员离开该处所前,须确保该处所的门已关闭及锁紧,并须严加小心及小心,确保所有水龙头或供水器具均已完全关闭(为保安或安全目的所需的除外),而所有公用设施亦须小心关闭,以防止浪费或损毁。在多租楼层,除出入口外,所有租户须时刻关闭通往大厦走廊的一扇或多于一扇门。

6.租户在没有事先书面通知业主的情况下,不得更改任何锁或通路装置,或在处所的任何门上安装新的或额外的锁或通路装置或任何螺栓,并须在更改或安装后立即向业主提供新钥匙或其他通路装置。租客不得制作或已制作业主提供的任何钥匙或进入装置的额外副本,但须向业主取得任何必需的额外钥匙或装置。租客在租赁终止时,须向业主交付该建筑物、办公室、房间及厕所的所有钥匙或进入装置,而该等钥匙或进入装置须已提供予租客或租客已制造。如业主遗失由业主提供的任何钥匙或进入装置,租客须向业主支付有关的实际费用(包括在有需要时重新装订钥匙)。

7.厕所、厕所、小便池、洗脸盆及其他器具,除用作建造该等厕所、厕所、小便池、洗脸盆及其他器具的目的外,不得用作其他用途,亦不得将任何种类的外来物质扔在该等厕所、厕所、小便池、洗脸盆及其他器具内,以及支付任何破碎费,租户或租户的雇员或被邀请者因违反本规则而造成的停工或损坏,应由租户承担。

8.租户不得在处所或建筑物内使用或存放任何煤油、汽油或易燃或易燃液体或物料,但为操作或维修办公室或办公室设备所需的限量除外。除业主提供或批准外,租户不得使用任何供暖或空调方法。

 

图表C-第1页


9.租客不得使用,保留或准许在该处所内使用或存放任何污秽或有毒气体或物质,或准许或容许该处所被占用或使用,而占用或使用的方式会因噪音而令业主或建筑物内其他占用人反感或反感,气味及/或震动,或以任何方式干扰其他租客或在其内经营业务的人,亦不得将任何动物或禽鸟带进或饲养在处所或建筑物内或其周围。

10.除非业主同意,否则租客不得在处所内煮食或准许煮食(但租客不得使用承保人的实验室认可设备,为租客及其雇员配制咖啡、茶、热巧克力及类似饮品,但该等设备及用途须符合所有适用的联邦、州及城市法律、守则、条例、规则及规例),而处所亦不得用作住宿用途。

11.除非获租约明订条文准许,否则租客不得在建筑物的外墙或屋顶安装任何无线电或电视天线、扬声器或任何其他装置。租客不得干扰广播或电视广播或接收来自或在建筑物内或其他地方的广播或电视节目。

12.租客不得铺设油毡、瓷砖、地毯或任何其他地面复盖物,以致除非获得业主书面批准,否则不得以任何方式将油毡、瓷砖、地毯或任何其他地面复盖物贴在处所的地面上。租户或租户的承包商、雇员或被邀请者违反本条规定而造成的任何损坏的修理费用或拆除任何地板复盖物的费用应由租户承担。

13.属于租客的商用机器及机械设备,如造成噪音或震动,而该噪音或震动可传导至建筑物的构筑物或其内的任何空间,以致令业主或建筑物内任何租客反感,则须予以放置及保养按租户计算,由租户承担费用,安装振动消除器或其他足以消除噪音或振动的设备。业主必须接受受雇将这些设备运进或运出建筑物的人。

14.租户不得在处所的任何楼面上放置超过该楼面设计可运载及法律所容许的每平方呎负荷的负荷物。租客不得在隔板、木制品或灰泥上加上标记、使用双面胶布,或将钉子、螺丝或钻孔钉入隔板、木制品或灰泥内,亦不得以任何方式污损处所或其任何部分。租户可在楼宇内的墙壁上悬挂图画。由Molly螺栓或类似悬挂材料对墙壁造成的任何损坏将由租户修复。

15.租户须将所有垃圾及垃圾存放在处所内部或处所以外的适当垃圾收集区内。不得将任何材料放置在垃圾箱或盛器内,但该等材料的性质,不得在处所所在的司法管辖区内以移走和处置垃圾及垃圾的通常及惯常方式处置,不违反任何有关处置的法律或条例。所有垃圾、垃圾和垃圾处理只能通过为业主指定的目的和时间设置的入口通道和电梯进行。

16.禁止在建筑物或工程项目内拉票、拉客、派发传单或任何其他书面材料,禁止在建筑物或工程项目内兜售,租户应予以合作防止。租户不得向大厦或项目内的其他租户逐房招揽生意。

17.业主有权更改建筑物或工程的名称及地址,并可在合理的事先通知下行使,而无须对租客负上法律责任。未经业主事先书面同意,租户不得使用该建筑物的名称宣传或宣传租户的业务,但租户的地址除外。租户可以在其文具和名片上使用项目的名称。

18.业主如认为任何人醉酒或受酒精或药物影响,或违反建筑物的任何规则或规例,有权将该人逐出或驱逐出建筑物或工程。

 

图表C-第2页


19.租户应遵守任何政府机构制定的所有安全、防火和疏散程序和条例。

20.租客须负上任何及所有责任,以保护处所免受盗窃、抢劫及盗窃,包括锁上门及关闭进入处所的其他途径,除非因业主、其代理人、雇员或雇员(“业主一方”)的疏忽或故意不当行为所致。

21.租户应负责租户的雇员、代理人、客户、顾客、受邀者和客人遵守上述所有规则和条例。

22.未经业主事先书面同意,租户不得将公用地方用作聚会、聚会、野餐或类似用途。任何该等同意均须以租客就任何人身伤害作出弥偿、抗辩及使业主不受伤害为条件,业主或大厦内任何其他租户或任何其他一方的工程或其任何部分或任何其他财产因该功能而死亡或受损,并向业主支付业主因该事件而招致的任何费用,作为额外费用。在任何此类聚会、聚会、野餐或类似活动之前,租户应以业主合理要求的形式和赔偿责任金额向业主提供保险证据,以履行上述赔偿义务。

23.业主可为任何一名或多于一名租客的利益而豁免任何一项或多于一项本规则及规例,但业主的该项豁免不得解释为为任何其他租客而豁免该等规则及规例,也不妨碍业主此后对该建筑物或项目的任何或所有租户执行任何此类规则和条例。本细则和条例规定业主同意的,不得无理拒绝、附加条件或拖延同意。

24.业主有权订立其认为不时需要的其他合理规则及规例,以保障楼宇及工程的安全及清洁,以及维持楼宇及工程的良好秩序。承租人同意遵守下文所述的所有此类规则和条例以及所通过的任何其他规则和条例,这些规则和条例不违背承租人根据租约所享有的权利。不得制定任何新的规则或条例专门歧视租户。

25.租户应负责租户的雇员、代理人、客户、顾客、受邀者和客人遵守上述所有规则和条例。

26.除非另有规定,本细则和条例中使用的术语应与租约中使用的术语含义相同。

 

图表C-第3页


展品“D”

承认任期的开始

 

                    , 2007
elance,inc.
 
 
attn:                                             

 

  关于:

根据441Logue Avenue Associates,LLC(“业主”)与Elance,Inc.(“租户”)订立的日期为2007年3月27日的441Logue Avenue租赁协议(“租赁”)确认及确认开工日期)

亲爱的先生们:

本信将确认:

 

  1.

根据(及界定)租约的生效日期为2007年5月1日;

 

  2.

Elance,Inc.已接受交付该处所;及

 

  3.

建筑物的状况(包括业主的工作)符合业主的义务(打孔清单项目除外)。

请确认已收到此信,并确认和同意上述内容,签字后将副本寄回给下列签署人。

真的是你的,

Logue Avenue Associates,LLC,

特拉华州有限责任公司

 

通过:

姓名:

its:manager

 

图表D-第1页


确认并商定:

Elance,Inc.,

特拉华州的一家公司

通过:  

 

姓名:  

 

其:  

 

 

图表D-第2页


展品a

出售财产一览表

 

描述    数额      尺寸  

小隔间/办公室家具

     

8x8Teknion隔间,带顶置/BB/BBF

     39     

会议桌

     1        7x7平方  

office-p-top,头上有退货和布告栏

     6        11x12办公室  

任务椅

     

接待台/接收站

     1     

nec124i电话系统

     

关键电话系统

     1     

语音信箱系统,先锋信箱

     1     

电话

     

16个按钮

     5     

22按钮

     51     

接收扩展

     1     

机架

     

服务器机架

     4        19英寸  

 

- 3 -


租约的修订

本租赁修订(本“修订”)乃由441Logue Avenue Associates,LLC A Delaware Limited Liability Company(“业主”)与Elance,Inc.A Delaware Corporation(“租户”)于2009年6月30日及之间订立。

独奏会

本修正案是根据各方的下列事实、谅解和意图作出的:

A.业主与租客订立日期为2007年3月27日的若干441号Logue Avenue租赁协议(“租赁”)。

B.根据租约,租户租用位于加利福尼亚州山景城Logue Avenue441号大楼一楼约14,889平方英尺的某些空间和装修,详情见租约(“房地”)。在此使用但未在此定义的大写术语应具有在租赁中给出的这些术语的含义。

租期定于2010年4月30日届满。业主及租客现欲根据本租约的规定修订本租约。

因此,考虑到双方的相互盟约和承诺,双方同意如下:

1.任期的延长。租赁期限谨此延长至并包括2013年4月30日,该日以后为届满日期。租约内所有提述“届满日期”之处,现修订为指及提述2013年4月30日。

2.基本租金。自2009年7月1日起,根据租约须缴付的每月基本租金如下:

 

月份:

   每月每可出租平方英尺的租金:

2009年7月至2010年4月

   $1.85

201年5月至2011年4月

   $1.95

201年5月至2012年4月

   $2.05

2012年5月至2013年4月

   $2.15

3.房地的状况。租客承认其现正管有该处所,并同意按原样继续管有该处所,而业主方面并无作出任何协议、申述、谅解或义务作出任何更改,因延长本合同期限或任何其他原因、目的或原因而对房舍进行的修理或改进。

 

- 1 -


4.经纪佣金。业主特此保证并向租客表示,业主并无与任何地产经纪、查找人或其他人以任何方式就本修订进行交易,除CPS CORFAC国际/世邦魏理仕外;及租客在此保证及代表该业主除高力国际外,并无与任何地产经纪、查找人或其他人以任何方式就本修订进行交易。业主应向CPS CORFAC国际公司/世邦魏理仕国际公司和高力国际公司支付与本修正案有关的所有佣金。每一方应使另一方免受任何其他经纪人、查找者或另一方已处理或据称已处理的其他人可能对另一方提出的任何索赔所造成的一切损害。

5.致谢。租客(i)承认并同意业主在本修订日期已履行业主根据租契须履行的每一项义务,而业主并无没有履行任何该等义务,(ii)向业主表示及保证租客并无欠租,而据租客所知,并无任何事件、条件或情况会因发出通知及(或)随着时间的推移而构成租客欠租。

6.租约仍然完全有效。除上述修改外,租约应保持不变,并具有全部效力和效力。如租约的条款及条文与本修订的条款及条文有任何不一致之处,则适用本修订的条款及条文。

为昭信守,双方于本合同第一次书面签署之日起签署本租约修正案。

 

- 2 -


房东:

Logue Avenue Associates,LLC,

特拉华州有限责任公司

通过:  

/s/stevedostart

姓名:   史蒂夫·多斯塔特
其:   经理人
租户:  

Elance,Inc.,

特拉华州的一家公司

通过:  

/s/fabio rosati

姓名:   法比奥·罗萨蒂
其:   总裁兼首席执行官
通过:  

/s/Michael J.Culver

姓名:   Michael J.Culver
其:   财务副总裁/法律

 

- 3 -


租约的第二次修订

本租赁第二修正案(本“修正案”)订立日期为2012年5月31日(“生效日期”),由Logue Avenue Associates,LLC A Delaware Limited Liability Company(“业主”)与Elance,Inc.A Delaware Corporation(“租户”)订立。

独奏会

本修正案是根据各方的下列事实、谅解和意图作出的:

A.业主与租客订立日期为2007年3月27日的若干441号Logue Avenue租赁协议(经日期为2009年6月30日的若干租赁修订“租赁”修订)。

B.根据租约,租户租用位于加利福尼亚州山景城Logue Avenue441号大楼(“大楼”)一楼约14,889平方英尺的某些空间和装修,详情见租约(“初始房地”)。在此使用但未在此定义的大写术语应具有在租赁中给出的这些术语的含义。

C.租户希望(i)延长租期,及(ii)按本文件所载条款及条件,在大厦二楼增租约16,975平方尺。

因此,考虑到双方的相互盟约和承诺,双方同意如下:

1.定义。除另有明文规定外,就本修订而言,第1条所界定的术语、租约及本修订所补充的所有协议均具有第1条所指明的涵义。

(a)“扩展日期”指(i)2012年8月1日或(ii)承租人开始从扩展处所进行业务营运的日期中较早者。

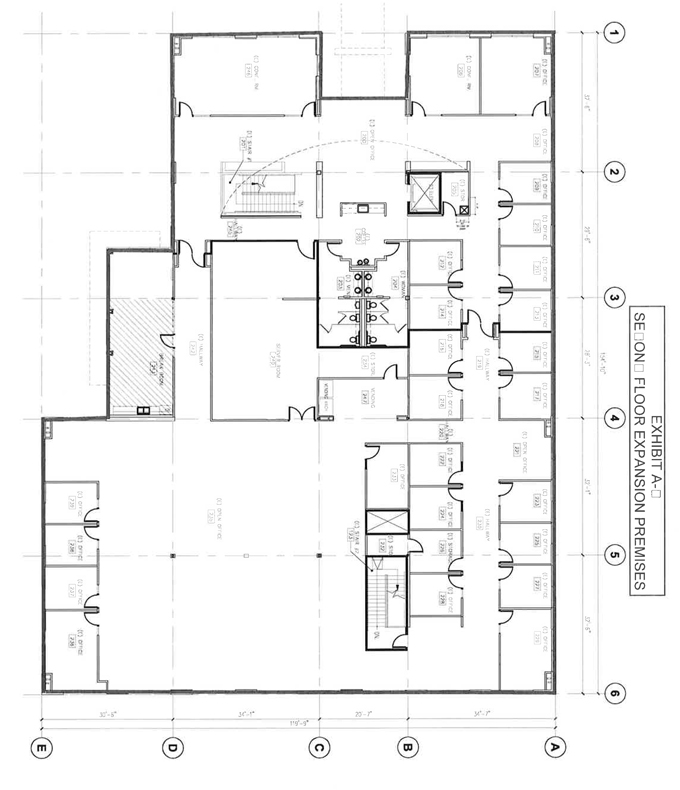
(b)“扩建房地”是指200号套房,其中约有16975平方英尺的可出租面积,概列于本文件所附展览A。

(c)“扩建处所交付日期”指2012年6月1日或扩建处所现租客交出其管有权的较后日期。

(d)“初始房地”是指租约中所述并在租约证物B中概述的房地,该房地通常称为套房150,约有14889平方英尺的可出租面积。

 

- 1 -


(e)“处所”是指(i)直至扩建日期前一天的初始处所,以及(ii)自扩建日期起及之后的初始处所及扩建处所。

2.任期的延长。租赁期限谨此延长至并包括2019年4月30日,该日以后为届满日期。租约内所有提述“届满日期”之处,现修订为指及提述2019年4月30日。

3.扩大房地。

(a)自扩展日起,该处所(及“处所”的定义)须予修改,以表示并包括初始处所及扩展处所。由于这种扩大,自扩大之日起,房地的当作平方米应为并变成31684平方英尺,租户按比例分摊费用和房地产税的份额应为10%(100.0%)。

(b)如业主因任何理由而不能在2012年8月1日前为第3(c)条指明的目的将扩展处所管有权交付租客,则本修订并不无效或可予撤销,业主亦无须就因此而引致的任何损失或损害向租客负责。(由198年第25号第2条修订而租客无须就扩建处所缴付每月基本租金或额外费用,直至将扩建处所管有权交付租客之日的翌日(该日即成为本修订所指的“扩建日期”)为止。尽管如此,如果业主不能在2012年8月1日前交付扩建房屋(因不可抗力延误而延长的每日交付时间)(“交付日期外的扩建房屋”),租户有权作为其唯一补救措施,在扩展处所交付日期以外的十五(15)个营业日内,向业主发出书面通知,终止本租约修订,在这种情况下,租约应继续完全有效,犹如双方尚未订立本修正案一样,业主应迅速向租户退还租户根据第6(d)条的规定支付的2012年8月扩建房地的基本租金。为本条例的目的,扩建处所的现有租客未能迁出扩建处所,不得因不可抗力而延误。

(c)虽有上述规定,租客仍有权在扩展处所交付日期后的任何时间提早占用扩展处所,其唯一目的是:(1)安装租客的家具及电话及其他通讯电缆;(2)进行租客的扩展工程(定义见下文),但(i)租客契诺及同意租客及租客的雇员、代理人或承建商将与业主合作,在租客进行扩建工程的同时,协调业主的扩建工程的进行及完成,(ii)由于租客或租客的雇员、代理人或承建商干扰业主进行扩建工程而引致、引致或引致业主的扩建工程延迟完成,业主对租客并无法律责任,(iii)租客及租客的雇员,代理人和承包商应迅速遵守业主或业主承包商提出的任何和所有要求,即租户应将其财产从业主正在进行业主扩建工程的区域或其周围搬走

 

- 2 -


租客可能向业主提出的申索,而租客须就扩建处所内或其周围的人或财产因进行租客的扩建或因进行租客的扩建或与进行租客的扩建有关而受到的伤害或损害,向业主作出弥偿,并使业主保持无害,以及就任何及所有申索或法律责任向业主作出抗辩工作(因业主疏忽或故意行为失当而引致的情况除外),承租人为本条所规定的唯一目的而提早占用扩展处所,须受租约的所有条款及条件规限,但(x)直至扩展日期为止,该处所不得包括扩展处所,(y)租户无须就扩建处所缴付由扩建处所交付日期起至扩建日期止期间的每月基本租金或额外费用。

(d)在扩建日期后五(5)个营业日内,双方应签立一封信函,确认扩建日期,并证明租户已接受以与租约所附“D”号证物(“扩建日期备忘录”)基本相似的形式交付房地。任何一方未要求执行或未执行扩充日期备忘录,均不得以任何方式更改扩充日期。

4、房东的扩张工作。

(a)业主须在扩建日期将扩建处所交付租客,而扩建处所须进行的工程(“业主的扩建工程”)已完成,以交付(i)清洁及生状况,及(ii)所有电力及机械系统均运作良好,但其后租客、其代理人或承建商可对扩建处所作出的任何改动或修改,均不在其上生效。

(b)业主的扩建工程应由业主承担全部费用和开支。除本条第3(b)款另有明文规定外,业主无须对最初的处所或扩展处所作出任何改善,而租客须接受扩建处所于扩建处所交付日期的现有状况(但业主有义务完成业主的扩建工程)“,即”业主并无作出任何协议、申述、谅解或义务作出任何更改",因延长或扩大本合同项下的房地或因任何其他原因、目的或原因而对房地进行的修理或改进。

5.租户的扩建工作。

(a)租户扩建改造工程的建造。

(i)业主在此确认租客意欲(i)将处所(包括扩建处所及初期处所)铺上地毯及油漆,及(ii)在扩建处所内建造附于本文件的证物B所述的改善工程(统称为,“经批准的租户扩建改建”)及业主在此同意建造经批准的租户扩建改建,惟须业主批准最后地毯及油漆规格,并规定,该租客无权就核准的租客扩建工程或租客的额外扩建工程(定义见下文)展开任何工程,直至租客已提供

 

- 3 -


具有符合第8节要求的信用证的房东。租户的初步图则如有任何更改(定义见下文),包括但不限于增加租户初步图则上没有显示的任何改善,须经业主事先书面同意(业主事先书面同意的任何该等额外改善,在此称为“租客的额外扩建改建”及批准租客的扩建改建及租户的任何额外扩展更改在本文中被称为“租户的扩展更改”),业主在同意任何租客的额外扩建工程时,须指定租客的哪些部分(如有的话)须在租期届满或提前终止时移走或修复。租客及业主谨此确认及同意,租约第6段的规定及附于及构成租约一部分的证明表B工作函件的规定,不适用于租客扩建工程。业主进一步确认并同意,自扩建处所交付日期起及之后,租户,除本条另有规定外,承建商(定义见下文)及租客的代理人及承建商须获提供进入扩建处所的通道,并获准在该处所内建造租客扩建部分的改建工程。即使租契内有任何相反的规定,包括但不限于租契第6段的条文,在租契届满时或在租契终止前,(a)批准租客扩建改建(包括但不限于租客可安装的任何更换隔间),除下文(b)款另有规定外,经业主事先书面同意,(在最初的房地内)应留在房地内,并应成为业主的财产,(b)租客须将业主在给予书面同意时所指明的租客额外扩建工程移走或修复,(c)租客须将处所的管有权交付业主,而处所的所有租客扩建工程(包括但不限于任何重置隔间,但不包括租客须移走或修复的任何额外扩建工程)均须妥善进行,并须妥善维修,承受正常的磨损和伤亡的损害。

租户应保留并安排Teamwrkx,Inc.(“承包商”)按照业主合理批准的建筑合同(“租户的扩建工程”)建造和安装租户扩建改造工程。租客的扩建工程须按照租客的图则(定义见下文)妥善地进行,租客须与业主合作管理租客的扩建工程,而业主亦须合理地配合租客在处所内进行的扩建工程,包括,在不受限制的情况下,允许租户和租户的代理人和承包商在下班后进入扩建房舍,并允许他们进入大楼内的电梯,以便进入施工场地。

 

- 4 -


(iii)业主及其代理人可在建造过程中及租客的扩建工程完成时视察租客的扩建工程,但须符合以下条件,业主不检查租户的扩建工程,在任何情况下均不构成放弃业主在本合同项下的任何权利,业主对租户扩建工程的检查也不构成业主对扩建工程的批准。业主有权反对业主事先未批准的与租客图则的任何重大偏差,租客须安排更正该等偏差。如果这种偏差是业主合理判断中的重大偏差,可能对建筑物产生不利影响,而且如果租户没有及时纠正这种偏差,业主可以造成这种偏差得到补救,费用由租户承担。

(b)租户扩建工程的付款。

(i)设计、准许和建造承租人扩建工程的所有费用均应由承租人承担,但本修正案另有明文规定的除外。业主同意向租客提供一次租客改善津贴,金额最多但不超过,259861美元(“租户津贴”)将用于按照核定租户计划(下文界定)建造租户装修的硬费用和软费用(不包括建筑费和工程费)(统称“津贴费用”)。津贴费用不包括承租人购置或安装行业固定装置、设备、家具、家具隔板、家具、个人财产的费用,也不用于上述不允许的任何其他事项或目的,而租客须负责直接支付与租客的扩建工程有关而并非津贴费用的所有费用及开支。租户无须向业主支付任何与第三方执行租户扩建工程有关的内部监督利润或其他补偿。应允许租户按业主合理要求的格式,每月从租户津贴中支取款项。

(ii)租客津贴须按以下规定发放。除下文第5(b)(iii)节另有规定外,业主应酌情利用业主的付款程序直接向承包商、分包商和(或)材料供应商付款,付款程序应包括业主可能合理要求的条件(如从收款人收到留置权豁免)。

(iii)租客的图则如有任何更改,使业主对总免税额的合理估计超出租客免税额,业主须向租客交付经更新的费用预算,以及(i)经更新的估计总免税额与(ii)租客免税额加上租客先前根据第5(b)(iii)条缴付的按金(在此称为“超额免税额”)之间的差额)应由租户直接支付给承包商,分包商和(或)材料供应商,视情况而定,在房东支付租户津贴的任何部分之前。

 

- 5 -


(c)改变租户的计划。业主先前已批准承租人的初步图则作为附件B(“承租人的初步图则”)。如果租户希望对租户的初步计划作进一步修改,租户应与Arctec,Inc.(“建筑师”)签订合同,修改施工图,并在开始施工任何此类修改之前,将拟议的修改提交业主事先书面批准。业主须在收到租客要求更改初步图则的要求后十(10)天内,批准或不批准对租客的初步图则所作的任何更改,而更改的详情须足以让业主全面评估该项要求。业主和租户应合作,共同商定对租户初步计划的任何修改。租客的初步图则连同业主批准的任何修改,须称为“租客图则”。

6.基本租金的修改。

(a)截至2013年4月30日,初始房地的每月基本租金应与租约中目前规定的相同。自扩建之日起至2013年4月30日,扩建房地的每月基本租金应为46186.25美元(即扩建房地每可出租平方英尺2.75美元)。

(b)从2013年5月1日至2014年4月30日,整个房地的每月基本租金为89665.72美元(即每平方英尺可出租房地2.83美元)。

(c)自2014年5月1日起至其后每个日历年5月1日止,每月基本租金应比紧接上述调整前有效的每月基本租金增加3%(3.0%)。

(d)在租户执行本租约的同时,租户应向业主支付2012年8月扩建房地的基本租金。

7.电动充电站。如果租户提出要求,业主应与租户合作,获得政府批准和许可,并以其他方式促进在大楼内增加四个电动汽车充电站,费用全部由租户承担。房东没有表示或保证可以增加这样的电动汽车充电站。

8.保证金。租户应于2012年6月12日或之前向业主交付一份信用证,金额为262,878美元(262,878.0美元),并在收到信用证后立即付款,房东应将现有的现金保证金三万三千五百二十五美元(33500.25美元)退还租户。业主收到信用证后,应将租约第32段全文修改如下:

 

- 6 -


"32.保证金。

(a)租户应以符合第32(b)段规定的无条件、不可撤销、可转让的信用证(“信用证”)形式向房东存入保证金262878美元(262878.0美元)。如果当时不存在未固化的提款事件(定义见下文),则保证金应在2012年12月31日(a)之后减至相当于整个房地一个月基本租金的数额,或(b)租户根据下文第33段向房东提交财务报表的日期,表明租户连续十二(12)个季度实现净收入盈利(按照公认会计原则确定)。

 

- 7 -


(b)信用证应由金融机构全权酌情签发,其形式和实质均应为业主所接受,原租期不少于一年,并自动延长至本租期结束时及其后六十(60)天。业主如属国家银行,不得无理拒绝批准该金融机构,或设在美国的银行分行(该分行在美国设有办事处,允许信用证按照业主可合理酌情接受的程序提交并由该办事处支付),并将开证行或银行分行在超过20亿美元(200亿美元),业主特此批准硅谷银行作为第32(b)段规定的信用证的“开证行”。如业主在任何时间真诚地就硅谷银行以外的任何开证行裁定(a)开证行或银行分行的资产少于200亿美元($20,000,000),(b)开证行没有或不再有,长期评级至少为BBB+或(c)开证行或银行分行已经或打算关闭或停止与开证行分行的业务,然后,房东可要求租户在收到房东关于信用证要求的通知后十五(15)个工作日内,合理行使酌处权,用房东可接受的其他金融机构的信用证取代信用证。信用证(a)应为备用不可撤销信用证;(b)应支付给业主、抵押权人或其受让人(上述任何一方),(c)要求只有在签发人收到由名义上的受益人授权代表签署的证明受益人有权根据本租约使用信用证的信用证时,才能使用信用证提款;(d)允许部分提款和多次提款;(e)可由房东完全转让,但业主须独自负责支付任何转让费,费用及费用由业主负担,(f)规定该信用证受《跟单信用证统一惯例》(2007年修订本)国际商会第600号出版物管辖;(g)规定每年自动展期,不经修正(所谓的“常青”规定),最后终止日期不得早于终止日期后六十(60)天,或只有在下列情况下才可取消,发行人至少提前六十(60)天向受益人发出书面通知,说明发行人打算取消合同;(h)要求发行人在受益人提出申请之日后的下一个营业日向受益人付款。承租人须在本租约届满日期或其他终止日期后的第六十(60)天内,保留由其负担全部费用的有效信用证,以确保承租人忠实履行本租约的所有契诺、条款及条件,包括,承租人修理、更换或保养房舍的义务,但不限于此。

 

- 8 -


(c)在提款事件(定义见下文)发生后的任何时候,受益人可提出书面要求,要求支付信用证的全部面值(或由受益人自行选择),支付信用证金额的一部分,作为对业主所受损害的赔偿,随后由受益人单独选择,因为业主会引起进一步损害),如此获得的资金应到期应付给受益人。受益人可保留该等款项,但以补偿业主因任何该等失责或其他提款事件而招致的损害或按本条例规定偿还业主所需为限,而任何馀下款项须作为租客在本条例下的债务的现金保证。“提款事件”系指下列任何一种情况:(a)承租人在履行本租赁规定的义务时发生“违约”(定义见本租赁第19(a)段并根据本租赁第19(a)段确定)(下文第32段称为“违约”);(b)存在(i)租客在接获任何通知后仍未履行其在本租契下的一项或多于一项义务,第19(a)款规定的宽限期或补救期限,如果在首次发生此种违约行为时发出此种通知,该宽限期或补救期限将适用于此种违约行为,以及房东被中止的情形,(c)业主因租户违约而终止租约;(d)信用证不被替换为在第32(b)和(e)段要求的情况下,另一金融机构的信用证;和(e)信用证未在到期前六十(60)天展期,

(d)如果业主或受益人使用信用证的任何部分或信用证提款产生的现金保证金来补救承租人根据本合同和(或)出于第32段允许或考虑的任何其他原因的违约行为,业主可,在其选择时,以书面通知租户,并要求租户提供替代信用证或向业主支付一笔足以将信用证或现金担保退回到信用证原始金额的百分之百(100%)的款项。租客在接获业主通知后五(5)个营业日内,须向业主提供换领信用证,或以现金或即时可动用的款项支付业主所要求的款额,而租客如此缴付的款额,须由业主持有,作为以下所规定的按金的一部分。承租人未在此期限内提供此种替代信用证或支付此种款项,即构成本租约第19(a)款所述的“违约”,无须另行通知或给予补救机会。这种补充债务应按本合同规定的违约率支付利息,租户承认扣押将是一种适当的补救办法,业主可通过这种补救办法追回租户当时未能支付的款项。业主或受益人以这种方式获得的资金的任何未使用部分,在更换信用证时,应按规定全额退还租户。提取或补充信用证所产生的任何现金收益应作为第32款规定的保证金处理。

 

- 9 -


(e)业主有权就将本租约转让予承按人而不时转让信用证及其权利,作为业主对该承按人所负义务的保证,或与出售或以其他方式转让业主在该项目中的权益有关。承租人应配合业主对信用证的任何修改或修改,任何抵押权人可就任何此种转让提出合理要求。业主自行选择,亦可指示租客安排信用证直接指明承按人为该信用证的唯一受益人,但业主须自行负责支付任何转让费,费用及费用由业主负担,与信用证转让有关的补发费及其他费用和开支。

(f)在租期届满后九十(90)天内,或在租契提前终止后九十(90)天内,如租客当时并无违约,业主当时持有的信用证或按金的任何部分(视属何情况而定)须退还租客,减去业主为补救租户拖欠租金、修复租户对处所造成的损害、支付搬迁租户所需的任何改善工程或财产的费用而可能需要的款额,根据本租契的条款,移走但没有移走及清洁处所;但(i)尽管有上述指明的期限,业主没有义务退还信用证或保证金或其任何部分,除非租户违反本租约规定的所有义务的行为得到纠正,业主因任何此种违约行为而可能遭受的所有损失数额得到确定并已全数缴付;及(ii)在任何情况下,任何该等申报表均不得解释为业主承认租客已履行其在本条例下的所有契诺及义务,

(g)业主将其在处所的权益转易或移转,而作为该项转易或移转的一部分,业主转让其在本租约中的权益:(i)信用证或保证金(或先前未申请的任何部分)应转让给业主的继承人;及(ii)业主应被免除并免除其在信用证或房东转让信用证或保证金后的保证金,在任何情况下,任何承按人或该项目全部或任何部分的购买人不得在公开或私人取消赎回权出售或行使销售权时,如租客或租客的继承人或转让人成为根据本租约管有或继承业主权益的承按人,则就退还信用证或按金对租客或租客的继承人或转让人负有任何法律责任或义务,并且只限于该等承按人或买方已收到该信用证或保证金的全部或任何部分。在信用证或保证金方面,业主和租户之间不建立任何信任关系。租户承认,保证金或信用证不是任何形式的预付款,也不是在租户违约的情况下业主损失的衡量标准。承租人特此放弃其根据《加利福尼亚州民法》第1950.7条(第1950.7条(b)、(d)和(e)款除外)以及任何其他与第32款不一致的法律规定现在或以后可能享有的任何权利。"

 

- 10 -


9.经纪佣金。

(a)业主特此保证并向租客表示,业主并无就本修订以任何方式与任何地产经纪、查找人或其他人进行交易,除Cassidy Turley/世邦魏理仕(“Cassidy Turley”)及高力国际(“高力国际”)外;及租客特此保证及向该业主表示,除Cassidy Turley及高力国际外,业主并无就本修订与任何地产经纪、查找人或其他人有任何方式的交易。

(b)业主须就本修订,根据业主与卡西迪特雷及科利尔分别订立的书面协议,向卡西迪特雷支付佣金及向科利尔支付佣金。

(c)租客须弥偿业主因任何经纪、查找人或租客已与或看来已与之交易的其他人向业主提出申索而蒙受的一切损害,并使业主保持无害,(i)业主已与或看来已与之交易的任何中介人、查找人或其他人(明确包括勘探人)对租客提出的任何申索所引致的一切损害,业主须就该等损害作出弥偿,并使租客保持无害,和CassidyTurley。

10.致谢。租客(i)承认并同意业主在本修订日期已履行业主根据租契须履行的每一项义务,而业主并无没有履行任何该等义务,(ii)向业主表示及保证租客并无欠租,而据租客所知,并无任何事件、条件或情况会因发出通知及(或)随着时间的推移而构成租客欠租。

11.对修正的限制。除本修正案另有明文规定外,本修正案所载的任何规定、条件或契诺均不得改变或影响租约所载的任何规定、条件或契诺,亦不得影响或损害租约所载的任何权利、权力或补救办法,租约的条件及契诺须继续完全有效,并在此批准及确认。租约的规定与本修正案相抵触的,以租约为准。

12.一体化。本修正案和租约载有或以提及方式明确纳入双方就本合同所述事项达成的全部协议,并取代双方先前进行的所有谈判。

 

- 11 -


13.租约修订生效日期。将本修订呈交租客审核或签署,并不构成对租住扩展处所或租契的保留或选择,亦不构成对租住扩展处所的租契的保留或选择,作为对租约的修订,或以其他方式直至业主及租客双方签立及交付为止。

14.对应方。本修正案可由对应方执行,每项修正案均应为原件,但所有修正案均应构成一项文书。订约方同意,如业主及/或租客在本修订上的签署并非正本,而是数码、机械或电子复制(例如但不限于影印本、电子邮件、PDF、Adobe影像或JPEG),则该等数码、机械、或电子复制应与签字人手工书写的真实和传统的纸墨原始湿签字具有同等的可执行性、有效性和约束力,并具有同等的法律效力。

【签名从下一页开始】

 

- 12 -


为昭信守,双方于本合同第一次书面签署之日起签署本租约修正案。

 

房东:
441Logue Avenue Associates,LLC,一家特拉华州有限责任公司
通过:  

/s/stevedostart

姓名:   史蒂夫·多斯塔特
其:   经理人
租户:  

Elance,Inc.,

特拉华州的一家公司

通过:  

/s/fabio rosati

姓名:   法比奥·罗萨蒂
其:   总裁兼首席执行官
通过:  

/s/Michael J.Culver

姓名:   Michael J.Culver
其:   财务副总裁/法律

 

- 13 -


LOGO


LOGO


LOGO


LOGO


Logue Avenue Associates,LLC441

艾迪生大道145号

帕洛阿尔托,CA94301

致租客的通知

2014年2月25日

elance,inc.

罗格大道441号

山景城,CA94043。

Attn:Michael Culver

 

关于:

加州山景城罗格大道441号

亲爱的房客:

这将通知您,2014年2月25日,位于您作为租户的加州山景城名为441Logue Avenue Associates,LLC(“前房东”)的项目被441Logue Avenue Associates,LLC(“前房东”)出售给谷歌公司(“新业主”)。请注意,就交易而言,你的租约已由原业主转让给新业主,而原业主就该租约持有的信用证已转让予,而先前业主有关该等信用证的责任,已由新业主于2014年2月25日起承担。

截至2014年2月25日,该项目将由以下机构管理:

Orchard Commercial公司。

请立即开始,支付所有未来租金和根据租约到期应付给谷歌公司的其他款项。因此,根据您的租约应支付的所有租金和其他款项应提交如下:

如以支票付款:

谷歌公司。

C/O Orchard商业公司。

Laurelwood Road2055,Suite130

圣克拉拉,CA95054

 

 

-1-


Logue Avenue Associates,LLC441

艾迪生大道145号

帕洛阿尔托,CA94301

如以电汇支付:

账户名称:Google Inc.

帐号:

美国律师协会:

环球银行间金融电信协会(SWIFT)代码(仅适用于国际电信):

银行名称:富国银行

参考资料:租户姓名

你希望或需要根据租约向业主发出的任何书面通知,应寄往下列地址:

谷歌公司。

C/O Orchard商业公司。

Laurelwood Road2055,Suite130

圣克拉拉,CA95054

如对项目或租约有任何查询,请按此地址向新业主查询,或致电

shannonfreitag-408-922-0400-sfreitag@orchardcommercial.com

marissaborgman-408-922-0400-mborgman@orchardcommercial.com

【签名在下面一页】

 

-2-


Logue Avenue Associates,LLC441

艾迪生大道145号

帕洛阿尔托,CA94301

真的是你的,

以前的房东:

Logue Avenue Associates,LLC,

特拉华州的一家有限责任公司,

 

通过:  

 

姓名:  

 

其:  

 

 

-3-