查看原文
免责申明:同花顺翻译提供中文译文,我们力求但不保证数据的完全准确,翻译内容仅供参考!
EX-96.3 11 展览963-technicalrepo.htm EX-96.3 展览963-technicalrepo
潘帕布兰卡行动年2025年技术报告摘要日期:2026年4月附件 96.3摘要本报告提供了在潘帕布兰卡场址获得SQM的硝酸盐和碘矿物资源和矿物储量所使用的方法、程序和分类。交付的矿产资源和储量对应于截至2025年12月31日的更新。所得结果汇总于下表:矿产资源2025采矿总推断资源总指示资源总实测资源吨位(MT)硝酸盐品位(%)碘品位(ppm)吨位(MT)硝酸盐品位(%)碘品位(ppm)吨位(MT)硝酸盐品位(%)碘品位(ppm)潘帕布兰卡217.85.38513526.46.33 55999.55.3 1385采矿物产探明储量(1)平均品位硝酸盐平均品位碘(百万公吨)(按重量百分比)(百万分之一)潘帕布兰卡76.45.39% 399采矿物产概算储量平均品位硝酸盐平均品位碘(百万公吨)(按重量百分比)(部分每百万)Pampa Blanca(1)上表显示了与该矿物的开采和处理相关的损失之前的已探明和概略储量。探明储量和概略储量受到采矿方法的影响,导致矿山计划中可供开采的估计储量与最终转移到浸出垫的可采材料之间存在差异。回收材料中所含硝酸盐和碘工艺的全球平均冶金回收率在每个pampa中是可变的(60%至80%)。探明储量和概略储量的夹缝厚度≥ 2.0m,坡度不应超过8%。(2)所有探明最多的采矿储量均采用区块模型估值法,对此每个pampa都会有一个边界效益(BC),以实现每个区块经济价值最大化。TRS潘帕布兰卡2025款PAG。2个目录目录目录......................................................................................................3个表格......................................................................................................61个执行摘要......................................................................................................9 1.6.1冶金测试总结......................................................................14 1.6.2采矿和矿物加工总结......................................................14 2介绍......................................................................15 3描述和位置......................................................................................20 4无障碍、气候、当地资源、基础设施和物理图谱......................................................................................................23 5历史....................................................................................................................26 6地质环境、矿产...................................................................................4 47.3.2勘探钻头样品回收....................................................................457.3.3勘探钻孔测井...................................................................457.3.4数据点的勘探钻孔位置.....................................467.3.5合格人员关于勘探钻探的声明.....................................468样品编制, 分析与安全.....................................................46 8.1.1 RC钻孔.....................................................................................46 8.1.2样品制备.....................................................................................................47硝酸盐测定....................................................................................................................50 8.3.1实验室质量控制....................................................................................................51精度控制....................................................................................................51批次组成....................................................................................................5 18.3.2质量控制和质量保证计划....................................................................5 18.3.3样品安全....................................................................................56 9数据验证....................................................................................61 10矿物加工和冶金检测....................63 10.2.1样品制备....................................................................................65 10.2.2卡利奇矿物和化学表征.......................................................68 10.2.3...................................................................................................69 10.2.4 Caliche物理性质......................................................................70 10.2.5工业规模产量估算......................................................................75 11矿产资源估算..................................................................77 11.1.1样本数据库...................................................................................78 TRS Pampa Blanca 2025 PAG。311.1.2地质域和建模...................................................................................78 11.1.3分析合成.....................................................................................79 11.1.4异常值等级、截止值、 和品位封顶.....................79 11.1.5比重力(SG).......................................................................................79 11.1.6 Block模型矿产资源评价......................................82 11.1.7多边形矿产资源评价.....................................................92 212矿产储量估算.....................................................................94 13。采矿方法....................................................................................................98 14。加工和回收方法...................................................10 914.1.1堆浸:......................................................................1 114.1.2碘化物装置......................................................................................11 314.1.3 Florencia蒸发式太阳能电池池......................................................11 314.2.1工艺标准......................................................................11 514.2.2太阳能电池池规格......................................................................11 514.2.3生产平衡和产量......................................................................1 1614.2.4产量估算.......................................................................1 1714.3.1。能源和燃料要求.................................................................... 11814.3.2。供水与用水......................................................................1 18用水量....................................................................................... 11915项目基础设施....................................................................................................1 2215.2.1矿山....................................................................................1 2615.2.2浸出....................................................................................1 2715.2.3碘化物装置....................................................................................1 2815.2.4蒸发池....................................................................................................1 3016市场研究....................................................................................1 3516.1. 3.1.1市场....................................................................1 3616.1. 3.1.3营销与客户....................................................................................1 3816.1. 3.1.4竞争....................................................................1 3817环境研究,许可和社会或社区影响..................................................................................................14717.1.1基线研究......................................................................................1 4817.1.2......................................................................................15 317.2.1.......................................................................15 4......................................................................15 417.2.2m......................................................................................15 417.4.1.......................................................................15 617.4.3社会风险矩阵......................................................................15 717.5.1......................................................................................15 817.5.2结算成本.......................................................................................................16 2 18资本和运营成本......................................................................................................16 4 TRS4


 
18.1.1 Caliche矿业....................................................................................16 418.1.2堆浸....................................................................16 418.1.3碘化物和碘厂....................................................................................16 518.1.4太阳能蒸发池....................................................................16 518.1.5水资源....................................................................16 519经济分析....................................................................................................16 620毗邻属性...................................................................................................17 321其他相关数据和信息......................................................17 722解释和结论......................................................................................17 723建议......................................................................................17 824参考资料...................................................................................................................18 0 25依赖5表表1-1。截至2023年12月31日的潘帕布兰卡矿产资源。表1-2。Pampa Blanca矿的环境状况。11表1-3。Pampa Blanca矿的矿产储量(2023年12月31日生效)12表2-1。QP为支持TRS审查表3-1对Pampa Blanca进行的现场访问汇总。Pampa Blanca矿址的采矿资产总数。22表4-1。相对斜率值RR、其分类及结果值因子Sr.24表7-1。Pampa Blanca Properties 41按部门划分的钻孔数量和总米数的详细信息表7-2。在2023年战役中钻探的米表7-3。Campaigns平均NANO3和I2表7-4。按部门分列的潘帕布兰卡恢复百分比表10-1。解决Caliche堆浸最重要方面的方法。64表10-2。不同物种的化学分析方法68表10-3。Caliche Minerals物理性质的测定。# #表10-4。Pampa Blanca 4区卡利切斯体测对比结果。# #表10-5。连续浸出试验结果,caliches Pampa Blanca Section 4 # #表10-6比较在Nueva Victoria运营的583堆浸桩确定的成分。表11-1。潘帕布兰卡地区碘和硝酸盐基本样本统计578表11.2潘帕布兰卡地区比重样本80表11-3。Block模型尺寸表11-4。潘帕布兰卡第5区碘的变异函数模型83表11-5。扇区5的样本选择。85表11-6。碘87表11-7的全球统计比较。硝酸盐91表11-8的全球统计比较。Block模型等级与不同桩测量等级的比较,Pampa Blanca 91表11-9。Pampa Blanc 92表11-10中用于反向距离加权IDW的参数。矿产资源估算,含矿产储量,截至2023年12月31日93表12-1。Pampa Blanca矿的资源到储量转换系数表12-2。Pampa Blanca矿的矿产储量(2023年12月31日生效)97表12-3。Pampa Blanca矿按部门分列的储量(2023年12月31日生效)98表13-1。Pampa Blanca-SQM caliche矿山特征汇总表13-2。密闭堆浸边坡稳定性分析总结结果。101表13-3。计划2023-2029年的采矿计划。表13-4。Pampa Blanca矿105表13-5设备车队和Pampa Blanca矿107表13-6的爆破格局。Pampa Blanca矿的矿山和PAD浸出生产– 2023-2029年期间表14-1工艺标准摘要。矿址caliche堆浸及生产性碘工艺。表14-2太阳能蒸发系统的流入和流出说明表14-3潘帕布兰卡2023年碘和硝酸盐汇总表14-4潘帕布兰卡加工厂生产汇总。113表14-5率工业供水表14-6潘帕布兰卡工业和饮用水消耗量表16-1。SQM2021、2020、2019及2018年收入百分比拆分TRS Pampa Blanca 2025 PAG。6表16-2。碘和衍生物的数量和收入,2018-2021年表16-3。收入表16-4的地域细分。特种植物营养素销量及收入,2021、2020、2019、2018年表16-5。销售表16-6的地域细分。2021、2020、2019、2018年工业化学品销量及总收入表16-7。收入的地理分类表17-1。潘帕布兰卡项目的环境影响和承诺措施153表17-2。缓解, 整治补偿方案# #表17-3。环境监测计划155表17-4。部门环境许可。155表17-5。Pampa Blanca矿山剩余装置关闭计划的关闭措施和行动。158表17-6。潘帕布兰卡场址主要设施风险评估160表17-7。Pampa Blanca矿场关闭费用162表17-8。Pampa Blanca 162表17-9的关闭后费用。宪法保障潘帕布兰卡矿山关闭计划。163表18-1。潘帕布兰卡业务资本支出总表2025164表18-2投资估计数165表18-3潘帕布兰卡业务费用166表19-1。Pampa Blanca长期矿山产量表19-2。潘帕布兰卡碘和硝酸盐价格和收入表19-3。潘帕布兰卡运营成本。表19-4。估计期间净现值(NPV)图3-1。一般位置图21图4-1。边坡参数图SR和高程剖面轨迹AA "图6-1。智利北部盐碱地矿床地貌方案。27图6-2.a)南美洲西部边缘目前的气候带27图6-3。简化地质图。图6-4。潘帕布兰卡的地质图。图6-5。Pampa Blanca表层单位QCP分层单位图6-6。潘帕布兰卡36地层柱和地层横截面图6-7。膨胀Pampa Blanca图6-8中的地层柱和地层横截面。Pampa Blanca Caliche矿物学。图6-9。南美洲中安第斯山脉地图(a)安第斯山脉中南部主要形态构造省份标示图7-1的数字高程图。Wingtra One固定翼飞机图7-2。潘帕布兰卡钻孔位置图42图8-1。a)钻点标记b)钻机定位c)RC钻孔d)图8-2平台的RC样品。a)运输卡车。b)带有RC样品的托盘47图8-3。样品制备流程图8-4。a)样品分部b)圆锥破碎机c)Riffle切割机d)样品粉碎e)包装49图8-5。实验室化学分析结果审批流程图# #图8-6。Pampa Blanca IV和V区TRS Pampa Blanca 2025 PAG硝酸盐和碘重复样本统计。7图8-7。a)样品储存b)钻孔和样品标注图8-8。Nueva Victoria Figure 10-1的Iris – TEA仓库。潘帕布兰卡冶金试验采样和开发方法的一般阶段。图10-2用于冶金测试的复合样品Faena Pampa Blanca Section 4的金刚石钻孔活动地图。图10-3。Rigaku NEX QC系列EDXRF光谱仪图10-4。UDK 169与AutoKjel自动采样器-Kjeldahl全自动氮蛋白分析仪69图10-5。在Iris中试工厂实验室进行了嵌入、压实和沉降测试。# #图10-6。连续浸出试验开发程序图10-7。碘回收作为总盐含量的函数。图10-8。浸渍阶段的参数尺度和灌溉策略。图10-9。灌溉策略选择图10-10。硝酸盐和碘产量估算及产业关联图11-1。Pampa Blanca Section 4-5的Block模型位置。图11-2。潘帕布兰卡5区碘的变异函数模型。图11-3。与矿产资源Pampa Blanca Sector 5接壤的多边形平面图11-4。碘– PB5的Swath图图11-5。硝酸盐的Swath图– PB5图11-6。碘(上)和硝酸盐(下)估算的视觉验证,平面图– PB5图12-1。Pampa Blanca储量部门地图,图13-1。Pampa Blanca矿层状柱及示意图剖面图13-2。岩土分析结果:堆n # 300, 假设最大可信地震102图13-3。Pampa Blanca矿(caliches)的垫层构造和形态。图13-4。Pampa Blanca矿典型爆炸图片(caliches)106图13-5。Pampa Blanca采矿计划2024-2030年图14-1。Pampa Blanca生产工厂和设施的位置。图14-2。Pampa Blanca选矿厂caliche矿石处理的块状工艺简图。111图14-3。caliche浸出112工艺流程示意图图14-4。碘化物工厂工艺图113图14-5扩大Florencia de Pampa Blanca工厂的蒸发池计划。图14-6。Pampa Blanca预计的水和试剂消耗量图15-1。一般位置项目Pampa Blanca 123图15-2。植物Pampa Blanca现况图15-3。碘化物工厂图15-4。卡车车间。图15-5。运营中心。图15-6。太阳能蒸发池。图15-7。中和厂。图19-1。灵敏度分析173图20-1。潘帕布兰卡相邻房产图20-2。与该项目相邻的、由他人利用的其他物业TRS Pampa Blanca 2025 PAG。8


 
1 Executive Summary 1.1 Property Summary and Ownership位于安托法加斯塔省Sierra Gorda的Pampa Blanca矿拥有位于平地或“pampas”的矿床,面积为51,201公顷。勘探计划结果表明,已勘探区域反映出含有硝酸盐和碘的矿化趋势。勘探产生的发现,在某些情况下,可能会导致开发、出售发现,并在未来产生特许权使用费。在此框架内,该公司于2013年记录了向Antofagasta Minerals(铜矿开采)出售Antucoya项目的特许权使用费。作为属于SQM-Pampa Blanca限制的一部分,该项目附近还有其他房产正在被他人开采并且存在部分采矿权,这些房产包括:Algorta Norte S.A.、Antofagasta Minerals、Mina Rencoret。1.2地质和矿化潘帕布兰卡位于中央凹陷的地貌单元中,受到位于科迪勒拉-德拉科斯塔山脉东坡和向东发展的中间山脉西坡上的地层单元产生的建模过程的影响,在那里发现了古生代到最近年代的单元。位于潘帕布兰卡的硝碘矿床浸没在冲积扇沉积环境中,矿化与碎屑沉积岩(砾岩序列、砾岩角砾岩、角砾岩和砂岩)相关,在较小程度上与火山岩相关。影响板块的主要结构分别对应于NS和NW-SE方向的两个主要系统,这些系统产生了一个构造隆起盆地,承载着这个矿床。这些结构也会影响该区域的形态,有助于形成深沟并控制排水网络。潘帕布兰卡矿化为海底形,区域分布广泛,形成延伸数公里的“点”;矿化厚度可变,地幔约为1.0至5.0米。所鉴定的矿物学关联主要对应于Na-K的可溶性硫酸盐、Ca的可溶性较低的硫酸盐、氯化物、硝酸盐和碘酸盐。在感兴趣的矿种范围内,对于硝酸盐;硝酸盐(NaNO3)-KNO3(硝酸钾);百克磷灰石、银辉石、硫辉石作为碘酸盐。2025年,没有详细的勘探计划。目前,钻井总数为20,952个反循环(RC)钻孔(125,286米)。所有的钻孔都是垂直的。钻探是在第一个侦察阶段(1000x1000;800x800;400x400)用宽网格进行的;到后来缩小这个间距来定义它们不同类别中的资源。1.3矿产资源说明本小节包含与项目矿产资源估算相关的前瞻性信息。可能导致实际结果与前瞻性信息中的结论、估计、设计、预测或预测存在重大差异的重大因素包括本小节中阐述的一个或多个重大因素或假设的任何重大差异,包括地质品位解释a控制和假设与确定经济开采前景相关的预测。所有可用的样品都在没有合成和没有封顶或其他异常值限制的情况下使用,以开发支持估算矿产资源的地质模型。不同地质单元之间使用了硬接触。使用普通克里金法(KO)插值方法在一个三维块模型中对钻孔网格为50x50m和最大为100x100m的区段进行了一次估算。此外,还构建了变异函数并用于支持搜索数据中观察到的椭球各向异性和线性趋势。使用为碘计算的相同变异函数模型进行碘和硝酸级插值。对于钻孔网格大于100x100m且最大为200x200m的扇区,采用反距离加权(IDW)插值方法在三维块模型中进行估计。对于钻孔网格为400x400m的区域,采用多边形方法进行二维估算。TRS潘帕布兰卡2025款PAG。使用钻孔网格对9种矿产资源进行分类。网格为50 x 50 m至100 x 100 m的区域被归类为实测区域。对于指示的矿产资源,该区域应设置200x200m钻孔网格。为了定义推断资源,使用了400x400m钻孔网格。矿产资源涉及一种新的方法,即“区块价值化”,它为资源考虑了每个pampa的最佳经济包络,以获得大于0.1(BC)的边界效益(美元/吨矿石)。块价值计算中包含的参数有:碘价格、硝酸盐价格、碘回收、 硝酸盐回收、矿山成本、碘厂成本和硝酸盐厂成本”。区块估值方法为计量和指示资源量(不含储量)叠加。由此推断的资源没有估值,报告的是碘边界品位(300ppm)。矿产资源估算,不包括矿产储量,列于表1-1。表1-1。截至2025年12月31日的潘帕布兰卡矿产资源(不包括矿产储量)。Pampa Blanca实测指示M + 1推断吨位(MT)硝酸盐品位(%)碘级(ppm)吨位(MT)硝酸盐品位(%)碘级(ppm)吨位(MT)硝酸盐品位(%)碘级(ppm)吨位(MT)硝酸盐品位(%)碘级(ppm)23.15.03 36526.46.33 559549.56.28 550217.8 5.38513(a)矿产资源不属于矿产储量,不具备证明的经济可行性。不确定全部或任何部分的矿产资源将在应用修正因子后转化为矿产储量。(b)矿产资源基于修正因素的应用,并由于Caliche矿床位于地表,已测量和指示的具有环境许可且位于区块增值范围大于3的部分矿产资源已转换为矿产储量。由于上述原因,提供了不包括采矿储量的地质资源,或在本技术报告摘要中标明和推断的本测地质资源报告中包含的地质资源。(c)由于数字四舍五入和使用平均法造成的差异,数值比较可能不会相加。(d)单位“MT”“ppm”“%”分别指百万吨、百万分率、重量百分比。(e)资源矿产涉及的边界效益(美元/吨矿石)大于0.1且caliche厚度≥ 2.0m。(f)随着每年对矿产资源估算过程进行审查和改进,矿产资源可能会在几何形状、吨位或品位方面发生变化。密度分配给所有材料的默认值为2.1(t/m3),该值来自SQM在Pampa Blanca和其他操作中所做的几项分析。QP不知道有任何环境、许可、法律、所有权、税收、社会经济、营销、政治或其他相关因素可能对本技术报告中未讨论的矿产资源估算产生重大影响。1.4矿产储量说明本小节包含与项目矿产储量估算相关的前瞻性信息。可能导致实际结果与前瞻性信息中的结论、估计、设计、预测或预测存在重大差异的重大因素包括与本子节中提出的一个或多个重大因素或假设的任何重大差异,包括矿产资源模型吨和品位,修正因素包括采矿和回收因素、生产率和进度、采矿设备生产力、商品市场和价格以及预计运营和资本成本。TRS潘帕布兰卡2025款PAG。10以钻孔网格50x50m和最大100x100m定义的测量矿产资源;并使用3D块和普通克里金法进行评估,被认为具有较高的地质可信度,即为合格的探明矿产储量。(见表12.2)。以大于100x100m至200x200m的钻孔网格为界的指示矿产资源;并采用3D区块模型和反距离加权(IDW)插值方法进行评价的,认为地质可信度为中等水平,合格为概略矿产储量。矿产储量基于区块估值方法,该方法为资源考虑了每个pampa的最优经济包络线的截止效益(美元/吨矿石)大于3。区块价值计算中包含的参数为:碘价格、硝酸盐价格、碘回收、硝酸盐回收、矿山成本、碘厂成本和硝酸盐厂成本”,储量的另一限制条件为caliche厚度≥ 2.0m和坡度,不得超过8%。经济可行性体现在税后现金流折现中(见第19节)。所有矿产储量均在具有环境许可(RCA)的部门中定义。一些部门属于Pampa Blanca矿在1997年之前开始开采,因此它不需要制定环评和获得行政许可(RCA)就可以根据智利现行环境立法(Ley 19.300 Bases Generales del Medio Ambiente, 1994年3月1日)。这些部门设有“授权部门”(运营许可证),允许SQM运营和提取使用堆浸结构(带堆浸的运营许可证)或传统方法(“bateas”)(不带堆浸的运营许可证)估算的资源,以获得富含碘和硝酸盐的新鲜卤水。SQM有Pampa Blanca矿的某些板块具有不同的环境许可或运营许可的状态流程,因此,没有RCA的估算资源量不能被视为储量(表1-2)。表1-2。Pampa Blanca矿的环境状况。Pampa Blanca RCA without RCA Measured Resources 23.11 4.4探明储量99.5指示资源526概略储量RCA环境资格决议行政文件,其中确定环境影响评估过程已获得批准、拒绝或有条件的运营许可运营许可(“Autorizaci ó n Sectorial”)的批准,该许可与1997年之前开始活动的矿山相对应。许可证中考虑的开采方法不能修改,除非进行环评以获得没有RCA部门的相应许可证(RCA)而没有RCA;因此在这些标准中,这一类别下的资源不被视为可能储量,Pampa Blanca的已探明储量矿产估计为7640万吨(MT),估计平均硝酸盐品位为5.4%,碘为399ppm。所有可能储量都被重新归类为已探明储量,因此此次更新不再有已探明储量。矿产储量以原位矿石表示。TRS潘帕布兰卡2025款PAG。11表1-3。Pampa Blanca矿的矿产储量(2025年12月31日生效)探明储量概略储量总储量吨位(MT)76.476.4碘品位(ppm)399399硝酸盐品位(%)5.4% 5.4%碘(kt)30.53 0.5硝酸盐(kt)4,1264,126注:(1)矿产储量基于大于3美元/t的边界效益(BC)、caliche厚度≥ 2.0m和坡度不大于8%的扇区限制。(2)探明矿产储量以按上述(a)中所述标准测量的矿产资源为基础。(3)概略矿产储量是根据指示的矿产资源根据上述(a)项中所述的标准,采用由IDW估算的模型进行计算。(4)矿产储量以原位矿石(caliche)为参照点。(5)单位“MT”、“KT”;“ppm”、“%”分别指百万吨、千吨;百万分之一、重量百分比。(6)矿产储量按42.0美元/千克的碘价计算。Miner还基于经济可行性,如税后贴现现金流所示(见第19节)。(7)Marco Fazzi是负责矿产资源的QP。(8)QP不知道任何可能对矿产储量估算产生重大影响的环境、许可、法律、所有权、税收、社会经济、营销、政治或其他相关因素。(九)由于数字四舍五入和使用平均法造成的差异,数值比较可能不合计。1.5 Pampa Blanca的矿山设计、优化和排期2025年达到的Caliche开采总量为470万吨(公吨)。2026年至2040年长期(MP)的Caliche产量为每年5.5公吨,2041年为4公吨;平均碘品位为399ppm,硝酸盐品位为5.41%。Pampa Blanca的采矿程序涉及以下过程:–去除表层和过载(厚度在0.50至2.0米之间)。– Caliche提取,最大深度可达6 m,通过炸药(钻爆)。– Caliche加载,使用前端加载程序。–将矿物运输至堆浸,使用高吨位(100至150吨)的矿车(刚性料斗)。–建造堆浸积共0.5至1公吨,高度7至15公尺,冠面积4万至6.5万平方米(m ²)。– SQM进行的物理稳定性分析表明,这些堆对于长期稳定来说是稳定的,并且不需要对斜坡进行修改以进行闭合。–对堆浸进行连续灌溉,完成浸出循环。每个堆的周期大约持续400到500天,在此期间,堆高减少15%到20%。SQM为建立采矿计划设定的标准对应于以下各项:TRS Pampa Blanca 2025 PAG。12


 
– Caliche厚度≥ 2.0 m –覆盖层厚度≤ 3.0 m –贫瘠/矿物比< 1.0 –颗粒碘单位销售价格42美元/公斤,单位总成本33,601美元/吨(采矿、浸出和植物加工)。将使用传统的钻孔和爆破方法提取caliche。在Pampa Blanca矿,初始浓缩过程从原位浸出开始,通过滴灌/喷灌的堆(浸出垫)获得碘和硝酸盐富集溶液,然后送到处理厂获得最终产品。在堆浸工艺中,总耗水量为0.49-0.51m φ/t的“卡利奇斯”。ROM堆浸法(用传统方法钻爆提取的材料)中,浸出工艺产率设定为碘60%左右,硝酸盐40%左右。除堆以外的其他采矿设施是溶液池(卤水、混配、中间溶液-SI-)和水和备用池(卤水和中间溶液)。从盐水池中,浓缩溶液通过HPDE管道送到碘化物工厂。鉴于采矿和浸出工艺设定的生产要素(颗粒状碘为64.5%,硝酸盐盐为23.8%,为平均值),预计本期(2026-2041年)从浸出工艺到处理厂的总生产量为22.4kt碘和1121kt肥料用硝酸盐。TRS潘帕布兰卡2025款PAG。131.6冶金和矿物加工1.6.1冶金测试总结开发的测试工作旨在通过在工厂中建立的分离和回收方法确定原材料对生产的敏感性,评估有害元素,在操作中建立机制并优化工艺,以保证回收将与矿物学和化学特征以及待处理矿物的物理和粒度具有内在联系。从历史上看,SQM硝酸盐通过其研发区域,在工厂和/或中试规模进行了测试,这些测试允许通过化学氧化测试、溶液清洗以及最近的浸出堆操作优化测试,通过对待浸出矿石的事先分类,提高有关回收过程和产品质量的知识。SQM位于安托法加斯塔市的分析实验室和Iris Pilot Plant Laboratory(Nueva Victoria)进行物理化学、矿物学和冶金测试。后者允许知道caliche床对抗水浸的行为,从而支持未来的表现。此外,所产生的知识有助于通过caliches的可溶性含量与工艺的冶金产量之间的经验相关性,选择最佳灌溉策略以实现利润最大化,并估计工业规模的回收率。1.6.2采矿和选矿总结生产过程从开采“卡利切”矿石开始。矿石被堆浸成生成的富碘酸&富硝酸盐浸出液,SQM将其称为“卤水”。卤水通过管道输送到加工厂,在那里碘酸盐被转化为碘化物,然后进行加工以获得颗粒(“颗粒”)碘。Pampa Blanca矿的运营在2010年暂停;在2022年下半年,它重新开放,初始产量为0.7公吨,在2022年期间装入浸出堆。碘酸盐厂于2023年3月底投产。在一个“最终产品”领域收集的材料对应于从“Florencia太阳能蒸发厂”收集的盐分,该提取过程产生了废盐(氯化钠、镁和硫酸钠)和高硝酸钠(NaNO3)盐被分离并收集。高硫酸盐被用于杂质消减系统,它们允许增加蒸发池过程中的硝酸盐回收率。Pampa Blanca获准开采的地表面积为10,187公顷;2025年Pampa Blanca的caliche开采量为每年470万吨(Mtpy)。1.7资本和运营成本本节包含与项目的资本和运营成本估算相关的前瞻性信息。可能导致实际结果与前瞻性信息中的结论、估计、设计、预测或预测存在重大差异的重大因素包括与本节所述的一项或多项重大因素或假设的任何重大差异,包括现行经济条件持续存在,因此预计的资本成本、劳动力和设备生产率水平以及意外情况足以说明重大因素或假设的变化。年度产量估计数用于确定年度资本和运营成本估计数。所有成本估算均以2025年美元为单位。年度营业成本以历史营业成本为基础, 为SQM提供的材料移动和估计单位成本。其中包括采矿、浸出、碘和硝酸盐生产。矿石资本成本包括营运资本和关闭成本。年度总运营成本为9.4美元/吨caliche至10.9美元/吨caliche,长期(MP)平均总运营成本为9.9美元/吨caliche。TRS潘帕布兰卡2025款PAG。141.8经济分析本节包含与项目经济分析相关的前瞻性信息。可能导致实际结果与前瞻性信息中的结论、估计、设计、预测或预测存在重大差异的重大因素包括与本小节中所述的一个或多个材料因素或假设的任何重大差异,包括估计资本和运营成本、项目时间表和批准时间、资金的可用性、预计的商品市场和价格。所有费用均以2025美元计。为经济分析,开发了贴现现金流(DCF)模型。现金流折现采用4.2万美元/吨的碘销售价格和323美元/吨的化肥用硝酸盐价格。估算的化肥用硝酸盐价格为323美元/吨,是根据在Coya Sur销售的化肥成品平均价格820美元/吨,减去在Coya Sur的生产成本497美元/吨来估算的。QP认为这些价格合理地反映了当前的市场价格,并且合理地用作本研究的经济分析的销售价格。贴现现金流确定本报告中提供的矿产储量估算在经济上是可行的。基本情况NPV估计为MUSD 202。本研究的净现值对碘和硝酸盐的运营成本和销售价格最为敏感。QP认为成本估算的准确性和偶然性完全在预可行性研究(PFS)标准之内,并且足够用于支持为SQM估算的矿产储量的经济分析。1.9结论与建议矿产资源和矿产储量的Marco Fazzi QP得出结论认为,在本次TRS审查中所做的工作包括申报矿产储量的充分细节和信息。关于资源处理过程,负责的QP,Jes ú s Casas de Prada的结论是,已经使用了适当的工作实践和设备、设计方法和加工设备选择标准。此外,公司开发了新工艺,持续、系统地优化了运营。在以下领域给出了一些建议:–通过堆浸模拟评估可浸出材料被认为很重要,这允许构建一个caliche浸出的概念模型,以期对抛石进行二次处理,以提高整体回收率。建议继续进行地质冶金模型的研究工作,以确定真正的恢复到水的增加。–环境问题包括渗滤液或酸水管理、空气排放管理、尾矿堆管理和渗滤液抛渣。–对整个资源估算过程与外部公司进行审计,即对钻井数据库、资源估算和储量估值进行专家审查。上述所有建议均在申报的CAPEX/OPEX范围内考虑,并不意味着执行这些建议会产生额外成本。2介绍TRS Pampa Blanca 2025 PAG。15本技术总结报告(TRS)由SQM的Sociedad Qu í mica y Minera de Chile(SQM)的专业人员和外部顾问团队,按照美国证券交易委员会(SEC)Subpart 1300(以下简称SK1300)SKRulation SK1300的要求编写。2.1报告的职权范围和目的在潘帕布兰卡,SQM通过堆浸和蒸发生产硝酸盐(硝酸钠和硝酸钾)和碘。本TRS报告的生效日期为2025年12月31日。这个TRS使用英文拼写和公制计量单位。等级以重量百分比(wt.%)表示。截至2025年12月31日,成本以不变美元表示。除非另有说明, 该TRS中的坐标使用世界测地线参考系统(PSAD)1956年通用横向墨卡托(UTM)19区南(19s)以公制单位表示。本TRS的目的是报告SQM的Pampa Blanca业务的矿产资源和矿产储量。2.2数据和信息的来源本TRS基于SQM和公域数据中的信息。所有信息均在本文件中通篇引用,列于本报告末尾的最终“参考资料”部分。表2-1提供了本TRS中使用的缩写(ABBV.)和首字母缩略词。表2-1缩略语(ABBV.)和首字母缩写词Acronym/ABV。Definition’minute second % percent ° degrees ° C degrees Celsius 100T 100截角网格AA原子吸收AAA Andes Analytical Assay AFA弱酸性水丨AFN/FNW FEBL Neutral Water Ajay Ajay Chemicals Inc. as Auxiliary Station 丨ASG ajay-SQM Group BF Brine Feble BFN Neutral Brine Feble BWN丰富的云量CIM Centro de Investigaci ó n Minera y Metal ú rgica acronym/AbbV。定义cm厘米TRS Pampa Blanca 2025款PAG。16


 
CU耗水量COM矿业运营中心光热聚光太阳能发电CONAF国家林业发展公司DDH金刚石钻孔DGA总局水DTH井下EB 1泵站1号EB2泵站2号环评环境影响表丨丨丨东-西FC财务费用FNW弱中性水g克g重力GU地质单位g/cm3克/立方厘米g/mL克/毫升g/t克/吨g/L克/升GPS全球定位系统h小时公顷公顷/年HDPE高密度聚乙烯ICH工业化学品ICP电感耦合等离子ISO国际组织用于标准化kg kg kg kh水平地震系数kg/m3 kg每立方米km千公里kV垂直地震系数kN/m3千牛顿每立方米km2平方公里kPA千Pascal kt千吨ktpd千吨每天ktpy千吨每年ktpy千吨acronym/ABBV。定义kUSD千美元TRS Pampa Blanca 2025 PAG。17kV千伏千伏安L/m2/h升/平米/小时L/m2/d升/平米/天L/s升/秒LR浸出率LCD/LED液晶显示器/发光二极管LCY Caliche和Iodine Laboratories LTTE中压输电线路LIMS实验室信息管理系统LOM矿山寿命m计并购兼并和收购m/km2米每平方公里m/s米每秒m2平方米m3立方米m3/d立方米每日m3/h立方米每小时m3/t立方米每吨masl米海拔以下mBgl米海平面以下mBsl米海平面以下mm毫米mm mm/y毫米每年MPa兆帕mt百万吨mtpy百万吨每年MW兆瓦mWh/y兆瓦小时每年NNE东北偏北NNW西北偏北NPV净现值NS南北O3臭氧ORP氧化还原电位PLS孕浸出液PMA颗粒矿物分析ppbv部分per billion volume ppm parts per million acronym/Abbv。定义TRS潘帕布兰卡2025款PAG。18 PVC聚氯乙烯QA质量保证QA/QC质量保证/质量控制QC质量控制QP合格人员RC反循环RCA环境资质分辨率RMR岩体等级ROM运行矿RPM转数每分钟RQD岩石质量指标SG比重SEC美国证券交易委员会SSE东南南SEIA环境影响评估系统MMA环境部SMA环境监督SNIFA国家环境资质信息系统(SMA在线系统)PSA环境跟踪计划(Plan de Seguimiento Ambiental)SEM地形平地机表面开挖机SFF特种田间肥料SI中间溶液SING Norte Grande互联系统S-K美国证券交易委员会1300子部分1300 SM露天采矿SM(%)盐基质SPM可沉积颗粒物SR释放值,或在1 km ² SS可溶性盐SX溶剂萃取t吨TR灌溉率区域内的最大高程差TAS污水处理厂TEA项目Tente en el Aire项目tpy吨/年t/m3吨/立方米tpd吨/日TRS技术报告摘要ug/m3微克/立方米USD美元/kg美元/千克美元/吨美元/吨/吨首字母缩写词/ABBV。定义TRS潘帕布兰卡2025款PAG。19 UTM通用横向墨卡托紫外线VEC自愿环境承诺WGS世界大地测量系统WSF水溶性肥料重量百分比百分比XRD X射线衍射XRF X射线荧光2.3检查详情每个合格人员(QP)最近的现场访问日期列于表2-2:表2-2。QP为支持TRS审查合格人员(QP)专家而对Pampa Blanca进行的现场访问汇总访问日期访问详情Marco Fazzi Geology mar-26 Pampa Blanca矿山和设施Jes ú s Casas de Prada冶金和矿物加工mar-26在对Pampa Blanca矿区进行现场访问期间,QP在SQM技术人员的陪同下:–参观了矿床(caliche)区域。–检查了钻井作业并审查了采样协议。–审查了岩心样本和钻孔日志。–评估了对未来钻探地点的访问权限。–通过采矿和堆浸查看过程。–与SQM人员一起审查和整理数据和信息,以纳入TRS。2.4先前关于项目的报告– WSP Consulting Chile(WSP)编写的技术报告摘要,2022年3月。– SQM S.A.编写的技术报告摘要,2023年3月。– SQM S.A.编写的技术报告摘要,2024年4月。3描述和位置3.1位置该项目位于安托法加斯塔地区,Sierra Gorda公社, 安托法加斯塔市东北约100公里,巴克达诺镇东北约25公里(SQM,2019年)。该物业位于UTM坐标(WGS 84,Zone 19S)430,000 E-7,460,000 N和430,000 E-7,400,000 N. Pampa Blanca 2025 PAG之间。20


 
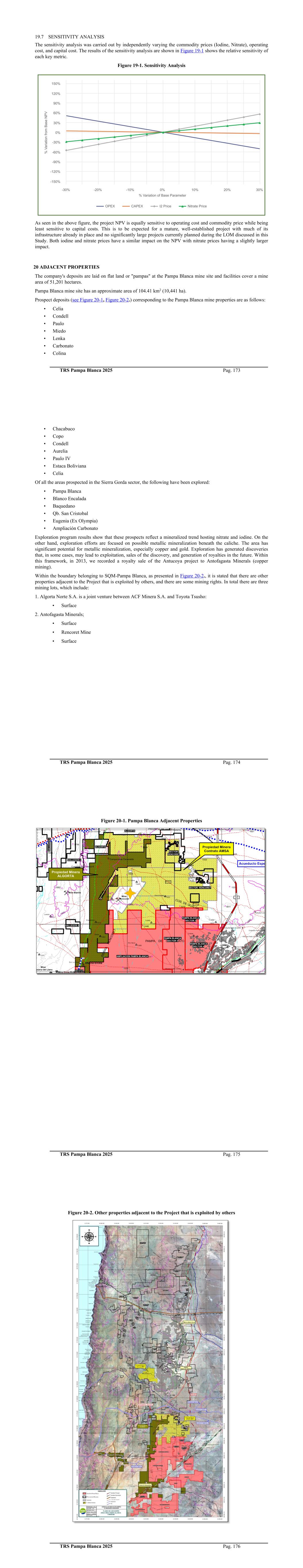
图3-1。一般位置图3.2矿产所有权、索赔、权利、租赁和选择权SQM目前在智利北部拥有4处矿产,分别位于Tarapac á第一区(I)和Antofagasta第二区(II)。这些是Nueva Victoria、Mar í a Elena、Pedro de Valdivia和Pampa Blanca的房产。所有物业的总占地面积约为289,781公顷,并一直在进行400x400米或更细的探矿网格分辨率。Pampa Blanca物业占地约75,802公顷,由表3-1的53处采矿物业组成。TRS潘帕布兰卡2025款PAG。21表3-1。Pampa Blanca矿址的采矿资产总数。矿业属性LENKA 101 1-20 COLINA 1 1-30 LENKA 65 1-30 LENKA 64 II 1-30 MIEDO 52 1-90 CELIA 1-33 LENKA 55 91-120 COLINA 6 1-10 LENKA 75 II 31-60 COPO 1 1-30 LENKA 65 31-60 LENKA 65 91-120 LENKA 64 II 31-60 MIEDO 54 1-40 CARBONATO 13 41-70 LENKA 54 121-150 CARBONATO 12 31-60 LENKA 75 II 61-90 COPO 2 1-30 MIEDO 60 1-60 LENKA 65 121-150 LENKA 64 II 61-90 PAULO I 1-28 CARNONATO 13 71-100 LENKA 5461-30 LENKA 64 II 91-120 CHACABUCO 1-9 COLINA 2 1-30 LENKA 54 91-120 CABNOATO 13 1-40 LENKA 75 II 1-30 MIEDO 50 1-17 MIEDO 63 1-90 LENKA 55 31-60 LENKA 56 III 1-50 AURELIA 1-9 COLINA 3 1-30 LENKA 55 121-150 CABNOATO 12 1-30 LENKA 64 II 121-150 MIEDO 51 1-14 PAULO IV 1-12 LENKA 55 61-90 COLINA 5 1-20 ESTACA BOLIANA V COLINA 4 1-30 CONDELL 1-39 3.3 Mineral Rights SQM拥有超过1,636,259公顷土地的矿产勘探权(Caliche Interest Area并且目前正在开采该地区不到1%的矿产资源(截至2025年12月)。3.4环境影响和许可该工厂具有以下环境授权,其批准详见主管部门(环境评估服务“SEA”)颁发的相应环境资质决议(RCA)–第021/1999号环境资质决议批准环境影响评估(环评)“Florencia太阳能蒸发厂”。–第278/2010号环境资格决议批准环评“Pampa Blanca矿区”。– 319/2013号环境资格决议批准环评“Pampa Blanca扩建”(该项目至今未执行;不考虑此请求)。–环境资格第202502101573号决议批准了DIA“通过纳入新的废盐储存区来修改Pampa Blanca采矿设施”。此外,正在准备Pampa Blanca海水泵送系统项目的环境评估,其中包括矿区和未来运营的海水泵送系统。另一方面,美国国家地质和矿业局(SERNAGEOMIN)发布的与该场址相关的豁免决议对应的是:TRS Pampa Blanca 2025 PAG。22 –授权Pampa Blanca关闭计划的第N ° 821/2009号豁免决议。–授权临时关闭潘帕布兰卡的第N ° 368/2010号决议获得豁免。–豁免第1346/2012号决议授权延长临时关闭,潘帕布兰卡关闭计划。–豁免批准潘帕布兰卡采矿厂关闭计划项目(增值)的第N ° 1424/2015号决议。–豁免第N ° 2873/2017号决议,该决议有利地限定了采矿矿山“Pampa Blanca”关闭计划的增值项目累积到2017年的担保。–豁免批准Pampa Blanca矿项目临时关闭计划的第N ° 802/2019号决议。–批准扩大潘帕布兰卡矿山临时关闭计划的第1304/2020号决议获得豁免。–批准关闭的豁免决议N ° 0292/2023,Pampa Blanca关闭计划。–豁免第N ° 0292/2023号决议废物处置授权-将废物储存为废物倾倒场”–豁免第N ° 0355/2025号决议推迟Pampa Blanca审计。–批准Pampa Blanca选矿厂的第N ° 942/2025号豁免决议。3.5其他重要因素和风险SQM的运营受到某些风险因素的影响,这些因素可能会影响业务、财务状况、现金流或SQM的运营结果。这些因素或风险描述如下:–及时从必要的主管部门获得最终环境批准的风险。有时,获得许可可能会导致新项目的执行和实施出现重大延误。–与总部设在智利的公司相关的风险;潜在的政治风险以及智利宪法和立法的变化,这些变化可能会影响发展计划、生产水平、特许权使用费和其他成本。–与金融市场相关的风险。3.6特许权使用费和协议除了按照智利版权法向智利政府支付标准矿产使用费外, SQM对其Pampa Blanca物业的许可、特许经营或特许权使用费相关付款不承担任何第三方义务。4无障碍、气候、当地资源、基础设施和实物这一部分的TRS提供了潘帕布兰卡物业的物理环境、物业的通道和相关民用基础设施的概要。4.1 TOPOGRAPHY Sierra Gorda平均海拔1.100masl,地理位置位于阿塔卡马沙漠,该沙漠延伸至前安第斯山麓东部和沿海山脉东坡之间的半平原(SQM,2019)。此外,由于浮雕(SR)表示单位面积内景观的粗糙度,因此SR因子被定义为1 km ²区域内的最大高差(表4-1)。TRS潘帕布兰卡2025款PAG。23表4-1。相对坡度值RR、其分类及结果值因子SR.坡度类别从到坡度值RR(m/km2)SR因子极低0 ° 4.3° 0-75 0低4.3 ° 9.94 ° 76-175 1中等9.94 ° 16.71 ° 176-300 2中16.71 ° 26.58 ° 301-500 3高26.58 ° 501-800 4极高坡度> 38.66 > 8005图4-1显示,研究区坡度范围为0~39 °。虽然大部分区域几乎是平坦的(图4-1),但较低的坡度代表了较低的缓解系数,接近4度和9度,尤其是在物业区域。最陡峭的斜坡出现在西部区域,靠近海岸,由于海岸悬崖。由于研究区域极端的自然和人为干预特征,该区域缺乏植物群落或野生动物种群,不是具有建立和发展植物和动物群落潜力的区域,除非在一些存在咸水地下水的区域,可以观察到Tessaria absinthioides(Soroma或Brea)物种,但在项目区域内没有记录到这一点(SQM,2019年)。图4-1。边坡参数图SR和高程剖面轨迹AA " TRS Pampa Blanca 2025 PAG。24


 
4.2植被Pampa Blanca地产是没有植被覆盖的沙漠景观。4.3无障碍和运输至潘帕布兰卡的物业,该公司经营位于安托法加斯塔东北100公里处的采矿业务。可以通过飞机从位于安托法加斯塔的Andrés萨贝拉机场前往,然后在Sierra Gorda镇通过Ruta 5 Norte高速公路前往。4.4气候和运行季节长度本地区以正常沙漠气候为主,几乎全年天空晴朗,降雨量少,大气湿度最低,日气温波动明显。该地区每年平均降雨量为1毫米,主要发生在冬季月份。强降水不超过10毫米,无降水年份最多。年平均气温18 ℃左右,季节振幅7 °,冬季月平均日振幅20 ℃,夏季月平均日振幅15 °。关于蒸发量,每年平均8毫米/天,在冬季月份的4.5毫米/天和夏季月份的12.5毫米/天之间波动。该地区出现了以偏西风为主的风力,尽管每天都有变化。风速平均在20-25公里/小时之间,最高速度出现在14时左右,数字在30公里/小时量级(最终产生阵风高达50公里/小时),最低速度出现在早晨,8时左右在10至15公里/小时之间。全年未观察到突出变化。4.5 Pampa Blanca矿区的基础设施可用性和来源,可以找到以下设施和基础设施。– Caliche矿区。–工业供水。–堆浸作业。–矿山运营中心(COM):卤水蓄积池(贫溶液、中间和富溶液池)、再循环弱盐水池、工业水塘,以及各自的泵送和脉冲系统。–碘化物工厂:包括用于SO2生成的熔炉、带有各自罐体的吸收塔、气体洗涤系统、溶剂萃取厂(SX)及其各自罐体,以及带泵系统的盐水井。–蒸发池:包括中和装置和太阳能蒸发池。–辅助设施:员工办公室和设施、反渗透工厂、废水处理厂(TAS)。–附属设施:办公室、仓库、临时废物堆场等。TRS潘帕布兰卡2025款PAG。25生产设施附近存在供应地表和地下水的水权。Pedro de Valdivia、Pampa Blanca和Coya Sur的硝酸盐和碘设施的主要水源是生产设施附近的罗亚河和萨尔瓦多河。目前,该行动所用的水是从Aguas Antofagasta购买的。有外部供应商提供工业供水。水是通过管道、泵站和电力线组成的网络提取、抽水和输送的,这些网络允许在需要的地方提供工业用水。5历史智利北部Caliche矿藏的商业开采始于1830年代,当时从矿物中提取硝酸钠用于炸药和化肥生产。到十九世纪末,硝酸盐生产已成为智利的主导产业,随之,智利成为硝酸盐生产和供应的世界领导者。这一繁荣带来了外国直接投资的激增,以及所谓的硝酸盐“办公室”或“Officinas Salitreras”的发展。合成硝酸盐在1920年代的商业发展和l930年代的全球经济萧条,导致智利硝酸盐业务严重收缩,直到二战后不久才以任何显着的方式恢复。战后,广泛扩大的合成硝酸盐商业生产导致智利天然硝酸盐行业进一步收缩,该行业在1960年代一直处于低迷水平。在20世纪的前几十年,有许多公司在这一领域开展业务,其中包括位于安托法加斯塔州中部的Oficina Salitrera Chacabuco,建于1920年至1924年之间,于1940年停止运营。它的所有者是盎格鲁硝酸盐公司,后来又是盎格鲁劳塔罗硝酸盐公司。1968年,后者公司将办公室出售给Sociedad Qu í mica y Minera de Chile,并于1971年宣布其为国家纪念碑,以保存智利硝酸盐工业发展的见证。SQM自1987年以来一直致力于处理之前运营的废料,并于1997年开始就地开采矿石。当时,来自潘帕布兰卡的矿石被用卡车运到浸出堆,以获得碘和硝酸盐。2010年2月,潘帕布兰卡的采矿作业被停止,随后该矿临时关闭, 直至2022年下半年重新开放。6地质环境、矿化和沉积6.1智利的区域地质环境,硝酸盐-碘矿床位于中间盆地,东部受限于沿海山脉(代表侏罗纪岩浆弧)和Precordillera(与源自智利北部巨型Cu-Au矿床的岩浆活动有关),为其沉积和集中产生了天然屏障。智利北部的盐和硝酸盐沉积物出现在从山顶和山脊到宽阔山谷中心的所有地形位置(Ericksen,1981)。它们栖息在不同年代的岩石中,呈现出非常不同的岩性;然而,一个显着的特征是它们总是以某种方式与一个被称为盐水碎屑系列(CSS-晚渐新世至新近纪)的关键单元有关。CSS主要由晚白垩纪-始新世火山弧的既有岩石侵蚀和再沉积产生的硅质碎屑和火山碎屑砂岩和砾岩组成。这个关键的地层单元包括在一系列沉积环境下沉积的岩石,包括河流、风成、湖泊和冲积,但所有这些都主要是在干旱条件下发育的。CSS的上部包括主要由硫酸盐和氯化物组成的湖相和蒸发岩。CSS的露头始终位于古晚白垩世-始新世火山弧以西,覆盖了现今的地形(Chong et al.,2007)。TRS潘帕布兰卡2025款PAG。26图6-1。智利北部盐碱地矿床地貌方案。注:硝酸盐矿床仅限于沿海山脉东部边缘和中部盆地(取自Gajardo,A & Carrasco,R.(2010)。Salares del Norte de Chile:潜在锂源。智利SERNAGEOMIN)。智利的大部分硝酸盐矿藏分布在塔拉帕卡省和安托法加斯塔省,更偏北的出现在塔拉帕卡省,主要局限于沿海山脉东侧的一条狭窄地带;而在南部,它们不仅在沿海山脉广泛延伸,而且在中央山谷和安第斯前线也广泛延伸(Garret,1983)。这种类型的矿床中存在极其稀有的矿物,其中我们发现了硝酸盐、硝酸盐-硫酸盐、氯化物、高氯酸盐、碘酸盐、硼酸盐、碳酸盐和铬酸盐。矿化发生为矿脉或浸渍填充孔隙、空洞、干燥多边形和未固结沉积沉积物的裂缝;或作为块状沉积物形成固结到半固结的水泥,作为广泛的均匀地幔胶结在风化层中,称为caliche。在这一区域被识别出5个N-S方向的形态结构单元。(Perez,2013年)。(图6-2)最西端是沿海科迪勒拉,海拔在1,500至2,000 masl之间,中侏罗纪至早白垩世侵入性和火山-沉积岩露头,被阿塔卡马断裂带切割。在东部,发现硝酸盐沉积物的海拔1000至1200 masl的中央凹陷主要充满了新近纪冲积沉积物和中新生代火山沉积岩。东面与中央凹陷接壤的是precordillera浮雕,上升到3,000至4,000 masl.,这里有变质和侵入性古生代岩石露头和中生代海相沉积岩,这要归功于Domeyko断层系统。西科迪勒拉包含目前的火山带,在火山大厦中达到6000米以上的高度,标志着安第斯山脉的西部界限。最后,在东部,我们发现了Altiplano-Puna高原带,在那里,前寒武纪玄武岩Puna高原,从前寒武纪到古生代基底被新近纪到第四纪火山沉积物广泛覆盖(Kay和Coira,2009年)。图6-2。a)南美洲西部边缘目前的气候带(Hartley and Chong,2002)。b)Hartley et al.(2005)的Morpho结构域。AFS:Atacama断层系统。DFS:Domeyko TRS Pampa Blanca 2025 PAG。27断层系统。c)SRTM 90数字高程模型和根据Ericksen(1981)的阿塔卡马沙漠硝酸盐沉积物。框显示当前降水发生情况(Vargas et al. 2006)。TRS潘帕布兰卡2025款PAG。28


 
图6-3。简化地质图。修改自Marinovic et al.(1995),Marinovic and Garc í a(1999),Geological Map of Chile,2003阿塔卡马沙漠构成南美洲西部最重要沙漠秘鲁-智利沙漠超干旱部分的很大一部分。超干旱是由于该地区降水稀少,不超过10毫米/年(Vargas等,2006;Garreaud等,2010)。由于上述原因,在阿塔卡马沙漠中,侵蚀率非常低(Nishizumi等,1998),这有利于在土壤中和其下方的硝酸盐结壳中积累和保存多样且高度可溶性的矿物质。阿塔卡马的硝酸盐矿床也很独特,因为存在不寻常的氧化组分,如碘酸盐、铬酸盐和高氯酸盐,由约0.2至3.0米厚的由硝酸盐、硫酸盐和氯化物组成的复杂矿床承载。TRS潘帕布兰卡2025款PAG。296.2当地地质位于Pampa Blanca区的硝酸盐-碘矿床浸没在冲积扇沉积环境中。矿化与碎屑沉积岩(砾岩层序、砾岩角砾岩、角砾岩和砂岩)伴生,较少与火山岩伴生。该矿化在火山岩中以矿脉LETS的形式存在,在沉积岩中以水泥的形式存在。影响板块的主要结构分别对应NS和NW-SE方向两个主要系统。这些系统产生了一个构造隆起的盆地,该盆地承载着该矿床。同样,这些结构影响了有助于形成深层小溪和控制排水网络的部门的形态。岩性单元描述如下(图6-4):Azabache组(TT)该地层的露头由一系列中酸成分的熔岩构成;主要由安山岩、岩屑凝灰岩和流纹岩形成。Salar De Navidad Strata(PZ)这个名称被赋予了一系列由石英层大陆沉积物、页岩、粉砂岩和石板组成的变质沉积岩。这个单元被分配到位于Mar Muerto盐湖以南的古生界和浮雕中的露头。La Negra组(JV)这些单元广泛分布于整个中央凹陷,构成了打断盐水沉积填充物单调的山脊和岛屿丘陵。地层序列对应的是大陆起源的斑状和隐生安山岩型熔岩,有角砾岩和粗粒砂岩的夹层和一些将安山岩型熔岩的层状分隔开的凝灰质层次。这个地层被指定为中至上侏罗纪年龄。Rencoret Strata(JS Inf)地层由一系列海相石灰岩、砾岩、砂岩和钙质页岩组成,归属于下侏罗纪时代,发现于Pampa Algorta东部区域露头。Sierra El Cobre组(JS Sup)组由一系列海相石灰岩、砾岩、砂岩和钙质页岩组成,属于下侏罗纪时代,中间夹杂着过渡沉积事件。它出现在沿海山脉的东部区域,以及圣克里斯托瓦尔山谷的东部。奥古斯塔·维多利亚组(Augusta Victoria Formation,KV)安山岩质熔岩流序列,基部有火山角砾岩,上部有火成岩,归属于白垩纪中期。它不规则地在潘帕布兰卡和扩张地区的大部分地区被发现为露头。Caleta Coloso组(K Inf)大陆沉积序列,由砂岩、arkoses、细角砾岩和砾岩组成的细层状群组成。其特点是其地层透气性强,砂岩透镜频繁,有交叉层状和砾岩。它位于中央凹陷沿线的中间梯田和盆地中。El Way Formation(K Sup)TRS Pampa Blanca 2025 PAG。由石灰质砂岩、化石灰岩、细角砾岩和砾岩组成的细层状群30个海相沉积层序。其特点是其地层透气性强,交叉层状砂岩、砾岩透镜频繁。它位于集中在该地区南端的中央洼地沿线的中间梯田和盆地中。侵入岩对应于古生代至第三纪的英安岩、纬岩、花岗岩和闪长岩,它们孤立地在中央凹陷内露头,它们的主要发生在中部盆地西部和东部的沿海山脉和中间山脉的浮雕中。松固性沉积层松固性沉积单元或沉积层对应重要的冲积层、冲积层-崩积层、盐水层和湖相沉积层, 由发生在第三纪和更新世的大型雨洪事件产生。这些沉积充填单元占据了中央凹陷区的很大一部分,目前在平缓起伏的地形中形成了充填凹陷或盆地的侵蚀水平,其凹陷在那里呈现出盐碱堆积。这些矿床的组成材料基本上对应的是泥浆和与目前盆地发育的短暂排水系统的冲积层共存的碎石、砂石、淤泥和粘土的非均质堆积物。图6-4。潘帕布兰卡的地质图。内部文件SQM TRS Pampa Blanca 2025 PAG。316.3财产地质学通过钻孔测井和地表测绘收集地质信息,在第四纪单元(QCP)(单元A至E)范围内确定了5个层次子单元。(图6-5)。这些单元对应于沉积物和沉积岩,它们承载着感兴趣的非金属或工业矿石,即碘和硝酸盐。每个单元介绍如下。6.3.1单元A:位于剖面上部,对应浅棕色硫酸化土壤或岩石膏盐水-碎屑层位,平均厚度约40厘米。它主要由沙子和淤泥大小的颗粒组成,在较小程度上由砾石大小的碎屑组成,它们一起在深处定义了一个胶结良好的硫酸盐层位,而在表面,由于更易溶解的成分的风化和浸出,它是多孔和易碎的,这会产生大约20厘米厚的细小块状沉积物,称为“chuca”或“chusca”。这个单元的特点是暴露出垂直裂缝,可能会也可能不会被填充。6.3.2 B单元:位于A单元下方,对应于硬石膏结核浸入介质至粗砂质基质中形成的浅棕色碎屑硫酸盐土。达到0.5到1.0米的可变厚度。其特点是存在碎屑-盐渍堤防,这些堤防也暴露在下面的单元中。这个单元在水平上失去了连续性。TRS潘帕布兰卡2025款PAG。32


 
6.3.3 C单元:位于B单元之下,对应于细砂岩到中砂岩的块状沉积,颜色深棕色,夹层较厚的角砾岩型沉积物。这个单元的厚度是可变的,识别出0.5到2.0米厚的地层大约。砂岩被很好地固结,并被盐(硫酸盐、氯化物和硝酸盐)固结。这些盐,除了固结沉积物外,还以包裹性碎屑、填充性空洞和盐水风化产生的盐类聚集体的形式出现。6.3.4 D单元:位于C单元下方,对应深棕色多晶角砾岩块状沉积,基质支撑沉积织物。厚度大约在1到5米之间变化,碎屑呈角状到亚圆形,大小从2毫米到8厘米不等,岩性由斑状安山岩碎片、杏仁状安山岩、侵入性和高度蚀变的岩屑组成,基质则由中等到粗砂粒大小的颗粒组成。角砾岩被很好地固结,并被盐(硫酸盐、氯化物和硝酸盐)固结。这些盐,除了固结沉积物外,还以包裹性碎屑、填充性空洞和盐水风化产生的盐类聚集体的形式出现。6.3.5单元E:与单元D类似,除沉积组织和结构外,单元E由深棕色多聚砾岩角砾岩沉积沉积组成,具有碎屑支撑沉积组织和弥漫性水平层状,碎屑呈亚圆形。它们的粒度差异很大,增加了发现尺寸大于10厘米的碎屑的大小,并且在岩性上对应于斑状安山岩的碎片、强烈的绿帘化和绿泥化斑状安山岩、不确定的蚀变侵入岩的碎片和富含氧化铁的岩屑。该矿床被盐类高度固结,这些盐类被观察为水泥、包覆碎屑、填充洞以及盐类风化形成的盐类的集合体或堆积体。6.3.6单位F:对应沉积层序的火成岩基底;在潘帕布兰卡,这主要对应白垩纪火山岩、安山岩至闪长岩熔岩、花岗岩火成体。基底几乎没有矿化;仅限于断裂的区域,矿化被发现为裂缝填充物。TRS潘帕布兰卡2025款PAG。33图6-5。Pampa Blanca TRS Pampa Blanca 2025 PAG中表层单元QCP的分层单元。346.3.7 Pampa Blanca Pampa Blanca区是由一系列砂岩、角砾岩和砾岩填充的广泛沉积盆地的一部分。该区域受到塑造景观的结构的影响,产生了凸起和凹陷街区的形态。该部门确定了3个主要系统•东北-北南•东北•东西。变形的时间性表明了这些系统在矿床形成后的活动。板块断层的活动,以及地表径流的后续作用,是板块地貌的主要控制者和建模者。这一板块的岩性由(图6-6)•中砂岩构成:呈褐色的中粒岩,由盐类胶结,在那里观察到主要的安山岩和闪长岩碎屑。碎屑相当于岩石的10-15 %。•基体支撑的砾岩角砾岩:基体支撑的岩石,多聚质,由安山岩碎屑和闪长岩侵入体组成;碎屑大小在2到4厘米之间变化。该单元显示分选不佳,由含有25%至30%碎屑的盐类胶结。•基体支撑的角砾岩:基体支撑的岩石,多聚质,由安山岩、凝灰岩和闪长岩侵入体的碎屑组成;碎屑大小在4到10厘米之间变化。这个单元显示了更好的选择,由含有35%至40%碎屑的盐类胶结。•碎屑支撑的碎石岩:碎屑支撑的岩石,多聚质,由安山岩、凝灰岩、Fe氧化物碎屑组成;硅化;碎屑大小在8到30厘米之间变化。这个单元显示了一个很好的选择,用盐与50%到60%的碎屑胶结。TRS潘帕布兰卡2025款PAG。35图6-6。潘帕布兰卡地层柱和地层横截面。典型层序,由一层细砂岩形成,在一层序的碎石型角砾岩和碎石岩之上。矿化的发生分布在基质和水泥中。在空间上,它对应的是平均厚度达到3.5米的亚水平矿化地幔。硝酸盐和碘品位平均分别为5.0– 7.0%和450-550ppm。TRS潘帕布兰卡2025款PAG。36


 
6.3.8扩大潘帕布兰卡该地区的地貌由一个长10公里、宽5公里的大型中央NNE盆地组成,该盆地受到大致南北方向的排水影响,向南有瀑布。岩性从上到下以竖立柱描述:•太阳结壳砂岩:通常与构造相关,矿化在这些岩石的基质中呈水泥形式。有向砾岩砂岩的横向渐变。该单元厚度为0.3米至1.5米。•多聚角砾岩:由砂岩包围的亚角状碎屑在一般基质支撑的填料中形成。其中分片占比小于矩阵占比。在基质和水泥中都发现了矿化。这台机组厚0.5米到3.0米。• Class-supported to matrix supported glomerates:Lithics一般是亚圆形的;clast/matrix比率在50%到70%之间变化。矿化被发现填充了岩石的孔隙度,其形式为亚水平和近垂直裂缝填充,并以碎屑周围薄膜的形式。在横向,渐变到砾状角砾岩被识别。这个单位的基数还没有确定。•火山和侵入单元:构成基底的区域内最古老的岩石,砾岩沉积在其上。这些单元在一些区域局部矿化,作为岩石裂缝和孔隙的填充物。6.3.9布兰科恩卡拉达这一地区是由一系列砂岩、角砾岩和砾岩填充的广泛沉积盆地的一部分。该区域受到塑造景观的结构的影响,产生了凸起和凹陷街区的形态。该地区从上到下存在的岩性如下:•中砂岩:褐色的中粒岩石,由盐类胶结,在那里观察到主要的安山岩和闪长岩碎屑。碎屑相当于岩石的10-15 %。•基体支撑的砾石角砾岩:基体支撑的岩石,多聚质,由安山岩碎屑和闪长岩侵入体组成;碎屑大小在2到4厘米之间变化。该单元显示分选不佳,由含有25%至30%碎屑的盐类胶结。•基体支撑角砾岩碎石岩:基体支撑岩石,多聚质,由安山岩、凝灰岩和闪长岩侵入体的碎屑组成;碎屑大小在4到10厘米之间变化。•碎屑支撑的碎石岩:碎屑支撑的岩石,多聚质,由安山岩、凝灰岩、Fe氧化物碎屑组成;硅化;碎屑大小在8到30厘米之间变化。矿化的发生在基质和水泥中均有浸染。空间上,它对应的亚水平矿化mantos平均厚度达到3.0米,平均硝酸盐和碘品位分别为7.0– 7.5%和400 – 450ppm。TRS潘帕布兰卡2025款PAG。376.4矿化矿化在砂岩、角砾岩和砾岩单元中以盐水水泥形式集中,主要矿石为碘和硝酸盐。由于地质活动随时间推移(火山作用、风化作用、断层作用),矿床可发现于:连续地幔:整个地层级别的连续矿化,砂岩和角砾岩在基质和水泥碎屑中具有矿化作用;呈现2.0至4.0米之间的可变厚度。与在深度稀释的碘矿相比,在更厚的厚度下观察到硝酸盐品位的富集。这些地幔被所谓的“沙堤”切割,裂缝中充满了细小的矿化物质,主要是高度压实的砂岩。这些构造沿着整个矿化地幔和层状平面的接触处被观察到。薄薄的盐壳和表层Caliche(“阳光下的caliche”):不连续的矿化,与与盐水和/或蒸发岩矿床相邻的区域有关。这种情况产生了高品位和低厚度(0.5至1.2米)的扇区,与高能力的细砂岩有关;我们可以发现浓度超过1,500ppm的碘和20%的硝酸盐。“堆叠”的卡利切:浸没在浸出沉积岩中的矿化卡利切。这种类型的出现出现在浸出程度很高的区域(与冲积扇有关),这会产生主岩的能力损失,产生质量较差的地幔,矿化方舱堆积能力更强。这些水平或土豆的厚度是可变的,平均达到2.0米。这些caliches的等级较低,被认为是低质量的caliches。控制矿化发生的主要药剂是地质活动随时间变化的产物:•地铁和地表径流(产生垂直和水平的盐类再流动, 导致斑块内的矿物浓度区域)。•岩浆活动(通过地质时间将继续贡献热液解决方案,这将导致盐的降水和再流动)。•化学风化;主要由地表水通过地质时间产生了盐类的再流动,直到找到目前的沉积物。•断层/构造;在沉积层之间的裂缝填充物(碎屑堤)和最近的断层陡坡中发现了盐浓度(硝酸盐)。构造/断层伴生矿化块状、品位高、厚度低。确定的矿物学关联主要对应于Na-K的可溶性硫酸盐、Ca的可溶性较低的硫酸盐、氯化物、硝酸盐和碘酸盐。在感兴趣的矿种范围内,对于硝酸盐;硝酸盐(NaNO3)-KNO3(硝酸钾);百克磷灰石、银辉石、硫辉石作为碘酸盐。表6-7汇总了Pampa Blanca矿区的矿物学。表所基于的数据库中包含的样本数由表头中的“n =”值表示。Pampa Blanca Sector IV的样本数量迄今最多,n = 23。记录的矿物以百分比表示。该表使用以下颜色编码来表示每种感兴趣矿物的干样品按质量划分的百分比含量:–红色填充表示该矿物占干样品质量的10%或更多。–橙色填充表示矿物占干燥样品质量的5%到10%之间。–黄色填充表示矿物占干燥样品质量的1%到5%之间。–在没有颜色填充的单元格中,表示感兴趣的矿物占干样品质量的比例不到1%。TRS潘帕布兰卡2025款PAG。38表6-7。Pampa Blanca Caliche矿物学。组矿种PB S4(N ° = 30)PB S5(N ° = 23)碘酸锂氟石1% 1%氯化物卤石2% 2%碱性长石硝酸硝酸钠4% 7%云母组富恩扎利代石—% 1%云母组温伯石2% 1%长石斜长石Blodita 2% 1%碱性长石六重石1% — %碱性长石Loweite 3% 4%长石斜长石Bassanite 1% 2% Amphiboles(inosilicates)Edenite 1% 1% Mica group Darapskite 1% —% Carbonates Bruggenite 1% 1% Zeolite(沸石组重晶石—% 1%沸石组黑云母—% —%长石斜长石斜长石斜绿石—% —%页硅酸盐Fe-ClinoChlorite —% —%页硅酸盐白云石3% 2%斜长石钠长石4% 4%铁硅酸石石英4% 3% K-长石微斜长石2% 1% K-长石正长石2% 1%硫酸石Starkeyite —% —%斜长石钙长石7% 6%氧化铁赤铁矿—% —%氧化铁磁铁矿—% —%硫酸盐Glauberite 4% 3%氧化铁Ti-Hematite —%—%闪石Mg-Hornblenda —% 1(碳酸盐/硝酸盐)Niter —% —%碱性长石K-Sanidine 1% —%云母组Illite 2% 2%云母组Fe-Muscovite 1% 3%长石斜长石CA-Albite 8% 5%碱性长石AnortoClase 1% 1%碱性长石Sanidine 1% 2% Inosilicates(链状硅酸盐)Wollastonite 1% 1%长石斜长石NA-Anorthite 7% 5% Amphiboles(inosilicates)Hornblenda 1% — %云母组金云母— %—%碳酸盐Boggsite —%—% Zeolites(tectosilicates)Willhendersonite 2% —% PhylloSonite—% 1%沸石组NA-Heulandite —% 3%沸石组CA-Heulandite —% 1%长石斜长石斜长石—% 4% TRS Pampa Blanca 2025 PAG。396.5沉积类型6.5.1 Caliche矿床的成因阿塔卡马沙漠的超干旱核心经历了微不足道的降水(每年< 2毫米)(图6-7)。超干燥症发病的估计年龄范围从古近纪晚期到更新世,尽管确切的时间仍有争议。年代学、沉积学、地貌学证据表明,~45Ma(中始新世)到15Ma(中中新世)的半干旱气候由来已久, 随后是逐步干旱化。该带的地质演化显示出气候和构造之间的强烈反馈,这是特定于快速抬升的中安第斯收敛边缘(Schildgen和Hoke 2018本期)在~20Ma至10Ma之间经历明显干燥(即降水量从> 200mm/y下降到< 20mm/y)的方式。这导致了一种专门的内流排水系统的发展,一种封闭的盆地系统,它接收水,但没有任何方式让水流出到安第斯山脉高地补给的其他水体,那里的海拔增加为增加流向中央山谷的地下水流量和矿物降水创造了有利条件(P é rez-Fodich等人,2014年)。这些构造、气候和水文特征的总和,以一种奇异的方式塑造了阿塔卡马沙漠的表生成矿作用。这些特定表生矿床的保存是由于过度干旱,这是该地区成为世界上最大的硝酸盐、碘、铜和锂等大宗商品生产国的主要因素(Reich等人,2018年)。图6-7。南美洲中部安第斯山脉地图(a)数字高程地图,标有安第斯山脉中南部主要形态构造省份。红色矩形显示了图1B中描绘的区域。(b)智利Norte Grande地区(18 °-27 ° South Lat.)阿塔卡马6.5.2当地矿藏硝酸盐矿藏图盐类的存在在土壤、沉积层序、蒸发盆地、地下和地表水以及动态雾中有广泛的分布。氯化物、硫酸盐、碳酸盐、硼酸盐和自然界中其他相当不寻常的盐类如硝酸盐、碘酸盐、铬酸盐、重色胺、氯酸盐和高氯酸盐的大部分存在是公认的。7 Exploration TRS Pampa Blanca 2025 PAG。40


 
正在进行的勘探由SQM进行,主要目的是支持矿山运营和增加估计的矿产资源。勘探战略的重点是关于矿体吨位和品位的初步背景信息,并将成为下一次重新分类活动的决策基础。勘探工作由矿山人员完成。7.1表面样品SQM不为勘探效果收集表面样品。7.2地形调查通过航拍在潘帕布兰卡的不同区域创建了详细的地形测绘,使用遥控操作的无人飞机Wingtra One(图7-1);设备分辨率为61兆像素,最大飞行高度为600米,飞行自主性为55分钟。测量中的精确度为5至2厘米。该计量自2015年起承包给STG。图7-1。Wingtra One固定翼飞机在2015年之前,地形测量是通过每25米的数据测量剖面完成的;这些剖面是在土地测量员制作剖面时通过步行和从点收集信息完成的。利用这些信息,生成相应的插值,得到扇形面和等高线。7.3钻探方法和结果Pampa Blanca地质和钻孔数据库包括21,102个孔,代表126,280米的钻探。表7-1汇总了按部门划分的钻探情况。图7-2显示了钻孔位置。至于使用的钻孔类型,则对应RC孔,最大深度为7米。所有的潘帕布兰卡钻探都是用垂直钻孔完成的。表7-1。Pampa Blanca Properties Sector网格N °钻孔总米厚度(m)岩心恢复Pampa Blanca 32001791,0746.091 Pampa Blanca 4 50-100-100T-200-400 10,43962,0466.096 Pampa Blanca 5 50-100-200-400 4,08024,5346.08 2 Blanco Encalada 200-400-800 4042,6266.5否数据Pampa Blanca Expansion 50-200-400 6,00036,0006.09 121,102126,280 TRS Pampa Blanca 2025 PAG。41 SQM描述的标准勘探工作程序汇总于以下章节。所有勘探活动都在所有采矿活动中考虑健康和安全的重要性。定期修订完善勘探程序。根据矿产资源的资源投射轻重缓急和长期规划管理开展钻探活动。随后,这份探矿计划提交给各自的副总裁批准,如果他们符合拟规划的储量预测,如果不重合,则修改探矿计划。在Pampa Blanca完成钻探,探矿格为400 x 400 m、200 x 200 m、100 x 100 m、100 locked和50 x 50 m。在Pampa Blanca测量的资源减少到mesh 50;然而,目前重新分类测量资源正在M100T中进行。图7-2。Pampa Blanca钻孔位置图TRS Pampa Blanca 2025 PAG。42个网格> 400米区域已被识别并存在一定成矿潜力的区域,初步在宽网格反向气孔中进行勘探,一般大于400米,根据遇到矿石的深度不同,具有6至8米的可变深度。考虑到网格的类型以及吨位和品位的估算在准确性上受到影响,将该资源定义为假设和投机资源,勘探目标网格> 400m.400m网格一旦确定了具有预期的推断扇区,则进行400x400m钻孔网格。在公认存在caliche的区域或400x400m网格钻探伴随着确认矿化连续性的局部更近间距钻探的区域,400m网格钻探提供了合理的信心水平,因此确定了矿化体的尺寸、厚度、吨位和品位,用于确定勘探目标和未来开发。所获得的信息由地表地质和地质单位的定义补充。在没有合理置信度的其他情况下,400x400m钻孔网格将被定义为潜在资源。200米网格随后,重新定义潜在扇区,并进行200 x 200米钻孔网格,在这种情况下,允许以显着的置信度划定矿化体的尺寸、功率、吨位和品位以及矿化的连续性。在这一阶段,启动详细的地质工作,继续补充地表地质单元的定义和部门的定义,以开展地质冶金分析。该区域用于估算指示的矿产资源。100米、100吨和50米网格的50 x 50米, 100x 100米和100T~100x50米钻孔网格允许以显着的置信度(与钻孔网格相关的信息量)划定矿化体的尺寸、功率、吨位和品位以及矿化的连续性。然后继续根据探矿地点确定地质单位并从中试工厂收集地质冶金分析信息。该区域用于估算已测量的矿产资源。TRS潘帕布兰卡2025款PAG。43图7-3。Iso Iodine Pampa Blanca在Pampa Blanca钻探活动的结果见图7-3,其中红色突出显示碘大于450ppm的扇区,洋红色突出显示碘在400-450ppm之间;蓝色突出显示碘在350-400ppm之间;绿色突出显示碘在300-350ppm之间;黄色突出显示碘在300ppm以下。7.3.12025年运动。在前几年,SQM对目前正在运营的Pampa Blanca矿周边地区开展了勘探、重新分类和资源评估的方案。2025年,没有在潘帕布兰卡及其周边地区开展矿产资源重新分类项目。然而,有钻探活动用于地质冶金目的,并对样品进行了碘和硝酸盐分析。这些活动的概要见表7-2。结果证实了先前的估计。TRS潘帕布兰卡2025款PAG。44


 
表7-2。米在活动中钻探2025年项目/区域钻孔总米Pampa Blanca 442283 Pampa Blanca 5108711总计1509947.3.2勘探钻探样品采收率已计算出迄今为止完成的所有RC孔的岩心采收率。在历史战役中,由于所使用的钻机类型,回收率较低。需要注意的是,采收率在80%以上,这一数值与待钻探岩石的胜任程度直接相关而波动。表7-3详细列出了潘帕布兰卡按部门划分的复苏百分比。表7-3。Pampa Blanca按部门划分的回收率部门网格N °钻孔总米厚度(m)岩心回收率Pampa Blanca 32001791,0746.091 Pampa Blanca 4 50-100-100T-20 0-400 10,43962,0466.096 Pampa Blanca 5 50-100-200-400 4,08024,5346.08 2 Blanco Encalada 200-400-800 4042 2,6266.5 No Data Pampa Blanca Expansion 50-200-400 6,00036,0006.09121,102126,2807.3.3 SQM地质学家对所有样品进行了勘探钻孔测井,这是在现场进行的。日志记录过程使用了记录的协议。地质测井记录了有关岩石类型、矿物学、蚀变和地质力学的信息。测井过程包括以下步骤:-使用以厘米为单位刻度的工具测量“底孔”和钻孔。-绘制切割(RC)和/或钻孔岩心(DDH),确定它们的颜色、岩性、蚀变和/或矿化的类型和强度。-地质力学单元的测定a浸出、平滑、粗糙和插层。使用平板电脑和/或计算机以数字方式记录信息,使用带有控制系统和Acquire系统中数据验证的预定义格式。测井地质学家负责:-生成尽可能高质量和内部一致性的地质数据,在Acquire中使用既定程序和使用系统。-定位并核实待测绘工作信息。TRS潘帕布兰卡2025款PAG。45-执行地质力学和岩性钻孔测绘程序。7.3.4数据点的勘探钻孔定位钻孔项圈坐标测量过程分2个阶段进行。钻孔钻孔前,地质区由Acquire生成带有钻孔数量的平面图和清单,标记并协调到STG公司外部承包人的人员。一位土地测量师在野外对该点位进行了测量,并用木桩和带有内容条形码的标识卡对该点位进行了识别,上面有建议钻孔数量、坐标和标高等信息。钻孔后,使用GNSS设备对孔洞进行勘测,随后由具备所有所需信息的专门软件进行处理。一旦完整战役结束,就对勘测数据进行审核,并发送一份清单,其中包含演习ID信息及其坐标。领子坐标被输入微软®Excel工作表,随后由SQM的人员在Acquire中汇总为最终数据库。钻孔结束时,钻孔套管被拆除,钻箍上标有永久性混凝土纪念碑,纪念碑上的金属标签上记录着钻孔名称。7.3.5合资格人士关于勘探钻探的声明合资格人士认为,选择间距逐渐减小的采样网格作为矿产资源区是从推断到测量矿产资源的升级,并且随着它们进一步转换为已探明的,以及已应用生产计划的可能矿产储量,是适当的,并且符合caliche采矿的良好商业惯例。数据收集的详细程度适合这些矿床的地质和开采方法。8样品制备、分析和安全8.1现场样品制备方法和安全分析样品通知Pampa Blanca矿产资源,在位于安托法加斯塔市的Iris工厂和内部实验室制备和化验。所有采样均由外部操作人员完成。根据实地考察期间的程序审查和随后的数据审查,QP认为,为确保样本代表性而采取的措施对于估算矿产资源是合理的。8.1.1 RC钻探RC钻探的重点是从“卡利切地幔”收集化学变量的岩性和品位数据。RC钻孔由外部公司“Performations RMu ñ oz”在SQM的监督下进行,直径为5 μ inch。SQM设计了钻探活动和兴趣点,以获得有关caliche地幔等级的新信息。一旦指定钻井点,对钻机的定位进行勘测,并在勘测的钻孔位置设置钻机,继续进行钻探(图8-1 A、B yC)。在每个钻孔开始的时候, 钻井点被清理或覆盖,用反铲铲消除了软覆盖层或chusca。在塑料袋中以连续50厘米的间隔从气旋中采集样本。样品在平台上称重并四等分。取了一个切割样品,作为对照样品留在地板上。样品袋系好,插上一张号码卡。(图8-1d)。图8-1。A)钻点标记B)钻机定位C)RC钻孔D)Pampa Blanca 2025 PAG平台的RC样品。46个样品用卡车运到该厂进行机械配制和化学分析。样品按照正确的相关顺序从卡车上卸下,并定位在工厂经理提供的托盘上(图8-2)。图8-2。a)运输卡车。b)装有RC样品的托盘8.1.2样品制备机械样品制备由位于Nueva Victoria的试点工厂Iris V7进行。样品制备包括:TRS Pampa Blanca 2025 PAG。47 • 12至18公斤的样品在锥形分离器中分开;获得的样品应在1.0至2.5公斤之间(相当于初始样品质量的10%至14%)•在潮湿的情况下干燥样品。•使用圆锥破碎机缩小样品尺寸,以生产大约1至2.5公斤的样品,通过10号目(-# 10)。•使用12槽切割器对样品进行分割,每个槽为1/2 "。样品分为三部分:一部分丢弃,另一部分送到粉碎机,第三部分直接送到包装。•样品粉碎。•包装和标签,生成3个样品袋,一个将用于需要100至130克的复合材料,另一个将用于需要100至130克的实验室,另一个将作为备用(图8-4)确定了样品流中质量控制样品的插入点。每20个样本纳入标准样本,包括第一个样本。样品装在装有最多63个样品(重量约为15公斤)的盒子中,运往caliche碘内部实验室。图8-3。样品制备流程图TRS Pampa Blanca 2025 PAG。48


 
图8-4。A)样品部门B)圆锥破碎机C)Riffle切割机D)样品制粉E)包装8.2实验室、分析和分析程序本节介绍应用于测定caliche和钻孔样品中的硝酸盐(NO⑤)和碘的实验室设施、认证标准和分析规程。所有程序均按照ISO9001:2015质量管理标准进行,确保可追溯性、可复制性,并遵守国际最佳实践。分析操作在位于安托法加斯塔的caliche碘实验室进行,该实验室配备高通量分析,每天最多可提供500个样本。实验室工作流程包括样本接收、制备和化学分析,结构为受控区域,以最大限度地减少交叉污染并保持完整性。所采用的方法包括用于硝酸盐定量的紫外可见分子吸收光谱和用于碘测定的氧化还原体积滴定法。每个分析批次都包含严格的质量保证和质量控制(QA/QC)措施,包括准确性的二级标准和精确度的重复样本,所有数据均通过实验室信息管理系统(LIMS)进行管理。TRS潘帕布兰卡2025款PAG。49硝酸盐测定硝酸盐浓度使用紫外可见分子吸收光谱进行定量,遵循标准化分析方案。实验室信息管理系统(LIMS)中记录的最低浓度阈值为1.0%,结果以每升(g/L)NaNO3的克数表示。图8-5:硝酸盐分析碘测定碘分析通过氧化还原体积滴定法进行,确保符合内部质量控制程序。进入LIMS的最低可报告浓度为0.005%。图8-6:碘分析TRS Pampa Blanca 2025 PAG。508.3结果、质量控制程序和质量保证行动8.3.1实验室质量控制为确保硝酸盐(NO3)和碘浓度测定的准确性和精确度,在每批40个样品的分析批次内实施以下质量保证和质量控制(QA/QC)措施:精确度控制–每批包括三个二级标准。–这些标准是由经过认证的参考材料或先前经过验证的溶液制成的。–他们的目的是验证分析系统在可接受的偏差范围内产生结果的能力。验收标准:硝酸盐和碘回收率在核证值的± 2%以内。如有任何标准落在公差范围之外,则启动纠正措施(仪器重新校准、方法检查)。精密控制–在40个样本的集合内随机选择两个重复样本。–两个重复项均在相同条件下进行处理和分析。–精度是通过计算重复项之间的相对百分比差异(RPD)来评估的。–验收标准:硝酸盐和碘的RPD ≤ 5%。批次组成每批次样本总数:40个常规样本+ 3个二级标准+ 2个重复=每批次45个分析。所有QA/QC数据均记录在实验室信息管理系统(LIMS)中,以实现可追溯性。图8-7:硝酸盐和碘分析的QA/QC 8.3.2质量控制和质量保证计划(QA-QC)TRS Pampa Blanca 2025 PAG。51个QA/QC程序通常设置到位,以确保勘探数据的可靠性和保证性。其中包括钻井、测量、采样、化验、数据管理、数据库完整性等方面的书面实地程序。质量控制程序旨在确保钻井活动数据的质量,以便输入估算数据库的品位数据具有足够的精确度和精确度,被认为是可靠的。为此,将盲控样品放入批次,由70个样品组成的架子组成。插入模板A和B由AcQuire软件生成和控制,该软件将控件分布如下,增加16.7%,包括高等级标准、低等级标准、空白(已知值和认证值)、重复样本(表8-1)。表8-1。插入控制的数量和类型。样本模板A %模板A模板B %模板B样本Primary 60100% 60100% DUPG(粗复制件)11.7% 11.7% DUPP(精复制件)23.3% 23.3% STDA(高等级标准)23.3% 11.7% STDB(低等级标准)11.7% 23.3% DUP(重复字段)11.7% 11.7% BK(空白)35% 35%输入的控件数量与每盒样本数量成正比,根据公式:STD(A,B,TERMBK & DUP,DUPG,DUPP)=(模板/每盒样本数)*100准备有质量控制的盒子, 经过培训的技术人员用于样品处理和AcQuire软件的使用。他们的责任是确保适当的样品处理以避免污染和正确插入所有控件,确保样品按顺序编号。一旦这样做,盒子就会被密封,以便运送到SQM实验室。AcQuire系统使用带数字读取的条码系统,最大限度地减少了人为错误,因为如果条码代码不是连续的,它不允许该过程继续进行。此外,运送样品的盒子有编码和二维码,以确保可追溯性。图8-8。创建盒子,用条形码指示样品。TRS潘帕布兰卡2025款PAG。52


 
这些批次在实验室中进行分析,以便量化该过程的精度、精度和污染,详情如下:-精度:通过重复对的失败百分比来量化。可接受限值为超过实际检测限值3倍的故障不超过10%。-精度:结合标准分析结果,计算出相对偏差和变异系数,并通过控制图对过程控制进行分析。可接受性范围是最大5%的偏误(阳性或阴性),变异系数不超过5%,建议在过程失控时进行调查,无论是由于粗误、分析误、系统误或其他错误。样本定义为超过3个标准差时失控,或连续2个或更多样本超过2个标准差时失控。-污染:超过实验室实际检测限值3倍的细白样品不得超过5%。如果这些交付的结果超出了已确定的参数,则拒绝批量(机架),并调查问题的根本原因,随后重新分析所涉及的机架。AcQuire和LIMS系统作为我们的数据库发挥作用,以获取信息并执行对所有样本的跟踪,从而优化结果的时间及其在可追溯性方面的可靠性。8.3. 2.1 QA-QC计划结果2023年至2024年底潘帕布兰卡地区QA-QC计划结果。QA-QC计划的结果为获得结果的每个pampa提供了详细的信息。标准表8-2详细列出了每个pampa的控制结果汇总表。表8-2。对照结果汇总表(标准)– Pampa Blanca扇区STD MV元素单位平均样本OCS OCS(%)Bias(%)CV(%)Pampa Blanca(S4)STD _ A _ 2560 I2 ppm 5342015.00-2.73 9.26 Pampa Blanca(S4)STD _ A _ 25.41 NaNO3 % 4.98 2015.00-8.94 5.59 Pampa Blanca(S4)STD _ B _ 2260 I2 ppm 2552400.00-2.08 3.84 Pampa Blanca(S4)STD _ B _ 22.7 NaNO3 % 2.35 2400.00-13.12 3.55 Pampa Blanca以下数字提供了Pampa Blanca中碘精度图的结果(图8.9)和硝酸盐(图8.10)变量。图8-9。STD A-1和B-1碘精度评估(560ppm和260ppm)。TRS潘帕布兰卡2025款PAG。53图8-10。STD A-1和B-1硝酸盐精度评估(5.41%和2.7%)。复制物Pampa Blanca粗和细粉复制物结果中的碘和硝酸盐在粗(表8-3)和纸浆(表8-4)中的复制物Pampa Blanca,观察到以下精度结果。表8-3。结果汇总表复制粗– Pampa Blanca TRS Pampa Blanca 2025 PAG。54统计员硝酸品级%差异统计员碘品级ppm差异原始检查原始-检查原始检查原始-检查编号1414编号1414均值5.4 35.16 0.26均值220.14 228.57-8.43状态。偏差4.21 4.17 0.04立场。偏差152.88 166.22-13.34 %差异4.87%差异-3.83最小值1.41最小值5090百分位252.23 2.63百分位25133140中位数3.65 4.15中位数186180百分位758.455.6百分位75225245最大值15.3 16.2最大值680740相关指数0.92相关指数0.9表8-4。结果汇总表复制纸浆–潘帕布兰卡统计员硝酸品级%差异统计员碘级ppm差异原始检查原件-检查原件检查原件-检查号码4747号码4747均值4.08 4.080均值275.53 279.45-3.91立场。偏差3.43 3.42 0.01立场。偏差257.46 251.9 25.54%差异0%差异-1.42最小值11最小值5050个百分位2521.9个百分位25145150中位数2.7 2.8中位数180190个百分位755.35.3个百分位75300315最大值16.4 16.4最大值1,4201,380相关指数1相关指数0.99质量控制中的空白污染以白色样品对照表示,下面是潘帕布兰卡草原空白控制结果汇总表(图8-5)。+表8-5。结果空白汇总表– Pampa Blanca Sector I2 NO3 Samples Average Desv Stand OCS % OCS Samples Average Desv Stand OCS % OCS Pampa Blanca 1650.6252.50 0.0% 161000.0% TRS Pampa Blanca 2025 PAG。55下图对应的是布兰卡潘帕白对照样本量最高的4个潘帕斯(图8-11)。图8-11。空白(I2和硝酸盐)图– Pampa Blanca 8.3.3样品安全SQM对采样、机械样品制备和化学分析保持严格控制。在每个阶段,样本的安全性和监管链都得到了保障,使用了描述为此目的应遵循的步骤的协议。所有这些控制都通过Acquire平台进行管理和控制,自2022年Q3以来SQM正在实施过程中, 根据以下章节。本节重点介绍您当前的流程和过程,并介绍建议在GIM Suite中部署的数据管理流程。下面的工作流架构演示了GIM Suite的数据流和对象需求。TRS潘帕布兰卡2025款PAG。56


 
8.3. 3.1规划RC钻探该钻探由地质区使用建模软件进行规划,该软件生成一个Excel文件,其中包含先前对钻探的识别,随后将对其进行修改以进行最终识别,同时还标明了东、北坐标和规划深度。这项规划钻孔是开发成AcQuire网页应用程序“Arena”的任务,允许用户从文件中导入计划钻孔数据。必须在PSAD56中输入坐标。表8-12:将显示计划钻探信息的“竞技场”中的任务。TRS潘帕布兰卡2025款PAG。578.3.3.2Header一般情况下,一个钻井计划最多可进行3万米或更多的钻探,取决于在一年中的目标,每个钻机每月钻探0.4万到0.5万米之间,承包商公司执行钻探并每月向地质区域交付在现场获取的信息的文件。一些最终计划的钻探可能由于设施条件差而无法执行。导入最终钻头:获取允许用户导入最终钻头的领口数据的4,同时考虑导入原始样品及其各自的重复地形。Data Capture Collar:获取元素,允许将钻探期间收集的样本分配给钻孔,以及它们所对应的截面及其顺序编号。在同一对象中,如果由于某些操作原因无法开发,则计划井的状态更改为已执行或取消。导入最终坐标:随着Acquire 4软件的这个导入对象,用户将输入通过测量收集到的钻井最终坐标数据。导入程序将验证最终坐标是否包含与计划坐标相关的大于10%的米差,在数据输入时向用户指示消息。Dashboard Planned vs Executed Meters:Acquire允许通过Sand中的仪表板跟进活动,该仪表板在打孔的仪表上显示带有计划仪表信息的图表和网格,从而提供额外的信息来控制钻探活动的仪表。数据可按钻探执行日期和矿山的扇区进行过滤。选择样本相关:Acquire 4中的数据输入对象,这将允许用户输入一系列相关样本,从而可以选择哪些样本将被打印在标签上。对象必须指示要打印的初始样本ID,这样可以避免用户错误。样本标签报告:在Acquire 4中的报告允许用户以支票簿的格式打印样本标签,报告将应用在A4或字母大小的纸张上,考虑到打印将在纸板纸上进行。该标签将带有每个样本的标识的条形码,从而使用户能够在输入第一个样本的标识时使用平板相机读取条形码。8.3. 3.3地质填图中的地质填图,采集了岩性、碎屑、粘土、颜色、硫酸盐、盐壳、硬石膏、硫酸盐底壳、碎屑百分比和观测数据。地质测绘:在允许用户进行钻探地质测绘的“Arena”软件中进行数据捕获,这一工具必须允许用户在现场进行测绘,使其不与矿网连接。进口地质测绘:允许输入实地开展的地质测绘数据的“竞技场”中的进口商。地质力学测绘:在采集钻孔壁地质力学参数的“竞技场”进行数据采集。导入地质力学测绘:允许输入野外进行的地质力学测绘数据的“竞技场”中的导入程序。Consult Geology of Drilling:Task in“Arena”that will show the information of the drilling geology。咨询钻井地质力学:将显示钻井地质力学信息的“竞技场”中的任务。8.3. 3.4机械制备TRS Pampa Blanca 2025PAG样品的调度。58创建实物样品制备调度顺序:在该对象中用户可以生成实物制备样品的调度顺序。为办公室号码创建一个相关和标识符。打印发货单实物备样:将允许执行发货单报告打印到实物备样的对象。实体办公接收:Acquire中允许用户指示在中试工厂接收的样本的脚本对象,该对象必须通过物理调度号进行过滤,它将在其中提供与此调度相关的样本, 从而使用户能够选择样本,并在系统中表明这些样本已收到。对象必须指示并自动创建纸浆样本,指示每个样本生成的位置。Consult Drilling Dispatch to Preparation:Task in Arena that will show the information of dispatching the samples of the drilling that were sent to mechanical preparation。Consult Pulp Samples:Task in Arena that will have the information of the pulp samples in a grid of data associated with the number of physical distribution received by the pilot plant。在钻孔阶段,钻孔开始前,钻杆被标记以指示取样距离。该钻机安装了一个旋风装置,以减缓颗粒速度,在其下,放置一个袋子来收集样本。从旋风中收集到的样本被小心地存放在塑料袋中,然后用带有条形码的顺序卡片进行识别并捆绑。主管监督要求修改钻探的已确定样本(粗样),提出另一个样本,并注意到每个切割样本在天平中获得的重量。这种数据收集是通过Acquire平台完成的。每天将样品装载到将运往样品厂的卡车上,遵循以下步骤:•主管提供一份调度指南,其中包含钻孔和将收集的样品总数,还向样品厂负责人提及样品数量和未回收样品数量(如果有)。这份调度指南是为Acquire平台生成的。•根据钻孔顺序装样,同样方式卸样。•抵达工厂后,必须向区域经理申请相应的许可证,区域经理将提供卸货指南,该指南考虑样品应如何定位在托盘上。•装有样品的托盘从其存储位置移至分锥器所在位置的样品制备区。在样品制备的所有阶段,都特别注意保持样品的识别,并在使用后清洁设备。已包装并贴上标签的样品,按照“卡利切”样品的装箱说明进行采集,尊重样品的相关顺序、必须在箱中存放的顺序和按箱容量分装样品的数量。TRS潘帕布兰卡2025款PAG。59托盘被贴上标明相应信息和日期(图8-13)的标签,然后被送到位于Nueva Victoria的核心仓库Iris和核心仓库TEA(图8-14)的存储地点,无论是暂时的还是最终的,在送到实验室后。图8-13。a)样品储存b)钻孔和样品标注图8-14。Nueva Victoria Assay的Iris – TEA仓库样本由实验室适当合格的工作人员收集。样本的分析结果由专业分析师报告到LIMS软件系统,集成到平台Acquire中。自动LIMS触发向用户发送电子邮件,并且仅向有权发送信息的用户发送。8.4 QP认为的适当性意见,样品制备、样品安全性以及SQM在Pampa Blanca中使用的分析程序,遵循行业标准,没有提示不足的相关问题。SQM有详细的程序,允许在现场和实验室可行地执行必要的活动,以充分保证结果。TRS潘帕布兰卡2025款PAG。60


 
9数据验证9.1程序QP的验证侧重于钻井、样本收集、处理和质量控制程序、钻芯和岩屑的地质测绘以及分析和质量保证实验室程序。根据对SQM程序和标准的审查,这些协议被认为足以保证从钻探活动和实验室分析中获得的数据的质量。9.2数据管理利用钻探,对矿床进行深度识别并对此使用探矿网格400x400m、200x200m、100x100m、100T和50x50m。根据钻孔网格的大小,采用不同的插值方法估算资源量(详见1.3矿产资源报表)。从这些反向空气钻孔活动中获得的样品被送到SQM的内部实验室,这些实验室有关于其机械和化学处理的质量控制标准。对所有探矿网格(400x400m、200x200m、100x100;100T和50x50m)中的对照样品进行QA-QC分析。该QA-QC包括分析重复与原始(或初级)样品中的NaNO3和碘浓度。9.3技术程序QP审查了与钻井、样品处理和实验室分析相关的数据收集程序。这套程序寻求建立一个技术和安全标准,允许以最佳方式获得现场和实验室数据,同时保证工人的安全。9.4质量控制程序主管人员表示,在SQM质量控制中,通过包括定期分析重复项和插入样品进行质量控制的协议,确保从样品的制备和随后的化学分析中准确地监测样品。9.5精确度评估关于精确度评估,主管人员表示,400x400、200x200、100x100目重复样品的碘和硝酸盐等级与原始样品的等级有较好的相关性;但建议始终保持永久控制。在这个过程中,要及时预防和发现任何可能发生的异常。TRS潘帕布兰卡2025款PAG。619.6准确性评估活动的QA-QC分析是在潘帕布兰卡区域对标准/图案样品进行的,由实验室进行和分析,所得结果表明,分析相对于SQM使用的标准的变化显示出可接受的边际,最大值为± 0.53%的NaNO3和60ppm的碘。9.7实验室认证硝酸盐-碘实验室通过ISO 9001:2015国际认证生物体T ü V Rheinland认证,自2020年3月16日起,至2023年3月15日止(T ü V Rheinland(a),2019)(T ü V Rheinland(b),2019)。没有以前的认证可用。9.8合资格人士对数据充分性的意见合资格人士表示,SQM用来估算潘帕布兰卡地质资源和储量的方法是充分的。400x400m的钻孔网格可能意味着连续性,平均品位的矿化具有适度的置信水平,因为不确定在应用修正因素后,这些资源的全部或部分将成为矿产储量。200x200m钻孔网格生成更详细的地质信息,可以定义地质单元、连续性、等级和功率。因此,在这个勘探阶段,可以定义用于地质冶金测试的部门。这些资源被限定为指示资源。就勘探网格随着钻探100x100m、100T和50x50m而依次减少的程度而言,地质信息更加稳健、可靠,这使得对矿床的特征描述具有显着的可信度。这些资源被认定为实测资源。TRS潘帕布兰卡2025款PAG。6210矿产加工和冶金测试Pampa Blanca场址的运营于2010年暂停,因此根据第1346/2012号豁免决议处于临时关闭状态,根据第1304-20号决议提出的延期请求批准延长Pampa Blanca的临时关闭计划。自2022年下半年起,卡利切提取和堆装作业已恢复;自2023年3月起开始进行碘化物生产和盐水投料至太阳能蒸发厂生产硝酸盐的作业。2025年期间,Pampa Blanca工艺连续运行,矿山、浸出工艺、碘化物工厂和太阳能蒸发池。10.12009年金属冶金测试的历史发展,SQM创建了一个工作组,负责开发测试,以不断改进产量估计和回收有价值的元素,如碘和硝酸盐, 来自堆积物和蒸发池。2010年2月初,第一个冶金测试工作方案在位于Iris区的试点工厂的设施中提出。其主要目标是通过中试测试,提供所有必要的数据,以指导、模拟、加强和产生足够的知识,以理解生产过程背后的现象学。最初的工作计划是围绕以下主题制定的:•审查堆的建设性方面。•研究堆浸的热力学、动力学、水力现象。•从性能和生产水平方面设计配置。工作方案活动按专业划分,每项活动的目标和遵循的方法汇总于下表。TRS Pampa Blanca 2025款PAG。63表10-1。解决Caliche堆浸最重要方面的方法。活动目标方法学堆物理方面桩几何和高度最优尺寸及高度对性能的影响不同高度的数学方法和柱体浸出试验。粒度影响大小和确定最大最佳浸出试验在三个级别的粒度。装料影响装料形态及优化操作。装料中不同尺寸偏析的柱渗透性。润湿要求润湿效果对产量影响的测定。柱试验、干湿矿石Caliche表征表征由采矿部门化学分析、XRD和可处理性试验。水力学浸渍率、灌溉、灌溉系统配置建立最优数学方法和工业水平测试。动力学物种溶解度建立碘和硝酸盐浸出中干扰物的浓度。连续浸出试验灌溉构型效果效果类型浸润剂柱试验固相相粘土对浸出的影响搅拌反应器试验系统构型桩返工研究评价对产量柱试验的影响太阳能蒸发池AFN/卤水混合物研究减少盐的收获时间。搅拌和托盘反应器测试常规样品处理测试样品的制备和分离---可处理性测试堆中可用的caliche行为数据根据被开采的扇区。柱测试灌溉元件和流量计质量控制在同质基础上审查灌溉保证控制这第一个冶金测试工作计划导致建立适当的堆尺寸、最大ROM尺寸和堆灌溉配置。除了让位于对caliche溶解度及其对浸出行为的研究。应用于所有公司资源的化学、物理、矿物学和冶金表征试验图解。目前,所进行的冶金试验与材料的物理化学性质和浸出过程中的行为有关。与这些测试相关的程序如下所述。10.2冶金测试开发的测试的主要目的是评估不同矿物对浸出的反应。在中试厂-实验室,生成复合材料表征和回收数据库的测试数据集。下文详述的测试有以下具体目标:–确定分析过的材料是否足够适合通过工厂中既定的分离和回收方法进行浓缩生产。–优化这一过程,以保证与矿物学和化学表征以及待处理矿物的物理和粒度表征有内在联系的回收率。TRS潘帕布兰卡2025款PAG。64


 
–确定有害元素,建立运营机制,将其控制在一定限度以下,以保证一定的产品质量。SQM的分析和中试实验室进行以下化学、矿物学和冶金测试:–显微镜和化学成分–物理特性:精细粒度和吸力曲线。–浸出测试10.2.1冶金测试的样品制备样品是通过特定的采样活动获得的,所使用的方法对应于获得钻孔样品的不同活动,用于通过100T-200T目和金刚石钻孔的钻孔活动进行分析。利用来自测试井的分类材料,制备复合样品,以确定碘和硝酸盐的等级,并确定材料的物理化学性质,以预测其在浸出过程中的行为。样品根据机械制备指南进行分离,该指南旨在为每次测试所需的最小质量和特征尺寸提供有效指导,以优化可用材料的使用。这允许成功的冶金测试,确保结果的有效性和可重复性。样品取样和开发冶金测试的方法,对于未来矿产资源的预测,由图10-1中描述的步骤摘要组成。图10-1。潘帕布兰卡冶金试验采样和开发方法的一般阶段。TRS潘帕布兰卡2025款PAG。65至于冶金试验、表征、浸出和物理特性的开发,这些都是由在采矿-地质冶金领域拥有丰富经验的专业团队开发的。冶金测试工作方案设想将样品送到内部实验室,根据以下细节开展分析测试工作:•位于安托法加斯塔的分析实验室提供化学和矿物学分析。•位于Iris-Nueva Victoria的Pilot Plant Laboratory进行物理响应和浸出测试。参与冶金测试开发的每个实验室的名称、位置和职责的详细信息在第10.2节分析和测试实验室中介绍。记录钻探计划的报告提供了采样和样品制备方法、符合当前行业标准的分析程序的详细描述。在各个阶段实施质量控制,确保并验证收获的过程在每个阶段都成功发生并具有代表性。为确定样品的代表性,下面是在Pampa Blanca,Section 4的钻石钻探活动的地图,以估计待开采资源的caliche的物理和化学性质(图10-2)。TRS潘帕布兰卡2025款PAG。66图10-2复合样品Faena Pampa Blanca Section 4冶金测试金刚石钻孔活动图。TRS潘帕布兰卡2025款PAG。67 10.2.2 Caliche矿物学和化学表征作为工作的一部分,对复合样品进行了矿物学测试。为开发其矿物学特征和蚀变,采用X射线衍射(XRD)对元素组成进行研究。进行颗粒矿物分析(“PMA”)以确定样品的矿物含量。Caliche矿物学表征运行于以下组分:硝酸盐、氯化物碘酸盐、硫酸盐和硅酸盐。另一方面,在碘(ppm)、硝酸盐(%)和Na2SO4(%)、CA(%)、K(%)、MG(%)、KClO4(%)、NACL(%)、Na(%)、Na(%)、Na(%)、H3BO3(%)、SO4(%)中的caliche化学表征是从公司内部实验室获得的化学分析得到的。分析方法见表10-2。每一种方法使用的协议都得到了适当的记录,涉及材料、设备、 程序和控制措施。10.2.3节提供了用于计算碘和硝酸盐等级的程序的详细信息。表10-2。不同物种的化学分析方法参数单位法碘级(ppm)体积硝酸氧化还原等级(%)紫外-可见Na2SO4(%)重量/ICP CA(%)电位/直接吸气-AA或ICP表面处理MG(%)电位/直接吸气-AA或ICP表面处理K(%)直接吸气-AA或ICP表面处理SO4(%)重量/ICP KClO4(%)电位NaCl(%)体积Na(%)直接吸气-AA/ICP或ICP表面处理H3BO3(%)体积或ICP表面处理公司人员经营的内部分析实验室负责样品的化学和矿物学分析。这些实验室位于安托法加斯塔市,对应以下设施:– Caliche-Iodine Laboratory – Research and Development Laboratory – Quality Control Laboratory – SEM和XRD Laboratory公司报告的结果在以下几点上具有结论性:–盐水基质中最易溶解的部分由硫酸盐、硝酸盐和氯化物组成。–盐基质(SM)中存在的离子组成存在差异。TRS潘帕布兰卡2025款PAG。68


 
–硬石膏、多卤石、芒硝和难溶性矿物都有硫酸钙伴生。–从化学盐的角度来看,该矿床在提取工艺方面是有利的,因为它平均含有49%的可溶性盐、高含量的钙(> 2.5)、良好浓度的氯化物和硫酸盐(分别约为11%和13%)。–作为一个主要是半软的矿床,允许开发地表采矿,在几乎所有的矿床中,这种地质力学条件加上低碎屑含量和低磨蚀性(由“calicatas”证明)将允许在应用这项技术时估计低采矿成本。10.2.3 Caliche硝酸盐和碘级测定复合样品采用碘和硝酸级进行分析。这些分析是由位于安托法加斯塔市的Caliche和Iodine实验室进行的。碘和硝酸盐分析设施符合ISO-9001:2015标准,其中T ü V莱茵提供质量管理体系认证。最新的重新认证流程于2020年11月获得批准,有效期至2023年3月15日。10.2. 3.1碘的测定Caliche中碘的测定方法是氧化还原容积法,它是基于一种确切已知浓度溶液的滴定,称为标准溶液,逐渐添加到另一种浓度未知的溶液中,直到两种溶液之间的化学反应完全(等效点)。质量控制控制包括设备状态检查、样品试剂空白、滴定器浓度检查、重复分析一个标准与样品配置以确认其价值。10.2. 3.2硝酸盐测定Caliches中硝酸盐品位采用紫外可见分子吸收光谱法测定。这种技术允许根据紫外可见光谱的特定波长(100至800nm之间)对溶液中的参数进行量化。该测定使用分子吸收分光光度计POE-011-01或POE-17-01,其中使用含有用过滤后的蒸馏水浸出得到的过滤溶液的玻璃试管。结果以硝酸盐%报告。质量保证标准和结果有效性如下:–事前设备验证。–通过将相同样品的读数与其他紫外-VIS设备进行对比并检查Kjeldahl法蒸馏设备中的读数,每隔一班进行一次比较硝酸盐分析,以进行氮的测定。–每10个样本输入一次标准和质量控制样本。虽然认证是专门针对碘和硝酸盐品位测定的,但这家实验室专门从事矿产资源的化学和矿物学分析,在这一领域有着悠久的经验。据作者称,Antofagasta caliches和碘实验室使用的质量控制和分析程序质量很高。图10-4。UDK 169 with AutoKjel Auto Sampler-Kjeldahl全自动氮蛋白分析仪TRS Pampa Blanca 2025 PAG。69 10.2.4 Caliche Physical Properties自2024年以来,对物理测试进行了修改,以便使目前正在执行的测试自动化。自2025年以来,实施了水分保持曲线测试。从采矿资源交付给中试工厂的每一个反向空气样品中进行选择和采样,处理如下:目200:取一个600克的样品,用于精细粒度和保持水分曲线;在#-10处制备。图10-6。反向空气样品的机械制备。TRS潘帕布兰卡2025款PAG。70样品的物理表征将600克样品按照Iris中试装置的样品制备方案进行细粒度曲线测试和保湿曲线一分为二。细粒度估计的相对误差保持在15%以下的,停止样本分析。如果计算的相对误差更高,则必须分析在网格100处表征的样品。选择网格200中每个钻孔组成的样品进行保水曲线,制成钻孔矿层的复合体。物理表征结果分析对每个pampa、子区或多边形从1到500Pa的保湿性曲线的每个压力计算插值值。为此,使用每0.5 m深度的网格200处的细粒度曲线值和在每个压力介于1至500 Pa之间的网格200处的水分保持曲线值合成的共克里金法或替代回归克里金法进行。需要注意的是,这种插值是有意义的,因为这两种测试都测量样品的纹理(粒度),并且拟合质量非常好。保持水分曲线(水分、% vs压力、PA)的数值被纳入块模型。使用每个去堆的多边形的每个压力的最小值、最大值和平均值进行物理表征建模, 计算了Van Genuchten的参数(描述土壤中保水的经验参数:饱和水分、残留水分、Alpha:与孔径大小有关,n:与孔径分布有关)。这些经验参数是在定义多边形后计算的,由于它们不满足需要通过克里金法估计的要求(它们不是加法的),因此不包括在块模型中。随后,使用FEEFLOW软件针对极端和平均操作案例对堆内溶液的移动进行建模,堆浸操作实现碘回收率在80-85 %以上的水工效率和灌溉建议基于以下条件:1。RL 2。灌溉率3。突破TRS Pampa Blanca 2025 PAG的天数估算。71(图示:信息流,根据每个pampa或子部门的模拟物理特性确定与堆相关的水力效率)自动化土壤粒度分析:它通过斯托克斯定律计算粒度分布,范围从63 μ m到2 μ m,而不是仅在离散的时间点进行几次测量。它允许无人值守、自动化操作。这导致总体错误率为0.5% ——更低的常规粒度分析方法。结果分析:这类信息允许估计可导致浸出堆中渗流问题的所有粒径小于50微米的细小材料(-10 #)的数量,或所谓的影响渗流的淤泥(limo)和粘土(arcilla)。图10-6。Pampa Blanca中的淤泥含量TRS Pampa Blanca 2025 PAG。72


 
图10-7。Pampa Blanca中的淤泥变异谱在Pampa Blanca的变异性更大,金块相对来说更小并且距离的影响更明显。保湿性曲线保湿性曲线(MRC)显示了含水量(土壤有多“湿”)和吸力(土壤保持水分的“力”)之间的关系。土壤饱和时,毛孔充满水分,吸力几乎为零(有水容易移动)。随着土壤干燥(孔隙中的水分减少),吸力增加,因为剩余的水分在较小的孔隙中,并且被更强烈地保留。该曲线有助于了解在不同的吸力水平下,土壤中还保留了多少水分。这对于预测水在不同条件下的表现很重要(例如,大量或少量灌溉时)。长时间灌溉,土壤变得饱和。MRC表明,随着含水量的增加,吸力会降低(如果土壤完全饱和,最终会变得无效),从而使水更容易在土壤中流动。如果土壤的饱和点是已知的(使用曲线),就可以预测水或溶液是否会开始向更深的层移动,或者相反地积累,并可能在倾斜的地形上引起内涝甚至滑坡等问题。在没有灌溉的情况下,土壤开始失去水分。保持曲线表明,随着土壤干燥,吸力增加,这意味着土壤保持水分的能力更强。吸力大的土壤,如淤泥和粘土,再次移动水可能需要相当长的时间。可供解释的可用信息对应于在新维多利亚的Iris试点工厂使用压力板或吸盘进行的样本测试所获得的信息。为此,使用了来自不同蒲苇的反向空气样品,并报告了使用以下压力制备到小于网格或筛# 10(1/4”或6.3毫米)尺寸的样品在不同压力下的水分含量测量,单位为千帕:1、10、20、40、60、100、500。Mina Oeste、Pampa Hermosa和Pampa Blanca的TRS Pampa Blanca 2025 PAG的吸引曲线。73颗TRS潘帕布兰卡2025款PAG。74 10.2.5工业规模产量估算所进行的冶金试验所产生的全部知识,被转化为对桩的工业规模性能进行估算的一个程序的执行。堆产量估计和灌溉策略选择程序如下:1。对实际堆盐基质的审查与从不同采矿多边形的金刚石钻孔样品中获得的结果进行了比较。获得了两者之间的相关因子,这使得可以从应用于金刚石钻孔样品的测试中确定堆如何以更精确的方式执行。2.利用盐基质值,估算出每个开发多边形的产量,然后通过每个多边形材料对堆建设的百分比贡献,估算出堆产量。3.根据每个多边形的物理质量结果百分比,为每个堆选择一个灌溉策略。即灌溉率和解决方案的组成.。图10-11。灌溉策略选择参与多边形规划多边形132%多边形214%多边形336%多边形418%真实多边形128%多边形225%多边形320%多边形47%额外20%与模型预测值的年工业吞吐量值如图10-12所示,其中观察到了良好的相关程度。年工业吞吐量数值与模型预测的数值如下图所示,其中观察到良好的相关程度。图10-12。硝酸盐和碘产量估算及产业相关性TRS Pampa Blanca 2025 PAG。75与项目硝酸盐和碘收率的新相关性是用10年工业运行的数据做出的。这种相关性将水的可用性(CU)与存在于caliche(caliche)中的可溶性盐量联系起来*党卫军*MS)与感兴趣的物种(碘和硝酸盐)直接相关。Pampa Blanca的运营范围为CU 0.48 m3/t和1,05(m3/t)。CU越高,CRS(再循环装药盐)越低,因此性能越好。高可溶性盐(SS)的Caliches,CRS增加,CU增加更显著。Caliche with low SS,less straight slope,the CU is not as significant ST purge to ponds:total salts present in Afa to evaporating solar ponds。单耗:对应经处理的caliche质量的淡水对渗滤液。MS:caliche中所含总盐SS:可溶性盐TRS Pampa Blanca 2025PAG。76


 
10.3合格人员的意见负责冶金和资源处理的QP Jes ú s Casas de Prada指出了以下几个方面:物理和化学表征矿物学和化学表征结果,以及从所进行的测试中获得的待处理矿物的物理和粒度表征,允许在项目的初始概念阶段和既定过程中不断评估不同的加工路线,以确保此种工艺是有效的和最新的,和/或还根据资源的性质审查最佳替代品以回收有价值的元素。此外,分析方法确定有害元素,以便在操作中建立机制,使这些可以保持在限值以下,以确保一定的产品质量。化学-冶金测试在实验室和中试工厂进行的冶金测试工作足以为caliche资源建立适当的加工路线。测试计划证明,在工厂中建立的分离和回收方法可以充分扩展,以生产碘盐和硝酸盐。这样,就可以生成一个模型,在开始操作之前,可以确定规划初始灌溉阶段,以提高浸出中的碘和硝酸盐回收率。用于生成冶金数据的样本具有足够的代表性,可以支持对规划绩效的估计,并且在估计矿产资源的回收率方面是合适的。创新与发展公司拥有一支研发团队,该团队在开发新工艺和产品方面展示了重要进展,以便从开发的资源中获得最大的回报。研究由三个不同的单位开发,涵盖化学工艺设计、相化学、化学分析方法和成品物理特性等主题。妥善覆盖原料表征、作业溯源和成品。11矿产资源估算11.1关键假设、参数和方法本子部分包含与项目密度等级相关的前瞻性信息。可能导致实际结果与前瞻性信息中的结论、估计、设计、预测或预测存在重大差异的重大因素包括与本小节中提出的一个或多个重大因素或假设的任何重大差异,包括与迄今为止收集和测试的样本不同的实际原位特征、与当前测试工作结果产生不同结果的设备和操作性能。资源估算过程根据每个扇区可用的钻孔间距网格而有所不同:–实测矿产资源:具有块模型的扇区,钻孔间距网格为50x50m、100x100m和100T,使用普通克里金(OK)使用全3D块模型估算,其中包含变量,如碘、硝酸盐、可溶性盐、地质、岩土工程、地形等。对于Pampa Blanca,所有定义的行业Measured Resources都有一个可用的Block模型。–指示矿产资源:使用含有变量,例如碘、硝酸盐、元素、地质、岩土工程、地形等变量的距离加权倒数(IDW),使用区块模型估计具有Block模型、钻孔间距网格为200x200m的区域。对于Pampa Blanca,定义的所有扇区都表示资源有一个可用的区块模型。–推断矿产资源:钻孔间距网格大于200x200m至400x400m的区域使用多边形方法进行2D估计。这个推断的资源没有区块模型。输出是多边形,然后通过乘以面积、厚度和密度将其转换为吨位。TRS潘帕布兰卡2025款PAG。7711.1.1样本数据库2025年潘帕布兰卡模型包括碘和硝酸盐的估计,在较小网格的情况下,测量的矿产资源包括可溶性盐、元素、岩性和硬度参数。表11-1和表11-2汇总了潘帕布兰卡4区和5区的碘和硝酸盐基差统计, 都是储备的部门。表11-1。潘帕布兰卡4区和5区碘的基本样本统计变量样本数量最小最大均值StD。开发方差Pampa Blanca S4碘92,419502,595388.93 41.2116,421 Pampa Blanca S5碘33,024502,000446.2406.9 165,648表11-2。Pampa Blanca Sector 4和Sector 5 Nitrate的基本样本统计变量样本数量最小最大均值STD。开发方差Pampa Blanca S4硝酸盐92,4191225.57 4.08 16.61 Pampa Blanca S5硝酸盐33,0241205.73 3.94 1611.1.2地质域和建模对于一个地质单元(UG)内的每个区块的估算仅使用在该域中发现的复合品位、元素和硬度参数(UG之间的硬接触)。主要的UG描述为:– Overburden,Cover(UG 1)。–矿化地幔,Caliche(UG 2)。–标的(UG 3)。图11-1。Pampa Blanca Section IV地质模型TRS Pampa Blanca 2025 PAG。7811.1.3化验合成考虑到所有样本长度相同(0.5 m),块高也为0.5 m,SQM没有合成样本数据库,直接用于估算过程。11.1.4异常值等级评估、截止值、等级封顶异常值的定义和控制是一种常见的行业做法,对于防止潜在的体积和等级高估是必要和有用的。SQM未对分析样品中碘和硝酸盐的测定品位制定检出限值(上限)。矿床内碘和硝酸盐的品位分布使得没有样本被判定为极端,因此在估算过程中没有使用样本限制。11.1.5在潘帕布兰卡场址的比重(SG),用阿基米德原理在不同区域进行了193次密度测量。这种方法适用于任何类型的样品,无论是不规则样品(对照)还是圆柱形样品(试管)。相关标准和建议与ASTM规定的标准和建议相对应。在这种情况下,将使用以下ASTM D-4531和ASTM D-4543。测试包括称重先前干燥的样品,将岩石样品或试管浸入熔化的石蜡中,在空气中称重并浸入水中。这一过程将确定样品的单位重量,与水的性质(密度)和样品在3种环境中呈现的重量差异有关:干燥、用石蜡干燥和用石蜡浸泡。TRS潘帕布兰卡2025款PAG。79还在潘帕布兰卡使用井剖面技术进行了地球物理研究。本研究通过使用卡尺、自然伽马和密度探针,提供了地下岩性表征中关键物理特性的详细视图。在这一过程中,对15口井进行了测量,最大深度达6米,为评估感兴趣的地层提供了宝贵的数据。从所进行的钻探中获得的数据,以一厘米的间隔取样,对每口井进行独立处理。最后,通过分析获得的密度与实验室计算的密度进行了比较,由客户提供分析。这种比较允许根据实验室结果评估原位测量的精度,为所收集数据的一致性和可靠性提供全面的视角。表11-3显示了扇区、实验室、分析的样品和钻孔以及比重。这些结果证明了SQM使用的历史值(2.1GR/cm3)是合理的。表11-3 Pampa Blanca采矿实验室中的比重样品N °样品比重GR/CC Pampa Blanca内部68 2.2外部1252.2 Gamma-Gamma152.0平均值2.13 TRS Pampa Blanca 2025 PAG。80


 
图11-2。潘帕布兰卡密度研究样本分配方案。TRS潘帕布兰卡2025款PAG。8111.1.6 Block模型矿产资源评价如前所述,钻孔间距网格大于50x50m至100x100m的扇区使用普通克里金法使用全3D块模型进行估算,钻孔网格大于100x100m且最大为200x200m的扇区使用反距离加权也使用块模型进行估算,用于碘、硝酸盐、可溶性盐、地质、岩土、地形等的插值。对于Pampa Blanca,所有定义的测量和指示资源的扇区都有一个可用的区块模型。11.1.6.1 Block模型参数和域表11-4给出了Datamine Studio 3软件中构建的块模型的定义。所有扇区的区块大小为25x25x0.5m。表11-4。Block模型尺寸扇区参数东北海拔Pampa Blanca S4原点(m)432,1757,440,5251,366范围(m)7,6508,600143最终(m)439,8257,449,1251,509 Block尺寸25250.5 N °区块306344286 Pampa Blanca S5原点(m)428,1757,441,1251,365范围(m)3,9502,40056最终(m)432,1257,443,5251,421 BlockTERM2尺寸25250.5 N °区块15896112 TRS Pampa Blanca 2025 PAG。82图11-3。Pampa Blanca Section 4-5的Block模型位置。使用独立于UG的所有钻孔样品构建的变异函数实验变异函数。对变异函数进行建模和调整,得到了构造范围和基台、金块效应和主要成矿方向等参数。对碘进行了实验变异谱计算和建模,并用于碘和硝酸盐的估计。表11-5介绍了各区域用于估算碘和硝酸盐的碘的变异函数模型。表11-5。Pampa Blanca Section 4和5 TRS Pampa Blanca 2025 PAG中碘的变异谱模型。83扇区变量旋转金块效应范围1 Sill 1 Z Y X Z Y X PB碘00034,0770.5016312344,124硝酸0005.59 0.501541637金块效应为总门槛的18.9%,这表明每个区域之间的碘行为不同。总航程在100米左右,最大150米。这些变异函数范围符合SQM对实测矿产资源的定义,即使用大于50 x 50 m至100 x 100 m的钻孔网格估计区块(区块模型评估)。QP进行了独立分析,以确认SQM使用的变异函数模型,一般来说,获得与SQM使用的相似的金块效应、总门槛和变异函数范围。图11-4。潘帕布兰卡4区和5区碘的变异函数模型。插值和外推参数使用普通克里金(KO)对每个UG进行一次估算Pampa Blanca的碘和硝酸盐品位。SQM使用交叉验证来确定搜索半径、最小和最大使用样本数等估计参数。在交叉验证方法中,通过移除每个观察结果并使用剩余的来预测移除样本值,对数据进行验证。在平稳过程的情况下,它将允许诊断变异函数模型和其他搜索参数是否充分描述了数据的空间依赖性。区块模型与地质模型一起截取,以标记估算过程中使用的地质单元。TRS潘帕布兰卡2025款PAG。84


 
OK计划包括以下标准和限制:–估算过程中不使用封顶。–所有UG之间已实施硬接触。–未对任何UG使用octant限制。–没有对任何UG实施每个钻孔的样品限制。表11-6汇总了每个UG和扇区的方向、实施的搜索范围以及样本选择方案。Search ellipsoid radio是根据变异函数范围选择的。11-6.第4区和第5区的样本选择。扇区变量旋转范围1样本Z Y X Z Y X最小最大PB碘0000.50163.00 123.00 3.02 0.0硝酸0000.50154.00163.00 3.02 0.0估算完成后,在所有估计变量的平均等级的点的2D网格(坐标X和Y)中进行垂直重新锁定变换3D块模型。当2D网格点可用时,应用运营和矿山规划参数,根据所需的碘品位确定吨位/品位曲线。最后,使用GIS软件(Arcview和Mapinfo)绘制多边形,限制了具有经济潜力的估计矿产资源。这种方法的一个例子在Pampa Blanca Sector V中展示。黑线定义了高于截止等级的多边形,并且符合几个操作条件(至少50 x 50 m,不是孤立的多边形,附近没有基础设施等)。TRS潘帕布兰卡2025款PAG。85图11-5。与矿产资源Pampa Blanca Sector 5临界多边形平面图Block模型验证对区块模型进行了验证,以评估OK的性能和输入值的符合性。区块模型验证考虑:–估计区块与钻孔样本品位的统计比较。–通过每个方向(东部、北部和海拔)进行估计区块和样本的全局和局部比较进行以下测试:各向异性分析、搜索邻域、相似性分析、季节性分析、多变量比较、累积分布函数、近邻趋势分析(NN)。–可视验证,以检查锁模型是否与示例数据匹配。TRS潘帕布兰卡2025款PAG。8611.1.6.2全球统计QP在样本品位和估计区块之间进行了统计验证。样本平均等级的全球统计可能受到几个因素的影响,例如样本密度、分组以及在更大程度上存在高等级。因此,使用最近邻(NN)方法计算样本等级的全球统计数据,其搜索范围与估计中使用的相同。碘和硝酸盐的这种比较汇总分别见表11-7和表11-8,其中负值表示块平均品位相对于复合平均品位的负差异,反之亦然。总的来说,5%以下的差异是令人满意的,10%以上的差异需要关注。估算结果表明,在可接受的范围内发现了相对差异。表11-7。碘行业#数据的全球统计比较-BlockTERM0最小最大平均值标准差。Dev Pampa Blanca S4 613,483182,000322182 Pampa Blanca S5 116,189501,317446183表11-8。硝酸盐部门#数据-Block的全球统计比较最小最大平均值标准差。Dev Pampa Blanca S4 613,4830.32 0.04.8 2.3 Pampa Blanca S5 116,1891.01 7.05.7 1.71 1.1.6.3 Swath图为了评估区块等级相对于数据的稳健性,进行了以下测试以验证生成模型的稳健性(各向异性分析、搜索邻域、相似性分析、季节性分析、多变量比较、累积分布函数、近邻NN趋势分析)。图11-6,提供了每个变量的图的汇总。总的来说,结果表明,估算合理地遵循了在局部和全球范围内发现的矿床品位趋势,而没有观察到过度的平滑程度。TRS潘帕布兰卡2025款PAG。87图11-6。碘– PB5 TRS Pampa Blanca 2025 PAG的Swath地块。88


 
图11-7。Nitrate – PB5 TRS Pampa Blanca 2025 PAG的Swath图。89目视验证以目视验证碘和硝酸盐的估算,QP完成了一组横截面和计划视图的审查。验证显示了样本在块中的合适表示。在本地,块在横截面和植物视图上都与估计合成相匹配。总的来说,碘和硝酸盐等级的复合数据和块模型数据有足够的匹配性。高品位区域被适当代表,高品位样本表现出适当的控制,验证了所使用的异常值处理。图11-8用估算模型和PB5中硝酸盐和碘的样本展示了一系列水平工厂视图。图11-8。碘(上)和硝酸盐(下)估算的视觉验证,平面图– PB5 TRS Pampa Blanca 2025 PAG。90和解在1999年6月至2002年12月期间,SQM将区块模型估计与潘帕布兰卡的材料18浸出堆进行了比较。将区块模型中SQM确定的品位与CESMEC的浸出堆质量平衡头品位进行对比,16个浸出堆被认为硝酸盐可接受(误差小于15%),15个浸出堆对碘有益(误差小于20%),以此验证地质模型和通过地质统计学技术进行的估算。表11-8显示了潘帕布兰卡18个选定浸出堆的这一比较。表11-8。Block模型等级与不同浸出堆实测等级的比较,Pampa Blanca TRS Pampa Blanca 2025 PAG。91桩硝酸盐(%)碘(ppm)Block模型桩误差TERM0模型桩误差248.17.3 11.04 644366.4257.97.67.6 3.948844310.2267.16.67.64774398.7 277.97.46.85 3843922.62 87.67.37.34.1467440315.92 98.37.0 18.65 295084.13 17.97.7 2.63683466.43 37.36.95.846641711.84 17.15.43 1.557042534.14 47.37.3 0.04 8743412.24 56.76.7 0.03 933715.9 467.47.2 2.84 4339412.4477.26.85.94 184014.24 87.37.7-5.2 411456-0.9 497.17.0 1.44 12414-0.5 507.46.61 2.14 153925.95 16.96.0 15.03 9535710.65 27.16.9 2.94 4035225平均7.47.06.5455413 10.21 1.1.7多边形矿产资源评估本小节包含与为项目确定矿产资源经济开采前景相关的前瞻性信息。可能导致实际结果与前瞻性信息中的结论、估计、设计、预测或预测存在重大差异的重大因素包括与本小节中所述的一个或多个重大因素或假设的任何重大差异,包括截止利润假设、成本预测和产品价格预测。对于钻孔间距网格大于200x200m至400x400m的扇区,采用多边形法进行资源评价。表11-9显示了在潘帕布兰卡的每个钻孔中用于定义经济间隔的经济和操作参数。表11-9。用于定义Pampa Blanca中每个钻孔间隔的经济和操作参数参数值地幔厚度≥ 2.0 m覆盖厚度≤ 3.0 m废物/矿物比1 TRS Pampa Blanca 2025 PAG。92


 
11.2.矿产资源估算本子部分包含与项目矿产资源估算相关的前瞻性信息。可能导致实际结果与前瞻性信息中的结论、估计、设计、预测或预测存在重大差异的重大因素包括与本小节中提出的一个或多个重大因素或假设的任何重大差异,包括地质a等级解释和控制以及与确定经济开采前景相关的假设和预测。表11-10汇总了潘帕布兰卡硝酸盐和碘的矿产资源估算,包括储量。表11-10。矿产资源估算,不包括矿产储量,截至2025年12月31日,采矿总推断资源总指示再膨胀总测量资源吨位(MT)硝酸盐品位(%)碘品位(ppm)吨位(MT)硝酸盐品位(%)碘品位(ppm)吨位(MT)硝酸盐品位(%)碘品位(ppm)潘帕布兰卡217.85.38513526.46.33 55923.15.04 336注:(1)矿产资源不属于矿产储量,不具备证明的经济可行性。不确定全部或任何部分的矿产资源将在应用修正因子后转化为矿产储量。(2)矿产资源基于修正因子的应用,由于caliche矿床位于地表,部分具有环境许可且在区块增值范围大于3的实测和指示矿产资源已转化为矿产储量。由于上述原因,提供了不包括采矿储量的地质资源,或在本技术报告摘要中指明和推断的本测地质资源报告中包含的地质资源。(三)因数字四舍五入和使用平均法造成的差异,比较数值可能不相加。(4)单位“MT”“ppm”“%”分别指百万吨、百万分率、重量百分比。(5)资源矿产涉及的边界效益(美元/吨矿石)大于0.1且caliche厚度≥ 2.0m。(6)随着每年对矿产资源估算过程的审查和改进,矿产资源可能在几何、吨位或品位方面发生变化。(7)Marco Fazzi是负责矿产资源的QP。11.3.矿产资源分类本子部分包含与项目矿产资源分类相关的前瞻性信息。可能导致实际结果与前瞻性信息中的结论、估计、设计、预测或预测存在重大差异的重大因素包括与本小节中提出的一个或多个重大因素或假设(包括地质和品位连续性分析和假设)的任何重大差异。SQM定义的矿产资源分类基于钻孔间距网格:–使用大于50x50m至100x100m的探矿网格定义了测量资源量,这使得可以非常可靠地划定矿化体的尺寸、地幔厚度和品位以及矿化的连续性。SQM进行的变异性和不确定性研究表明,相对估计误差小于5%。–使用大于100x100m至200x200m的钻孔网格定义指示资源,这允许以合理的可信度划定矿化体的尺寸、地幔厚度、吨位和品位。SQM进行的变异性和不确定性研究表明,相对估计误差小于8%。TRS潘帕布兰卡2025款PAG。93 –推断的矿产资源是使用大于200x200m和最大400x400m的钻孔网格来定义的。当探矿是在公认存在caliche的地区或地区进行的,或者当钻孔网格伴随着一些较小网格的探矿,确认了矿化的连续性时,可以预期这些资源有一个可持续的基础,以给予它们合理的信心水平,因此,可以确定矿化体的尺寸、地幔厚度、吨位和品位。所获得的信息得到了地表地质学的补充,UGs的定义。11.4矿产资源不确定性讨论矿产资源估算可能受到数据质量、矿化和/或冶金回收的自然地质可变性以及支持经济开采合理前景的经济假设的准确性(包括金属价格)的重大影响, 以及采矿和加工成本。推断的矿产资源在地质上过于投机,无法对其进行经济考虑,从而将其归类为矿产储量。矿产资源也可能受到品位估算过程中使用的估算方法、参数和假设的影响,包括数据的顶切(封顶)或搜索和估算策略,尽管QP认为这对矿产资源估算产生实质性影响的可能性很小。11.5有资格的人对随着潘帕布兰卡的重新开放而可能影响经济开采前景的因素的意见加上现有的运营专业知识和信息,QP认为,支持经济开采矿产资源所需的相关技术和经济因素已在矿山中得到充分考虑。QP不知道本技术报告中未讨论的任何可能对矿产资源估算产生重大影响的环境、许可、法律、所有权、税收、社会经济、营销、政治或其他相关因素。12矿产储量估计12.1。估算方法、参数和方法本子部分包含与项目矿产储量估算的关键假设、参数和方法相关的前瞻性信息。可能导致实际结果与前瞻性中的结论、估计、设计、预测或预测存在重大差异的材料因素包括与本子节中提出的一个或多个材料因素或假设的任何重大差异,包括矿产资源模型吨和品位以及矿山设计参数。矿产储量估算基于使用反向空气钻机在200x200米、100x100米、100T米(100x50米)和50x50米网格间距执行的钻孔获得的样本品位。测量资源通过数值插值技术(普通克里金法)从3D块模型中进行评估,其中硝酸盐、碘和可溶性盐含量信息可从间距等于或小于100x100m的钻孔网格中获得的数据中获得。指示资源量由3D区块模型采用反距离加权(IDW)插值技术进行评估,并以200x200米的钻孔间距定义。矿产储量考虑SQM的采矿计划标准,该标准对应如下:– Caliche厚度≥ 2.0米–过载厚度≤ 3.0米–废物/矿物比≤ 1.0 TRS Pampa Blanca 2025 PAG。94 –截止效益≥ 3美元/t –平均生产成本对应33,601美元/t,碘衍生物销售价格42美元/kg。对于硝酸盐精矿卤水,平均生产单位成本为99美元/吨(采矿、浸出、中和、池塘处理)和单位内部价格为323美元/吨的化肥用硝酸盐盐采矿部门在采矿计划中考虑的(图12-1)是根据SQM获得的环境许可证和一系列附加因素(主要通道布局、堆和池塘位置、到处理厂的距离等)来划定的。在25x25m的区块中进行了采矿,考虑到应用于该矿床的平均密度值为2.1t/m φ,确定了要提取的caliche体积。使用这些标准SQM估量(caliche)被认为是基于建立的3D区块模型的已探明储量,来定义测量的矿产资源,并应用上面定义的标准来确定采矿计划。使用从中密度钻孔探矿网格(200x200m)获得的硝酸盐和碘品位及其他相关数据,通过反距离加权法估算的指示资源量,使用上述矿产储量相同标准,caliche和超载厚度,废物/矿物率和截止效益(≥ 3美元/吨),列为概略储量。图12-1。Pampa Blanca TRS Pampa Blanca 2025 PAG储量区段地图。9512.2 CUT-OFF Grade SQM历史上一直使用300ppm的碘边界品位,自去年以来它考虑了一个边界效益(BC),以最大限度地提高每个区块的经济价值。该方法为每个pampa生成一个边界效益(美元/吨矿物)大于0.1的最佳经济包络。在每个pampa中,必须考虑以下几点:•柱中每吨矿物的累积效益必须大于或等于截止效益。•满足前一条件的列中最后一个区块,其每吨值必须大于或等于截止效益;否则, 向上进行了垂直搜索。12.3分类和标准本子部分包含与项目矿产储量分类相关的前瞻性信息。可能导致实际结果与前瞻性信息中的结论、估计、设计、预测或预测存在重大差异的重大因素包括与本子节中提出的一个或多个重大因素或假设的任何重大差异,包括矿产资源模型色调、品位和分类。矿床的地质特征(亚水平、表层和有限厚度)允许考虑所有的矿产储量,因为,无论SQM使用的采矿提取方法(钻爆、露天开采),都可以提取探明储量和概略储量的整个体积/质量。任何因临时基础设施限制(池塘、管道、道路等)而无法开采的采矿区块(25x25m),仍被算作矿产储量,因为一旦临时限制解除,就可能被开采。探明储量是根据测量资源量确定的,分类为第11.3节中的描述,带有修正因子,如第12.1节中所述。概略储量已根据指示资源确定,其分类如第11.3节所述。第12.1节和第12.2节所述的附加标准。12.4矿产储量本子部分包含与项目矿产储量估算相关的前瞻性信息。可能导致实际结果与前瞻性信息中的结论、估计、设计、预测或预测存在重大差异的重大因素包括与本子节中提出的一个或多个重大因素或假设的任何重大差异,这些因素包括矿产资源模型基调和品位,修正因素包括采矿和回收因素、生产率和进度、采矿设备生产力、商品市场和价格以及预计的运营和资本成本。Pampa Blanca矿分为三个区:Pampa Blanca、Ampliaci ó n Pampa Blanca、Blanco Encalada。潘帕布兰卡板块进一步细分为开采子行业(见图12-1)。Pampa Blanca Sector(位于Sector的中心)包含以下子行业:– Pampa Blanca Sectors 3 – 4和5。SQM在智利当局目前批准的具有环境许可证的区域内从这些部门提取“卡利什”。SQM对Pampa Blanca厂址以高达5公吨/年的速度开发caliche(豁免决议N ° 0515/2012)。TRS潘帕布兰卡2025款PAG。96


 
SQM的2026-2041年采矿计划(Pampa Blanca-SQM工业计划)设定的总开采量为87.0公吨的caliche,产量介于1.1 Ktpy和1.7 Ktpy之间。就矿山寿命(LOM)而言,碘平均品位为399ppm,硝酸盐平均品位为5.4%。矿产储量估算标准如下:1。使用来自高分辨率钻孔间距活动(100x100m、100T m或50x50m)的数据,通过3D模型块和普通克里金法定义的测量矿产资源,用于建立已探明的矿产储量。2.使用来自中分辨率钻孔间距活动(200x200m)的数据加权的由3D模型块反向距离定义的指示矿产资源,用于建立可能的矿产储量。3.考虑到SQM(钻爆和SM)使用的采矿方法和堆浸结构处理以获得碘和硝酸盐的富集卤水,Pampa Blanca的所有勘探部门都有环境许可证可以运营。本文考虑了修正因素。所有许可证都是现行的,虽然没有正式协议,但这些业务与社区有着长期的关系,其中一些社区是公司城镇。开采、加工、下游成本、开采损失、稀释、回收率计入作业边界品位。由于该项目自1997年以来一直在运营,因此与运营成本和回收相关的风险被认为是最小的。根据所描述的资源到储量转换和资格的规则,对Pampa Blanca的已探明矿产储量和可能的矿产储量进行了估算,如表12-2所示,汇总了SQM在Pampa Blanca矿调查的不同部门的估计矿产储量。表12-2。Pampa Blanca矿的矿产储量(2025年12月31日生效)探明储量概略储量总储量吨位(MT)76.4076.4碘品位(ppm)3990399硝酸盐品位(%)5.4% —% 5.4%碘(kt)30.50 30.5硝酸盐(kt)4,11804,118注:a)矿产储量基于大于3美元/t的边界效益(BC),a caliche厚度≥ 2.0m,并限制坡度不大于8%的扇区。b)探明矿产储量以按上文(a)所述标准测量的矿产资源量为基础。c)矿产储量宣布为原位矿石(caliche)。d)单位“MT”、“KT”、“ppm”和%指百万吨、千吨、百万分之一,和重量百分比分别。e)矿产储量基于化肥用硝酸盐盐价323美元/吨和碘价42.0美元/公斤。矿产储量也基于税后贴现现金流所显示的经济可行性(见第19节)。f)Marco Fazzi是负责矿产储量的QP。g)QP不知道任何环境、许可、法律、所有权、税收、社会经济、营销, 本TRS中未讨论的可能对矿产储量估算产生重大影响的政治或其他相关因素。h)由于数字四舍五入和使用平均方法导致的差异,数值比较可能不会加总。TRS潘帕布兰卡2025款PAG。97按部门分列的矿产储量最终估算汇总于表12-3。用于核对估算值的程序如下:•按部门核实的吨位和平均品位(碘和硝酸盐)作为矿产储量与先前分析的测量和指示资源。•检查了SQM估计矿产储量的部门位于智利当局批准的环境许可证区域,同时也在考虑应用修正因素。•确认在长期矿山规划(2026-2041年)中考虑到具有矿产储量的每个部门和矿砂(caliche)的总量经济可采。•考虑了合资格人士对可能影响经济开采前景的技术和经济因素的判断。表12-3。Pampa Blanca矿按部门划分的储量(2025年12月31日生效)部门探明可能的总储量吨位(MT)硝酸盐(%)碘(ppm)吨位(MT)硝酸盐(%)碘(ppm)吨位(MT)硝酸盐(%)碘(ppm)Pampa Blanca-5 13.26.275530013.26.27553 Pampa Blanca-4 63.15.2 136700063.15.2 1367 Ampliacion PB Sin RCA 00000000总计76.45.39 3990076.45.39 39912.5合格人员的意见矿产储量的估计是基于测量和指示的矿产资源。这一信息是参照Pampa Blanca提供的。主管人员对矿产资源估算和修正因子进行了审计,将测量和指示的资源量转化为探明和概略储量。主管人员还对矿产储量与产量进行了核对,并表示此类储量适合用于矿山规划。13.采矿方法SQM提供了2026年至2041年期间的产量预测(采矿计划MP)。这份采矿计划经核查,计划开采部门有智利当局批准的环境许可证(环境法之前);总吨位和平均碘和硝酸盐品位与估计的矿产储量一致;矿物矿石(caliche)总量经济可开采,SQM设定的粒状碘和盐水硝酸盐精矿(盐水硝酸盐)生产是可以实现的,同时考虑到采矿的稀释和质量损失以及浸出和加工的回收因素。Pampa Blanca矿的采矿包括清除土壤和超载、从地表提取矿物、装载和运输矿物(caliche)以制作堆浸垫以获得富含碘和硝酸盐的溶液(卤水浸出液)。TRS潘帕布兰卡2025款PAG。98成矿可描述为层状、亚水平、浅表(≤ 7.5 m)、厚度有限(平均3.0 m)。矿物的提取过程受制于含有矿物资源的地质构造(caliches)的表层和表层层状分布。这一采矿过程已获得智利当地采矿当局(SERNAGEOMIN)的批准。通常,提取包括几米厚的挖掘(一个高达6.0m的连续台架(覆盖层+ caliche)),其中使用传统方法提取矿物-钻孔和爆破。提取的矿石由前装载机和/或铲子装载,并由刚性漏斗采矿卡车运输到堆浸结构。浓缩过程从原位浸出开始,通过滴灌/喷灌的堆浸垫获得碘和硝酸盐富集溶液,送到处理厂获得最终产品。开采和提取过程汇总于表13-1。表13-1。Pampa Blanca-SQM caliche矿山特点矿用Sistem Opencast汇总,单台连续工作台高度可达6米,钻探Atlas Copco Model F9、D7和Smart T45 BLast Mining(Explosive)ANFO、导爆索、150GR APD助推器和非电雷管。功率因数0,365公斤/吨装卸运输前置式装载机(12至14立方米)、100至150吨卡车(60立方米至94立方米容量)顶土剥离(表层清除)0.15立方米土壤和表层/吨卡利切产量15.000吨/日(tpd)稀释系数± 10 ppm碘(< 2.5%)回收系数53.9%碘和17%硝酸盐(2023-2025年期间)堆浸用水量0.36至0.51立方米/吨浸出卡利切(2023-2025年期间)无菌(a)/矿石质量比1 t:2.36t(a)SQM用这种材料建造堆垫底座。废料的最终体积可以忽略不计。13.1.地质技术和水文模型, 以及与矿山设计和计划相关的其他参数本子部分包含与项目矿山设计相关的前瞻性信息。可能导致实际结果与前瞻性信息中的结论、估计、设计、预测或预测存在重大差异的重大因素包括与本小节中阐述的一个或多个重大因素或假设的任何重大差异。Pampa Blanca的采矿相对简单,因为只需要去除一层厚达2.0 m的无菌材料(土壤+覆盖层)(砂岩、角砾岩和硬石膏结壳),就可以去除。随后提取矿石(caliche),厚度为1.50至6.0米(平均3.0米)。Caliche的岩土特性(多聚沉积角砾岩)允许垂直采矿台面,从而可以提高采矿资源的开采效率。采矿条件不需要对采矿工作面进行物理稳定性分析;因此,不需要进行具体的岩土实地调查和设计。一个平均高度约4.70米的单一终台(1.0米的土壤+覆盖层和3.2米的caliche)是典型的作业(图13-1)。图13-1。Pampa Blanca矿地层柱及示意图剖面。TRS潘帕布兰卡2025款PAG。99由于其几乎不存在地表径流和地表渗透(降雨量非常少的区域),且开采深度较浅,挖掘时未达到地下水位。因此,不需要地表水管理和/或矿山排水计划来控制地下水并避免孔隙压力的存在所产生的问题。因此,此采矿作业并不需要详细的岩土、水文和水文地质模型作为其作业和/或采矿设计和采矿计划。硬度是在地质调查和勘探过程中确定的,与现场地质学家从钻孔中判断的以下定性技术标准有关:• Caliche钻探的钻孔部分,如果直径表现出塌陷和/或粗糙度,则评定为软(硬度1)或半软(硬度2)。•在caliche中钻探的钻孔部分,如果钻孔直径一致且光滑,则被评定为硬度(硬度3)。•该参数包含在区块模型中,用于采矿和堆浸整形决策。提取的矿物储存在位于同一一般开采区域的堆积物中。堆浸垫是在以前采空区建设的。垫子被灌溉以通过水溶解(孕卤水溶液)浸出目标成分(碘和硝酸盐)。SQM分析了堆浸稳定性1,以验证这些采矿结构在不利条件(最大可信地震)下的物理长期稳定性。对已经关闭的堆浸设施分析的地质力学条件进行了考虑,具有以下特点:•湿密度为20.4千牛顿/立方米(kN/m φ)。•内摩擦角32 º。• 2.8千帕的粘合度。一种分级压实材料被用来支撑浸出堆所在的衬板。该规格以经验为依据,一般以18.5kN/m φ的湿密度、38 °的摩擦角()和无内聚力来定义。土基和堆料之间有一块HDPE薄板,防水处理堆浸垫基础。土工膜HDPE或PVC与排水层材料的界面建模为一层50厘米厚的材料,采用摩擦角= 25 °,表示土壤与土工膜之间产生的摩擦力。TRS潘帕布兰卡2025款PAG。1001技术报告‘’AN á lisis de estabilidad de taludes pilas 300 y 350’。文档SQM N ° 14220m-6745-800-IN-001。Procure Servicios de Ingenier í a(21146-800-IN-001),2021年5月。


 
最大可信地震的最大加速度值设定为0.86g(G = 9.8 m/s2),设计地震的最大加速度值设定为0.35g,水平地震系数(KH)通过智利常用的表达式设定,垂直地震系数(KV)根据NCH2369的设定。2003年,作为横向系数的2/3。因此,在堆的稳定性分析中,最大可信地震采用0.21的KH值,0.14的KV;设计地震采用0.11的KH和0.07的KV。稳定性分析使用静态销钉均衡方法(Morgenstern-限价均衡法)和GeoStudio的Slope软件执行,结果符合安全标准的最小因子。基于本文件中开发的分析,可以得出以下结论(表13-2和图13-2):•在当前状态下所分析的堆的坡度是稳定的,不会发生滑动。•所有堆体在封堵后都不需要进行坡面剖面处理。表13-2。密闭堆浸边坡稳定性分析总结结果。边坡静态情况(FS adm = 1.4)伪静态设计地震(FS adm = 1.2)伪静态最大可信地震(FS adm = 1.0)3001.93 1.42 1.09 3501.91 1.42 1.10 TRS Pampa Blanca 2025 PAG。101图13-2。岩土分析结果:堆n # 300,假设最大可信地震13.2生产率,预期矿山寿命,采矿单元尺寸,以及采矿稀释和恢复因素MP考虑的总caliche开采87.0 mt,稳定生产5.5 mtpy,如表13-3所示。对于要提取的MP总caliche,预计其碘品位介于390至440 ppm之间,硝酸盐品位介于5.1%至6.5%之间。平均碘品位399ppm,毛,碘颗粒产量估计在3.8tpd(1397tpy碘)。同样,对于5.4%的硝酸盐平均品位,化肥生产的平均硝酸盐估计为192吨/日(化肥用硝酸盐含量为70.1千吨/年)。矿区范围为40公里x50公里。采矿顺序是根据从地质调查中为caliche建立的生产厚度数据、已获批准的采矿许可证的存在、到处理厂的距离以及确保在计划安装基础设施的区域(堆基地、管道、道路、通道、干线等)下的矿物不丢失来确定的。具有未来规划基础设施的区域在建立这些要素之前或在基础设施复员后开采之前成为开采目标。矿产储量考虑SQM的采矿计划标准,其中包括:• Caliche厚度≥ 2.0m。•坡度≤ 8.0%。•废/矿物比≤ 1.0。•边界效益≥ 3.0美元/吨除上述操作参数外,确定矿区还考虑了以下地质参数:•岩性。•硬度参数。•影响caliche浸出的总盐(caliche盐基质)。•影响caliche浸出的总盐元素(大多数离子)。TRS潘帕布兰卡2025款PAG。在采矿过程中对矿区底板实施102 GPS控制,以最大限度地减少目标碘和硝酸盐品位的稀释。表13-3。计划2026-2040年的采矿计划。材料运动单位20262027202820292030 2031-2035 2036-2041 Pampa Blanca区总矿石吨位MT5.55.55.55.55.55.5 283287碘(I2)原位ppm 440427413407400390390399平均品位硝酸盐盐(NaNO3)% 6.50% 6.50% 6.00% 6.00% 5.50% 5.09% 5.09% 5.41%总矿石开采(CALICHE)MT5.55.55.55.55.5 283287碘(I2)原位kt 2.42 2.35 2.27 2.24 2.20 10.72 12.47 34.7产量过程生产颗粒状碘% 72.0% 72.0% 72.0% 71.0% 70.0% 61.0%1.6 1.6 1.56.57.62 2.4硝酸盐原位kt 35835833033033031,4001,6284,706产率过程生产硝酸盐27% 26% 26% 26% 25% 25% 23% 23% 23.8%肥料用硝酸盐kt 97938683763183701,121采矿产生的品位稀释估计低于2.5%(± 10ppm碘),硝酸盐低于2.3%(± 0.12%硝酸盐)。在卡利切开采过程中,由于矿化厚度较低(≤ 5.0m),爆破过程对矿化地幔底板有双重影响:夹杂下垫层物质以及过度开挖。这些倾向于补偿,稀释或品位损失很小或可以忽略不计(碘为± 10ppm)。挖掘深度由装载设备上的GPS控制。SQM认为计划采矿回收率为95%,(MP 2026-2041的平均值)。提取的过程, 矿物(caliche)的装载和运输包括:1。沉积在附近已开采或贫瘠区域的表面层和覆盖层清除(厚度在0.5至2.5米之间)。这种材料被用来建造堆浸结构的底座。1.卡利切提取,至最深6米,使用炸药(钻爆)。进行爆破是为了达到较高的蓬松度、良好的破碎性、良好的底板控制、适合装载设备类型的矿物尺寸且不需要进一步处理(20%的碎片在5.0-6.0厘米以下,80%的碎片进给37.0厘米以下的堆浸,最大直径100厘米)。SM在Pampa Blanca不适用,原因是过多的碎屑和巨粒影响了设备切割尖端的消耗。2026年采矿计划的目标是年产5.5公吨新鲜卡利切(6.50% NaNO3、440 ppm碘和47.2%可溶性盐),其中5.5公吨将通过传统采矿开采,0公吨将通过露天采矿开采。1.卡利切装载,使用前端装载机和/或铲子。1.将矿物运至堆浸垫,使用矿车(刚性料斗,100t至150t)。堆浸垫(图13-3)建成累计0.5到1.0mt,高度在7到15米之间,冠面积4万到6.5万m2。TRS潘帕布兰卡2025款PAG。103图13-3。Pampa Blanca矿(caliches)的垫层构造和形态。SQM进行的物理稳定性分析报告称,这些堆在长期内是稳定的(封闭堆),并且不需要对斜坡进行修改以进行封闭。Pampa Blanca矿山使用“Run of Mine”(ROM)材料运营,这是直接来自矿山的材料,来自传统的提取过程(钻孔和爆破)、装载和运输,在那里可以找到大小从几毫米到直径1米的颗粒。堆建设过程有几个阶段:–场地准备(拖拉机除土)和堆基和周界护墙的建设,以便于收集丰富的解决方案。–堆底面积为60,000至84,000 m ²,最大横坡度为2.5%(以方便排出富含碘和硝酸盐的溶液)。–堆基建筑材料(0.40米厚)来自无菌材料,经碾压至正常proctor的95%(水分和/或密度不在现场测试)。–在此基层之上铺设HDPE防水土工膜。–为保护土工膜,在上面放置一层0.5米厚的贫瘠材料(以避免堆内储存的ROM/SM碎片对膜的破坏)。–用高吨位卡车(100至150吨)堆载。浸出垫建在两个升降机中,平均每个升降机高3.25米。堆垫的平均高度为6.5米。–浸渍,包括用工业水在灌溉和休息的交替循环中对堆体进行初步润湿,为期60天。在这一阶段,桩开始其初始溶液排水(卤水)。连续灌溉直至完成浸出循环,考虑到以下阶段:•灌溉SI:由系统中最老的一半堆灌溉排水溶液的阶段。持续时间长达280天。•混合:由循环BF和水的混合物组成的灌溉阶段。这些堆的排水被认为是SI,用于灌溉其他堆。这一阶段持续约20天。•冲洗:一堆生命的最后阶段,用最后一次灌溉水,大约60天。总的来说,每堆大约有400到500天的周期,在此期间堆的高度下降了15-20 %。使用的灌溉系统是混合系统,即使用滴头和喷头。在滴头的情况下,另一种选择是用塑料布或毯子覆盖堆,以减少蒸发损失并提高灌溉系统的效率。TRS潘帕布兰卡2025款PAG。104


 
–浸出溶液通过通道通过重力收集,这将把液体引导到一个水槽,在那里它们将通过便携式泵和管道再循环到盐水接收池和积水池。–一旦堆体停运,尾矿既可以用于其他堆体的基地建设,也可以留在现场(排泄堆)。在2026-2041年长期(MP)中,Caliche浸出的单位耗水量平均为0.5m φ/t。ROM堆浸(钻爆料)中浸出工艺产率设定为颗粒碘64.5%,硝酸盐23.8%,长期为2026-2041年。堆浸工艺性能限制因素包括可用水量、边坡成形2(边坡不能灌溉)、再浸渍和资源/储量建模误差,这最后一个因素是最影响年度目标产量偏离最终实现的因素。这种偏差通常高达碘的-5 %和硝酸盐的-7 %。从盐水池中,富集的溶液通过HPDE管道送到碘化物工厂。13.3剥离、地下开发和回填的要求初步的地面准备工作需要挖掘土壤类型材料(平均厚度50厘米)的表层,以及达到平均厚度在50厘米至100厘米之间的矿物(caliche)上方的超载或废料。这是由推土机式履带式拖拉机和推土机式轮式拖拉机完成的。这些废料沉积在附近已经开采或没有矿物的区域。SQM有4台50吨至70吨的推土机式拖拉机和2台25吨至35吨的推土机式拖拉机,用于这些任务。Caliche采矿是通过使用炸药进行的,最大深度为6米(平均3.0米,最小可开采厚度为1.5米),Pampa Blanca的年Caliche生产速度为5.5公吨。采用钻孔爆破方式提取石膏,采用矩形爆破图案,考虑石膏平均厚度3.0m进行钻孔。表13-4。Pampa Blanca矿山爆破花纹直径(英寸)负担(米)间距(米)路基(米)3.5 2.8至3.2 2.2至2.8 0.5至0.84.0 2.8至3.4 2.8至3.4 0.7至1.24.5 3.4至3.8 3.4至3.8 1.0至1.5通常,Pampa Blanca使用的钻孔网格为2.8mx3.0m和3.00x3.2m,钻孔直径为4 "。阿特拉斯·科普柯钻机应用于钻井-F9和D7设备(使用DTH锤进行冲击钻井)和Smatr T45。所用炸药为ANFO,由94%硝酸铵和6%石油组成,密度为0.82-0.84g/cm3,起爆速度在3800-4100 m/s之间。每个钻孔装药量为24.3公斤。0.80m的回填(梗塞)设置无菌材料。对于起爆,使用150 GRAPD助推器和非电雷管作为引爆器,起爆用的是一根导爆索。超挖(路基)0.50-1.50m不等。考虑岩石密度为2.1t/m φ的完整岩石进行爆破,炸药荷载系数为365 g/t(荷载系数为0.767kg/m φ的爆破卡利切),提取卡利切15,000tpd。TRS潘帕布兰卡2025款PAG。105图13-4。Pampa Blanca矿(caliches)典型爆破图片Pampa Blanca基于传统采矿的矿山生产单位成本定为3.34美元/吨。13.4所需采矿设备车队和人员本子节包含与项目设备选择相关的前瞻性信息。可能导致实际结果与前瞻性信息中的结论、估计、设计、预测或预测存在重大差异的重大因素包括与本小节中提出的一个或多个重大因素或假设的任何重大差异,包括劳动力和设备可用性以及生产率。SQM在Pampa Blanca矿山有足够的设备,可以按要求生产足够的caliche,开采和建造堆浸垫,并获得浓缩白酒,这些浓缩白酒被送到处理厂以获得碘和硝酸盐终端产品。可用于实现卡利切Pampa Blanca当前生产采矿计划(2026-2041年)的设备汇总于表13-5。目前设备产能已通过QP评估,将满足未来生产要求。TRS潘帕布兰卡2025款PAG。106表13-5装备车队和Pampa Blanca矿山设备数量类型或尺寸更换(h)前装载机312.5 y 15 m3 30铲113 a 15 m3 30150 a 200吨卡车7 100-150 ton-c 30推土机450 a 70吨25轮推土机235吨25钻4顶锤de 3,5“a 4,5”(直径)20平地机216-24英尺20压路机1 10-15吨20挖掘机2桶容量1-1,5 m3 20 Pampa Blanca采矿作业的工作人员由165名专业人员组成,专门从事采矿和堆浸作业。另外, 共聘用35名专业人员从事堆浸、池塘维护等工作。Pampa Blanca矿山运营包括一些为现场人员提供的一般服务设施:办公室、浴室、卡车维修和洗涤棚、更衣室、食堂(固定或移动)、仓库、饮用水厂(反渗透)和/或饮用水储存罐、污水处理厂和变压器。13.5生产和最终矿山OUTLINE SQM的工作采用土地的初始地形,通过连续地形和对采矿作业的控制,去除土壤和超载(Pampa Blanca的平均总厚度为1.5 m)并提取caliche(平均厚度为3.0 m)。鉴于相对于所涉及的表面积(655公顷/年)而言,挖掘很小(平均4.7米),因此无法正确可视化显示矿山最终情况的地形图。图13-4描绘了2026-2041年期间的最终矿山轮廓(长期计划)。TRS潘帕布兰卡2025款PAG。107图13-5。Pampa Blanca采矿计划2026-2041年TRS Pampa Blanca 2025年PAG。108


 
2026-2041 LOM的Caliche产量数据涉及总产量87.0公吨,平均品位为399ppm的碘和5.4%的硝酸盐。预计总用水量40.1mm φ(开采计划2026-2041)。根据采矿和浸出工艺设定的生产要素,预计本期(2026-2041年)共生产22.4kt碘颗粒和1121kt硝酸盐,即生产平均含量为4.0tpd碘(0.60g/L)和362tpd硝酸盐(141g/l)的新鲜盐水溶液(6700m φ/d),将送往加工厂。请注意,此处考虑的稀释因子是在上述指示资源到可能储量因子之外的。表13-6。我的和PAD浸出生产Pampa Blanca矿–期间2026-2041 LoM 2025-2041 Caliches %/ratios硝酸碘产量(MT)87平均品位(Iodine ppm/Nitrate %)3995.41%矿物原位(kt)储量34.74,707传统采矿(kt)87100%采矿产率(%)95%品位稀释系数(%)2.25% 2.5%品位稀释度(%)± 8.98% ± 0.14%采矿过程效率(%)92% 92%堆浸料矿物(kt)34.74,707堆浸料回收(%)69% 40%堆浸料生产(kt)24.051,867堆浸料总产量(kt)24.051,867成品回收率平均系数(%)64.5% 23.8%工业植物加工总量Pampa Blanca(kT)22.391,12014。加工和回收方法Pampa Blanca是SQM的生产中心之一,位于安托法加斯塔省Sierra Gorda,位于安托法加斯塔市东北约100公里处,Baquedano东北25公里处。根据授权延长潘帕布兰卡临时关闭的第1346/2012号豁免决议,该物业属于运营休整阶段。该地点考虑了caliche提取工艺(矿山)、堆浸和加工厂,以获得作为主要产品的碘和作为副产品的硝酸盐(富含硝酸盐的盐)。2022年10月,Pampa Blanca重新开放,包括caliche提取、堆浸建设、碘化物和碱化工厂建设以及蒸发式太阳池的修复。碘化物装置和泵盐水到蒸发池的连续运行于2023年3月开始。Pampa Blanca业务目前有以下设施TRS Pampa Blanca 2025 PAG。109. Caliche矿山和矿山浸出作业中心。2.电力发电厂2。工业供水3。碘厂4。中和厂5。蒸发池6。辅助设施展示了碘化物和太阳能蒸发厂厂房位置的总体平面图。图14-1。Pampa Blanca生产工厂和设施的位置。TRS潘帕布兰卡2025款PAG。110 14.1.工艺描述潘帕布兰卡的SQM业务专注于生产碘化物和硝酸钠盐。该过程的第一阶段是从不同的采矿储量中提取caliche。这次抽取涉及几个活动:堆基准备、超载清除、钻孔、爆破装载、装载和运输caliche和无菌到堆浸。Pampa Blanca矿获准以7,000,000吨/年的速度运营。一旦堆了充电,caliche润湿阶段就开始了。堆用来自运营中心的不同解决方案(水和再循环过程解决方案)灌溉大约一年。当堆积物开始排水时,富碘盐水被泵送到碘化物工厂。送到工厂的盐水经过处理,产生富碘溶液。该产品被送往位于Pedro de Valdivia或Nueva Victoria的碘厂。随后,从碘化物工厂出来的贫碘盐水,一部分碱化后抽到蒸发式太阳池,另一部分在返回浸出过程中灌溉堆。潘帕布兰卡工艺的最后一阶段,蒸发式太阳池,产生高硝酸盐。该产品在销售前被收获、储存并送往SQM Coya Sur工厂进行进一步提炼。流程图显示了生产高硝酸盐含量的碘和盐的整个过程,见图14-2。图14-2。Pampa Blanca选厂caliche矿石处理块工艺通图。运营产生的采矿废物包括堆浸填埋、超载和废盐。采矿过程涉及按照以下阶段提取、装载和运输caliche:–使用收割机拖拉机消除chusca(表层约50厘米厚)和过载(中间层50厘米至2米厚),将它们沉积在附近已开采或缺乏矿物的区域。–用炸药和/或采矿设备提取卡利切,最高速度为7,000,000吨/年。– Caliche加载, 使用前装载机,并将矿石转移到浸出堆,使用高吨位卡车(50、65或100吨)。14.1.1堆浸:TRS Pampa Blanca 2025 PAG。111堆建在非矿化地面上,以免覆盖宝贵的caliche资源。土地准备前到建设堆浸垫。浸出堆底座要有1~4%的坡度,以促进重力排水…它覆盖着不透水的土工膜(PVC,或HDPE),以防止浸出溶液渗入地下,从而使溶液可以在堆头收集。在土工膜上铺上一层40-50厘米厚的保护性细料层(非矿化chusca(风化材料)或废浸出的caliche),以保护其不被矿车过境损坏或被锋利的石头刺穿。堆场采用矩形底座建造,高度在6至15米之间,树冠面积为6.5万m ²。一旦卡利切堆叠完成,堆灌溉以溶解卡利切中存在的可溶性矿物盐。堆浸作业采用灌溉和休耕交替循环。所使用的灌溉系统既有喷头,也有滴灌。该过程从开始到结束通常需要大约450天(一般情况下,每堆的操作范围大约为300-600天)。在整个浸出循环中,可溶性矿物盐的去除导致每个浸出堆的高度下降15%到20%。图14-3展示了堆浸过程示意图。浸出堆的组织方式是重复使用它们提供的解决方案生产堆(最新的),生产富碘溶液送到碘化物工厂,以及较旧的堆,其排水供给生产堆。在其灌溉周期结束时,一个(旧的)堆作为惰性碎片离开系统,另一端又有一个新的堆进入,从而形成一个连续的过程。图14-3。caliche浸出工艺流程示意图堆浸过程中的各个阶段(图14-3)如下:•堆浸阶段:对应的是用工业水对浸出堆进行初始灌溉。在这一阶段,堆开始在其底部产生含盐浸出液,称为盐水。第1阶段持续约50-70天。•灌溉阶段:在190-280天期间,堆正在用孕产浸出液(PLS)或富碘盐水灌溉。之后,堆用再循环AFA的混合物灌溉,SQM在aprox期间将其称为BF和工业水。60-120天。•最后阶段:用工业水对堆进行最后水灌溉,最大限度地提高可溶性盐的总萃取量。这一阶段持续约20-30天。TRS潘帕布兰卡2025款PAG。112


 
堆浸过程中得到的PLS被操作称为卤水。从堆浸中排出的浸出液(卤水)通过管道,根据其化学质量到COM处的劣质溶液、中间溶液、丰富的卤水溶液储存池(蓄水池)。盐水通过管道从COM输送到碘化物工厂。14.1.2碘化物厂SQM位于矿区的浸出设施用于获得卤水,卤水通过管道输送到碘化物厂现有设施。碘化物工厂过程产生碘化物的浓缩溶液,然后送到SQM的碘工厂,然后是盐水feble(BF)的残留流,这是一种低碘浓度的溶液。产生的卤水Feble在两个过程中被重复使用:a)部分被再循环到位于矿区的运营中心(COP)进行浸出过程,b)剩余的部分在用石灰或碳酸钠碱化后被送到太阳能蒸发池。生产碘化物的主要设备或基础设施如下:– SO2生成系统。–带有各自储罐的吸收塔。–溶剂萃取厂(SX)及其罐体。–带有各自泵的盐水储存池。对于投入的储存,有:–硫储量。–石蜡罐–硫酸罐–氢氧化钠罐–油箱图14-4。碘化物工厂工艺图14.1.3 Florencia蒸发式太阳池蒸发式太阳池是一个功能单元,涉及卤水预浓缩、控制池、生产、收获和运输高品位硝酸盐(见图14-5)。池塘的根本目的是蒸发部分给水,分离残余盐(氯化钠、镁、硫酸钠),收获高度硝酸钠(NaNO3)的盐类。当高硝酸盐盐沉淀准备就绪时,盐被收获、储存并送往SQM Coya Sur工厂进行进一步提炼,然后再出售。TRS潘帕布兰卡2025款PAG。113该地区有以下设施:–碱化:负责用石灰悬浮液碱化BF的单位(也可以使用碳酸钠)。对于中和,可以使用浆料制备系统。中和发生在排放到具有倾析不溶性石膏和石灰功能的池塘中的混合罐中。最终将中和澄清的溶液输入太阳能蒸发回路。–太阳能蒸发池:处理单元分为预浓缩池、控制池和生产池。预浓缩池塘是收获并放置在剩余盐储备中的废盐沉淀的地方,具有允许回收浸渍溶液的不透水底座。生产池中沉淀的硝酸盐被收获并储存在产品库存中。图14-5扩大Florencia Pampa Blanca工厂的蒸发池计划。14.2.生产规格和效率TRS Pampa Blanca 2025 PAG。11414.2.1工艺标准表14-1包含Pampa Blanca处理电路的主要标准摘要。表14-1工艺标准概要。矿址caliche堆浸和生产碘工艺。标准采矿能力和等级Caliche矿山开采4至7公吨未来探明区域开采12公吨平均品位5.4%硝酸盐;399 ppm碘可用性/使用可用性采矿开采系数80-90%植物可用性系数96.7% Caliche碘PO系数3.7公吨每吨有纹波的碘卡利切硝酸盐PO系数56吨卡利切/硝酸盐盐卡利切碘虹膜因子堆浸浸渍阶段300至500天对于每个堆中间溶液混合灌溉阶段冲洗阶段采用工业水标准堆浸水+ AFA混合灌溉40%稀释AFA堆排水250至450天碘盐卤水浊度< 150 NTU产率和工厂产能碘酸盐/碘化物产率92-95%碘化物/碘化物产率98%产能在Pampa Blanca 1.5 ktpy碘化物在Pampa Blanca碘化物Prill产品纯度99.8%高-硝酸盐产能140 ktpy 14.2.2太阳池规格TRS Pampa Blanca 2025 PAG。115蒸发池运行的具体标准汇总于表14-2:表14-2太阳能蒸发池系统输入流量的流入和流出说明单位值AFA进料流量m3/h 85硝酸钠(NaNO3)g/l 155钾(K)11.0高氯酸钾(KClO4)1.2镁(mg)17硼w/硼酸(H3BO3)6.8系统流出单位值弃盐t/y 60,000硫酸钠% 75氯化钠% 25高硝酸盐盐产量t/y 180,000硝酸钠(NaNO3)75,00014.2.3生产平衡And Yields Pampa Blanca将于2022年下半年重新开始运营,年货运量相当于450万吨, 碘当量产量1130吨/年。碘生产于2023年3月开始。在2024年和2025年期间,Pampa Blanca工艺连续运行,从矿山、浸出、碘化物工厂和蒸发池。表14-3列示了Pampa Blanca 2025年碘和硝酸盐产量汇总表14-3 2025年碘汇总和硝酸盐在潘帕布兰卡碘平衡PB单位总计年2025年Caliche加工的MT4.7 Caliche硝酸盐品位% 6.3% Caliche碘级ppm 448碘堆产量% 57%盐水送到工厂Mm3 2,342浓度g/l 0.51碘生产t/y 1,143碘工厂产量% 98.0%碘生产t/y 1,118碘工厂产量% 95%碘全球产量% 52,9%硝酸盐平衡PB单位总计年2025年AFA送到蒸发池km3 672硝酸盐在AFA送到蒸发池吨NaNO3 92,282硝酸盐在AFA中的浓度送到蒸发池g/l 151 NaNO3品位%蒸发池NANO3收率39.56% TRS Pampa Blanca 2025PAG。116


 
14.2.4就未来而言的产量估计,Pampa Blanca Mining(见第13.2节,见表13-3)和工业计划,其经济分析将在第19章后面讨论(见表19-1),考虑以目前5.5公吨的速度提取caliche,并估计到2041年碘和硝酸盐产量将减少。表14-4显示,要实现承诺生产,就需要将2026-2041年的用水量提高到0.5 m3/t,并将堆浸制碘的收率提高到72.0%。各年度的指示产量值已使用经验产量比作为可溶性盐含量、硝酸盐等级和单耗的函数进行计算。表14-4潘帕布兰卡加工厂生产汇总。参数单位20262027202820292030 2031-2035 2036-2041 Caliche矿石加工总质量(MT)MT5.55.55.55.55.55.5283287耗水量(m3/ton Caliche)0.50 0.50 0.50 0.50 0.50 0.50 0.50 0.50 0.50 0.5矿石品位(ppm,I2)ppm 440427413407400390399矿石品位(硝酸盐,%)% 6.50% 6.50% 6.00% 6.00% 5.50% 5.09% 5.09% 5.41%可溶盐,%% 47.2% 48.2% 46.9% 43.7% 46.6% 49.9% 47.6% 47.2%产率工艺生产颗粒状碘,%% 72.0% 72.0% 72.0% 71.0% 70.0% 61.0% 61.0% 64.5%产率工艺生产硝酸盐,%% 27% 26% 26% 26% 25% 25% 23% 23% 23.8%颗粒制碘(kt)kt 1.7 1.7 1.6 1.6 1.56.57.62 2.4肥料用硝酸盐(kt)kt 97938683763183701,12114.3。工艺要求本子部分包含与项目的能源、水、工艺材料和人员的预计需求相关的前瞻性信息。可能导致实际结果与前瞻性信息中的结论、估计、设计、预测或预测存在重大差异的重大因素包括与本小节中提出的一个或多个重大因素或假设的任何重大差异,包括从历史操作中产生不同结果的实际工厂要求。图14-6显示了Pampa Blanca的生产过程平衡。需要注意的是,输入数量将取决于caliche化学特性,以及碘化物工厂的运行情况,但不会超过图表中所示的那些。TRS潘帕布兰卡2025款PAG。117图14-6。Pampa Blanca的预计水和试剂消耗显示的平衡情景对应的情况是用2 ktpy的碘产量处理7mtpy的caliche。以下章节详细介绍能源、水、工作人员、工艺投入消耗。14.3.1.能源和燃料要求14.3.1.1.电力和能源Pampa Blanca运营所需的电能来自自发电。拥有3MW装机容量。2025年潘帕布兰卡发电量为8,721兆瓦时。2421立方米柴油用于发电。14.3.1.2燃料运营所需3,369 m3/y柴油由正式授权的燃料卡车供应,用于施工运营14.3.2。水的供应和消费量TRS Pampa Blanca 2025 PAG。118基本消费、饮用水消费(经处理后可桶装供应,由外部供应商配发)和工业质量工作需要供水。据报道,整个行业由位于PB的工业供水中心供应。对于工业供水,将以平均最大85L/s的速率抽取地下水,从我们自己的水井和从第三方购买的水。用水量表14-5汇总了2025年SQM和ADASA工业供水的费率。表14-5费率工业水供应年份Pozo Carolina(L/s)Pozo Puelma(L/s)SPU7(L/s)ADASA(L/s)合计(L/s)20254.6 0.52 3.54 66.17 4.76将需要饮用水来满足所有工人的消费和卫生需求。饮用水供应考虑的使用率为100升/人/天,其中2升/人/天对应的是工作台面和食堂的饮用水。商业瓶装水将提供给工作人员。卫生用水将由位于营地和办公区的储存罐供应,储存罐将配备氯化系统。每月总共需要200名工人,综合考虑潘帕布兰卡的运营, 因此饮用水总量将为20 m3/天(0.23 L/s)。表14-6提供了2025年按饮用水和工业用水分列的年度需水量估计数的细目。堆浸工艺对应最大需水量。表14-6 Pampa Blanca工业和饮用水消耗过程年量(m丨/年)等效率(L/s)工业水堆浸2,221,60570.5矿山74,9522.4碘化物厂28,81 10.9中和厂太阳能蒸发池16,618 0.5工业总用水2,341,986.00074.3饮用水700,2314.3.3。人员配置要求Pampa Blanca运营期间估计需要160名工人,表14-11汇总了当前的劳动力需求。TRS潘帕布兰卡2025款PAG。119表14-11作业活动所需人员作业活动Pampa Blanca Caliche Mining 105维护(矿山-工厂-SEP)28生产碘化物15蒸发系统-作业12共160个工序工厂消耗品原料如硫、氯、煤油、氢氧化钠或硫酸,被添加到工厂中,生产出浓碘化物溶液,然后用于碘生产。这些物资从全国各地用卡车运输。与5号干线衔接的A-412是投入供应和原材料发运所需车流的主要通道。试剂消耗汇总表14-12汇总了Pampa Blanca运营所需的主要年度材料到2kt碘粒的名义生产速率。值得注意的是,部分投入品可以用替代化合物替代;例如,硫可以用液体二氧化硫替代,煤油可以用氢氧化钠替代,最后,石灰可以用碳酸钠替代。需要注意的是,通过植物处理的历史运营数据研究了消费因素的范围。范围是根据处理后的资源中获得的卤水的不同品质而建立的。这些因素允许预测试剂和工艺投入的需求,包括年度、短期和长期规划。表14-12工艺试剂及每年消耗率,PB试剂和耗材功能或工艺区单位Pampa Blanca 2000吨Prill硝酸铵爆破所需TPY 2,600硫酸碘化厂TPY 4,070硫碘化剂厂TPY 2,205液体二氧化硫用作固体硫磺替代品TPY 3,965煤油在碘化剂厂作为溶剂TPY 1,620氢氧化钠在碘化剂厂作为煤油替代品TPY 3,005氯向碘化剂厂提供氯气作为氧化剂TPY 205过滤辅助阿尔法纤维素粉末用于碘化和碘厂TPY9石灰(95%曹)中和装置用于石灰替代TPY825碳酸钠中和装置用于石灰替代TPY150 TRS Pampa Blanca 2025 PAG。120


 
试剂处理和存储操作,所使用的输入被存储在库存和罐体中,设施在称为输入接收和存储区的区域可用。要存储潘帕布兰卡工厂使用的投入,需要使用以下基础设施:1。硫磺储存设施。2.煤油罐3。硫酸罐4。柴油油箱。5.烧碱罐。每个试剂储存系统组件根据相容性进行分离,并位于受限制的安全壳区域内,以防止溢出扩散和不相容试剂混合。设置了排水池和泵水池,用于溢漏控制。14.4.QP负责冶金和资源处理的Jes ú s Casas de Prada表示,合格人员的意见是:–预计到2022年的生产计划中计划处理的资源的冶金测试数据表明,回收方法是充分的。在过去几年中进行的实验室、工作台和中试工厂规模测试程序已确定原料合理适合生产,并证明使用工厂建立的分离和回收方法生产碘盐和硝酸盐在技术上是可行的。基于这一分析,最合适的工艺路线,基于测试结果和对材料的进一步经济分析,是选择的单元操作,否则对行业来说是典型的。–此外,历史工艺性能数据证明了基于矿物学含量的采收率估算模型的可靠性。试剂预测和投药将基于确定矿物品位、有价值元素含量和杂质含量的分析过程,以确保系统处理要求有效。尽管已知有害元素和加工因素会影响运营和产品,但该公司已纳入专有方法对其进行适当控制和消除。这些都得到了其专业人员的高水平专业知识的支持,这一点已在访问的不同站点得到验证。–从试验中获得的待处理矿物的矿物学、化学、物理和粒度表征结果允许在项目的初始概念阶段或在已经确定的过程中对加工路线进行持续评估,以确保该过程有效和有效,和/或根据资源性质审查最佳替代方案以回收有价值的元素。此外,分析方法确定有害元素,以便在操作中建立机制,使这些可以保持在限值以下,以确保一定的产品质量。TRS潘帕布兰卡2025款PAG。12115项目基础设施本节包含与构成项目基础设施的设施的位置和设计相关的前瞻性信息。可能导致实际结果与前瞻性信息中的结论、估计、设计、预测或预测存在重大差异的重大因素包括与本子节中提出的一个或多个重大因素或假设的任何重大差异,包括项目开发计划和时间表、具有所描述特征的可用路线和设施场地、设施设计标准、准入和批准时间。Pampa Blanca的基础设施分析考虑了现有设施以及与未来项目相关的要求。本节介绍现有设施和计划中的扩建项目。Pampa Blanca矿位于安托法加斯塔地区安托法加斯塔省Sierra Gorda,距离安托法加斯塔市东北约100公里。可通过5号高速公路北段进入。这些工程整体涉及面积约104.4平方公里。地理参考位置为7,438,578牛,434,651 E,平均海拔1.353masl。图15-1显示了潘帕布兰卡的地理位置。作为参考,它还显示了属于SQM的其他站点(Nueva Victoria、Coya Sur、Salar de Atacama和Salar del Carmen),以及用于分销其产品的设施(托科皮利亚港、安托法加斯塔港和伊基克港)。2010年2月,潘帕布兰卡的采矿作业被叫停,随后该矿场临时关闭。2021年,SQM决定重新启动Pampa Blanca项目的运营,制定生产战略以面对未来不断增长的碘和硝酸盐需求,并能够覆盖预期的增长。加强碘供应, 重新启动II区潘帕布兰卡项目(Antofagasta)碘化物工厂的运营,每年生产1000吨碘和70000吨硝酸盐。自2023年11月以来,Pampa Blanca矿一直按预期运行。Pampa Blanca扩建项目旨在纳入Pampa Blanca矿生产富含碘、碘和硝酸盐的盐的新矿区,这将增加需要提取的caliche总量以及这些工艺的海水使用量。该项目包括改造Pampa Blanca矿,其中包括:–新的矿区(115平方公里),卡利切提取率为12公吨/年–一个新的碘化物生产工厂,以增加3,000吨/年的产量–一个新的碘生产工厂(7,000吨/年),总计7,000吨/年–新的蒸发池,以生产富含硝酸盐的盐(470,000吨/年)–新的可运营灌溉中心和分配管道解决方案,应覆盖新的矿区–新的卡车车间和配套基础设施,如道路、赌场、办公室、控制室,等。–一种新的中和系统–建造一条从Mejillones湾到矿区的海水加成管道,以满足运营阶段的用水需求,最大流量高达1,950 L/s –将项目的工业区连接到Norte Grande互联系统(SING),为其电气需求提供充足的能源,以满足其电需求TRS Pampa Blanca 2025 PAG。122图15-1。一般位置项目Pampa Blanca图15-2。Pampa Blanca扩建项目一般位置TRS Pampa Blanca 2025 PAG。123 TRS潘帕布兰卡2025款PAG。124


 
15.1.进入生产、储存和端口装载区项目的一般通道,适用于所有类型的车辆,靠近5号公路1463公里的点,与SQM的私家道路相连。SQM的产品和原材料由卡车运输,卡车由第三方根据长期、专用合同运营。15.2.生产区和基础设施Pampa Blanca生产区的主要设施如下:– Caliche提取矿。–矿山维修车间。–工业供水。–浸出–碘化物植物。–蒸发池。–办公室。–生活垃圾处理场。–危险废物堆场。–无害工业废物。TRS潘帕布兰卡2025款PAG。125图15-3。Pampa Blanca工厂的现状Pampa Blanca矿区和工艺设施将在下文进行更详细的描述。15.2.1在Pampa Blanca对Caliche矿进行爆破和挖掘。SQM将开采的caliche矿石最小厚度为1.5 m。矿藏采用25x25m网格模式开采。Pampa Blanca获准开采的地表面积为52.4平方公里。以下部门在矿山:–开采和土方部门。–道路–用于硝酸铵储存的粉末弹仓和筒仓。–维护车间–一般事务人员设施TRS Pampa Blanca 2025 PAG。126图15-4。卡车车间。图15-5。临时工业废物堆场。15.2.2浸出矿区内部的浸出设施包括以下区域:–堆浸–矿山运营中心(COM)–辅助设施TRS Pampa Blanca 2025 PAG。127堆浸它们对应的是圆锥树干形状的caliche堆积饼,底座呈矩形,有一个渗滤液收集系统。它们对应的是caliche堆积平台(通常面积为40000-65000 m2。),呈锥形树干形状,底座为矩形,底部采用HDPE膜防水。它们装载了所需的caliche(0.5到1.0mt之间,高度在7到15m之间),并用不同的溶液(工业水、工业水+ BF混合物或中间溶液)用渗滤液收集系统进行灌溉。矿山运营中心(COM)的COM包括与一组浸出堆相关的设施。COMs有盐水积蓄池(贫溶液、中间和富溶液池)、再循环弱盐水池、工业水池,以及各自的泵送和冲压系统。COM位置根据矿山规划定义。辅助设施一般事务人员设施。图15-6。运营中心。15.2.3碘化物厂碘化物厂设施有以下区域:–碘化物厂–辅助设施碘化物厂生产碘化物的主要设备或基础设施包括:–储存池,用于存放从堆浸操作收到的卤水TRS Pampa Blanca 2025 PAG。128


 
–用于SO2生成的炉子–带有各自罐体的吸收塔–气体洗涤系统–剥离系统–溶剂萃取厂(SX)及其罐体–带有各自泵的盐水弱气井。辅助设施以下设施可用于储存碘化物工厂使用的消耗品:–硫磺储存池–煤油罐–硫酸罐–柴油储存罐–水塘–带有中间工艺溶液的池塘。以下设施在工厂部门:–消防网络系统:储水罐,其各自的泵和管道系统分布在整个工厂安装。–发电机房。–压缩机室。–电气室。–控制室。–维修车间和堆场的材料和备件。附属设施对应:–办公室–仓库–交换办公室–综合诊所–赌场–临时废物堆场。TRS潘帕布兰卡2025款PAG。129图15-7。碘化物工厂图15-8。碘化物工厂15.2.4蒸发池太阳能蒸发厂是一个功能单元,涉及溶液调节(中和碘化物工厂产生的盐水feBle)、池塘、转运以及盐的收集和输送系统。池塘的主要目的是蒸发所有给水,分离废盐(氯化钠、镁、硫酸钠),收获高硝酸钠(NaNO3)等级的盐。收获的废盐被储存在一个食盐处理场里。富含硝酸盐的生产盐存放在最终产品储存区。以下设施在该地区:–中和厂。–太阳能蒸发池。TRS潘帕布兰卡2025款PAG。130 –辅助安装。中和厂BF用石灰浆中和(也可以用碳酸钠)。对于中和,有浆料制备厂。中和发生在排放到具有倾析石膏和石灰不溶功能的池塘中的混合罐中。然后将中和澄清的溶液馈送到太阳能蒸发电路。图15-9。中和厂。太阳能蒸发池这分为预浓缩池塘、生产池塘、净化池塘并覆盖约63万m2的面积。在预浓缩池中,丢弃的盐沉淀,被收获并放置在丢弃的盐堆中,其具有防水底座,允许回收剥离或浸渍溶液。富含硝酸盐的盐类在生产池中沉淀,然后在产品池中收获和储存,然后通过卡车运往安托法加斯塔地区的Coya Sur或其他SQM工厂或第三方。该地区的辅助设施,有办公室、浴室、更衣室,以及为在该地区和TAS工厂工作的员工提供的赌场。图15-10。太阳能蒸发池。TRS潘帕布兰卡2025款PAG。131图15-11。太阳能蒸发池。TRS潘帕布兰卡2025款PAG。132


 
15.3.通信这些设施通过卫星链路或由外部供应商提供的光纤提供电话、互联网和电视服务。运营人员的通信是通过相同频率的通信无线电。与控制系统、CCTV、内部电话、能源、数据监控的通信,都是通过自己的光纤,将过程工厂和控制室连接起来。15.4.水供应工业用水由地下水开采池和第三方供应商供应。用管道、泵站、输电线组成的网络,将工业用水抽取、泵送、输送、分配到需要的不同点。15.5.水处理该项目有3个水处理厂,处理工人废水表15-1。按部门厂区容量[人]核定水处理装置容量[升/天]核定分辨率碘化物装置5011,250 l/d RES。前任。N ° 2302298535中和装置255,625 l/d RES。前任。N ° 2302298523卡车车间10015,000 l/d RES。前任。N ° 230229854115.6。电力供应潘帕布兰卡有自己的供电系统,那就是不连接国家电力系统。供应系统由4台每台1兆伏安的柴油发电机和一台3兆伏安0.380/23千伏的电力变电站组成,通过23千伏MT线路将能量分配到不同区域。TRS潘帕布兰卡2025款PAG。133图15-11。Force House TRS潘帕布兰卡2025款PAG。13416市场研究本节包含与项目的商品需求和价格相关的前瞻性信息。可能导致实际结果与前瞻性信息中的结论、估计、设计、预测或预测存在重大差异的重大因素包括与本节所述的一个或多个重大因素或假设的任何重大差异,包括现行经济状况、商品需求和价格与长期预测的相同。16.1碘及其衍生物16.1.1公司碘和碘衍生物广泛用于医疗、农业和工业应用以及人类和动物营养产品。它们主要应用于X射线造影剂、偏光膜和制药领域。工业化学品在玻璃、炸药和陶瓷制造等某些化学工艺中有着广泛的应用。工业硝酸盐也被用于聚光太阳能发电厂,作为能源储存的手段。碘及其衍生物:我们认为,我们是世界领先的碘和碘衍生物生产商,其广泛应用于医疗、制药、农业和工业领域,包括X射线造影剂、LCD和LED用偏光膜、防腐剂、杀菌剂和消毒剂,用于合成药品、电子产品、颜料和染料组件。工业化工:生产销售三种工业化学品:硝酸钠、硝酸钾、氯化钾。硝酸钠主要用于生产玻璃、炸药、金属处理、金属回收和绝缘材料生产等用途。硝酸钾用于特种玻璃制造,也是生产陶瓷、搪瓷工业、金属处理和火工品用炉料的重要原料。太阳能盐是硝酸钾和硝酸钠的结合体,在集中式太阳能发电厂中被用作蓄热介质。氯化钾是一种用于生产氢氧化钾的基础化学品,除其他用途外,它还被用作石油钻探以及食品加工中的添加剂。表16-1。SQM2024、2023和2022年收入百分比拆分收入拆分202520242023特种植物营养21% 21% 12%锂及衍生物50% 49% 69%碘及衍生物23% 21% 12%钾3% 6% 4%工业化学品2% 2% 2%其他产品和服务1% 1% 0%合计100% 100% 100% 16.1.2经营策略碘及其衍生物TRS Pampa Blanca 2025 PAG。135我们在碘业务上的策略是(i)鼓励需求增长并促进碘的新用途;(ii)根据客户的要求提供质量一致的产品;(iii)通过放置在每个主要地区的仓库与我们的客户建立本地和可信赖的关系;(iv)实现并保持足够的市场份额,以优化我们的成本和可用产能的使用;(v)通过Ajay-SQM集团(“ASG”)参与碘回收项目, 与美国Ajay Chemicals Inc.(简称“Ajay”)的合资企业,通过改进工艺和提高生产力来降低生产成本,以更有效地竞争。工业化学品我们在工业化学品业务方面的战略是:(i)保持我们在工业硝酸盐市场的领导地位;(ii)鼓励不同应用领域的需求增长以及探索新的潜在应用;(iii)将自己定位为e行业的长期、可靠的供应商,与研发计划和工业举措保持密切关系;(iv)通过改进工艺和提高生产力来降低我们的生产成本,以便更有效地竞争,以及(v)根据客户的要求提供质量始终如一的产品。16.1.3主要业务线16.1. 3.1碘及其衍生物我们认为,我们是世界上最大的碘生产商。2025年,我们的碘及碘衍生物收入达104.28万美元,占当年总收入的23%,较2024年的9.683亿美元有所增长。这一增长归因于价格高于2024年。2025年的平均碘价格比2024年高出约7.4%。我们的销量在2025年增长了约0.2%。我们估计,我们的销售额约占2025年全球碘销量的37%。下表显示了我们在2025、2024和2023年的碘和碘衍生物的总销量和收入:表16-2。碘及衍生物数量和收入,2022-2024年销量(千公吨)202520242023碘及衍生物14.5 14.51 3.1总收入(百万美元)1,042.89 968.389 2.216.1. 3.1.1市场碘及碘衍生物广泛用于医疗、农业和工业应用以及人类和动物营养产品。碘和碘衍生物在X射线造影剂、杀菌剂、防腐剂和消毒剂、医药中间体、LCD和LED屏幕用偏光膜、化学品、有机化合物和颜料等产品的配方中被用作原料或催化剂。碘还以碘酸钾或碘化钾的形式添加到食用盐中,以防止碘缺乏症。X射线造影剂是碘的主导应用,约占需求的38%。碘的高原子序数和密度使其非常适合这种应用,因为它在体内的存在有助于增加具有相似X射线密度的组织、器官和血管之间的对比度。其他应用包括药品,我们认为占需求的13%;LCD和LED屏幕,13%;碘伏和聚维酮碘,6%;动物营养,7%;氟化物衍生物,6%;杀菌剂,5%;尼龙,3%;人类营养,3%和其他应用,6%。TRS潘帕布兰卡2025款PAG。136


 
2025年,我们的估算表明,该市场较前一年经历了约0.6%的增长。年内碘需求温和扩张,反映出市场更多是由韧性驱动,而不是动能驱动。核心应用,特别是医疗和健康相关用途,继续支撑需求,增强了对市场结构性基本面的信心。然而,其他细分市场的情绪仍然谨慎。价格上涨给对价格更为敏感的应用带来了压力,在这些应用中,客户仍然持保守态度,并注重效率。与此同时,由于结构性因素,一些遗留和非核心用途继续下降。总体而言,碘市场的特点是稳定的高价值用途与较弱的传统细分市场之间存在明显的分歧,导致需求环境稳定但低迷。相反,对X射线造影剂的需求成为碘市场增长的主要驱动力。这一增长主要是由于医疗保健支出增加、需要诊断成像的慢性病患病率增加、CT手术量增加、成像技术进步以及人口向老龄化转变。诊断成像的使用越来越多,特别是在中国、欧洲和美国,这显着提振了对碘造影剂的需求,抵消了其他行业的部分下降。16.1. 3.1.2产品我们在智利伊基克附近的Nueva Victoria工厂、Pedro de Valdivia工厂和我们最新增加的Pampa Blanca矿区生产碘,这两个矿区都位于智利Mar í a Elena附近。我们的碘总产能约为每年14,300公吨。我们通过Ajay SQM Group(“ASG”)生产有机和无机碘衍生物。ASG成立于上世纪90年代中期,在美国、智利和法国设有生产工厂。ASG是全球领先的无机和有机碘衍生物生产商之一。根据我们的碘业务战略,我们不断致力于我们的碘基产品的新应用开发,追求我们的业务的持续扩张并保持我们的市场领先地位。我们按照国际质量标准生产我们的碘和碘衍生物,并根据ISO9001:2015计划对我们的碘设施和生产工艺进行了认证,为我们实施的质量管理体系和国际质量控制标准提供第三方认证。TRS潘帕布兰卡2025款PAG。13716.1. 3.1.3营销和客户2025年,我们在大约30个国家向113个客户销售我们的碘产品,我们的大部分销售是出口。两个客户分别占该分部销售额至少10%,约占碘销售额的30%。这10个最大的客户在此期间共占销售额的约75%。另一方面,没有供应商单独集中至少10%的该业务线的销售成本。下表显示了我们收入的地域细分:表16-3。收入地域细分:碘及其衍生物收入细分202520242023北美13% 16% 14%欧洲37% 38% 41%智利0% 0% 0%中南美洲(不包括智利)2% 2% 2%亚洲及其他48% 43% 42%我们通过我们自己的全球代表处网络以及通过我们的销售、支持和分销附属公司销售碘。我们在世界各地的设施中保持碘库存,以便于及时交付给客户。碘销售是根据现货采购订单或在供应协议框架内进行的。供应协议一般会规定年度最低和最高采购承诺,价格会根据当时的市场价格定期调整。16.1. 3.1.4竞争全球主要的碘生产国位于智利、日本和美国。俄罗斯、土库曼斯坦、阿塞拜疆、印度尼西亚和中国也生产碘。碘在智利是由一种被称为caliche矿石的独特矿物生产的,而在日本、美国、俄罗斯、土库曼斯坦、阿塞拜疆和印度尼西亚,生产商从地下卤水中提取碘,这些卤水主要是与天然气和石油的开采一起获得的。回收的碘废物生产主要来自中国和日本。五家智利公司占2025年全球碘总销量的约61%,其中SQM约占37%,其他四家生产商占剩余的24%。智利的其他生产商是S.C.M. Cosayach(Cosayach),由智利控股公司Inverraz S.A.控制;ACF Minera S.A.,由智利Urruticoechea家族拥有;Algorta Norte S.A.,由ACF Minera S.A.和丰田通商的合资企业;以及Atacama Minerals, 这是由中国公司Tewoo拥有的。我们估计,2025年8家日本碘生产商约占全球碘销量的22%,其中包括回收碘。我们估计,2025年美国的碘生产商占世界碘销量的近5%。碘回收在世界范围内是一个日益增长的趋势。几家生产商拥有回收设施,从碘废物流中回收碘和碘衍生物。我们估计16%的碘供应来自于碘回收。通过ASG或单独也在积极参与使用欧美多种化学工艺的碘化侧流的碘回收业务。TRS潘帕布兰卡2025款PAG。138碘及碘衍生物产品价格由市场行情决定。世界碘价格的变化取决于,除其他外,任何特定时间的供需关系。碘供应的差异主要取决于碘生产商(包括美国)的生产水平及其各自的业务战略。2025年,我们的年度平均碘销售价格与2024年相比有所增长,从2024年观察到的平均销售价格约为每公斤67美元,到2025年达到约每公斤72美元。对碘的需求取决于经济活动的总体水平以及作为碘和碘衍生物产品主要用户的医疗、制药、工业和其他部门的需求水平。某些碘的替代品可用于某些应用,例如防腐剂和消毒剂,这可能是一种具有成本效益的碘替代品,具体取决于现行价格。碘及碘衍生物产品销售的主要竞争因素是可靠性、价格、质量、客户服务以及替代品的价格和可得性。我们相信,由于我们的采矿储量的规模和质量以及可用的产能,与其他生产商相比,我们具有竞争优势。我们相信,我们的碘与其他制造商在某些先进工业工艺中生产的碘具有竞争力。我们还相信,我们与最大客户建立的长期关系使我们在竞争中受益。16.1. 3.22025年,我们的工业化学品收入为7540万美元,约占当年总收入的2%,较2024年的7820万美元下降4%,原因是该业务线的销量下降。与去年报告的销量相比,2025年的销量下降了3%。下表显示了我们在2025、2024和2023年的工业化学品销量和总收入:表16-4。工业化学品数量和收入,2023-2025年销量(千公吨)202520242023工业化学品51.05 2.61 80.4总收入(百万美元)75.478.2175.2 16.1. 3. 2.1市场工业硝酸钠和硝酸钾被广泛用于工业应用,包括生产玻璃、陶瓷和炸药、金属回收、绝缘材料、金属处理、热太阳能和各种化学工艺。我们还感受到了在与CSP(聚光太阳能发电)技术相关的储热解决方案中使用太阳能盐的日益增长的兴趣。由于其经过验证的性能,太阳能盐正在工业热过程和热废物解决方案中进行测试。这些新的应用可能会在不久的将来为太阳能盐的使用带来新的机会,比如改造燃煤电厂。16.1. 3.2.2产品TRS Pampa Blanca 2025 PAG。139我们生产和销售三种工业化学品:硝酸钠(NaNO3)、硝酸钾(KNO3)和氯化钾(KCL)。硝酸钠主要用于生产玻璃、炸药、金属处理、金属回收和生产绝缘材料、粘合剂等用途。硝酸钾用于特种玻璃制造,也是生产陶瓷、搪瓷工业、金属处理和火工品用炉料的重要原料。太阳能盐是硝酸钾和硝酸钠的结合体,在集中式太阳能发电厂中被用作蓄热介质。氯化钾是一种用于生产氢氧化钾的基础化学品,除其他用途外,它还被用作石油钻探和食品加工中的添加剂。除了生产用于农业应用的硝酸钠和硝酸钾外,我们还生产不同等级的这些产品,包括用于工业应用的颗粒级产品。这些等级主要在化学纯度上有所不同。我们在生产工业级硝酸盐方面具有操作灵活性,因为它们与同等农业级硝酸盐的生产工艺相同, 只需要额外的净化步骤。我们可能会在有一定限制的情况下,根据市场情况将生产从一个等级转移到另一个等级。这种灵活性使我们能够最大限度地提高收益率并降低商业风险。除生产工业硝酸盐外,我们还生产、营销和销售工业级氯化钾。16.1. 3. 2.32025年营销和客户,我们在53个国家销售我们的工业硝酸盐产品,约290个客户。没有单一客户至少占该分部销售额的10%,10个最大客户合共占该分部收入约28%。没有供应商占该业务条线销售成本的比例超过10%。我们向Corfo支付与销售Salar de Atacama生产的不同产品相关的租赁付款,包括碳酸锂、氢氧化锂和氯化钾。请参阅我们的合并财务报表附注22.2,了解在所有列报期间向Corfo支付的租赁付款的披露情况。下表显示了我们收入的地域细分:表16-5。收入地域细分:工业化学品收入细分202520242023北美57% 56% 27%欧洲21% 24% 12%智利1% 1% 1%中南美洲(不包括智利)11% 10% 6%亚洲及其他10% 9% 54%我们的工业化学品产品主要通过我们自己的办事处网络、物流平台、代表和分销商进行营销。我们保持更新的库存我们的库存硝酸钠和硝酸钾,按分级分类,以方便迅速从我们的仓库发出。我们为客户提供支持,并不断与他们合作,以提高我们的服务和质量,同时为我们的产品开发新的产品和应用。16.1. 3. 2.4竞争我们认为,我们是世界上最大的工业硝酸钠和硝酸钾生产商之一。2025年,我们估算的工业硝酸钾按量计市占率约为13%,工业硝酸钠为21%左右(不包括中国和印度的国内需求)。我们在硝酸钠方面的竞争对手主要以欧洲和亚洲为基地,生产硝酸钠作为其他生产工艺的副产品。在硝酸钠方面,德国企业巴斯夫股份公司以及东欧和中国的几家生产商具有竞争力,因为它们生产工业硝酸钠作为副产品。我们的工业硝酸钠等级还与替代化学品间接竞争,包括碳酸钠、硫酸钠、硝酸钙和硝酸铵,这些化学品可能用于某些应用,以取代硝酸钠,并可从全球大量生产商处获得。TRS潘帕布兰卡2025款PAG。140


 
我们在工业硝酸钾业务中的主要竞争对手是海发化学、Kemapco和一些中国生产商,我们估计它们在2025年的市场份额分别为45%、6%和6%。工业硝酸钠和工业硝酸钾生产商基于产品质量、交付可靠性、价格、客户服务等属性进行市场竞争。我们的运营以高质量和低成本提供这两种产品。在工业氯化钾市场,我们是一个相对较小的生产商,主要集中供应区域需求。16.2特种植物营养16.2.1公司特种植物养分是提高作物产量和质量的优质肥料。我们的重点产品是硝酸钾,主要用于高价值作物的施肥。我们还作为商品肥料在全球范围内生产和销售氯化钾。此外,我们在全球范围内交易其他补充肥料,以使我们的产品多样化。特种植物营养:我们提供三种主要类型的特种植物养分,用于施肥、直接土壤、叶面应用:硝酸钾、硝酸钠、特种混合物。我们还销售其他特种肥料,包括第三方产品。这些产品有固体或液体形式,主要用于水果、花卉和一些蔬菜等高价值作物上。它们被广泛应用于现代农业技术,如水培、大棚、施肥(肥料在灌溉前先溶于水)。特种植物养分提供了优于商品肥料的优势,例如吸收快、水溶性好、氯化物含量低。硝酸钾是一种关键产品,有结晶和颗粒形式,可用于各种应用。结晶硝酸钾适合施肥和叶面使用,而颗粒是直接施用土壤的理想选择。我们以以下品牌销售我们的产品:Ultrasol®(施肥),QROP®(土壤施用),Speedfol®(叶面应用),以及Allganic®(有机农业)。老练的客户现在寻求的是一体化的解决方案,而不是单一的产品。我们的产品包括定制的混合物和农艺服务,增强植物营养以获得更好的产量和质量。我们的产品源自天然硝酸盐化合物或盐水钾,具有有益的微量元素,提供优于合成肥料的优势。因此,与标准肥料相比,特殊营养素的价格要高得多。钾:氯化钾是由从阿塔卡马盐沼提取的卤水生产的。这种商品肥料用于滋养各种作物,包括玉米、水稻、甘蔗、大豆、小麦等。其他产品和服务:我们销售各种肥料和混合物,包括我们不生产的。我们是最大的硝酸钾生产商和硝酸钾、硫酸盐、氯化物分销商。16.2.2业务战略特种植物营养我们在特种植物营养业务中的战略为我们的客户提供智能和可持续的营养解决方案。为此,我们寻求:•利用我们的特色产品相对于应用于高价值作物的商品型肥料的优势•有选择地扩大我们的业务,方法是增加基于天然钾和硝酸盐的利润率更高的特色植物营养素的销售,特别是可溶性硝酸钾和特色混合物•在互补业务中寻求投资机会,以开发新产品和业务模式,为我们的客户增加价值,从而为我们的客户TRS Pampa Blanca 2025 PAG。141 •开发在我们的混合工厂生产的新的特种营养混合物,这些工厂战略性地位于我们的核心市场或附近,以满足特定的客户需求。•主要关注市场,在这些市场中,我们可以在可溶性应用中销售我们的植物营养素,以确立领导地位。•直接和通过战略联盟进一步发展我们的全球分销和营销系统。•根据我们客户的具体要求,供应质量始终如一的产品。•投资于研究和技术,以提高我们的工艺良率,降低我们的生产成本并最大限度地提高生产力。•保持生产灵活性,以捕捉新兴市场机会。钾我们在钾业务中的策略是:•拥有根据市场要求提供结晶(标准)或颗粒(压实)形式的产品的灵活性。•专注于我们与特种植物营养业务具有物流优势和协同效应的市场。•根据我们客户的具体要求提供质量一致的产品。16.2.3主要业务线16.2. 3.12025年特种植物营养,特种植物营养营收增至9.824亿美元, 占该年度总收入的21%,较2024年的9.419亿美元特种植物营养素收入增长4.3%。我们相信,我们是世界上最大的硝酸钾生产商。我们估计,按数量计算,我们的销售额占2025年全球所有农业用途硝酸钾销售额的约39%。表16-6。特种植物营养量和收入,2023-2025年销量(千公吨)202520242023硝酸钠8.61 2.5 16.7硝酸钾和硝酸钾钠517.55 34.04 43.5特种混合物301.6 276.72 43.4其他特种植物营养素185.3 159.71 36.5总收入(MUSD)98 2.4941.99 13.9 16.2. 3.1.1市场特种植物营养素服务于各种农业用途,包括蔬菜和水果等高价值作物的施肥。这些肥料必须是高度可溶性和无杂质的现代灌溉方法,如滴灌和微喷系统。硝酸钾因其无氯成分、高溶解度、适当的pH值和缺乏杂质而在这些营养素中脱颖而出,使其能够比氯化钾和硫酸盐等替代品获得更高的价格。现代灌溉系统广泛应用于受保护的作物和高价值的水果种植园,如温室、隧道(用于浆果)和遮荫房(用于西红柿)。特种养分也应用于马铃薯和烟草生产等生态位的叶面和颗粒土壤应用。TRS潘帕布兰卡2025款PAG。142特种植物养分具有独特的特性,当应用于特定作物和土壤时,可以提高生产力并改善质量。与从其他氮和钾来源获得的商品肥料,如尿素和氯化钾相比,这些产品提供了一定的好处。1990年以来,国际特种植物养分市场拓展速度快于商品肥料市场。促成因素包括:(i)采用新的农业技术,如施肥、水培和温室;(ii)土地成本上升和水资源短缺,这促使农民提高产量并减少用水量;(iii)对更高质量作物的需求不断增长。然而,在2022年和2023年期间,农业可溶性硝酸钾市场的消费量分别减少了约12%和8%,原因是价格显着上涨、不利的气候条件和高通胀率。这些估算不包括中国当地生产和销售的硝酸钾,仅占净进出口。我们估计,特种植物营养(SPN)市场在2025年经历了持续复苏。我们估计,市场较前一年增长约3%,现已达到并略高于2020年的水平5%左右,明显反映了市场状况的持续复苏。16.2. 3.1.2产品我们生产三种主要类型的特种植物养分,为施肥、直接施用土壤和叶面肥提供营养解决方案:硝酸钾(KNO3)、硝酸钠(NaNO3)和特种混合物。我们还销售其他特种肥料,包括第三方生产的产品。所有这些产品都以固体或液体形式主要用于水果、花卉和一些蔬菜等高价值作物。这些肥料广泛应用于使用现代农业技术的作物,如水培、大棚和叶面施用和施肥的作物(在后一种情况下,肥料在灌溉前先溶于水)。特种植物养分相对于商品肥料具有一定的优势,如吸收快速有效(无需硝化)、水溶性优越、氯化物含量低等。该业务线中最重要的产品之一是硝酸钾,它以结晶或颗粒形式上市,允许不同的应用方法。结晶硝酸钾产品是施肥和叶面应用的理想选择,硝酸钾珠适合直接应用于土壤。特殊混合物是在我们或我们的附属公司和相关公司在世界各地运营的混合工厂中使用我们自己的特殊植物营养素和其他成分生产的。我们根据我们产品的不同应用和用途,为我们的特种植物营养产品的商业化开发了品牌。我们的主要品牌有:Ultrasol®(施肥),QROP®(土壤应用),Speedfol®(叶面应用)和Allganic®(有机农业)。我们特制的超声波的优点®蔬菜混合物包括:•全水溶性,可高效用于水培、施肥、叶面应用、先进农业技术, 减少用水量。•不含氯,防止对氯敏感的作物产生毒性。•与尿素或氨基肥料相比,提供硝酸形式的氮以更快地吸收养分。2025年超声等差别化肥料销量持续增长®为了改善根系生长和最佳氮代谢,ProP®更有效的磷吸收,以及Prohydric®为了更有效的施肥和用水。特种养分根据施用方法可分为特种田间肥料或水溶性肥料。TRS潘帕布兰卡2025款PAG。143特种大田肥料人工或机械直接施用土壤。它们的高溶解度、无氯化物性质和非酸性反应使其成为烟草、土豆、咖啡、棉花以及某些水果和蔬菜等作物的理想选择。水溶性肥料是通过现代灌溉系统输送的,必须是高度可溶性、营养丰富、无杂质、盐分指数低的肥料。硝酸钾是这里的关键营养素,因为它平衡了硝氮和无氯化钾,对这些系统中的植物营养至关重要。硝酸钾在叶面喂养中至关重要,可以预防和纠正营养缺乏,避免压力。它有助于平衡水果生产和植物生长,特别是在有生理障碍的作物中。16.2. 3.1.3营销和客户2025年,我们在大约100个国家和超过1500个客户销售我们的特色植物营养素。2025年期间,没有任何单一客户单独占该细分市场销售额的至少10%。这10家最大的客户合计占该期间销售额的约24%。没有供应商占该业务条线销售成本的比例超过10%。下表显示了我们收入的地域细分:表16-7。销售地域细分:特种植物营养收入细分202520242023智利13% 13% 12%中南美洲(不含智利)12% 12% 8%欧洲18% 16% 14%北美39% 38% 45%亚洲及其他18% 20% 21%我们通过我们的商业办事处和分销商网络在全球分销我们的特种植物营养产品。我们在主要市场的商业办事处保持我们的特种植物营养素的库存,以便于及时向客户交付。销售通过现货采购订单或短期合同进行。作为我们营销战略的一部分,我们为客户提供技术和农艺方面的帮助。我们的知识基于我们的农艺团队与全球生产商合作进行的广泛研究和研究。这些专业知识支持开发特定配方以及水培和施肥营养计划,使我们能够提供知情建议。通过与客户密切合作,我们确定了对新产品和潜在高价值市场的需求。我们的特色植物养分被用于各种作物,尤其是增值作物,它们帮助客户提高产量和质量以实现溢价定价。我们的客户分布在不同的地区,因此,我们预计不会有任何季节性或周期性因素对我们的特色植物营养素的销售产生重大影响。16.2. 3.1.4竞争影响特色营养素销售竞争的首要因素包括产品质量、物流、农艺服务专业知识、定价等。我们认为自己是世界上最大的农业用硝酸钾生产国。我们的硝酸钾面临来自特种和商品替代品的间接竞争,一些客户可能会根据所涉及的土壤类型和作物选择这些替代品。TRS潘帕布兰卡2025款PAG。144


 
2025年,我们的销售额约占全球农业硝酸钾市场销量的39%。在100%可溶性硝酸钾细分市场,我们的主要竞争对手是以色列的Haifa Chemicals Ltd.(“Haifa”)。我们测算,2025年海法销售额占全球农用硝酸钾销售额的19%左右(不含中国生产商在中国本土市场内的销售额)。Kemapco是Arab Potash旗下的一家约旦生产商,在约旦亚喀巴港附近经营一家生产设施。我们估计Kemapco的销售额约占2025年全球农业硝酸钾销售额的14%。ACF是另一家主要专注于碘生产的智利生产商,自2005年以来一直从caliche矿石中生产硝酸钾。此外,几家硝酸钾制造商在中国开展业务,其大部分生产在中国国内消费。16.2. 3.22025年钾,我们的氯化钾和硫酸钾收入为3.276亿美元,占总收入的3%,与2024年相比下降了43%,原因是计划的销量减少,部分被年内价格上涨所抵消。2025年的平均价格约为每吨474.7美元,比2024年的平均价格高出21.8%。我们2025年的销量比2024年报告的销量低约53%。下表显示了我们2025、2024和2023年氯化钾和硫酸钾的销量和收入:表16-8。钾的数量和收入,2023-2025年期间的销量(千公吨)202520242023氯化钾和硫酸钾327.66 95.05 43.1总收入(MUSD)105.52 70.82 79.1 16.2. 3. 2.1市场随着世界人口的增长、对以蛋白质为基础的饮食的需求增加以及可耕地减少。由于努力实现作物产量最大化并继续更有效地利用资源,这些因素促进了肥料需求的增长。我们估计,2025年全球需求达到约7360万吨,比2024年期间的约7280万吨有所增加,反映出全球化肥市场的结构性基本面持续。国际肥料协会的研究表明,谷物约占全球钾需求的39%,包括玉米(17%)、大米(12%)、小麦(8%)。油料作物占全球消费量的25%,大豆占13%,油棕榈占9%。其他用途约占36%。16.2. 3.2.2产品我们通过从Salar de Atacama提取盐水生产氯化钾(KCL),盐水中含有丰富的钾和其他盐。氯化钾是各种作物使用最多、成本效益最高的钾基肥料。我们提供两个等级的氯化钾:标准的和压实的。钾是植物发育所需的三种必需常量营养素之一。适用于能耐受相对较高氯化物水平的作物施肥,以及在降雨充足或灌溉条件下生长的作物,以防止生根系统中的氯化物积累。使用钾的好处包括:•提高产量和质量TRS Pampa Blanca 2025 PAG。145 •蛋白质生产得到加强•光合作用得到改善•同化物的运输和储存得到加强•更好的用水效率氯化钾还被用作生产硝酸钾和其他特殊营养素粒状混合物(NPK)的原料。自2009年以来,我们的有效终端产品产能已增加到每年超过200万公吨,为我们提供了更大的灵活性和市场覆盖率。16.2. 3. 2.3营销和客户2024年,我们向39个国家的约729个客户销售了氯化钾和硫酸钾。在2024年,没有任何单一客户单独占该分部销售额的至少10%。我们估计这10个最大的客户合计占这一期间销售额的约35%。没有任何一家供应商的这一业务线的销售成本集中度至少达到10%。我们向Corfo支付与销售Salar de Atacama生产的不同产品相关的租赁付款,包括碳酸锂、氢氧化锂和氯化钾。请参阅我们的合并财务报表附注22.2,了解在所有列报期间向Corfo支付的租赁付款的披露情况。下表显示了我们收入的地域细分:表16-9。销售地域细分:钾收入细分202520242023北美32% 23% 24%欧洲12% 15% 11%智利10% 13% 11%中南美洲(不含智利)22% 33% 34%亚洲及其他23% 16% 20% 16.2.3. 2.4竞争我们估计,2025年我们占全球氯化钾销售额的不到1%。我们的主要竞争对手是Uralkali、Belaruskali、Nutrien和Mosaic。2025年, Uralkali估计约占全球销售额的17%,Belaruskali约占14%,Nutrien约占19%,Mosaic约占12%。16.2. 3.3其他产品SQM通过销售第三方肥料(包括特种肥料和商品)产生收入。这些肥料在全球范围内大量交易,被用作特种混合物的原材料,或用于增强我们的产品组合。我们在商业管理、供应、灵活性和库存管理方面建立了能力,使我们能够应对不断变化的化肥市场,并从这些交易中获得利润。表16-7。销售地域分拆:其他产品收入分拆20252024年北美51% 74%欧洲12% 16%智利0% 2%中南美洲(不含智利)13% 5%亚洲及其他24% 3% TRS Pampa Blanca 2025 PAG。14617环境研究、许可和社会或社区影响以下部分详细介绍了网站的监管环境。它介绍了适用的法律法规,并列出了开始采矿作业所需的许可证。环境影响评估过程需要收集许多组成部分的数据,并进行磋商,以便在现场告知相关利益攸关方。这一清单和咨询过程的主要结果也记录在本节中。还介绍了水和采矿废物基础设施的设计标准。最后,在目前可获得的信息范围内,介绍了该矿山恢复计划的大致轮廓。TRS潘帕布兰卡2025款PAG。14717.1环境研究法律19.300/1994《环境一般基础法》(法律19.300或环境法),其经法律20.417/2010和最高法令N° 40/2012环境影响评估服务条例(D.S. N° 40/2012或RSEIA)的修改)确定了产生某种类型环境影响的项目必须如何开发、运营和关闭。关于采矿项目,《环境法》第3.i条规定,采矿项目在开发前必须提交环境影响评估系统(SEIA)。– Florence太阳能蒸发厂,通过环评提交并经RCA021/1999批准–新的Pampa Blanca盐处理场,通过DIA提交,并经RCAN ° 232/2009批准– Pampa Blanca矿区,通过环评提交并经RCAN ° 278/2010批准– Pampa Blanca扩建,通过环评提交并经RCAN ° 319/2013批准–环境资格第202502101573号决议批准DIA“通过纳入新的废盐储存区对Pampa Blanca采矿设施进行改造”,仅执行了这些项目中的第一个项目,这是因为2011年潘帕布兰卡行动开始临时关闭,并延长至2022年。目前,正在准备潘帕布兰卡海水泵送系统项目的环境评估,其中包括矿区和未来运营的海水泵送系统。17.1.1基线研究以下是为EIS的环境基线“通过纳入新的储盐区对潘帕布兰卡采矿设施进行改造”以及为正在编制的环境影响研究获得的信息:气候和气象该位置区域的特征是一些与该组成部分相关的气候指数,年累计降雨量为3毫米,年平均气温约为7 ° C,平均风速为3.1米/秒。空气质量关于项目在Sierra Gorda的位置,表示目前没有现行的大气净化计划(PDA)或大气防治与净化计划(PPDA)。以4个监测站开展空气质量表征工作。为了有代表性的定性,使用最近的空气质量信息是有特权的,最多限于项目进入前一年的5年前。有了这一点,主要结果如下:•在研究期间没有出现可吸入细颗粒物(PM2.5)超标的情况,但是,Sierra Gorda站(Spence)呈现的是24小时浓度高于潜伏值阈值的第98个百分位的污染物数值的每日标准。•对于可吸入颗粒物(PM10),对于每日标准,与污染物每日浓度的98个百分位相关,所有Sierra Gorda(SCM)、Sierra Gorda(Spence)和Sierra Gorda(Centinela)站呈现高于标准饱和值的值,而Sierra Gorda(SQM)站呈现高于延迟阈值的值。关于该污染物的年度标准, 所有台站均呈现高于标准饱和值的数值。•关于气态污染物一氧化碳(CO)、二氧化氮(NO2)和二氧化硫(SO2)的一级质量标准,指出所获得的统计数据最多代表了各自标准的40.5%,这一情况在Sierra Gorda(SQM)站NO2小时标准中观察到。水文TRS Pampa Blanca 2025 PAG。148


 
对降水量进行统计分析得出的结论是,研究区实际无降水,年均值不超过3毫米。正因为如此,才排除了可能渗入地下水的可能性。根据水文和水文背景,可以得出结论,在项目场址区域,即在矿区,在潘帕布兰卡工业设施中,不存在可能受到影响的显着永久性地表径流。研究区平均蒸发量为10.1毫米/天,峰值在10月至3月之间。蒸发量月度分布情况与北方地区现有场站行为一致。该地区的实际蒸发量受到可供蒸发的可用水不足的限制。因此,该地区的大部分降雨被蒸发过程消耗。水文地质线性工程(线性A区、B区和C区)根据地质和水文地质背景,可以得出结论,在线性工程所在的区域,至少有七个区域的水文地质特征,根据地表信息推断,将有利于地下水的存在。然而,除了工业区的西南区域和这些设施附近的电力线,即Sierra Gorda含水层所在的区域外,这一区域没有得到承认的含水层的记录。Sierra Gorda含水层,在这个区域,有非常低渗透率的表层。这些层厚约30米,由粉砂和粘土等细碎屑质材料组成。在这个区域,地下水位的深度在8到39米之间变化。Areal Works(矿山和工业部门)根据所呈现的地质和水文地质背景,可以得出结论,除了位于南部的工业区之外,在区域工程所在区域没有感兴趣的含水层。经测定,在场址区域,渗透率极低的岩石实际上在地表露头,在有填充物的区域,其厚度较小(3米)。这意味着不存在容纳含水层的潜力。位于研究区域南部的工业部门部分位于Sierra Gorda含水层的范围内。然而,在这个工业区前面的Sierra Gorda含水层,有非常低渗透率的表层。这些层对应的是水文地质单元4和5,厚度约为30米。在这个扇区,地下水位的深度在8到39之间变化。土壤关于影响区域内存在的土壤资源的主要发现,观察到高度盐碱化和脆弱的土壤,这与建立植被不可行的土壤相对应,因此它们非常容易受到侵蚀,要么是水的作用,要么是风剂的作用,这意味着它们也是可侵蚀的土壤,在深度上呈现有限的成土发展,这表明在项目区域内存在的土壤中维持生物多样性的能力较低。关于影响区域的生物多样性维持能力(BSC),呈现非常低的BSC。这是由于母质来源的条件、该地区特有的干旱湿度状态和土壤的高盐碱钠浓度。目前,在维持生物多样性的能力方面存在限制性条件,这与整个地区没有植被覆盖的情况是一致的。植物和植被-植被为该项目定义的影响面积(AI)覆盖总面积为12,248.22公顷,99.99%的AI对应于没有植被和工业区的区域。这显然符合绝对沙漠条件。另一方面,检测到覆盖面积为0.60公顷(0.005%)的稀缺植被区域,其中唯一记录的物种对应于Nolana Clivicola。根据上述情况,在1448个采样点的采样工作下,AI内部没有智利立法规定的编队。-Flora TRS Pampa Blanca 2025 PAG。149在AI中,仅检测到一种被鉴定为Nolana clivicola的分类群,这是一种特有灌木,仅分布在智利北部地区,安托法加斯塔和阿塔卡马地区。该分类群未在任何保护类别下登记,代表全国维管菌群的0.02%。值得一提的是,记录的是仅在两个采样点的隔离个体。环评研究区陆生动物区系,确定了3个[ 3 ]野生动物环境。其中,表面积最大的环境对应的是内陆沙漠,覆盖总研究面积的90.47%,而托科皮拉和沿海边界的沿海沙漠环境占比分别为8.18%和1.35%, 分别。在七次野生动物特征性活动中,共取得采样工作4197分。在这些物种中,确定了37种陆生动物,其中35种对应于本土物种,两种[ 2 ]为外来来源。在35种本土物种中,3种为特有种,共记录到3种爬行动物、28种鸟类和4种本土哺乳动物。呈现出最大丰富度的环境对应于沿海边境,共有24种,并以鸟类类为主(有记录的23种)。在内陆沙漠环境中,记录到13种,托科皮拉沿海沙漠环境是观察到的丰富度最低的地方,检测到9种。在本土物种总数中,有15个物种被列入智利野生物种分类条例,20个物种出现了一些奇点。关于分类物种,6个[ 6 ]属于最不受关注(LC)类别,1个[ 1 ]属于数据缺乏(DD)类别,6个[ 6 ]属于近危(NT),1个[ 1 ]属于脆弱(VU)类别,1个[ 1 ]属于濒危(EN)类别。在奇异物种中,鸟类类脱颖而出,占被视为奇异动物的物种的53.57%。关于丰度和密度,丰度最大的爬行动物是阿塔卡马奔跑者(M. atacamensis),在沿海环境中呈现出其最高的平均密度。同样,在同样的环境下,通过进行的人口普查观察到了大量的garuma鸥(L. modestus)。在托科皮拉的沿海沙漠环境中,较小的睡头鼠(M. maculirostris)的平均密度最高,而在哺乳动物纲中,橄榄腹鼠(A. olivaceo)的平均密度最高。在大型哺乳动物的案例中,culpeo fox(L. culpaeus)是在托科皮拉和内陆沙漠的沿海沙漠环境中通过相机陷阱识别出来的,而在这两种环境中都获得了狐狸的间接记录(足迹、粪便和骨骼遗骸)。没有记录到翼翅目的物种,也没有标本或两栖动物存在的合适条件。关于日间空中交通,调查的扇区记录了23个物种,其中12个呈现一些奇点。最常见的物种是红头秃鹫(C. aura),其余物种只集中在沿海环境中。使用禽类敏感性指数(ISA)确定了两个特别敏感的物种:garuma鸥(L. modestus)和小燕鸥(S. lorata)。需要注意的是,所有记录的物种(红头秃鹫除外)的特点是主要前往大海寻找食物。没有使用夜间空中过境方法的鸟类的记录。关于筑巢鸟类的探矿,确定了三个[ 3 ]种:garuma鸥(L. modestus)、小燕鸥(O. gracilis)和小燕鸥(S. lorata),此外还有一种未在物种层面上确定的燕鸥屠体的记录。通过积极寻找巢穴,在Mejillones海岸边缘附近发现了小燕鸥(S. lorata)活跃巢穴的存在,这与文献中的菌落记录相吻合。此外,在沙漠内部发现了Garuma Gull(L. Modestus)的非活动筑巢地点。通过不同的方法(横断面和相机陷阱),它们的活动在两个生殖期被排除。TRS潘帕布兰卡2025款PAG。150最后,关于海燕,在项目的研究区域附近没有发现适合这些物种筑巢的表面(盐壳和/或空洞),在项目区域仅记录到三个[ 3 ] Procellariiformes尸体,这将与有设施和相关照明的区域的坠落有关。多样性指数和物种积累曲线表明沿海边缘环境的中等多样性和托科皮拉沿海沙漠的低多样性,以及内部沙漠环境,这可以用沙漠环境中水和食物的低可用性来解释。物种积累曲线表明所有环境的采样覆盖率都很高。Human Environment The area of influence of human component is determined by the administrative boundaries of the towns of El Oasis and Baquedano,where the human groups closely to the project live。在Sierra Gorda公社,采矿是主要的经济驱动力,因为71.06%的居民在这个部门工作。由于流动人口和与就业机会相关的移民,这个行业造成了显着的人口波动。就影响区域而言,El Oasis小村庄充当了车辆的临时停靠点,尤其是公共交通和货运, 沿着5号公路行驶。这种循环导致了在服务站旁建立的小型社区的发展,作为休息点。关于Baquedano村,主要活动围绕采矿支持服务展开,遵循与社区背景类似的趋势。在El Oasis,服务站相关贸易盛行,尽管由于人口的流动性质及其作为该地区采矿业准入路线的功能,与该领土没有牢固的联系或根深蒂固的文化习俗。同样,Baquedano村的特点是零售企业,以及住宿和餐馆服务。此外,地方议会是一个重要的就业提供者,无论是在专业和技术以及贸易岗位上。经查明,在El Oasis村,除了有一个服务站外,附近没有任何教育、卫生或安全设施,最近的位于Baquedano西南约26公里处或Sierra Gorda东北约45公里处。关于El Oasis的出入道路,5号和25号路线脱颖而出,它们在服务站附近汇合,方便与城镇连接。此外,在Baquedano,Route 5 North与该地区的主要道路Salvador Allende Avenue相连。这些铺好并适合交通繁忙的道路将影响地区和当地其他城镇与西部的安托法加斯塔和东部的卡拉马城市连接起来。关于气候变化的可能影响,采矿作业中的干旱风险和人口发病率的增加与项目活动没有联系。ARClim平台中提到的与气温和降水增加有关的威胁预计不会对该项目在其运营的三年期间在该地区的安装产生重大影响。因此,得出的结论是,影响地区,特别是居住在El Oasis小村庄和Baquedano村的人类群体的社区,不会因气候变化或项目所采取的行动而经历其生活系统和习俗的重大变化。文化遗产陆地考古该项目考古基线考古调查结果在调查期间共产生1109项考古发现,加上在书目背景审查中确定的9项发现,使该地区总共呈现1118项发现。在这些发现中,雕刻事件、浓度和孤立的岩屑发现占了相当大的比例,而在历史发现中,有与附近硝石办公室相关的推车轨迹和历史垃圾的分散。根据上述,得出的结论是,该项目的影响区域在前西班牙时代曾有过以获取用于制作岩石工具的原材料为导向的职业,而在历史时期它是从硝石办公室到生产部门的中转区。TRS潘帕布兰卡2025款PAG。151需要注意的是,在调查期间,观察到了大量与热裂缝相关的岩屑事件。要提的是,并不是所有观察到的东西都是真正的人造的,因为有些地方有好的原料,但都是自然断裂的。最能说明这一点的是,当伪薄片被发现聚集在非常有限的空间中时,它们大多是初级性质的,具有足够的重新组装能力,没有丢失可能对假定的雕刻师有用的碎片,也没有带有任何修饰的薄片存在。比任何锤子都少。总之,地方没有还原链,一切都很有限,什么都不缺。对于大量的岩屑遗址,值得强调的是,这些广泛的沙漠潘帕斯,典型的阿塔卡马沙漠中级洼地,已被区域考古学概念化为边缘或节间空间,其人类活动的遗迹主要指沿海人口进入其岩屑采石场和矿物(Blanco et al 2010,Blanco 2015,Gallardo and Ballester 2010),或自Middle Formative(Berenguer 2004,Berenguer and Pimentel 2006,Blanco et al 2010,Blanco 2012)以来连接高地人口与沿海人口的商队过境(Berenguer 2004,Berenguer and Pimentel 2006,Blanco et al 2010,Blanco 2012)。古生物学在该项目的影响区域,有可能在称为海洋沉积物(低层序)的地质单元中证实了古生物物体(化石)的存在。除了这些发现,在Pampa Blanca区附近的一个峡谷中,还发现了石灰岩岩石,这些岩石是从Rencoret Strata单元运来的, 一个拥有众多古生物前因的单位。这些运输的石灰岩被发现重新沉积,目前包含在现代冲积层和崩积层单元中。根据地质和古生物前情,加上实地的观测和发现,确定了海洋沉积物的中至高古生物潜力和化石古生物类别。反过来,对于冲积层和崩积层,确定了中低古生物潜能值和易感类别,但上述峡谷除外,那里出现了来自Rencoret地层的区块。对于这一专属部门,确定了一个中等到高度的古生物潜力,以及一个相应的化石类别,遵循当前的CMN标准(2016年)。就风化岩而言,除了称为La Negra组、Quebrada Mala组、Cerro Cortina地层、Algorta地层、渐新世-下中新世冲积层、Baquedano砾石、下中新世-下中新世冲积层、古代冲积层和崩积层、现代冲积层和崩积层以及全新世冲积层和泻湖沉积层的单元外,所有这些都被确定为低到中电位和易受影响的古生物类别。最后,侵入单元Oficina Ercilla Batholith、Mejillones Gabro、Cerro Fortuna Dioritoides、Naguay á n Plutonic Complex、Los Dones Plutonic Complex、Hypabyssal Intrusives;Sierra Miranda-Cerro Camale ó n Rhyolites火山单元;以及人为单元Anthropic Deposit,由于其成因,被赋予低至零古生物潜能和无菌古生物类别。TRS潘帕布兰卡2025款PAG。152


 
17.1.2 RCA N °.202502101573于2025年批准的关于DIA“通过纳入新的废盐储存区修改Pampa Blanca采矿设施”的环境影响声明,允许新的废盐储存区(由三个3段组成)。下表显示了在环境过程中提交的信息必须相应满足的主要要求。表17-1。主要要求最后一个潘帕布兰卡项目批准阶段环境组件要求详情施工考古考古监测防止土方工程期间干扰项目场址区域内的考古发现。考古培训防止在土方工程期间干扰项目场址区域内的考古发现,并为及时发现不可预见的发现和保护上述遗产提供知识。所有阶段其他识别轻型和重型车辆、一般人员和设备的运输识别具有SQM标识的参与项目所有阶段的车辆和设备。社区本地共存、历史和发展,以防止对附近城镇的生活方式和习俗造成干扰,并防止可能的街头骚扰情况,以及项目劳动力造成的其他负面外部影响。社区更换和/或修理智利消防员在紧急情况下使用的用品更换和/或修理智利消防部门专门用于控制从施工阶段开始到项目关闭阶段结束期间发生的任何紧急情况的用品。此外,还建立了以下自愿环境承诺(CAV):表17-2。自愿环境承诺(CAV)阶段环境组成部分自愿环境承诺详细说明所有阶段雇用当地劳动力的社区优先雇用来自Sierra Gorda(Baquedano和Sierra Gorda镇)和/或Antofagasta地区的当地工人,在选择过程中考虑到性别平等和多样性。社区与Baquedano和El Oasis(Carmen Alto)社区的沟通机制向Baquedano和El Oasis(Carmen Alto)社区通报项目的主要工程、项目和活动。社区诉求投诉通道对项目各阶段群众的咨询、意见和投诉进行正式管理。运行和关闭水地下水质量监测验证没有从废盐储存段渗透到Sierra Gorda含水层TRS Pampa Blanca 2025 PAG。15317.2运营和关闭后要求和计划17.2.1废物处置要求和计划采矿作业期间产生两类废物。矿物和非矿物废物。1.矿产品废料采矿废料对应于沉积在Sernageomin 2授权区域的蒸发池中的废弃盐类。非矿物废料。内胆、管材、废金属等非危险工业废物,以及存放在授权场所的机油、电池等危险废物。17.2.2在环境授权中建立的监测和管理计划最后一个通过环境影响申报(DIA)系统提出的项目,称为“通过纳入新的废盐储存区修改潘帕布兰卡采矿设施”,通过RCA 202502 101397批准。下表显示了在项目表17-2的建设、运营和关闭期间对不同组成部分进行跟进的一些监测活动。主要是最后一个潘帕布兰卡项目批准阶段的要求环境组件要求详情施工考古考古监测防止土方工程期间干扰项目场址区域内的考古发现。考古培训防止在土方工程期间干扰项目场址区域内的考古发现,并为及时发现不可预见的发现和保护上述遗产提供知识。所有阶段其他识别轻型和重型车辆、一般人员和设备的运输识别具有SQM标识的参与项目所有阶段的车辆和设备。社区本地共存、历史与发展防止破坏附近城镇的生活方式和习俗,并防止可能出现的街头骚扰情况, 除该项目劳动力造成的其他负外部性外。社区更换和/或修理智利消防员在紧急情况下使用的用品更换和/或修理智利消防部门专门用于控制从施工阶段开始到项目关闭阶段结束期间发生的任何紧急情况的用品。此外,还建立了以下自愿环境承诺(CAV):TRS Pampa Blanca 2025 PAG。154表17-3。自愿环境承诺(CAV)阶段环境组成部分自愿环境承诺详细说明所有阶段雇用当地劳动力的社区优先雇用来自Sierra Gorda(Baquedano和Sierra Gorda镇)和/或Antofagasta地区的当地工人,在甄选过程中考虑到性别平等和多样性。社区与Baquedano和El Oasis(Carmen Alto)社区的沟通机制向Baquedano和El Oasis(Carmen Alto)社区通报项目的主要工程、项目和活动。社区诉求投诉通道对项目各阶段群众的咨询、意见和投诉进行正式管理。运营和关闭水地下水质量监测验证没有从废盐储存段渗透到Sierra Gorda含水层来源:自身阐述17.3环境和部门许可状态Pampa Blanca矿,如第1.1节所示到环境影响评估系统(SEIA)共4次。– Florence Solar Evaporation Plant,(环评,1999年)– New Pampa Blanca Salt Disposal Field(DIA,2009年)– Pampa Blanca矿区(环评,2010年)– Pampa Blanca扩建(环评,2013年)–通过纳入新的废弃盐储存区(环评,2025年)修改Pampa Blanca采矿作业目前,正在准备Pampa Blanca海水泵送系统项目的环境评估,其中包括矿区和未来作业的海水泵送系统。所有这些研究都得到了相应的环境主管部门的批准,然而,执行了环评弗洛伦西亚太阳能蒸发厂。根据现行立法、《一般环境法》和批准《采矿安全条例》的2002年第132号最高法令,运营采矿项目需要一系列许可证。这些是部门许可,可以向SERNAGEOMIN或其他具有部门环境许可权限的服务进行备案。下表中提到了正在执行的项目的RCA申请的部门许可。表17-4部门许可证定义了RCA。表17-4。部门环境许可。TRS潘帕布兰卡2025款PAG。155项目RCA许可N °许可名称太阳能蒸发厂Florence 021/1999138第N ° 2402509618/2025号决议批准私营废水系统项目;第N ° 1303/2025号决议解决针对第N ° 2502181400号决议“私营废水系统项目”的复议上诉;第N ° 2502146957/2025号决议批准PTAS中和厂的运营。142第N ° 2502273883/2025号决议授权危险废物储存场所;第N ° 2302677107/2025号决议授权危险废物储存场所。这些许可证出现在环境影响评估系统的旧法规中,该法规已被2013年第40号法令废除。此外,Pampa Blanca拥有Sernageomin通过以下方式授权的Exploitation Method and Benefit:• Resolution Ex 1499/2000。对Calichera采石场开发的修改。另一方面,国家地质和矿务局(SERNAGEOMIN)发布的与该场址相关的豁免决议对应于:•授权Pampa Blanca关闭计划的豁免决议N ° 821/2009。•授权临时关闭潘帕布兰卡的第368/2010号决议获得豁免。•豁免第N ° 1346/2012号决议,授权延长临时关闭,潘帕布兰卡关闭计划。•批准潘帕布兰卡采矿厂关闭计划项目(增值)的第1424/2015号决议获得豁免。•豁免第N ° 2873/2017号决议,该决议有利地限定了矿山“Pampa Blanca”关闭计划的增值项目累积到2017年的担保。•豁免批准Pampa Blanca矿项目临时关闭计划的第N ° 802/2019号决议。•批准扩大潘帕布兰卡矿山临时关闭计划的第1304/2020号决议获得豁免。•批准关闭的豁免决议N ° 0292/2023,Pampa Blanca关闭计划。•豁免第N ° 0224/2024号决议对废物处置的授权-将废物储存为废物倾倒场”•豁免第N ° 942/2025号决议对Pampa Blanca选矿厂的批准。17.4社会和社区17.4.1与个人或当地团体的计划、谈判或协议TRS Pampa Blanca 2025 PAG。156


 
该公司拥有一支专业的社区关系团队,根据专注于建立信任、协作和长期领土发展的方法,与位于其运营附近的地方进行持续和协调的工作。在这一框架内,确定了五个战略行动支柱,以指导公司的共享社会价值计划:i)沙漠农业;ii)健康;iii)企业家精神和当地供应商;iv)文化和历史硝酸盐遗产;v)教育和包容。在潘帕布兰卡行动的影响范围内,社区参与活动主要通过以下举措与Sierra Gorda区的Baquedano镇开展:–通过对Chacabuco公司的持续支持,保护和加强硝石遗产,旨在保护、传播和激活被公认为具有区域和国家意义的遗产地标的前Chacabuco硝酸盐办事处。–通过与企业家基金会合作实施的AntofaEduca计划加强教育质量。这一举措旨在促进当地公立学校采用受芬兰教育模式启发的最佳做法,特别是在Caracoles教育综合大楼G-101和Baquedano车站学校G-130。–支持公共和社区决策中的领土情报,通过实施领土情报系统(SIT),由北方天主教大学北方公共政策研究所领导。这一举措提供了战略信息和领土分析,以支持改进的地方规划。–就晴雨表调查开展合作,这是一项在区域一级和安托法加斯塔市各市应用的年度公民咨询工具,旨在捕捉公众的看法、优先事项和领土差距。这一举措是由负责SIT的同一机构制定的,旨在加强诊断、分析和行动之间的一致性。–与安托法加斯塔大学临床医院合作实施的神经发散性儿童诊断和护理计划。该方案包括对30名儿童进行专门评估和获得精神病治疗和职业治疗的机会,为儿童心理健康领域的及时和全面护理做出贡献。– Saltpeter路线的开发,与Mar í a Elena市、Sierra Gorda市以及其他公私利益相关者一起,旨在促进该地区的旅游业发展。17.4.2与Sierra Gorda市OMIL建立了沟通,每周通过电子邮件发送职位空缺。17.4.3社会风险矩阵社会风险矩阵对SQM的活动可能对其运营、声誉、监管合规和对可持续发展的承诺产生的各种影响进行了分类。这样,影响按发生概率分类,从不可能到几乎确定,其后果从可以忽略到非常高。TRS潘帕布兰卡2025款PAG。157根据这种分类的结果,可以进行分析,以区分所分析的地点、相关的风险水平(低、中、显着或极端)、优先级(低、中或高)以及与之相关的操作。这使得可以明确关注可能受到影响的部门和领域,并根据风险矩阵提供的结果,监测和建立方案,以确定威胁和改进机会。虽然由于公司的保密分析,无法提供矩阵上的详细信息,但可以注意到,没有发现被归类为极端的风险。17.5矿山关闭17.5.1根据第20,551号法律Res.ex规定的关闭、修复和复垦计划。第0040/2020号和Res.ex。第1092/2020号,更新潘帕布兰卡屠宰关闭计划,由Res.ex.批准。292/2023.在项目废弃阶段,将遵守国家地质和矿务局(SNGM)通过第N ° 292/2023号决议批准的关闭计划更新“Faena Minera Pampa Blanca”中确立的措施。将实施的措施包括拆除金属结构、设备、材料、面板和电气系统、设施断电、关闭通道和安装标牌。有关停止经营场地的活动将完全遵守在关闭场地之日有效的法律规定进行,特别是有关保护工人和环境的活动。•关闭措施预计2044年将彻底关闭该行动, 根据Res Exe。N ° 1.424/2015。与这一部分临时关闭有关的活动是清除剩余爆炸物、关闭爆炸物储存区、封路和安装标牌。停工期间每月都会进行目测,并在相关自然事件发生后进行一次检查,如地震、暴雨或其他。上一份关闭矿山计划报告包括环境资格决议(RCA)和部门决议文件中包含的所有关闭措施和行动,包括第1424/2015号决议批准的关闭计划。封闭措施和行动列示如下,见表17-5。表17-5。Pampa Blanca矿山剩余装置关闭计划的关闭措施和行动。装置封闭措施说明喷泉矿(Caliche)超载沉积和浸出堆料作为扇区回填已开采。存放在以前用于矿山作业的第0292/2023号RCA278/2010号决议的场地上的架空爆炸物清除残留物和关闭火药库。触发器储物围挡应关闭,引爆索和第0292/2023号决议RCA278/2010号决议封路封闭护墙,主要入口超载。栏杆将有一个容积为5.25立方米的三角形断面决议第0292/2023号RCA278/2010标牌安装标牌指示禁止收入决议第0292/2023号RCA278/2010号RCA278/2010 TRS Pampa Blanca 2025 PAG。158浸出堆的浸出边坡稳定一旦封闭计划开始,您的风险将被评估和分析,采取措施确保COM I中的第0292/2023RCA278/2010号稳定决议保护和/或移除结构、池塘、面板、设备和电气系统。它将被拆除(如有必要)在COM的第0292/2023号决议RCA278/2010号干燥池中它们将保持满,直到它们通过蒸发干燥。第0292/2023号RCA278/2010号决议拆除管道和泵消除水电灌溉系统和解决方案管理第0292/2023号RCA278/2010号决议拆除与变电站连接的电力线并使其断电将被拆除第0292/2023号RCA278/2010号决议关闭道路,在主要入口有超载的栏杆栏杆将有一个容积为5.25立方米的三角形断面第0292/2023号RCA278/2010号决议安装标牌,标明禁止收入第0292/2023号RCA278/2010号决议工业供水拆除结构、面板、系统电气和设备。拆除构筑物第0292/2023号决议拆除管道和泵拆除构筑物第0292/2023号决议拆除和断电电力线路连接电气变电站第0292/2023号决议封路封闭护墙主入口超载护墙将有5.25立方米三角形断面第0292/2023号决议标牌安装标牌,表明禁止收入第0292/2023号决议碘化物厂保障和/或拆除构筑物、池塘、面板、设备、变电站,和电气系统将被拆除的结构第0292/2023号决议装置的断电与变电站的连接第0292/2023号电气决议保障和拆除建筑物将被拆除的结构第0292/2023号决议主入口超载的道路封闭护墙护墙将有一个容积为5.25立方米的三角形断面第0292/2023号决议标牌安装Se ñ al é ticas指示禁止收入第0292/2023号决议蒸发池金属结构、管道、泵、电气系统的拆除,和设备拆除构筑物(如有必要)第0292/2023号决议装置去电与变电站的连接电气第0292/2023号决议封路封闭护墙与主入口的护墙将有一个容积为5.25立方米的三角形断面第0292/2023号决议标牌安装标牌,标明禁止收入第0292/2023号决议TRS Pampa Blanca 2025 PAG。159支持设施系统退役电气和结构与变电站的连接第0292/2023号决议为设施断电与变电站的连接电气第0292/2023号决议危险废物清除和最终处置废物清除来自Patio的危险授权最终条款第0292/2023号决议非危险废物清除来自Patio的非危险授权最终条款第0292/2023号决议来源:Res Exe。N ° 0292/2023没有与部门决议或环境资格决议(RCA)相关的关闭后承诺。1.风险分析SERNAGEOMIN, 考虑到第20,551号法律和第41/2012号最高法令,请业主进行风险评估,考虑在采矿场地使用寿命结束时关闭对人的健康和环境的影响。这一风险评估是在考虑目前有效的矿山关闭风险评估方法的情况下进行的。评估结果表明,与潘帕布兰卡其余设施相关的风险如下:表17-6。潘帕布兰卡主要设施风险评估场地登记风险等级意义MR1 MR1。P对人在矿坑边坡失效,因地震低点超出禁区不显著MR1.MA对环境因矿坑边坡断层,因地震低点超出禁区不显著MR2 MR2。P to人用于从矿山低向环境渗透的DAR不显著MR2.MA通过从矿山低向环境渗透的DAR不显著浸出堆DE1 DE1。P人因雨致地下水污染低Non-Significan t DE1.M A到环境因雨致地下水污染低Non-Significan t DE2 DE2。洪水致地下水污染P人LOW Non-Significan t DE2.M A致环境因洪水致地下水污染LOW Non-Significan t DE3 DE3。P人因风向大气排放微粒低non-significant t DE3.M A向环境排放微粒因风向大气排放低non-significant t DE4 DE4。P人因暴雨对地表水污染低无意义t DE4.M A对环境因暴雨对地表水污染低无意义t TRS Pampa Blanca 2025 PAG。160


 
注册风险等级意义DE5 DE5。P人因地表水泛滥低无意义DE5.M A到环境因地表水泛滥低无意义DE6 DE6。P人因暴雨或延时融雪水侵蚀低对环境无明显DE6.M A因雨水或强延时融雪水侵蚀低无明显DE7 DE7。P因地震被山体滑坡的人。低非显著DE7.M A到环境因地震滑坡。低非显着太阳能蒸发池DE3 DE3。P人对因风低而悬浮的颗粒物不显著DE3.M A对环境对因风低而悬浮的颗粒物不显著DE6 DE6。P人因边坡破坏因水侵蚀低不显著DE6.M A到环境因边坡破坏因水侵蚀低不显著DE7 DE7。P人因边坡破坏因地震低不显著登记风险等级意义DE7.MA对环境因边坡破坏因地震低不显著弃盐DE3 DE3。P人对因风低而悬浮的颗粒物不显著DE3.MA对环境对因风低而悬浮的颗粒物不显著DE6 DE6。P人因边坡破坏因水侵蚀低不显著DE6.MA对环境因边坡破坏因水侵蚀低不显著DE7 DE7。P人因边坡破坏因地震低点不显著DE7.MA对环境因边坡破坏因地震低点不显著TRS Pampa Blanca 2025 PAG。16117.5.2关闭费用Pampa Blanca矿场关闭的总金额,考虑到RES Exe批准的取消关闭计划增值中的关闭细节。N ° 0292/2023,和值42.841 UF:表17-7。Pampa Blanca矿场关闭成本项目总额(UF)直接关闭总成本21,555间接成本和工程2,155或有事项(20% CD + CI)5,928小计29,638 IVA(19%)5,361关闭计划金额(UF)35,269资料来源:RES ECE批准的关闭计划的估值。N ° 0292/2023,表17-8。Pampa Blanca Article Total(UF)的关闭后成本使他们直接损失4,628间接成本和管理463或有事项1,273增值税(19%)1,209对关闭后金额的贡献(UF)7,572根据Res Exe计算Pampa Blanca矿使用寿命的结果。N ° 0292/2023是30年。保障的构成将按以下方式进行。运营结束时间为2035年,关闭时间为2036年至2040年。TRS潘帕布兰卡2025款PAG。162表17-9。宪法保障潘帕布兰卡矿山关闭计划。年度担保UF716.626818.646920.72 21022.8551125.0461227.2971329.6081431.98 21534.4191634.9 241735.4 381835.9591936.4872036.5722136.6592238.1202338.68 12439.2492539.82640.4122741.0062841.6082942.2203042.8413142.8413242.8413342.84135413542.841资料来源:RES Exe批准的de closure plan Valualization。编号° 0292/2023。TRS潘帕布兰卡2025款PAG。16318资本和运营成本本节包含与项目的资本和运营成本估算相关的前瞻性信息。可能导致实际结果与前瞻性信息中的结论、估计、设计、预测或预测存在重大差异的重大因素包括与本节所述的一项或多项重大因素或假设的任何重大差异,包括现行经济条件继续存在,使得单位成本与按固定(或实际)美元计算的估计值、预计的劳动力和设备生产率水平相同,以及意外情况足以说明重大因素或假设的变化。潘帕布兰卡矿址生产碘盐和硝酸盐的主要设施如下:– Caliche采矿–堆浸–碘化物和碘厂–太阳能蒸发池–水资源提供–电力分配系统–一般设施18.1。资本成本主要设施已开发,有必要产生重新开放这一设施。这些设施用于碘盐和硝酸盐的生产作业,包括caliche提取、浸出、水资源、碘化物生产工厂、太阳能蒸发池,以及其他小型设施。办公和服务包括(其中包括)以下内容:公共区域、供应区、发电站、 实验室和仓库。2025年投入的资本成本约为MUSD 101,685,按主要类别划分的相对支出如表18-1所示。表18-1。Pampa Blanca运营资本支出汇总2025年资本成本%总MM美元类别100% 101,685 Caliche Mining(*)26% 26,942堆浸16% 16,298碘和碘厂37% 37,738太阳能蒸发池17% 17,535水资源提供1% 722海水2% 2,45018.1.1 Caliche Mining SQM在智利伊基克附近的Nueva Victoria生产富含碘化物的盐类和从Pampa Blanca矿山提取的矿物caliche。对该矿的资本投资主要用于建筑物和支持设施以及相关设备。包括卡车、前装载机、推土机、钻头、推土机、轮式推土机和平地机在内的设备,具有使用寿命成品。18.1.2堆浸TRS Pampa Blanca 2025 PAG。164


 
浸出堆由平台(通常为90x500m,具有周长护墙和底部防水的HDPE膜)组成,这些平台装载着必要的caliche,并用不同的溶液(水、混合物或浸出堆的中间溶液)灌溉。矿山运营中心(COM)是一组浸出堆,具有盐水积蓄池、再循环“弱盐水”池、工业水塘及其各自的抽水系统。主要资本支出形式为管道、电气设施和设备、泵、池塘和支撑设备。18.1.3碘化物和碘化物工厂碘化物工厂的主要投资在罐体和醒酒器设备、泵和管道、设备和电气设施、建筑物和水井。18.1.4太阳能蒸发池这些位于Sur Viejo工业区的池塘,接收在获得碘化物过程中产生的“可弱卤水”馏分(BF),每个馏分运输约20公里。18.1.5水资源的首要投资是管道、水泵、建筑物和水井。18.2.未来投资MUSD 69,该倡议旨在重新开放现有矿区,在Pampa Blanca矿场生产富含硝酸盐的碘化物、碘和盐。长期额外资本估计为MUSD 69。营业成本列示于表18-2:表18-2投资投资估算(MUSD)20262027202820292030 2031-2035 2036-2041总计Pampa Blanca 3455525226918.3。运营成本生产碘和硝酸盐的主要成本涉及以下组成部分:碘和硝酸盐的常见生产成本,如采矿、浸出和海水,工厂碘的生产成本,以及在Coya Sur场地加工前的硝酸盐生产成本。Coya Sur工厂的硝酸盐生产成本和额外的太阳能盐加工费用加在一起。除上述费用外,已加上折旧及其他。估计的总单位运营成本列于表18-3。这些是基于上述每个细分类别的历史单位运营成本。从长期来看,预计总运营成本将在三个主要类别(普通;碘生产和运输;硝酸盐生产和运输)之间几乎平均分摊。TRS潘帕布兰卡2025款PAG。165表18-3 Pampa Blanca营业成本成本类别估计单位成本共同(采矿/浸出/水)6.44美元/吨caliche碘生产(包括运输到港口)33,601美元/吨硝酸碘生产85美元/吨硝酸盐运输到Coya Sur 14美元/吨硝酸盐19经济分析本节包含与项目经济分析相关的前瞻性信息。可能导致实际结果与前瞻性信息中的结论、估计、设计、预测或预测存在重大差异的重大因素包括与本小节中提出的一个或多个重大因素或假设的任何重大差异,包括估计资本和运营成本、项目时间表和批准时间、资金的可用性、预计的商品市场和价格。19.1主要假设经济分析中使用的资本和运营成本在第18节中进行了描述。用于碘和硝酸盐的销售价格如第16节所述。现金流使用了5.3%的贴现率,被认为是合理的,考虑了资金成本和项目风险。28%的所得税率是体贴的,本节显示的所有成本、价格和价值均以2025美元为单位。19.2生产和销售2026年至2040年期间碘和硝酸盐的估计产量见表19-1。19.3价格和收入根据第16节介绍的市场研究,碘的销售采用平均销售价格42.0美元/公斤(42,000美元/吨)。这个价格评估为离岸价港口。作为一家垂直整合的公司,采矿业务的硝酸盐生产被引导到Coya Sur的工厂,用于生产特种肥料产品。化肥用硝酸盐盐估算销售价格为323美元/吨,基于Coya Sur销售的化肥成品平均销售价格为820美元/吨, 减去Coya Sur的生产成本497美元/吨。这些价格以及来自碘和硝酸盐销售的收入流如表19-2所示。TRS潘帕布兰卡2025款PAG。166表19-1。Pampa Blanca长期矿山生产材料运动单位202620272028202920302031-20352036-2041 Pampa Blanca部门总矿石吨位MT5.55.55.55.55.55.5 28.03 2.08 7.0碘(I2)原位ppm 440427413407400390390399平均品位硝酸盐盐(NaNO3)% 6.5% 6.5% 6.0% 6.0% 5.5% 5.1% 5.1% 5.4%总矿石开采(CALICHE)MT5.55.55.55.55.55.5 28.03 2.08 7.0碘(I2)原位kt 2.4 2.4 2.3 2.2 2.2 10.71 2.5 34.7产量过程生产颗粒碘% 72.0% 72.0% 72.0% 72.0%71.0% 70.0% 61.0% 61.0% 64.5%颗粒碘生产kt 1.7 1.7 1.6 1.6 1.56.57.62 2.4硝酸盐原位kt 35835833033033031,4001,6284,706产率工艺生产硝酸盐盐% 27.0% 26.0% 26.0% 25.0% 25.0% 23.0% 23.0% 23.8%肥料用硝酸盐kt 97938683763183701,121 TRS Pampa Blanca 2025 PAG。167表19-2。潘帕布兰卡碘和硝酸盐价格和收入价格单位202620272028202920302031-20352036-2041总碘美元/吨42,00042,00042,00042,00042,00042,00042,00042,00042,00042,00042,00042,00042,000硝酸盐交付给Coya Sur美元/吨323323323323323323323323323323323收入单位202620272028202920302031-20352036-2041总碘MUSD 7371696765275320939硝酸盐交付给Coya Sur MUSD 3130282724103119362总收入MUSD 104 1019693893784391,301 TRS Pampa Blanca 2025 PAG。168


 
19.4运营成本与潘帕布兰卡生产碘和硝酸盐相关的运营成本如前面第18节所述,发生在以下主要领域:•共同•碘生产•硝酸盐生产有关运营成本的更多详细信息,请参见第18.3节。每一项单位业务的单位成本见表19-3。TRS潘帕布兰卡2025款PAG。169表19-3。潘帕布兰卡运营成本。成本单位202620272028202920302031-20352036-2041共同采矿MUSD总数1818181892106290浸出不含水MUSD 66666323699水不含能源MUSD 11111111115462169总采矿成本MUSD 353535353535177205559碘生产解决方案成本MUSD 3434343434171198538碘厂MUSD 1110101094047137碘厂MUSD 66655222676碘生产总量成本MUSD 5050494949234271751总碘生产成本美元/公斤碘28,81929,43330,22230,85431,61335,66935,54533,601硝酸盐生产溶液成本MUSD 222216721池和制剂MUSD 54444151753收获生产MUSD 222216720其他(G & A)MUSD ———————— 1运输到Coya Sur MUSD 111114515总硝酸盐生产成本MUSD 1099883137111总硝酸盐生产成本US $/t硝酸盐99999999999999999999闭合吸积US $ M 0总运营成本MUSD 6059585756265307862 TRS Pampa Blanca 2025 PAG。17019.5资本支出潘帕布兰卡项目的大部分主要资本支出已经完成。最重要的拟议未来资本支出是用于支持拟议TEA扩建项目的海水管道。这项投资预计在2026-2041年需要MUSD 69。有关Pampa Blanca项目资本支出的更多详细信息,请参见第18.1节和第18.2节。长期(2026年至2041年)的资本支出估计数列于表18-2。19.6现金流预测Pampa Blanca项目的现金流如表19-4所示。以下是现金流的主要结果摘要:–总收入:估计为MUSD 1,301,包括碘和硝酸盐的销售–总营业成本:估计为MUSD 862。– EBITDA:估计为439百万美元。–税前毛收入税率为28% –资本支出估计为MUSD 69。–营运资金净变动基于两个月的EBITDA。–采用5.3%的贴现率确定NPV。QP认为这是合理考虑资金成本和项目风险的本次TRS申请的合理贴现率。–税后现金流:现金流的计算方法是从总收入中减去所有运营成本、税收、资本成本、利息支付和关闭成本。–净现值:以5.3%的贴现率估算税后NPV为MUSD 202。QP认为成本估算的准确性和偶然性完全在预可行性研究(PFS)标准之内,并且足以进行支持潘帕布兰卡矿产储量估算的经济分析。TRS潘帕布兰卡2025款PAG。171表19-4。估计净现值(NPV)本期收入单位202620272028202920302031-20352036-2041总收入MUSD 1041019693893784391,301成本总采矿成本MUSD 353535353535177205559碘生产总成本MUSD 5050494949234271751硝酸盐生产总成本MUSD 1099883137111封接增量MUSD —————— 22总运营成本MUSD 6059585756265307862 EBITDA MUSD 4542393633113132439折旧MUSD 23454253275税前毛收入MUSD 433935312988100364税项28% 121110982528102营业收入MUSD 31282523216372262加回折旧MUSD 23454253275税后净收入MUSD 333129272588104337总资本支出MUSD 34555252269关闭成本MUSD 000000022营运资金MUSD 00-1 0-1-2-1(4)税前现金流MUSD 423934322990109372税后现金流MUSD 30282423216581270税前NPV MUSD 279税后NPV MUSD 202贴现率MUSD 5.3% TRS Pampa Blanca 2025 PAG。172


 
19.7敏感性分析通过自主变动商品价格(碘、硝酸盐)、运营成本、资金成本进行敏感性分析。灵敏度分析结果如图19-1所示,显示了每个关键指标的相对灵敏度。图19-1。灵敏度分析%基准参数变异% V ar ia tio n from m b as e n p p p p p p p p p p p p p p p p p p p p p p p p p p p p p p p p p p p p p p p p p p p p p p p p p p p p p p p p p p p p p p p p p p p p p p p p p p p p p p p p p p p p p p p p p p p p p p p p p p p p p p p p p p p p p p p p p p p p p p p p p p p p p p p p p p p p p p p p p对于一个成熟、成熟的项目,其大部分基础设施已经到位,并且在本研究讨论的LOM期间目前没有计划的显着大型项目,这是可以预期的。碘和硝酸盐价格对NPV的影响相似,硝酸盐价格的影响略大。20个毗邻物业该公司的矿床铺设在Pampa Blanca矿址的平坦土地或“潘帕斯”上,设施覆盖的矿区面积为51,201公顷。Pampa Blanca矿区面积约为104.41平方公里(10,441公顷)。Pampa Blanca矿山属性对应的远景矿床(见图20-1、图20-2。)如下:• Celia • Condell • Paulo • Miedo • Lenka • Carbonato • Colina TRS Pampa Blanca 2025 PAG。173 • Chacabuco • Copo • Condell • Aurelia • Paulo IV • Estaca Boliviana • Celia在Sierra Gorda区勘探的所有区域中,已勘探以下区域:• Pampa Blanca • Blanco Encalada • Baquedano • QB。San Cristobal • Eugenia(ex Olympia)• Ampliaci ó n Carbonato勘探计划结果表明,这些前景反映出含有硝酸盐和碘的矿化趋势。另一方面,勘探工作的重点是卡利切下方可能的金属矿化。该地区具有显著的金属矿化潜力,尤其是铜和金。勘探产生的发现,在某些情况下,可能会导致开发、出售发现,并在未来产生特许权使用费。在此框架内,2013年,我们记录了向Antofagasta Minerals(铜矿开采)出售Antucoya项目的特许权使用费。在属于SQM-Pampa Blanca的边界内,如图20-2.所示,说明项目附近还有其他物业被他人开采,并有部分采矿权。总共有三个采矿地段,其中包括:1。Algorta Norte S.A.是ACF Minera S.A.和丰田通商的合资企业:• Surface 2。Antofagasta Minerals;•地表•伦科雷特矿山•地表TRS Pampa Blanca 2025 PAG。174图20-1。Pampa Blanca毗邻物业TRS Pampa Blanca 2025 PAG。175图20-2。与该项目相邻的、由他人利用的其他物业TRS Pampa Blanca 2025 PAG。176


 
21其他相关数据和信息QP未知有任何其他相关数据或信息需在本TRS中披露。22解释和结论本报告所做的工作证明,矿山、堆浸设施以及碘和硝酸盐作业与技术上可行和经济上可行的项目相对应。最合适的工艺路线被确定为现有工厂的选定单元操作,否则这是行业的典型。硝酸盐和碘工艺目前的需求,如动力、水、人工、供应等,由于这是一个成熟的操作,多年的生产得到了目前项目基础设施的支持。因此,有价值的硝酸盐和碘种类的性能信息由大量历史生产数据组成,这些数据对于预测加工厂的冶金回收率很有用。与此同时,冶金测试旨在估计不同的caliche矿石对浸出的响应。Mrs. Marco Fazzi QP of Reserves,concluded that the work done in preparing this technical report includes sufficient details and information to declare the mineral reserves。关于资源处理过程,负责的QP,Jes ú s Casas de Prada的结论是,已经使用了适当的工作实践和设备、设计方法和加工设备选择标准。此外,公司开发了新工艺,持续、系统地优化了运营。22.1结果地质和矿产资源1。潘帕布兰卡地质团队对矿化控制有清晰的认识,地质和矿床相关知识已被适当地用于开发和指导勘探、建模和估算过程。2.矿产资源估算的采样方法、样品制备、分析和安全性均可接受。采集的样本数据充分反映了矿床的尺寸、矿化的真实宽度以及矿床的风格。采样在碘和硝酸盐等级中具有代表性。3.平均矿产资源浓度高于3.0美元/吨的边界效益,反映出潜在开采在经济上是可行的。冶金和矿物加工根据Jes ú s Casas de Prada,负责冶金和资源处理的QP:1。有一个适当记录的覆盖系统验证计划,以限制浸出过程中的渗透。该文件根据环境合规标准建立了安装和检漏程序。2.迄今为止进行的冶金测试工作足以为caliche资源建立适当的加工路线。冶金试验结果表明,回收率取决于盐基含量,另一方面,这一点的最大化与已研究的浸渍周期相关联,根据分类物理性质建立灌溉规模。所得数据适用于估算矿产资源回收率的目的。3.根据年度、短期和长期生产计划,根据采矿计划对不同类型的待开采材料进行产量估算,根据其物理和化学特性分类,获得被认为对资源相当充足的回收率预测。–试剂预测和投药基于分析过程,确定矿石品位、有价值元素含量和杂质含量,以确保系统的处理要求有效。这些被转化为消费率因素,被成熟地研究。TRS潘帕布兰卡2025款PAG。177 –由于获得水可能受到不同的自然和人为因素的影响,使用海水是未来或当前运营的可行替代方案。然而,这可能会增加运营成本,导致额外的维护天数。–在操作过程中,对输入系统的杂质含量以及母液中的浓度进行监测,以便最终检测出任何可能影响处理方法及其产品特性的情况。22.2风险地质和矿产资源•随着采矿进入新区域,如Pampa Blanca Sector 5,生产、稀释和回收因素可能会根据地质、地质冶金和运营因素发生变化。这些因素和采矿成本应按部门进行评估。冶金和矿物加工•目前定义的工艺无法产生所需的预期数量和/或质量的风险。然而,已经对处理过的材料进行了详尽的表征测试,此外,在工艺的各个阶段, 控制措施到位,可以在一定范围内管理成功的操作。•气象事件或当地气候条件变化的风险,这可能会导致由于加工厂处理过的资源的可用性较低而导致产量下降。•自然资源中的杂质程度随着时间的推移可能会比模型预测的增加更多,从而可能导致某些产品标准不符合的风险。因此,可能有必要纳入其他工艺阶段,随着先前工程研究的发展,以符合标准。22.3重大机遇地质和矿产资源存在很大机会,不仅在较小的50x50m和高达200x200m的钻孔网格的情况下,使用区块模型方法提高资源估算的简单性和可重复性,而且对于较大的钻孔网格也可以避免通过钻孔间距将资源模型和数据库分开,使资源模型的估算和管理达到行业标准。冶金和矿物加工1。改善堆坡灌溉条件,提高碘、硝酸盐回收率。2.使用弃置物中可用的粘土材料(低渗透性)作为土壤覆盖物进行渗透管理。23建议23.1地质和矿产资源–继续使用经认证的标准进行QAQC计划,以确保SQM Caliche Yodo实验室化学分析中的精度、准确性和污染控制,目标是根据行业最佳实践拥有一个可审计的数据库。–将资源估计的区块模型方法扩展到更大的钻孔网格,以避免通过钻孔间距将资源模型和数据库分开。–与外部公司对整个资源估算过程进行审计,即对钻井数据库进行专家评审、资源估算、储量评估TRS Pampa Blanca 2025 PAG。17823.2冶金和矿物加工–关于灌溉,应该审查允许有效利用水的替代方案,考虑到灌溉堆的横向区域以增加碘和硝酸盐的回收。–一个相关的方面是在工艺中加入海水,考虑到目前的缺水情况,这一决定受到重视,最终是对项目的贡献,但是,应该研究加工因素的影响,例如来自这个来源的杂质。–宜进行测试,以确定控制堆内水行为的水文地质参数。审查矿床的特性,它在堆的底部充当粘合剂的保护剂,目前是一种称为“chusca”的精细材料,可以用分类颗粒材料代替,有利于溶液的渗透性和节水。–通过堆浸模拟评估可浸出物被认为很重要,这允许构建一个caliche浸出的概念模型,以期对抛石进行二次处理,以提高整体回收率。–致力于生成代表堆浸出、颗粒尺寸减小(ROM与可怕的粒度)的模型,因此,整个堆和不同物种在不同的硝酸碘萃取率下同时溶解的模型,是有贡献的,也是相关的。–关于生成材料使用选项,建议对矿山属性边界内的可用粘土进行详细的岩土工程表征,以评估现场是否有足够的粘土材料用作浸出垫下的低渗透土壤衬垫床。–环境问题包括渗滤液或酸水管理、大气排放管理、尾矿堆管理和渗滤液抛渣。上述所有建议均在申报的CAPEX/OPEX范围内考虑,并不意味着执行这些建议的额外成本。TRS潘帕布兰卡2025款PAG。17924参考资料• Chong,G.,Gajardo,A.,Hartley,A.,Moreno,T. 2007。工业Minerals和岩石。In Moreno,T. & Gibbons,W.(eds)the Geology of Chile 7,201-214 • Ericksen,G.E. 1981。智利硝酸盐矿床的地质和成因。美国地质调查局专业论文1188-b. • Fiesta,B. 1966。El origen del salitre de Chile。Sociedad Espa ñ ola de Historia Natural Bolet í n,Secci ó n Geol ó gica 64(1),47-56。• Mueller,G. 1960。北智利硝酸盐矿床形成理论通过((毛细管浓度))。国际地质大会,21日,哥本哈根1960,报告1,76-86。• Pueyo,J.J.;Chong,G.;Vega,M. 1998。Mineralog í a y evoluci ó n de las salmueras madres en el yacimiento de nitratos Pedro de Valdivia,安托法加斯塔,智利。Revista Geol ó gica de Chile,Vol.25,No. 1,p.3-15。• Reich,M.,Snyder,G.T.,Alvarez,F.,P é rez,A.,Palacios,C.,Vargas,G.,Cameron,E.M., Muramatsu,Y.,Fehn,U. 2013。在干旱地区使用碘来限制表生流体来源:来自Chuquicamata氧化毯的见解。经济地质108,163-171。• Reich,M.,Bao,H. 2018。阿塔卡马沙漠的硝酸盐沉积物:长期超干旱的标志。Elements,Vol.14,251 – 256 • Kay,S.M.;Coira,B.L. 2009。中安第斯高原–普纳高原下俯冲带变浅变陡、大陆岩石圈流失、岩浆作用和地壳流动。美国地质学会回忆录204,第229 – 259页。• Schildgen,T.F.;Hoke,G.D. 2018。安第斯山脉中部的地形演变。Elements,Vol.14,p.231 – 236。• P é rez-Fodich,A.;Reich,M.;á lvarez,J.P.;et al. 2014。气候变化和构造隆起引发了阿塔卡马沙漠巨大的硝酸盐矿床的形成。Geology,Vol.42,No. 3,p.251 – 254。• Vargas,G.;Rutllant,J.;Ortlieb,L. 2006。智利北部沿海全新世沿海隆起和海啸记录。第四纪科学评论,第25卷,第2597 – 2609页。• Garreaud,R.D.;Molina,A.;Farias,M. 2010。安第斯隆起、海洋降温和阿塔卡马过度干旱:气候建模视角。Earth and Planetary Science Letters,Vol.292,p.39 – 50。• Nishizumi,K.;Caffee,M.W.;Finkel,R.C.;Brimhall,G.;Mote,T. 1998。智利北部阿塔卡马沙漠表面的宇宙成因暴露年龄。Geology,Vol.26,p.243 – 246。• Hartley,A.J.;Chong,G. 2002。阿塔卡马沙漠晚上新世时代:对南美洲西部荒漠化的影响。Geology,Vol.30,No. 1,p. 43 – 46。• Hartley,A.J.;Chong,G.;Houston,J.;Mather,A.E. 2005。3000万年气候稳定:来自智利北部阿塔卡马沙漠的证据。地质学会学报,第162卷,第421 – 424页。• Marinovic,N.;Smoje,I.;Maksaev,v. 1995。Hoja Pampa Uni ó n,Regi ó n de Antofagasta。Servicio Nacional de Geolog í a y Miner í a,Carta Geol ó gica de Chile。• Marinovic,N.;Garc í a,M. 1999。Hoja Sierra Gorda,Regi ó n de Antofagasta。Servicio Nacional de Geolog í a y Miner í a,Carta Geol ó gica de Chile。TRS潘帕布兰卡2025款PAG。180


 
25依赖注册人提供的信息合格人员在编制其关于修改因素以下方面的调查结果和结论时依赖了注册人提供的信息:1。宏观经济趋势、数据和假设以及利率。2.预计销售数量和价格。3.注册人控制范围内的营销信息和计划。环境问题不在合格人员的专长范围内。TRS潘帕布兰卡2025款PAG。181