附件 10.8
与8号约会第2023年8月的一天。
沙赫丹有限公司

和
VG ZenITH国际有限公司

租赁协议
| 任期 | : | 三(3)年 |
| 开始 | : | 2024年1月16日 |
| 即将到期 | : | 2027年1月15日 |
| 房地 | : | 19日的所有那支1907部队第弗洛或Mira Place to香港九龙弥敦道132号wer a。 |
MESSRS. PANG & ASSOCITES
律师和公证人
中远塔1406号机组
183 Queen’s Road Central
香港
参考。编号:MKP/tyk/61328
这一协议使8第八月二日二十三日
之间:-
| (1) | 沙赫丹有限公司( )的注册办事处位于15第香港九龙尖沙咀弥敦道132号Mira Place Tower A(以下连同其承继人及转让人在文意所承认的地方称为「业主」)一部份;及 |
| (2) | 本协议第一附表第一部分中更具体描述的人、人或公司(以下称为另一部分的“租户”)。 |
兹议定如下:-
已拆除的房地
附属权利 |
1.业主须将位于九龙弥敦道132号并竖立于土地注册处登记为KOWLOON INLAND LOT NO. 6454号的所有该部分建筑物(以下称“该建筑物”)(以下称“该建筑物”)连同其雇员的权利、其雇员的雇员代理受邀人及持牌人与以下所列的在正常办公时间内具有相同使用权的所有其他人共同享有的权利一并出租及承租人:- | |||
| (a) | 入口出口升降机扶梯及中央空调服务(凡须同样运作)及建筑物内拟作共同用途的区域,须始终受制于业主有权限制上述全部或任何一项的使用,并有权重新指定或更改或翻新或更改该等共同区域的布局或外观及; | |||
| (b) | 业主提供的水厕、厕所及便利设施,以供承租人及其工作人员按业主指示使用,但业主不时限制该等用途的情况除外。 | |||
| 期限,租金,管理费, 空调及其他收费 |
2. | (1) | 承租人须按附表三第I部所指明的租金(不包括差饷、管理费、空调费及其他费用)持有本协议附表二所指明的租期内的处所(“te1m”)。 | |
利息
|
(2) | 如果承租人未能在到期时十四(14)天内支付任何租金或根据本协议应付的任何其他款项,则在不损害业主就该违约可获得的任何其他权利或补救措施的情况下,承租人应按自该款项到期之日起至实际付款之日起每月1.5%的利率向土地主支付拖欠款项的利息。 | ||
| 租客的契约 | 3. | 租户打算在整个租赁期间继续履行义务,特此订立盟约,并与业主达成如下协议:- | ||
| 租金 | (1) | 在租期内的每个日历月的第一天,以港币向业主提前支付每月预留的租金,而无须任何扣除。 | ||
管理费、空调&其他收费 ![]() |
(2) | (a) | 每月提前缴付该等费用,而无须于期内每个日历月的第一天就有关处所的空调收费管理费向业主作出任何扣除。业主有权根据本条的前述规定或其任何部分在所有方面将不支付借予租户的任何款项视为不支付本协议项下的租金。有关处所的空调费管理费须按本协议附表三第II部所列。 | |
- 1 -
| 管理费增加, 空调费等 |
(b) | 如在租期内的任何时间,与大厦的管理及维修及/或空调供应有关的费用已高于租期开始时的现行费用,则业主或大厦的管理代理人有权向租客送达书面通知,将管理费及/或空调费用的收费增加适当的款额,其后须支付该等增加的费用,以代替本协议附表3第II部所订定的相应费用。增加的事先通知应当已开始实施后,可以再增加。当任何增加通知书须由业主或大厦的管理代理人送交租客时,管理代理人对适当增加的评估即属结论性。 | ||
| 支付差饷 | (3) | (a) | 提前支付按季度由政府评估的处所所所收取的差饷,而该差饷须于1月、4月、7月及10月的月份的第一天支付或当作应付,但须在租约开始时支付首笔款项,如有关处所未获政府评定为差饷,则须按季向业主缴付相当于3个月租金5%的款项,作为按保证金,以应付应缴的差饷,但须按收到政府作出的实际评级评定而作出调整,亦须缴付及履行所有税项评定税项征收的费用及仅属年度或经常性的支出,但不包括现时或以后由香港政府或其他合法当局就该等支出向处所或拥有人或占用人征收或押记的资本性质的支出,(政府租金及物业税除外),并须缴付或如该等款项已由业主按要求退还予业主,以防就该建筑物整体或其任何部分(其中包括处所)征收或征收的评估所征收的任何该等款项的应付款项。 | |
| (b) | 如有关处所的差饷课税须根据业主指示而上调,则业主须在紧接该等差饷可能到期下跌的任何季度的前一个月内,随意借记承租人的款额,而承租人须随之向业主支付该等款项,而业主须据此向香港政府交代该等款项。 | |||
| (c) | 在事件凡没有按照《差饷条例》(第116章)或其任何当其时有效的法定修订或修改对处所作出估值或就处所作出单独评估,则业主可自由作出该等中期估值或摊派,并借记承租人于该等中期估值或摊派时应支付的款额,而承租人须随即向业主支付该等款额而承租人就该中期估值或摊派多付或少付的款项,须在根据《差饷条例》作出的估值已获知悉时,在双方之间作出调整及结算。承租人须向业主支付本条例附表三第III部所指明的款项,以结算承租人根据本条前述条文须支付的差饷。 |
- 2 -
| (d) | 业主有权将不支付根据本条前述规定借予租客的任何款项或其任何部分在所有方面视为不支付本协议项下的租金。 | |||
公用事业
|
(4) | 支付及解除有关租客在处所或通过提供予租客的帐目而安装的电、水、电传或传真机、电话及其他机器的所有费用,以及现时或日后任何时间由租客消耗并就处所收取的其他支出,并就该等费用支付所有必要的按金。 | ||
内部装修
|
(5) | (i)在业主无须如此装设的范围内,以其本身的成本及开支,并按照承租人首先呈交并经业主书面批准的图则及规格,以良好及适当的工匠式方式,使用优质物料,并在各方面以适合于一级办公室及商业综合体的风格装设处所的内部,并在整个任期内保持良好状态,并进行令业主满意的维修。 | ||
| (ii)向业主提交三(3)套所有有关详情装修图则图纸及内部装修规格(包括电气机械及建筑服务工程)以供批准,并在空置管有权交付予租客前及在该等图则及图纸获业主书面批准前,不得展开任何装修工程。上述图则、图则应,但不限于:- | ||||
| (a) | 包括所有隔断和地板覆盖物的详细图纸、平面图和规格, | |||
| (b) | 包括应与业主安装的电气系统连接的所有电气装置的详细图纸、平面图和规格, | |||
| (c) | 包括对任何电气机械或其他楼宇服务的任何建议修订、增补或更改的详情, | |||
| (d) | 遵守香港政府不时颁布的所有有关条例、规例及附例。 | |||
- 3 -
| (iii)业主就批准承租人依据上述(i)及(ii)提交的图则图纸及规格而招致的所有费用(包括顾问费),以及业主其项目建筑师及E/M顾问就批准承租人根据上述(i)及(ii)提交的图则图纸及规格而招致的所有行政费用,均须由承租人绝对承担。 | |||
| (iv)雇用或聘用(a)已按有关行业标准具备合理称职技能的一名或多于一名承建商;及(b)已在该等承建商名单中向业主登记,而该等承建商已根据上述有关安装及更改机电建筑服务防火工程、空调系统及喷水灭火系统的规定及标准,获业主批准。业主不得以任何方式对该等承建商或承建商进行的工程或该等承建商或承建商的表现,或因装修的设计或质量缺陷或其他原因而承担责任或承担法律责任。 | |||
| (v)尽管有上述规定,仍须按照业主不时发出的指示或规定,进行所有该等装修工程装修及更改处所。 | |||
| (vi)如承租人的上述图则及图纸未获业主完全批准,或承租人在上述免租期届满前仍未完成所有装修工程,则承租人无权获得本协议附表7(如有的话)所规定的免租期的任何延长。 | |||
| (vii)所有电缆供应总管,以及处所内或通往处所的其他公用设施服务,须由租户负担费用,并须经业主事先书面批准。为使大厦的楼宇服务得以有效协调及控制,租户同意,所有物业内或为物业而进行的电线及其他电气工程及批准的楼宇服务更改,均须由承租人的成本及开支进行,而承租人须(a)具备按有关行业标准合理称职的技能;及(b)已在业主根据上述规定及准则批准的该等承建商名单中向业主登记。 | |||
| (viii)承租人须就在免租期内对处所进行的任何经批准的装修工程,向业主支付一笔由业主可能扣除的按金。该等订金须于上述装修工程完成并令业主满意后,无息退还租户。 | |||
| 内部维修 | (6) | 保持处所的所有内部,包括地板和内部灰泥或其他整理材料及渲染到墙壁地板和天花板以及业主在其中的固定装置和配件,包括所有门、窗户(可打开或其他)、玻璃和幕墙的竖框、电气装置和线路处于良好的清洁可租用的实质性和适当的维修和状态,并在不时需要时适当地保存和油漆并做好,并因此保持相同,费用由租户承担。特别是但不以任何方式限制前述内容,租户同意:- | |
视窗(a)向业主偿还因大风、季风、台风或恶劣天气或因租户或其雇员的疏忽而更换所有窗户(可开启或其他方式)及所有幕墙玻璃破损或损坏的费用客户佣人代理受邀者或持牌人;
- 4 -
| 电气线路 | (b) | 如有关供应公司有此要求,则根据当时有效的任何电力供应条例或根据该条例订立的任何理事会令或规例的条款,修理或更换处所内的所有电线、装置及装置,以及从租户的一个或多个电表到及在该等电表内的电线,而不论是否由于租户或其雇员、客户、雇员、代理人、受邀者或持牌人的疏忽或滥用而非进一步或以其他方式须予修理或更换; |
| 消防装置 | (c) | 维护和保护业主在处所内提供的火灾探测和灭火装置,使其免受可能的损坏或未经授权的干扰,并赔偿业主的所有费用索赔和因其所有损坏而产生的损害; |
| 于接获通知后执行维修 | (d) | 在接获业主或其授权代表发出的任何通知后,指明任何须进行的工程或修缮,而根据本协议,承租人有责任立即将该工程或修缮交到手并执行,并以一切可能的方式派遣,不得有任何延误; |
| 内部缺陷等第三方责任 | (e) | 对任何其他人因处所内部任何部分的缺陷或损坏状况而直接或间接造成的任何损害或伤害负全部责任,并以付款或其他方式作出补偿,并就任何人就该等事项向业主提出的所有索偿、要求、诉讼及法律程序向业主作出赔偿; |
| 空调系统 | (f) | 维修保养及清洁房舍内空调系统或装置的所有风机盘管单元及过滤器,费用由租户自理,并向业主补偿因租户或其任何雇员、客户、雇员、代理人、受邀者或持牌人的误用或疏忽而损坏或造成缺陷的任何空调风机盘管单元或空调系统或装置的任何其他部分的维修或更换费用。 |
| 遵守条例 | (7) | 就任何政府或其他主管当局违反有关承租人在处所进行及经营业务的所有条例、规例、细则、规则及规定,或承租人或任何雇员、顾客、受雇人、代理人在其中或其上作出、准许、遭受或遗漏的任何其他作为、契据、事宜或事情,服从及遵守并赔偿业主,承租人的受邀者或持牌人,如接获任何法定或公共当局就或就有关处所或向其提供的任何服务发出的通知,以及由业主或代表业主批准有关承租人将进行的装修工程或更改的图则规格或建议,则须立即以书面通知业主,不得暗示或代表业主认为任何该等事宜符合任何上述条例规例细则、规则及规定。 |
- 5 -
改动
复职 |
(8) | 未经先取得业主的书面许可及同意,不得对处所或电气接线装置消防探测及灭火装置或其他业主的固定装置作出或准许作出任何改动或增设,或在其中安装任何内部隔板植物装置或机械,或切割致残或伤害或遭受被切割致残或伤害的任何门窗(可打开或其他方式)、墙壁、玻璃及建筑物的幕墙、结构构件或其他织物的竖框。承租人如欲对处所进行任何附加更改或更改,包括但不限于拆除处所内的任何隔墙或更改办公室的玻璃门,承租人可在不违反本协议有关装修、更改及更改处所的其他条款及条件及业主事先书面批准的情况下,拆除或拆除构成处所一部分的办公单元之间的隔墙和/或改变办公室的玻璃门(s),费用完全由其承担。在此情况下,在不损害支付本条例第3(5)及5(9)条所述的按金的原则下,承租人须在业主要求及应业主要求下,向业主存入业主所厘定的款项,以确保承租人在上述批准的增加、更改或修改处所的任何期间内适当履行及遵守承租人的义务。但在期限届满或更早确定时,承租人须自行承担费用及开支,以良好及适当的方式,使用优质物料,使业主完全满意,将处所恢复至其最初取得处所管有权时的原始状态及存在的状况,并在上述批准的增加、更改或修改前,使处所所所造成的全部或任何损害变好。在这种情况下,承租人有权获得本条所述押金的无息退款。 |
| 不得切割、致残等。 | (9) | 不得切割、致残、伤害、钻入、制造或污损或容许或遭受切割、致残、伤害、钻入、标记或污损任何门窗(可打开或其他方式)、墙壁、横梁、结构构件或处所的任何部分织物或其中包括的任何管道或卫生设备或装置,特别是不得对处所内的幕墙玻璃造成任何损坏或划痕,承租人于接获业主发出的通知后,须承担法律责任,以弥补任何该等瑕疵。 |
- 6 -
| 拉瓦特里斯 | (10) | 由承租人负担费用,使承租人或其雇员、顾客、雇员、代理人、受邀者或持牌人专用使用的任何厕所及水具保持良好的清洁及可租住状态,并在任期内的任何时间均处于适当的维修和状况,以令业主满意,并符合公共卫生或其他有关政府当局的规定;且除业主安装的锁外,不得对上述厕所的入口门安装任何形式的锁。 |
| 清洗排水渠 | (11) | 按要求向业主支付业主在清洁和清洁因租户或其雇员不慎使用而堵塞或堵塞的任何排水渠所产生的费用客户代理受邀者或持牌人。 |
| 只雇用经批准的清洁和保安服务 | (12) | 不得雇用任何清洁或保安组织为处所提供服务或与处所有关的服务,除非该组织首先已获业主批准。 |
| 贮存;危险品 | (13) | 不得将处所用于存放与承租人业务有关的合理所需样本以外的货品或商品,亦不得存放或贮存或导致或准许存放或贮存《危险品条例》或任何取代该条例的成文法则所指的任何易燃物料或物质特别危险或危险货品。 |
不要用“米拉”, “美丽华”、“公园” 车道广场”或 “Le Parc” |
(l4) | 不得就租户的业务或营运使用“Mira”、“Miramar”、“Park Lane Square”或“Le Parc”等字眼,除非指明处所的地址或位置,或在此租约期满或提前终止后以任何方式使用“Mira”、“Miramar”、“Park Lane Square”或“Le Parc”等字眼。 |
| 外墙 | (15) | 不得使用或对处所外墙外侧进行任何形式的改动或增建。 |
| 额外的空调机械 | (16) | 未经业主事先书面同意,不得安装业主提供的空调设备或机械以外的设备或机械。 |
机械设备
重物 |
(17) | 不得在处所的任何部分安装任何机械或任何种类的其他机械设备,亦不得在处所的任何部分放置任何物件或任何种类的物体,包括任何保险柜或其他物体,造成超过每平方呎70磅的死载。 |
| 大宗交付 | (18) | 除透过业主为此目的而提供的服务升降机,并通知业主及与业主安排合适时间进行交付外,不得在正常办公时间内取走或容许交付家具固定装置或货物及/或设备的大件物品进出大厦。 |
| 不养动物或宠物 | (19) | 不得在处所内饲养或容许或容许被饲养任何动物或宠物,并采取令业主满意的所有该等步骤及预防措施,以防止处所或其任何部分受到白蚁、老鼠、老鼠、蟑螂或任何其他害虫或害虫的侵扰。 |
- 7 -
| 装卸区域 | (20) | 确保租户的雇员客户佣人代理受邀者或持牌人不会阻碍建筑物指定为装卸区域的那些区域,并在任何时候遵守业主关于正确使用这些区域和一般交付货物的指示。 |
| 业务的进行 | (21) | 不得以损害大厦作为一级商业大厦的商誉及声誉的方式经营承租人的业务,特别是但不限制前述的概括性:- |
| 拍卖和销售 | (a) | 不得以拍卖方式进行或准许任何出售破产平仓或以其他方式出售性质相似的事物或财产发生在处所内。 |
| 吹捧 | (b) | 不得在任何时间进行或容许被进行任何针对房地外业务的兜售。 |
| 展示标牌等。 | (22) | 不得在处所内外加贴或展示或容许或容许被加贴或展示任何可从处所外可见的招牌、标志、装饰、广告事项或其他装置(不论是否有照明),但以下情况除外:- |
| (a) | 承租人有权在目录板上或在业主指定/批准的地点以统一字体或由业主指定的文字以中英文显示其姓名,该等文字及文字以及由业主在其上作出的任何增补或更改,费用由承租人承担。 |
| (b) | 承租人有权自费将其姓名以经业主批准的文字和/或文字贴在展示于处所外但须在业主批准的位置的招牌上,并有权在其上贴上该文字和/或文字,以及由业主作出的任何增补或更改,费用由承租人承担。承租人以自己名字以外的名称经营业务的,应当将经营业务所用的名称通知业主,并有权按前述方式显示该名称,但未经业主事先书面同意,承租人无权变更企业名称。 |
| 打开窗户 | (23) | 在向房舍供应空调的任何时期内,不得允许房舍内的任何外部窗口保持打开状态。 |
| 外窗遮挡 | (24) | 未经取得同意不得遮挡黑暗或遮挡或遮挡属于处所的窗户或灯光,可给予该等同意,但须符合业主合理施加的合理条件,但须始终租客可选择但经业主同意(业主可自行酌情给予或不给予同意),以“开放式”或“烧烤”式百叶窗保护属于处所的该等窗户或灯,而该等百叶窗的设计及材料用途将由业主在处所不营业期间自行酌情决定。 |
| 台风注意事项 | (25) | 采取一切合理的预防措施,保护房屋内部免受即将来临的风暴或台风的威胁。 |
- 8 -
| 声音等扰民 | (26) | 不得在处所内或处所内或处所内作出或制造或遭受或容许作出或制造任何过度或不合理的音乐噪音(包括由电视、无线电或任何能够制造或再现音乐及声音的仪器或仪器广播所产生的声音)或其他对业主或该建筑物或邻近处所的租户构成或可能构成滋扰或烦扰的作为或事情。 |
| 用户 | (27) | 仅以本协议附表5所列名称使用处所作为办公室。 |
| 误用 | (28) | 不得容许或容许处所的任何部分被用于任何非法、不道德或不正当目的或从而对建筑物、对业主或其代理人、对相邻处所的占用人或对邻里造成或相当可能造成任何滋扰、烦扰、不便、争议或危险。 |
| 禁止食用 | (29) | 不得使用或容许或允许处所用于配制或食用食物或许可或导致任何令人反感或不寻常的气味在渗入或从处所散发时产生。 |
| 禁止提供睡眠区 守望者 |
(30) | 未经业主事先书面许可,不得让任何人或多人在处所过夜。在任何情况下,只可给予该等许可,使承租人能够派值班员看管《业主及承租人(合并)条例》或任何代替合并或修订该等暂时有效的成文法则所指的不得用作寝室或住宅处所的处所内物品。 |
| 封锁入口 | (31) | 不得在出入口楼梯通道落地处或建筑物其他公共区域放置或离开任何箱型家具或垃圾或以其他方式阻碍相同。 |
| 垃圾处理 | (32) | 不得处置任何垃圾或垃圾,除非以业主不时预先订定的方式处置,并直至将该等垃圾从建筑物移走,以将其同样牢牢密封在须获业主批准的设计容器内。 |
| 进入并查看 | (33) | 准许业主及其代理人在所有合理时间有或没有工人或其他人,以及在整个任期内向租客发出合理通知后,有或没有器具,并在正常办公时间内不干扰租客的业务,以进入处所查看处所的状况,并对其中的固定装置进行盘存;并将所有缺陷补齐以及在收到业主书面或口头通知之日起五天内发现是承租人的责任的情况下想要修理,以修补或弥补相同之处。 |
- 9 -
| 转让、转租 | (34) | 不得通过转租、出借、共享或其他方式转让转让转租许可份额或以其他方式部分占有处所或其任何部分或其中的任何权益,而任何人或非本协议一方的人据此就特此授予的全部或任何部分期限获得对处所或其任何部分的使用、占有、占用或享有。租赁应为本协议中指定的租户的个人,且不以任何方式限制前述内容的一般性,除非房东书面批准,否则以下行为和事件应被视为违反本条款:- |
| (a) | 在租户为合伙企业的情况下,接纳一个或多个新合伙人,无论是在现有合伙人死亡或退休或其他情况下。 |
| (b) | 如承租人是个人(包括合伙承租人的唯一尚存合伙人),则该个人的死亡、精神错乱或其他残疾,意图是任何该等个人的遗嘱执行人、管理人、遗产代理人、近亲、受托人或委员会不得享有使用、占有、占用或享有处所或其任何部分的权利。 |
| (c) | 在租户为公司的情况下,任何接管、重建、合并、合并、自愿清算或变更拥有或拥有其有表决权股份的多数或以其他方式拥有或有效控制该等股份的人。 |
| (d) | 承租人给予授权书或类似授权,授权书的受赠人据此获得使用、占有、占用或享有处所或其任何部分的权利或事实上使用、占有、占用或享有该处所或其任何部分的权利。 |
| (e) | 承租人为第三人以信托方式持有处所或其任何部分。 |
| 企业名称变更 | (f) | 未经房东事先书面同意,擅自变更租户的企业名称。 |
| 安全系统 | (35) | 确保租客在处所内及入口的本身保安系统(如有的话)在任何时候均与业主提供及营运的大厦的保安系统(如有的话)兼容及连结(如业主有此要求)。 |
| 条例等&政府租赁条文 | (36) | 对任何客户或占用人或访客违反本地条例、市政令或规例而导致的后果负责及负责,并不违反业主持有处所所所根据的政府租约的规定,并就任何该等违反或违反所造成的任何损害、损失、罚款或任何其他后果向业主作出赔偿。 |
保险单
溢价增加
无效赔偿 |
(37) | 不得作出或容许作出任何作为或事情,使有关处所的保险单或保单因火灾造成的损害或当时尚存的第三人提出的索偿而可能失效或可作废,或据此可提高保险单或保单项下须支付的保费或保费的费率,并按要求偿还业主以增加保费或保费的方式支付的所有款项,以及业主在及有关因违反本条款而须续期该等保单或保单的事宜,以及在该等保单或保单因违反本条款而作废或可作废的情况下,向业主赔偿所有费用成本损失及损害,而若不是租户违反本条款,业主本可根据上述保单或保单追讨该等费用成本损失及损害。 |
- 10 -
疏忽
水溢出 |
(38) | 为就所有索偿要求向业主作出赔偿,须就任何因租客疏忽或因处所溢水而直接或间接造成、或通过或以任何方式直接或间接造成的任何人的损害或伤害,向业主作出任何诉讼及法律程序。业主无须就以下事项向租客或任何人承担任何法律责任:- |
| (一) | 承租人或上述其他人所蒙受的任何损失、损害或业务损失,是由于油烟、烟火或任何其他物质或东西的逃逸或浸水或渗漏或水从建筑物的任何处所或任何其他部分或位于处所内的任何建筑接合处溢出或雨水或海水流入,或由于处所或建筑物内或其内的任何管道或排水系统堵塞或通过或以任何方式造成的或由于该建筑物该部分的任何租户的疏忽或其他原因而导致及 |
| (二) | 由于升降机自动梯消防及保安服务中央空调系统的任何故障缺陷或故障,或由于任何故障故障爆炸变异中断或暂停电力或供水或大楼内提供的任何其他服务,包括独立承建商的疏忽或不法作为或不作为,租户或任何其他人或任何财产可能遭受或承受的任何损失、损坏或业务损失租金或空调费或管理费不得因此而减少或停止支付,但如中央空调系统在连续十四天或以上的任何期间发生完全故障或停止运行,则该空调费,而非租金或管理费,须自该连续十四天期间结束后的第一天起停止支付,直至中央空调系统再次开始运行或 |
| (三) | 处所或处所内任何内容的保安或保管,特别是但在不损害前述一般性的原则下,业主及/或守望者及看护人的经理或任何性质的机械或电气系统(如有的话)的规定,不得造成业主方面对处所或处所内任何内容的保安的任何责任,而处所及其内容的安全的责任在任何时候均由租客承担,租金亦不得及根据本协议或其任何部分应付的其他费用因上述任何一项或 |
| (四) | 因白蚁、蟑螂、老鼠、老鼠或其他害虫或害虫在处所或建筑物内的活动而或通过或以任何方式导致承租人或上述其他人遭受的任何损失或损害或业务损失。上述任何规定不得解释为向业主施加任何责任,以就上述任何法律责任投保,而承租人在此声明,他在任何情况下均不得追究业主或其代理人、雇员或雇员的法律责任。 |
- 11 -
| 第三方保险 | (39) | 为更好地遵守承租人根据上文第3(38)条所承担的责任,以承租人的费用及以承租人的名义准许业主:- |
| (一) | 向业主绝对酌情决定权认为合适的保险公司就上述所有风险实施及维持保险范围以令业主满意。经如此签注的保险单,以显示其中的业主作为处所业主的权益,并以业主可能厘定的金额为准,并载有一项条文,即未经业主明示的事先书面同意,不得更改因此而生效的保险范围及其条款及条件所受限制或取消; |
| 其他租户的保险 | (二) | 在特此与一家声誉良好的保险公司就以下风险在其全额重置价值中建立的整个期限内生效和保持充足的保险范围:- |
| 1. | 玻璃:现在或以后在房地内或形成部分房地的所有玻璃; |
| 2. | 水害:包括但不限于因使用或滥用处所内安装的消防喷淋系统或其中的水被滥用而发生的对行业固定装置和配件的损害; |
| 3. | 火灾和外来危险:包括对库存、固定装置和配件、具有装饰性质的物品和个人物品的损失或损坏进行充分的保护; |
| 4. | 幕墙及可开窗:所有的玻璃及幕墙的竖框及所有现在或以后的可开窗在房舍内或构成部分; |
| 而承租人须拥有业主作为保险单上签注的处所业主的权益,并须在业主有此要求时出示保险单及最后保费收据及上述保险公司的证明,以确认上述保单已妥为付清且有效及存续。 |
| 替代负债 | (40) | 业主概不以任何方式就承租人或任何上述人士因处所或其中或其任何部分的业主固定装置有缺陷或损坏的状况而可能遭受的任何损害或伤害,向承租人或根据承租人主张任何权利所有权或权益的人承担法律责任而承租人特此同意就任何人或多人就上述事项向业主作出的所有索偿要求行动费用开支向业主作出赔偿,并进一步表示,承租人须对处所的任何部分或业主在其中的固定装置和装置可能造成的任何损害负责,特别是业主无须就任何台风、山崩或通过任何方式造成的任何损害向承租人或上述任何人或多人负责,地面下沉、火灾逃生、位于建筑物之上或以任何方式与建筑物或其任何部分相连的水或电线或电缆泄漏或烟头掉落、碎玻璃碎片、窗户或其他物品以及建筑物任何部分或附近的水、火或电和振动逃生。 |
- 12 -
| 租户的赔偿 | (41) | 承租人在此同意并承诺与业主作出赔偿,并使业主在所有诉讼中获得充分赔偿,并免受该建筑物其他部分的承租人和占用人以及任何第三方就承租人或承租人的任何行为、疏忽或失责(不论是否故意)引起或产生的任何作为或法律责任的诉讼要求费用和索赔,或承租人的任何受邀人或持牌人或承租人允许在该处所或其任何部分的任何工人仆人或人员。 |
| 收益率上升 | (42) | 在本租约期满或更早确定时(租户有)向业主交付其“光壳”处所的空置管有权以及良好的干净和可出租的维修和状况,尽管有任何相反的法律规则或公平,连同该租户的配件固定装置的更改或增加,因为业主可能在其绝对酌情决定权下可能愿意保留但不支付任何补偿的该租户的配件固定装置的更改或增加,并向业主交付所有可进入处所所有部分的钥匙。如业主要求承租人自行承担成本及开支,承租人须将承租人在处所或其任何部分内或内的全部或任何部分配件固定装置更改或增设,并将处所恢复至光壳状态,令业主满意。如承租人于本租期开始时已同意接纳任何须由处所任何先前占用人安装或作出的任何配件固定装置更改或增设,业主有权要求租客移走在本租约开始日期前如此作出的任何或所有该等配件固定装置改动或增建,并要求租客弥补因安装或制作该等配件固定装置改动或增建或其移除而对处所造成的任何损害,犹如该等配件固定装置改动或增建是由租客在本租约期限内作出一样。业主亦有权要求租户保留任何或所有由上述先前占用人在处所内安装或作出的该等配件固定装置更改或增建,而无须就如此保留的该等配件固定装置更改或增建支付任何补偿。 |
| 租户协会 | (43) | 不得为任何目的或目的,与大厦的任何租户共同组成或组织或试图组织任何租户的组织、委员会、法团、协会或工会。 |
| 房东的盟约 | 4. | 业主同意租客如下:- |
|
安静的享受 |
(1) | 在承租人缴付本条例第2条所提述的租金及费用,以及承租人根据本租约可能须缴付的任何其他费用的规限下,以及承租人遵守及履行本租约所载的契诺,以容许承租人在租期内悄悄管有及享有处所,而不受业主或任何根据或通过或以信托方式为业主合法申索的人的任何干扰。 |
- 13 -
| 政府租金&物业税 | (2) | 就期内的处所支付政府租金及物业税,连同于期内就处所应付的资本性质开支。 |
| 修复屋顶等。
合理期限
豁免
减租 |
(3) | 如业主发现屋面总排水渠及水管主墙及外窗框及处所幕墙及其中的自动梯升降机及中央空调装置的外竖框有缺陷,或如承租人或根据当时有效的香港有关条例如此授权或根据有关条例如此授权的其他当局发现,则须藉书面通知提请业主注意,并将该等缺陷维持在适当的维修状态及条件规定,业主有权获给予一段合理的时间,以查看任何该等缺陷并对其进行维修,但进一步规定,在因独立承建商的疏忽或不法作为或不作为或业主无法控制的其他情况而导致上述自动梯正确操作的任何期间内,业主无须向租客支付任何补偿,升降机及空调设备须因机械故障或需要维修或大修而中断或中断,业主亦无须因该等中断而给予承租人减免租金或其他费用。 |
| 空调服务 | (4) | 尽最大努力,每日为各处所提供空调服务。承租人承认,业主须保留更改提供予处所的冷冻水供应时数的权利。除非另有变动,否则冷冻水供应时间为周一至周日上午10时至晚上10时。如承租人超过上述营业时间需要额外提供冷冻水供应/空调服务,承租人可要求业主提供相同服务,费用由业主厘定。 |
| 办公家具 | (5) | 该处所已安装以下设施:- |
| (a) | 仅提供瓷砖材质的悬挂式声学吊顶系统; |
| (b) | 不含电线、荧光管的标准灯配件; |
| (c) | 有适量风机盘管机组和带扩散器的开放式风管的中央冷水机管式空调系统; |
| (d) | 开放式喷水灭火系统;并受业主批准并由租户承担费用的租户要求的任何新增或变更的约束。 |
- 14 -
5、现进一步明确相互同意如下:-
| 重新进入 | (1) | 如果租金、差饷、管理费,空调费或此处保留的其他费用或款项或其任何部分或部分在本应支付的任何一天后的14天内未支付(无论是否正式要求),或在承租人违反或不履行此处所载的任何条款和契诺的情况下,在业主向承租人送达指明上述违反或不履行的正式书面通知后的14天内遵守和履行或承租人(为个人)破产或承租人(为公司)须进行强制性或自愿性清算(合并或重建有偿付能力的公司除外)或如当其时的承租人须与承租人的债权人订立任何组合或安排,或须承受对承租人的货物征收的任何困境或执行,则业主在其后任何时间以整体名义重新订立处所或其任何部分即属合法,而据此本协议须绝对厘定,而根据本协议所支付的按金将没收予业主,作为违约金而非罚款,但不损害权利以及业主就承租人违反本协议条款而采取的补救措施。任何租金要求或根据本协议应支付的任何其他款项或为收回该等款项而采取的行动或限制的所有成本和开支及附带费用,均应由租户在全额赔偿的基础上支付,并应作为债务向租户收回。 |
额外 空调服务 |
(2) | 如承租人须要求在本协议的正常办公时间以外向处所提供空调服务,则业主须在可能的情况下向承租人合理提前通知承租人的要求,并在承租人按要求向业主支付足以支付在该延长时间内经营空调厂所涉及的额外及营运费用的情况下,向业主提供该等服务,而该等费用由业主计算为最终及结论性费用。 |
| 无法控制的意外情况 | (3) | 如处所或其任何部分在本租期内的任何时间因火灾、水灾、风暴、风灾、台风、不良建筑、白蚁、地震、地面下沉或任何超出房东控制范围的灾难而不会因承租人的作为失责疏忽或疏忽而导致其雇员代理雇员承建商或持牌人使处所不合适为租客使用或在租期内任何时间的建筑物须被谴责为危险结构或拆迁令或关闭令须就该建筑物生效,而该建筑物的发生并非可归因于租客的作为失责疏忽或疏忽,其雇员代理雇员承建商或持牌人则特此保留的租金或其按性质公平比例的租金及所遭受的损害或所作出的命令的程度,须于当时的本历月届满后暂停执行,直至该处所再次恢复原状或如前述般适合使用或解除该命令(视属何情况而定),但业主并无义务恢复该处所或该建筑物或对其进行修复的损害如果房东认为这样做不可行并且如处所或建筑物在此期间未获恢复,则业主或租客可在自该损害发生日期起计三个月后的任何时间,或上述命令向他们中的另一方发出书面通知,以确定本租约,并据此作出相同及本协议所载的一切,自该通知发出之日起即告终止,并无效力,但不损害该等权利以及任何一方就任何先前索赔或违反本协议所载协议条款和条件或业主就该通知日期之前根据本协议应付的租金而针对另一方的补救措施。 |
- 15 -
| 更改建筑物名称 | (4) | 业主须在特此授予的期限内的任何时间,在向租客发出合理通知后有权更改建筑物的名称,而就此而言,业主无须对租客承担损害赔偿责任,亦无须成为任何其他法律程序的一方,亦无须对租客因该等更改而招致的任何性质的费用或开支承担法律责任。 |
| 功能&显示 | (5) | 尽管本条载有或暗示有相反的规定,业主仍可准许任何人或组织在业主绝对酌情决定认为合适的时间及条款及条件下,在建筑物的任何部分或公共区域举行任何功能或展览或展示任何商品。 |
| 接受不放弃 | (6) | 承租人根据本协议向业主支付的租金或任何其他费用的接受,不应被视为业主放弃就承租人违反本协议所载的任何承租人义务而对承租人提起诉讼的任何权利。 |
| 注意力不集中 | (7) | 就《业主及租客(合并)条例》第7章第III部而言,以及就本呈件而言,有关处所的租金如未于本条例第3条所订明的时间起计7天内缴付,则须当作拖欠。所有费用及开支,以及任何根据该等费用(包括业主在律师及客户基础上的法律费用)所附带的费用,均须由租户支付,并可作为债务向租户追讨。 |
| 接触潜在租户 | (8) | 在紧接年期届满或较早前的三个月期间内,业主可随意在处所的任何外部部分上贴上及维持一份通知,述明须将处所出租及业主合理要求的其他有关资料,而承租人须准许所有获业主或业主代理人书面授权的人在向承租人发出合理通知后,于承租人的正常办公时间内进入及查看处所,而不是为了干扰对承租人业务的有效管理。 |
| 存款 | (9) | (a) | 承租人须于本租约签署时或之前向业主存入本协议附表4所列的款项。业主须持有作为承租人到期支付租金及根据本协议须支付的任何其他费用的保证金,以及承租人根据本协议须遵守及履行的条款及条件的履行及遵守的保证金。在特此设定的期限届满或更早确定时,如果承租人应已支付所有租金和根据本协议应付的所有其他款项,并且如果不存在违反本协议所载任何条款和条件的情况,承租人将被遵守和履行,则房东将在承租人向房东交付空置的处所管有权后的六十天内向租户无息退还上述押金。 |
- 16 -
| (b) | 如果根据本协议的规定,费率、空调费、管理费在任何时候都要增加,租户应再存入一笔或多笔款项,以便将押金增加到等于三个月增加的租金空调费管理费和四分之一的费率之和。 |
| (c) | 如承租人违反或不遵守或不履行上述任何协议、规定或条件,则业主有权从订金中扣除业主因承租人违反、不遵守或不履行而招致的任何金钱损失的款额,而在这种情况下,承租人须向业主存入如此扣除的款额,如承租人未能这样做,业主须随即有权重新进入处所,并有权决定本协议,在此情况下,按金可按上述规定没收予业主。 |
| 同意转让 | (d) | 承租人特此同意业主将按金转让予业主在处所(不论连同该建筑物或其他)的权益的任何受让人或受让人。 |
| 占用费用 | (10) | 如承租人因任何理由不能或不愿意在租期届满时或在本协议明文规定的较早确定租约(如有的话)时向业主交付空置的处所管有权,承租人须按修订后的差饷(不包括差饷)向业主缴付占用费用,该差饷须相当于自承租人在上述期限或较早前的裁定届满后如此保持占用至(i)业主透过司法程序取得处所的实际管有权或(ii)承租人向业主交付处所的空置管有权的整个期间内当时通行的现行市场租金,但须进一步承租人未经授权或额外占用期间的现行市场租金,须由香港测量师学会的一名成员厘定,该成员须由业主提名,以评估该现行市场租金,而如此委任的该特许测量师的决定为最终决定,并对承租人具有约束力,但进一步订明,如上述经提名的特许测量师评定的经修订租金须低于本协议所述的最后租金,尽管如此,修订后的租金仍应按此处最后规定的租金价格计算。进一步同意,业主为取得特许测量师报告中的估价而引起的所有费用和开支,以及业主为追求和执行其在本协议中的权利以取得处所的管有权而可能产生的所有法律费用,均可由业主向租客全额追讨,且不损害业主因不遵守或不履行本协议项下的任何协议、约定、条款或条件而可能对租客拥有的任何权利或补救措施,该等费用,上述费用和占用费可由房东从承租人根据本协议支付的押金(如有)中扣除。 |
- 17 -
房东不 认股权证使用者 |
(11) | (a) | 业主并不代表或保证有关处所或建筑物适合承租人建议使用的用途,而承租人在从业主手中接管处所管有后,须令其信纳或当作已信纳有关处所适合承租人建议使用的用途,而承租人特此同意他将自费向所有政府或公共当局(包括但不限于地政总署、消防处、食物环境卫生署、环境保护署)就承租人在其中经营业务而申请任何必要的牌照或牌照许可证或许可证,但如承租人因任何理由(包括但不限于该等政府或公共当局拒绝为处所的使用者批给该等牌照或许可证)而未能按上述方式取得所需的牌照或牌照许可证或许可证,承租人在任何情况下均不得以任何形式向业主提出赔偿要求。 |
| (b) | 承租人须自其成本及费用下进行任何额外或相应的对处所或业主在处所的固定装置配件及装置的装潢工程,并须符合政府或公共当局可能按上述方式批给的任何牌照(s)许可证所载的条件规定,但须始终订明有关该等额外装潢改动或装潢工程的所有建议及图则须经业主事先书面批准。 |
| 业主有权更改布局 | (12) | 业主可自由更改建筑物任何层面的入口大堂及购物商场或走廊或建筑物其他部分的布局,包括但不限于商场或走廊的宽度,并可随时以绝对酌情权更改建筑物的名称或分配予处所的编号,而无须向租客支付任何补偿。 |
| 礼物的建造 | (13) | 特此声明,在这些礼物的构造中,除非出现相反的意图,否则输入男性性别的词语应包括女性和中性性别,反之亦然,单数中的词语包括复数,反之亦然。 |
| “租客”的含义 | (14) | “承租人”一词(在上下文允许的情况下)是指并包括具体指名的一方或多方当事人,不得包括任何此类当事人的遗嘱执行人和管理人,或在该当事人为公司的情况下,包括其任何清盘人。 |
- 18 -
| 成本及印花税 | (15) | 本协议及其副本的所有业主律师的费用、印花税和支出以及与编制和完成本协议及其副本有关的附带费用,均由本协议各方以等额份额承担和支付。如果租户在本协议的批准、执行和完成中保留自己的律师,则各方应支付自己的费用和一半的印花税和付款。 |
| 通告 | (16) | 任何规定须送达承租人的通知,如送达或以挂号邮递方式寄往承租人的注册办事处,或留在处所或承租人最后已知的地址,则须足够送达。以挂号邮递方式发出的通知,在适当时候按寄往的地址送达时,视为已发出。 |
| 边际标题 | (17) | 本协议条款的边缘标题和索引仅供参考,特此声明,这些标题不应被视为本协议的一部分。 |
| 房东的继任者 | (18) | 本协议及本协议所载的条款和契诺应为业主及其继承人和受让人的利益而授权。 |
| 保证或申述 | (19) | 本协议规定了双方之间的全部和完整的协议。并无就本租赁或处所或建筑物作出或作出任何其他保证或陈述,如已作出任何该等保证或陈述,则特此放弃及撤回。 |
| 重建条款 | (20) | 如业主议决出售拆毁重建或重建(包括但不限于建造新建筑物或为建筑物增建)或翻新建筑物或其中包括处所的任何部分(出售拆毁重建重建或翻新的意图须以经其公司秘书证明为真实及正确的董事决议副本为充分证据),则在该情况下,业主有权在终止本协议的期限内给予不少于六(6)个月的书面通知且在该通知期满后,本协议及本协议所载的一切应立即终止并无效,但不影响任何一方就任何先前索赔或违反本协议所载的任何协议或约定而针对另一方的权利和补救措施。 |
| 技术规格 | 6. | 本条例所列处所及大厦内的所有技术规格,均须由业主委任的E/M顾问设计,并由其全权酌情决定。承租人承认,上述技术规格可能不适合承租人的用户或承租人对房地的装修建议和规划。承租人须在符合本协议所载其他有关规定的情况下,并在业主事先书面批准所有更改和/或增建建议的情况下,自费和自费对上述技术规格进行任何必要的更改和/或增建,但前提是所有此类更改和/或增建应由(a)根据相关行业标准具备合理称职技能的承包商进行;及(b)已在业主根据上述要求和标准批准的该等承包商名单(s)中向业主登记。 |
| 条例 | 7. | 承租人应忠实遵守并严格遵守本协议附表六所列建筑物的建筑规程。业主保留不时及藉书面通知承租人的权利,以订立及介绍,并于有需要时其后修订、变通或废除其认为作为一级办公及商业楼宇营运及维修所需的规例。此类规定应是对本协议所载条款和条件的补充,不得以任何方式减损此类条款和条件。该等规定与本协议的条款和条件发生冲突时,以本协议的条款和条件为准。 |
| 未支付罚款或保费 | 8. | 承租人承认,承租人并无就批给本租约向业主或其代理人支付任何罚款溢价关键款项或其他代价。 |
- 19 -
| 条例 | 7. | 承租人应忠实遵守并严格遵守本协议附表六所列建筑物的建筑规程。业主保留不时及藉书面通知承租人的权利,以订立及介绍,并于有需要时其后修订、变通或废除其认为作为一级办公及商业楼宇营运及维修所需的规例。此类规定应是对本协议所载条款和条件的补充,不得以任何方式减损此类条款和条件。该等规定与本协议的条款和条件发生冲突时,以本协议的条款和条件为准。 |
| 未支付罚款或保费 | 8. | 承租人承认,承租人并无就批给本租约向业主或其代理人支付任何罚款溢价关键款项或其他代价。 |
| 改建施工等 | 9. | 尽管有任何与此相反的规定,现确认业主保留按业主不时认为适当的方式对建筑物作出任何更改的权利。本协议的任何规定均不限制业主及/或其承建商代理工人或其他获业主授权的人在任何时间更改拆毁建筑物重建的操作及进行业主认为适合的任何建筑物建造及其他工程的权利,以及为业主认为合适的任何目的而进入及在土地及/或建筑物的任何部分及/或建筑物上与所有必要的设备厂房及该等工程的物料,即使对租客造成任何不便或滋扰。 |
| 附表构成协议的一部分 | 10. | 本协议的附表构成本协议不可分割的一部分,其解释和效力应与本协议正文中明确规定的相同。 |
| 特殊条件 | 11. | 本协议还受本协议附表7中规定的条款和条件的约束。 |
| 12. | (a) | 承租人确认,承租人并非业主最终控股公司美丽华酒店及投资有限公司(股份代号:71)的关连人士。就本协议而言,“关连人士”具有《香港联合交易所有限公司证券上市规则》赋予该词的涵义。 | |
| (b) | 一旦租户在本协议期限内的任何时间成为或知悉其为美丽华酒店及投资有限公司(股份代号:71)的关连人士,租户须立即以书面通知业主。 |
特此声明,凡提述香港即指香港特别行政区,政府即指香港特别行政区政府。
作为上述日期和年份首次写入的本协议各方之手的见证人。
- 20 -
第一个时间表
第一部分
租户
VG ZenITH国际有限公司
(公司编号:1176796),其注册办事处位于2301-05、23号套房rd香港九龙尖沙咀广东道15号海港城港湾港湾港湾港湾港湾港湾港湾港湾港湾港湾港湾港湾港湾港湾港湾港湾港湾港湾港湾港湾港湾港湾港湾港湾港湾港湾港湾港湾港湾港湾港湾港湾港湾港湾港湾港湾港湾港湾港湾港湾港湾港湾港湾港湾港湾港湾港湾港湾港湾港湾港湾港湾港湾港湾港湾港湾港湾港湾港湾港湾港湾港湾港湾港湾港湾港
第二部分
房地
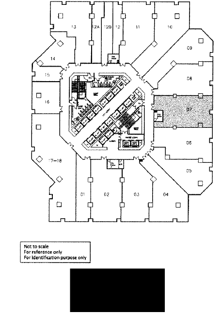
19日的所有那支1907部队第现称为Mira Place Tower A且仅用于识别目的的建筑物的楼层显示在本协议所附的平面图上,并在其上显示为粉红色。
第二个时间表
任期
16日开始的三(3)年第2024年1月1日,15日到期第2027年1月1日,包括首尾两天。
第三个时间表
第一部分-租金
房舍期限的月租金(不包括差饷、空调费及管理费)为港币一百二千元六百八十一元(港币102,68 0.00元)。
第二部分-空调收费&管理费
租期开始时有关处所的空调费及管理费须按每月27,466.90港元预付1日St每个日历月的一天。管理费应当包括建筑物公共区域保洁、垃圾处理等。空调费及管理费须按适当数额增加,以反映业主在其唯一酌情决定权认为有需要的时间、金额及理由下,以绝对酌情决定权向处所提供冷冻水服务及/或为大厦提供管理服务的成本的任何增加。租客理解并承认,管理费和空调费由业主或物业经理正常修改1St每年1月按该金额由业主或物业经理厘定。承租人承认,上述空调收费不包括房舍内所有风机盘管单元和过滤器的维修、保养和清洁,承租人应负责由承租人开展上述服务,费用由承租人承担。
第三部分-费率
任期开始时的差饷为每季度15,600.00港元,但须视政府不时评估而定。
- 21 -
第四个时间表
存款
| (一) | A cash rent deposit of406,040.70港元是一笔相当于三(3)个月租金、管理费和空调费及四分之一差饷的款项。上述存款无须支付利息。 |
| 业主根据日期为2020年11月30日的租赁协议(“现有租赁协议”)现时持有的444,315.30港元的现有租金按金,须于该协议届满时转移至本协议,以抵销以下各项: |
| l.租金押金 | 406,040.70港元 | |
| 2.部分支付月租金及本协议所有其他支出 | 港币38,274.60 |
| (二) | 恢复原状的保证金港币67,673.45为相当于租客须向业主支付的半(0.5)个月租金、管理费及空调费及差饷的款项,并须于本协议届满时或在本协议确定之前,于租客完成处所的恢复工作至业主满意后六十(60)天内无息退还予租客。 |
| 业主现时根据现有租赁协议持有的现有复租按金港币74,052.55元,须于该协议届满时转移至本协议,以抵销以下各项: |
| 1.复职保证金 | 港币67,673.45 | |
| 2.部分支付月租金及本协议所有其他支出 | 港币6,379.10 |
| (三) | 承租人如有业主要求,须于日后向业主缴付改建、改装及装修订金。 |
第五个时间表
用户
仅限办公用途。承租人在取得业主事先同意后,须将承租人名下或该等其他名下的处所进行买卖。
承租人在此确认,业主并无就与上述用户相同或相似的进行名称或业务的单位数目作出任何保证。业主有权将大厦内的任何其他处所出租予任何经营与上述用户相同或相似的名称或业务的第三方。
第六个时间表
建筑条例
| 1. | (a)租客须与业主合作,以维持建筑物的统一外观,并不得在处所内部使用或安装任何从外部影响外观的东西。特别是,但在不以任何方式限制前述规定的情况下,未经业主事先书面同意,不得竖立旗杆,不得从窗户或从建筑物内或建筑物上的其他地方悬挂或展示旗帜或类似物品。 | |
| (b)在不损害其在本协议下的权利的原则下,业主可采取可能必要的行动,以补救承租人违反本规例的任何行为。 | ||
| 2. | (a)在建筑物的有关楼层建造及架设的洗涤及厕所设施及任何其他水器具或器具,不得用作已为其安装的用途以外的任何用途,亦不得在其中存放任何垃圾或任何种类的其他物料或物质。 |
| (b)因违反本条例而导致的任何破损、停止或损坏的费用,应由承租人承担,或由其雇员、代理人或被许可人承担。 | |
| 3. | 承租人不得在建筑物内使用手推车或手推车,除非获得业主同意,如承租人、其雇员、代理人或持牌人未能在使用及操作任何该等手推车或手推车时行使应有的谨慎,则可撤回该等同意。 |
| 4. | (a)出于安全原因,只有在事先通知业主并经业主同意后,才能拆除家具、配件和设备。 |
| (b)尽管有上述规定,业主无须对任何家具、配件或设备的任何灭失或损坏负责,亦无须对因任何延迟或指称延迟发放搬迁许可证或因租户未能在办公时间内申请搬迁许可证而引起的任何申索负责或受理。 |
- 22 -
| 5. | 业主保留规定吊车及其他重型设备、配件、家具及其他大件物品和货物在升降机中运输的时间和方式的权利,以及禁止在升降机中运输任何比其设计的更大或更重的物体的权利。 |
| 6. | (a)在任何情况下,业主概不对任何与根据本规例条文接纳或排除任何人进入或离开该建筑物有关的申索或损害承担法律责任。 |
| (b)业主保留在台风或公众骚乱或民间骚乱期间禁止所有进入建筑物的权利。 | |
| 7. | (a)除发生紧急情况,例如发生火灾或中央空调系统发生故障外,建筑物内的所有窗户须在任何时候保持关闭。 |
| (b)不得将地毯、地毯或其他物品悬挂或抖落出建筑物的任何窗户,而承租人不得将窗户外或任何公共区域或升降机内的任何污垢、灰尘或其他物质扫走或抛出或允许从处所内扫走或抛出。 | |
| 8. | 禁止在大厦内拉票、招揽生意及兜售,租客须与业主合作,防止相同或任何类似滋扰。 |
| 9. | 处所的清洁服务只能由业主认可的承建商进行。将不允许任何其他人进入大楼开展这种性质的服务。 |
| l0。 | 业主的所有雇员均被禁止在执勤期间做超出其正常职责范围的任何事情,除非根据经理的特别指示,租客不得要求或指示任何该等雇员为租客承担任何种类的任何任务。 |
| 11. | 业主保留更改大楼内提供冷冻水及楼宇管理设施服务及营运中央空调系统的时间的权利。除另有更改外,营运时间为星期一至五上午八时三十分至晚上七时三十分及星期六上午八时三十分至下午二时三十分,但星期日及公众假期不得供应空调服务。如承租人要求在营运时间以外提供额外空调服务,承租人可要求业主提供相同服务,费用由业主厘定。 |
| 12. | [已删除] | ||
| 13. | (a) | 在每个营业日结束时,承租人应确保:- | |
| (一) | 这些场所被锁定,以防止未经授权的访问。 | ||
| (二) | 所有有价值的流通票据和单证或动产(固定装置、配件和业务设备除外)均得到有效担保,不受意外破坏或损坏、盗窃或盗用。 | ||
| (三) | 所有电气业务机器设备断开连接,实现无害化。 | ||
| (四) | 租户控制下的所有水龙头、水龙头等用水器具均有效关闭。 | ||
| (五) | 关闭所有电力和燃气供应(保持电传、电话和类似设备运行所需的电力供应除外)。 | ||
| (六) | 所有从房舍内控制的空调风机盘管机组全部关闭。 | ||
| (b) | 承租人须就业主或建筑物的任何其他承租人或占用人因不遵守本条规定而蒙受的一切损失、损害或伤害作出赔偿。 | ||
| 14. | 本规例拟适用于大厦内的所有租户,但可由业主酌情以书面作出修改。 | ||
| 15. | 业主保留按本协议的规定随时、不时更改或增加本规例的权利。 | ||
| 16. | 所有装修工程(包括空调和E/M工程)应按照租户提交的图纸并经业主批准进行。未经业主事先书面批准,不得开工。 | ||
| 17. | 除非业主另有批准,否则所有与处所有关的E/M工程均应由(a)具备按有关行业标准合理称职的技能;及(b)已在业主根据上述规定及准则批准的该等承建商名单中向业主登记的承建商进行。 | ||
- 23 -
第七个时间表
本协议还受以下条款和条件的约束:-
| 业主更改、修改翻新或扩建的权利 | (1) | 承租人承认并同意,业主有权在租期内进行改建、改造、翻新及扩建工程或任何其他建筑工程或与建筑物内建筑物设施有关的工程(其工程以下简称“建造”),而该等建筑工程可能会在建造期间对承租人使用处所的安静享受造成不便、烦扰或滋扰或干扰。承租人在此明确同意,不会就任何此类烦扰、不便、滋扰或扰乱安静享受所引起或与之相关的任何赔偿赔偿或损失向业主或其代理人提起任何诉讼或索赔。特别是,租户承认,知悉业主有意将Mira Place 1面对弥敦道及金伯利道的现有主要入口改为若干零售铺位,并将大楼一楼、二楼及三楼部分改为若干零售铺位、餐饮位或其他用途。承租人在此明确放弃其所有权利,要求提前确定或减免租金或延长免租期,或因失去安静享受不便滋扰或基于在本协议期限(或此类延长期限)内随时可能进行的此类改建工程所产生的任何理由而造成的任何损失或损害。 |
免租 |
(2) | [已删除] |
| 装修定金 | (3) | 承租人于本协议签署时,须向业主支付装修订金,金额为港币[ NIL ]和碎片处理费的总和HK $ [ NIL ]。上述装修保证金,在装修工程完成且业主信纳不因租户装修工程而对建筑物任何部分造成损害时,应无息退还租户。如因承租人的装修工程而对建筑物或其任何部分造成任何损害,业主可自行将上述装修保证金用于弥补该等损害。为免生疑问,如业主认为承租人的任何装修工程不符合业主批准的承租人的装修计划,或业主对承租人的装修工程的任何部分不满意,则装修订金须由业主持有。承租人同意,只有在承租人完成其装修工程并令业主完全满意后,业主方可将装修押金退还承租人。 |
| 装修 | (4) | 承租人须向业主支付一笔金额为HK $ [ NIL ]是成本承租人的装修计划的批准的和附带的。承租人承认,业主批准承租人的装修计划,不应被解释为任何保证或陈述所述装修计划符合相关政府主管部门或任何主管部门的要求规则和规定。就其装修和用户获得所有相关许可批准或同意,由租户全权负责。承租人无权因上述任何许可批准或同意的任何延迟而要求任何补偿、延长免租期、减免租金或减免租金。管理费不包括搬走租户装修装修产生的杂物,由租户负责搬走。 |
| 业主条文 | (5) | 租户承认,业主提供的处所的机电设施和防火系统,是由业主的E/M顾问设计的。如承租人希望对业主的条文作出任何更改,承租人须将所有详情规格图则及图纸提交业主或业主的代理人,以供业主事先批准,并须聘用(a)按有关行业标准具备合理称职技能的承建商;及(b)已向业主登记的承建商在 业主根据上述要求及准则批准进行该等工程的承建商名单。 |
| 装修期保险 | (6) | 在进行任何经批准的工程之前,租户同意向信誉良好的保险公司投保足够的保险单,以防止因承租人或其雇员或承建商因进行该等经批准的工程而因任何作为失责或疏忽而导致或因任何作为失责或疏忽而对任何人或财产造成的任何损失伤害或损害。保险单亦须背书,显示业主为处所的注册拥有人,并作为与保单下的管理人共同受益人。该保单所实施的保险范围,须按业主合理酌情厘定的金额而定。承租人取出的该等保单副本,须于任何认可工程开始前呈交业主,而承租人遵守该等保单,即为任何认可工程开始的先决条件。 |
- 24 -
| (7) | 承租人同意并承诺遵守以下条件:- |
| (a) | 处所内部装修应为一级标准,须经业主事先批准。 |
| (b) | 承租人应全权负责将地板拼成均匀水平。 |
| (c) | 风机盘管单位将由业主按照业主E/M顾问采纳的开放式平面设计,按当时的“原样”条件提供。 |
| (d) | 电缆供应总管,以及处所内或通往处所的其他公用设施服务,须由承建商安装,而承建商(a)具备按有关行业标准的合理称职技能;及(b)已根据上述规定及标准按承租人成本向业主登记的该等承建商名单,但须经业主事先批准。 |
| (e) | 向屋宇署、消防处、食物环境卫生署等所有相关政府机关申请所有必要的牌照,以及就任何将进行的工作遵守所有相关政府机关的要求,均完全由租户负责。承租人承诺,在其申请未获有关政府当局批准的情况下,不会向业主提出任何索偿。承租人明白,为配合承租人对处所的设计或预期使用者,可能须自费对业主在处所的装修及装置(如有的话)进行改建或额外工程,但须始终订明承租人的所有装修、设计及改建建议须以业主的最终批准为准。 |
| (f) | 承租人同意雇用或聘请经业主批准的承建商进行装修工程。 |
| (g) | 电表间至房舍敷设电缆的电气线路费用,由业主自行承担。承租人了解到,连接电表间与处所及MCB(“主电缆盒”)(如有)的现有主电缆由前承租人安装。业主不得以任何理由负责该等电缆的保养、维修或更换。因此,承租人应对在租期内使用上述主电缆所产生的后果承担全部责任。 |
| (h) | 这些房产将以“原样”的条件移交给租户。不过,房东会按照自己的规格,根据开放式方案设计,提供并安装天花格、天花砖、灯槽(不含荧光管和电线)、带扩散器的风道和垂直百叶窗。承租人其后要求的任何更改及修改,须经业主批准后,由承租人自行承担费用。 |
- 25 -
| 在符合且不损害业主根据本协议第3(42)条所享有的权利的情况下,在本协议到期或更早确定时,租客应以其“光壳”和良好、干净、可出租的维修和状况向业主交付处所。承租人承诺恢复处所及进行包括但不限于以下的恢复工程:- |
| (一) | 拆除租户安装的所有内部隔墙/砖墙(如有); |
| (二) | 拆除承租人在其中安装的所有装饰、固定装置、配件及饰面; |
| (三) | 委任(a)按有关行业标准具备合理称职技能的承建商;及(b)已在业主根据上述规定及准则批准的该等承建商名单内向业主登记,以将MVAC系统恢复至其原有位置、状态及状况(如有的话),并对处所内的风机盘管单元进行物理及化学清洁; |
| (四) | 委任(a)按有关行业标准具备合理称职技能的承建商;及(b)已在该等承建商名单中向业主登记,而该等承建商已获业主根据上述规定及准则批准,以将消防服务系统恢复至其原有位置及状况(如有的话); |
| (五) | 拆除承租人安装的电力设施,并委任(a)按有关行业标准具备合理称职技能的承建商;及(b)已在该等承建商名单中向业主登记,而该等承建商已根据上述规定及准则获业主批准,以将连接大厦电表房的主电缆从处所移走; |
| (六) | 根据业主规定的开放式平面设计,恢复房舍假吊顶、竖百叶窗并更换任何损坏/破损的吊顶网格、吊顶瓦和竖百叶窗并将风机盘管单元、光槽、扩散器、洒水车等恢复到原位置; |
| (七) | 委任(a)按有关行业标准具备合理称职技能的承建商;及(b)已在该等承建商的名单中向业主登记,而该等承建商已获业主基于上述规定及准则批准,以恢复入户门及将受影响区域修整至其原状(如有的话);及 |
| (八) | 拆除凹陷入口区域内的聚光灯、公司标志、闭路电视摄影机及附加门锁系统(如有的话),并委任(a)按有关行业标准具备合理称职技能的承建商;及(b)已在该等承建商的名单中向业主登记,而该等承建商已获业主根据上述要求及标准批准,以使受影响区域达到其原始状况,令业主完全满意。 |
| (一) | 消防设施的所有改装或改建工程,须由(a)具备有关行业标准的合理称职技能的承建商进行;及(b)已在该等承建商的名单中向业主登记,而该等承建商已根据业主所提供的装修指引所列的上述规定及标准,由租户承担全部费用。 |
- 26 -
| (j) | 业主须负责在期限开始日期后21天内,按照业主自己的规格安装或更换(视属何情况而定)玻璃门(如业主有绝对酌情权要求)。因此,承租人在此明确放弃其所有权利,要求提前确定或减免租金或免租期,或因失去安静享受不便滋扰或基于根据本协议条款在期限开始日期至上述日期之间可能进行的此类安装或更换工程而产生的任何损失或损害。 |
| 目录 | (8) | (a) | 租客明白,业主将提供一(1)个目录条(根据业主的标准设计和规格),分别固定在大厦的一楼主大堂和各自的楼层大堂,以显示租户的姓名和业主全权酌情批准的其他详情。 |
| (b) | 如承租人要求任何额外的目录条,承租人须支付该额外目录条及其安装的费用,该费用须经业主批准。 |
| 更改建筑物名称 | (9) | (a) | 承租人特此同意,业主有权在租期前或租期内的任何时间及不时以其全权酌情决定的任何名称或样式或名称或样式重新命名建筑物,并有权在任何时间及不时更改、更改,替代或放弃任何该等名称,但业主须就此向租客发出不少于一个月的通知,而就此而言,业主无须对租客承担损害赔偿责任,或成为任何其他法律程序的一方,或对租客因该等更改而招致的任何性质的费用或开支承担法律责任。 |
| (b) | 前述(a)款及根据该款所提述的业主权利利益及义务,须由业主按其绝对酌情决定权认为适当的条款及条件自由行使、转让及转让,不论是否考虑及持续时间。 |
| 扩建楼层的楼层编号 | (10) | 租客承认并充分理解没有13第14楼第层和24第Mira Place Tower A的楼层及Mira Place Tower A的六(6)个扩展楼层的楼层编号须为20第21楼St22楼nd23楼rd层,25第层和26第楼层。 |
| (11) | 承租人同意,尽管本协议另有规定,承租人仍应:- |
| (一) | 在任期开始前向业主提交所需的装修计划,以供业主批准; |
| (二) | 在收到业主批准后,无论如何在任期开始后两周内开始装修工程; |
| (三) | 自该期限开始之日起两个月内开始营业及开放该等处所。 |
| 如果承租人如未能履行及遵守任何上述条件,业主绝对有权提前七天通知承租人以厘定本协议,而在上述通知届满时,本协议即告绝对终止,业主须重新进入并收回处所,而不受承租人的任何权利或利益的影响,但不损害业主就违反本协议的任何其他条件或条款而可能对承租人产生的任何权利或补救措施,包括作出裁定的违约行为。在本协议确定后,租户支付的所有押金将被没收给业主,业主有权根据其认为适当的条款和条件将处所重新出租给其他一方或多方,但不损害业主向租户追偿其可能遭受的任何损失和损害的权利。在承租人未能履行上述任何条件的情况下,作为如前述送达确定本协议的通知的替代办法,房东有权采取程序强制承租人具体履行本协议。 |
- 27 -
| (12) | 承租人须推定并承认业主有权批给处所的租赁权,承租人无权要求业主出示任何处所所有权证明,承租人不得对业主对处所的所有权提出异议、质疑或提出任何要求。 |
| (13) | 承租人向房东承诺,承租人应将承租人通过本协议获得并与之相关的所有信息(“机密信息”)视为隐私和机密信息,并应相应地予以保护。承租人进一步向业主承诺,未经业主事先书面同意,承租人不得向任何人披露机密资料或其任何部分,而承租人不得直接或间接利用机密资料或其任何部分取得优于业主的商业利益。本条款的规定应在本协议期满或确定后继续有效。 |
| 披露代理代表 | (14) | [已删除] |
| (15) | 本协议取代先前双方之间的所有口头或书面明示或暗示的协议。业主或任何第三方代表其作出的任何与处所或业主的义务有关的保证或陈述,不论明示或默示。如已作出任何明示或默示的保证或陈述,则在紧接本协议执行前撤回或视为已撤回。 |
| (16) | 尽管有上述任何相反规定,租客同意,如前租客未能在本协议规定的期限的生效日期将处所的空置管有权交付给业主或租客,则业主有权通过提前七天向租户送达书面通知来解除本协议,据此,租户根据本协议支付的所有款项应无息和/或补偿退还租户。任何一方均不得就该撤销向另一方提出任何索赔。 |
| (17) | 尽管有本协议的任何其他规定,非本协议一方的人根据《合同(第三方的权利)条例》无权强制执行本协议的任何规定。这并不影响该第三人除该条例外存在或可获得的任何权利或补救。 |
| (18) | 承租人承认,尽管可能已签立本租赁协议,但承租人须继续支付承租人根据现有租赁协议应付的所有租金及其他费用,并须遵守及履行承租人方面的所有条款及条件直至该协议届满,否则,业主有权以书面通知承租人的方式终止本协议(视情况而定),而不会招致业主方面对承租人的任何法律责任。 |
| (19) | 承租人同意并与业主承诺,承租人将严格保密持有本协议,未经业主事先书面同意,不得为任何目的或向任何第三方披露(不论是书面、口头、视觉、电子或任何其他形式)本协议。承租人亦同意并与业主承诺,不会在香港任何注册处(土地或其他)注册本协议。 |
| (20) | [已删除] |
- 28 -
| 签字人 | ) | |
| Houng Chi Tung先生 | ) | |
| ) | ||
| ) | ||
| 代表及代表业主 | ) | |
| ) | ||
| 其签名验证人:- | ) |
- 29 -
| 由Mo Ka Wai Victor先生签署, | ) | |
| 其董事 | ) | |
| ) | ||
| ) | ||
| 代表租户 | ) | |
| ) | ||
| 当着:- |
证人姓名:
香港身份证号码:
- 30 -
| 收到承租人的总金额 港元四百六千四十万零七厘仅(上述款项须于现有租赁协议届满时从现有租赁协议中转出)为上述由租户向业主支付的现金租金按金。 |
) ) ) ) ) ) ) ) |
406,040.70港元
|
对签字的核查:-
| 收到承租人的总金额 港币六万七千六百七十万 三分钱四十五只(上述款项须自现有租赁协议届满时转出)为上述须由租户向业主支付的复租按金。 |
) ) ) ) ) ) ) ) |
港币67,673.45
|
验证到签名:-
- 31 -
MIRA地面塔A
九龙尖沙咀弥敦道132号
19第楼层