附件 10.24

彼得·施塔尔德房地产
房地产服务及建筑管理
办公用房租赁协议
房东
uniQure(Corlieve Therapeutics AG)
瑞士创新园
Hegenheimermattweg 167c
CH-4123奥尔施维尔
出租对象
Peter Merian-Weg 4,4052巴塞尔
5楼办公及画廊空间,685.01 m ²

1
租赁协议翻译(英文)
目 录
1. |
缔约方 |
|
3 |
2. |
租赁房地 |
|
3 |
3. |
开始、持续时间、终止 |
|
4 |
4. |
房租、暖气、服务费预付款 |
|
5 |
5. |
增值税选择 |
|
5 |
6. |
租金调整 |
|
6 |
7. |
供暖及服务费 |
|
6 |
8. |
出租物业的移交 |
|
7 |
9. |
出租物业的使用/注意义务 |
|
8 |
10. |
维修保养 |
|
8 |
11. |
结构性变化 |
|
9 |
12. |
转租/转让租约 |
|
9 |
13. |
业主的出入权 |
|
9 |
14. |
保险 |
|
9 |
15. |
保证金 |
|
9 |
16. |
归还出租物业 |
|
10 |
17. |
最后规定 |
|
11 |
18. |
租赁协议的整体部分 |
|
11 |
2
租赁协议
本租赁协议(以下简称“协议”)由以下各方及双方订立:
1.缔约方
1.1房东:
Stiftung Sympany
彼得·梅里安-WEG 2
4052巴塞尔
增值税号:CH116.346.189
代表:
Peter Stalder Immobilien AG
克拉拉加滕83
4058巴塞尔
电话:[***]
传真:[***]
邮箱:[***]
1.2租户:
UniQure(Corlieve Therapeutics AG)
瑞士创新园
Hegenheimermattweg 167A
H-4123奥施维尔
增值税号:[***]
电话:[***]
邮箱:[***]
2.租赁房地
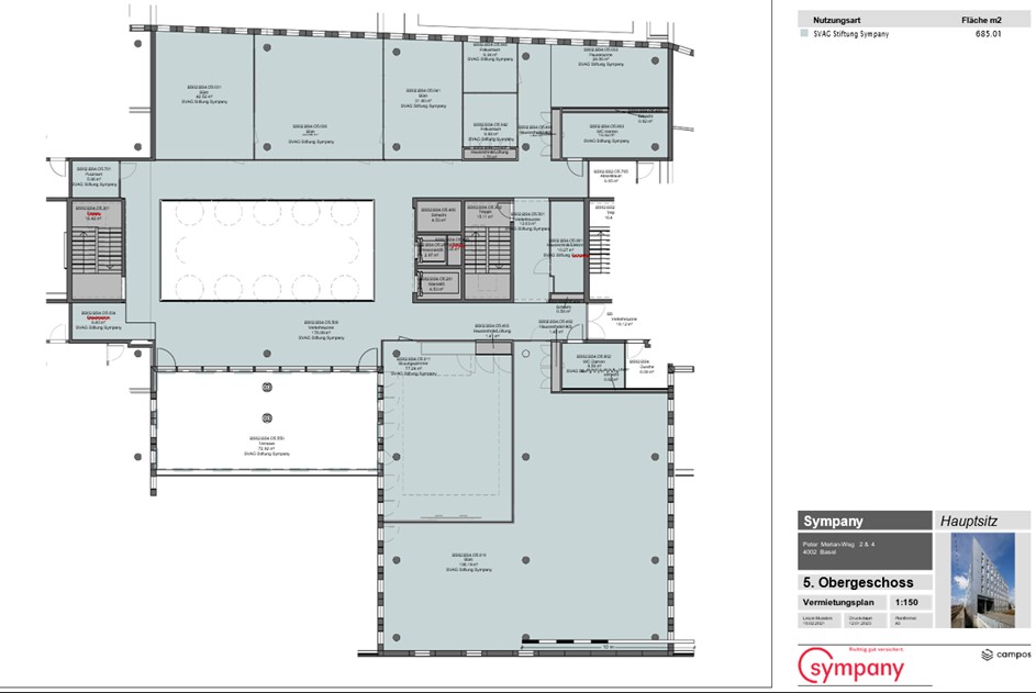
业主特此向租户出租位于Peter Merian-Weg 4,4052 Basel的处所,具体为以下区域:
房地类型 |
楼层 |
面积m ² |
彼得·梅里安-WEG 4 |
|
|
办公空间,包括家具和露台使用 |
5楼 |
685.01 |
地下车库两个车位 |
1层地下室 |
|
总租赁面积 |
|
685.01 |
所附楼面图上已将租赁场所标示为绿色。平面图和任何适用的房屋规则构成这份租赁协议的组成部分。两个车位的确切位置将分别告知租户。
3
3.开始、持续时间、终止
3.1开工
租约于2023年11月1日开始,为期三年。它于2026年10月31日自动结束,无需终止(第255条第2款或)。
租赁期限的延长仍按以下规定保留。
3.2租户的延期权
承租人获授予第一选择权(真正选择权),可在同等条件下以单方面声明的方式延长租期三(3)年的额外固定期限,即至2029年10月31日。
在行使第一个选择权后或到期时,租户被授予第二个(非约束性)选择权(在新条件下延长的优先权利),允许将租约再延长三(3)年,即至2032年10月31日。
如果承租人表示有兴趣延长合同(行使第二个非约束性选择权),业主应根据当时的市场条件,根据第255条第2款或第255条,在租约结束前不迟于九(9)个月提交延长三(3)年的要约。
如订约方在收到要约后三(3)个月内未能就新租金条款达成协议,则不会达成延期协议,租约将于2029年10月31日结束,无须终止。
每项延期选择权的行使必须在固定或延长租期届满前至少九(9)个月以书面通知业主。
3.3租赁期限结束
如果未及时行使期权或未及时行使期权,租赁协议应于2026年10月31日终止,如果行使第一个[ 1. ]期权,则应于2029年10月31日终止,而无需终止。
3.4提前终止租赁协议
承租人在不遵守通知期的情况下终止租赁协议的,承租人应继续对租金、服务费以及租赁项下的其他义务承担责任,直至房地重新出租,但不迟于固定租赁期限届满或通知期结束。
4
4.房租、暖气、服务费预付款
同意以下净租金以及供暖和服务费预付款:
对象类型 |
楼层 |
面积m ²或 |
每平方米租金 |
净租金 |
净租金 |
|---|---|---|---|---|---|
彼得·梅里安-WEG 4 |
5楼 |
685.01 |
295.00 |
202,077.95 |
16,839.85 |
已建成办公空间,包括家具和露台使用 |
|
|
|
|
|
2个地下车位 |
地下1层 |
2 |
|
8,640.00 |
720.00 |
净租金总额 |
|
|
|
210,717.95 |
17,559.85 |
彼得·梅里安-WEG 4 |
5楼 |
685.01 |
55.00 |
37,675.55 |
3,139.65 |
不含增值税的净租金和供热及服务费账户合计 |
|
|
|
248,393.50 |
20,669.50 |
净租金和供热及服务费预付款提前支付,不迟于月初【作为到期日】。租户承认房东在这方面的催款费为每次催款费50.00瑞士法郎。
净租金[办公用房及车位]支付租金义务自2024年1月1日开始。
5.增值税选择
根据《增值税法》(VAT Act)第26条第1款b项规定,该房产需缴纳增值税。承租人通过签订这份合同,承认并同意出租物业选择增值税,将按约定净租金以及供暖和服务费的适用税率征收增值税。目前,这一比率为7.7%,2024年1月1日起将增至8.1%。如果增值税税率有变化,房东将在《增值税法》修改之日适用新税率。
5
租户必须将与增值税选择权有关的任何事实(例如名称变更、法律形式变更、纳税义务的开始或结束,或将出租物业用于免税活动)及时通知房东。
通过签署这份租约,租户确认他们在租约开始时满足了增值税选项的所有法律和合同要求,并且租户在这份合同中的详细信息符合正式的增值税要求。
6.租金调整
6.1租赁开始后租金调整
年净租金210,717.95瑞士法郎,自2023年11月1日起生效,基于1.5%的参考利率和截至2023年7月底的106.2点的国家指数水平。截至2023年7月,一般成本增加已入账。
如根据上述条款须作出租金调整,可在行使第一(1)项选择权时先行实施,最高加幅上限为2%。
6.2租赁开始后服务费垫付调整
如有必要,可在固定合同期限内,根据实际成本,提前三个月以规定形式书面通知下月首日调整预支供暖和服务费。
7.供暖及服务费
7.1以下供暖及服务费不计入净租金,须另缴。它们将每年单独计费一次:
行政管理
| ● | 计费成本(服务费总额的4%,另加增值税) |
供暖和热水准备费用
| ● | 供热消耗费用(区域供热) |
| ● | 操作供暖系统的电 |
| ● | 清洁和定期维护供暖系统,包括锅炉 |
| ● | 供热系统运行情况 |
运营成本
| ● | 水和废水(排污费) |
| ● | 一般电力 |
| ● | 垃圾处置(生活垃圾,不含有机垃圾) |
| ● | 看护/设施管理 |
6
| ● | 清洁(包括窗户、百叶窗、立面、周边、除雪) |
| ● | 维护绿地 |
| ● | 安全和交通管制 |
| ● | 天线和版权费 |
出租物业、公共区域或公共空间和基础设施系统的使用、消耗、清洁和维护的所有费用,包括:
| ● | 通风和空调系统 |
| ● | 火灾和烟雾报警系统,以及灭火设备 |
| ● | 通信和公共广播系统(疏散系统) |
| ● | 楼宇控制系统 |
| ● | 电梯和升降机 |
| ● | 自动门和闸门 |
| ● | 应急电力系统 |
| ● | 污水管道和污水泵 |
| ● | 入侵报警系统 |
| ● | 洒水系统 |
计算基础
供暖和服务费将根据消费量(例如能源和应急电力的仪表)、单位或出租面积(例如水和制冷)收取。公共区域的服务费用将按比例分配给每个租户。
7.2仅由租户经营活动引起的费用和收费,即使向房东收取,也由租户承担。
8.出租物业的移交
8.1房地交房承租人家具齐全、清洁干净、可营业。
8.2承租人将免费接管现有陈设的现况,在租约开始前不进行任何维修或清洁。
8.3出租物业移交时双方拟好移交协议并签署。租赁开始前将创建家具库存,这将构成这份租赁合同的一部分。租户将免费接管现有家具。
7
9.出租物业的使用/注意义务
9.1租赁面积专供租户办公使用。
9.2承租人同意出租物业仅用于合同约定的用途。任何目的的改变都需要房东的事先书面同意。
9.3获得任何必要的公共许可(例如经营许可)是租户的责任。
9.4承租人在带入重型家具或机器时,必须考虑到建筑物的结构条件,并确保地板承载力充足。
9.5租户可以向房东订购访问徽章。如果发生丢失,租户将承担更换和任何必要的重新编程或更换徽章系统的费用。
9.6租客同意谨慎、体贴使用出租物业,尤其是对邻居。
9.7租户必须采取合理措施防止或减少过度排放(例如噪音、振动、气味),并对因过度使用而对房东造成的任何损害承担责任。房东可禁止任何导致排放超标的使用。
9.8承租人对任何违反注意义务的行为承担全部责任。如果租户不顾书面通知继续违反其职责,房东可以根据瑞士义务法典(CO)第257f条终止租约。
9.9公共区域清洁由房东安排。凡是由租户造成的脏乱差,都要由租户自费清理。
10.维修保养
10.1业主的维修义务/改善
业主负责维护房地、公共区域、公共无障碍空间、服务技术设施的房间。业主确保适当的供应和处置(水、照明、供暖、通风等),但对临时服务中断不承担责任,例如非业主造成的材料短缺或公用事业故障。
非因外部因素造成的运营中断持续时间超过五个工作日的,房东将协商减免租金。
10.2
房东可随时进行必要的维修和装修,除非需要紧急维修,至少提前48小时通知。重大翻修将提前传达,租户索赔将遵循瑞士义务法第260条。
10.3租户的赡养义务
租户负责维护他们所做的任何改动和免费接管的任何家具。将创建一个切换协议列表缺陷。装修缺陷排除在维修之外。如果租户不报告缺陷,他们将承担损害赔偿责任。
8
11.结构性变化
11.1结构变更和安装(例如标牌、隔板)需要房东事先书面同意。租户必须获得任何必要的许可。
11.2除非永久附属于建筑物,否则租户设施仍是租户的财产。
11.3租户必须为任何结构变化获得必要的许可和保险,并承担任何相关费用。所有变更须经房东书面同意。
12.转租/转让租赁协议
转租部分处所或整个处所需要业主的书面同意,如果提供了足够的新租户,则不能拒绝。
13.业主的出入权
13.1业主或其代表有权在正常营业时间进入出租物业维护自身权利(如重新出租、出售、维修、装修等),提前48小时通知并经租户同意。
13.2如果租户不在,必须允许房东进入。
14.保险
14.1房东会投保强制火险、责任险、水损险。
14.2承租人承担其设备、家具或货物损坏或丢失的风险,特别是由于火灾、爆炸、水、入室盗窃或盗窃。
14.3业主对窗户、玻璃墙布、公司标牌、照明标牌等潜在损坏不承担责任。为这类风险投保充足的责任险,也要投保经营责任险,这是租客的责任。大楼入口前的照明指示牌是个例外。
14.4要求承租人投保责任保险,承保出租物业可能发生的损坏。租约开始时必须向房东提供保单副本。
14.5根据评估报告,在发生损坏的情况下,租户有权获得与自己的装置有关的部分保险金。除非存在故意或重大过失,否则不包括针对房东的与火灾和自然灾害保险相关的进一步索赔。
15.保证金
15.1为确保租赁协议引起的所有索赔,租户将提供相当于三个月净租金(52,68 0.00瑞士法郎)的担保。这种担保可以是一种形式的
9
现金存款、保证金、银行保函或保证人。现金保证金将存入租户名下的储蓄/托管账户,必须在不迟于租约开始前14天支付。
15.2在租金上涨的情况下,房东有权要求租户按比例调整保证金。
16.归还出租物业
16.1承租人须在租期最后一天中午12时前将租赁场所连同所有钥匙交回。任何额外制造的钥匙必须免费交给房东。如返回日期为星期六、星期日或公众假期,则须于下一工作日中午12时前返回处所。
16.2承租人必须以接收时的状态归还房地,同时考虑到老化和合同使用的磨损。要全面清零,专业修复,妥善清理。对于租户进行的结构变更,业主可选择无偿保留或要求恢复原状。租户保留拆除他们安装的任何装置的权利。
16.3出租物业必须归还无家具。租赁开始时无偿接管的家具,任何处置费用全部由承租人承担。
16.4租户必须足够早地开始修复和清洁工作,以确保在租期结束时完成。
16.5因当事人无法控制的不可抗力(“解除情形”)导致无法履行期间,当事人对未履行合同义务的责任免除。除非另有证明,战争、敌对行动、动员、内战、火灾、洪水或类似情况被视为缓解情况。当事人希望援引解除情形的,必须将解除情形的开始和结束及时通知对方。履行期限在不可抗力存续期间适当延长,但因不可抗力导致六个月或更长时间无法履行的,各方可以解除协议。
16.6因承租人的过错不能按时将处所移交给承租人的,承租人对由此造成的损害向房东承担赔偿责任。
16.7出租物业归还后,房东会在租客在场的情况下,准备一份归还报告,记录物业的状况以及租客应负责的任何损坏或缺陷。如果租客不能到场,房东可与官方专家共同编写报告,费用由租客承担。报告将以挂号信的方式寄给租户。如果租户在收到报告后七天内没有反对,则视为接受。
16.8退房后房东可主张隐性瑕疵。房东必须在发现后四周内,以挂号信的方式将此类缺陷通知租客。
10
17.最后规定
对合同的任何变更必须以书面形式作出。
本租赁协议产生的一切纠纷,管辖法院为承租物业所在地。
18.租赁协议的组成部分
以下文件为本租赁协议的组成部分,并附于本协议后:
| ● | 附录1:平面图 |
| ● | 附录2:内规【保密&仅限内部使用】 |
这份租房协议一式两份,由双方共同签署。经双方签字后才具有法律效力。与补充《瑞士民法典》[义务法典]的《瑞士联邦法》第14条相背离,双方同意,本协议及所有相关文件和附件可以电子方式签署,所有电子签名被视为等同于手写签名。双方对电子签字的有效性、可执行性、可受理性均放弃任何异议。
巴塞尔,
楼主:
Stiftung Sympany
代表
Peter Stalder Immobilien AG
租户:
uniQure(Corlieve Therapeutics AG)
由Richard Porter适当代表
11
