查看原文
免责申明:同花顺翻译提供中文译文,我们力求但不保证数据的完全准确,翻译内容仅供参考!
EX-10.22 24 brhc10032541_ex10-22.htm 附件10.22
附件10.22

 
租赁协议
用于商业空间
     
 
协议号
2021/63
 
   
 
雪松欧洲有限公司
 
承租人
   
 
Lierenfelderstrasse51
 
租赁物业的街道地址
   
 
小行星40231
 
租赁财产的地点

VHG
Verlag Haus und Grund GmbH。Aachener Str。172,40223杜塞尔多夫

【首字母】

关于商业空间租赁协议的说明

商业空间的租赁协议通常为期多年,涉及相当大的金额。因此,填写时一定要特别小心。特别是因为每个商业租赁物业都是不同的,几乎没有可比性,所以预先打印的合同只能提供粗略的指导,并且必须考虑到许多可能的填写方式。在使用这份预先打印好的合同之前,请检查它是否适合出租物业,或者由于该物业的特殊性,是否应起草一份具体的协议。因此,在填写完协议之后,但在签署之前,您应该让专业人员对协议进行简短的审查。要做到这一点,最简单且价格优惠的方法是咨询业主、共管公寓和业主协会。.无论以上所述如何,请务必认真记下标有脚注的段落。请填写所有需要填写的段落(用下划符号表示),或将它们划掉,以清楚地表明它们已被看到。

当在正文中划出与此无关的段落时,应特别小心。这些规则通常用于提供信息的目的,在许多情况下,即使没有特别指出,它们也是由法规或判例法确定的,不能有效地进行修改。

特别是,在任何情况下,都不应在协议中加入附加的最终翻新条款(这意味着承租人在租赁结束时有翻新空间的一般义务),因为该条款会导致整个根据德国联邦法院最新的判例法,翻修协议无效【德国联邦法院】 (2005年4月6日第XIII ZR308/2号判决),包括涉及商业空间的租赁。

个别协议(包括关于地毯和/或实木复合地板的协议)是可能的,但根据判例法,假设已达成个别协议的前提条件非常狭窄。业主和共管公寓及业主协会的咨询服务可以在个别情况下提供有关这方面的信息。

对于在共管公寓大楼中的财产,必须遵守分割声明或共管公寓细则中可能规定的对允许使用的任何限制。Hoa House规则应作为本协议的附件附在本协议之后。

有关合同使用目的的特殊协议应作为本协议第28节或本协议附件中的个别条款列出。

同样重要的是,应在第14节中就清洁工作是由承租人还是由外部当事方进行(如果将其列为运营成本的话)的明确规定达成一致意见。

任何和所有附件都必须在其文本中提及主要协议,并由双方签署。建议将主协议和所有附件永久性地附加在一起,例如使用粘合剂或孔眼。

自动索引子句(第7(5)节):

根据2007年9月7日的《德国定价条款法》第3(1)条【Preisklauselgesetz】,该条款在2009年7月29日的版本中是允许的。【德国联邦法律公报】I page2355)如果出租人放弃至少十年的普通终止权。


承租人有权将协议的期限延长至至少十年。
百分比变化是根据以下公式计算的:


调整或专家条款(第7(6)节):
根据《德国定价条款法案》第1(2)条,禁止某些定价条款不包括该条款,因为它构成了所谓的“保留履约条款”。

【首字母】2

商业空间租赁协议

本租赁协议由下列各方订立并在其之间订立:
作为出租人和所有人(见附件1):
先生/ 女士。 1                                                                                                                                                                                                                                        
                                                         Stefan Schoppmann                                       电话:0202–4086666                                                                  (姓名),
Hohenstaufenstrasse26,42287伍珀塔尔                                                                                                     (地址),

由Mr./代理 女士。 1                  Stefan Schoppmann                                                                                                                                                (名字),
________________________________________________________________________________________________________________________________________________________________________
如果出租人行使有利于适用增值税的选择权,出租人的税号为增值税编号:DE200929561.
租赁协议的编号如下:2021/63.
作为承租人:
先生/女士/                                            FIRMA Cedar Europe GmbH                                                                                                                                               
(__________________________________________________________________________________________________________________________________________________________________________
Hüttenstrasse48,40215杜塞尔多夫(地址),
+491768-3089673,wang@cedarled.de (电话、传真、电子邮件),
________________________________________________________________________________________________________________________________________________________________________
记入商业登记册/合伙企业登记册2的城市杜塞尔多夫         
寄存器编号3:                           HRB84799
由代表4                               王勇先生,1968年10月30日(名字),
莱茵Allee11,41460诺伊斯(地址),
代表确认,他/她完全有权代表上述一方签署本协议。签订协议时,提交了一份授权书原件。

第1节-租赁财产

1.
以下物品在以下房产出租。2
Lierenfelderstrasse51,40231杜塞尔多夫
_________________________________________________________________________________________________________________________________________________________________
商业单位在一楼、一楼和地下一层。
租赁面积商定为2,529.00米。2.
以及以下进一步的空间
屋顶空间
____________________________________________________________________________________________________________________(详细说明)5.

2.
租约还包括8地下停车场的泊车位(见附件A)及6房产旁边的停车位。


1请说明地址的确切形式,并在适用的情况下,说明该缔约方的公司名称和法定形式(如E.K.、GmbH、GBR、KG等)。
2请用X标记,填写,并/或在不适用的地方划过。
3必须在所有涉及有限责任公司【Gesellschaft mit Beschränkter Haftung(GMBH)】或合伙企业的案件中填写。
4就股份有限公司或股份有限公司而言【Aktiengesellschaft  (非洲集团)】,必须说明经授权代表该实体的管理委员会的董事总经理/成员。
5您可以在此引用附加的计划或附件,并用颜色或指定的空格进行标记。(附件必须由双方签署。)

【首字母】3

第2节-租赁财产的使用目的

1.
双方同意

2
承租人被允许将租赁财产用于任何所需的商业目的,但以下所列的除外。因此,出租人对根据建筑法规被批准用于商业用途的租赁财产承担全部责任。出租人不知道承租人对特定交易的要求。承租人有责任确定其特定行业本身的要求,特别是要满足公法,特别是手工法的要求。在签订本协议之前,承租人有足够的时间处理这些要求。排除承租人的以下商业用途:经营企业以营销和/或展示色情产品、音像店、赌场、2








1请在此列出详细信息(例如,空调系统、通风系统),或在附件中的单独目录中插入引用,您需要准备这些信息。
2请用X标记,填写,并/或在不适用的地方划过。
出租人知道,这种使用必须在建筑方面是可能的,并且根据公共法律,就建筑相关要求或租赁中所包括的设施的要求而言是允许的。
出租人必须在整个租赁期内保持这些要求。
所有其他要求,特别是那些与承租人的个人或业务情况有关的要求,都属于承租人的责任范围。如果承租人对这些要求不履行负有责任,承租人不能援引交易基础已不再适用的抗辩理由。
在为满足特定用途的要求仍需进行的工作范围内,约定下列工作由承租人自费进行2:









所有其他建筑性质的要求必须由出租人执行。

2.1出租人声明其已选择适用增值税。在这方面,承租人承诺将租赁财产仅用于《德国增值税法》【Umsatzsteuergesetz】所指的商业目的 不排除出租人抵扣进项税额的。承租人承诺进一步向出租人或出租人税务局【Finanzamt】(视情况而定)提供所有必要的文件,以便出租人能够履行其根据《德国增值税法》承担的举证义务。如果进项税额扣除的权利不再适用,承租人承诺立即通知出租人。如果承租人有责任不履行其上述义务,承租人承诺赔偿出租人因违反义务而造成的任何和所有损害和/或损失。

第3节–租赁期限

1.
协议期限

 
c)
带延期条款的固定期限协议1
租约应于该日开始生效。2022年1月1日并以此结束2024年12月31日.
应延长一次/在每种情况下1通过1年,除非一方以书面形式对延期提出异议六个1/          6个月的通知。


1请用X标记,填写,并/或在不适用的地方划过。

【首字母】4

2.
终止通知、对租赁延期的异议以及主张约定的延期选择权,必须是以书面形式.决定这是否在适当的时候完成的因素不是声明被发送的时间,而是声明被另一方接收的时间。

3.
租赁终止后,根据第545BGB条仅通过继续使用而默示延长的协议不被考虑。

第4节-出租人的特别终止权

1.
出租人被允许立即终止租赁,而无需遵守特定的终止通知期,特别是在以下情况下

a)
承租人在连续两个到期日,拖欠租金或相当一部分租金,或在超过两个到期日的期间内拖欠租金,其金额等于或大于两个月的租金;或

b)
承租人无视出租人的书面警告通知,继续使用违反合同的租赁财产,特别是未经出租人书面许可将租赁财产用于第2条禁止的目的,或,如果特定的商业用途已经达成协议,则将其用于本协议第2节中提到的目的以外的目的,即在业务性质,业务部门或商定的产品范围发生变化或显著扩展的情况下,或者在未经授权转租的情况下,以其他方式将财产提供给第三方使用,包括未经授权改变公司所有者或法律形式,承租人这样做严重侵犯了出租人的权利(见第13条第4款)。
2.
终止合同的通知必须以书面形式发出。

第5节-租金和租金细目

每月租金由以下要素组成:
1.
基本租金

a)
对于商业空间本身
19,900.00欧元

b)  
租赁合同中包含的车库/停车位
                                                    欧元

c)  
用于_______________________________________________________________________
__________________________欧元

d)
用于租赁中包含的公寓/住宅空间 __________________________欧元
2.
一次性支付行政费用,数额为基本租金的2%。2398.00欧元
3.
预支取暖费用
885.00欧元
4.
营业成本预付款
2,865.00欧元
  租金总额
24,048.00欧元
增值税,出租人选择适用增值税的3
  以当时适用的汇率计算,目前19%=当前
4,569.12欧元

  付款总额
28,617.12欧元

1请用X标记,填写,并/或在不适用的地方划过。
2“行政成本”是指管理建筑物或经济单位所必需的工人和设施的成本、监督和监视的成本,以及出租人亲自完成的行政工作的价值。行政费用还包括对年度财务报表和执行管理进行法定或自愿审计的费用。
3仅在根据《德国增值税法》行使出租人的增值税选择权的情况下
第6节-运营成本
 
1.
除基本租金外,承租人还应承担所有租赁空间的运营成本,特别是当时适用的《德国运营成本条例》【Betriebskostenverordnung】第1条和第2条所指的运营成本。1如有关营办费的条例被搁置,则该条例须由在内容上取代或取代有关营办费的条例的条文取代。如果没有制定后续规定,则继续适用《运营成本条例》的最新版本经适当变通后.
承租人必须特别承担以下几种费用。2 (如果不存在系统或设施,则此列表不证明对系统或设施的创建有任何主张):

《运营成本条例》第1条和第2条规定的所有成本类型,此外
 
-
建筑物连接、给水和排水系统、电力管道、系统和设备、供暖和煤气管道的服务/维护/清洁/检查费用作为其他业务费用
 
-
窗口服务和维护费用
 
【首字母】5

-
灭火器的维修费用(包括更换灭火剂)
 
-
空调和通风系统及设备的清洁、服务和维护费用
 
-
共用窗户的清洁费用
 
-
以下内容其他业务费用3:
 
 
屋顶排水沟清理和平顶清理
 
汽车修理厂废气排放设备的维修保养
 
隔油池的清洁、维修和保养
 
车库/地下车库大门的维修和保养
 
警报系统、闭路电视监控、对讲机和开门系统的维护和保养
 
监视的成本,如保安和锁闭公司
 
看门人的费用
 
消防检查的费用,包括定期的预防性消防检查

其他额外业务费用(如适用,将另行入账)
清除积雪

承租人还必须承担这类费用,按一次总付的方式收取:
 
商业和技术设施管理费用(一次总付)4.


2.
如果租赁物业全部或部分配备了供暖系统,仅向该租赁物业提供暖气和/或热水,承租人承诺以其自己的名义并自费与供应商签署为此目的所需的能源供应协议,并将其维持在适当履行租赁所需的范围内。运行供暖系统的其他费用,如维修、维护或烟囱清扫费用,应由出租人根据其原因通过运行成本表结算。


3.
除上文第2分节的规定外,承租人承诺为租赁空间(而不是一般电力)和所有业务费用类型(如适用,包括水)签订购电合同,包括提供媒体内容(例如,宽带电缆连接),这是可以直接采购的,在租赁期内以自己的名义并自费与相关供应商签订合同,并在租赁期内维持合同,只要维持供应是正确执行协议所必需的5:


 

承租人承诺在本租赁协议到期前不终止相关供应协议。如果租赁财产过早地腾空,这也适用。如果由于承租人的责任而将仪表移走,承租人有义务为重新安装的费用和所有相应的费用提供补偿。


4.
出租人在实物和工作上的表现可适用于第三方同等服务所节省的费用,但不含增值税,除非出租人自己选择适用增值税。


1《运营成本条例》第1条和第2条(目前的版本)载于附件。
2请不要使用任何成本类型;此外,除非另有明确规定,否则不要使用X标记任何成本类型。
3请用X标出并/或填写。
4“行政成本”是指管理建筑物或经济单位所必需的工人和设施的成本、监督和监视的成本,以及出租人亲自完成的行政工作的价值。行政费用还包括对年度财务报表和执行管理进行法定或自愿审计的费用。
5请用X标记,填写,并/或进一步详细解释。
【难以辨认】措施
 
可分摊的成本具体地说对租赁物必须单独分配给租赁物。以下情况适用于不能与整个财产的成本分开的其他成本的分配:
a)
供热、热水供应费用按本办法第十一条规定的传递公式分摊。
b)
如果租赁物业有适当的计量设备,供水费用应根据物业的用水量来结算。否则,它们应按以下传递公式分配。1:




c)
废水的费用应按照供水费用分摊。如果对地面排水系统单独征收费用,这些费用应按住宅/可用空间的比例分摊,除非该费用适用于承租人单独获准使用的空间。承租人可单独使用的空间的费用应完全由承租人单独承担。

【首字母】6

d)
如果承租人使用自己的废物容器,而只有承租人才有权使用这些容器,则应具体分配废物处置费用。否则,费用应按以下传递公式分配。1:




(e)
电梯费用应按本办法第十二条规定的分配公式分摊。如果没有输入分配公式,则应按住宅/可用空间的比例分配。
f)
所有其他运营成本应按建筑/经济单元中住宅/可用空间的比例分配,除非在下文中商定了另一种转嫁措施:
1下列项目应按使用单位分配:






1以及根据______________________的下列行项:


.


(g)
1具体分配公式未达成一致的,由出租人在第一个会计报表范围内合理行使自由裁量权确定。
H)
现商定,在目前的情况下,计算的基础是一个经济单位,具体规定如下:






(i)
如果出租人因财产的使用方式而产生特定费用(例如:火灾保险附加费、额外的废物收集器),这些费用应全额转给承租人。
(j)
出租人有权预先分配运营成本,如果这是合理的或必要的,基于成本类型,财产,或财产的使用。
K)
2由于该事项涉及部分拥有的财产,出租人受业主协会使用的分配公式的约束,并应根据业主协会在每种情况下规定的措施将运营成本转嫁给出租人。包括供暖费用在内的一般建筑费的最新帐单被指定为“附件_”。
承租人接受此处使用的分配公式,认为这是约定的(本附件应由双方再次签署并附在协议之后)。
此外,双方同意,承租人应根据为租赁单位发出的个人财产税评估通知,单独承担财产税(不包括在设施管理的帐户报表中)。最新的房产税评估通知作为“附件__”附于此。

2由于该事项涉及部分拥有的财产,除按照德国《供暖费用条例》【Heizkostenverordnung】(见本协定第17节)分配的供暖费用外,运营费用应按以下方式分配(在适用的情况下,应记录在单独的合同附件中):





此外,还同意承租人应根据为租赁单位发出的个人财产税评估通知,单独承担财产税(不包括在设施管理的帐户报表中)。最新的房产税评估通知作为“附件__”附于此。
如果该事项涉及部分所有的财产,并且业主协会决定,在协议期限内,


1请用X标记,填写,并/或进一步详细解释。
2在适用的地方填写/标记一个X,在不适用的地方划过。

【首字母】7

【难以辨认】
在分配公式中,或者由于法律原因需要更改分配公式的,出租人应将此通知承租人。如果承租人不因此而处于非常不利的地位,承租人应同意分配公式的这一变化。
如果法律有此规定,或与建筑物/经济单位的适当管理有关的理由有此要求,或使其显得合理,出租人可在其合理行使的酌处权下修改通过措施。
 
6.
如果在达成协议后,根据经济效率原则需要的新的运营成本出现,出租人有权通过以文本形式作出的声明,按比例将这些成本转嫁给承租人。通知必须包括成本类型、事后产生成本的原因、财产或经济单位的总成本、成本的分配以及承租人的部分。出租人自知悉新产生的经营成本之时起,可以要求支付合理的经营成本预付款。
 
7.
以下内容适用于业务费用的结算:

a)
预付款项必须每年结算一次。为了方便起见,出租人可以改变帐期。为此,在这种情况下,作为例外情况,也可以使用低于典型的12个月对帐单的帐单期间。为结算目的,不允许超过12个月的期限。

b)
结算结果必须在收到结算单后四周内支付给对方。如果承租人对运营成本表中的个别项目提出异议,承租人有义务支付运营成本表中存在的余额,而不考虑提出异议的项目。

c)
如果运营成本增加或减少,出租人有权重新确定预付款,该预付款自增加通知下一个月生效。此声明可在任何时候作出,并附有变更原因的证明。

8.
如果经营成本的变化具有追溯力(例如,通过修订有关市政税的评估通知),出租人有权通过书面声明将这些费用按比例转嫁给承租人,即使有关这些费用的账目已经结算给承租人;声明必须指定并解释转嫁的原因,并且必须在收到修改后的发票或评估通知书后的三个月内进行更正。如果运营成本追溯增加,出租人的声明自增加时起生效。如果运营成本下降,则从下降之时起,必须相应地减少对运营成本的预付款。

9.
如果每月一次性支付运营成本,如果自双方签订协议以来发生了额外费用,出租人有权随时将其调整为当前金额。调整必须以书面形式进行,并自收到通知后一个月的下一个月开始生效。调整可以在任何时候进行,但不能在出租方的费用发生实际变化之前进行。

第7节-租金变化

1.
如果出租人选择适用增值税,则同意按当时适用的法定金额缴纳增值税。有关修订自法定增幅之时起生效。
2.
即使在协议的固定期限内(如果有的话),租金数额也可以通过自由订立的合同协议或以下所列的任何特别协议或根据相应的法律规定进行变更。

3.
基本租金的未来变化(见第5条第1款)应根据
1第4节             1第5节             1第6节以下简称。
根据本协议第6节对运营成本进行调整,以及由于根据第7节提高价值的措施而导致的基本租金的增加,都有可能独立于基本租金的任何增加。

5.【难以辨认】子句,自动升级
关于出租人作出的至少10年的承诺,例如,5年的固定期限加上承租人的5年选择权,或一方当事人的终身租赁,见附件中的《价格条款法》第3节【Preisklauselgesetz】

(a)如果未来德国联邦统计局目前为德国定义的消费者价格指数(当前基准为2015年=100点)至少变化(上升或下降)   5 1 与签订租赁合同时的指数水平相比,租金金额应相应地以自该变更后的当月初生效的相同百分比进行修订。
如果满足上述要求,此条款可以重复适用,从相应的前一次修订租金的时间开始。
第七条第七款所称租赁生效后发生的租金上涨,在适用价值保护条款时,应考虑到出租人的改进措施:价格指数所需的变化应根据第7条第7款规定的租金上涨水平来衡量,变得有效。在此之后发生的以价格指数变动为基础的租金调整,以7,7号规定增加的租金为基础。

如果选定的指数不再发布或更新,则双方特此同意,他们应应用与此处选定的指数可比的指数(特别是当时由联邦统计局或其后续组织发布的可比指数),通过相应的数学调整或重新索引。

如果在价格条款法第3条的含义范围内,选择的升级条款不应得到批准,租赁双方应约定一项条款,其经济目标与未批准条款的经济目标等同。如上述消费物价指数在租约生效后或在最近一次根据本条款加租后,有10%的变动,承租人有义务接受租金与市场租金的合理调整(也称为与指数挂钩的租金审查)。

【首字母】8

7.
改进措施

如果出租人为《民法典》第559条所指的现代化措施以及第20条第1款b项所指的适当或超出其控制范围的其他措施,包括基础设施和对财产上的交通区域的扩展措施,产生费用,公用线路和下水道线路,包括这样的系统的建筑物连接,或者对于宽带有线网络的连接,出租人可以要求将分配给租赁场所的成本的年租金增加11%。否则,《民法典》第559条也适用于这种租赁。然而,尽管有《民法典》第559条的规定,除了第4号、第5号和第6号中规定的租金上涨外,如果租赁是固定期限的,也应同意这种类型的租金上涨。

承租人必须从收到书面租金增加通知后的那个月初开始支付增加的租金,但在任何情况下都不得早于措施完成后的那个月初。


1请输入所需的金额,如果条款是同意在第7,第3号;通常,不超过10%的金额规定。

【首字母】9

8保证金

1.
为保证出租人的所有权利要求,承租人必须不可撤销地向出租人提供金额为180,000.00 €
(18万欧元).
保证金的形式为:
  1
向出租人支付一笔计息现金债券,金额为180,000.00 €
(18万欧元).



1
可直接执行的、无限制的、无限的和无条件的担保(例如,来自主要银行或公共储蓄和贷款协会【Sparkasse】或来自股东、普通合伙人或其他第三方);担保必须由(信贷机构或个人的确切身份,包括地址)签发:
____________________________________________________________________________________________________________
____________________________________________________________________________________________________________
2.
承租人必须在租赁房屋交接前向出租人交付现金保证金或书面担保。如果承租人不顾正式通知仍不履行这一义务,出租人有权退出租赁协议。出租人有权在交付保证金的前提下移交租赁房屋。
3.
一份合同,计息现金保证金必须由出租人与其自有资产分开投资于银行的公共储蓄。(二)储蓄存款和贷款联合,按正常利率办理存款业务,并按法律规定的提款通知办理存款业务;利息应当在保证金金额的基础上加算。
4.
如果租赁物被出售或在出租人发生变更的情况下,出租人必须在合理的时间内向承租人提供保证金的账目,并必须将任何剩余(包括利息)转让给承租人。在公共不动产登记册上将买方作为所有人记录在案后,但不早于收到帐目和(如果有盈余)按照第1句偿还保证金之后,买方有权要求承租人支付按第1款规定的保证金数额支付的保证金。根据承租人的指示,出租人必须向买方(或可选地部分)支付根据第1句确定的任何超出部分,以满足买方对保证金的要求。

9租金的支付

1.
第5条规定的全部月租金必须在每月的第3个工作日之前按月提前支付给出租人或其授权收取租金并提供收据的人或机构,
IBAN:DE77384621350011835015
AT:Volksbank Oberberg银行银行
BIC:Genoded1WIL,以欧元计,扣除成本和费用。

2.
第一期租金必须在租赁房屋移交前支付。尽管有正式的警告但仍未付款,出租人有权退出租赁协议。
3.
在出租人的要求下,承租人必须使用银行账户的直接借方支付租金。

4.
付款的及时性不应取决于付款的发送日期,而应取决于收到付款的日期或信用证。重复但被接受的迟付租金并不产生承租人延迟支付租金的任何权利。逾期付款使出租人有权收取二次通知费和逾期利息。

10减租、抵租、扣留权

1.
承租人不得冲抵租金,也不得行使扣缴或减少租金的权利。这一条款的例外情况是,承租人因租赁执行后发现的租赁房屋存在缺陷而要求赔偿损失或报销费用。出租人因恶意或重大过失而负有责任的,以及租赁关系中的其他权利主张,但前提是这些权利主张没有争议,已经得到法律支持或已经成熟,可以作出裁决。
承租人明确保留行使权利,要求收回最初全额支付的租金。承租人对租赁关系中以抵减方式提出的反请求,按月分期返还,返还金额不得超过月租金的30%。

2.
在任何情况下,承租人必须提前一个月通知抵消或减租或行使预扣租金的权利。承租人为行使反诉、减租或抵销或返还不合理收益而提起法律诉讼的权利不受本规定的影响。在租赁结束后的期间内,不需要预先通知的期限。


1请选中相应的框,填写相应的信息或删除不适用的规定。

【首字母】10

11供热和热水供应

1.
如果租赁物业有中央供暖系统,除租赁物业外,还向该建筑物或该物业的其他部分供应暖气和/或热水,在10月1日至4月30日期间,出租人必须保持供暖系统正常运行。在供暖季节以外,出租人可自行决定何时使用该系统。热水供应系统必须时刻保持运转。
2.
热水费和热水费的范围应根据各自的法定要求确定(《业务费用条例》第2条第4款:【Betriebskostenverordnung】:《供暖费用条例》第7条第2款)。
在租赁关系的开始和结束时,如果租赁关系的开始和结束与供暖费用的计费期的开始或结束不一致,承租人(如果适当的话)应按比例承担临时抄表的费用。上述规定适用于建筑物/或经济单位的热水供应系统的成本。
3.
热水费和热水费应按以下方式分摊:
   70%  1根据温度计、热费分配器、热水表、热水费分配器记录的信息;
   30%  1根据使用面积或居住面积/建筑物或经济单位的改善面积。
如果没有计算分摊费用,则由出租方在《供热成本管理办法》框架内确定分摊费用,并进行首次计费。
出租人有权自行决定在法律允许的范围内修改计费标准,如果合理的利益要求适当管理经济单位的建筑物/单位。
4.
如果承租人自己操作供暖系统,它必须在供暖季节将其保持在所需的范围内,并按照适用的法律法规和技术要求正确和谨慎地操作,特别是由承租人自费操作和监控。服务和维护应由出租人提供,并由承租人支付,作为运营费用的一部分。
5.
如果租赁物与集中供暖系统相连,出租人应自行操作该系统或从独立的供热商购买所需的热量。
物业本身的供暖系统和外部供热系统之间的变化(热承包)不需要承租人的同意。
6.
如果供热是从独立的供热商购买的,出租人只有在由于出租人自己的内部公用设施线路造成的中断发生时,才应对供热不足承担责任。如果供热是从供热承包商购买的,出租人可以要求承租人的供热费用由供热供应商直接计费。在这种情况下,出租人不应被要求支付任何供暖费用或热水费用。这些费用应由供热供应商单独承担,而出租方不应参与。
7.
费用的分配应根据关于供暖和热水费用按消耗量计费的条例(“供暖费用条例”【Heizkostenverordnung】)和关于城镇供暖供应的一般条款和条件的条例(AVBFernwärmev)来确定。

12号电梯

1.
分摊的电梯费用特别包括:
电费、系统的监督、运行、监测和维护费用、对系统运行准备状态和运行安全的定期检查,包括技术人员的调整和电梯系统的清洁费用。
2.
电梯费用应当按照建筑物或者经济单位的使用面积与居住面积的比例,或者按照下列分配公式分摊:2
              

    

                    
出租人有权自行决定修改分配公式,如果建筑物/经济单位的适当管理部门作出这种改变是必要的。


1凡是不适用的,请填上或划掉。
2如有需要,请填写

【首字母】11

13租赁房舍的使用

1.
在租赁期内,出租人必须将下列钥匙交给承租人。1:
2建筑物门钥匙:2物业入口门钥匙:_____________车库钥匙:
___________地下室钥匙:_________邮箱钥匙,以及下面列出的附加钥匙





承租人实际交付的钥匙数量,应当记载在移交财产时准备的交接报告中。承租人必须立即通知出租人钥匙的丢失和购买情况。在租约终止、期满或取消时,移交的钥匙必须归还出租人。同时,承租人必须免费将其自己自费制作的钥匙交给承租人,或提供钥匙被毁的证据。
由于整体财产的安全原因,如果丢失了由承租人自己承担费用提供或购买的钥匙,出租人有权制造必要数量的钥匙并安装新锁;这一规定酌情适用于该物业的中央上锁系统。如果承租人在迁出时没有将所有钥匙退还给出租人,同样的要求也适用。承租人没有义务向出租人偿还更换锁具的费用,但前提是承租人能够证明对财产的安全没有真正的威胁。
2.
承租人必须小心谨慎地对待租赁房屋和建筑物、家具和固定装置的公共区域。承租人在租赁房屋的合同使用中必须谨慎行事。
3.
承租人不得使用根据本协议或单独协议未出租给它的任何东西。
4.
如果签订了相应的协议,业务类型、业务分支或商定的商品选择的任何变化或重大扩展,未经出租人事先同意,不得将租赁房屋的部分或全部使用权转租或以其他方式移交给第三人。如果承租人的公司所有权或其法律形式发生变化,可能对出租人的权利产生不利影响,则该要求也适用。除非出租人的拒绝是任意的,否则根据《民法典》第540条第1款第2句,承租人不应有权取消租赁。
5.
同意转租或转让使用给第三方仅在个别情况下有效,并可以由出租人在任何时候撤销的原因。
在发生转租的情况下,承租人特此向出租人转让其可能对转出租人提出的任何和所有租金索赔,其金额为根据本租约第5条所欠的租金作为担保。
承租人应对分承租人或其已将租赁房地使用权移交给第三方的行为承担责任。
如果出租人选择了增值税选项,则在分租的情况下适用以下规定:
在扣缴进项税额时,承租人必须出租租赁的房屋,如果是转租的,属于《增值税法》所指的以经营为目的,但不排除出租人代扣进项税额的转承租人。承租人必须进一步确保分承租人向承租人或承租人的税务机关提供所有必要的文件,以便承租人能够遵守《增值税法》规定的文件义务。承租人或者其分承租人丧失进项税额抵扣资格的,必须立即通知出租人。如果承租人未能遵守上述义务,它必须补偿出租人因违反义务而造成的任何和所有损失。
6.
承租人无权全部或部分停止商业经营。在整个租赁期内,它必须经营其商业活动,特别是其店铺,按照租赁的目的和有序地装饰其商店的橱窗和陈列品,或保持其对公共交通的开放,以保持侧面的吸引力并防止客户流量的流失。
7.
只有在出租人事先同意的情况下,才能饲养或临时安置动物。这种同意仅对个别情况有效,如果动物的存在产生了不良影响,则可以撤销。根据民法第833条的相应规定,承租人对因饲养动物而造成的一切损害承担合同责任。
8.
承租人不得在租赁场所饲养鸽子、海鸥或其他动物,因为此类活动会造成相关损害和妨害。
9.
承租人知道租赁的房屋没有空调,因此室内温度可能超过26摄氏度。在确定租金时已考虑到这一事实。因此,承租人不能以任何法律理由对出租人提出任何索赔。
10.
承租人的各种类型的车辆必须事先征得出租人的同意,才能停放在指定的车位上。如果庭院、通道或楼梯因承租人的交通活动而变脏,承租人必须主动进行必要的清洁。
只有遵守消防部门的规定,并事先征得出租人的同意,才能将摩托车、摩托车、轻便摩托车、电动自行车和类似车辆存放在租赁场所、公共区域和物业的其他部分。出租人可以因故不表示同意。
承租人应对承租人的车辆或第三方车辆在其场所过境造成的损害承担责任。

1请填写和/或划掉不适用的内容。

【首字母】12

14清洁义务、冰雪清除和废物管理

1.
承租人必须定期并适当地清洁租赁场所,包括从内部清洁窗框和卷帘门。这一要求也适用于室外构件,如窗框和卷帘门,如果可能的话,视窗户和百叶窗的设计而定,而不需要承租人作出特别的努力(脚手架等)。玻璃表面必须至少每两个月进行一次内外清洁。清洁义务也适用于广告安装,即使它们是由出租人自己安装或设置的。这些标志必须由承租人自费定期清洁,必要的设备(梯子/脚手架/人员升降机)必须自费购买。清洁的目的是保持整个物业精心维护的外观,并保持其对客户的吸引力,这也有利于承租人。
2.
承租人应根据出租人的指示,负责清理公共区域、楼梯、走廊、庭院和大厅窗户,以及建筑物的入口和建筑物周围的区域,并负责清除冰雪,除非这些任务被另外分配,并且它们的成本被分摊为运营费用。


(X)
这些任务由雇佣的承包商完成,并记为运营费用。1
(用X标出或划掉)


(   )
承租人应执行下列任务。1
(用X或划掉标记,包括下面的文字段)


a)
承租人必须在必要时将通往其租赁场所的走廊部分(即整个楼层)和通往下一层的所有楼梯彻底湿拖,但至少每周一次,并且在其他日子也必须保持清洁。如果有多个租户使用同一楼层,他们必须每周进行一次清洁,并根据出租人设定的时间表轮流进行。清理的范围包括信箱、楼梯间的窗户、建筑物和庭院的门、楼梯平台和踢脚板以及楼梯间的栏杆,这些在建筑上都是相关楼层的一部分,包括楼梯间。如果承租人无法自己进行清洁,则必须为由外部服务机构自费进行清洁做出准备。

b)
承租人必须始终保留租赁场所,包括租赁的家具、固定装置和区域,其专用的客户停车位,车库入口,建筑物入口以及租赁场所前的交通区域,如果承租人专门使用该物业,在任何时候对交通都是安全的,只要这些措施不涉及建筑物或财产的实质内容。对建筑物或财产的物质造成损害,可能对交通安全造成不利影响的,必须立即向出租人报告。承租人必须立即清除其操作过程中产生的污垢。需要登记的未登记车辆(如汽车、卡车、摩托车)不得停放在该场所。

c)
这一层1/地下室1承租人应负责清洁人行道, 在没有人行道的地方, 为清理街道上一条一米宽的人行道,以及庭院和大楼入口, 包括各自的入口。承租人还必须清除租赁物业区域的冰雪, 客户停车位, 车库入口和入口费用自理。这些清洁义务还包括清除雪和冰,以及必要的和可能反复传播的砂砾物质。除冰盐和含有冰盐的物质,在特殊情况下,除非当地法规允许,否则不得使用。必须按照当地的规定除雪, 在任何情况下,在雪停了之后。在承租人的要求下, 它必须由上一个租户提供,并提供当前有效的本地法规版本。“结冰时,砂砾必须立即散开:不能用散开的砂砾很好地抵消的冰必须被清除。,
如果承租人的房门全天都开着,承租人应负责在晚上将建筑物和庭院的门切换为“关闭”。

d)
承租人必须自费提供清洁和清除冰雪所需的工具和清洁/砂砾。如果不能自行进行清扫和除冰除雪,则必须自费聘请外部服务人员。

(e)
出租人有权在承租人作出承诺的基础上,请求免除其公共安全义务。

3.
如果使用了废品容器,承租人必须轮流负责容器的放置和回收,以及任何必要的清理工作。出租人有权编制一份规定责任分配的明细表。如果承租人无法履行其义务,则承租人必须自费提供外部服务。如果承租人已被分配了一个或多个自己的废物箱供其专用,则必须将其放出并取回,并执行任何必要的清理活动。
如果这些活动是由出租人或由出租人雇用的承包商进行的,并将其记为运营费用,则承租人在这方面不承担任何义务。
如果当地政府有规定,要求进行特殊类型的废物收集,特别是将不同类别和类型的废物分开,承租人必须遵守这些规定。

1请填写和/或删除不适用的内容。

【首字母】13

15租出处所的条件

1.
承租人将在详细检查和检查后,在承租人已知的条件下接管符合协议的租赁场所。但是,出租人同意完成以下工作:1
________________________________________________________________________________________________________________________
________________________________________________________________________________________________租赁 在【日期】之前 ___________________________________________________
________________________________________________________________________________________________________________________
________________________________________________________________________________________________________________________________________________________
________________________________________________________________________________________________________________________
________________________________________________________________________________________________________________________________________________________

2.
双方将共同准备一份交接记录,由双方签署。设备的状态文件在检查后,将被承租人确认为遵守协议。
承租人已被告知以下缺点,并认为它们符合协议,因为在确定租金时已考虑到这些缺点:







16维护和保养

承租人必须在以下规定的范围内维护租赁的房地,包括与其一起租赁的设施和设备:

a)
承租人必须加热租赁的场所,连同其现有的设备,以达到所需的程度。


b)
承租人必须对租赁的房屋进行充分的通风换气。适当的通风是以有规律的交叉通风为前提的。通过倾斜的窗户通风并不是一种适当的通风方式,它会带来湿气损坏和发霉的风险。承租人还将为承租人直接接触的物品分担小型维护和维修工作(“小型维修”)的费用,例如安装的电、水和煤气设备、供暖和烹饪设施、门窗关闭装置、百叶窗关闭装置和卷帘门组件。这也适用于供暖,如果组件是在承租人的唯一访问范围内,或者如果供暖仅向租赁场所提供热量和/或热水,以及广告安装,如果由出租人提供。小修理是指不超过修理金额的修理。2     €350.00  在租赁开始时的每个实例。由于小修小补基本上取决于工资,相对于租赁开始时,这一金额将与德国消费者价格指数(2015年基准=100)的增长比例相同。然而,只有在基本租金增加的情况下,这一上涨才会增加小修小补的金额。
承租人将分担这些小修理的每一次单独修理,无论发票的实际金额是多少,金额都是多少3     €350.00   ,但不得超过发票记载的金额。对于每一年,小修理的总费用限制在5项目1规定的年基本租金的5%。这项规定是一项简单的费用分摊规定。承租人应及时向出租人报告缺陷,以便出租人安排维修。如果承租人是自费完成这项工作的,出租人将不会偿还费用。

17次由出租人进行的美容维修

出租人没有义务进行定期的整容。


1请填写并删除不适用的项目。
2请填入所需金额(约为年基本租金的3-5%).
3请填入所需金额。例如,基础租金为100欧元,每月最高为500欧元,例如,250欧元至1,000欧元,在其他情况下,例如,350欧元。

【首字母】14

18次由承租人进行的美容修理

1.
关于承租人进行的整容修理,商定如下:

要么


1
为了避免今后在腾空时出现有关整修的纠纷,承租人同意在未经审查或不考虑实际情况的情况下,一次性向出租人支付______________欧元。这将消除承租人进行定期整修或最终翻新的义务。这笔款项将在租赁结束时到期。

1
承租人必须在承租人租赁期间有必要的情况下,在租赁的房间、地窖房间、其他仅由承租人使用的附属房间(如储藏区、车库等)中,自费适当地进行或安排适当地进行当前的(周期性的)整修。在这种情况下,将适用以下规定:


a)
承租人还必须在租赁结束时进行整修,如果后来由于承租人的租赁需要进行整修,则在腾空时进行整修。


b)
如果租赁期满时没有必要进行整容, 承租人将向出租人偿还自租赁开始以来的磨损时间,或者(如果在租赁开始后进行了整容修理)自上次整容修理以来的磨损时间, 在租期或腾空时间结束前, 视情况而定。补偿金额将根据油漆工艺方面的专家公司对翻新租赁房屋时通常发生的整修进行的估算计算;承租人保留证明的权利美容修复也可以以较低的价格以类似工人的方式进行。承租人支付的补偿将通过将前一句中描述的损耗时间设置为与租赁/占用开始的时间成比例来计算, 或者——如果在入住/租赁开始后进行了翻新——最后一次整修的结束日期, “在租赁继续的情况下,可能需要进行整容的日期结束。,
示例:如果租赁在一年后结束,并且如果在总使用期为5年的情况下,如果承租人继续使用,办公空间可能需要进行整修, 承租人分担的办公室装修费用将是1/5。这笔分摊费用的经费不适用于租赁开始时尚未翻修的租赁房舍的租金。如果承租人履行了义务, 或安排表演, 尚未到期的美容修复, 在租赁结束前或在腾空房产前(如果适用, (仅在个别房间), 承租人将被免除支付相应份额的费用。这一豁免授权将在租期结束时到期, 在任何情况下,不得迟于搬离该处所的时间, 如果后者发生在租赁结束之后。“如果后来的承租人表示愿意进行整容或承担整容费用,那么关于分担费用的规定也将不适用。,


c)
所有的整容都必须按照专业标准进行。承租人可能会偏离先前的执行形式(例如,Ingrain墙纸而不是常规墙纸)。然而,在租赁结束时,着色必须符合通常的口味,即中性,浅色,覆盖颜色或壁纸,如果承租人收到租赁房屋的这些颜色,并且在收到该房屋时已经改变了条件下的颜色。在重新铺纸的情况下,必须先把现有的墙纸拿掉。具有自然光洁度的木制品不能涂上颜色。塑料框架、阳极氧化或自然抛光的金属框架不得涂漆。如承租人在租赁期间改变了房产移交时的着色,则必须在租赁开始时提供的阴凉处归还上漆的木制部分(即具有透明饰面或釉面的部分)。
如果承租人在租赁期间改变了房屋移交时的颜色,则涂有颜色的木制部件或金属框架必须以租赁开始时提供的颜色归还;但是,它们也可能被涂成白色或浅色。


d)
承租人必须提供进行整容的证据。

2.
其他契约(例如,在租赁开始时的条件下):






1请检查选定的替代方案,并填写任何适用的空白。

【首字母】15

19出租人的责任


1.
出租人只有在故意的不当行为或重大过失的情况下,才会对承租人造成的财产损失和经济损失负责,前提是缺陷是由租赁场所引起的,并且合同的非典型风险已经实现。只有在故意的不当行为或重大过失的情况下,出租人才会对其代表或代理的行为负责。出租人不会对承租人带来的物品的湿气损坏或由于湿气损坏而造成的操作损害负责,除非这些是由出租人故意的不当行为或重大疏忽造成的。如果由于出租人有责任的情况导致供电、供气、供水或排污服务中断,或者发生水灾或其他灾害,承租人将不向出租人索赔损失。

2.
出租人对租赁房屋在订立租赁协议时存在的初始缺陷以及承租人带入的物品的损坏不承担任何责任,无论是否有过错。出租人将不会对在出租人责任范围内的瑕疵承担责任,这些瑕疵是由于出租人拖延修复瑕疵而产生的,除非出租人或出租人的代理因故意的不当行为或疏忽而有过错。承租人要求履行的权利和承租人在不通知的情况下终止合同的权利在此不受影响。

3.
上述第1项和第2项下的除外责任不适用于:
如果出租人特别保证租赁房屋的某种特征或欺诈性地隐瞒缺陷,则不适用于:
因出租人的过失违约或者出租人的法定代表人或者代理人的故意或者过失违约,致使承租人的生命、肢体或者健康受到损害的;
如果损失或损害是由于违反了所谓的基本义务,即,违反合同义务,这是正确履行协议所固有的,承租人因此依赖于履行合同义务;以及出租人已投保的损失或损害,例如建筑物和业主责任保险或住宅建筑物保险。

20项结构性改革和其他措施

1.
出租人采取的措施

a)
承租人必须容忍必要的结构变化,以维护租赁的场所,建筑物或经济单位,或避免危险的威胁或补救损害。

b)
承租人还必须容忍所有有利或有用的措施,或超出出租人控制的措施,特别是现代化措施,例如隔热和隔音措施,以及改善设施。
这一规定将适用。经适当变通后用于改善和扩展交通区域,供应和处置公用事业设施,包括此类设施的建筑物连接,以及与宽带电缆网络的连接。

c)
承租人必须保持(a)项和(b)项下考虑施工的区域无障碍,但须事先预约,并且不得妨碍或延迟工作的进行;如果发生承租人有过错的行为,承租人将对由此产生的额外费用和损失或损坏承担责任。

d)
除非出租人对故意的不当行为或重大过失负有责任,否则承租人将不会因所采取的措施而要求损害赔偿。

(e)
第7项下的规定将适用于租金上涨,因为出租人在上述B)项下的措施的支出。
2.
承租人采取的措施
未经出租人事先同意,承租人无权进行结构和其他更改,也无权安装新设备。
承租人必须在未经出租人同意的情况下立即拆除已完成的工作,如果出租人提出要求,承租人必须自费,并且必须恢复先前的条件。
出租人有权要求在租赁结束时恢复先前的条件,费用由承租人承担,这一权利并不因出租人同意承租人的结构性改变而被排除在外。承租人将对因承租人的过失而引起的一切损失或损害承担责任。

21承租人的责任

1.
承租人对出租人造成的出租房地、建筑物/经济单位以及出租房地或建筑物/经济单位附属的设备和装置的损害,将向出租人承担赔偿责任,这种损害是由承租人或承租人的家庭成员、其工作人员、雇员、访客、客户造成的,如果损害在承租人的责任范围内,承租人雇用的供应商和手工艺者及类似人员。如果承租人向出租人支付损害赔偿金,出租人必须将对造成损害的一方的任何索赔转让给承租人。出租人必须证明客观上违反了义务。承租人有责任证明,当房间、装置和设备由承租人保管时,不存在任何过失行为。
承租人对偶发事件或不可抗力不承担责任。
2.
如果承租人有过错,承租人必须更换损坏的玻璃,包括陈列窗和镜子,费用由承租人承担。承租人必须为租赁房屋中的所有窗户、陈列窗和门玻璃购买适当的玻璃保险,费用由承租人承担,并向出租人证明此类保险。如果出租人购买了自己的玻璃保险,并将费用作为经营成本转嫁给承租人,则此规定不适用。

由以下人士购买玻璃保险:          出租人承租人

【首字母】16

3.
在安装重物、机器或装置以及安装设备之前,承租人必须确保不超过允许的地面荷载。如果在特殊情况下需要进行结构工程计算,承租人必须自费准备并在要求时提交给出租人。如果承租人因不遵守本规定而有过错,承租人将对出租人或第三方造成的所有损失或损害承担责任。安装对建筑物的不利影响,例如震动和裂缝,或对其他承租人或邻居的不利影响,以及其他不合理的滋扰,将使出租人有权撤销已授予的同意,并禁止使用,即使这些影响不可避免地与业务相关。
承租人还必须确保其机器不会使现有的电力系统超载。任何必要的线路升级必须由承租人自行安排,费用由出租人协商。
4.
承租人对房屋、设施、设备以及财产的其余部分的损坏,如承租人的车辆或来访承租人的车辆有过错,承租人将对出租人承担赔偿责任。承租人的车辆只能在征得出租人同意的情况下,停放在指定的车位上。
5.
承租人同意为其可能因租赁而承担的各种损失或损害投保适当的责任保险,并在整个租赁期间保持这种保险。上述规定适用经适当变通后为承租人带来的设施/设备和存货购买和维护保险,以防止入室盗窃和入室盗窃,包括破坏公物,以及对租赁房屋造成的入室损坏,内容物保险、玻璃破损(如上文商定)、火灾保险、水保险、一般责任保险(还建议使用:营业中断保险)。
投保时应在签订合同时向出租人出具证明文件,且不得迟于入住后三个月。
保险费用的维持必须以保险人收到保险费的年度确认书为凭证。
6.
承租人必须立即通知所有损失或损坏的租赁场所一旦发现。这同样适用于财产和建筑物的其他部分的损失或损坏。
如果承租人因未能及时履行这一义务而有过错,它必须为进一步的损失或损害支付赔偿。

22广告和保护免受竞争

1.
将建筑物上或建筑物内的墙壁区域用于广告宣传、安装或应用自动化设备或用于其他目的,须事先征得出租人的单独同意,这种同意可能有时间限制,可能受要求和条件的限制,并可能因正当理由而被撤销。在上述所有情况下,出租人可以要求恢复前的条件后,结束使用。承租人对与此类设施有关的一切损失或损害承担责任,承租人对此负有过错。此项规定也适用于租赁时存在的此类装置的变更、更新或替换。
承租人必须确保并承担责任,将广告装置,如公司标志等,遮阳篷和其他应用于外部的物品安全地安装在适当的高度,以避免对人员的任何伤害或财产的损害。地方法规必须得到遵守。承租人将对所造成的任何伤害或损害负责。
墙壁区域、广告装置和自动化设备的设计必须与周围环境保持雅致,并且必须符合酒店的风格。
承租人必须获得许可,并承担相关费用和后续费用。

2.
承租人只有权安装公司标志,其尺寸、设计和位置应与周围环境和建筑物或财产的风格相一致。具体而言,双方同意:















承租人将独自承担所有广告费用,包括获得建筑许可证的费用。
 
承租人有责任按照法律和法规的规定进行适当的安装和维护。
 
同样适用。经适当变通后用于其他设备的销售和促销目的,这是只允许与出租人的书面协议。
 
承租人必须使用出租人提供的集体标牌,并必须按比例承担费用。
 
如有过失,承租人将对此类物品及其安装造成的所有损害承担责任。

【首字母】17

承租人在交出所租赁的房屋后,必须自费恢复先前的状况。

3.
保护承租人不受竞争的影响

1
没有提供。

1
为经营以下业务而订定的条文,但该等业务须与主要产品线有关:(必须与协议的目的协调,而该目的可能受协议的第2条所规限)


 
保护免受竞争并不适用于现有租赁,而只适用于建筑物/经济单位的其他商业承租人,如果在订立协议后发生了新的租金或产品系列的变化,并且出租人对这些租赁有影响力。

23出租人的留置权

1.
承租人声明,在入住时带入租赁场所的物品归承租人所有,不受留置、扣押或作为担保转让。以下项目除外:





2.
承租人必须立即通知出租人任何留置权的项目带来的入住或随后。
3.
如果承租人故意做出不正确的陈述或不通知出租人以后适用的限制,出租人有权在不通知的情况下终止租赁。

24出租人进入租赁场所

1.
经事先通知,出租人及其代理人可以在营业时间内进入租赁场所,检查该场所的状况。如果出租人打算出售财产,或者如果租约被终止或废除,出租人或其代理人可以在营业时间内与潜在的买方或租户一起进入房屋。
2.
承租人必须确保,即使在长时间不在的情况下(例如,商务假期),出租人也可以进入租赁场所,以行使上述出租人的权利。承租人必须为此目的将钥匙留在一个容易接近的地方,并必须通知出租人。
如果钥匙不能提供给出租人,在紧急情况下,出租人将有权开放房屋,费用由承租人承担。

25租赁结束

1.
承租人必须在租赁结束时按照约定的条件将房屋交还出租人,并腾空并进行充分的新清洁(包括玻璃/窗户),以及所有钥匙,包括承租人购买的钥匙。
关于地板覆盖物,承租人在腾空时必须按照约定,在清洁、清洁、完整和适当的条件下归还这些覆盖物,除非发生磨损,除非承租人自己带来或购买了地毯或其他地板覆盖物,并且出租人要求将其拆除,以恢复最初租赁或约定的状态。在交还之前,承租人必须立即以工人般的方式纠正承租人应负责的任何损坏,超出约定的磨损范围。在这方面,承租人承担举证责任,证明其不对上述损害负责。
交还出租人时,应准备一份租赁房屋状况的共同验收记录。

承租人支付的钥匙将在出租人在场的情况下被销毁或无法使用,除非双方就适当的费用结算达成协议。
2.
出租人可以要求承租人拆除其带来的设备、装置和结构变化,并自费恢复先前的状况,同时允许进行到期的外观修复。
出租人还可以要求承租人留下其自费带来的设备和装置,或者将这些设备和装置转让给出租人,如果出租人为此支付了适当的赔偿。如果不能就赔偿金额达成协议,则应一方的申请,由主管工商协会任命一名专家确定具有约束力的金额。专家的费用应由双方根据专家决定的结果按比例承担。
3.
租赁房产的延期归还将使承租人有义务在出租人决定的情况下,在该房产无法使用的期间内,按照商定的租金金额或通常在当地可获得的类似空间的租金金额支付补偿。出租人有权要求进一步的损失或损坏。如果承租人拒绝进行的整容修理或承租人负责的其他修理工作必须进行,则情况尤其如此。
4.
如果承租人有责任提前结束租赁,承租人将对损失的租金、服务费和其他履行承担责任,以及出租人因租赁场所在租赁期内仍然空置或由于出租人通过立即重新租赁(特别是因为收到了较低的租金)而遭受财务损失而造成的所有其他损失或损害。
5.
如果承租人在腾空后留下财产,只有在出租人或其代理人为或有重大过失的情况下,出租人才对损害或损失承担责任。


1请在适用的情况下检查并填写。

【首字母】18

26人
 

1.
如果有几个承租人,他们应作为连带债务人对租赁产生的所有义务承担责任。

2.
出租人的声明要具有法律效力,只要向(几个)承租人中的一个作出这种声明就足够了。在另行通知和书面撤销之前,承租人相互授权接收出租人的声明。本授权的撤销仅对收到撤销后收到的声明生效。授权的撤销必须以书面形式向所有其他承租人和出租人声明。
本授权还应适用于收到出租人的租金上涨声明,但不适用于终止通知和租赁取消协议。

3.
如果几个承租人中的一个人停止使用租赁物,这不应影响该承租人对租赁协议产生的义务的责任,直到租赁协议终止或租赁物移交为止。解除责任须经出租人同意,但强制性法律规定另有规定的除外。

4.
如果有几个承租人(共同债权人),出租人可以自行决定将营业成本账户中的盈余支付给任何具有清偿效力的承租人。

27调派和调职
 
未经出租人事先书面同意,承租人无权将本租赁协议项下承租人的权利转让或转让给任何第三方,也无权将这些权利全部或部分转让给公司。
出租人只有在有正当理由的情况下才能拒绝同意。
 
28条众议院规则
 
如果租赁财产是根据共管财产所有权法【Wohnungseigentumsgesetz】持有的部分所有权,则各自有效版本中的业主团体的房屋规则也应以具有法律约束力的方式适用于承租人。承租人将收到这些房屋规则作为本协议的附件。
在其他情况下,出租人分别制定的房屋规则应被视为同意。
承租人将收到这些房屋规则作为本协议的附件。
在所有其他情况下,协议各方特此同意,以下规定的众议院规则应构成协议的组成部分。承租人同意,他和他的家人或家庭成员,雇员,分租人,工人和工匠,以及他的访客将遵守规定。如果有客观原因,出租人有权更改《房屋规则》,但前提是这不会给承租人带来额外的费用。因此,众议院目前适用以下规则:

众议院规则
只有在每个人都以居家社区的理念为指导的情况下,居家居民的和平共处才是可能的。因此,所有住户都必须认真遵守房屋规则,这是本协议不可分割的一部分。《房屋规则》的规定对承租人具有约束力,除非租赁协议的其他规定或法律或官方法规规定了进一步的义务。
 
1.   为这所房子的住户着想
要为住宅居民的繁荣共存着想,就必须避免任何干扰家庭安宁的噪音和活动。
 
2.   住宅居民的看管责任
在清洁和整理地板、窗户、门和楼梯时,必须确保不使用任何可能损坏材料或剥落油漆的药剂。
在运输过程中弄脏的楼梯和走廊必须立即清洁。
自行车只能存放在承租人自己的地窖中,除非出租人明确提供了单独的存储设施。
 
3.   清洁及保养责任
家庭用户必须按照当地规定定期处理垃圾。在此期间,废物必须储存在密闭的容器中。关于清洁和清洁,必须特别注意垃圾桶。垃圾桶不能用来存放废物或恶臭物质,因为这些物质是害虫滋生的温床。装垃圾桶的房间必须时刻保持清洁。
 
4.   防寒
为防止霜冻,特别是对输水管道的损害,地下室的窗户和其他开口以及浴室和厕所的窗户在严寒天气必须保持关闭,除非出于通风目的需要打开。供暖系统必须始终保持运转,以防止霜冻损坏。

【首字母】19

其他29项规定
 
  1.
如果出租人使用电子数据处理作为其财产或会计管理的一部分,或者如果他为此目的将其承租人的个人数据共享给第三方,以提供服务,特别是用于准备信函和结算账目,承租人同意相应的电子存储、处理和共享数据。
 
出租人保证数据应保密处理,并应仅用于上述目的。这些数据不得用于其他目的。在承租人的要求下,出租人有义务提供有关承租人存储数据的类型和范围的信息。
 

2.
(例如,建筑成本补贴、特殊设施、免受竞争的特殊保护和其他信息)。(如有必要,双方应编写并签署本协议的附录)
 
承租人应独立于供应商获得电气服务,并与供应商结算。                        

一旦该子公司在德国商业登记簿上登记,租赁协议可立即转让给Centro Electric Group新成立的子公司。

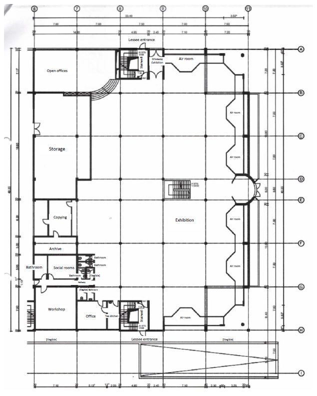
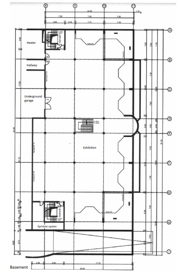
租赁的空间,包括停车位,在第25页的附录A中进行了说明。


3.
根据《德国节能条例》【EnergieeInsparverordnung】提供或分发的能源证书中包含的信息,不应成为本协议的一部分,出租人也不应保证这些信息作为租赁财产的财产。
 
30项修改和修正
 
本租赁协议的后续变更和修改应以书面形式达成一致。如果协议或其中的特殊规定要求采用书面形式(特别是在签订了一段时间的商业租赁的情况下),缔约双方承诺进行合作,以确保以书面形式对本租赁协议进行更改和修改。任何一方都不应以缺乏书面形式为依据,双方均应合作保持书面形式。
 
31合同条款的效力
 
本协议的一项条款、一项条款的一部分或几项条款的任何无效,均不影响其余条款的有效性。如果本协议的任何条款违反了强制性的法律规定,则应由相应的法律规定代替。
本协议一式两份,以相同的形式签署,并已由下列签署人通篇阅读和批准,并由他们亲自签署。每一方应收到一份副本(配偶或其他人仅一份副本)

 
杜塞尔多夫                                                                  ,日期12/10/2021
/s/Stefan Schoppman
【邮票:】Stefan Schoppmann
【字迹模糊】
【难以辨认】伍珀塔尔
电话:02 02-4086666
传真:0202-40866619
office@schoppmann.one
出租人的签名
 
杜塞尔多夫,2021年12月26日
 
/s/授权签字人
雪松欧洲有限公司
承租人的签名

【首字母】20

可直接执行的担保

                                                                                                                                                                                                                                                                   
租赁财产:                                                                                                                                                                                                                                        
租赁协议订立日期:                                                                                                                                                                                             
话虽如此,我们/我假设1                                                                                                                                                                                                                  
                                                                                                                                                                                                                                                                   
                                                                                                                                                                                                          (担保人的姓名和地址)
可直接执行的担保                                                                                                                                                                                              
                                                                                                                                                                                                                                                      (出租人)
公司的负债                                                                                                                                                                                                                                    
(承租人)

从上述租赁协议中,对租赁关系产生的所有索赔,包括终止租赁关系,特别是租金,包括运营成本,增值税,保证金,损害赔偿,使用索赔,欠款利息,法律诉讼费用和强制执行费用,包括任何租金上涨,也可以在租赁协议延期的情况下。担保人放弃在租赁协议的整个期间以及租赁终止或租赁方使用后六个月内终止租赁协议的权利。担保期限不限。
担保项下的权利应转移给该财产的买方,或者,如果出租人因法律或合法交易而变更,则转移给新出租人的人。
我们承诺/我承诺*付款在第一次需求时.
这意味着,如果债权人以书面形式通知我/我们*债权人对主要债务人有付款要求,并提供理由和金额,我/我们就有义务向该债权人付款.因主债务人与债权人之间的租赁而产生的任何事实和法律性质的异议和争议,其答案并不是不言自明的,也没有通过无争议的或最终的判决得到解决,应在担保人与债权人之间的潜在追偿程序中解决。


担保人的地点、日期和签字


 
附录
 
i.
《德国民法典》第545条对租约的默示延长
承租人在租赁期届满后继续使用租赁物的,租赁期限不定,除非一方在两周内向另一方声明相反的意思表示。这段时期开始了。
1
对于继续使用的承租人,
2
对于出租人而言,当出租人开始意识到该延续时。
 
ii.
2003年11月25日版本的《运营成本条例》。【联邦法律公报】2003年,第2346页,第2347页)
(1)
运营成本是指业主或租赁持有人持续发生的与财产所有权或租赁权有关的成本,或与建筑物、附加建筑物、设备、设施和财产的预期用途有关的成本。业主或租赁人提供的实物和工作贡献,可以设定为第三方,特别是公司,为同等业绩收取的金额,但是,这种第三方的销售税不得包括在内。
(2)
运营成本不包括:
1.
管理建筑物和设施所需的人力成本、监督成本、出租人亲自进行的管理工作的价值、对年度财务报表进行法定或自愿审计的成本和管理成本(管理成本),
2.
在使用寿命内为保存预定用途、适当消除因磨损、老化和天气暴露而产生的结构缺陷或其他缺陷而发生的费用(维护和修理费用)。
2营业成本表
1所指的运营成本是:
1.
目前公共开支的财产,
这尤其包括土地税;
2.
水供应的成本,
这包括用水成本、基本费用、租用费用或使用水表的其他类型的费用,以及水表的使用成本,包括校准成本以及计算和分配成本,水流量调节器的维护费用,运行内部供水系统和水处理厂的费用,包括准备材料;
3.
排水的成本,
这包括房屋和土地排水费,运行相应的非公共系统的成本和运行排水泵的成本,
4.
的成本
a)
包括排气系统在内的集中供暖系统的运行情况,
这包括消耗的燃料及其交付的费用、当前运行的费用、系统的运行、监测和维护的费用、对其运行准备状态和运行安全的定期检查,包括由技术人员进行设置的费用,系统和操作区域的清洁,根据《联邦豁免保护法》进行测量的费用,用于记录消耗的设备的租金或其他类型的使用费用,以及用于记录消耗的设备的使用费用,包括校准成本以及计算和分配成本,或
b)
中央燃料供应系统的运行情况,
这包括消耗的燃料及其输送的成本,运行电流的成本和监控的成本,以及清洁系统和运行区域的成本,独立商业供热的成本,包括来自字母(a)所指的系统,这包括供热费用和按照字母(a)操作相关房屋系统的费用,或
 
地暖系统及个别燃气灶的清洁及保养,
这包括清除系统中的积水和燃烧残留物的费用,定期审查行动准备状态和行动安全的费用以及由专家进行相关设置的费用,以及根据联邦扣押保护法进行测量的费用;

【首字母】21

5.
的成本
a)
中央热水供应系统的运作,
这包括第2项规定的供水费用(如果该费用未包括在第2项下)和第4(a)项规定的水加热费用)
b)
独立的商业温水供应,包括来自字母(a)所指的系统,
这包括暖水供应费和按照项目4(a)操作相关住宅系统的费用。
c)
温水设备的清洗和维护.
这包括清除设备内积水和燃烧残留物的费用,定期审查操作准备状态和操作安全以及由专家进行相关设置的费用;
6.
相关供暖和热水供应系统的成本
a)
就第4(a)项及第2项所指的中央供暖系统而言,如该等费用并未包括在该等项目下,或
b)
在根据第4(c)项和第2项独立商业供热的情况下,只要该费用未包括在这些项目下。
c)
如果是按照项目4(d)和项目2连接的地板供暖系统和热水供应系统,但该费用未包括在这些项目下;
7.
载客或载货电梯的运行费用。
这包括当前运行的费用,系统的监督、运行、监测和维护费用,对其运行准备状态和运行安全的定期检查,包括由专家进行设置的费用,以及系统的清洁费用;
8.
街道清洁和垃圾处理的成本,
街道清洁费用包括公共街道清洁所需支付的费用和相应的非公共措施的费用;垃圾处理费用特别包括垃圾收集所需支付的费用,以及相应的非公共措施的费用,废物压缩机、废物处理槽、废物提取系统的运行成本,以及废物收集设备的运行成本,包括计算和分配成本;
9.
清洁建筑和控制虫害的成本,
清洁大楼的费用包括由居民分担的大楼部分的清理费用,如入口、走廊、楼梯、地下室房间、阁楼房间、洗衣设施、电梯;
10.
维护花园的费用,
这包括园艺美化区域的养护费用,包括更换植物和树木,操场的维护费用,包括更换沙子,以及非公共交通的广场、入口和车道的养护费用,
11.
照明的成本,
这包括室外照明的电费和居民共用的建筑物部分的照明费用,如入口、走廊、楼梯、地下室房间、阁楼房间、洗衣设施。
12.
清洁烟囱的费用,
这包括根据适用的费用条例收取的清洁费,但不包括在第4(a)项所指的费用内;
13.
财产和责任保险的费用,
这包括建筑物火灾、暴风雨、水灾和其他自然灾害的保险费用,玻璃保险费用,建筑物、油罐和电梯的责任保险费用;
14.
看门人的费用,
这包括所有人或承租人为看门人的工作向其支付的报酬、社会保障缴款和所有非现金福利,只要这些工作与维护、修理、更新、美容修理或物业管理无关。如果是由看门人完成的工作,则不能按照第2项至第10项和第16项收取人工费;
15.
的成本
 
a)
社区天线系统的运作,
这包括运行当前的成本和定期检查其运行准备状态的成本,包括由专业人士设置或使用不属于该建筑物的天线系统的费用,以及根据版权法适用的电缆重传的费用,或
 
b)
与宽带有线网络连接的私有分配系统的运行。
这包括根据(a)款支付的费用,以及宽带有线连接的每月基本费用;
16.
洗衣设施的运营成本,
这包括运营成本,设施的监测、维护和清洁成本,对其运行准备状态和运行安全的定期检查,以及根据项目2的供水成本,如该等费用并未包括在本项目下;
17.
其他运营成本,
这包括不包括在第1项至第16项下的1含义内的运营成本。
 
iii.
摘自2009年10月5日公布的《供暖费用条例》。2009年1月1日,第3250页及以下各页)

供热成本的分配

(1)
集中供热系统运行费用的50%以上、70%以下,应当按照用户用热量的记录进行分配。不符合1994年8月16日的《隔热条例》(Wärmeschutzverordnung)要求的建筑物。(第2121页)规定,如果集中供热系统是由石油或天然气供热系统提供的,并且热分配系统的裸露管道大部分是隔热的,则集中供热系统运行费用的70%应根据用户的记录热耗来分配。在建筑中,热分配系统的裸露管道大多没有隔热,因此是一个有相当比例的热耗未被记录,用户的热耗可根据公认的技术规则确定。.以这种方式确定的各个用户的消耗应被考虑为根据第1句记录的热量消耗。其余费用按居住、使用面积或者封闭空间分配;也可以居住、使用面积或者加热室的封闭空间为基础。


(2)
包括排气系统在内的集中供热系统的运行成本包括消耗的燃料及其输送成本、运行电流成本、系统的运行、监控和维护成本,定期检查其操作准备状态和操作安全,包括由技术人员进行设置,系统和操作区域的清洁,根据《联邦豁免保护法》进行测量的费用,用于记录消耗的设备的租金或其他类型的使用成本,以及用于记录消耗的设备的使用成本,包括校准成本以及计算和分配成本。

【首字母】22

分配与消费分析。特别是,消耗分析应反映过去三年供暖和热水供应成本的发展情况。
 
第1款应分别适用于供热成本的分配。
供热费用应包括供热费和根据第2款规定的相关房屋系统的运行费用。
 
8热水供应成本的分配

(1)
中央热水供应系统运行费用的50%以上、70%以下,按记录的热水消耗量分摊,其余费用按生活或使用面积分摊。

(2)
中央热水供应系统的运行成本包括供水成本(除非单独计费)和根据第7条第2款计算的水加热成本。供水成本包括用水成本、基本费用和水表租金、使用中间水表的成本、运行内部供水系统和水处理厂的成本(包括准备材料);

(3)
第1款应分别适用于热水供应费用的分配。

(4)
热水供应费用应包括按照第7条第2款规定的热水供应费和相关住宅系统的运行费用。
10超过最高限额
规定高于第7条第1款和第8条第1款规定的70%最高税率的法律规定不受影响。
 
 
iv.
摘自2009年7月29日修订的2007年7月9日的价格条款法案【Preisklauselgesetz】。i第2355页) 1禁止价格条款
 

(1)
货币债务的数额不能由与约定的货物或者服务不具有可比性的其他货物或者服务的价格或者价值直接、自动地确定。
 
(2)
第1款的禁止不适用于条款,

1.
这就为债务金额的变化程度留出了一定的自由裁量权,允许根据公平原则(保留履约条款)确定新的货币债务金额,
 
3份长期合同
 
(1)
合同中的价格条款
 
1.
关于经常性付款的规定
 
a)
在债权人、债务人或一方当事人的存续期间,
 
b)
在受益人达到收入能力或特定的教育目标之前,
 
c)
直到受益人的退休福利开始,
 
d)
自本合同订立之日起至最后一次付款到期之日止,至少十年,或者

(e)
根据合同,债权人放弃至少十年的普通终止权,或者债务人有权将合同的期限延长至少十年。
 
2.
如果欠款金额是由联邦统计局或土地统计局确定的总生活费用价格指数的变化确定的,或者是由欧洲共同体统计局确定的消费者价格指数的变化来确定的,在第2项所列的情况下,从产生负债到最后到期或在有关当事人死亡后付款之间至少有十年的时间。
 
所有权利由Haus&Grund Rheinland Verlag und Service GmbH,Aachener Str.172,40223德国杜塞尔多夫
电话(0211)4162174-0•传真(0211)4162174-9
电子邮件:info@verlag-hausundgrund.de •互联网:www.verlag-hausundqrund.de
不允许重印、复制或复印,甚至部分复印。
只有在故意和重大过失的情况下,出版商才对财产损失和经济损失承担责任。

【首字母】23

附录A


租约包括8-13号和63-65号停车位。
【首字母】24

【…】租赁区域、地下室、一楼、楼上和屋顶:


【首字母】25


【首字母】26


【首字母】27



【首字母】28