查看原文
免责申明:同花顺翻译提供中文译文,我们力求但不保证数据的完全准确,翻译内容仅供参考!
EX-10.21 5 d451428dex1021.htm EX-10.21 EX-10.21

附件 10.21

租赁协议

本租赁协议(本“租赁”)自2020年8月10日起由特拉华州有限责任公司ARE-MA REGION NO. 59,LLC(“房东”)与特拉华州公司KORRO BIO,INC.(“租户”)签订。

基本租赁条款

 

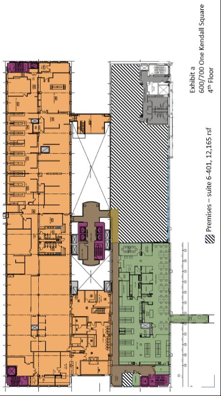
大厦地址:    600/700 One Kendall Square,Cambridge,MA 02139
房地:    项目中建筑物的部分(每个部分定义如下)通常称为套房6-401,包含约12,165平方英尺的可出租面积,由业主厘定,详情见附件 A.
建筑:    600/700 One Kendall Square,Cambridge,MA 02139
项目:    该项目通常被称为肯德尔广场一号,位于业主的附属公司拥有的物业和物业上,作为单一经营混合用途复杂。
基本租金:    房地每平方英尺每年99.00美元,可按第4节下面。
房地可租用面积:12,165平方英尺的可出租面积
项目可租用面积:815,356平方英尺
建筑物的可租用面积:242233平方英尺可出租
建筑物在项目中所占的份额:30.27%
租户份额:5.02%
保证金:$301,083.75
目标开始日期:2021年2月1日;但前提是2020年7月17日之后每延迟一天,目标生效日期应延迟1天,且本租约尚未由双方相互执行。
租金调整   
百分比:    3%
基本期限:    自生效日期起计,自生效日期后第一个完整月的第一天起计36个月届满。为清楚起见,如果生效日期发生在一个月的第一天,则基期应从该日期开始计算。如果生效日期发生在一个月的第一天以外的某一天,则基期应从下一个月的第一天开始计算。
许可使用:    研究和发展实验室、一般办公室和其他符合项目性质并符合第7节这里。


多租户实验室       肯德尔广场一号/科罗–第2页

 

租金支付地址:    业主告示地址:
ARE-MA第59区,有限责任公司    北欧几里得大道26号
邮政信箱944193    加利福尼亚州帕萨迪纳91101
俄亥俄州克利夫兰44194-4193    注意:公司秘书
租客通知地址    租客通知地址
生效日期前:    生效日期后:
纪念大道790号,2A号套房    肯德尔广场一号,600/700号楼
马萨诸塞州剑桥02139    套房6-401
注意:租约管理人    马萨诸塞州剑桥02139
   注意:租约管理人

以下附件和增编附于此,并以此作为参考:

 

[十]表A-房舍描述    [十]表B-财产说明
[十]表C-工作信    [十]表D-ACK。开始日期
[十]表E-规则和条例    [十]表F-租户的个人财产

[ X ] EXHIBIT G-NOTIFICATION OF PRESENCE OF

ASBESTOS Containing Materials

  

1.房地租赁。在符合本租约的所有条款及条件下,业主特此将处所租给租客,而租客特此向业主租赁处所。项目中供大楼租户非专属使用的部分在此统称为“公共区域”。在符合本租约的条款及条件下,承租人有权将公共区域用作其预定用途。除本条例或法律所保留的其他权利外,业主保留不时在租户使用或进入处所不受重大干扰的情况下(紧急情况除外)的权利:(i)对建筑物、物业及工程进行增建或重建,并安装、使用、保养、维修、更换及重新安置处所或建筑物、物业及/或工程的其他部分、管道、管道、导管、电线及附属固定装置,无论位于处所、建筑物、物业或工程的其他地方,包括但不限于此,在房舍天花板的全体会议(如无吊顶,则在房舍任何楼层10英尺以上的空间内)安装该等设施,并在房舍任何部分的天花板或顶面与上述全体会议房舍上方的空间或房舍顶部下方的空间之间安装该等设施;及(ii)更改或迁移任何公用区域或设施。

自生效日期起及之后至租期届满,租客可每周7天、每天24小时进入建筑物及处所,但因法律规定而出现紧急情况、业主进行任何安装、保养或修理或任何其他临时中断的情况除外,并在其他方面受本租约条款的规限。

2.交付;房地验收;开工日期。业主须作出合理努力,在目标生效日期或之前,在业主的工程已基本完成(“交付”或“交付”)的情况下,将处所交付租客。如业主未能及时交付处所,业主无须就其所引致的任何损失或损坏向租客承担法律责任,而除本租约另有规定外,本租约亦不得作废或作废。即使本条例另有相反规定,如业主未能在目标生效日期(如遇不可抗力延误及租户延误,该日期可延展)后60天(“初始减租日期”)或之前将房产交付租户,则业主未能将房产交付租户的初始减租日期(如遇不可抗力延误及租户延误,该日期可延展)后的每一天,基租须予减租,及(ii)在目标生效日期(因不可抗力延误及租户延误,该日期可予延长)后90天(“第二个减租日期”)或之前,基租须于第二个减租日期(该日期可

 

LOGO


多租户实验室       肯德尔广场一号/科罗–第3页

 

因不可抗力延误及租客延误而获延长)指业主未能将房产交付租客。如业主因不可抗力(定义见下文第34条)及租客延迟所致的延迟以外的任何理由,在目标生效日期起计120天内不交付处所,则本租约可由租客以书面通知方式终止,如租客如此终止:(a)保证金或其任何余额(即扣除业主根据本租约条文有权获得的所有款项后),须退还租客;及(b)业主或租客均无任何其他权利,本租赁下的义务或义务,但本租赁终止后明确存在的条款除外。此处使用的术语“房东的工作”、“租户延迟”和“已基本完成”应具有工作信函中对这些术语所述的含义。如果租客没有选择在120天期限届满后5个工作日内终止本租约(由于不可抗力的延误和租客的延误,该日期可能会延长),则终止本租约的权利应予放弃,而本租约应继续完全有效。

“生效日期”须为下列日期中较早的日期:(i)业主向租客交付处所的日期;或(ii)业主本可交付处所的日期,除非租客延误。根据业主的要求,租客须签立并交付一份书面确认书,说明租期的生效日期及届满日期,该书面确认书以本租约所附的“生效日期确认书”的形式确定,作为附件 D;但租客未能签立及交付该确认书,并不影响业主在本租约下的权利。本租赁的“期限”应为上述《基本租赁条款》中所界定的基准期限。

除《工作通知书》第6条另有规定外,业主须准许租客在生效日期前45天内进入该处所,以供租客安装及设置远程/数据线路、家具、固定装置及设备(“FF & E安装”),但该等FF & E安装须与业主协调,且租客须遵守本租约及业主可施加的所有其他合理限制及条件。所有该等出入均须与业主合理协调。租客在生效日期前进入处所,须受本租约的所有条款及条件所规限,但须缴付基本租金或营运费用。

在生效日期后的连续90天内,业主须自行承担任何须对建筑物或建筑物系统(如第13条所界定的)进行的修理的费用及开支(该费用及开支并不构成经营开支),但承租人或任何承租方须负责该项修理的因由,在此情况下,承租人须支付该费用。租客须享有就业主的工作而发给业主的任何保证的利益。

除《工作通知书》所述的情况外:(i)租客须接受处所于生效日期时的状况;(ii)业主无须对处所的任何瑕疵承担任何责任;及(iii)租客接管处所,即为证明租客接受处所,以及在接管处所时处所的状况良好的确凿证据。即使本条另有相反规定,本款并不限制业主根据第13条所承担的保养及修理责任。

租客同意并承认,除本租约另有明文规定外,业主或业主的任何代理人,均未就该处所或工程的全部或任何部分的状况,及/或该处所或工程适合租客经营业务的情况,作出任何陈述或保证,而租客则放弃任何有关该处所或工程适合作许可用途的默示保证。本租约构成业主和租客就本合同标的事项达成的完整协议,并取代本合同未包含的任何和所有先前的陈述、诱因、承诺、协议、谅解和谈判。业主在执行本租约时,是依据承租人在此所载的陈述、保证、确认和协议执行本租约的。

 

LOGO


多租户实验室       肯德尔广场一号/科罗–第4页

 

3.租金。

(a)基本租金。第一个完整日历月的基本租金和保证金应在向业主交付已签署的本租约副本时到期支付。租客须在本合约期间,在每个历月的第一天或之前,以美利坚合众国的合法金钱,在业主办事处,或在业主不时以书面指定的其他人或其他地方,预先向业主缴付基本租金,而无须要求、减免、扣减或抵销。任何部分日历月的基本租金付款应按比例分摊。承租人向业主支付基本租金、额外租金和任何其他款项的义务和业主在本租约下的义务是独立的义务。租客无权在任何时间减租、减租或抵销根据本租约到期的任何租金(如第5条所界定),但本租约明文规定的减租除外。

(b)额外租金。除基本租金外,承租人同意向业主支付额外租金(“额外租金”):(i)自生效日期起,承租人在营运开支中所占的份额(定义见第5条),及(ii)承租人根据本租约的规定承担或同意支付的任何及所有其他款项,包括但不限于在任何适用的通知及补救期后,因承租人有任何失责或未能遵守本租约的协议、条款、契诺及条件而可能到期的任何及所有其他款项。

4.基本租金调整数。

(a)年度调整数。基本租金应在本租期内第一个完整月的第一天(每个“调整日期”)的每个周年日增加,方法是将紧接该调整日期之前应付的基本租金乘以租金调整百分比,并将由此产生的数额与紧接该调整日期之前应付的基本租金相加。经如此调整的基本租金,其后应按本条例的规定支付。任何部分日历月的基本租金调整数应按比例分摊。

(b)额外TI津贴。除租客改善津贴(如工作通知书所界定)外,业主须在符合工作通知书的条款下,向租客提供额外的租客改善津贴(如工作通知书所界定)。自生效日期起,承租人须缴付所需款项,以在基准期间按每年7.5%的利率,按每月等额付款方式,将业主(如有的话)实际资助的额外承租人改善津贴部分全数摊销,利息须自生效日期起计(“TI租金”)。在租约期满或提前终止时尚未支付的任何TI租金,应在本租约期满或提前终止时一次性支付给房东。

5.业务费用付款。业主须向租客交付租期内每个历年的营运开支书面估计(“年度估计”),业主可在该历年不时修订该估计数。自生效日期起,租客须向业主支付相当于租客在年度估价中所占份额的1/12的款额,其后在租期内的每个月的第一天继续支付。任何部分日历月的付款应按比例分摊。

“营运开支”一词是指业主在每个历年就该建筑物及物业而招致或累积的所有任何种类或种类的成本及开支(包括业主就该工程项目而招致或累积的并非该建筑物或物业或位于该工程项目内的任何其他建筑物或物业的所有种类或种类的成本及开支,但不重复,亦包括(u)税项(如第9条所界定),(v)旨在促进和保护健康和身体健康的建筑物或工程的升级或在建筑物和/或工程提供的强化服务的费用,(w)费用(包括但不限于任何商业上合理的补贴)

 

LOGO


多租户实验室       肯德尔广场一号/科罗–第5页

 

业主可就工程设施提供的任何现有或未来的公共区域设施(“工程设施”);(x)基本维修、更换及改善工程设施,按该等基本设施项目的10年或使用年限(须在15年内摊销的屋顶基本维修、更换及改善工程设施除外)中较低者摊销,并经调整以反映大厦每日24小时、每周7天及每年365天的运作情况(但业主就任何基本维修工程而招致或累积的营运费用须予计算),为促进可持续发展(例如,但不限于通过减少项目的能源使用)(一种“资本可持续性支出”)而进行的替换或改善,可由业主自行决定在较短期间内摊销,但资本可持续性支出的成本被运营费用的减少所抵消),(y)运输服务,以及(z)业主的第三方物业经理的成本(不超过基本租金的3.0%),或者,如果没有第三方物业经理,管理租金为基本租金的3.0%,仅不包括:

(a)租赁日期前的工程及翻新工程的原建造费用,以及纠正原建造或翻新工程的缺陷的费用;

(b)扩大项目的资本支出;

(c)业主的利息、按揭(如第27条所界定)债项的本金支付、融资费用及业主借入的资金(不论是否有担保)的摊销,以及根据任何地租或工程的全部或任何部分的其他基础租约而支付的基本租金(但不包括税项或营运开支);

(d)项目折旧(基本建设改进除外,基本建设改进的费用包括在业务费用中,并按上述规定摊销);

(e)广告、法律和空间规划费用和租赁佣金以及为项目向租户采购和租赁空间而发生的其他费用和开支,包括项目内维持的任何租赁办公室、租户的免费租金和建筑津贴;

(f)在就租约进行谈判或强制执行时所招致的法律及其他开支;

(g)完成、固定、改善、翻新、粉刷、重新装潢或其他工程,而该等工程是业主为其处所内的其他租客支付或进行的,以及纠正该等工程的缺陷的费用;

(h)工程的其他承租人须偿还的费用或工程的承租人或其他承租人须直接缴付的税款,不论是否实际缴付;

(i)支付予(i)对工程项目负有日常管理责任的人(不论其职衔为何)职位以上的业主或其代理人或承建商的人员的薪金、工资、福利及其他补偿,或(ii)业主或其附属公司的高级人员及雇员,而他们并没有全部或部分获指派负责工程项目的运作、管理、保养或维修,但就任何该等人而言,如他或她并没有将其受雇时间基本上全部投入工程项目,则该等人的薪金、工资及其他补偿,此人的福利和其他报酬应按比例分配,以反映在与项目的运营、管理、维护或维修有关的事项上所花费的时间,与在与项目的运营、管理、维护或维修无关的事项上所花费的时间相比较;

(j)与维持业主作为公司、合伙企业或其他实体的存在有关的一般组织、行政和间接费用,包括一般公司、法律和会计费用;

 

LOGO


多租户实验室       肯德尔广场一号/科罗–第6页

 

(k)因与租客、其他占用人或潜在租客的纠纷而招致的费用(包括律师费及和解费用、判决及代付款项),以及因与该建筑物或物业的雇员、顾问、管理代理人、租赁代理人、购买者或抵押人的谈判或纠纷而招致的费用及开支,包括法律费用;

(l)业主因业主、其雇员、代理人或承建商或任何租客违反工程计划内任何租位的条款及条件或任何法律规定(如第7条所界定)而招致的费用;

(m)因业主无力或未能在到期时缴付税款及(或)提交任何税项或资料申报表而招致的罚款、罚款或利息,或因业主未能缴付根据本条例须缴付的税款而招致的罚款、罚款或利息;

(n)就工程项目内或工程项目内的货品及/或服务而付给业主或业主的附属公司或附属公司的间接费用及利润增加,但以超出非附属第三方在竞争基础上提供的该等货品及/或服务的成本为限;

(o)业主的慈善捐款或政治捐款的费用,或工程计划内保存的艺术品的费用;

(p)与某类服务(包括电力)、物品或其他利益有关的费用,而该等服务、物品或利益并非工程的标准,而承租人无须为此而收取具体费用,而该等服务、物品或利益是提供予工程的另一承租人或占用人的,不论该另一承租人或占用人是否由业主为此而收取具体费用;

(q)在出售或再融资该物业或工程项目时所招致的费用;

(r)业主或该物业或工程的任何权益的拥有人的净所得税、专营权、股本、赠与、遗产或遗产税,或针对该物业或工程或其任何部分或其中的权益而征收的任何联邦、州或地方单证税;

(s)因业主的严重疏忽或故意失当而招致的费用;

(t)任何坏账损失、租金损失及任何种类的预留款项;

(u)依据工程通知书进行的业主工程的费用;

(v)为移走、研究、测试或补救而招致的任何费用,或与根据本租约承租人无须负责的建筑物或工程项目内或其周围存在的危险物料有关的费用;及

(w)任何以其他方式可包括在营运开支内的开支,但以工程计划承租人以外的人根据工程计划内的空间租约而实际偿还的为限。

业主须在每个历年结束后的90天内(或合理需要的较长期间),向租客提供一份报表(一份“年度报表”),以合理详细列明:(a)上一个历年的实际营运开支总额及租客所占的份额,及(b)租客就该年度的营运开支所支付的款项总额。如果租户在该年度的实际经营费用中所占份额超过租户在该年度的经营费用付款,则超出部分应在该年度报表交付租户后30天内作为租金由租户支付。如果承租人在该年度支付的营运费用超过承租人的份额

 

LOGO


多租户实验室       肯德尔广场一号/科罗–第7页

 

业主须在该年度报表交付后30天内,将超出部分支付予租客,但在租期届满后,或在租期提前终止后,或如租客拖欠其缴付租金的义务,则业主须在扣除所有其他应付款项后,将超出部分支付予租客。业主和租客支付根据本款应支付的任何多付款项或欠付款项的义务,在本租约期满或提前终止后仍然有效。

年度报表为最终报表,对租客具有约束力,除非租客在收到报表后90天内对报表内的任何项目提出异议,须向业主发出书面通知,指明有争议的每一项目及其理由。如在该90天期间,承租人合理地及真诚地质疑或质疑业主就承租人在经营开支中所占份额所作的陈述的准确性,则业主须向承租人提供查阅业主与工程项目的运作有关的簿册及纪录,以及业主合理地认为可回应承租人所提问题的资料(“费用资料”)。如果在承租人审查这些费用信息后,业主和承租人不能就承租人在经营费用中所占份额的数额达成一致,则承租人有权要求由承租人选定并经业主批准的区域或国家认可的独立公共会计师事务所(该批准不得无理拒绝或延迟),按照非或有费用(由承租人单独承担费用和开支)以外的费用安排开展工作,审计和/或审查有关年度的费用信息(“独立审查”)。任何该等独立覆核的结果,对业主及租客均具约束力。如独立覆核显示租户就有关历年的营运开支而实际支付的款项,超过租户在该历年的营运开支中所占的份额,则业主须根据业主的选择,(i)将超出部分记入下一期的估计营运开支,或(ii)在交付上述声明后30天内,将超出部分支付予租户,但在本租约期满或提前终止后,或如租户拖欠其支付租金的义务,则属例外,业主须在扣除业主应缴付的所有其他款项后,将超出部分缴付予租客。如果独立审查显示,租户就该日历年度的营运费用支付的款项少于租户在该日历年度的营运费用中所占的份额,租户应在该报表交付后30天内向业主支付不足部分。如独立覆核显示承租人已就营运开支多付逾5%,则业主须向承租人偿还承租人就独立覆核而招致的所有费用。承租人分担义务开始和结束的历年的营业费用应按比例分摊。即使本条例另有相反规定,如大厦在任期内任何一年的平均占用率不少于95%,租客在该年度的营运开支中所占的份额,须计算得犹如大厦在该年度的平均占用率为95%一样。

“承租人份额”应为《基本租赁条款》中规定的作为承租人份额的百分比,而“建筑物在项目中的份额”应为《基本租赁条款》中规定的作为建筑物在项目中的份额的百分比,每一份额均可由业主根据房产、建筑物、物业或项目的实际规模在其后发生的变化进行合理调整。业主可公平地增加承租人应偿还的任何费用或费用项目的承租人份额,这些费用或费用项目涉及的维修、更换或服务仅对房舍或包括房舍在内的建筑物、物业或项目的一部分有益,或随占用或使用情况而变化。如业主有合理的理由这样做,业主可公平地增加建筑物在工程中的份额,以支付租客可偿还的任何费用或费用项目,而该费用或费用项目只涉及建筑物的维修、更换或服务,或仅涉及包括建筑物在内的部分财产或工程,或因建筑物的占用或使用情况而变化。基本租金、承租人的经营费用份额以及承租人应支付给房东的所有其他款项在此统称为“租金”。

6.保证金。承租人在向业主交付已签立的本租约书副本后,须向业主缴存保证金(“保证金”),以履行承租人在本合约下的所有责任,款额须按《基本租赁条文》所列的款额缴付,而该保证金须以无条件及不可撤销的信用证(“信用证”)的形式缴付:(i)在形式及实质上均令业主合理满意;(ii)指定业主为受益人;(iii)通过向签发人递交通知,明确容许业主在任何时间向签发人提款

 

LOGO


多租户实验室       肯德尔广场一号/科罗–第8页

 

有权根据该规定提款,(iv)由业主满意的FDIC保险金融机构签发,以及(v)可在马萨诸塞联邦以即期汇票方式赎回。如果承租人在任何当时的信用证规定的到期日期前至少10天没有向房东提供符合本合同所有要求的替代信用证,房东有权提取目前信用证的全部金额,并将提取的资金以现金形式持有,无需支付利息作为保证金。保证金应由业主持有,作为承租人履行本租约义务的担保。保证金不是预付租金,也不是在租户违约的情况下衡量房东损失的指标。在每一次违约(如第20条所界定)发生时,业主可使用全部或任何部分保证金支付根据本租约应支付的拖欠款项、未来租金损害赔偿金以及因违约而造成的任何损害、伤害、费用或赔偿责任的费用,但不影响本合同或法律规定的任何其他补救办法。在使用全部或任何部分保证金后,承租人须在业主提出书面要求后5个营业日内,向业主支付使保证金恢复至《基本租赁条文》所列数额的款额。租客在此放弃现行或以后生效的任何法律的条文,该等条文规定,业主只可向保证金索偿合理需要的款项,以弥补拖欠租金的情况、修复租客造成的损坏或清理处所,但经同意,业主还可索偿合理需要的款项,以补偿因租客或租客的任何高级人员、雇员、代理人或受邀请人的作为或不作为而引起的任何其他可预见或不可预见的损失或损害。在针对承租人的破产或其他债务人-债权人法律程序中,保证金应被视为首先用于支付在该法律程序提出前的一段期间内应由业主支付的租金和其他费用。如承租人须全面履行本租约须由承租人履行的每一项条文,则保证金或其任何余额(即扣除业主根据本租约条文有权享有的所有款额后),须在本租约期满或提前终止后60天内退还承租人(或由业主选择退还承租人在本租约下的权益的最后受让人)。

如业主转让其在工程或本租约中的权益,业主须(a)将当时由业主持有的任何保证金,转让予承担业主根据第6条所承担的义务的人或实体,或(b)将当时由业主持有并在扣除本条所容许的扣除额后余下的任何保证金,退还承租人。在此种转让给该受让人或将保证金退还承租人后,业主对保证金不再负有任何义务,而承租人要求退还保证金的权利仅适用于业主的受让人。保证金不是预付租金,也不是在租户违约的情况下衡量房东损失的标准。业主对保证金的义务是债务人的义务,而不是受托人的义务,不得由此产生利息。

7.使用。

(a)租户的使用。房舍应仅用于《基本租赁条款》中规定的许可用途,并符合现在或以后适用于房舍及其使用和占用的所有法律、命令、判决、法令、条例、法规、守则、指令、许可、执照、契约和限制,包括但不限于《美国残疾人法案》、42 U.S.C. § 12101等(连同据此颁布的条例,“ADA”)(统称“法律要求”,每一项都是“法律要求”)。租客须在业主发出5个营业日的书面通知后,停止使用任何由任何具有司法管辖权的政府当局(如第9条所界定)宣布为违反法律规定的处所。租客不得使用或准许该处所作任何使租客或业主的保险失效、增加保险风险或导致任何洒水装置或其他信贷不获批准的用途或方式。承租人不得允许将房舍的任何部分用作ADA或任何类似法律规定所定义的“公共住宿场所”。承租人如因承租人没有遵从本条的规定,或因承租人使用及/或占用处所而引致额外保费,承租人须在提出要求时,迅速向业主偿还任何该等保险单所收取的额外保费。租客将以审慎、安全及适当的方式使用房舍,不会造成或容许浪费,不会使房舍的地板或构筑物超载,亦不会使房舍使用会损毁房舍或

 

LOGO


多租户实验室       肯德尔广场一号/科罗–第9页

 

妨碍或干扰工程的业主或其他承租人或占用人的权利,包括进行或发出任何拍卖、清盘或停止出售处所的通知,或使用或容许处所作任何非法用途。租客须安排在处所内安装任何设备或机械,以合理地防止来自处所的声音或震动延伸至公共区域或工程的其他空间。未经业主事先书面同意,租客不得将任何重达500磅或以上的机器或设备放置在处所内或处所上,或将该等物品运送或移动通过建筑物的公共区域或建筑物的升降机。除《工程通知书》另有规定外,未经业主事先书面同意,租客不得以任何方式使用该处所,而该等方式将需要通风、空气交换、暖气、煤气、蒸汽、电力或水,超出建筑物的现有容量,按通常为准许用途而提供的租客份额,按比例分配予该处所。

业主须对工程的处所及公共区域自工程开始日期起符合法律规定(包括ADA)负全责,费用由业主承担,不论何时发现不符合规定。在生效日期后,业主须作为营运费用(在该法律规定一般适用于工程项目所在地区的类似建筑物的范围内)及由租客负担费用(在该法律规定是由于租客与工程项目的其他租客相比,对处所的特定用途或租客的更改而触发的范围内),对该建筑物的公共区域或外部作出法律规定所规定的任何更改或更改。除前两句另有规定外,承租人须自费对房舍或工程的内部或外部作出法律规定所要求的与承租人对房舍的具体使用或占用有关的任何改动或修改(包括但不限于房舍符合《房舍发展法》)。尽管本协议另有相反的规定,承租人须对任何及所有的要求、索偿、责任、损失、费用、开支、诉讼、诉讼因由、损害赔偿或判决,以及在调查或抗辩时所招致的一切合理开支(包括但不限于合理的律师费、收费、支出及诉讼费用)(统称为“索偿”)负责,这些开支是由房屋未能遵守与承租人具体使用或占用房屋或承租人改建有关的法律规定所引起或与之有关的,承租人须作出赔偿及抗辩,持有及保存业主,使其免受任何及所有因处所不符合与租客具体使用或占用有关的法律规定或租客更改有关的法律规定而产生或与之有关的索偿的损害。

(b)能源使用报告。承租人同意在业主提出要求后10个营业日内,提供为遵守《剑桥市建筑物能源使用披露条例》、《剑桥市市政法典》第8.67.010条及其后各条(该条例可予修订,称为《剑桥建筑物能源使用披露条例》)以及剑桥市或对建筑物有管辖权的任何其他政府机构不时采纳的其他能源或可持续性要求所需的资料和文件,该等资料须包括但不限于在房舍内或在房舍内使用电、天然气、蒸汽、热水或冷冻水或其他能源。业主须向适用的政府当局报告有关建筑物的能源使用情况及《剑桥建筑物能源使用披露条例》所规定的其他建筑物的资料。

(c)LEED。承租人承认,业主可(但无义务)寻求就工程及/或处所取得能源及环境设计领导资格(LEED)、WELL建筑标准或其他类似的“绿色”认证,而承租人同意与业主合理合作,而不会令承租人付出任何物质代价,并提供业主合理要求的与此有关的资料及/或文件。

8.坚持。如租客在租期终止后经业主明确书面同意而保留对处所的管有权,(i)除非该书面同意另有约定,否则该等管有权须由业主随时立即终止,(ii)本租约的所有其他条款及条文(包括但不限于依据第4条调整基本租金)

 

LOGO


多租户实验室       肯德尔广场一号/科罗–第10页

 

(iii)承租人须继续缴付基本租金,款额须在本租契届满或提前终止之日支付,或业主在该书面同意书中全权酌情指明的其他款额;及(iv)根据本租契的条款,所有其他款项须继续缴付。如租客在租期届满后或未经业主明示书面同意而继续管有该等处所,(A)租客须按本租约条款成为经宽限的租客,但月租金须相当于租期最后30天内有效的基本租金的150%,另加营运费用;及(B)租客须对业主因租客扣留而蒙受的一切损害,包括相应的损害,负上责任,如租客在租期届满或提前终止前30天内向业主作出书面查询,业主将通知租客是否有可能造成相应损害。除非另有明文规定,否则承租人不论是否经业主同意,所持有的房产,均不得用作延展本租契的行动,而本条不得解释为同意承租人保留对处所的管有权。在租期届满或本租约提前终止后,出租人的接受不会导致本租约的续期或恢复。

9.税收。业主须缴付任何联邦、州、地区、市、地方或其他政府当局或机构,包括但不限于准公共机构(统称“政府当局”)在任期内就工程项目而在工程项目生效日期或其后颁布的所有税项、征费、费用、评估及任何种类的政府收费(统称“税项”),作为营运费用的一部分,包括但不限于所有以下各项税项:(一)全部或部分按工程项目征收、计量或以工程项目为基础,根据本租约向业主支付的租金(或业主收到的毛收入)及/或业主出租建筑物、物业或工程项目或其任何部分的租金,或(ii)基于任何类型的处所、建筑物、物业或工程项目或其部分的面积、评估值或其他计量或评估,或(iii)由处所、建筑物、物业或工程项目的任何部分的营运或维修(包括停车场)评估或施加的租金,或(iv)由法律规定或其解释评估或施加的租金,或在法律规定或其解释的指示下,或由法律规定或其解释导致的租金,由任何政府当局颁布,或(v)作为许可证或其他费用、收费、税收或评估对业主的业务或占用建筑物、物业或项目或其部分的租赁空间征收。业主可通过适当的法律程序,对任何税款或留置权的数额、有效性或适用提出异议。税收不应包括对房东征收的任何净收入、遗产、遗产、赠与、超额利润、跟单转让税、特许经营税或个人财产税,除非这些净所得税取代了根据本协议应缴纳的任何税款。如任何该等税款是直接向承租人征收或评估的,则承租人须负责并须在税务机关规定的时间及方式缴付该等税款。本协议项下的经营费用还应包括就该建筑物、物业或项目向业主提供税务监督服务的费用。租客须在欠税前缴付对租客放置在处所内的任何个人财产或行业固定装置所征收或评估的任何及所有税款,不论该等税款是向业主或租客征收或评估的。如果对承租人的个人财产或行业固定装置征收的任何税款是针对业主或业主的财产征收的,或者如果建筑物、财产或项目的评估价值增加了一个价值,该价值由税务机关归因于房产的改进或变更,无论房产是业主或租户所有,也无论是否附着在该房产上以成为其一部分,都高于业主不时向该建筑物、财产或项目的所有承租人分配税款所依据的基础价值,业主有权(但无义务)缴付该等税款,而该等税款是该等房产的一部分。业主对任何超额估价的裁定应具有约束力和结论性,不存在明显错误。业主支付的任何该等款项,即构成承租人在提出要求后应立即向业主支付的额外租金。

 

LOGO


多租户实验室       肯德尔广场一号/科罗–第11页

 

10.停车和PTDM。

(a)停车费和每月停车费。在符合所有适用的法律规定、不可抗力、占用(定义见下文第19条)、业主行使其在本协议下的权利的情况下,自项目开始之日起,承租人与项目的其他承租人一样,有权在位于宾尼街的肯德尔广场一号车库(“OKS车库”)的停车设施中使用(并须按月缴付停车费(定义见下文),每1,000平方英尺的可出租场地0.9个停车位,该等泊车位须设在指定作非预留泊车位的地方,但在每宗个案中均须遵守业主的规则及规例;但业主可将承租人的任何或全部泊车位从OKS车库移至紧邻OKS车库的另一泊车设施(即在OKS车库的0.25英里范围内)。业主如确定该等泊车设施正变得拥挤,可按上述比例在该工程的租客及其他租客之间分配泊车位。如在租期内,租客向业主递交书面通知,要求增加泊车位,而业主又决定租客希望增加的泊车位可供租客使用,则业主须以书面通知租客,而租客须在业主向租客递交书面通知后,立即开始使用并缴付该等额外泊车位的每月泊车费,以决定该等额外泊车位可供租客使用。业主无须负责向任何第三方,包括工程的其他承租人,强制执行承租人的泊车权。“每月泊车费”是指业主所指定的市价月费,并根据项目附近可比较的泊车设施所收取的月费,在任何12个月期间作出合理调整,调整次数不得超过一次,而预期在开始日期,每月泊车费相当于每个车位每月375.00美元,加上适用的税项。

(b)停车和运输需求管理。该项目目前没有PTDM(定义如下)。如在任何时间实施公共交通运输管理计划,只要剑桥市批准的泊车及交通需求管理计划(经不时修订,称为“公共交通运输管理计划”)适用于该项目,租客须自理费用,在适用于该项目的范围内,遵守该计划,包括但不限于此,在适用的情况下(i)提议按照《公共交通运输管理条例》规定的条款,为在该处所工作的所有雇员提供公共交通月票补贴;(ii)实施通勤选择计划和MBTA的公司通行证计划;(iii)不鼓励其雇员使用单人车辆;(iv)推广替代交通方式和使用替代工作时间;(v)应房东的要求,每季度不超过一次与房东和/或其代表会面,讨论交通计划和举措;(vi)参加年度调查,监测校园内的交通计划和举措,以及,在不受限制的情况下,达到60%的顾客调查回应率;(vii)与房东合作,执行根据《公共交通运输管理条例》颁布的交通计划和举措;(viii)为员工提供替代工作计划(如远程办公、弹性工作时间和压缩工作周),以减少通勤高峰期间对剑桥交通的影响;(ix)通过查尔斯河运输管理协会提供紧急乘车回家服务,或有自己的ERH计划,对于每周至少3天以非SOV模式通勤并有资格在上述停车设施的停车位停车的所有雇员;(x)与剑桥劳动力发展办公室合作,扩大剑桥居民的就业机会;(xi)成为CRTMA的成员,并促使EZ Ride班车服务于大厦;(xii)如果超过了PTDM的单人占用车辆和交通生成模式划分限制,向每名泊车位使用者收取在肯德尔广场/东剑桥泊车的市价;(十三)遵守租户可能不时参与的任何其他泊车及交通需求管理计划的规定;(十四)为大厦指定一名雇员交通协调人;及(十五)以其他方式与业主合作,鼓励雇员寻找其他交通方式。

11.公用事业,服务。

(a)一般。业主须在符合本条第11条的规定下,提供水、电、热、通风、空调、照明、电力、污水渠及其他公用设施(包括供该等服务使用的燃气及消防喷头),以及垃圾及垃圾收集及清洁服务(统称为“公用设施”)。业主须缴付作为经营开支或受

 

LOGO


多租户实验室       肯德尔广场一号/科罗–第12页

 

承租人对房舍内使用的所有公用设施、公用设施的所有维修费、任何政府当局或公用设施供应商对公用设施征收的任何雨水渠费用或其他类似费用,以及对此征收的任何税款、罚款、附加费或类似费用的偿还义务。处所须分别计量,以计量租客对电灯及插头的用电情况。业主可安排由业主负担费用,将任何其他公用设施另行计量或由供应商直接向租客收取费用。自生效日期起,租客须在拖欠款项前,直接向公用设施供应商缴付在租期内可向租客或处所提供的任何单独计量的公用设施及服务。租客须支付其在共同计量公用设施的所有费用中所占的份额,作为营运费用的一部分,该部分费用是由业主以诚信合理地厘定的,而空气、废气、暖气及冷气的消耗量则是由第三方工程师依据根据有关处所的设计消耗量所作的工程计算而厘定。任何事业的中断或失败,均不会导致迁离或推定迁离租客、终止本租约或减租。租客同意将公共区域的水和下水道的使用限制在正常的厕所使用范围内。即使本租契另有相反规定,租客须负责向业主支付向处所提供的清洁服务的费用。

尽管本条例另有相反规定,但如(i)该处所的基本服务(定义见下文)出现中断,而此种中断完全是由于业主的重大疏忽或故意的不当行为,而不是由于租户或任何租户一方的任何作为或不作为,或任何超出业主合理控制范围的事项(基本服务的任何此种中断在下文称为“服务中断”),(ii)该服务中断在业主接获租客的书面通知后持续超过连续5个营业日,及(iii)由于该服务中断,租客在处所内的正常运作受到重大及不利的影响,则在该5个营业日之后,该服务中断持续的每一天的基本租金均须减收;但条件是,如处所的任何部分可合理地用于租客的正常业务,或即使服务中断,租客仍在处所的任何部分进行其全部或任何部分的业务,则每日减免基本租金的款额,只须与租客的正常业务或使用处所的能力的中断的性质及程度相称。根据本款授予承租人的权利,是承租人因业主不提供服务而获得的唯一和排他性补救,而业主无须对承租人因服务不能提供或停止而蒙受或蒙受的任何损失或损害负法律责任。为本合同的目的,“基本服务”一词是指下列服务:暖通空调服务、水、下水道和电力,但在每一种情况下,仅限于业主根据本租约有义务向承租人提供同样服务的范围。本款的规定只适用于原承租人是根据本租约占用处所的租客,而不适用于任何受让人或分租人。

租户同意每月向房东提供租户的水和/或能源使用数据,方法是向房东的Measurabl在线门户网站提供租户适用的公用设施登录凭据,或采用房东和租户合理同意的其他交付方式。业主在接收和分析水和/或能源使用数据方面所发生的费用和开支(包括但不限于根据适用的法律要求可能需要的费用)应列为业务开支的一部分。

(b)发电机。业主提供应急发电机或向租客提供应急备用电力的唯一责任是:(i)提供应急发电机,其容量不少于截至生效日期位于建筑物内的应急发电机的容量;及(ii)与第三方订立合约,按照制造商的标准维修指引维修应急发电机。除前一句另有规定外,业主没有义务向租客提供可操作的应急发电机或备用电源,或监督、监督或确认维修应急发电机的第三方是否按照制造商的标准准则或其他方式维修发电机。房东应,

 

LOGO


多租户实验室       肯德尔广场一号/科罗–第13页

 

应承租人的书面要求(每个历年不超过一次),提供紧接业主收到承租人书面要求前12个月的维修合同和应急发电机维修记录,供承租人查阅。在更换、修理或保养紧急发电机的任何期间,当紧急发电机无法运作时,包括因无法取得零件或更换设备而造成的任何延误,业主没有义务向租客提供备用发电机或备用发电机或备用电源。租客明确承认并同意,业主并不保证该等紧急发电机在任何时候都可使用,或在需要时可向房舍提供紧急电力。在任何情况下,如任何紧急发电机或备用电源或其任何更换发生故障或不能提供足够的电力,业主不得就承租人或任何该等其他人所蒙受的任何类型的损害,向承租人或任何其他方承担法律责任,不论该损害是实际的或间接的。

(c)压缩空气。业主须依据本租约的条款及条件,向租客提供非专属进入压缩空气系统的机会,该压缩空气系统与大厦内其他租客空间共用,为处所服务。承租人承认并同意该压缩空气系统须与工程的其他承租人共用。承租人支付其分担的持续经营费用的义务,应按比例分配给承租人和其他使用承租人,承租人的份额应根据房地可出租面积与房地和所有其他使用承租人房地可出租面积之和的比率来分配。业主向租户提供压缩空气系统的唯一义务是与第三方签订合同,按照制造商的标准维护准则维护压缩空气系统。业主没有义务监督、监督或确认维护压缩空气系统的第三方是否按照制造商的标准准则或其他方式维护压缩空气系统。在压缩空气系统的任何更换、修理或保养期间,如该压缩空气系统不能运作,包括由于无法取得零件或更换设备而造成的任何延误,业主无须向租客提供任何其他的压缩空气系统。租客明确承认并同意,业主并不保证该压缩空气系统在任何时候均可运作,亦不保证该压缩空气系统在需要时可供房舍使用。

(d)酸中和系统。业主须根据本租约条款及条件,向租客提供非专属使用本租约日期已存在的酸中和系统(“酸中和系统”)的途径。租户承认并同意与项目的其他租户共享酸中和系统。承租人支付其分担的持续经营费用的义务,应按比例分配给承租人和其他使用承租人,承租人的份额应根据可租用房舍的面积与可租用房舍和所有其他使用承租人的房舍面积之和的比例分配,但业主可随时和不时根据承租人和其他使用酸中和系统的承租人的使用情况公平地调整这种分配。业主向租户提供酸中和系统或任何酸中和系统设施的唯一义务是(“酸中和义务”):(i)作出合理努力,取得并维持马萨诸塞州水资源管理局所要求的通过酸中和系统排放的许可证(“排放许可证”),但租户须与业主合理合作,并提供与排放许可证有关的一切合理必要资料和文件;(ii)与第三方订立合同,以维持酸中和系统按制造商的标准维护准则运行。尽管本合同另有相反规定,但如果必须更换酸中和系统,而其费用不包括在该第三方维修合同中,则业主应更换酸中和系统,但须确认,承租人应承担与此有关的所有费用中的份额,作为营业费用。

 

LOGO


多租户实验室       肯德尔广场一号/科罗–第14页

 

承租人、其雇员、任何承建商、转租人、受邀者或除业主或业主承建商以外的任何一方使用酸中和系统,须由承租人独自负责,而承租人须与其他使用承租人共同及分别负责使用酸中和系统。承租人须按照本租约及所有适用的法律规定、排放许可证及政府当局就承租人使用或适用于承租人使用酸中和系统而发出的任何许可证及批准,使用酸中和系统,并促使受其控制或由其负责的其他各方使用酸中和系统。租客不得采取任何会导致违反《排放许可证》或适用于酸中和系统的任何其他许可证或法律规定的行动或不作为。承租人遵守适用的许可证和法律要求的情况应包括但不限于在房舍内的所有水槽张贴标志,其中载有关于使用水槽排水沟处置化学品和其他危险材料的适用通知。承租人须维持化学品管理计划,禁止不当排放或处置化学品。承租人须训练房舍内的所有化验室人员如何妥善处置化学品及其他危险物料。业主保留在任何时间及不时要求限制及限制租客向酸中和系统排放的权利,而该等限制及限制是业主合理地决定为酸中和系统的运作所必需的。应允许业主及其承包商和顾问定期取样所有受适用于酸中和系统的许可证管制的物质,包括但不限于马萨诸塞州水资源管理局(“MWRA”)颁发的排放许可证,或业主自行斟酌认为适当的物质。业主及其承建商和顾问须获准定期检查位于房舍内的酸中和系统及其排放点和连接。如业主根据与酸中和系统有关的条件提出要求,租客须迅速向业主提供其危险物料清单的最新资料(定义见下文第30(b)条)。如有任何流量或物业的改变,可能会影响到酸中和系统的运作,或影响到适用的许可证或法律规定的遵守,租客须迅速通知业主,包括但不限于已知或合理地认为不符合规定的排放,租客在处所的运作的改变,以及增加新的设备,如笼式清洗器、玻璃清洗器或高压灭菌器。

(如本租约第28条所界定的)《退役和关闭危险品计划》的范围应包括为适当清洁、退役和停止租户使用酸中和系统而采取的一切行动,本租约下关于交出房舍的所有规定也应适用于租户停止使用酸中和系统的情况,不论是否在租约期满时,终止或终止前(但如其他租客或占用人在租约期满或提前终止后仍继续使用酸中和系统,则租客无须完成酸中和系统的退役,亦无须负责或承担因租客以外的任何一方使用酸中和系统而引起的退役费用;如有多名租客使用酸中和系统,则业主须负责完成该系统的退役,而承租人须在发票发出后三十(30)天内,向业主缴付承租人应分担的合理的、实际的拆卸费用,而拆卸费用的基础是该等物业的可出租面积与该等物业及所有其他使用物业的物业的可出租面积的比率)。根据本租约承租人就酸中和系统所承担的责任,须与上述其他承租人共同承担,但如承租人能证明业主合理信纳,承租人或任何承租人一方并无导致、促成或加剧该事项,而承租人若不对此例外负责,则属例外。在不以任何方式限制酸中和义务的情况下,业主没有义务向租户提供可运行的应急或备用酸中和设施,或监督、监督或确认维护酸中和系统的第三方正在按照制造商的标准准则或其他方式维护该系统。在更换、修理或保养酸中和系统的任何期间,如该系统不能运作,包括因无法取得零件或更换设备而造成的延误,业主无须向租客提供备用系统或设施。租客明确承认并同意,业主并不保证此种酸中和系统在任何时候都能运行,或在需要时可供房舍使用。在不以任何方式限制酸中和义务的情况下,在任何情况下,如果酸中和系统或备用系统(如有的话)或其任何替换系统不能或不能以符合租户要求的方式运行,业主不得就租户或任何其他人所遭受的任何类型的损害(不论是实际的还是相应的)向租户或任何其他方承担法律责任。

 

 

LOGO


多租户实验室       肯德尔广场一号/科罗–第15页

 

(e)真空系统。业主须依据本租约的条款及条件,向租客提供非专属的进入真空系统的机会,该真空系统与处所所在楼层的其他处所共用,为处所服务。承租人承认并同意该真空系统须与工程的其他承租人共用。承租人支付其分担的持续经营费用的义务,应按比例分配给承租人和其他使用承租人,承租人的份额应根据房地可出租面积与房地和所有其他使用承租人房地可出租面积之和的比率来分配。业主向租户提供真空系统的唯一义务是与第三方签订合同,按照制造商的标准维护准则维护真空系统。业主没有义务监督、监督或确认维护真空系统的第三方是否按照制造商的标准准则或其他方式维护真空系统。在真空系统的任何更换、修理或保养期间,如真空系统不能运作,包括因无法取得零件或更换设备而造成的延误,业主无须向租客提供任何其他真空系统。租客明确承认并同意,业主并不保证该真空系统在任何时候都能运作,或在需要时该真空系统可供房舍使用。

(f)RODI供水系统。业主须根据本租约条款及条件,向租客提供非专属的RODI供水系统,该供水系统与物业所在楼层的其他物业共用。承租人承认并同意该RODI供水系统应与项目的其他承租人共享。承租人支付其分担的持续经营费用的义务,应按比例分配给承租人和其他使用承租人,承租人的份额应根据房地可出租面积与房地和所有其他使用承租人房地可出租面积之和的比率来分配。业主向租户提供RODI供水系统的唯一义务是与第三方签订合同,按照制造商的标准维护准则维护RODI供水系统。业主没有义务监督、监督或确认维护RODI供水系统的第三方是否按照制造商的标准准则或其他方式维护RODI供水系统。在RODI供水系统的任何更换、修理或保养期间,当RODI供水系统无法运作时,包括由于无法取得零件或更换设备而造成的任何延误,业主没有义务向租客提供任何替代的RODI供水系统。租客明确承认并同意,业主并不保证该RODI供水系统在任何时候都可以使用,或在需要时可向房舍提供RODI供水系统。

(g)货运电梯/装卸码头。租客可在货梯及装卸码头的正常运作时间(每周7天、每天24小时)内,与其他有权使用货梯及装卸码头的人共用货梯及装卸码头,但不收取额外费用,但须停运以进行保养及维修。

12.改建和租户财产。由租客或代表租客对房舍所作的任何更改、加建或改良,包括在房舍的任何门窗上附加任何种类或性质的锁或螺栓,但不包括安装、拆卸或重新调整家具系统(业主拥有或支付费用的家具系统除外),而不涉及对建筑物的结构或连接(如第13条所界定的普通插头或插孔除外)所作的任何修改(“更改”),须经业主事先书面同意,如任何该等更改影响到结构或建筑系统,则可由业主自行决定给予或拒绝给予该等更改,但在其他方面,不得无理地拒绝、限制或延迟给予该等更改。如业主批准任何改建工程,业主可就该等改建工程的展开、进行及完成,向租客施加业主在其合理酌情决定权范围内认为适当的条件。任何批准请求均应以书面形式提出,在任何拟议施工之前不少于15个工作日交付,并附有有关改建的性质和费用的图则、规格、投标建议书、工程合同和其他资料。

 

LOGO


多租户实验室       肯德尔广场一号/科罗–第16页

 

业主合理要求,包括所有进行工作或提供物料的人的身分及通讯地址。业主有权审查图则、规格及监督建筑,完全是为了其本身的利益,而业主并无责任确保该等图则、规格或建筑符合适用的法律规定。承租人须自费安排所有改建工程符合保险规定及法律规定,并须自费实施任何改建工程所需的法律规定所规定的任何更改或更改。租客须按要求向业主缴付额外租金,款额相当于业主就每项改建而招致的合理自付费用。在租客开始任何更改前,业主可依据适用的法律,在处所上及周围张贴不负责任的通知。承租人须补偿业主因承租人或其承建商所作的错误工程、该等工程所引致的延误或清理工作不当而招致的任何费用,并就该等费用向业主作出弥偿,使业主免受损害。如租客在任何时间为处所安装或更换门锁,作为改建工程的一部分,租客须在处所使用与业主在建筑物内为其总钥匙系统所使用的相同类型的门锁。

对于任何预计花费超过100,000.00美元的单一改建工程,承租人须应业主的要求,提供保安或作出令业主满意的其他安排,以确保完成该等改建工程的付款不受任何留置权影响。就所有改建工程而言,承租人须提供(并安排每名承建商或分包商提供)有关工人补偿及其他保险范围的保险证明书,其款额须由业主信纳的保险公司提供,以保障业主在建造工程中免受人身伤害或财产损坏的法律责任。在任何改建工程完成后,承租人须向业主交付:(i)列明进行该工程的所有承建商及分包商的名称的宣誓声明,以及所有该等承建商及分包商的最后留置权豁免;及(ii)任何该等改建工程的“已建成”图则,如该等改建工程的性质是一般为该等改建工程拟备的“已建成”图则。

除本段条文另有规定外,在租期内,业主放弃任何法定的业主留置权,以及在本租期届满时或在本租期提前终止时无须交还业主的任何租客变更(统称“人格”)上的任何租金扣留权。业主承认并同意,租客的人格可以从设备出租人租赁或由租客的出借人(统称为“设备出租人”)担保,租客可以就此人格签署和订立设备租赁或担保协议(“设备租赁”)。如在任何设备租赁或设备出租人所规定的范围内,业主须签立并向设备出租人交付书面同意书、放弃书及/或确认书(“放弃留置权”),而该书面同意书、放弃书及确认书的形式及内容均属业主合理可接受,业主(i)承认并同意,在租期内,作为设备租赁标的并在放弃留置权的展品上有具体描述的人格构成租客的个人财产(除非违反本租赁的条文),而该人格不应被视为房舍的一部分,(ii)同意,在租期内,该公司不得要求取得该等人格的任何权益,而(iii)同意设备出租人可进入该处所以移走该等人格,但条件是,在该同意下,该设备出租人同意修复移走所造成的任何损害,并就该等移走所引起的任何申索或其他损失向业主作出弥偿,并使业主免受损害,并同意,在租期届满或终止后的3个营业日内,支付本租约下应计的所有租金,但该租期自该租约届满或终止之日起至该设备出租人放弃其进入房舍的权利后的5个营业日内,该租期并未终止或届满,在任何情况下,该设备出租人进入房舍的权利应在本租约到期或提前终止后30天届满,在这种情况下,设备出租人和租户应同意将该个人视为放弃。此种放弃留置权的文件还可载有业主合理接受的其他合理和习惯的规定。业主有权因其准备和谈判每项留置权豁免的时间和努力而获得每次1,000美元的行政租金。

 

LOGO


多租户实验室       肯德尔广场一号/科罗–第17页

 

除(i)本合同所附附件 F所列的任何物品外,(ii)业主书面同意将来列入附件 F的任何物品,以及(iii)任何未从TI基金(如工作信函所定义)中支付的工装设备、机器、设备和其他个人财产,可在不对房舍造成实质性损害的情况下移走,这些损坏应由租户在租期内修复(包括封顶或终止墙壁后面的公用设施连接)(统称为“租户财产”),所有用TI基金支付的任何类型的财产,所有改建,不动产固定装置、内置机械和设备、内置橱柜和其他类似的增加和改进,以便成为房舍的一个组成部分,例如穿透屋顶或全会区域的通风罩、内置冷藏室、内置暖房、步入式冷藏室、步入式暖房、去离子水系统、玻璃清洗设备、高压灭菌器、冷水机、内置管道、电气和机械设备及系统,以及任何发电机和转换开关(统称,“装置”)在租期内及在租期届满或提前终止后仍属业主的财产,租客不得在租期内的任何时间移走,并须在本租期届满或提前终止后,按照第28条的规定留在该处所,并与该处所一并交还,作为该处所的一部分;但如租客在向业主递交同意更改的请求书的同时,向业主递交书面请求书,则业主须,在要求承租人批准该等安装时,通知承租人是否会要求承租人在本租约期满或提前终止时移走该等安装。如业主如此选择,租客须在本租约期满或提前终止时移走该等装置,并须恢复因该等移走而引起或因该等移走而引起的任何损害,包括在移走与任何建筑系统有管道、接线或以其他方式连接的任何租客财产时,将处所墙壁后的所有该等连接封上盖子,并修补任何孔洞。在任何该等修复期内,租客须按本条的规定向业主缴付租金,犹如该空间是由租客以其他方式占用一样。

13.房东的维修。业主作为营运费用,须保养和维修建筑物及物业的所有结构、外部、停车场及其他公用区域,包括暖通空调、管道、消防喷水装置、电梯及所有其他服务于建筑物处所及建筑物其他部分的建筑物系统(“建筑物系统”),以保持良好的营运秩序和维修、合理的损耗及未投保的损失和损坏,这些损失和损坏是由承租人或承租人的任何受让人、转承租人、持牌人、代理人、雇员、雇员、受邀人及承建商(或承租人的任何受让人、转承租人及/或持牌人各自的代理人、雇员、雇员、受邀人及承建商)(统称为“承租人各方”)(统称“承租人各方”)所造成的。承租人或任何承租人一方所造成的损失和损害,应由房东在保险未涵盖的范围内自行修理,费用由承租人承担。业主保留在有需要时(i)因意外或紧急情况,或(ii)因业主认为适宜或需要进行的有计划的修理、改建或改善而停止建筑系统服务的权利,直至上述修理、改建或改善已完成为止。业主对在任何该等中断期间未能提供楼宇系统服务并无责任或法律责任;但除非在紧急情况下,业主须作出商业上合理的努力,将楼宇系统服务因日常保养、修理、改建或改善而计划停止的情况,提前48小时通知租客。租客须迅速将业主依据本条规定须进行的任何修缮给予业主书面通知,然后业主须作出商业上合理的努力,在合理期间内进行修缮。业主须作出合理的努力,尽量减少在楼宇系统计划停工期间对租客在处所的运作所造成的干扰。业主无须对任何未能进行任何修理或保养的情况负法律责任,除非在租客书面通知需要进行该等修理或保养后,该等失职情况持续一段不合理的时间。承租人放弃其根据任何州或地方法律所享有的终止本租约或由房东支付费用进行此种修理的权利,并同意双方在此种事项上各自享有的权利应完全符合本合同的规定。因火灾、地震、洪水、故意破坏、战争或类似的损坏或破坏原因而需要进行的修理应受第18条的管制。

14.租户维修。除上文第13条另有规定外,承租人须自费维修、更换及保养房舍的所有内部及非结构部分,包括但不限于入口、门、天花板、内窗、内墙及分动墙的内侧、合理的磨损及因伤亡而造成的损坏,但不包括在内。如租客未能作出任何该等修理

 

LOGO


多租户实验室       肯德尔广场一号/科罗–第18页

 

或更换或不维修房舍,业主须将该等失修通知租客。如承租人未能在业主发出通知后30天内开始补救该等失职,并在该等失职后勤勉地追索该等补救措施以使其完成,则业主可进行该等工作,并须在提出要求后10天内由承租人偿还;但如承租人的该等失职造成或可能造成紧急情况,则业主可立即开始补救该等失职,并在其后有权向承租人追讨该等补救措施的费用。除第17及18条另有规定外,承租人须承担工程计划任何部分的任何修理或更换的全部无保险费用,但以承租人或任何承租方所造成的损坏为限。

15.机械师的留置权。承租人应在承租人收到书面通知后15天内,以保释金或其他方式,解除因声称已为承租人完成的工程或声称已向承租人提供的材料而对房舍或建筑物、财产或工程提出的任何技工留置权,费用由承租人承担,并应以其他方式使房舍和建筑物、财产和工程免于因承租人已完成的工程、提供的材料或承担的义务而产生的任何留置权。如果承租人未能解除本文所述的任何留置权,业主有权(但无义务)支付此项索赔,或支付保证金或以其他方式提供担保,以消除作为对建筑物、财产或工程所有权的索赔的留置权,其费用应作为额外租金立即向承租人支付。如承租人须租赁或资助购置承租人在经营承租人业务时使用的办公设备、家具或其他可移动性质的个人财产,承租人保证,由承租人的任何出租人或债权人作为公共记录事项提交的任何统一商法典融资报表,将在其表面或通过其证据表明,该融资报表仅适用于位于房舍内的承租人的可移动个人财产。在任何情况下,不得在声明中提供建筑物或工程项目的地址,而不对留置权只适用于位于承租人所持有的已指明套间内的可移除个人财产的适用性作出限定的文字。

16.赔偿。承租人特此就承租人或任何承租人直接或间接使用或占用处所或工程项目(包括但不限于任何作为,承租人或任何承租人在处所内或附近或在工程中的疏忽或疏忽)或承租人在履行其在本协议下的任何义务时的违反或不履行,除非是由于业主获弥偿方的故意不当行为或疏忽所致。业主获弥偿各方无须就个人财产(包括但不限于保存在房舍内的纪录的遗失)向租客承担责任,而租客须承担一切损害风险。承租人在此还不可撤销地放弃对承租人的业务造成损害的任何和所有索赔或与此种损害或毁坏个人财产有关的收入损失(包括但不限于记录的任何损失)。业主获弥偿各方无须就任何承租人或任何其他第三者在工程中的作为、不作为或疏忽所引致的任何损害承担法律责任。

17.保险。业主须保有所有风险财产,如适用,须保有涵盖建筑物全部重置费用的洒水器损坏保险。业主应进一步购买和维持商业一般责任保险,对与项目有关的人身伤害和财产损失的单一损失限额不低于2000000美元。业主可(但无义务)维持其认为需要的其他保险及额外保险,包括但不限于水灾、环境危害及地震、建筑物设备的遗失或故障、错误及遗漏、修缮或重建期间的租金损失、工人补偿保险及受雇为承租人安装的任何改善工程或在业主惯常提供的标准改善工程之外的任何改善工程而提供的雇员的保诚保证,而不论这些是否已成为工程的一部分。所有这些保险应作为营业费用的一部分包括在内。建筑物和财产可包括在一揽子保单中(在这种情况下,可分配给建筑物和财产的此种保险的费用将由业主根据保险人的费用计算确定)。承租人亦须就业主的保险顾问认为因承租人特别使用处所而有合理需要而增加的保费或额外保险,向业主作出补偿。

 

 

LOGO


多租户实验室       肯德尔广场一号/科罗–第19页

 

租客在租期内应自行承担费用和开支:所有风险财产保险,包括业务中断和额外费用,涵盖由租客承担费用、安装或放置在房舍内的所有财产和装修的全部重置费用;工人赔偿保险,不低于法律规定的最低限额;雇主责任保险,雇主责任限额为每名雇员因意外造成的人身伤害1,000,000美元,因疾病造成的人身伤害1,000,000美元,因疾病造成的人身伤害1,000,000美元,保单限额,因疾病造成的人身伤害1,000,000美元,以及商业一般责任保险,房舍的人身伤害和财产损失的最低限额为每次不少于2000000美元。承租人投保的商业一般责任保险应包括Alexandria Real Estate Equities, Inc.、业主、其高级职员、董事、雇员、经理、代理人、次级代理人、组成实体和租约签字人(统称为“业主被保险人”),作为额外的被保险人;根据事故发生而不是根据索赔投保;由在《Best’s保险指南》中具有不低于A级的投保人评级和至少X级的财务类别评级的保险公司签发;除非保险人提前30天向房东发出书面通知,否则不得因未支付保费而被取消;不包含敌意火灾除外责任;包含合同责任背书;并向业主投保人提供主要保险(向业主投保人提供重复或类似保险的任何保单,应被视为超出承租人的保单,无论限制如何)。承租人须在(i)(x)生效日期的较早日期,或(y)承租人根据本租约进入处所的日期,以及(ii)每次续订上述保险之前,向承租人交付保险证明书,该证明书须显示本合约所规定的保险范围的限度,并显示业主是额外的被保险人,以及在适用期间内已缴付保费的合理证据。承租人的保单可能是一份“全面保单”,每个地点的总背书明确规定,保险金额不得因保单承保的其他损失而受到影响。租客须在上述保单期满前最少5天,向业主提供续期证明书。

在每一种情况下,如果保险将房东指定为额外的被保险人,承租人还应根据房东的书面要求,指定并提供证明房东为额外被保险人的证书给:(i)在建筑物、财产或工程项目或其任何部分持有担保权益的房东的任何贷款人,以及与此相关的任何服务人员,(ii)根据任何租约,房东是建筑物、财产或工程项目所在不动产的租户,如业主的权益是或将成为土地或其他基础租约下的租客的权益,而非收费业主的权益,及/或(iii)业主为管理工程而聘请的任何管理公司。

业主及承租人取得的财产保险,须包括承保人放弃代位权,以及根据被保险人的转让而针对业主或承租人及其各自的高级人员、董事、雇员、经理、代理人、受邀者及承建商(“有关各方”)就其所承保的任何损失或损害而享有的一切权利。任何一方或其各自的关联方均不对根据本合同规定须维持的财产保险投保(或必须投保)的任何风险所造成的损失或损害承担赔偿责任,且每一方均放弃就此种损失或损害向另一方或其各自的关联方提出索赔。一方当事人未能为其财产投保,不应使本放弃无效。业主及其各自的相关方不应对因任何原因导致的业务中断和损失承担责任,而承租人特此放弃对这些方提出的所有索赔,这些业务中断和损失是承租人或任何人通过承租人提出的索赔,原因是在房舍、建筑物、物业或项目中或在该项目上发生的任何事故或事故。如上述放弃违反任何与开脱协议有关的法律,则业主或租客的法律责任应视为未获解除,但应排在另一方保险人之后。

业主可要求提高保险单限额,以符合业主贷款人的要求和/或将保险限额提高到项目内新租户一般需要达到的水平;但条件是增加的保险限额与项目所在地地理区域内租户占用类似面积房舍的类似项目的机构业主当时要求的保险限额一致。

 

 

LOGO


多租户实验室       肯德尔广场一号/科罗–第20页

 

18.恢复。如在租期内的任何时间,工程或处所因火灾或其他保险伤亡而受损或损毁,业主须在发现损害后60天内通知租客业主合理估计恢复工程或处所(如适用)所需的时间(“恢复期”)。如恢复租期估计超过12个月(“最长恢复租期”),业主可在该通知中选择自发现该等损坏或毁坏的日期后75天起终止本租约;但即使业主选择恢复租期,租客仍可选择在接获业主的通知后5个营业日内,以书面通知方式终止本租约,而该通知是在业主估计处所的恢复租期超过最长恢复租期后5个营业日内送达业主的。除非业主或租客选择终止本租约,否则业主须在收到足够的保险收益(任何可扣除的款项须视为当期营运费用)的情况下,迅速恢复处所(不包括由租客或由业主安装并由租客支付的装修),但须因收取保险收益、不可抗力事件或为取得任何许可证、许可或其他授权所需的任何种类,以进入和恢复处所,而该许可、许可或其他授权是由任何对使用、储存、处理、处理具有管辖权的政府当局所颁发的,在处所内、处所内或周围(此处统称为“危险物料清拆”)产生、释放、处置、清除或补救危险物料(第30条所界定);但如在最长恢复期结束时,处所的修理或修复仍未基本完成,或在更长的恢复期结束时,业主可全权酌情选择不进行此种修理和修复,或租户可在最长恢复期结束后5个营业日内向业主发出书面通知,如更长,在恢复期内,选择终止本租约,在此情况下,业主应免除其进行此类修理或修复的义务,而本租约应在以下日期(较晚者为75天)后终止:(i)发现此类损坏或破坏,或(ii)所有必要的危险材料清关获得的日期,但业主应保留在业主或租户选择之前已支付的任何租金和租客应支付的任何租金的权利。

承租人须自掏腰包,迅速进行业主无须进行的一切修理或修复,但须因收取保险收益、因不可抗力事件或为取得危险物料清关而出现延误,并须迅速重新进入房舍,并开始按照本租约办理业务。尽管如此,业主或租客如在租期的最后一年内房屋受损,而业主合理地估计需要2个月以上才能修复受损,则可在书面通知另一方后终止本租约;但该通知须在业主向租客提供估计恢复期的书面通知的日期后10个营业日内送达。即使本条例另有相反规定,业主亦有权终止本租契,但如经业主合理地厘定的足够保险收益不能用于此种恢复,则该等保险收益不是由于业主没有维持业主依据第17条须维持的保险而造成的。除非业主在修缮期间向租客提供适合租客暂时经营业务的其他空间,否则租金须按租客不能使用的房舍面积(如有的话)与房舍总面积的比例,由取得所有所需的危险物料清拆的日期起减至房舍得到修缮和修复为止。如承租人无须就房舍取得危险物料清关,租金减免须自发现损坏或毁坏之日起开始。此种减免是租客的唯一补救办法,除本第18条另有规定外,租客放弃因损坏或伤亡损失而终止租约的任何权利。

本租约的条款,包括本第18条,构成业主与承租人就房产的全部或任何部分,或建筑物、财产或工程的任何其他部分的任何及所有损坏或毁坏所达成的明确协议,任何现行或以后可能生效的法规或规章,均不适用于本租约,也不适用于房产的全部或任何部分,或建筑物、财产或工程的任何其他部分的任何损坏或毁坏,双方在此明确同意,第18条阐述了他们对此类事项的全部理解和协议。

 

 

LOGO


多租户实验室       肯德尔广场一号/科罗–第21页

 

19.谴责。如果房产、建筑物或财产的全部或任何重要部分根据政府法律、条例或条例,或通过征用权,或通过私人购买代替公共或准公共用途(“获取”或“获取”),而根据业主的合理判断,该获取将严重干扰或损害业主对该建筑物或财产的所有权或经营,或根据业主和租户的合理判断,将阻止或严重干扰租户对房产的使用(如经解决,如果双方无法达成一致,由一名具有解决问题的适当资格和经验的仲裁员仲裁,并根据美国仲裁协会的规则指定并按照该规则行事),则在房东或租客向对方发出书面通知后,本租约应予终止,租金应自该日期起分摊。如部分处所须予占用,而本租约并未按上述规定终止,则业主须在该部分占用前,迅速将处所及该建筑物及该物业恢复至在商业上合理的水平,并将该建筑物的可出租面积、该处所的可出租面积、租户的营运费用份额、该建筑物的工程份额及在该未届满期间根据本合约须支付的租金,减至在该情况下公平合理的程度。在任何该等收取时,业主有权收取该等收取的全部价款或奖励,而无须向租客支付任何款项,而租客特此将该等奖励中的任何权益(如有的话)转让予业主租客。承租人有权向谴责当局(但不包括业主)提出另一项申索,要求获得承租人就搬运费及损坏承租人的行业固定装置而另行裁定或可追讨的补偿,但该等补偿不应减损业主的裁决,但如承租人就该等物件向承租人作出另一项裁决。承租人在此放弃其根据任何州法律条款可能拥有的任何和所有权利,以在部分占用房产、建筑物、财产或项目时终止本租约。

20.违约事件。根据本租约,下列每一项事件均为租户的违约(“违约”):

(a)拖欠付款。租客须在到期时不缴付租金的任何分期付款或任何其他付款;但业主须在任何该等通知发出后5天内,给予租客一份通知及一次机会,以纠正任何在任何12个月内不超过一次的未缴付租金的情况。

(b)保险。承租人根据本租约须维持的任何保险,须予取消或终止,或须予终止,或须予减少或实质上更改,或业主须收到任何该等保险不予续期的通知,而承租人须于现行保险范围届满前,未能取得补交的保险。

(c)遗弃。租客须放弃房舍。如果租户在搬离房产之前向业主提供合理的提前通知,并且在搬离房产时,(i)租户按照第28条完成了租户在《拆除和关闭危险品计划》下的义务,(ii)租户已获得释放所有危险材料的房舍,且房舍不受租户危险品行动的任何残余影响,并向业主提供合理详细的文件以确认这些事项,则不应被视为租户已放弃房产,(iii)租客已与业主作出合理安排,以保障租期内的房舍安全;及(iv)租客在租期内继续履行及履行租客在本租契下的所有到期义务。

(d)不当转让。承租人应违反本租约的规定,转让、转租或以其他方式转让承租人在本租约或处所中的全部或任何部分权益,或承租人在本租约中的权益应被附加、执行或以其他方式被司法扣押,且该诉讼不在诉讼后90天内解除。

 

LOGO


多租户实验室       肯德尔广场一号/科罗–第22页

 

(e)留置权。在承租人接获书面通知将任何该等留置权提交处所后15天内,承租人不得解除或以其他方式取得对违反本租约而置于处所的留置权的解除。

(f)破产事件。承租人或承租人根据本协议所承担的义务的任何保证人或保证人,须:(A)为债权人的利益而作出一般转让;(B)展开任何案件、法律程序或其他诉讼,寻求以其作为债务人的名义作出救济令,或裁定其破产或资不抵债,或寻求对其或其债务进行重组、安排、调整、清算、解散或组合,或寻求指定接管人、受托人,为其或其全部或任何重要部分财产(统称为“救济收益”)的托管人或其他类似官员;(C)成为任何救济收益的主体,但在其提交或进入后90天内未被驳回;或(D)死亡或遭受法律残疾(如果租户、担保人或担保人是个人),或被解散或以其他方式未能维持其法律存在(如果租户、担保人或担保人是公司、合伙企业或其他实体)。

(g)反悔证书或从属协议。承租人没有在第二份要求承租人提供该文件的通知发出后的5个营业日内,签立根据第23或27条向承租人提交的任何文件。

(h)其他违约。除本第20条特别提述的条文外,租客不得遵从本租约的任何条文,而除非本租约另有明文规定,否则在业主向租客发出书面通知后,该等不遵从须持续30天。

根据本条例第20(h)条发出的任何通知,须:(i)指明所指称的失责,(ii)要求租客纠正该失责,(iii)代替、而非补充或当作是根据任何适用法律条文所规定的任何通知,及(iv)除非业主在该通知中另有选择,否则不得当作没收或终止本租约;但如根据第20(h)条作出的租客失责的性质,使其不能藉支付款项而纠正,并须合理地多于30天才能纠正,如承租人在上述30天期限内开始补救,并在其后勤勉地检控补救,直至完成,则该承租人不得被视为违约;但该补救须在业主发出通知的日期起计60天内完成。

21.房东的补救办法。

(a)房东付款;利息。承租人违约时,业主可在不放弃或免除承租人在本协议下的任何义务的情况下,支付此种款项或在必要的范围内履行此种行为,以纠正此种违约。自该等款项缴付或招致之日起,业主已缴付或招致的所有款项,连同其利息,须按相当于每年12%的年费率或法律准许的最高费率(“违约率”)(以较低者为准),按要求以附加租金支付予业主。本条文不得解释为对业主设立或施加责任,以减轻因承租人在本条文下的违约而造成的任何损害。

(b)逾期付款租金。承租人逾期缴付租金及其他应付款项,将会令业主产生本租约未予考虑的费用,而该等费用的确切数目将极难及不切实可行。该等费用包括但不限于处理及会计费用,以及根据任何有关处所的按揭而可能向业主征收的滞纳金。因此,如业主在到期日期后5天内没有收到承租人应支付的任何分期租金,承租人须向业主额外支付逾期租金的6%作为滞纳金。尽管有上述规定,在任何历年首次评估逾期收费前,业主须向租客提供有关拖欠的书面通知,如租客在其后5天内缴付拖欠费用,业主即会放弃该项权利。双方同意,此项滞纳金是对业主因承租人逾期付款而产生的费用的公平合理的估计。除滞纳金外,到期未付的租金自到期之日起第5天起按违约率计息,直至支付为止。

 

LOGO


多租户实验室       肯德尔广场一号/科罗–第23页

 

(c)补救办法。一旦发生违约,业主可选择在不向租客发出进一步通知或要求的情况下,除在法律上或权益上本租约所规定的所有其他权利和补救办法外,还可选择寻求任何一项或多项以下补救办法,每一项和所有这些补救办法均应是累积性的和非排他性的,而无须发出任何通知或要求(第21(c)(v)条就业主的一次总付选择另有明文规定的除外)。在业主采取任何行动后,除向租户发出有关该违约的通知以寻求本条例所规定的任何补救措施(包括聘请律师提起诉讼或以其他方式寻求任何补救措施)外,租户对该违约的全部或部分补救措施,均不得以任何方式影响业主寻求该补救措施或业主根据本条例或法律或股本规定的任何其他补救措施的权利,除非业主自行决定放弃该违约。

(i)本租约及特此批出的租期及遗产受以下限制所规限:凡违约已发生并仍在继续,业主有权在任何该等违约仍在继续的情况下,由业主自行选择,即使业主可根据本租约或在法律上或权益上有其他补救办法,仍有权在该通知所指明的日期,向租客发出书面通知,表明业主有意终止本租约,该日期须在该通知发出后不少于5天内,而在如此指明的日期,本租约及特此批出的遗产即告失效及终止,其效力犹如该通知所指明的日期是先前为本租约失效而订定的日期一样,而承租人在本租约下的所有权利亦告失效及终止,而承租人须按本第21(c)条的规定承担以下的法律责任。如发出上述通知,则业主有权在如此指明的日期重新进入该处所并管有该处所,并有权移走该处所内的所有人及财产,并将该等财产存放在仓库或其他地方,风险及费用由租客承担。如业主选择按本条规定重新进入,或如业主依据法律程序或依据法律所规定的任何通知而取得管有权,则在符合第21(c)(ii)条的规定下,业主可不时按业主认为适当的租期及租期,并按业主认为适当的条款及条件,将该处所或该处所的任何部分重新出租,并有权对该处所作出商业上合理的更改及修理。

(ii)业主须被当作已履行任何减轻其损害的义务,方法是雇用一名有经验的商业地产经纪人推销该处所,并指示该经纪人宣传该处所,并向预期租客展示该处所。

(iii)如本租约如在本第21条的规定下或在法律或股本的规定下或在法律的规定下或准许下终止,租客须立即退出并将处所交还业主,而业主可在无须另行通知的情况下,以简易程序、驱逐或其他方式进入、重新进入、管有及收回该处所,并可再次拥有、收回及享有该处所,而不受租客的任何权利限制,而在任何该等情况下,承租人及任何凭藉任何法律或法院的命令透过承租人或根据承租人提出申索的人,均无权管有或继续管有该处所。

(iv)如本租约已终止,或业主须按上述方式重新进入处所,或如因租客违约而由任何法律程序或诉讼或任何法律条文或根据任何法律条文终止本租约或重新进入处所,则租客须订立契约,并随即同意在本租约原订明的日期支付及须承担法律责任,款额相当于基本租金及所有额外租金的分期付款,视其情况而定,根据本租约条款,如本租约未予终止,或业主并未如上所述进入或重新进入,则该租约即到期,而不论该租约是否全部或部分空置,或租期少于租期的剩余时间,或该租约是否全部空置,但如该租约由业主转租,租客有权按业主在转租时所收租金及其他费用的净额,取得抵免额,在扣除业主因转租处所而招致的所有开支(包括但不限于租户装修、拆卸及改建费用、经纪费用等)及收取与此有关的租金后,

 

LOGO


多租户实验室       肯德尔广场一号/科罗–第24页

 

按以下方式:业主在转租后所收取的款项(如有的话),须首先抵销该业主的开支,直至该等开支被追讨为止,而在追讨款项之前,租客须于本租约下到期的每一天缴付款项,承租人根据本租约条款须缴付的款额(承租人在任何该等转租前的法律责任,以及由业主追讨的款项,不得因该等转租的租金可能高于本租约所订定的租金而以任何方式减损);如该等费用已由业主完全追讨,则自承租人根据本租约须缴付的款项到期之日起,承租人从该等转租收取的款项,须记作承租人的债务的贷项,而承租人只须缴付该等款项的净额。此外,承租人在本租期按其条款预定届满的日期后的任何期间内,均无权获得任何种类的信贷。

业主可在其选择下,不时提起诉讼、法律程序或诉讼,以追讨根据本租约或其任何分期付款而作出的损害赔偿(不论是违约金或其他损害赔偿),而本租约所载的任何条文,均不得当作要求业主将诉讼延期至本租约的期限如不是根据本租约终止的日期。

(v)此外,即使本租约另有规定,业主经其选择,仍有权在本租约终止后的任何时间,藉向租客发出书面通知(“一次总付选择”),向租客追讨一笔总付款项,作为违约金,代表在业主发出一次总付选择的书面通知时:

(a)在业主一笔总付选择后的剩余租期内(如本租期未予终止)本应根据本租期支付的未付基本租金及附加租金的金额的当时现值(按照公认的金融惯例计算,以下文所列美国库券到期收益率作为贴现率),及

(B)业主因违反本租约任何条文而承受的所有其他损害赔偿及开支(包括律师费及开支)(如有的话);减

(c)自业主一次总付选举之日起计算的业主一次总付选举后剩余租期内的公平市场租金加额外费用(如少于根据本租约本应支付的基本租金及额外租金的现值)合计数的当时现值(按照公认的财务惯例计算,以下文所列美国库券的到期收益率作为贴现率),并考虑到将该处所任何当时空置的部分转租的未来费用的合理估计(除非租客已根据第21条实际支付该等费用),以计算业主在租期内可预期为该处所取得的净租金收入。

业主根据其一次总付选举追讨的款项,除须包括承租人在业主一次总付选举日期前须缴付的基本租金及额外租金的义务外,亦须代替根据本条自业主一次总付选举日期起及之后本应缴付的任何基本租金及额外租金。美国国库券的到期收益率,如其到期日与《华尔街日报》或一份类似出版物中所报告的租期最后一天的到期日最接近,如果该出版物停止公布这种收益率,则在计算现值时,应使用该收益率,以便进行业主的一次总付选举。为施行本条,如业主作出一笔总付选择,以按照规定追讨违约金

 

LOGO


多租户实验室       肯德尔广场一号/科罗–第25页

 

根据本条,额外租金总额的计算,须根据业主对租客在租期剩余部分及租期任何部分的每12个月期间的营运开支及其他额外租金所占份额的合理估计,但在任何情况下,均不得少于紧接业主一笔总付选举日期前的十二(12)个历月(或如自本协议日期起已过去不到十二(12)个历月,则为部分年份)的应付款额。租客在租期开始时或租期结束时任何部分年度的营运开支及任何其他额外租金中所占的份额,须按比例分摊。

(六)本文所载的任何规定均不得限制或损害业主在任何破产或破产程序中证明并因此种终止而获得相当于任何破产或破产程序所允许的最高限额的数额作为违约赔偿金的权利,或证明并因此种终止而获得相当于任何法规或法律规则所允许的最高限额的数额作为违约赔偿金的权利,不论此种数额应高于或低于上述数额。

(vii)本条的任何规定不得当作影响任何一方当事人依据本租约获得赔偿的权利。

(viii)如业主在违约发生时终止本租契,租客须退出并将处所交还业主或其代理人,而业主可在没有进一步通知的情况下,以简易程序、驱逐或其他方式进入、重新进入及收回处所。“进入”、“重新进入”和“重新进入”这三个词并不局限于其技术上的法律含义。

(ix)如任何一方在遵守或履行本租约的任何条文方面有失责,而须为强制执行该等条文而提起诉讼,但须裁定该一方有失责,则该失责一方须向该非失责一方缴付因该等条文或与该等条文有关而须缴付的一切合理的自费、讼费及其他开支,包括合理的律师费及开支。

(x)如承租人在备存、遵守或履行本协议所载的任何契诺、协议、条款、条文或条件时发生失责,业主可立即或在其后的任何时间,并只在紧急情况下或在该失责将会导致违反任何法律或保险规定的情况下,在切实可行的情况下,发出任何通知(如有的话),为承租人的帐目及承租人(a)的费用而作出失责,或对未在依据本租约第15条规定的期限内由承租人解除、释放或保税而令业主满意的全部或任何部分的处所或工程施加留置权,以及(b)在任何其他情况下,如该等失责在第20条所规定的任何适用通知及补救期后仍持续。业主为承租人的任何该等履行而招致的一切合理费用及开支,以及所有合理费用及开支,包括业主为强制执行承租人根据本租约所承担的任何义务而提起的任何诉讼或法律程序(包括任何即决处置程序)所招致的合理律师费及付款,以及(或)业主在处所内或处所内的权利,均须由承租人在提出要求后10天内向业主缴付。

(xi)如承租人违反或违反本租约,不论业主是否行使其终止权或任何其他补救措施,承租人须按要求向业主偿还业主就本第21(c)条所规定的任何该等违反或违约而可能招致的自付费用及开支。此种费用应包括法律费用和为协商解决办法、强制执行权利或其他方式而发生的费用。租客亦须就所有费用及开支向业主作出弥偿,并使业主免受损害,

 

LOGO


多租户实验室       肯德尔广场一号/科罗–第26页

 

要求和责任,包括但不限于法律费用和费用,如果业主成为或成为租户对任何第三方、任何第三方对租户或任何持有该处所的任何权益的人或通过租户的许可或与租户的协议使用该处所的人提出的任何索赔或诉讼的一方,则业主应承担。

(xii)除本条另有规定外,本条例赋予或保留给业主的任何权利或补救办法,均不打算排除任何其他权利或补救办法,而每项权利和补救办法,均须是累积性的,并除根据本条例给予或现时或以后存在的任何其他法律或衡平法权利或补救办法外,亦属累积性的。除非明示放弃本租赁的任何条文的一方以书面明示放弃本租赁的任何条文,否则不得当作已作出放弃。业主有权在法律允许的范围内,在违反、企图或威胁违反本租约任何条款的情况下,寻求强制性救济,或寻求命令强制遵守或履行本租约的任何条款,或寻求任何其他法律或衡平法补救。

(xiii)即使本租约另有相反条文,任何一方均无须就根据本租约产生的任何间接、特别或间接损害向另一方承担法律责任;但本句不适用于第8条明文规定的业主损害赔偿(x),及(或)与第30条更全面规定的租客义务有关的损害赔偿(y)。在任何情况下,上述规定均不得限制业主根据第21条有权获得的损害赔偿,包括但不限于第21(c)(v)条所规定的违约金。

22.转让和转租。

(a)一般禁令。未经业主事先书面同意,并在符合及符合本第22条所述条件(包括以下第22(b)(i)至(iii)条的规定)下,承租人不得直接或间接、自愿或藉法律的实施,转让本租约或转租处所或其任何部分,或抵押、质押或抵押其租赁权益,或在处所内批出任何特许权或许可证,而任何企图作出上述任何一项,均属无效及无效。如果承租人是一家公司、合伙企业或有限责任公司,其股份或其他所有权权益在证券交易所或场外交易市场交易不活跃,则是一种转让或一系列转让,根据这种转让,该公司50%或以上的已发行和未发行股份或其他所有权权益,或表决权控制权,根据第22条的规定,从一个或多个在签署本租约时为其所有人的个人或实体或实体转让给在签署本租约时不是该公司、合伙企业或有限责任公司的股份或其他所有权权益所有人的个人或实体的转让(但在个别所有人死亡时转让的除外),应视为本租约的转让,须经业主同意。尽管有上述规定,承租人仍有权从信誉良好的投资者(包括风险投资基金和公司合伙人)处获得融资,或进行公开发售,而该公开发售导致承租人的控制权发生变更,而该控制权的变更并不构成根据本第22条须经业主同意的转让,但(i)承租人须在融资结束前或在融资结束时以书面通知业主,(ii)但在任何情况下,该等融资均不得导致处所的用途与租客在租期开始时所设想的用途有所改变。

(b)准许的转让。如承租人意欲转让、转租、抵押或以其他方式转让本租赁或分租处所,但根据许可转让(定义见下文)除外,则在承租人意欲转让或分租有效的日期(“转让日期”)前最少15个营业日(但不超过45个营业日),承租人须向业主发出通知(“转让通知”),内载有关建议受让人或分租人的资料,包括建议使用处所及建议使用、贮存、处理的任何有害物料,在房舍内产生、释放或处置的产品(租户通常用于日常清洁和办公用途的微量产品除外)、转让日期、租户与拟议受让人或分承租人之间的任何关系,以及所有

 

LOGO


多租户实验室       肯德尔广场一号/科罗–第27页

 

拟议转让或转租的重要条款和条件,包括任何拟议转让或转租的基本最终形式的副本,以及业主认为合理必要或适当的其他信息,以供其考虑是否同意。业主可在接获转让通知书后15个营业日内,以书面通知租客:(i)批予该等同意书(但业主亦有权在任何该等转租的生效日期前,覆核及批准或不批准建议的转租形式);(ii)在其合理酌情决定权下,拒绝该等同意书;或(iii)与本租约的转让或任何转租有关的任何转租,而该等转租将导致超过50%的处所在租期的大致剩余时间内被转租,自转让日期起终止转让通知中所述空间的租赁(“转让终止”)。除其他理由外,在上述任何情况下,业主拒绝同意是合理的:(1)建议的受让人或转租人是政府机构;(2)根据业主的合理判断,建议的受让人或转租人使用处所将会引起任何改动,使处所的租赁物改良价值下降,或需要业主增加服务;(3)根据业主的合理判断,建议受让人或转租人从事有争议的科学研究或其他业务,以致可能(i)吸引或导致对该建筑物或工程项目的负面宣传,(ii)对该建筑物、该工程项目或业主的声誉造成负面影响,(iii)吸引示威者到该建筑物或该工程项目,或(iv)削弱该建筑物或该工程项目对任何租户或潜在租户、买家或贷款人的吸引力;(4)根据业主的合理判断,(5)根据业主的合理判断,建议的受让人或转租人缺乏支持其根据建议的转让或转租而承担的财务责任的信誉,或建议受让人或转租人的业务与期望的租户组合或项目内其他租赁的质素不一致,或与类别不一致(6)有意遗漏;(7)业主曾有过拟受让人或转租人违约的经历,或正与拟受让人或转租人打官司;(8)拟受让人或转租人使用处所将违反任何适用的法律规定;(9)有意遗漏;(10)拟受让人或转租人是业主当时正与其谈判租赁工程内空间的实体;或(11)业主的放款人禁止转让或转租。如业主交付其选择行使转让终止的通知,租客有权在业主作出选择行使转让终止的通知后5个营业日内,以书面通知业主该项选择撤回该转让通知。如租客撤回该转让通知书,则本租约继续有效。如承租人不撤回该转让通知书,则本租约及本租约所批出的租期及产业,须自转让日期起终止有关该转让通知书所述的空间。业主没有行使任何该等选择权以终止本租约,或没有根据转让通知书及时发出通知,均不得视为业主同意所建议的转让、转租或其他转让。租客在考虑任何转让通知和/或准备或审查任何同意文件时,应向房东支付相当于二千五百美元(2,500美元)的费用。尽管有上述规定,业主无须同意将本租契转让或将房产的任何部分转租予任何由租客控制、控制或与租客共同控制的实体(“控制许可转让”),但业主有权批准任何该等转租或转让的形式。此外,承租人有权在提前30天向业主发出书面通知后,将本租约转让给((x)除非根据适用的法律规定禁止承租人提供此类通知,在这种情况下,承租人应在此后立即通知业主;(y)如果交易须遵守保密规定,承租人的事先通知应以业主签署业主和承租人合理接受的保密协议为前提,但无需获得业主的事先书面同意,通过合并、合并或公司重组的方式,转让给作为承租人利益继承人的公司或其他实体, 或通过购买租户的全部或几乎全部资产或所有权权益,但前提是(i)此类合并或合并,或此类收购或假设(视情况而定)是出于良好的商业目的,而不是主要为了转让本租赁,以及(ii)受让人的净值(根据公认会计原则确定)不低于租户在其最新季度或年度财务报表之日的净值(根据公认会计原则确定),(iii)该受让人须以书面同意承担本租约(“公司准许转让”)的所有条款、契诺及条件。控制权许可转让和公司许可转让在下文中被称为“许可转让”。

 

LOGO


多租户实验室       肯德尔广场一号/科罗–第28页

 

(c)附加条件。作为任何该等转让或转租的条件,不论是否须经业主同意,业主可规定:

(i)任何受让人或转租人在该项转让或转租时以书面同意,如业主向该方通知租客在本租约项下违约,则该方其后须将租客在其他情况下应缴付的所有款项直接支付予业主,而该等款项将由业主收取而无须承担任何法律责任,但将该等款项记入根据本租约项下应缴付的款项,而任何该等第三方须同意将该等款项委托予业主或其继承人,并在本租约因任何理由而终止时予以转让;但条件是,在任何情况下,业主或其继承人或受让人都没有义务接受这种委托;和

拟议受让人或分承租人打算在房地内使用、贮存、处理、处理、生成或释放或处置的危险材料清单(不包括承租人习惯上用于普通清洁和办公用途的微量产品),经拟议受让人或分承租人证明为真实和正确的,以及与拟议受让人或分承租人在拟议转让或转租之前在房地内或项目上使用、储存、处理、处理、生成、释放或处置危险材料有关的所有文件的副本,包括,但不限于:许可证;批准;报告和函件;储存和管理计划;与在工程项目内或工程项目下安装任何储罐有关的计划(条件是,上述储罐的安装须经业主书面同意后方可准许,业主可全权酌情决定不予同意);以及任何及所有联邦、州和地方政府当局要求的所有封闭计划或任何其他文件,以供在工程项目内、工程项目内或工程项目下安装任何储罐,以封闭任何该等储罐。然而,承租人或任何该等拟受让人或转租人均无须向业主提供该等文件的任何部分,而该等文件所载的资料本身并不涉及任何危险物料或危险活动。

(d)不释放租户,分摊超额租金。即使有任何转让或转租,承租人及承租人在本租约下的义务的任何保证人或担保人,在任何时候均须对租金的支付和承租人在本租约下的所有其他义务的遵守负全部和主要的责任和法律责任。除非与准许转让有关,否则转租人或受让人应支付的租金(或根据该转租或转让应支付的租金加上任何形式的奖金或其他对价或与此有关的任何形式的事件的组合)超过根据本租约应支付的租金(但不包括TI租金和根据本条应支付的任何租金)的总和,并且在符合当时市场条件的情况下,实际和合理的经纪费或佣金、合理的律师费和法律费用、合理的免费租期,及与任何该等转租条款直接有关及根据该等转租条款所规定的任何设计或建造费用或租客改善津贴(该等超额部分称为“超额租金”),则租客有义务并有义务在租客收到该等超额租金的50%后10天内,根据该等超额租金的50%,向业主支付额外租金。如承租人须转租处所或其任何部分,则承租人须立即及不可撤销地将任何该等转租的全部租金转让予业主,作为承租人在本租约下的义务的担保,而业主作为承租人的受让人或根据业主的申请而指定的承租人的接管人,可收取该等租金,并将其用于承租人在本租约下的义务;但在违约发生前,承租人有权收取该等租金。

(e)不放弃。业主对转让或转租的同意,并不免除承租人或本租约的任何受让人或处所的任何转租人取得业主对任何进一步转让或转租的同意,亦不免除承租人或承租人的任何受让人或转租人根据租约所负的全部及主要法律责任。任何其他人或实体根据本租赁协议接受租金,或接受履行任何其他条款、契诺或条件,不应被视为放弃本租赁协议的任何条款,或同意任何房产的转租、转让或其他转让。

 

 

LOGO


多租户实验室       肯德尔广场一号/科罗–第29页

 

(f)拟议受让人的事先行为。尽管有本第22条的任何其他规定,如果(i)任何先前的业主、贷款人或政府当局已要求承租人的拟议受让人或分租人就污染财产的危险材料采取补救行动,而污染是由该当事方的行动或使用有关财产造成的,(ii)该拟议受让人或分租人须受任何政府当局就使用、储存、处理、处理、生成、释放或处置危险材料(包括但不限于,任何与未向任何政府当局作出规定的报告有关的命令),或(iii)由于在项目附近或周围存在预先存在的环境条件,业主在补救该预先存在的环境条件时成为责任方的风险,将因该拟议受让人或转租人提议使用危险材料而大大增加或加剧,业主应绝对有权拒绝同意向任何该等方转让或转租。

23.反悔证书。承租人须在业主发出书面通知后10个营业日内,签立、承认及交付一份书面声明,该声明须采用建议的贷款人或买方合理要求的任何格式,(i)证明本租约未经修改,并具有完全的效力及效力(如经修改,则须述明该项修改的性质,并证明经如此修改的本租约具有完全的效力及效力),以及预付租金及其他费用(如有的话)的日期,(ii)确认业主并无任何未予纠正的违约情况,(iii)就本租约或处所的状况提供合理要求的进一步资料,或指明如有人提出索偿,则指明该等失责,及(iii)就本租约或处所的状况提供合理要求的进一步资料。任何此种声明可由房地为其一部分的不动产的全部或任何部分的任何可能的购买者或抵押人所依据。承租人在接获业主的第二份书面通知后5天内没有交付上述声明,即为对承租人的结论性意见,即除非业主在由业主拟备并交付承租人执行的任何证明书中所代表的内容,否则该租赁是完全有效的,并无任何修改。

24.安静的享受。只要租客没有在本租契下违约,租客须在符合本租契条款的规定下,在租期内的任何时间,对任何由业主、透过业主或根据业主提出申索的人,享有和平及安静地享用处所。

25.按比例分配。根据本条例规定或准许作出的所有按比例分配,均应按360天一年和30天一个月作出。

26.规则和条例。租客须在租期内的任何时间,以及租期的任何延展期间,遵从业主在任何时间或不时订立的所有合理规则及规例,该等规则及规例涉及处所及工程或其部分的使用,而该处所是该处所的一部分。这些规则和条例可包括但不限于旨在促进和保护大楼和项目内的健康和身体健康的规则和条例。现行规章制度作为附件附后。上述规章制度与本租赁合同的其他条款如有冲突,以本租赁合同的条款为准。业主对项目内其他承租人违反任何规则或规例不负任何责任或义务,亦不应以歧视性方式执行该等规则或规例。

27.从属关系。本租赁合同及承租人在本租赁合同项下的权益和权利,在任何时候都应受制于或从属于项目、物业、建筑物或处所现有或以后产生的任何抵押的留置权,以及该抵押的所有修改、重述、续期、修改、合并、再融资、转让和延期,而无需承租人采取任何进一步的文书或行动;但前提是,只要本租赁合同项下没有违约,承租人对处所的占有权不应受到

 

LOGO


多租户实验室       肯德尔广场一号/科罗–第30页

 

任何此类抵押贷款。租客同意在任何该等按揭的持有人作出选择后,将该等按揭的持有人送交该等持有人。承租人应要求同意签立、承认和交付确认从属地位的文书,以及任何该等持有人所要求的授权书,但任何该等文书须载有适当的不受干扰条文,以确保承租人可静静享用本条例第24条所列的处所。尽管有上述规定,任何该等持有人可随时以书面通知承租人而不经承租人同意,将其按揭附属于本租约,而本租约须当作在该等按揭之前,而无须顾及其各自的签立、交付或记录日期。在此情况下,该持有人就本租约拥有与在该等按揭的签立、交付及记录之前已签立并已转让予该持有人相同的权利。在本租赁中使用的“抵押”一词应被视为包括信托契约、担保转让、地租或其他优先租赁和任何其他产权负担,而对抵押的“持有人”的任何提及应被视为包括信托契约下的受益人。

28.投降。在租客的管有权期限届满或提前终止时,租客须将处所以收到的相同条件移交给业主,但须遵守业主准许保留在处所内的任何改动或装置,不包括由业主方以外的任何人带来、保管、使用、储存、处理、处理、在处所内产生或释放或处置的有害物质(统称为“租户危险垫作业”),并解除第18及19条所涵盖的所有有害物质清仓、扫帚清洁、普通损耗和伤亡损失及谴责,但不包括在内。在交还处所之前至少3个月,或在租客选择停止处所业务的较早日期前,租客须向业主提交一份叙述性说明,说明租客为在租期届满或较早终止时交还处所(包括业主准许留在处所的任何装置)而建议采取的行动(或任何政府当局要求采取的行动),而不受租客危险品操作的任何残余影响,并以其他方式释放,以供不受限制地使用和占用(《退役和危险品关闭计划》)。此种退役和关闭危险品计划应附有一份现行清单,其中列明:(一)任何承租方或其代表就房地持有的所有危险材料许可证和许可证;(二)从房地使用、储存、处理、处理、生成、释放或处置的所有危险材料,并须经业主的环境顾问审查和批准。在审查和批准《退役和关闭HazMat计划》时,应业主要求,租户应向业主或其顾问提供业主要求的有关租户HazMat操作的其他非专有信息。在移交时或移交前,租客须向业主交付证据,证明已获批准的退役及封闭危险垫计划已圆满完成,而业主有权安排业主的环境顾问视察该处所,并执行其认为合理需要的额外程序,以确认自移交或提早终止租约的生效日期起,该处所并无因租客危险垫操作而产生的任何残余影响,但须按下述规定由租客的费用偿还。承租人须向业主偿还业主的实际自付费用,作为额外租金,由业主的环境顾问负责审查和批准退火和隔热罩封闭计划,并视察房舍并核实该计划的圆满完成,费用不得超过2,500美元。业主有权不受限制地将此种退役和关闭危险品计划以及业主的环境顾问就将房产移交第三方而提出的任何报告交付给第三方。

如承租人未能拟备或呈交业主批准的退火及关闭危险品计划,或承租人未能完成经批准的退火及关闭危险品计划,或如该等退火及关闭危险品计划(不论是否获业主批准)未能充分解决租户危险品在该处所内、该处所内或附近操作的任何残余影响,业主有权采取业主认为合理或适当的行动,以确保该处所及工程项目的移交不受租户危险品操作的任何残余影响,其费用应由租户作为额外租金偿还,而不考虑本第28条第一款规定的限制。

 

LOGO


多租户实验室       肯德尔广场一号/科罗–第31页

 

在本租约期满或提前终止时,租客须立即将停车场、工程、洗手间的所有钥匙及/或出入卡,或向租客提供或以其他方式取得的全部或任何部分处所的钥匙及/或出入卡,交还业主。如任何该等出入卡或钥匙遗失,租客须在业主选择后,向业主支付更换该等遗失出入卡或钥匙的费用,或重新设计使用该等出入卡的出入保安系统的费用,或更改该等遗失钥匙所开的锁或锁。任何承租人的财产、改建和财产,如未经承租人根据本条例准许或规定移走,均视为被遗弃,并可由承租人保管、移走和处置,费用由承租人承担,而承租人放弃就因承租人保留和/或处置该等财产而导致的任何损害向承租人提出的所有索偿。租客在本合同下的所有义务,包括在本合同第30条下的租客义务,在本合同期限届满或提前终止时仍未完全履行,包括但不限于赔偿义务、与租金有关的付款义务以及与房产状况和维修有关的义务。

29.陪审团审判的放弃。在法律允许的范围内,房客和房东放弃任何由陪审团审判或让陪审团参与解决房东和房客之间因本租约或与本合同有关的任何其他文书、文件或协议或与本合同有关的交易而产生的任何纠纷的权利

30.环境要求。

(a)禁止/遵守/赔偿。承租人或任何承租方不得违反适用的环境规定(以下定义),致使或允许将任何危险材料(以下定义)带入、保存、使用、储存、处理、处理、在房舍、建筑物、物业或项目内或附近产生、释放或处置。如果承租人违反前一句所述义务,或者如果在租期内房产中存在有害物质或任何扣押导致房产、建筑物、财产或项目或任何相邻财产受到污染,或者如果在租期内或任何扣押期间,房产、建筑物、财产或项目或任何相邻财产受到带入、保管、使用、储存、处理、在房产内或附近产生、或释放或处置的有害物质的污染,承租人特此就任何及所有行动(包括但不限于任何补救或强制执行行动、行政或司法程序,以及由此产生或产生的命令或判决)、费用、索赔、损害赔偿(包括但不限于惩罚性损害赔偿和基于房地或工程价值减少的损害赔偿,或房地或工程任何部分的损失或使用受到限制)、开支(包括但不限于律师、顾问和专家的费用,为解决任何索赔或诉讼而支付的法庭费用和金额)、罚款、没收或其他民事、行政或刑事处罚、禁令或其他救济(无论是否基于人身伤害、财产损失或环境、地下水位或自然资源的污染或不利影响)、在租期内或之后因此类污染或租户违反其在本第30条下的义务而产生的责任或损失(统称为“环境索赔”)。承租人对业主的这项赔偿包括但不限于因任何联邦、州或地方政府当局对场地条件的调查或任何清理、处理、补救、移走或恢复工作而发生的费用,这些工作是由于房舍之上、之上或之下的空气、土壤或地下水中存在的有害物质。在不限制上述规定的前提下,如果租户或任何租户一方造成或允许的任何有害物质出现在房屋、建筑物、物业、项目或任何相邻物业上,导致房屋、建筑物、物业、项目或任何相邻物业受到任何污染,租户应立即采取一切必要的行动,使房屋、建筑物、物业、项目或任何相邻物业恢复到污染发生前的状态,但前提是必须先征得业主的同意,该批准不得

 

LOGO


多租户实验室       肯德尔广场一号/科罗–第32页

 

不合理地拒绝,只要此类行为不会对房地、建筑物、物业或项目产生任何潜在的长期或短期的重大不利影响。即使第28条或本第30条另有相反规定,租客无须对以下情况负责,而本段所载的弥偿及保持无害的责任,并不适用于(i)租客可证明在紧接生效日期前已存在于该处所内的处所内的污染,(ii)租客可证明已从处所外移入处所的处所内的任何有害物料,或(iii)由业主或任何业主的雇员、代理人及承建商所造成的污染,除非在任何情况下,此种危险材料的存在(x)是由于承租人违反其在本租约下的任何义务,或(y)是由承租人或任何承租方造成、促成或加剧的。

(b)商业。业主承认,本第30条并不是要禁止租客使用该处所作准许用途。只要按照当时适用的所有环境要求,对危险材料的使用或存在进行严格和适当的监测,租户就可以按照审慎的行业惯例经营其业务。作为一项重要的诱因,业主可容许租客使用与其业务有关的有害物料,租客同意在生效日期前向业主交付一份清单,列明每一类有害物料(租客为一般清洁及办公用途而惯常以微量使用的产品除外)须带往该处所、备存、使用、贮存、处理、处理、在该处所产生、释放或处置,并列明与该处所的存在、使用、贮存、处理、处理、生成有关的任何及所有政府批准或许可,在处所内或从处所释放或处置此类危险材料(《危险材料清单》)。根据业主的书面要求,或在租户因使用或占用处所而须向任何政府当局(例如消防处)交付危险物料清单的任何时间,租户须向业主交付该危险物料清单的副本。承租人须在生效日期前,或如当时无法取得,则须在收到政府当局或向政府当局呈交的同时,向业主交付与危险物料的使用、贮存、处理、处理、生成、释放或处置有关的下列文件(“Haz Mat Documents”)的真实及正确副本:许可证;批准书;报告及函件;贮存及管理图则、违反任何法律规定的通知;与在工程项目内或项目下安装任何贮存罐有关的图则(条件是,只有在业主书面同意承租人安装储罐后,方可允许安装储罐,而该同意可由业主全权酌情决定不予批准);所有和所有联邦、州和地方政府当局要求的所有关闭计划或任何其他文件,用于关闭项目中、项目上或项目下安装的任何储罐;以及一份退役和密封垫片关闭计划(根据第28条的规定,不能在3个月内完成移交)。不过,租户无须向业主提供Haz Mat文件的任何部分,而这些文件本身并不包含任何危险材料或危险活动的专有性质的资料。本条的目的并不是要向业主提供信息,如果这些信息被租户的竞争对手占有,可能会对租户的业务造成损害。

(c)租户代表和担保。承租人在此向业主作出陈述及保证:(i)任何先前的业主、贷款人或政府当局在任何时间,均未要求承租人或其任何合法的前任就有害物质污染该物业而采取补救行动,而该污染是该前任的承租人所容许的,或因承租人或该前任的行动或使用该物业而导致的;及(ii)承租人不受任何政府当局就使用、贮存、处理、处理、生成、释放或处置有害物质(包括,但不限于与未向任何政府当局作出规定的报告有关的任何命令)。如果业主认定本陈述和保证在本租约签订之日并不真实,业主有权自行和绝对酌情决定终止本租约。

 

LOGO


多租户实验室       肯德尔广场一号/科罗–第33页

 

(d)测试。业主有权对房产进行年度测试,以确定房产、建筑物、物业或项目是否因租户的使用而受到污染。如有违反本第30条的情况,或如根据本第30条确认租客须负责的污染,租客须缴付该处所的年度化验费用;但如租客使用第三方承建商及业主可接受的化验程序自行进行该处所化验,而化验已向业主核证,则业主须接受该等化验,以代替租客须缴付的年度化验费用。此外,在租期届满或提前终止前的任何时间或不时,业主有权对房屋、建筑物、物业及工程进行适当测试,以确定是否因租户使用房屋而发生污染。就上述测试而言,承租人须应业主的要求,向业主或其顾问提供有关承租人或任何承租人在处所内或有关处所使用有害物料的非专有资料。如已发生污染,而承租人须根据本第30条承担法律责任,则承租人须支付一切合理费用以进行该等测试。如未发现上述污染,业主须支付上述化验的费用(不构成经营费用)。业主须向租客提供所有第三者的副本、由业主或代表业主在租期内所作的非保密报告及房舍测试,而无须任何陈述或保证,并须遵守保密协议。承租人须自费及自费,按照所有环境规定,迅速及圆满地补救该等测试所指明的任何环境状况。业主接获或信纳任何环境评估,绝不会放弃业主对租客所拥有的任何权利。

(e)控制区。应允许租户在适用的建筑规范所指定的任何控制区或区域(位于房舍内)内,最多按比例使用危险材料库存中的份额,用于化学品用途或储存。如前一句所用,租户在位于房舍内的任何控制区或区域的按比例份额,应根据租户在适用的控制区或控制区内租赁的可出租面积来确定。如果一个控制区或控制区包含10,000平方英尺的可出租面积,而租户的房产中有2,000平方英尺的可出租面积位于该控制区或控制区内(而该房产作为一个整体包含5,000平方英尺的可出租面积),则适用的租户在该控制区内的按比例份额为20%。

(f)地下坦克。如果承租人使用或以后承租人将存放在房舍或项目内的危险材料的储存罐放置在房舍或项目内,承租人应安装、使用、监测、操作、维护、升级和管理此类储存罐,保持适当的记录,获取和维护适当的保险,执行报告程序,适当关闭任何储存罐,并采取或促使采取根据适用的州和联邦法律要求采取的所有其他必要或要求的行动,这些行动现在已经存在,或以后可能在安装、使用、维护、管理、操作方面通过或修订,升级和关闭这种储罐。即使本条例另有相反规定,承租人亦无权在工程内使用或安装任何地下储存罐。

(g)租户的义务。承租人根据第30条所承担的义务应在租约期满或提前终止后继续有效。在本租约期满或提前终止后的任何一段时间内,租客或业主须完成从房舍移走任何有害物质的工作(包括但不限于解除和终止任何限制使用房舍的许可证或许可证,以及完成经批准的退役和隔气罩封闭计划),租客须继续按照本租约支付房舍的全部租金,而房舍的任何部分并非由业主自行决定转租,而租金须按比例每日分摊。

(h)定义。如本文所用,“环境要求”一词是指任何政府机构的所有适用的现行和未来法规、条例、条例、规则、守则、判决、命令或其他类似的法规,这些法规、条例、条例、条例、规则、守则、判决、命令或其他类似的法规对房舍、建筑物、财产或项目或环境进行监管或与之相关的健康、安全或环境条件,包括但不限于以下内容:《综合环境应对、补偿和责任法》;《资源保护和恢复法》;以及所有与之对应的州和地方法规,以及根据该法颁布或发布的任何法规或政策。如本文所用,术语“危险材料”

 

LOGO


多租户实验室       肯德尔广场一号/科罗–第34页

 

指并包括任何物质、材料、废物、污染物或污染物,这些物质、材料、废物、污染物或污染物被列为或被界定为危险或有毒,或因其对人类、动物和/或环境的影响或潜在影响而受到管制的任何环境要求、石棉和石油,包括原油或其任何部分、天然气液体、液化天然气或可用作燃料的合成气(或天然气和此类合成气的混合物)。根据《环境要求》的定义,承租人是并应被视为承租人的“设施”的“经营者”,是承租人或任何承租方带入房舍的所有有害物质以及由此产生、产生或产生的废物、副产品或残留物的“所有人”。

(i)石棉。

(i)石棉通知。业主特此通知承租人,在附件 G所指明的地点的房舍内或周围有含石棉物料(“ACM”)和/或推定含石棉物料(“PACM”)。

(二)承租人确认书。承租人在此确认已收到第30(i)条(i)段所载的通知,并理解此项通知的目的是使承租人及承租人的任何代理人、雇员及承建商知悉大厦内或大厦周围有ACM及/或PACM,以避免或尽量减少此类ACM及/或PACM的任何损坏或干扰。

_________租户姓名首字母

(三)承包商/雇员致谢。租客在处所内或处所周围进行、授权或准许下列任何活动之前,以及在向任何人招标提供该等服务之前,须至少提前14天向业主发出书面通知。此种通知应指明或说明此种活动的拟议范围、地点、日期和时间,以及可能进行此种活动的每个人的姓名、地址和电话号码。其后,租客须给予业主合理的进入处所的权限,以决定是否有任何ACM或PACM会因该等活动而受到干扰。未经业主事先书面批准,承租人不得为进行该等活动而向任何人招标。在承租人收到业主的书面要求后10天内,承租人须向业主交付承租人的任何承建商、代理人或雇员签署的确认书的副本,确认承租人已收到有关资料,说明在该等活动开始前,在附件 G所指明的地点内或有关该等处所的房舍内,有ACM及/或PACM。本第30(i)条不得当作扩大租客在租约下的权利,或以其他方式进行、授权或准许任何该等活动。

(a)拆除热系统绝缘层(“TSI”),并将ACM和PACM(即喷涂或抹布材料,如纹理天花板涂料或防火材料)堆叠起来;

(b)去除不是TSI的ACM或PACM或表面的ACM或PACM;或

(c)修理和维持可能干扰ACM或PACM的作业。

31.租客的补救措施/责任限制。除非业主在租客发出书面通知后30天内没有履行其在本协议项下的任何义务(除非由于该义务的性质,该履行将需要超过30天的时间,然后在合理需要的时间之后),否则业主不得在本协议项下违约。如业主有任何失责行为,租客须以挂号或核证邮件,向任何涵盖该处所的按揭持有人,以及该处所所在或其所在的任何物业租赁的业主,发出通知

 

LOGO


多租户实验室       肯德尔广场一号/科罗–第35页

 

(在租客已接获上述通知的范围内),而租客须向该持有人及/或业主提供合理机会,以纠正失责,包括有时间藉出售权力或司法诉讼取得对工程项目或其中部分处所的管有权,(如该等法律诉讼证明为达成补救所需);但业主须已以书面向租客提供将接获该等通知的所有该等人的姓名及地址。业主在本合同项下的所有义务均应解释为契约,而非条件;除本租约另有明文规定外,租客不得因违反业主在本合同项下的义务而终止本租约。

除下一句的条款另有规定外,业主根据本租约所承担的所有义务,只在其拥有处所期间对业主具有约束力,其后则不具约束力。本租约中的“业主”一词仅指当其时处所的业主。在该拥有人转让其在处所的权益后,该拥有人须随即获解除并解除其后累积的业主的一切义务,但在该拥有人的所有权期间,该等义务在任期内对每名新拥有人具有约束力。

32.检查和出入。业主及业主代表可在营业时间内进入处所,但须提前不少于48小时发出书面通知(如属紧急情况,则无须发出该通知,而该通知可在任何时间进入),以便进行任何该等修理、视察处所、向准买家展示处所,以及在租期的最后18个月内,向准租客展示处所或作任何其他经营用途。业主可在房舍、建筑物或物业上竖立适当的标志,述明该等房舍或建筑物可供出租,或该等建筑物、物业或项目可供出售。业主可批出地役权、作出公开用途、指定公共区域及对处所、建筑物及物业作出限制,但该等地役权、用途、指定或限制不得对租户使用或占用处所作重大不利影响。根据业主的要求,租客须签立合理需要的文书,以作该等地役权、专用或限制。租客在任何时候,除在紧急情况下外,均有权在业主或其代理人、代表、承建商或客人在房舍内时护送他们,但此种护送不会对业主根据本协议享有的进出权利产生重大和不利的影响。

33.安全。承租人承认并同意,如果有任何保安设备和服务,虽然其目的是威慑犯罪,但在特定情况下不能防止盗窃或其他犯罪行为,而且房东没有为房舍提供任何保安服务。承租人同意,业主无须就任何失窃所造成的损失,或承租人因任何未经授权进入处所或任何其他违反处所的保安而蒙受或招致的任何其他损害,向承租人承担法律责任,而承租人亦放弃就该等失窃而向承租人提出的任何申索。承租人须对承租人的高级职员、雇员、代理人、承建商、宾客及受邀者的人身安全负全责,而任何该等人是在房舍、建筑物、物业及/或工程内或附近。承租人应在承租人希望得到保护免受此种犯罪行为侵害的范围内,由承租人承担费用获得保险。

34.不可抗力。除支付租金和本租约项下的任何其他金钱义务外,对于因天灾、罢工、停工或其他劳资纠纷、禁运、检疫、天气、国家、地区或地方的灾害、灾难或灾难、无法以合理成本获得劳动力或材料(或合理的替代品)或未能获得或无法获得履约所需的公用设施、政府限制、命令、限制、规章或控制、国家紧急情况、地方、区域或国家流行病或大流行病、延迟发放或吊销许可证、敌方或敌对政府行动、恐怖主义、叛乱、暴乱、内乱或骚动、火灾或其他伤亡,以及超出其合理控制范围的其他原因或事件(“不可抗力”)。

35.经纪人。业主和租户各自声明并保证,他们没有与任何经纪人、代理人或其他人(统称“经纪人”)就此交易进行交易,并且除Newmark Knight Frank和CBRE外,没有任何经纪人促成此交易。业主及租客

 

LOGO


多租户实验室       肯德尔广场一号/科罗–第36页

 

在此,双方同意对除Newmark Knight Frank和CBRE以外的任何经纪人因与租户或房东(如适用)就此租赁交易进行交易而提出的佣金或其他形式的赔偿要求作出赔偿,并使对方免受损害。

36.对房东责任的限制。即使在此或在任何其他协议中,房东和房客之间的任何约定与此相反:(a)房东不应对房客或任何其他人承担(以及房客和每一个这样的其他人承担所有的风险)损失、损坏或伤害,无论是实际的还是后果性的:房客的个人财产的每一种和描述,包括(b)不得就任何行为或发生在该处所的任何及所有收入向房东提出任何个人追索书,关于或关于本租约项下的房产或以任何方式产生的房产或房东与租客之间关于此事项的任何其他协议以及房东在此项下的任何责任应严格限制于房东对该物业的权益或任何出售收益或就此项出售的任何收益以及就房东支付的任何保险收益'房东或房东的任何官员、董事、雇员、代理人或承包商的财产或资产。在任何情况下,房东或房东的任何官员、董事、雇员、代理人或承包商均不对房客的业务造成损害或由此造成的任何收入损失或利润损失负责。

37.可分割性。如果根据现行或未来的法律,本租赁的任何条款或规定是非法、无效或不可执行的,那么,在这种情况下,双方的意图是,本租赁的其余部分不受影响。此外,本租赁双方的意图还在于,作为本租赁的一部分,应增加一项条款或规定,以代替本租赁的每一项非法、无效或不可执行的条款或规定,其效力与该等非法、无效或不可执行的条款或规定相类似,并应是合法、有效和可执行的。

38.标志;外观。(i)将遮阳篷、外灯、装饰品、气球、旗帜、锦旗、横幅、油漆或其他投影装置安装在建筑物的任何外墙上,(ii)使用业主的标准窗罩以外的任何窗帘、百叶窗、窗帘或屏风,(iii)在窗户的内部或外部涂上或以其他方式防晒,(iv)将任何瓶子、包裹或其他物品放置在窗台上,(v)将任何设备、家具或其他个人财产物品放置在任何外阳台上,或(vi)油漆,在房舍、建筑物、物业或工程的任何部分张贴或展示任何可从房舍外部观看的标志、告示、窗门刻字、标语牌、装饰或任何类型的广告媒体。在处所所在的地板上的标牌及记牌板,须由业主为租客题写、涂刷或贴上,费用由业主承担,并须由业主承担,其大小、颜色及类型,并须位于业主可接受的地点。除了房东的标准字体外,任何东西都不能放在走廊墙壁或走廊门的外部。目录平板电脑须专供显示租客的姓名及位置。

39.杂项。

(a)通知。各方当事人之间的所有通知或其他通信均应以书面形式发出,并应视为在送达或收件人拒绝接受送达(如果是亲自送达的)时妥为发出,或在实际收到(如果是由信誉良好的隔夜担保信使送达的)时妥为发出,并按上述地址发送给各方当事人。业主及租客可不时藉书面通知另一方而指定另一地址,以接收日后的通知。

 

LOGO


多租户实验室       肯德尔广场一号/科罗–第37页

 

(b)连带责任。如果在本文书中使用的“承租人”一词中包含一个以上的人或实体,则每个人或实体应对承租人的义务承担连带责任。

(c)财务资料。租客须向业主提供(i)租客在租期内每个财政年度结束后90天内,租客最近一期经审计的年度财务报表的真实完整副本;(ii)租客在租期内每个财政年度的前三个财政季度结束后45天内,租客最近一期未经审计的季度财务报表;(iii)应业主不时要求,提供最新的业务计划,包括现金流量预测和/或形式上的资产负债表和损益表,业主须将所有这些资料视为属于承租人的机密资料,(iv)承租人为潜在投资者拟备的公司小册子及/或简介,及(v)承租人通常向其贷款人或股东提供的任何其他财务资料或摘要。只要承租人是一家“上市公司”和/或其财务信息是公开的,则本第39(c)条的上述交付要求就不适用。

(d)录音。本租约或租约备忘录均不得由承租人或代表承租人在任何公开纪录内存档。业主可拟备和存档一份租契备忘录,并应业主的要求由租客签立。

(e)口译。在解释本租约或本租约的任何证物或修正案时,不应采用通常的解释规则,即不利于起草方的任何歧义都应得到解决。除文意另有所指外,本租赁中使用的任何性别的词语均应包括并解释为包括任何其他性别,而单数中的词语应包括复数。本租赁中插入的标题仅为方便起见,并不以任何方式界定、限制或以其他方式描述本租赁或本租赁的任何规定的范围或意图,或以任何方式影响对本租赁的解释。

(f)在执行前不具约束力。业主向承租人提交本租约不具有任何约束力或效力,不构成房屋租赁的选择权,也不赋予任何一方任何权利或义务,直至双方签署本租约为止。

(g)《全面协定》;修正案。本租约构成业主与租客之间有关房屋租赁的全部协议,并取代有关房屋租赁的所有其他口头或书面协议,而任何其他有关协议均不具效力。本租约的任何修订或修改须以书面作出,并须由业主和租客双方签署,而本租约的任何其他修订或修改企图均属无效。

(h)利息限制。业主和租客在任何时候都明确打算遵守适用的法律,该法律管辖就本租约或与本租约有关的任何应付利息的最高利率或金额。如适用的法律曾被司法解释为使本租约所要求的任何利息成为高利贷,或就本租约而订约、收费、收取、保留或收取的任何利息,则业主和租客的明示意图是,将业主收取的所有多余款项记入适用的债务(或,如果该债务已经或将因此全额支付,则退还租客),而本租约的规定应立即被视为已修改,此后可根据本租约收取的款项应予减少,而无须签署任何新的文件,以符合适用的法律,但以允许追回本协议所要求的最大金额。

 

LOGO


多租户实验室       肯德尔广场一号/科罗–第38页

 

(i)法律的选择。本租约的构造和解释应受马萨诸塞联邦国内法管辖,不包括任何法律冲突原则。

(j)时间。对于承租人或房东在本租约下的义务的履行而言,时间至关重要。

(k)外国资产管制处。承租人及承租人的所有实益拥有人目前(a)遵守并应在本租期内始终遵守美国财政部外国资产控制办公室(OFAC)的规定及与之相关的任何法规、行政命令或法规(统称为“OFAC规则”),(b)不在本租期内也不应在《特别指定国民和被封锁人员名单》、《外国制裁规避人员名单》或《部门制裁识别名单》上列出,全部由外国资产管制处保存和/或列入外国资产管制处或其他政府当局根据任何授权法规、行政命令或条例保存的任何其他类似名单,以及(c)不是根据外国资产管制处规则禁止与美国人开展业务的个人或实体。

(l)以参考方式成立为法团。本合同所附的所有展品和增编均并入本合同,并作为本合同的一部分。如该等证物或增编与本租约的条款有任何冲突,则该等证物或增编应予控制。

(m)无协议和满意。承租人或业主收取的金额少于每月基本租金或任何额外租金的款项,除最早订明的基本租金及额外租金外,不属其他原因,亦不属就支付基本租金或额外租金而在支票或函件上所作的任何批注或声明。业主可接受此种支票或付款,但不得损害业主追讨此种租金余额或寻求本租约所规定的任何其他补救办法的权利。

(n)危险活动。尽管本租约另有规定,业主对其本身及其雇员、代理人及承建商保留权利,拒绝按照租户的常规安全指引、惯例或习惯或审慎的行业惯例,在房舍的任何部分进行任何修理或服务,而该部分须提供除安全眼镜以外的任何形式的防护服或设备。在任何该等情况下,租客须在业主的合理酌情决定权下,就所有该等修理及服务与业主可接受的各方订立合约,而业主须在规定的范围内,公平地调整租客就该等修理或服务所分担的营运开支,以反映业主并无向租客提供该等修理或服务。

(o)对应方。本租约可由2个或2个以上的对应单位签署,每个对应单位应被视为正本,但所有这些合同加在一起应构成同一份文书。对应件可以通过传真、电子邮件(包括符合2000年《美国联邦ESIGN法》的pdf或任何电子签字程序)或其他传送方式递送,如此递送的任何对应件应被视为已妥为有效地递送,并对所有目的均有效和有效。就本租约及与之有关的所有事项而言,电子签字应视为原始签字,此种电子签字具有与原始签字相同的法律效力。

[下一页签名]

 

LOGO


多租户实验室       肯德尔广场一号/科罗–第39页

 

业主及租客自上述日期及年份之日起已签立本租契,以证明该租契是在何处签立的。

 

租户:
KORRO BIO,INC.,  
a特拉华州公司
签名:   Nessan Bermingham
打印名称:   Nessan Bermingham
职位:   总裁  
房东:  
ARE-MA区域编号59,有限责任公司,
a特拉华州有限责任公司
签名:   ALEXANDRIA REAL ESTATE EQUITIES,L.P.,
  a特拉华州有限合伙企业,
  管理成员
  签名:   ARE-QRS公司,
    a马里兰公司,
    普通合伙人
    签名:   Kristen Childs
    打印   姓名:Kristen Childs
    职位:   RE法律事务副总裁

 

LOGO


附件A出租

房地说明

LOGO


EXHIBIT B TO LEASE

财产说明

马萨诸塞州联邦米德尔塞克斯郡的不动产,描述如下:

100、200、300、400和500号楼:

位于马萨诸塞州米德尔塞克斯县剑桥市的四块已登记的土地,边界和描述如下:

Lot 35-L.C. Plan 10378G

在汉普郡大街东北线与梅代罗斯大道枢机大街东南线交汇处开始;

然后沿着红衣主教梅代罗斯大道所说的东南线向北36 ° 06’35”E方向行驶,距离262.69英尺,到达一个点;

从那以后,经过S53 ° 46’58”E,现在或以前是Old Kendall Realty Trust受托人的土地,距离322.66英尺,到达一个点;

然后运行S 36 ° 16 ' 40 " W,由Lot 42显示在Land Court Plan 10378J,距离48.01英尺,到一个点;

其后,由土地法院第10378G号图所示的第36号地段在以下四(4)条路线上运行:

北纬53 ° 40’39“W,距离65.11英尺,到一个点;

S 36 ° 04’50”W,距离126.58英尺,到一个点;

S 53 ° 32’32”E,距离42.30英尺,到达一个点;和

S 28 ° 34’58”E,距离12.62英尺,到现在或以前由Kendall Three Realty Trust的受托人在陆地上的某个点;

然后在S 60 ° 21 ' 50 " W行驶,部分途经上述受托人的土地,部分途经Charles Stark Draper Laboratory,Inc.现在或以前的土地,距离205.87英尺,到达上述汉普郡大街东北线上的某一点;

然后向西北28 ° 54’10”行驶,沿着汉普郡大街的东北线行驶,距离250.01英尺,到达起点。

连同2000年4月16日作为第1137082号文件提交的Charles Stark Draper实验室公司对Cambridge Athenaeum LLC的地役权中规定的地役权的利益。

地段36-L.C. Plan 10378G

从上述宗地东线的一个点开始,所说的点是S36 ° 16’40”W,距离上述宗地的东北角48.01英尺;

从这里向西行驶36 ° 16’40”,途经肯德尔三地产信托公司的土地,距离107.52英尺;到一个点;

然后从S 60 ° 21 ' 50 " W,经过上述受托人的土地,距离26.84英尺,到达一个点;


财产说明       肯德尔广场一号/科罗– 42

 

其后,由35号地块(土地法院图10378G所示)在以下四(4)条路线上运行:

北纬28 ° 34’58“W,距离12.62英尺,到一个点;

北纬53 ° 32’32”W,距离42.30英尺,到一个点;

北纬36 ° 04’50”E,到一个点的距离为126.58英尺;以及

东经53 ° 40’39”,距离起点65.11英尺。

第42号–地庭图则10378J

由上文描述的第35号地段东北角开始;

然后由陆路经营,现在或以前由Kendall Three Realty Trust的受托人经营,经营以下三(3)条路线:

S 53 ° 46’58”E,距离1.97英尺,到一个点;

S 36 ° 25’25”W,距离48.02英尺,到达一个点;和

北纬53 ° 40’39“W,距离1.85英尺,到一个点;

然后在35号地段北36 ° 16’40”E处行驶,距离48.01英尺,到达起点。

第43号–地庭图则10378J

位于马萨诸塞州米德尔塞克斯郡剑桥的某一块土地:

由以下提及的图则所示的39号地段向东北方向行驶,13号和05/100英尺;

东南方向48和04/100英尺;以及

西南十三号和28/100英尺41号地段,按上述计划;和

西北方向按计划42号地段,48英尺和02/100英尺。

该宗地显示为第43号地皮,位于地庭图则10378J上。

所有上述边界均由法院确定,其位置如法院批准的分区图所示,该分区图已在土地登记处存档,该分区图的副本已在登记簿第1050页的契据登记处存档,并附有证书184040。

连同Charles Stark Draper Laboratory,Inc.于1983年8月31日向土地法院米德尔塞克斯县登记区(“地区”)提交的作为第657256号文件的某些地役权批准书中规定的权利和地役权。

连同1984年12月17日作为第673502号文件提交的某些地役权协议中规定的权利和地役权,受2006年4月7日地役权协议修正案的影响,作为第1416496号文件提交。

 

LOGO


财产说明       肯德尔广场一号/科罗– 43

 

连同1983年8月30日作为第654750号文件提交的地役权批给书中规定的权利和地役权。

连同剑桥市2009年1月29日授予地役权的权利和地役权,载于第52168册,第362页。

上述包裹也统称如下:

位于马萨诸塞州米德尔塞克斯县坎布里奇的某些注册土地,在土地法院计划10378G上显示为第35和36号地块,在土地法院计划10378J上显示为第42和43号地块,边界和描述如下:

起点位于汉普郡大街东北边线250.01英尺处,从红衣主教梅代罗斯大道东边线与汉普郡大街东北边线交汇处向东南方向延伸:

西南受东北线汉普郡街道,二百五十和0 1/100(250.01)英尺;

西北风,由Medeiros大道枢机东南线,二百六十二和69/100(262.69)英尺;

由陆地向东北现在或以前的剑桥Athenaeum LLC,三百三十七和68/100(337.68)英尺;

东南经安进剑桥地产控股公司现在或以前的土地,四十八及04/100(48.04)英尺;

西南经安进剑桥地产控股有限公司的土地,十五和13/100(15.13)英尺;

东南面安进剑桥房地产控股公司现在或以前的土地,一百零七和52/100(107.52)英尺;和

东南面由安进剑桥地产控股公司和Charles Stark德雷珀实验室公司现在或以前的土地,二百三十二和71/100(232.71)英尺。

600、650和700号楼:

第39号–地庭图10378H

位于马萨诸塞州米德尔塞克斯县剑桥市的某一块土地的边界和描述如下:

从梅代罗斯红衣主教大道东侧的一个点开始,所说的点距离梅代罗斯红衣主教大道东侧与宾尼街南侧交汇处60英尺;

向北,由第10378I号土地法院图则所示的第40号地段、二百三十八及六十三英尺(238.63)、八十二及四十一英尺(82.41)及十七及四百英尺(17.04)所示;

在东方,由土地法院10378I号图所示的40号和41号地块组成,面积分别为一百九十六英尺和八十四百分之一(196.84)英尺,

 

LOGO


财产说明       肯德尔广场一号/科罗– 44

 

向南靠地庭图10378J所示的第43及42号地段及地庭图10378G所示的第35号地段三百三十七及六十八分之六(337.68)呎;

西风,在前面提到的梅代罗斯枢机大道,一百九十九和七十一(199.71)英尺。

上述地块显示为10378H号地法院图39号地块。

40号地块(1400号楼)

该土地连同其上的建筑物及改善工程,位于马萨诸塞州米德尔塞克斯郡坎布里奇市宾尼街的土地法院计划10378I上的第40号地块,也显示在一份题为“Old Binney Realty Trust,Cardinal Medeiros Avenue,Binney Street,Cambridge,Massachusetts”的平面图上,该平面图由Cullinan Engineering Co.,Inc.编制,日期为1987年6月29日,修订日期为1987年7月10日、1988年4月13日、1988年8月12日、1988年9月6日和1988年9月26日,界限和描述如下;

由宾尼街西南线向东北方向移动,分别为二百六十六及八十/一百(266.80)呎及二百二十及四十四/一百(220.44)呎;

东经现在或以前为联合铁路公司的陆路,八十九及24/100(89.24)呎;

由第41号地盘南向南靠10378I号地盘图则二十七号及16/100(27.16)呎;

西南方向按第41、35及12/100(35.12)号标尺及一百零二及73/100(102.73)号标尺而定;

西北靠第39号地盘第10378H、66号及15/100(66.15)尺;

西南由表示第39、17及04/100号地段(17.04)英尺;

西南由表示第39、82及41/100号地段(82.41)英尺;

西南由表示第39号地段,二百三十八和63/100(238.63)英尺;

西北由枢机主教梅代罗斯大道(前称波特兰街),60和00/100(60)英尺。

连同Old Cambridge Realty Trust和Old Kendall Trustees于1984年12月17日签订的地役权协议中规定的权利,作为第673502号文件提交,受2006年4月7日地役权协议修正案的影响,作为第1416496号文件提交。

连同作为第771896号文件提交的《停车场使用权地役权协议》中规定的权利,受1995年1月11日Old Binney Realty Trust受托人Robert A. Jones和George Najarian释放停车权的影响,记录在第25122册,第94页,并作为第966485号文件提交,Old Cambridge Realty Trust管理受托人Robert A. Jones释放停车权,记录在第25122册,第98页,作为第966486号文件提交;Old Kendall Realty Trust管理受托人Robert A. Jones释放停车权,日期为1995年1月11日,记录在第25122册,第102页,作为第966487号文件提交;道富银行和信托公司,Kendall One Realty Trust的受托人,1995年1月5日,记录在第25122册,第106页,作为第966488号文件提交;1995年1月10日,记录在第25153册,第386页,作为第967459号文件提交。

 

LOGO


财产说明       肯德尔广场一号/科罗– 45

 

DWF IV One Kendall,LLC和DWF IV One Kendall Garage,LLC于2014年1月16日签署并记录在第63188册,第559页,并作为第1663415号文件提交。

 

LOGO


出租EXHIBIT C

工作信函

本工作信函(本“工作信函”)由特拉华州有限责任公司ARE-MA Region No. 59,LLC(“房东”)与特拉华州公司KORRO BIO,INC.(“租户”)于2020年7月__签署的特定租约(“租约”)中附上。本合同中使用但未作定义的任何初始大写术语应具有本合同中赋予它们的含义。

1.一般要求。

(a)租户的授权代表。Tenant指定Judy Luttazi和Anna Barry(“Tenant’s Representative”)为根据本工作信函授权代表Tenant行事的唯一人员。业主没有义务对承租人或代表承租人提出的与本工作函有关的任何请求、批准、查询或其他通信(“通信”)作出回应或采取行动,除非此种通信是由承租人代表以书面形式发出的。租客可在提前不少于3个工作日向业主发出书面通知后,随时更换租客代表。承租人或承租人代表均无权指示业主的承建商进行业主工作(定义见下文)。

(b)业主的认可代表。业主指定Tim White和CJ Coy(其中一人单独行事,即“业主代表”)为根据本工作信函授权代表业主行事的唯一人士。承租人无须就业主或代表业主提出的与本工程通知书有关的任何请求、批准、查询或其他函件作出回应或采取行动,除非该函件是由业主代表以书面形式发出的。业主可在不少于3个工作日前向租客发出书面通知后,随时更换其中一名业主代表。业主代表是唯一获授权指示业主承建商进行业主工作的人。

(c)建筑师、顾问和承包商。业主和租客在此确认并同意:(i)P & IDC应是租户改善工程的总承包商,(ii)RH. Dineen Architects应是租户改善工程的建筑师(“TI建筑师”),以及(iii)租户改善工程的任何分包商应由业主选择,但须经租户批准,不得无理地拒绝、附加条件或延迟批准。

(d)建筑合同。承租人改善工程的建造合约,须按业主的标准建造协议格式写成,并须作出业主合理可接受的修改,如合约金额为工程费用,另加一笔不超过预算(如第5(a)节所界定)所列美元数额的“保证最高价格”的费用(预算应以已完成的许可证图纸为基础,不应包括政府当局在审查许可证时提出的意见),但须受该合约条款的规限并受预算核准后政府当局所要求的许可证图纸的变更和任何变更所引起的任何增加的影响。

2.租户改善。

(a)租户改善的定义。如本文所用,“租户改善”是指以下第2(c)节所定义的TI施工图所示的固定和永久性质的房舍的所有改善。除业主的工作(如下文第3(a)条所界定)外,业主在装修处所以供租客使用及占用方面并无任何责任。

(b)租户的空间计划。业主和租客承认并同意本协议所附的附表1空间图则(“空间图则”)已获业主和租客双方批准。业主和承租人还承认并同意,承租人要求的对空间计划的任何变更均构成变更请求,其费用应从TI基金中支付。


工作信–业主建造       肯德尔广场一号/科罗–第47页

 

(c)工作图纸。在空间图则获批准后的10个工作日内,业主须安排TI建筑师为租户改善(“TI施工图”)编制施工图则、规格及图纸,并将其交付租户审查及评议,TI施工图须大致按照空间图则编制。租户应全权负责确保TI施工图反映租户对租户改善的要求。承租人应在承租人收到TI施工图后10个工作日内,将其对施工图的书面意见送交业主;但承租人不得在未提交变更请求的情况下拒绝批准与空间图相符的任何事项。业主和TI建筑师应真诚地考虑所有这些意见,并应在收到这些意见后10个工作日内通知租户业主如何建议对这些意见作出回应,但租户根据上述句子享有的审查权不应延误租户改善工程的设计或施工时间表。与此种意见有关的任何争议应按照本条例第2节(d)解决。除非承租人提出更改要求,否则承租人须批准业主提交的TI施工图,但TI施工图所反映的设计与空间图实质上一致。经承租人批准后,在符合以下第4条规定的情况下,业主不得对TI施工图进行实质性修改,除非与颁发TI许可证(定义见以下第3(b)条)有关的合理要求。

(d)核准和完成。业主和租客在此确认,业主和租客改善工程的许可图纸已获业主和租客批准,最终的TI施工图纸必须在2020年8月10日之前完成并获得批准,以便业主的工程在目标开工日期之前基本完成。有关租客改善工程设计的任何争议,如在一方向另一方发出有关该争议的通知后10个营业日内未能解决,租客可就租客改善工程的设计作出最后决定,但条件是(i)租客的行为是合理的,而该最后决定与业主和租客在该争议上的立场一致或相互妥协,(ii)租客的任何该等决定所引致的所有费用及开支,须由TI基金(定义见下文第5(d)条)支付,(iii)租户的决定不会影响基座大楼、大楼的结构部分或任何大楼系统。承租人要求业主和承租人批准TI施工图后,TI施工图的任何更改均应按本协议第4条的规定处理。

3.房东工作的表现。

(a)房东工作的定义。如本文所用,“业主工程”系指(i)拆卸在双方共同执行租约时已存在于房屋内的改善工程,而该等拆除工程须由业主支付,而不包括在TI成本(定义见下文第5(c)条)内;(ii)进行业主合理厘定的所需改善工程,以将该部分称为437室的房屋改建为H2房,而该等改善工程须由业主支付,而不包括在TI成本内;及(iii)承租人改善工程的建造工程。

(b)开始和许可。业主须在取得建筑许可证(“TI许可证”)后开始建造承租人改善工程,该许可证授权承租人按照承租人批准的TI施工图建造承租人改善工程。获得TI许可证的费用应由TI基金支付。租客须与业主合作取得TI许可证。如任何对业主工程或其任何部分的建造具有司法管辖权的政府当局,须对该工程的建造施加以下条款或条件:(i)与业主根据本协议所承担的义务不一致,(ii)增加业主工程的建造成本,或(iii)会严重延误业主工程的建造,业主及租客须合理及真诚地寻求减轻或消除任何该等不利条款及条件的方法。

 

LOGO


工作信–业主建造       肯德尔广场一号/科罗–第48页

 

(c)完成业主的工作。业主须在目标生效日期当日或之前(但须受租客延迟及不可抗拒的延迟所规限),按照适用的法律规定,以良好及工夫般的方式,并在每宗个案中,按照《国际劳工组织许可证》的规定,大致完成或安排大致完成业主的工程,不影响房舍使用的微小变动和非实质性的正常“打卡清单”项目,以及房舍的占用证书或临时占用证书(或已颁发的同等批准),允许合法占用房舍(但具体不包括租户在房舍内经营所需获得的任何许可证、执照或其他政府批准)(“实质完工”或“实质完工”)。在业主的工程实质上完成后,业主须要求TI建筑师及总承建商为租客及业主的利益,签立及交付一份以美国建筑师学会(“AIA”)G704号文件为形式的实质上完成的证明书。就本工作信函而言,“轻微改动”是指合理需要的任何修改:(i)遵守所有适用的法律规定和/或获得或遵守任何所需的许可证(包括TI许可证);(ii)遵守承租人对业主工程的任何修改要求;(iii)遵守并非重要的良好设计、工程和施工惯例;或(iv)对业主工程施工过程中遇到的场地偏差或条件作出合理调整。

(d)材料的选择。如果业主和租户批准的TI施工图上显示了一种以上的材料或结构,该选项将由业主自行和绝对的主观酌处权选择。至于业主根据本工程通知书有义务供应的所有建筑材料及设备,业主须以其合理酌情权选择制造商。如租客为处所安装门锁,作为租客改善工程的一部分,租客须在处所安装与业主在建筑物内为其总钥匙系统所使用的相同类型的门锁。

(e)房地的交付。在符合本第3(e)条其余条款及条文的规定下,业主的工程已基本完成时,租客须接受该处所。承租人接管并接受该处所,并不构成对下列事项的放弃:(一)与工艺(包括设备安装)或材料(不包括制造商直接提供的设备)有关的任何保证;(二)业主的工程不符合适用的法律规定;或(三)业主的工程未按照TI施工图的规定基本完成的任何声称(但须作出细微改动和本合同所允许的其他改动)(统称为“建筑缺陷”)。承租人须在实质工程完成后一年内,将承租人发现的任何该等建筑缺陷通知业主,而业主须作出合理努力,在其后30天内补救或促使负责承建商补救该等建筑缺陷,而承租人无须为此付出任何费用。尽管有上述规定,如适用的承建商不顾业主的合理努力,未能在该30天期限内补救该建筑缺陷,则业主不得违反租约。如承建商未能在合理时间内补救该建筑缺陷,业主须尽其合理努力在合理时间内补救该建筑缺陷。

承租人有权获得与安装在房舍内的设备有关的所有建造保证和制造商设备保证。如果承租人提出要求,房东应设法从此类设备的制造商和供应商处获得延长保修,但任何此类延长保修的费用应完全由TI基金承担。业主应迅速承担并完成或安排完成所有打孔清单项目。

(f)生效日期延迟。除租约另有规定外,房产的交付须在业主的工程已实质完成时进行,但业主工程的实质完成须因下列任何一项或多项原因而实际延迟的情况除外(“租户延迟”):

(i)在3个营业日内,两名租户代表均不能发出或接收任何来文,或采取根据本协议规定须由租户采取的任何其他行动;

 

LOGO


工作信–业主建造       肯德尔广场一号/科罗–第49页

 

(二)承租人提出的变更请求(定义见下文第4(a)节),不论是否实际执行了任何此类变更请求;

(三)在符合下文第4条的规定下,建造任何变更请求;

(四)承租人要求的材料、装修或安装需要超长的交货期,但业主在得知交货期过长后,应立即通知承租人所要求的物品需要超长的交货期;

(五)承租人在审查、修订或批准计划和规格方面的拖延超过本文件规定的期限;

(六)承租人迟延提供对工作的正常进行至关重要的信息。租客须在合理可能的范围内尽快提供该等资料,但在任何情况下不得超过在接获业主要求提供该等资料后一星期;

(vii)租客迟延向业主支付TI超额费用(定义见下文第5(d)条);或

(viii)租客或任何租客方(如租约所界定)或任何该等人所雇用的人的任何其他作为或不作为,而该等作为或不作为在业主向租客发出书面通知后持续超过3个营业日。

如由于上述任何理由而延迟交付,则业主须安排TI建筑师核证若没有该租户延迟交付,租客改善工程本可完成的日期,而该核证日期即为交付日期。

4.变化。在业主及租客批准空间图则后,租客要求对租客改善工程作出的任何更改,均须按照本第4条的条文提出要求及提出,并须经业主及国际建筑师协会的书面批准,而该等批准不得无理地被拒绝、附加条件或延迟。

(a)租户的变更请求。如承租人要求更改承租人的改善(“更改”),承租人须以与友邦保险标准更改令表格(“更改要求”)大致相同的格式,以书面通知业主,要求更改,更改要求须详述任何更改的性质及范围。此类变更请求必须由租户代表签署。业主在进行任何变更前,应尽商业上合理的努力,在合理可能的情况下尽快向租户作出回应,并作出善意的估计:(一)分析变更请求所需的时间,以及(二)将产生的建筑和工程费用和成本(无论是否实施变更,这些费用应在实际发生的范围内从TI基金支付)。业主其后须在接获更改要求后5个营业日内(或根据更改要求的范围而合理需要的较长时间内),以书面向租客呈交所涉及的额外费用或节省的分析,包括但不限于建筑及工程费用,以及更改将延展业主的工程大致完成的日期的期限(如有的话)。任何因更改而导致的延迟完成业主工程的情况,包括在评估和/或设计任何该等更改期间暂停业主工程的情况,均属租客延迟。

 

LOGO


工作信–业主建造       肯德尔广场一号/科罗–第50页

 

(b)实施变革。如承租人以书面批准完成业主工程的费用或节余,以及估计可延长的时间(如有的话),业主须安排进行经批准的更改。尽管租客曾批准或不批准任何有关该等建议更改所引致的延迟的估计,但TI建筑师就该等更改所引致的租客延迟的数额所作出的决定,即属最终决定,并对业主及租客具有约束力。

5.费用。

(a)租户改善预算。在承租人改善工程开始建造前,业主须取得承租人改善工程的设计及建造工程所招致或将要招致的估计费用的详细细目,并按行业将其交付承租人(“初步预算”)。承租人有权审查和批准不应不合理地、拒绝、附加条件或延迟批准的初步预算和对初步预算的任何修订。即使本条例另有相反规定,如承租人在业主将初步预算或其任何修订交付承租人后5天内,没有将承租人批准或不批准初步预算或该等修订的书面通知交付业主,则承租人须当作已批准该初步预算或修订(视属何情况而定)。经承租人批准(或当作批准)后,初始预算或其任何此类修订应视为本工作函所指的“预算”。业主无权收取与租客改善工程有关的任何协调费、管理费或监督费。预算应以租户批准的TI施工图为基础。

(b)TI津贴。业主应提供租户改善津贴(统称为“TI津贴”),具体如下:

(i)房舍内的“租客改善津贴”,最高款额为每平方英尺200.00美元,包括在租约所列的基本租金内;及

(ii)房舍内每可租平方尺最多40.00元的“额外租户改善津贴”,在租户选择使用其全部或任何部分的范围内,须依据租约第4(b)条产生TI租金。

租客须在2020年12月1日前通知业主,租客已选择从业主处收取多少额外租客改善津贴。这种选择是最终的,对租客具有约束力,此后未经业主同意不得修改,而业主可凭其唯一和绝对的主观酌处权予以批准或拒绝同意。TI津贴应按照本工作信函支付。

承租人无权使用或受益于TI津贴中任何未用于(i)根据第2(d)条批准的TI施工图中所述的承租人改善工程的部分,或(ii)根据第4条批准的任何变更。

(c)可列入国际贸易基金的费用。TI基金应仅用于支付与租户改善工程施工有关的设计、许可、工程和施工费用,包括但不限于与租户改善工程施工有关的电力和其他公用事业费用、编制空间计划和TI施工图的费用、预算中列出的所有费用,包括房东自付费用、租户延误造成的费用和变更费用(统称为“TI成本”)。尽管有任何相反的规定,TI基金不得用于购买任何家具、个人财产或其他非建筑系统材料或设备,包括但不限于非管道生物安全柜和其他未纳入租户改进的科学设备;但前提是租户可以使用TI基金的一部分来安装租户的远程/数据电缆。

 

LOGO


工作信–业主建造       肯德尔广场一号/科罗–第51页

 

(d)TI费用过高。业主没有义务承担任何租客改善工程的任何部分费用,但TI津贴的范围除外。如果预算下的剩余TI费用在任何时候不时超过剩余未用TI津贴(“超额TI费用”),TI津贴的每月支出应按剩余TI津贴与预算下未用TI费用的比例支付,租户应为每个此类每月提款的余额提供资金。就就该等款项提起的任何诉讼而言,须由承租人支付的款项将被视为租约下的租金。TI津贴和超额TI成本在本文中被称为“TI基金”。即使本第5(d)条另有相反规定,承租人须对TI费用及超出TI津贴的轻微变动费用负全部及全部法律责任。

6.租户通道。

(a)租户的使用权。业主特此同意准许租客进入大厦,但须由租客自行承担风险和费用(不包括在此期间支付基本租金或营运费用的义务),(i)在生效日期前45天,进行租客所要求的除业主工程以外的任何工程(“租客工程”),但该租客的工程须与TI建筑师及总承建商协调,并符合租约及业主可能施加的所有其他合理限制及条件,及(ii)在业主工程完成前,视察及观察进行中的工程;所有该等进出须在正常营业时间或业主合理指定的其他时间进行。尽管有上述规定,承租人无权进入处所、建筑物、物业或工程项目,除非及直至承租人须向业主交付业主合理信纳的证据,证明业主合理要求的与该开工前进入有关的任何保险(包括但不限于业主根据租约可能要求的任何保险)是完全有效的。租客的任何进入须符合业主的承建商及业主的所有既定安全惯例,直至业主的工程完成并获租客接受为止。

(b)不受干扰。承租人或任何承租方(根据租约的定义)均不得干预业主工作的进行,也不得干预适用的政府当局对业主工作的任何检查或发出最终批准,在任何此类干预下,业主有权将承租人和任何承租方排除在房屋、建筑物、财产和工程之外,直至业主工作基本完成。

(c)不接受房地。承租人在业主同意下,可在业主的工程已基本完工的日期之前进入房屋、建筑物、物业或工程,以进行承租人的工程,该事实不应被视为承租人接受占有房屋,但在这种情况下,承租人应与业主合理接受的律师进行辩护,就承租人的财产、已完工的工程、固定装置、设备、材料或商品的任何损失或损坏,以及任何人的死亡或受伤的责任,向业主作出赔偿,并使其免受损害,由承租人或任何承租人一方的作为或不作为所引起。

7.杂项。

(a)同意。在本工作函要求任何一方同意或批准的情况下,该一方不得无理地拒绝、限制或延迟这种同意或批准,除非在此明确规定相反。

(b)修改。除非业主和租客以书面签署,否则对本工作书或其任何条件或规定的任何修改、放弃或修订,均不对业主或租客具有约束力。

 

LOGO


工作信–业主建造       肯德尔广场一号/科罗–第52页

 

(c)违约。尽管在此或在租约中有任何相反的规定,业主没有任何义务在租客在租约中违约的任何时期内根据本合同进行任何工作或为TI基金的任何部分提供资金。

 

LOGO


工作信–业主建造       肯德尔广场一号/科罗–第53页

 

附表1

空间计划

 

LOGO


工作信–业主建造       肯德尔广场一号/科罗–第54页

 

LOGO

 

LOGO


EXHIBIT D TO LEASE

ACKNOWLEDGMENT OF COMMENCEMENT DATE

本确认开始日期是特拉华州有限责任公司ARE-MA REGION NO. 59,LLC(“房东”)和特拉华州公司KORRO BIO,INC.(“租户”)于________________________________________________________________________________________________________________________________________________________________________________________________________________________________________________________________________________________________________________________________________________________________________________________________________________________________________________________________________________________________________________________________________________________________________________________________________________________本合同使用但未予界定的任何初始大写术语应具有租赁合同中赋予它们的含义。

业主和租客在此确认并同意,为租赁的所有目的,租赁基本期限的开始日期为______________,租赁基本期限的终止日期为______________的午夜。如本生效日期确认书与租赁书有冲突,则本生效日期确认书须为所有目的而控制。

作为证据,房东和租客已在上述第一个日期签署本确认开始日期生效。

 

租户:
KORRO BIO,INC.,  
a特拉华州公司
签名:    
打印名称:    
职位:    
房东:
ARE-MA区域编号59,有限责任公司,
a特拉华州有限责任公司
签名:   ALEXANDRIA REAL ESTATE EQUITIES,L.P.,
  a特拉华州有限合伙企业,
  管理成员
  签名:   ARE-QRS公司,
    a马里兰公司,
    普通合伙人
  签名:    
  打印名称:    
  职位:    


EXHIBIT E TO LEASE

规则和条例

1.建筑物、物业或项目的人行道、入口和车道不得被租户或任何租户方挡开,或被其用于进出房舍以外的任何目的。

2.租客不得将任何物件,包括天线、户外家具等,放置在其处所以外的停车区、园境区或其他地方,或放置在建筑物的屋顶上。

3.除帮助残疾人的动物外,任何动物不得进入建筑物、物业或项目的办公室、大厅或走廊。

4.承租人不得使用任何无线电或乐器,或发出大声或不适当的噪音,扰乱建筑物、物业或工程项目或邻近建筑物的住户。

5.如租客希望在房舍内进行电报、电话或其他电力连接,业主或其代理人将指示电工将电线引入何处及如何引入;如无此指示,将不允许钻孔或切断电线。任何该等安装或连接须由承租人负担费用。

6.租客不得在处所内安装或操作任何蒸汽机、燃气机或锅炉或其他机械装置,但在租约中特别批准的除外。明确禁止使用石油、天然气或易燃液体取暖、照明或任何其他用途。被视为特别危险的爆炸物或其他物品不得带入建筑物、财产或工程。

7.特别禁止在建筑物、物业或项目上或周围停放任何类型的休闲车辆。除可供营运车辆过夜停泊外,任何类型的车辆不得在任何时间存放于停泊区内。如果车辆被停用,应在48小时内将其移走。任何停放的车辆上或周围不得有“待售”或其他广告标志。所有车辆须按照所有标志及其他标记,停在指定的停放区内。除业主指明外,所有停车场均为开放式停车场,不得预留停车位、个别车位编号或刻字。

8.租客须保持处所免受啮齿动物、昆虫及其他害虫的侵害。

9.业主有权将任何根据业主的判断醉酒或受酒或药物影响或以任何方式违反《建筑物、物业或项目的规则和条例》的人排除或驱逐出该建筑物、物业或项目。

10.承租人不得因其在保持良好秩序和清洁方面的粗心或漠不关心而造成任何不必要的劳动。业主无须就房产上的任何财产损失向租客负责(不论发生在何处),亦无须就看门人或任何其他雇员或人对租客造成的损害向租客负责。

11.租客须将水、草坪洒水装置、污水、煤气管道、电灯及固定装置、暖气装置或任何其他服务设备有任何影响处所的缺陷,迅速通知业主。

12.租客不得准许在房舍外存放,包括但不限于在外存放卡车及其他车辆,或倾倒废物或垃圾,或准许将任何有害物料放置在房舍内或周围的任何排水系统或卫生系统内。


规则和条例       肯德尔广场一号/科罗–第57页

 

13.垃圾处理公司为房舍提供的所有可移动垃圾桶必须存放在为此目的而设置的垃圾桶内。

14.物业、建筑物、物业或项目不得进行公开或私人拍卖。

15.除业主事先书面同意外,不得在处所的窗户上方放置遮阳篷。

16.房舍不得用作住宿、睡觉或做饭(但租客可在指定存放该等物品的区域内,为租客的雇员及承建商的利益而在房舍内使用微波炉、烤面包机及咖啡机,但只有在使用该等物品的个人在任何时候均受其监督的情况下才可使用)或作任何不道德或非法用途,或作租约所指明的目的以外的任何用途。不得在处所内操作游戏装置。

17.承租人应根据建筑物、物业及处所的电线容量及其他承租人的需要,向业主确定可在处所内安全使用的最大电流容量,并且不得使用超过该安全容量的电流。业主同意安装电力设备,并不免除承租人不使用超过安全容量的电力的义务。

18.租户承担保护房舍免遭盗窃、抢劫和盗窃的全部责任。

19.租客不得在处所安装或操作任何性质与租客对处所的正常使用并无直接关系的机械或机械装置,并须保持所有该等机械不受振动、噪音及气浪的影响,而该等振动、噪音及气浪可传至处所以外。

20.承租人须安排承租人雇用的在处所或工程提供服务的任何供应商及其他服务供应商,按法律规定及商业一般责任保险的规定,维持有效的工人赔偿保险,而保险范围的款额是业主合理接受的。承租人须安排该等供应商及服务供应商在该项目向承租人提供任何服务前,指定业主及亚历山大房地产公司为该等保单的额外受保人,并须向业主提供保险证明书,以证明该等保单所规定的承保范围(并显示业主及亚历山大房地产公司为该等保单的额外受保人)。

21.租户应定期审查疾病控制中心(CDC)和任何州和/或地方政府机构发布的指导方针,并将执行所需的做法和程序,并在合理可行的范围内,执行所建议的做法和程序,以及行业标准最佳做法,以防止传染病的传播,包括但不限于新冠疫情。

22.业主有权将任何发烧的人,或根据业主的合理酌情决定权,表现出与新冠疫情或任何其他传染病或病毒有关的类似流感症状或症状的人,排除或驱逐出工程。

 

LOGO


F号附件出租

租户的个人财产

没有。


EXHIBIT G TO LEASE

关于ASBESTOS Containing Materials的存在的通知

本通知提供了关于马萨诸塞州波士顿肯德尔广场一号600/700号楼(“大楼”)内或周围房舍内石棉的某些信息。

历史上,石棉通常用于建筑产品,用于全国各地的建筑。使用含石棉的建筑产品是因为它们耐火,并提供良好的噪音和温度绝缘。由于它们的普遍存在,含石棉材料,或ACMs,仍然有时在今天的建筑物中发现。

2017年对该建筑进行的石棉调查证实,一名清洁工的壁橱里的地砖上有石棉,1号楼里有管道密封剂。St地板空置空间,以及7-102套房地毯/地板下残留的黑色乳香。然而,没有对屋顶材料和防火门进行取样以避免损坏,因此被认为是假定的含石棉材料或PACMS。

由于ACM和PACM可能存在于大楼内部或附近,我们聘请了一家独立的环境咨询公司来准备一个运营和维护计划(“O & M计划”)。O & M计划旨在最大限度地减少建筑物内或周围任何人接触有害石棉的可能性。O & M方案包括一项工作方法说明,目的是使大楼内或大楼周围的任何ACM或PACM保持良好状态,并防止此类ACM或PACM受到任何重大干扰。适当的人员定期接受关于如何正确管理O & M计划的培训。

O & M方案描述了与接触石棉有关的风险,以及如何通过适当的工作做法防止接触石棉。通常认为,除非石棉纤维被释放到空气中并被吸入,否则ACMs和PACMs不会对人类健康构成威胁。这通常不会发生,除非(1)ACM处于恶化状态,或(2)ACM受到严重干扰(例如通过研磨清洗、维护或翻新活动)。如果被吸入,石棉纤维会在肺部积聚,随着接触的增加,疾病(如石棉沉滞症或癌症)的风险也会增加。然而,采取措施尽量减少接触,从而尽量减少石棉纤维的积累,减少了对健康产生不利影响的风险。

O & M方案描述了一些应避免的活动,以防止石棉纤维的释放。特别是,你应该知道,一些可能带来健康风险的活动包括移动、钻孔、钻孔或其他干扰ACM。因此,任何没有资格处理反腐败措施的人都不应试图从事这类活动。

O & M计划可在正常工作时间在房东办公室查阅,地址为400 Technology Square,Suite 101,Cambridge,MA 02139。


租赁第一修正案

本租赁第一修正案(本“第一修正案”)由特拉华州有限责任公司ARE-MA REGION NO. 59,LLC(“房东”)和特拉华州公司KORRO BIO,INC.(“租户”)于2021年3月2日(“修订日期”)作出。

简历

答:自2020年8月10日起,业主和租户现已成为该租赁协议(“租赁”)的当事人。根据租约,承租人在位于马萨诸塞州坎布里奇肯德尔广场一号600/700号楼的某幢大楼中租赁了若干可出租的房地(“房地”),面积约为12,165平方英尺。租约中对房舍作了更具体的描述。此处使用的大写术语无需定义,其含义应与租赁中为此类术语定义的含义相同。

业主和租客希望在符合以下条款和条件的情况下,按照本第一修正案的规定修改租约。

因此,考虑到以上的陈述,其中包含的相互承诺和条件,以及其他良好和有价值的代价,业主和租客在此同意如下:

 

1.

建筑物和工程的可租用面积。自生效日期起,现将租约第1页上“建筑物的可租用面积”和“工程的可租用面积”的定义全部删除,代之以:

“可出租建筑面积:246,793平方英尺”

“项目可出租面积:815,348平方英尺”

 

2.

租户的份额/建筑物的项目份额。自生效日期起,现将租约第1页上的“承租人份额”和“建筑物在工程中的份额”的定义全部删除,代之以:

“租户份额:4.93%”

“建筑物在工程中所占的份额:30.27%”

 

3.

停车。自修订日期起,特此删除租约第10(a)条,代之以:

“(a)停车费和每月停车费。在符合所有适用的法律规定、不可抗力、占用(定义见下文第19条)、业主行使其在本协议下的权利的情况下,自启动日期起,承租人与项目的其他承租人一样,有权使用位于宾尼街肯德尔广场一号停车场(“OKS车库”)的31个停车位(“承租人的停车位分配”)(定义见下文),这些停车位应位于指定用于非预留停车位的区域,但在每种情况下,须遵守业主的规则和规定;但业主可将租户的任何或全部停车位从OKS车库转移到靠近OKS车库的另一个停车设施(即在OKS车库的0.25英里范围内)。如业主确定该等泊车设施正变得拥挤,业主可按上述比例在该工程的租客及其他租客之间分配泊车位。如租客在租期内向业主递交书面通知,要求增加泊车位,而业主决定


业主须以书面通知租客,并须在业主向租客发出有关该等额外车位可供租客使用的书面通知后,立即开始使用及缴付该等额外车位的每月停车费。业主无须负责强制执行承租人的泊车权,以对抗任何第三方,包括工程的其他承租人。“每月泊车费”是指业主指定的市价月费,并根据项目附近可比较泊车设施收取的月费,合理调整,且在任何12个月内不超过一次,而预期在开始日期,每月泊车费相当于每个车位每月400.00元,加上适用的税项。"

 

4.

OFAC。承租人及承租人的所有实益拥有人目前(a)遵守并应在租期内始终遵守美国财政部外国资产控制办公室(简称“OFAC”)的规定及与之相关的任何法规、行政命令或法规(统称为“OFAC规则”),(b)不在特别指定国民和被封锁人员名单、外国制裁规避人员名单或部门制裁识别名单上,全部由外国资产管制处保存和/或列入外国资产管制处或其他政府当局根据任何授权法规、行政命令或条例保存的任何其他类似名单,以及(c)不是根据外国资产管制处规则禁止与美国人开展业务的个人或实体。

 

5.

杂项。

a.本第一修正案是双方就本修正案的主题事项达成的全部协议,并取代之前和同期的所有口头和书面协议和讨论。本第一修正案只能通过双方签署的书面协议加以修改。

b.本第一修正案对双方及其各自的继承人和受让人具有约束力,并对其有利。

c.本第一修正案可由两个或两个以上的对应方签署,每个对应方应被视为正本,但所有对应方加在一起应构成同一文书。对应件可以通过传真、电子邮件(包括符合2000年美国联邦ESIGN法的pdf或任何电子签字程序)或其他传送方式递送,这样递送的任何对应件应被视为已妥为有效地递送,并且对所有目的都是有效的。为本第一修正案及与此有关的所有事项的目的,电子签字应视为原始签字,此种电子签字具有与原始签字相同的法律效力。

d.除经本第一修正案修正和/或修改外,本租约现予批准和确认,本租约的所有其他条款仍然完全有效,不受本第一修正案的修改和不变。如果本第一修正案的规定与租约的规定有任何冲突,则以本第一修正案的规定为准。不论是否经本第一修正案特别修订,现对租约的所有条款和规定作出必要的修订,以实现本第一修正案的目的和意图。

[签名在下一页]

 

LOGO


作为证据,本协议双方已在上述日期和年份的第一个日期和年份执行了本第一修正案。

 

租户:
KORRO BIO,INC.,  
a特拉华州公司
签名:   Anna L. Barry
打印名称:  

Anna L. Barry

职位:   首席运营官
房东:

ARE-MA区域第59号,有限责任公司,

a特拉华州有限责任公司
签名:   ALEXANDRIA REAL ESTATE EQUITIES,L.P.,
  a特拉华州有限合伙企业,
  管理成员
  签名:   ARE-QRS公司,
    a马里兰公司,
    普通合伙人
    签名:   Kristen Childs
    打印名称:Kristen Childs
    职位:   RE地方事务副总裁

 

LOGO