EX-10.10 12 filename12.htm

 

Exhibit 10.10

 

Shanghai Premises Lease Contract

 

 

 

 

Special Notes

 

I. This Contract applies to the pre-lease of commercial housing situated within the administrative jurisdiction of Shanghai, as well as the lease of premises whose rent is determined by related parties through negotiation according to market-oriented principles, exclusive of the lease of any publicly-owned residence premises according to the rent standards specified by Shanghai Municipal Government, of the public benefit non-residence premises administratively allocated and invested by the government, and of the private premises leased according to the rent standards specified by Shanghai Municipal Government prior to the implementation of the Regulations of Shanghai Municipal Government on Premises Lease (hereinafter the “Regulations”).

 

II. The pre-lease hereunder is only restricted to such commercial housings as built by related real estate developers who has obtained the pre-sales permit, except for any commercial housing which has been pre-sold by related real estate developers; and no pre-lease may be conducted by any pre-buyer of any commercial housing.

 

III. Both the terms [For Lease] and [For Pre-Lease] mentioned herein are for indicative purposes, denoting that related provisions or clauses marked with such terms apply to lease or pre-lease, as indicated respectively. When this Contract is used as a premises lease contract, only those provisions marked with the term [Lease] may be included and adopted as an integral part of such contract; likewise, when this Contract is used as a commercial housing pre-lease contract, only those provisions marked with the term [Pre-lease] as well as those entitled “Pre-lease Related Issues” as set out in the Supplementary Provisions may be included therein. Provisions not marked with the mark [       ] shall serve as general terms and conditions applicable to both pre-lease and lease.

 

IV. In case this Contract is to be used for the pre-lease of any commercial housing, both parties to such pre-lease shall, after the completion of the construction of the commercial housing and the handling of formalities for initial registration of real estate and the obtaining of a real estate ownership certificate by related property developer, execute a handover letter for the use of the commercial housing. Upon the effectiveness of the handover letter, the original terms of this Contract on pre-lease shall have been fully fulfilled.

 

V. This Contract is a model text prepared by Shanghai Municipal Housing, Land and Resources Administration in collaboration with Shanghai Administration for Industry and Commerce, in accordance with the Regulations of Shanghai Municipal Government on Premises Lease. All terms of this Contract are only for indicative purposes, and are subject to agreement by and between the Parties hereto. Any issues not covered herein may be specified in Supplementary Provisions by Party A and Party B through negotiation.

 

 

 

  

VI. Prior to execution of this Contract, the lessor is required to present to the prospective lessee its real estate ownership certificate or other related ownership certificate, and appropriate property developer shall show the pre-lessee its pre-sales permit. Either party to an intended lease or prelease shall verify the identity certificate of the other Party and deliver to the same its own identity certificate for verification. Where the intended lessee is an itinerant person from outside Shanghai, the lessor is also required to present the Public Security Permit for Premises Leasing issued by related public security authority.

 

VII. Parties concerned shall, within 15 days upon the execution of this Contract, handle formalities for contract registration as required. Specifically, in the event of premises lease, such formalities shall be handled at the real estate exchange center or farm system filing office at the place where the Premises are located for obtaining a lease contract registration certificate; in the event of pre-lease of commercial housings, the pre-lease of foreign-oriented commercial housings shall be registered with Shanghai Municipal Real Estate Exchange Center; the pre-lease of local-oriented commercial housings shall be registered with the real estate exchange center at the place where the Premises are located. The real estate ownership certificate will be granted after the construction of the commercial housings for pre-lease are completed, and the related parties shall, upon the execution of a handover letter of for the use of commercial housings for pre-lease, handle formalities at the real estate exchange center or farm system filing office at the place where the Premises are located for obtaining a lease contract registration certificate. Upon the registration of the lease contract, the lessee may file claims against any third party in case of any purported repeated pre-leases, transfer or discretional disposal upon mortgage of premises during lease period, etc.

 

VIII. In the event either party requests to handle formalities for registration while the other Party refuses to render necessary coordination, the former may go through related formalities for registration with this lease contract, valid identity certificate, as well as other relevant documents.

 

IX. The security deposit serves as the safeguard to ensure the due performance of the lease contract. At the time of premises lease, the lessor and the lessee may stipulate the security deposit in the lease contract, and the specific amount shall be determined by both parties. Upon termination of the lease, the remaining security deposit, if any, after being used to offset the relevant costs and expenses payable by the lessor as specified in the contract, shall be refunded to the lessee.

 

X. This Contract is available from the Shanghai real estate exchange center or farm system filing office or its divisions in the district or county where the related premises are located. Both parties are advised to read thoroughly each provision contained herein and gain a good understanding thereof.

 

XI. This Contract serves only as a model text for reference by related parties.

 

XII. Where the leasehold hereunder is established under the help of agency or brokerage, related parties to a lease shall require such agency or broker to affix its signature and seal on the last page of this Contract.

 

 

 

  

Shanghai Premises Lease Contract

(Contract No.:     )

 

Between:

 

Lessor (Party A): Shanghai Changtai Business Management Co., Ltd.

 

[For Lease]

 

Lessee (Party B): Shanghai Jump Network Technology Co. Ltd.

 

This Contract is made and entered into by and between Party A and Party B through negotiation based on the principles of equality, voluntariness, fairness, integrity and good faith in respect of issues concerning the lease by Party A to Party B of the premises which Party A is entitled to lease in accordance with the Contract Law of the People’s Republic of China and the Regulations of Shanghai Municipal Government on Premises Lease (hereinafter referred to as the “Regulations”).

 

I. Profile of the Premises

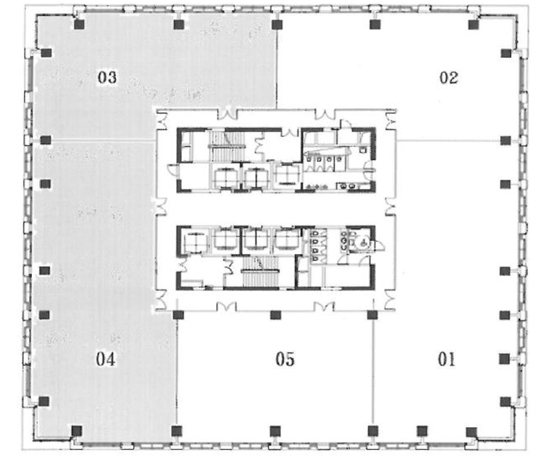
1-1 The Premises for lease by Party A to Party B hereunder is situated at Units 03 and 04, 9th Floor (Tower B, Changtai Plaza), No. 2 Lane 2889, Jinke Road, Pudong New District, Shanghai (hereinafter referred to as the “Premises”). The building area of the Premises is 957.66 square meters (subject to the actual measurement report issued by the relevant government authority). The Premises shall be used for office. Its type is office building, and its structure is reinforced concrete. The plan of the Premises is as provided in Appendix (I) attached hereto. Party A has presented to Party B:

[For Lease] The real estate ownership certificate/real property ownership certificate: [certificate number: H. (2016) P. Z. Real Property Ownership No. 021489].

 

1-2 The leasehold is established between Party A, as the real estate owner of the Premises, and Party B.

 

1-3 The space, conditions and requirements for use of the public or shared areas of the Premises, the existing decoration, ancillary facilities, conditions of equipment, as well as the information about and standards of the ancillary facilities that may be decorated and added by Party B upon consent by Party A, shall be specified in the appendixes hereto by both Parties respectively. Both Parties agree that such appendixes shall be the basis for acceptance of the Premises when it is delivered by Party A to Party B and when it is returned by Party B to Party A upon the termination hereof.

 

1-4 Refer to the Supplementary Provisions for details.

 

 1 

 

 

II. Purposes of Lease

2-1 Party B undertakes to Party A that it will use the Premises leased hereunder as office, and will comply with any and all applicable provisions of the State and Shanghai concerning the premises use and property management.

 

2-2 Party B warrants that during the lease term hereof no change will be made without authorization to the use of the Premises mentioned above in the absence of prior written consent of Party A and approval from relevant authorities upon examination as required.

 

III. Handover Date and Lease Term

3-1 Both Parties hereto agree that Party A shall hand over to Party B the Premises on May 15, 2018 A.D. The lease term hereof shall commence from May 15, 2018 A.D. and end on May 14, 2021 A.D. (Refer to Article 2-1 of the Supplementary Provisions for details).

 

3-2 Upon expiry of the lease term hereof, Party A shall have the right to recover the Premises, and Party B is required to return the same as scheduled. Where Party B intends to continue to lease the Premises, it shall make a written request to Party A for renewal of this Contract six (6) months prior to the expiry of the lease term hereof, and execute a new lease contract upon consent by Party A.

 

3-3 Refer to the Supplementary Provisions for details.

 

IV. Rent, Terms of Payment and Time Limit

4-1 It is agreed by both Parties hereto that the rent for each square meter of building area of the Premises per day is (RMB) [refer to the Supplementary Provisions for details] Yuan, which shall remain unchanged for a period of refer to the Supplementary Provisions for details months. Relevant matters on the adjustment thereof shall be specified in the Supplementary Provisions by both Parties (refer to Article 3-1 of the Supplementary Provisions for details).

 

4-2 The rent shall be payable by Party B to Party A prior to the 25th day of each month. Party B is obliged to pay a penalty to Party A at the rate of 0.05% of unpaid rent for each day delayed.

 

4-3 The rent shall be paid by Party B according to the following payment schedules: (refer to Article 3-2 of the Supplementary Provisions for details).

 

V. Security Deposit and Other Fees

5-1 Upon receipt of the security deposit, Party A shall issue to Party B a receipt thereof. Upon termination of the leasehold relationship, the remaining security deposit as collected by Party A hereunder, if any, after being used to offset related fees which shall be borne by Party B as stipulated herein, shall be refunded to Party B without interest.

 

 2 

 

  

5-2 Any and all fees and expenses incurred during the lease term hereof in respect of the water, electricity, gas, communications, equipment, property management, supply of air conditioning during non-regular working hours and parking as a result of the use of the Premises shall be borne by Party B.

 

5-3 The means for calculating or apportioning the aforesaid fees and expenses to be paid by Party B and the terms and time of payment thereof shall be: (refer to the Supplementary Provisions for details).

 

VI. Requirements for Use of Premises and Maintenance Liabilities

6-1 During the lease term hereof, Party B shall promptly inform Party A to repair or make good any damage or failure occurred to the Premises or its ancillary facilities whenever such damage or failure comes to his attention; Party A shall conduct repair within seven (7) days upon receipt of such notice from Party B, otherwise Party B may conduct repair on behalf of and at the cost of Party A.

 

6-2 During the lease term hereof, Party B shall reasonably use and take proper care of the Premises and its ancillary facilities. Party B shall be liable for conducting repairs in respect of any damage or failure to the Premises or its ancillary facilities caused by misuse or unreasonable use thereof by Party B (except for normal wear). In case Party B refuses to conduct repair, Party A may conduct repair on behalf of and at the cost of Party B.

 

6-3 Party A warrants that the Premises and its ancillary facilities are in good condition and available and safe for use during the lease term hereof. Party A shall notify Party B of any planned inspection and/or maintenance on the Premises seven (7) days in advance, in which case Party B shall render cooperation, provided that Party A is required to minimize the impact of such inspection and/or maintenance on the use by Party B of the Premises.

 

6-4 In addition to Appendix (III) hereto, any intended decoration or addition of ancillary facilities and equipment by Party B shall be subject to prior written consent by Party A and, if necessary, approvals from relevant authorities as required. The ownership of such decoration made and ancillary facilities and equipment added by Party B as well as the liability for the maintenance thereof shall be agreed to by both Party A and Party B separately in writing.

 

6-5 Refer to the Supplementary Provisions for details.

 

VII. Conditions of Premises at the Time of Return

7-1 Unless Party A consents to the renewal of the lease term hereof by Party B, Party B shall return the Premises on the date of expiry of the lease term hereof. If Party B delays the return of the Premises without consent by Party A, for each day delayed, Party B shall pay a fee of (RMB) [refer to the Supplementary Provisions for details] Yuan/square meter to Party A for the occupation and use of the Premises.

 

 3 

 

  

7-2 The Premises returned by Party B shall be restored to the state when it is delivered to Party B. The return of the Premises shall be subject to inspection and acceptance by Party A and the settlement by both Parties of fees that shall be borne by them respectively.

 

7-3 Refer to the Supplementary Provisions for details.

 

VIII. Sublease, Assignment and Exchange

8-1 Unless Party A has consented in the Supplementary Provisions hereof to sublease of the Premises by Party B, during the lease term hereof, Party B may not sublease the Premises to others without prior written consent by Party A.

 

8-2 For any intended sublease of the Premises, a sublease contract shall be concluded between Party B and related sub-lessee in writing, and be filed with the real estate exchange center at the place where the Premises are located.

 

8-3 During the lease term hereof, any assignment by Party B of the leasehold of the Premises to others or any exchange of the Premises for premises leased by others shall be subject to prior written consent by Party A. Upon completion of such assignment or exchange, the assignee or the person with whom Party B exchanges premises shall execute a novation agreement with Party A, and continue to perform this Contract.

 

8-4 Refer to the Supplementary Provisions for details.

 

IX. Conditions for Dissolution of this Contract

9-1 Party A and Party B agree that this Contract shall be terminated under any of the following circumstances arising during the lease term hereof, in which case neither Party shall bear any liability for the other Party:

(I) The right to use the land which is occupied by the Premises is revoked in advance in accordance with applicable laws;

(II) The Premises are confiscated in accordance with applicable laws for social public interest;

(III) The Premises are to be dismantled and relocated according to the law for the needs of urban construction;

(IV) The Premises are damaged, destroyed or assessed as dangerous properties;

 

9-2 It is agreed to by both Parties that under any of the following circumstances either Party may notify the other Party in writing to dissolve this Contract. Either party in breach of this Contract shall pay liquidated damages to the other Party in the amount of refer to the Supplementary Provisions for details times the monthly rent (refer to the Supplementary Provisions for details) and, in case such liquidated damages is insufficient to cover the loss caused to the other Party by such breach, the difference between them.

 

 4 

 

  

(I) Party A fails to hand over the Premises as scheduled and still fails to do so seven (7) days after being urged by Party B;

(II) The Premises handed over by Party A is inconsistent with stipulations contained herein, thus frustrating the lease purposes; or the Premises handed over by Party A is defective, threatening the safety of Party B;

(III) Party B changes the purposes of the Premises without prior written consent by Part A;

(IV) The main body of the Premises is damaged due to reasons on the part of Party B;

(V) Party B subleases the Premises, assigns the leasehold of the Premises, or exchanges with others the premises they respectively lease without authorization;

(VI) Party B delays the payment of rent for more than one (1) month.

 

9-3 Refer to the Supplementary Provisions for details.

 

X. Liabilities for Breach of Contract

10-1 Party A shall be held liable for compensation for any loss suffered or sustained by Party B as a result of failure of Party A to inform Party B of any mortgages or encumbrances over the Premises or any limitation on the transfer of the title thereto prior to the lease of the Premises.

 

10-2 Party A shall be liable for making compensation for any property damage or bodily injury suffered by Party B as a result of damage to the Premises due to Party A’s failure to perform the repair and/or maintenance liabilities set forth herein during the lease term hereof.

 

10-3 In case Party B conducts decoration or adds ancillary facilities without the prior written consent by Party A or beyond the scope of and requirements for such decoration or addition of ancillary facilities as consented to by Party A in writing, Party A may request Party B to restore the Premises to its original status and compensate for the loss.

 

10-4 Refer to the Supplementary Provisions for details.

 

XI. Miscellaneous

11-1 If Party A intends to mortgage the Premises during the lease term hereof, Party A shall notify Party B in writing.

 

11-2 This Contract shall enter into force as of the date of signature and seal by both Parties hereto.

 

 5 

 

  

11-3 Any issue not covered herein may be specified in the Supplementary Provisions by both Parties through negotiation. The Supplementary Provisions and the appendices hereto shall be an integral part of this Contract. The words inserted in the blank space intentionally left in this Contract, the Supplementary Provisions and appendices attached hereto are equally authentic as printed words. Where there is any discrepancy between this Contract and the Supplementary Provisions or any appendixes hereto, the latter shall prevail.

 

11-4 Either Party hereto, upon execution of this Contract, understands clearly their respective rights, obligations and liabilities hereunder, and agrees to faithfully exercise and/or perform the same as stipulated herein. Either Party hereto may claim for compensation against the other Party who is held in breach hereof.

 

11-5 This Contract shall be governed by and interpreted in accordance with the laws of the People’s Republic of China. Any dispute between both Parties arising during the performance hereof shall be settled through negotiation; failing which, both Parties agree to settle the dispute by the (second) method below:

(I) Submitting to Shanghai Arbitration Commission for arbitration;

(II) Filing a lawsuit with the people’s court with competent jurisdiction at the place where the Premises are located in accordance with the law.

 

11-6 This Contract, along with its Appendices attached hereto, is made in five copies, with Party A and Party B holding 2 copies respectively, and the Real Estate Exchange Center of Pudong New District, Shanghai holding one copy, all of which shall be equally authentic.

 

11-7 Refer to the Supplementary Provisions for details.

 

 6 

 

  

Supplementary Provisions

 

In accordance with the provisions of Article 11-3 of the Shanghai Premises Lease Contract executed by and between Party A and Party B (hereinafter referred to as this “Contract”), both Parties hereby enter into these supplementary provisions (hereinafter referred to as these “Supplementary Provisions”) with respect to the following matters for mutual compliance. These Supplementary Provisions and the text of the Contract and the schedules and appendixes attached thereto are collectively referred to as this “Contract”. Where there is any discrepancy between the text of the Contract and these Supplementary Provisions or the schedules and appendixes attached thereto, the latter shall prevail.

 

   
(Stick here) (Affix the seal on the perforation here)

 

(I) Definitions

In this Contract, unless otherwise defined in other terms hereof, the following terms shall have the meaning ascribed to them below:

1-1“Handover date” shall mean May 15, 2018 as agreed to by both Parties in Article 3-1 hereof.

 

1-2“Lease commencement date” shall mean May 15, 2018 or any other date prescribed herein or otherwise agreed to by both Parties in writing.

 

1-3“Lease term” shall mean the period from the lease commencement date to the date of expiry of the term hereof.

 

1-4Party B shall comply with the tenants’ decoration guide, tenants’ manual and other provisions on the use of the Premises and public areas and facilities as formulated and/or modified from time to time by the property management company and/or Party A. The aforesaid guide, manual and provisions as well as the updates and modifications thereto made from time to time by the property management company and/or Party A of which Party B is notified in writing shall be deemed to have been incorporated into this Contract.

 

1-5Party A acknowledges that the floor at which the Premises is located as stated in Article 1-1 hereof is one alleged by Party A, which may be different from the actual floor. Party B may not, based on the discrepancy between them, request Party A to make compensations or file other claims against Party A.

 

1-6Party A may hold or by any means allow others to hold or organize any ceremony, exhibition, display of goods, or promotional activities in any public area of the building at such time, under such conditions and within such time limit as it deems appropriate. The “public area” referred to in this Contract shall mean public area in the building for which Party A grants Party B the non-exclusive right to use jointly with other tenants only for the purpose of entering, exiting and using the Premises by Party B, subject to the terms and conditions hereof. The property management company and/or Party A shall have the right to reasonably restrict the scope of the aforesaid use.

 

 7 

 

  

(II) Supplements or modifications to Article 3 of this Contract “Handover Date and Lease Term”

2-1Both Parties agree that May 15, 2018 A.D. shall be deemed as the date of the commencement of the lease by Party B. The lease term shall be 36 months from May 15, 2018 A.D. to May 14, 2021 A.D.

 

2-2Where Party A fails to hand over the Premises to Party B on the handover date, Party B agrees to give Party A an extension of 30 days. In such case, the decoration period and/or lease term shall be extended according to the number of days delayed by Party A. Where upon the expiry of such extension, Party A still fails to deliver the Premises to Party B, for each day delayed, Party A shall grant Party B an additional day of rent-free period. Where the handover of the Premises is delayed for more than 120 days, Party B may choose to terminate this Contract in advance, and Party A shall, within thirty days as of the date of early termination hereof based on this clause, return the security deposit (excluding interest) paid by Party B to Party B. Party B undertakes that other than that, Party A is not required to bear any liability for all losses suffered by Party B as a result thereof.

 

If Party B does not choose to terminate this Contract in advance, Party A may, upon the expiry of the 120-day extension, conduct negotiation with Party B to put off the handover date, until the official handover by Party A to Party B.

Where Party B for its own reasons fails to execute this Contract or pay the security deposit prescribed in Article 4-1 of these Supplementary Provisions, Party A is not liable for providing the rent-free period as stated above.

Where Party B fails to handle formalities for the inspection, acceptance and handover of the Premises on the handover date, the date of expiry of the decoration period and rent-free period as well as the starting date of the lease term shall remain unchanged, and the days between the handover date and the date on which Party B actually handles the formalities for the handover will be deducted from the decoration period (if any) and lease term of Party B. Party A shall be entitled to charge in accordance with the provisions of this Contract management fee, extra hour air-conditioning fees and other fees from Party B as of the starting date of the decoration period.

 

2-3Handover formalities and standards:

 

2-3-1Party B shall on the handover date conduct inspection and acceptance of the Premises jointly with Party A. Both Parties shall, upon the completion thereof, execute a handover letter for lease and use of commercial housing, and handle formalities for handover.

 

2-3-2Party B warrants that at the time of handover Changtai Plaza (including the building, elevator lobbies, staircases etc.) has passed inspection and commissioning required by the provisions of relevant laws, and certificates and licenses required for the lease and operation of office buildings as provided for in relevant laws have been obtained in respect thereof; and Party A shall, throughout the lease term, comply with relevant laws and regulations on land, buildings and properties, and maintain valid certificates and licenses stated above.

 

 8 

 

  

2-3-3Refer to Appendix III for details of the standards for handover by Party A; where the Premises delivered fails to meet the standards for handover, Party A shall be deemed to have delayed the handover of the Premises, and shall be liable for making corrections.

 

2-3-4Party B may start the decoration of the Premises only after the completion of the handover formalities. Such decoration shall be in compliance with the provisions on decoration as provided for in this Contract or formulated by Party A and/or the property management company.

Where decoration in advance is required by Party B, upon written consent by Party A, the date of entry into the Premises by Party B shall be deemed as the handover date, on which it shall be deemed that Party A has handed over the Premises.

 

2-4Decoration period and the charging standards during such period

 

2-4-1Party A agrees to provide Party B with a /-month decoration period from / to /. Starting from the handover date, during the decoration period, except for rent, Party B shall still assume its obligations under this Contract (including without limitation paying property management fee, electricity fees, fees for the supply of air-conditioning during non-regular working hours (if any) payable by Party B, taxes and costs in relation to the Premises which shall be borne by Party B, and all other expenses incurred as a result of the use of the Premises by Party B).

 

2-4-2During the decoration period, the property management fee shall be reduced by 50%, i.e., reduced to (RMB) [15] Yuan/month/square meter of building area; provided that if the lessee officially enters into the Premises to handle official business during the decoration period, the lessee shall pay 100% of the property management fee as of the date of such official entry.

 

2-5Renewal of lease and rent adjustment: where upon the expiry of the lease term, Party B intends to renew the lease, it shall, at the latest six (6) months prior to the expiry of the lease term, notify Party A in writing of its intention, and may only renew the lease of the Premises in whole. Party A is at its sole discretion to determine whether to agree to the renewal, provided that Party B shall have the priority to rent the Premises under the same conditions. The rent and terms of contract for the extended lease term shall be specified in a separate contract for the renewal of the lease by both Parties through negotiation based on the market conditions. Where Party B fails to notify Party A as stated above, it shall be deemed that Party B has waived its right to renew the lease.

 

 9 

 

 

 

(III) Supplements or modifications to Article 4 of this Contract “Rent, Terms of Payment and Time Limit”

3-1Unit price and calculation of monthly rent:

 

3-1-1Party B shall pay monthly rent to Party A as of the lease commencement date (except for the decoration period). The rent shall be (RMB) [5.94] Yuan per day per square meter of building area (the “daily rent unit price”), and monthly rent shall be calculated pursuant to the following formula:

 

Monthly rent (RMB [173,025.22] Yuan) = daily rent unit price (RMB [5.94] Yuan) × 365 days / 12 months × the building area of the Premises (957.66 square meters)

 

3-1-2The rent for the Premises shall remain unchanged within the lease term of this Contract (i.e., from May 15, 2018 A.D. to May 14, 2021).

 

3-2Party B shall pay the rent in the following way:

 

3-2-1The rent and property management fee for the first month shall be paid prior to the handover date. Thereafter, the rent for each month shall be paid on or prior to the 25th day of the preceding month. Party A shall, at the latest within 5 working days upon its receipt of any payment by Party B, issue an official invoice in respect of such payment.

 

3-2-2Party B shall remit by T/T the rent for the current month within the time limit stated in Article 3-2-1 of these Supplementary Provisions to the following account of Party A and, on the date of payment, provide corresponding proof of payment via facsimile or other means recognized by Party A:

 

RMB account:

Account name: Shanghai Changtai Business Management Co., Ltd.

Opening bank: Shanghai Baoshan Sub-branch, Industrial and Commercial Bank of China

Account number: 1001233329005614092

 

3-2-3Party B may also make payment as then designated by Party A. Party B shall bear all commissions incurred as a result of its payments.

 

3-3During the rent-free period, Party B is exempted from the rent, provided that it shall pay property management fee, electricity fees and other relevant fees incurred as a result of its actual use.

 

3-4Where Party B delays any payment, it shall pay an overdue fine in the amount of 0.05% of the amount due for each day delayed.
  
3-5Both Parties hereby acknowledge that all rents paid by Party B to Party A do not include property management fee, electricity fees, supply of air-conditioning during non-regular working hours (if any), taxes and costs in relation to the Premises which shall be borne by Party B, and all other expenses incurred as a result of the use of the Premises by Party B.

 

 10 

 

 

(IV) Supplements or modifications to Article 5 of this Contract “Security Deposit and Other Fees”

4-1Security deposit:

 

4-1-1The security deposit under this Contract is equivalent to the sum of three months’ rent and property management fee, i.e., (RMB) [605,265.06] Yuan (“security deposit”).

 

Both Parties acknowledge that Party B has paid to Party A a part of the rent in the amount of (RMB) [471,886.98] Yuan and property management fee in the amount of (RMB) [86,189.40] Yuan, totaling (RMB) [558,076.38] Yuan, as the security deposit.

 

The aforesaid rent has been paid to the following RMB account:

Account name: Shanghai Changtai Business Management Co., Ltd.

Opening bank: Shanghai Baoshan Sub-branch, Industrial and Commercial Bank of China

Account number: 1001233329005614092

 

The aforesaid property management fee have been paid to the following RMB account:

Account name: Shanghai Changtai Business Management Co., Ltd.

Opening bank: Caohejing Sub-branch, Shanghai Branch, China Minsheng Bank

Account number: 694622009

 

Within 7 working days upon the execution of this Contract, Party B shall pay to Party A the remaining part of the rent as the security deposit in the amount of (RMB) [47,188.68] Yuan. Party B shall remit such amount to the following account of Party A and, on the date of payment, provide corresponding proof of payment via facsimile or other means recognized by Party A:

 

The aforesaid remaining part of the rent as the security deposit shall be paid to the following RMB account:

Account name: Shanghai Changtai Business Management Co., Ltd.

Opening bank: Shanghai Baoshan Sub-branch, Industrial and Commercial Bank of China

Account number: 1001233329005614092

 

4-1-2Where Party B during the term of this Contract violates any terms thereof, Party A shall be entitled to offset the security deposit against any amount payable by Party B (including but not limited to the rent, property management fee, extra hour air conditioning fees and other costs), liquidated damages and/or compensation payable to Party A for losses suffered thereby due to reasons on the part of Party B or its employees, agents, visitors/customers. Where the amount of the security deposit in Party A’s account after such offset and/or compensation is less than the amount provided for herein, Party B shall, within 3 working days upon receipt of written request by Party A, pay to Party A the difference between them, provided that during the lease term Party B may not offset the security deposit against any amount payable by it (including but not limited to the rent, property management fee or other costs payable by Party B to Party A every month).

 

 11 

 

  

4-1-3Where upon the expiry of the term of this Contract, Party B has returned the Premises, the corresponding parking space and etc. to Party A and settled all costs, upon confirmation by Party A, Party A shall within one month return the security deposit in full (bearing no interest); if Party B fails to pay up the costs, Party A may deduct the same from the security deposit and, if the security deposit is insufficient, recover the difference from Party B or, if there is any remaining security deposit, return such remaining amount to Party B (bearing no interest).

 

4-1-4Party B may not transfer the security deposit to any third party as a debt guarantee to such third party.

 

4-1-5Party B is obliged to maintain the security deposit at the amount provided for in Article 4-1-1 of these Supplementary Provisions.

 

4-2Property management fee: the property management fee is (RMB) [30] Yuan per square meter of building area per month. The property management fee for each month shall be in the amount of (RMB) [28,729.80] Yuan, and shall be paid on or prior to the 25th day of the preceding month.

Party B shall remit by T/T the security deposit for the property management fee and the property management fee for the current month within the time limit stated in these Supplementary Provisions to the following account of Party A (or any other account recognized by Party A) and, on the date of payment, provide corresponding proof of payment via facsimile or other means recognized by Party A:

 

RMB account:

Account name: Shanghai Changtai Business Management Co., Ltd.

Opening bank: Caohejing Sub-branch, Shanghai Branch, China Minsheng Bank

Account number: 694622009

 

4-3Electricity fees: Party B shall pay for the electricity actually consumed according to an independently installed electricity meter and other utilities.

 

4-4Extra-hour air conditioning fees:

 

4-4-1The non-regular working hours as referred to in Article 5-2 of this Contract mean hours other than 8:30-19:00 in Monday to Friday, and Saturday, Sunday, statutory holidays, and days of paid leave as compensation for holiday overtime as suggested by the government for enterprises and public institutions. Where Party B requires the supply of air conditioning during non-regular working hours, it shall submit a written application to Party A/the property management company one working day in advance, and pay for the fees therefor. Such extra-hour air conditioning fees shall be paid together with the property management fee for the next month at the time the latter is paid. Refer to the property management service manual for details of the charging standards for the extra-hour air conditioning fees.

 

 12 

 

  

4-5Party B shall bear fees for energies actually consumed (including the electricity fees and air conditioning fees). The specific methods for the calculation and sharing thereof are as follows:

 

4-5-1Other fees which cannot be measured through separate meters and other unpredictable fees shall be determined by Party A or a property management company designated by Party A by reasonable means, such as the leased area, office hours or overtime.

 

4-5-2Other fees incurred as a result of the use of the Premises as provided for by relevant laws and government authorities shall be governed by relevant laws or regulations.

 

4-6Party B hereby acknowledges that in case Party B delays the payment of other fees under this Contract, both Party A and the property management company shall have the right to recover from Party B the fees owed by Party B and overdue fines (which shall be charged according to Article 9-2 of these Supplementary Provisions).

 

(V) Supplements or modifications to Article 6 of this Contract “Requirements for Use of Premises and Maintenance Liabilities”

5-1Party A’s liability for the repair of the Premises is limited to the main structure and parts and facilities for public use of the Premises, and ancillary facilities within the Premises which are provided by Party A and have not been altered or increased or reduced by Party B. For the avoidance of doubt, unless otherwise provided for in this Contract, within the term of this Contract, the matters in respect of which Party B bears the liability for repair and replacement include but are not limited to the following:

(i) Visible fixed facilities and equipment within the Premises which are provided by Party A (including but not limited air conditioner outlets, power expansion equipment, fire alarm devices and sprinkler systems);

(ii) Fixed facilities and equipment within the Premises which are provided by Party A and have been altered by Party B by itself (including but not limited air conditioner outlets, power expansion equipment, fire alarm devices and sprinkler systems);

(iii) Consumables provided by Party A;

(iv) Facilities decorated by Party B.

The ancillary facilities stated herein refer to those specified in Appendix III to this Contract.

 

 13 

 

  

Where Party B detects any damage or failure in the Premises or any of its decorations, facilities or equipment stated in Appendix III to this Contract, it shall in a timely manner notify Party A or the property management company to conduct repairs, rather than disposing of the same arbitrarily (provided that in case of emergencies, Party B may conduct temporary repairs for the purpose of mitigating immediate damages or risks to Party B’s property and employees). Party B shall be liable for making compensations for all damages, personal injuries and property losses caused by the handling by Party B or its employees or agents of any damage or failure of the Premises or any of its decorations, facilities or equipment stated in Appendix III to this Contract. Where due to the nature of any damage or failure, Party A or the property management company is unable to conduct any repair within 24 hours upon receipt of notice by Party B, Party A or the property management company shall be granted extra time required for conducting or completing the repairs.

 

5-2Entry into the Premises for inspection, as supplemented by Article 6-3 of this Contract: Party A or the property management company entrusted by Party A shall, for entry into the Premises as required by the maintenance of the building, environmental sanitation, guard against theft, fire prevention, disaster prevention, first aid, or other administrative needs, notify Party B in writing twenty-four hours in advance, except for emergencies, in which case Party B shall be notified in time ex post.

 

5-3All expenses arising from matters stated in Article 6-4 of this Contract shall be borne by Party B, provided that Party A shall provide necessary assistance for the report for approval by Party B. With respect to the equipment and facilities added by Party B, Party B shall enjoy the title thereto, and Party A is not required to bear any liability for the repair thereof; upon the request by Party B, Party A shall assist Party B in conducting repairs, and reasonable repair costs shall be borne by Party B. In case of the aforesaid circumstances, Party B shall render support and cooperation for Party A’s work.

 

All costs incurred as a result of the decoration or addition of ancillary facilities and equipment required by Party B as stated above, including but not limited to the decoration fees, building out or rebuilding costs, equipment and materials costs, and taxes and government charges incurred as a result thereof, shall be borne by Party B.

 

5-4Civilized construction: given that tenants settle in the building at different times, in order to ensure a normal working environment for those who settle in first, Party B shall conduct decoration construction in a civilized manner within the time limit for construction prescribed by Party A, and may not use any common pathway in the floor or any area beyond the Premises for piling up building materials or tools. Where any loss is caused to Party A or other tenants as a result of any violation by Party B of the aforesaid provisions, Party B shall bear the liability for compensation.

 

5-5Liability for third parties’ acts: any breach of contract, negligence or non-performance by any sub-lessees, employees, workers, customers, visitors, service staff, agents, licensees of Party B or anyone expressly or impliedly authorized by Party B to use or occupy the Premises shall be deemed as breach of contract, negligence or non-performance by Party B, and Party B shall undertake the liability for compensation. For the avoidance of doubt, with respect to any personal or property losses or damages suffered by Party A and/or the property management company caused directly or indirectly by the following accidents due to Party B’s faults, Party B shall make compensations, and bear all liabilities therefor:

 

 14 

 

  

(i) Failure or disrepair of any electrical installations, electrical appliances or electric wires within the Premises;

(ii) Blockage or damage (if any) of any water channels or toilets in the Premises;

(iii) Diffusion of fire or smoke in the Premises;

(iv) Damage to any common area of the building caused by Party B.

 

5-6Disclaimer by Party A: in respect of any loss caused to Party B due to any of the following circumstances during the use by Party B of the Premises within the term of this Contract, Party A does not bear any liability:

 

5-6-1 Natural disasters or other force majeure events;

 

5-6-2Damage by insects, or losses caused by theft, robbery or other criminal cases;

 

5-6-3 Disasters not caused by Party A intentionally or negligently;

 

5-6-4Suspension of the supply of water, electricity or gas caused by normal maintenance or breakdown rescue by any organization in the building or any neighboring organization;

 

5-6-5Losses caused to Party B by other tenants.

 

5-7Project entrustment and decoration:

Party B shall, in conducting decoration, comply with this Contract, tenants’ decoration guide, tenants’ manual and other provisions on decoration as formulated and/or modified from time to time by Party A and/or the property management company.

 

Where Party B violates this Contract or any other provisions on decoration as formulated and/or modified from time to time by Party A and/or the property management company, Party B shall be solely liable for all consequences arising from such breach of contract, including but not limited to bearing expenses and costs incurred for the demolition of newly built annexes or reconstruction projects as required by relevant government authorities. Party B shall be liable for compensating Party A in full for all losses, claims, expenditures and lawsuits caused by Party B’s breach of contract, otherwise Party A may deduct the aforesaid fees from the security deposit, and recover the deficit (if any) from Party B.

 

5-8Where at any time during the lease term of this Contract, any request for rectification and improvement is made by any competent government authority in respect of any decoration conducted or completed by Party A at the request of Party B or any decoration conducted or completed by Party B in the Premises (including but not limited to fire-fighting equipment), Party B shall modify its decoration according to the requirements of the competent government authority. Party B shall solely undertake all liabilities and costs arising from such modification, including but not limited to liabilities and costs incurred by impacts thereof on other tenants of neighboring units. Party A is not required to bear any liability or fees as a result thereof.

 

 15 

 

  

5-9Partition and decoration: where any partition of the Premises and decoration is required by Party B, it shall provide Party A with a construction design drawing fourteen days prior to the construction and, upon examination and approval by Party A, execute a letter of commitment on decoration with Party A.

 

5-10 Party B shall strictly comply with the Decoration Codes and User’s Manual.

 

(VI) Supplements or modifications to Article 7 of this Contract “Conditions of Premises at the Time of Return”

6-1Party B shall return the Premises to Party A prior to 17:30 on the date of termination of this Contract. Where Party B without the prior written consent by Party A fails to return the Premises on time, from the day immediately following the date of termination of this Contract till the Premises is actually returned, Party B shall pay to Party A occupation fees in the amount of 2 times the daily rent as provided for in Article 3-1-1 hereof per day, the overdue property management fee incurred by then, and other costs actually incurred by and shall be borne by Party B. Where any other loss is caused to Party A as a result of Party B’s delay in moving out of the Premises, Party B shall be liable for compensation, provided that the payment thereof shall not constitute any renewal or continuation of lease.

 

6-2Upon the expiry of the lease term or the early termination of this Contract, Party B shall forthwith restore the Premises and all of its fixed equipment, installations and devices to their initial state at the time of the first delivery of the Premises by Party A to Party B and, upon final inspection and confirmation by Party A (which may not be withheld or delayed without reasonable cause by Party A), return to Party A the Premises in a good, neat and leasable state (except for normal wear and tear). Both Parties may also agree to reserve in the Premises any internal decoration or installations thereof, provided that Party A may not be required to make any compensation to Party B. Party B undertakes that no matter this Contract is terminated for whatever reason, Party B will not request Party A to make any compensation in respect of any decoration of the Premises or any facility purchased by Party B after the Premises is handed over to Party B for use.

 

6-3Where Party B fails to return the Premises to Party A as provided for in this Contract upon the expiry of the lease term or on the date of early termination of this Contract, Party A may, in addition to, as of the day immediately following the date of termination of this Contract, charging Party B occupation fees (in the amount of 2 times the daily rent as provided for in Article 3-1-1 hereof) per day, the property management fee (as incurred by then on a daily basis), and other costs, three days as of the date of expiry of the lease term or early termination of this Contract (as the case may be), as notarized by Chinese notaries or witnessed by Chinese lawyers, unlock the door of the Premises and replace the same, remove articles in the Premises, including but not limited to furniture, installations and other additions, out of the Premises, and vacate and recover the Premises, with all cleaning fees and notarization or lawyer’s fees incurred as a result thereof to be borne by Party B. Party A is not responsible for any damages or Party B’s losses caused thereby. For any articles left behind by Party B in the Premises, Party A shall have the right to charge Party B storage fees, or sell, transfer, discard or dispose of the same by any means as it deems appropriate, and use the proceeds (if any) resulting from such disposition to pay any amount owed by Party B to Party A and compensate Party A for any losses that have incurred or will incur to Party A as a result of the causes stated in this clause. Under no circumstance shall Party A be obliged to pay any amount to Party B with respect to such articles.

 

 16 

 

  

6-4Where Party B fails to return the Premises as provided for in this Contract, Party A may take all necessary actions to ensure that the return of the Premises is in compliance with the terms of this Contract or the provisions of relevant laws and regulations, and Party B shall bear costs paid by Party A as a result thereof, and pay in accordance with the provisions of Article 6-3 of these Supplementary Provisions occupation fees, property management fee and other fees in respect of the time spent by Party A to ensure that the return of the Premises is in compliance with the terms of this Contract or the provisions of relevant laws and regulations. Where any other losses (including without limitation expectant interest of Party A from lease of the Premises to any third party, and liability for breach of contract assumed by Party A due to its delay in delivering the Premises to the new tenant under any other lease contract executed by Party A in respect of the Premises) are caused to Party A by Party B’s failure to return the Premises as provided for in this Contract, Party B shall also bear the liability for compensation.

 

6-5Where the Premises is used by Party B as its address for enterprise industrial and commercial registration or other relevant licenses, approvals or permits, relevant documents for the registration of the alteration of registered address shall have been handled by Party B by the time the tenancy is terminated and the Premises is returned by Party B. Where Party B fails to do so as stated above, Party A may withhold Party B’s security deposit, which may be returned to Party B only after the completion of the registration of the alteration of registered address. Where Party A finds out after returning the security deposit that actually Party B has failed to handle or complete the formalities for industrial and commercial cancellation or alteration of the status of the Premises as a registered address or business address, Party B shall constitute breach of contract, and Party A may request Party B to pay an amount equivalent to 6 months’ monthly rent as liquidated damages.

 

 17 

 

  

(VII) Supplements or modifications to Article 8 of this Contract “Sublease, Assignment and Exchange”

7-1Sublease:

 

7-1-1Without written consent by Party A, Party B may not transfer or sublease the Premises or any part thereof, or by any other means secede from the occupation of the Premises or any part thereof, no matter whether via sublease, licensing, lending, sharing or other means, which may result in the acquirement by any third Party of the use or occupation of the Premises or any part thereof, and no matter whether any rent or any other forms of consideration is paid for such use or occupation. In case of any violation by Party B of the provisions of this clause, Party A may forthwith terminate this Contract, recover the Premises, and hold Party B accountable for breach of contract.

 

7-1-2Where Party B has obtained written consent by Party A for sublease, Party B shall procure its sub-lessees to comply with this Contract and rules and regulations formulated by Party A, and bear joint and several liability for ensuring the performance by the sub-lessees of their obligations under this Contract and the sublease contract.

 

7-1-3Upon written consent by Party A, the sublease contract to be entered into by Party B for the sublease of the Premises shall conform to the following terms:

 

7-1-3-1The date of termination of the sublease contract shall not be later than the date of termination of this Contract, otherwise the period between them shall be invalid, and Party A may recover the Premises from Party B and/or the sub-lessee on the date of expiry of the lease term as provided for in this Contract.

 

7-1-3-2During the term of sublease, Party B shall, in addition to enjoying its rights and undertaking its obligations under the sublease contract, continue to perform its obligations under this Contract, and bear joint and several liability for the sub-lessee’s obligations;

 

7-1-3-3During the term of sublease, in case of any alteration, dissolution or termination of this Contract, the sublease contract shall be subject to corresponding alteration, dissolution or termination.

 

(VIII) Supplements or modifications to Article 9 of this Contract “Conditions for Dissolution of this Contract”

8-1Both Parties agree to modify Article 9-2 of this Contract as follows:

Both Parties agree that in case of any of the following circumstances, the non-breaching Party may dissolve this Contract by notifying the breaching Party in writing. The non-breaching Party may, in addition to requesting the breaching Party to pay liquidated damages, reserve the right to claim for the recovery of losses caused to it due to the breaching Party’s surrender of tenancy. The liquidated damages shall be the security deposit in full and fifty percents of the rent for the period from the date of termination of lease and the date of expiry of the lease term.

 

8-2Both Parties agree to add the following terms after Item (VI), Article 9-2 of this Contract:

 

8-2-1The payment by Party B for the security deposit or any fees payable by Party B under Article 5-2 of this Contract has been delayed for accumulatively one month;

 

8-2-2Party B changes the structure of the Premises without written consent by Party A;

 

 18 

 

  

8-2-3Party B uses the Premises for any illegal purposes;

 

8-2-4Party B causes any interference with or any harm to other tenants and fails to make effective corrections;

 

8-2-5Either Party in violation of any terms hereof fails to make corrections upon within the time limit notified by the other Party in writing or prescribed in this Contract (whichever is longer);

 

8-2-6In cases of man-made sabotage of any public facilities in the building which affects the overall image of the building, the Party involved refuses to bear any liability for compensation;

 

8-2-7Party B files for bankruptcy or is declared bankrupt, or any person files a petition with the court for liquidation of Party B and the petition is accepted by the court, except for liquidation due to such reasons as reorganization or merger, which shall not be deemed as breach of contract upon written consent by Party A;

 

8-2-8Other circumstances under which either Party is allowed by laws and regulations to dissolve this Contract in advance for reasons attributable to the other Party;

 

8-2-9For reasons on the part of Party B, the handover formalities have not been handled within seven days as of the handover date provided for in Article 1-1 of these Supplementary Provisions.

 

8-3Both Parties agree that the damage or loss of the Premises or the assessment thereof as dangerous properties as stated in Item (IV), Article 9-1 of this Contract is not caused by Party B or its employees, agents or visitors/customers. Where the damage or danger of the Premises may be eliminated within 14 days after such damage occurs or such assessment is conducted, this Contract will not be terminated as a result thereof, and Party B is not required to pay the rent for the period affected thereby.

 

8-4Where upon the execution of this Contract, any of the following circumstances arises, Party B may by forthwith notifying Party A in writing terminate this Contract ex parte at the time specified in the notice, Party A shall upon receipt of the notice by Party B return the security deposit in full, and Party B is not required to bear any liability for compensation to Party A:

 

8-4-1The Premises is not available for use and lease within the time limit reasonably required by Party B, which is not attributable to Party B’s intentional or gross negligence (meaning force majeure factors).

 

(IX) Supplements or modifications to Article 10 of this Contract “Liabilities for Breach of Contract”

9-1Prior to the expiry of the lease term, both Parties may not terminate this Contract in advance without cause. Where either Party terminates this Contract without cause during the lease term, such Party shall be deemed to have seriously violated this Contract, the liquidated damages shall be the security deposit in full and fifty percents of the rent for the period from the date of termination of lease by the breaching Party and the date of expiry of the lease term, and the non-breaching Party reserves the right to recover compensation for the losses caused to it as a result of the surrender of tenancy by the breaching Party.

 

 19 

 

  

9-2Where Party B delays the payment of any amount payable by it under this Contract (including but not limited to rent, security deposit, property management fee, other fees or liquidated damages, indemnification for losses), Party B shall pay to Party A overdue fines at the rate of 0.05% of the outstanding amount per day. Where the payment is delayed for more than 30 days, Party A may cease the supply of water, electricity and other utilities, or prevent Party B from using the Premises, with all consequences resulting therefrom to be borne by Party B on its own, provided that if Party A do so without cause, all consequences resulting therefrom shall be borne by Party A.

 

9-3Special obligations of Party B:

 

9-3-1Except for indication marks and name labels designed and provided uniformly by Party A or the property management company, Party B may not install or display to the public in the Premises any advertisements, light boxes, bulletin boards, logos, decorations, flags, posters or other materials, or install or display the same within the area of visibility outside the building, or in any public area, or outside the Premises. In case of any violation by Party B of the aforesaid provisions, Party A and/or the property management company may eliminate such advertisements, light boxes, bulletin boards, logos, decorations, flags, posters or other materials so installed or displayed, with all expenses resulting therefrom to be borne by Party B.

 

9-3-2Party B may not in the Premises conduct or allow or tacitly consent to any illegal or immoral activities, religious activities, or other activities which Party A deems improper, or those which may be disgusting for other tenants or others, or those which interfere with or may interfere with the normal use of and access to and from by other tenants or others the public areas of the building and other premises in the building other than the Premises.

 

9-3-3Unless otherwise agreed to in writing by Party A, Party B may use the name of the building only in its business address, and may not use the name or logo of the building in its business or by any other means.

 

(X) Supplements or modifications to Article 11 of this Contract “Miscellaneous”

10-1Article 11-2 of this Contract is modified as follows:

This Contract, including the appendixes attached hereto, is made in five copies, and the Chinese version hereof shall prevail. Each Party holds two copies hereof respectively, and the remaining copy is temporarily kept by party A for lease registration and filing. Upon the termination (including such circumstances as early termination and expiry of the lease term) hereof, Party A may ex parte apply for the cancellation of the registration and filing of the lease contract.

 

10-2Party B shall, upon or prior to the execution of this Contract, provide Party A with photocopies of the following documents (after the same are checked with the originals and found to be accurate):

 

 20 

 

  

10-2-1its certificate of incorporation or other documents approving its establishment;

 

10-2-2its business registration certificate/business license;

 

10-2-3other company files in relation to the use of its common seal or authorization of its signatory to this Contract;

 

10-2-4the ID card or passport (photocopy) of its authorized signatory to this Contract.

 

10-3Subject to the Supplementary Provisions: both Parties acknowledge that in case there is any conflict or discrepancy between the Supplementary Provisions hereto and this Contract, the Supplementary Provisions shall prevail.

 

10-4Both Parties shall respectively bear lawyer’s fees in connection with this Contract incurred by them respectively. The stamp duty in relation to this Contract and the fees for the registration of the lease hereunder charged by relevant real estate management authority shall be borne by both Parties respectively in accordance with government provisions.

 

(XI) Access to and from the Premises

11-1Party A, the property management company and their employees may, for the purpose of the repair, maintenance, sanitation and security of and fire prevention for the Premises or life rescue, upon contacting Party B in advance, enter into the Premises for inspection or taking proper measures. They shall do their best to inform Party B at least one day prior to their entry into the Premises and, after entering into the Premises as provided for in this clause, endeavor to minimize the impacts of on Party B’s work. Where in case of emergency Party B cannot be reached, they may without permission by Party B enter into the Premises for inspection or taking necessary measures, and get in contact with Party B as soon as possible ex post.

 

11-2At any reasonable time within 6 months prior to the expiry of the lease term, Party A may, in the company of relevant personnel of Party B, bring potential new owner, new tenant or relevant persons to visit the Premises, provided that one day’s prior notice is given to Party B. Party A shall, after entering into the Premises as provided for in this clause, endeavor to minimize the impacts thereof on Party B’s work.

 

11-3Where Party A needs to enter into the Premises as provided for in this clause, Party B shall render reasonable cooperation.

 

(XII) Parking space

12-1The lease of any parking space as required by Party B during the lease term shall be subject to the then availability of parking spaces, and the rent shall be (RMB) [750] Yuan/month/parking space.

 

12-2Party A reserves the right to adjust as the case may be in a unified manner the rent for parking spaces in Changtai Plaza.

 

 21 

 

  

(XIII) Other matters

13-1Party A shall keep the facilities and equipment of Changtai Plaza (including but not limited to the air conditioning system, water supply system, sewerage system, lighting equipment, electric wires and cables) in a good state (except for normal wear and tear).

 

13-2Balcony at the same floor: Party B acknowledges that the areas it leases do not include the balcony at the same floor where the Premises is located, and Party B shall cooperate with the property management company of the building in the daily cleaning, maintenance and repair thereof. If Party B intends to use the balcony, both Parties shall conduct negotiation and execute a separate contract. If Party A uses the balcony, it will conduct coordination with Party B in advance, and such use will not affect Party B’s regular office affairs.

 

(XIV) Insurance

14-1Any insurance taken out by Party A is with the risks in the Premises per se at its subject matter and the owner of the Premises as its beneficiary. In case of the occurrence of any insured event, the insurance proceeds paid by relevant insurance company shall all be owned by Party A or the owner of the Premises. Party B shall have no right to ask for sharing of such proceeds on the grounds of its property loss or personal injury caused by such insured event. Party B shall take out property insurance, employee life insurance and third party liability insurance by itself with respect to its property or other articles in the Premises.

 

14-2Party B may not conduct or allow others to conduct any activity which may result in the invalidation in full or in part of the insurance for the Premises or increase in the premium. Where due to any violation by Party B of the provisions of this Contract Party A has to take out insurance again, or the premium is increased, reasonable costs in respect thereof shall be paid by Party B to Party A.

 

(XV) Waiver of right, severability and non-exclusive remedies

15-1Party A’s acceptance of rent while being aware of Party B’s breach of contract shall not be deemed as Party A’s waiver of its right to hold Party B responsible for its breach of contract. The wavier by Party A of any of its rights provided for in the terms of this Contract shall be subject to written signature by Party A. Party A’s acceptance of any rent or other amounts paid by Party B, even if such rent or other amounts is insufficient, shall not affect Party A’s right to recover the outstanding rent or any amount in arrear, or its right to take other measures in accordance with the provisions of this Contract or the law.

 

15-2Where any provisions of this Contract become invalid or illegal, it shall not affect the legal validity of the remaining terms of this Contract.

 

15-3The respective rights and remedial measures of both Parties hereunder shall not exclude or substitute those granted by the law to them. In case of breach of contract by either Party, the other Party may exercise or take all rights and remedial measures provided for in this Contract or granted by the law, till its losses are fully recovered.

 

 22 

 

  

15-4Party B hereby agrees and acknowledges that, unless otherwise provided for in this Contract, Party B does not enjoy any preferential right to lease the Premises (including the preferential right to lease the Premises or any part thereof or any other leasable unit in the office building) or similar rights. Unless otherwise provided for in this Contract, if any other preferential rights in respect of or the preferential right to lease the Premises or similar rights is granted by any laws or regulations to Party B (including the preferential right to lease the Premises or any part thereof or any other leasable unit in the office building), Party B hereby expressly waive the aforesaid preferential rights or the preferential right to lease and similar rights.

 

Both Parties hereby expressly agree that: upon the effectiveness of this Contract, Party A may at its discretion sell and mortgage the Premises, or upon agreement with the mortgagee sell at a discount, sell off or by any other means dispose of the Premises, for which Party A is not required to notify Party B or solicit opinions from Party B in advance. Party B hereby expressly undertakes that: Party B irrevocably and unconditionally waives the right to receive any notice in respect of the sale, mortgage or disposition by any other means of the Premises by Party A in accordance with the aforesaid provisions and any right of preemption.

 

15-5Party A may by any means sell, lease, lend, transfer, partition, use or dispose of the office building or any part thereof, or mortgage or encumber the same (with rights including the naming right), or transfer without consent by Party B its rights and interests under this Contract (including but not limited to the security deposit for the Premises), so as to allow the use or occupation of the office building or any part thereof or the enjoying of any and all of Party A’s rights and interests under this Contract by any other party other than the parties hereto. Subject to the recognition of Party B’s rights under this Contract by the new owner, Party B may not raise any objection to the aforesaid acts of Party A, or file any lawsuit against Party A for any compensation (including claim for relevant security deposit) in respect of any violation of this Contract by the new owner. In addition, Party A enjoys the exclusive right to change the name of the office building at any time.

 

(XVI) Matters not covered

16-1Both Parties agree that matters not covered in this Contract, if any, shall be specified in a supplementary agreement hereto to be executed by both Parties through friendly negotiation.

 

(XVII) Notice

Notices or other communication between both Parties under this Contract shall be made in writing, and sent to the following addresses or fax numbers by mail or facsimile:

 

 23 

 

  

Party A: Shanghai Changtai Business Management Co., Ltd.   Party B:
Attn.: Wu Liqun   Attn.:
Add.: 369 Chuanqiao Road, Pudong New District,   Add.:
Shanghai    
Post code: 201206   Post code:
Fax: 86 (21) 5081 6889   Fax:

 

Notices shall be deemed to have been served if:

1. by personal delivery or courier or express service: on the date of delivery;

2. by post: the twelfth day after the registered airmail is sent;

3. by facsimile: the first working day after the facsimile is sent.

During the term of this Contract, where either Party changes its correspondence address, it shall in a timely manner notify the other Party in writing.

 

(XVIII) Undertakings

18-1Party B has, prior to the execution of this Contract, carefully read and become fully aware of relevant materials ancillary to the execution of this Contract for the Premises, i.e., Appendix I: Plan of the Premises, Appendix III: Status of Existing Decorations, Ancillary Facilities and Equipment and Party A’s Consent to the Decoration and Addition of Ancillary Facilities and Equipment by Party B, memorandum, and undertakes to comply with relevant provisions thereof.

 

18-2Party B undertakes that Party A may, in conducting publicity and promotion of Changtai Plaza and its own enterprise, use free of charge Party B’s enterprise name, logo, business brand etc., and is not required to bear any liability therefor to Party B or any third party.

 

(XIX) Miscellaneous

19-1Subject to relevant property management regulations, Party B enjoys the right to access to and from the Premises at any time during 24 hours a day, 365 days a year.

 

(The space below is intentionally left blank.)

 

 24 

 

  

Appendix I

 

Plan of the Premises (for the purpose of identification only)

 

   
(Stick here) (Affix the seal on the perforation here)

 

 

 

 25 

 

  

Appendix II

 

The Scope of and Conditions and Requirements for the

Use of the Public Areas of the Premises

 

     
(Stick here)   (Affix the seal on the perforation here)

 

(This page is intentionally left blank.)

 

 26 

 

 

Appendix III

 

Status of Existing Decorations, Ancillary Facilities and Equipment and

Party A’s Consent to the Decoration and Addition of

Ancillary Facilities and Equipment by Party B

 

   
(Stick here) (Affix the seal on the perforation here)

 

1. Handover standards

1) Party A shall provide and install the mineral wool staves, joists and lamps required for the suspended ceiling of 9th floor, tower B. Fees for the renovation and installation of the suspended ceiling and electromechanical systems (including: heavy-current and light-current control system, air conditioning and sewerage system, fire-fighting system, and etc.) shall be borne by Party B.

2) All walls (other than those in elevator halls and glass walls) are covered with latex paint.

3) Party A will provide electric curtains.

 

 27 

 

  

(There is no text on this page.)

 

Lessor (Party A): Shanghai Changtai   Lessee (Party B): Shanghai Jump Network
Business Management Co., Ltd.   Technology Co. Ltd.
(Seal: Shanghai Changtai   (Seal: Shanghai Jump Network
Business Management Co., Ltd.)   Technology Co. Ltd.
    Special Seal for Contract)
Nationality:   Nationality:
     
Legal representative:   Legal representative:
     
Incorporation certificate/ID card number:   Incorporation certificate/ID card number:
     
Domicile:   Domicile:
     
Post code:   Post code:
     
Tel.:   Tel.:
     
Authorized agent:   Authorized agent:
     
Signature and seal:   Signature and seal:
     
Date of execution:   Date of execution:
     
Place of execution:   Place of execution:

 

 28