展品10.23
办公室租赁第二修正案
该日期为2020年2月11日的办公室租赁第二修正案(以下简称“第二修正案”)由特拉华州有限合伙企业G&I VIII Westcore West Warren LP(以下简称“房东”)与特拉华州公司Enovix Corporation(以下简称“租户”)之间订立:
R E C I T A L S
鉴于,特拉华州有限责任公司M West Propco XX,LLC(“原始房东”)与租户签订了日期为2016年1月13日的某些办公室租赁(“原始租赁”),并经该办公室租赁的某些第一修正案修订日期为6月24日,特拉华州有限责任公司M West Propco–West Warren,LLC(以下简称“继任房东”)与租户(统称“租赁”)之间的2015年,租户租赁某些房地(以下简称“原始房地”),其中包括位于弗里蒙特W.Warren Avenue3481和3501W.Warren Avenue的约52,642平方英尺的可出租空间,加州。房东是租赁下原始房东和继任房东的利益继承人。本文中使用的且未在本文中另行定义的所有大写术语应具有租赁中此类术语的含义;和
鉴于,房东和租户希望通过本第二修正案修改租赁,以便(a)自扩展日期起将租赁期限再延长一百二十六(126)个月(定义如下),(b)扩大租户根据租约租赁的原始房地,以包括某些额外的房地,包括通常称为加利福尼亚州弗里蒙特46600Fremont Boulevard的约16,016平方英尺的可租赁平方英尺(“额外房地”),构成建筑物的其余部分;(c)规定租户在扩大的处所期限内为扩大的处所支付的租金(定义如下);(d)进一步修改,修改和补充此处规定的租赁。
因此,现在,考虑到扩大后的房地,并出于其他良好和宝贵的考虑,特此确认其接收和充足,房东和租户特此达成以下协议:
1.朗诵。上面列出的独奏会并入本文,就好像在本文中完整列出一样。
2.条件先例。房东和租户承认,额外的房地目前由另一家Nachi America Inc.(“现有租户”)占用。该第二修正案明确以(a)房东和现有租户根据房东全权酌情决定的可接受的条款和条件执行终止现有租户租赁额外房地的协议为条件,(b)现有租户的休假并将额外的房地交还给房东(统称为“先决条件”)。
3.延长租赁期限。尽管租赁中有任何相反规定,但在满足先决条件的前提下,房东和租户同意延长租赁到期日,以使租赁期限于2030年8月31日到期(“新租赁到期日”),除非根据租赁条款提前终止。从扩展日期到新租赁到期日的期间在本文中称为“扩展房地期限”。租户承认,租户无权选择或有权将租赁期限延长至扩大后的房地期限之后,除非原始租赁第2.4节中明确规定(前提是该选择权只能针对整个扩展后的处所,而不能针对扩展后的处所的一部分)。
1
4.扩展;处所说明。在满足先决条件的前提下,从现有租户撤离并将额外房地移交给房东之日(预计为2020年3月1日)之后的日期(“扩展日期”)开始,房东应租赁给租户,并且租户应从房东处租赁,附件A所示的附加前提,并根据租赁的所有条款和条件通过本引用并入本文,除非本文另有规定。因此,特此修改租赁,以便在扩展日期之后和之后,租赁中对“处所”的所有引用均指并指原始处所和附加处所中的整个空间,面积约为68,658平方英尺,包括整个建筑物(整个空间在本文中称为“扩展后的房地”)。尽管本文有任何相反规定,在租户根据原始租赁第9条向房东提供有关额外房地的责任和财产保险的证据之前,房东没有义务将额外房地的占有权交付给租户。房东可以选择向租户交付载有扩展日期的租赁备忘录或修正案,并且租户应在租户收到备忘录或修正案后的十(10)天内执行并将其退还给房东。如果租户未能在10天内执行并退还备忘录或修正案,则应视为租户已批准并确认了其中规定的日期,但该视为批准并不免除租户执行和退还备忘录或修正案的义务。
5.扩大后的房地的基本月租金。尽管租赁中有任何相反的规定,但除支付租赁下的所有其他应付款项外,包括但不限于承租人根据下文第7节承担的与扩大后的房地有关的项目费用中的份额,承租人在扩建期间,须按下列时间表缴付扩建处所的基本月租:
| 扩大的房地期限的月数 | 基本月租金 | |||
| 1 – 12* | $ | 102,987.00 | ||
| 13 – 24 | $ | 106,076.61 | ||
| 25 – 36 | $ | 109,258.91 | ||
| 37 – 48 | $ | 112,536.68 | ||
| 49 – 60 | $ | 115,912.78 | ||
| 61 –72 | $ | 119,390.16 | ||
| 73 – 84 | $ | 122,971.86 | ||
| 85 – 96 | $ | 126,661.02 | ||
| 97 – 108 | $ | 130,460.85 | ||
| 109 – 120 | $ | 134,374.68 | ||
| 121 – 126 | $ | 138,405.92 | ||
| * 但须根据下文第6节的规定,在扩大后的房地期限的前六(6)个完整日历月中,减少扩大后的房地的基本月租金。 |
2
6.为扩大后的房地减免六(6)个月的基本月租金。尽管租赁中有任何相反规定,房东和租户特此同意,在扩大后的房地期限(预计为2020年3月1日至2020年8月31日)的前六(6)个完整日历月中,应支付的基本月租金扩大后的房地(即,每月102,987.00美元)应完全减少;前提是:(i)在任何时候都不会发生承租人违约的未治愈事件,并且(ii)承租人同意,尽管有上述基本月租金减免,承租人仍应遵守并执行所有其他条款,租赁和本第二修正案中规定的契约和规定,包括但不限于支付承租人根据租赁要求支付的所有其他货币义务,包括但不限于:根据下文第7节的规定,支付租户在扩建后房地的项目费用中所占的份额。
7.租户的份额。自扩展日期起生效,除支付租赁项下的所有其他款项外,包括但不限于上文第5节所述扩展后的房地的基本月租金,租户应按照原始租赁第3.2节的规定,支付可分配给扩展后的房地的项目费用中租户的份额。为此,自扩展日期起,应对摘要G节中规定的租户份额进行调整,以反映扩展后的处所,具体如下:
| “G。租户的份额: ( 3.2.2.5) |
该建筑物的100.00%,基于该房舍的可租赁平方英尺与该建筑物的可租赁总面积的比率。” |
8.原处所和附加处所的状况。租户承认它已经并且继续拥有原始处所,熟悉原始处所的状况,并接受当前存在的原始处所的“原状”状况,存在所有缺陷且没有陈述,房东的任何形式的保证或改进,除非租赁中明确规定。租户特此同意,除非本节和本第二修正案附件B所附的租户工作函中另有规定,否则应将附加房地视为“原样”,“存在所有错误”,“没有任何陈述或保证”。租户特此承认,它曾有机会调查和检查附加场所的状况以及该场所是否适合租户的目的,并且租户特此放弃并否认基于以下原因的任何异议:或声称由于附加场所的条件或其是否适合租户的目的,应减少或限制其在本协议项下的义务。租户承认,房东,任何代理人或房东的任何雇员均未就额外的处所或额外的处所是否适合从事租户的业务做出任何陈述或保证,并且租户明确保证并代表该租户在决定加入本第二修正案并以“原样”条件出租额外房地时仅依靠其自己对额外房地的调查和检查。业主不得承诺更改,改建,修理或改善原有处所或附加处所,也不得明示或暗示任何陈述,除本文可能包含的内容外,房东或其经纪人或销售代理已向租户提出了与原始处所或附加处所有关的任何事项或事情。尽管有上述规定,仍应根据本第二修正案附件B所附的租户工作函对扩展后的处所进行某些改进。
3
9.CASP根据1938年《民法典》进行的检查。业主在此通知租户,扩建后的楼宇并没有经过注册接达专家(CASP)的检查。前述验证仅出于遵守《加利福尼亚民法典》第1938条的目的而包含在本第二修正案中,并且不会以任何方式影响房东和租户各自遵守租赁规定的与建筑相关的无障碍标准的责任。承租人特此确认,该项目、该建筑物及经扩建的处所并未经过中国建筑学会的检查。根据《加利福尼亚民法典》第1938条的要求,房东在此声明如下:“注册接入专家(CASP)可以检查主题场所,并确定主题场所是否符合州法律规定的所有适用的与建筑相关的无障碍标准。尽管州法律不要求对标的物进行CASP检查,但商业物业所有人或出租人不得禁止承租人或承租人为承租人或承租人的占用或潜在占用而对标的物进行CASP检查,如果承租人或承租人要求。双方应就CASP检查的时间和方式,CASP检查费的支付以及纠正场所内违反建筑相关无障碍标准所需的任何维修费用的安排达成共识。“为促进上述规定,业主与租户特此同意租户要求的任何CASP检查应由房东批准的CASP检查员进行,费用由租户承担而为纠正检查所披露的扩建处所内违反与建筑有关的无障碍标准而需要进行的任何维修,均应由租户承担全部费用。
10.保险。根据租户维护的与房地和租赁有关的责任保单,以下各方应为其他保险人:(i)房东,(ii)G&I VIII Fremont Milpitas LLC,(iii)Local Capital Group LLC,(iv)Local Partners VII LLC,(v)LP VII Manager LLC,(vi)DRA Advisors,LLC,(vii)世邦魏理仕及其高级职员,成员,经理,董事,合伙人和雇员。
11.停车。即使租契另有相反规定,承租人仍有权使用工程项目内与扩建处所有关的所有泊车位。
12.允许的转租。尽管租赁中有相反规定,承租人应在不少于五(5)天前书面通知房东(以及本协议下可能合理要求的任何相关信息),有权将扩大后的处所的一部分转租给现有租户,但不得超过扩大后的处所的总计1,000可租赁平方英尺,以供租赁允许的用途,并且这种使用和占用无需房东批准,但该等空间并无单独批租,而现有租客以其他方式使用及占用该等空间,亦须符合租契的条文。但是,承租人在任何时候均应对租金的支付以及履行和遵守承租人在租赁下的所有义务承担全部责任。
13.不容反悔。租户特此证明并确认,截至本文发布之日,(a)房东在任何方面均未违约,(b)房东目前根据租赁持有134,956.54美元的保证金,(c)根据租契须缴付的租金并无抵销。租户承认并同意:(i)此处陈述构成房东在订立本第二修正案时的重大考虑;(ii)租户进行此类陈述的目的是诱使房东订立本第二修正案;(iii)业主在订立本第二修正案时依赖此类陈述。
4
14.经纪人。租户特此声明并向房东保证,租户未订立任何协议或采取任何其他行动,这些协议或行动可能导致房东有义务就本第二修正案支付任何经纪佣金,发现者费用或其他补偿,除CBRE外,租户同意赔偿房东因此类陈述或保证的任何违反或不准确而产生的任何损失,损害,成本或费用(包括但不限于律师费),并使房东免受损害。
15.房东支付租金的地址。现将房东根据租赁支付租金的地址修改如下:
锁箱地址:G&I VIII Westcore West Warren LP
邮政信箱398418
加利福尼亚州旧金山94139-8418
隔夜地址:Wells Fargo Lockbox Services,Dept#38418
核桃大道3440号A座H窗
加利福尼亚州弗里蒙特94538
参考:租户ID#CNV____
电子线路和ACH说明:
N.A.富国银行
加利福尼亚州旧金山
ABA#121-000-248
帐号#4727881906
帐户名称:G&I VIII Westcore West Warren LP
参考:租户ID#CNV____
16.房东的通知地址。现将房东根据摘要P节发出的通知以及租赁下的所有其他目的(上文第14节规定的租金支付除外)的地址修改如下:
通知地址:G&I VIII Westcore West Warren LP
C/O DRA ADvisors LLC
东42街220号27楼
纽约州纽约10017
注意:资产经理
并复制到:
世邦魏理仕物业管理
西圣克拉拉街225号,12二楼
加利福尼亚州圣何塞95113
注意:西沃伦物业经理
和
5
地方资本集团
主席团成员
鲁杰街572号套房A
加利福尼亚州旧金山94129
注意:丹·J·波里茨基
和
Ziontz&Radick LLP
威尔希尔大道233号。
套房600
加利福尼亚州圣莫尼卡90401
注意:Mitch Ziontz,Esq。
17.批准。除非本文另有明确修订,否则租赁将并且将根据其条款保持全部效力。如果租赁与本第二修正案之间发生任何冲突,则以本第二修正案为准。
18.律师费。任何一方应提起任何诉讼或程序来执行或解释本第二修正案或其任何规定,以因据称违反本第二修正案或其任何规定或本协议项下的权利声明而造成的损害赔偿,在任何此类诉讼或程序中,胜诉方均有权从另一方收取胜诉方真诚合理地与该诉讼或程序有关的所有成本和费用,包括实际律师费和其他费用。术语“律师和其他费用”是指并包括律师费用,会计师费用以及因此而与诉讼或程序和准备有关的任何及所有顾问费用和其他类似费用。术语“诉讼或程序”是指并包括诉讼,程序,诉讼,仲裁,上诉和其他类似程序。
19.提交。房东将本第二修正案提交租户审查和/或执行,对房东不具有任何约束力,并且除非且直到房东和租户完全签署并交付本第二修正案,否则本第二修正案不会对房东产生任何义务;但是,前提是,租户对房东的第二次修订的执行和交付应构成租户对此处包含的条款和条件的不可撤销的要约,该要约在交付后三十(30)天内不得撤销。
20.对应的。本第二修正案可以在多个对应方中执行,每个对应方均应被视为原件,但所有这些共同构成一个相同的协议。
【下一页签名】
6
双方自上述第一次提及之日起已执行本第二修正案,以昭信守。
| “房东” | |||
| G&I VIII Westcore West Warren LP, | |||
| 特拉华州有限合伙企业 | |||
| 通过: | G&I VIII Fremont Milpitas,LLC, 特拉华州有限责任公司, 其普通合伙人 |
||
| 通过: | s/瓦拉·布朗 | ||
| 姓名: | 瓦拉·布朗 | ||
| 标题: | Vice President | ||
| “租户” | ||
| Enovix Corporation, | ||
| 特拉华州的一家公司 | ||
| 通过: | s/Harrold Rust | |
| 姓名: | 哈罗德锈病 | |
| 标题: | 首席执行官 | |
7
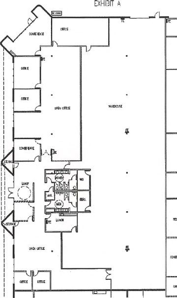
展品A
二.额外房地概要

1
展品B
租户工作函
本租户工作函应列出与扩建后的房屋的改善工程有关的条款和条件。这份租户工作函基本上是按时间顺序排列的,按顺序处理扩建房地的建造问题,因为这些问题将在扩建房地的实际建造过程中出现。本租户工作函中对“本第二修正案”部分的所有引用均指本租户工作函作为附件B随附并构成本租户工作函一部分的第二修正案部分的相关部分,所有对“租赁”的引用均指第二修正案中定义的租赁,本租户工作函中对“本租户工作函”各节的所有引用均指本租户工作函第1至5节的相关部分。
第1节
房东在扩大后的房地中的初始建造
1.1扩大的房地的基地、外壳和核心。房东或其利益相关者已构建了扩展后的房地的基础,外壳和核心(“基础,外壳和核心”)。租户应以“原样”接受基础,外壳和核心,除非第二修正案,租约或本租户工作函中另有明确规定,否则房东不作任何陈述,保证或任何改进。
第2节
扩大的房地改善
2.1扩大房舍装修津贴。租户有权获得与设计相关的一次性装修津贴(“扩展后的房地津贴”),最高不超过一百万七百一十六万四百五十美元,并且没有/100美元($1,716,450.00)以及永久固定在扩展后的处所上的租户改善措施的建造(“扩展后的处所改善措施”)。扩大后的房地的改善应包括但不限于扩大后的房地的电气、结构、暖通空调、应急电源和干房或洁净室基础设施。在任何情况下,房东均无义务根据本租户工作函付款,其总额不得超过扩大后的房舍改善的扩大后的房舍津贴。如果扩建后的房屋装修的实际成本低于扩建后的房屋津贴,则承租人无权获得该超额部分,也无权从租金或根据租赁条款应支付的任何其他款项中扣除,扣除或抵消。根据租赁条款,已提供扩大的房舍津贴的所有扩大的房舍装修均应视为房东的财产。
1
2.2支付扩大的房地津贴。
2.2.1扩大房舍装修津贴项目。除非本租户工作函另有规定,否则房东应支付扩大后的房地津贴,以支付与扩大后的房地改善工程建设有关的费用以及以下项目和费用(统称为因此,“扩大的处所改善津贴项目”)与扩大的处所改善有关:(i)按照本租户工作函第3.1节中的定义,支付“建筑师”和“工程师”的费用,并支付以下费用:以及房东和房东的顾问提供的与准备和审查“施工图”有关的文件和材料的成本,该术语在本租户工作函第3.1节中定义;(ii)基地发生任何变化的成本,施工图纸要求进行此类更改时的外壳和核心;(iii)所有适用的建筑规范(“规范”)要求对施工图纸进行任何更改或扩大的房屋装修的费用;(iv)“房东监理费”,如本租户工作函第4.1节所定义。
2.2.2付款。每个月不超过一次,租户应向房东交付:(i)付款请求;(ii)已支付的收据,证明已提供的劳动力和交付给扩展后的处所的材料;(iii)租户支付要求偿还的金额的证据;(iv)从这些“租户的代理商”中执行无条件的机械留置权释放,根据该术语的以下定义,谁已进行了要求付款的扩展后的处所改善,则该释放应符合房东合理确定的适用法律的适当规定。此后,房东应按照第2.2.2节的规定,向租户交付应付给房东的支票,以支付:(a)租户要求的金额中的较小者。减去百分之十(10%)的保留额(此类保留额的总和称为“最终保留额”),以及(b)扩大后的房地津贴的任何剩余可用部分的余额(不包括最终保留额),但业主不得因任何工程不符合下文第3.4节所界定的“认可工程图纸”或因任何不合标准的工程而对任何付款要求提出异议。房东支付的此类款项不应被视为房东批准或接受租户付款请求中规定的提供的工作或提供的材料。如果租户在2021年12月31日之前尚未要求支付扩大后的处所津贴的任何部分,则租户无权获得该部分扩大后的处所津贴的任何进一步付款,也无权获得任何进一步的权利。
2.2.3最后保留。在遵守本租户工作函规定的前提下,房东应在租户收到上文第2.2.2节所定义的已付收据后,将应付给租户的最终保留支票交付给租户,总计扩大的房地津贴金额,前提是,对于已支付扩大的处所津贴的工作(i)租户根据适用法律向房东交付了正确执行的无条件机械留置权释放;(ii)租户已履行了以下第4.5节规定的义务,(iii)业主已确定并无任何不合标准的工程对扩展处所的机械、电力、水管、暖气、通风及空调、生命安全或其他系统、扩展处所的幕墙或扩展处所的结构造成不利影响。尽管有上述规定,租户应在完成扩展后的处所改善后立即根据适用法律交付所有扩展后的处所改善的最终留置权释放。
2
2.3标准租赁权益改善包。房东已制定或可能制定了用于扩建房屋的扩建房屋装修中使用的建筑标准组件的规格(“规格”)(统称为“标准改进包”),该规格应由房东提供给租户。扩大后的处所改善的质量应等于或大于规格的质量,但前提是房东可以选择要求此类改善以符合某些规格。业主可能会不时更改标准改善计划的规格。
第3节
施工图
3.1建筑师/施工图的选择。租户应保留建筑师/空间规划师,但须经房东事先批准,不得无理地拒绝或延迟批准(“建筑师”),以准备本第3.1节中定义的“施工图”。建筑师和工程师(“工程师”)根据本协议准备的计划和图纸应统称为“施工图”。“所有施工图纸均应符合业主确定的图纸格式和规格,并应获得业主和租户的批准。租户和建筑师应在现场核实基本建筑图相关部分所示的尺寸和条件,租户和建筑师应对此承担全部责任,房东对此不承担任何责任。房东对本第3节中规定的施工图的审查应仅出于其目的,并不意味着房东对其质量,设计,法规遵从性或其他类似事项的审查,也不意味着房东有义务对其进行审查。因此,尽管任何施工图纸均由房东或其空间规划师,建筑师,工程师和顾问准备或审查,并且房东或房东的空间规划师,建筑师,工程师和顾问可能向租户提供任何建议或协助,业主对此不承担任何责任,也不对施工图纸中包含的任何遗漏或错误负责,并且租约中规定的租户放弃和赔偿应特别适用于施工图纸。
3.2最后空间计划。在执行本第二修正案后的三十(30)天内,租户应在开始进行任何建筑施工图之前,向房东提供四(4)份由租户签署的扩建处所的最终空间图。最终空间计划(“最终空间计划”)应包括所有办公室,房间和其他隔断的布局和指定,其预期用途以及其中应包含的设备。业主可要求对最终空间规划中未包括的特殊用途项目进行澄清或绘制更具体的图纸。如果扩建后的房屋在任何方面不令人满意或不完整,房东应在收到扩建后的房屋最终空间图后三十(30)天内通知租户。如果通知租户,租户应立即修改最终空间计划,以纠正房东可能合理要求的任何缺陷或其他事项。
3
3.3最后工作图纸。业主批准最终空间图后,租户应立即(无论如何应在批准后的三十(30)天内)促使建筑师和工程师完成扩建后的房屋装修的建筑和工程图纸,以及最终建筑施工图,其形式应是完整的,以使分包商能够投标该工程并获得所有适用的许可(统称为“最终施工图”),并应将其提交房东批准。租户应向业主提供四(4)份由租户签署的最终工作图纸。如果在任何方面不满意或不完整,房东应在房东收到最终工作图纸后三十(30)天内通知租户。如通知租户,租户应立即根据审查结果和业主对此的任何反对意见修改最终工作图纸。
3.4许可证。在房东批准最终工作图纸(“批准的工作图纸”)后,租户应立即将批准的工作图纸提交给适当的市政当局,以获得第4.1节中定义的允许“承包商”所必需的所有适用的建筑许可证。在下面,要开始并完全完成扩建后的房屋改善工程(“许可证”)的施工,并且与此相关,租户应与房东协调,以允许房东选择参与许可过程的所有阶段,并应向房东提供,尽快与所有计划核对编号和提交日期,并及时获得许可证。尽管有第3.4节中规定的相反规定,租户特此同意,房东或房东的顾问均不负责为扩建后的处所获得任何建筑许可或占用证书,并且获得该许可或占用证书应由租户负责;但是,前提是房东在任何情况下均应与租户合作执行许可证申请并执行其他合理必要的部级行为,以使租户能够获得任何此类许可证或占用证书。未经业主事先书面同意,不得对已批准的施工图进行任何变更、修改或变更。
3.5时间期限。租户应尽其最大的努力,真诚,努力和所有尽职调查,以促使建筑师和工程师在执行第二修正案后尽快完成施工图和许可程序的所有阶段,并尽快获得许可,并且,在这方面,应按房东确定的时间表与房东会面,以讨论租户在此方面的进展。
第4节
改善工程的建造
4.1承包者。承租人应聘请总承包商对扩建后的房屋进行改造。此类总承包商(“承包商”)应由房东书面批准,不得无理地拒绝或延迟批准。在业主批准承包商后,租户应立即促使承包商准备施工时间表,租户应将该时间表提交业主批准。业主应由承包商监督施工,租户应向业主支付施工监理费(“业主监理费”),金额等于扩大后的房屋津贴的百分之二点五(2%)。
4
4.2竞争性招标。故意删除。
4.3租户的代理商。租户使用的所有分包商,劳工,物资和供应商(例如分包商,劳工,物资和供应商,以及统称为“租户代理人”的承包商)必须获得房东的批准,不得无理地拒绝或延迟批准。如果房东不批准租户的任何拟议分包商,劳工,物资或供应商,则租户应提交其他拟议分包商,劳工,物资或供应商,以获得房东的书面批准。
4.4扩建房舍改善工程。
4.4.1租户的代理商。
4.4.1.1业主对租户代理人的一般条件和扩大的房舍改善工作。扩建后的房屋装修工程应基本按照经批准的施工图施工。
4.4.1.2赔偿。租约中规定的租户对房东的赔偿也应适用于与租户或租户代理人或任何直接或间接雇用的任何人的任何作为或不作为有关的任何及所有费用,损失,损害,伤害和负债他们中的任何一个,或与租户未支付因扩大的处所改善和/或不同意任何付款请求的全部或任何部分而产生的任何款项有关。承租人在租赁中规定的此类赔偿也应适用于扩建后的房屋装修超出扩建后的房屋津贴的任何费用以及所有费用,损失,损害赔偿,与房东执行合理必要的任何部级行为有关的伤害和责任(i)允许租户完成扩展后的处所改善,或(ii)使租户能够获得扩展后的处所的任何建筑许可或占用证书。
4.4.1.3承包者的要求。承包商应向租户并为业主的利益保证,扩建后的房地在完工之日起不少于一(1)年的时间内不存在任何工艺和材料缺陷。承包商应负责在不收取额外费用的情况下,更换或修理根据其合同和任何分包合同完成后一(1)年内出现缺陷的所有已完成或提供的工作。此类工作的更正应包括在不收取额外费用的情况下,因搬迁或更换全部或任何部分扩建后的处所改善工程和/或由此可能损坏或干扰的处所而产生的所有额外费用和损害。有关扩建后的房屋的材料或工艺或与扩建后的房屋有关的所有此类保证或保证均应包含在合同中,以使此类保证或保证确保房东和租户双方的利益,因为它们各自的利益可能会出现,并且可以由任何一方直接执行。租户契约向房东提供任何转让或其他保证,这可能是实现这种直接执行权所必需的。
5
4.4.1.4保险要求。
4.4.1.4.1一般承保范围。承包商应为其各自的所有雇员提供工人赔偿保险,并应按照租约的规定,为租户提供公共责任保险,包括财产损失,所有保险均有限额,形式和公司。承包商应向业主提交一份保险证书,指定业主为额外的被保险人。
4.4.1.4.2特别保险。租户应购买“建筑商所有风险”保险,其金额应由房东批准,以支付扩建后的房屋装修的建造费用以及房东可能要求的其他保险,理解并同意,扩建后的房屋装修应由租户在完成租赁后立即根据租赁进行保险。此类保险的金额应包括房东可能合理要求的扩展承保范围背书,包括但不限于要求所有租户的代理商承担超额责任和产品以及已完成的运营承保保险的金额,以租赁中规定的租户必须进行的形式和与公司合作。
4.4.1.4.3一般术语。根据第4.4.1.4节进行的所有保险的证书应在扩大的房舍改善工程开始之前和承包商的设备搬到工地之前交给业主。所有此类保险单必须包含一项规定,即撰写该保险单的公司将在生效日期的任何取消或失效或此类保险金额的任何减少之前三十(30)天向房东发出书面通知。如果扩建后的房屋在建造过程中因任何原因损坏,承租人应立即修理,费用由承租人承担。承包商应将上述所有保险范围保持有效,直到扩建后的房屋完全完成并被房东接受为止,但房东要求的任何产品和已完成的运营保险除外,在业主和租户完成工作并接受验收后,该设备将维护十(10)年。根据本第4,4,1.4节持有的所有保单均应为房东和租户(视其利益而定)以及承包商和租户的代理商提供保险。租户代理人持有的所有保险(工人赔偿除外)均应排除保险人对根据其投保的任何人提出的代位索赔。此类保险应规定,对于所有者而言,它是主要保险,并且所有者维护的任何其他保险均超出了本协议项下要求的保险范围,并且不承担任何责任。上述保险的要求不得减损本租户工作函第4.4.1.2节中有关租户赔偿房东的规定。
4.4.2政府遵守情况。扩建后的房地改善应在所有方面遵守以下规定:(i)州,联邦,市或准政府法律,法规,条例和规章,每项法律,法规,法令和规章均可根据控制公职人员,代理人或其他人的裁决适用;(ii)美国保险协会的适用标准(以前,National Board of Fire Underwriters)和国家电气法规;(iii)建筑材料制造商的规范。
6
4.4.3业主检查。业主有权在施工过程中随时对扩建后的房屋进行检查,但前提是:房东未能检查扩展后的房屋装修在任何情况下均不构成放弃房东在本协议项下的任何权利,房东对扩展后的房屋装修的检查也不构成房东对其的批准。如业主不同意扩建处所的任何部分改善,业主应及时以书面形式通知租户,并应具体说明不同意的项目。业主对扩大后的处所改善工程的任何缺陷,偏差和/或不同意,应由租户纠正,而不会给业主造成任何费用,但前提是:如果业主确定存在缺陷或偏差或不同意与扩建后的处所的任何部分有关的任何事项,并且该缺陷,偏差或事项可能会对机械,电气,管道,供暖产生不利影响,处所的通风和空调或生命安全系统,房东可以采取房东认为必要的行动,费用由租户承担,并且房东不承担任何责任,以纠正任何此类缺陷,偏差和/或事项,包括但不限于,导致停止扩建房屋的施工直到缺陷,偏差和/或事项得到纠正以使房东满意为止。
4.5完成通知书;图则纪录副本。在扩建后的房屋装修完成后的十(10)天内,承租人应按照适用法律的规定,在扩建后的房屋所在县的记录员办公室记录完工通知,并应在记录后将其副本提供给房东。如果租户未能做到这一点,则房东可以代表租户与租户的代理人为此目的执行并提交相同的文件,费用由租户承担。在施工结束时,(i)租户应促使建筑师和承包商(a)根据需要更新批准的工作图纸,以反映在施工过程中对批准的工作图纸所做的所有更改,(b)尽其所知证明待建图纸的“记录集”是真实正确的,该证明应在租赁期满或终止后继续有效,(c)在签发扩大后的处所的占用证书后的九十(90)天内向房东交付两(2)套此类记录图纸的副本,(ii)租户应向房东交付所有副本保证,担保,以及与扩建后的处所的改进,设备和系统有关的操作手册和信息,以及(iii)租户应向房东交付原始签署的许可卡,以表明所有适用部门的最终批准。
第5节
杂项
5.1租户代表。租户已就本租户工作函中规定的事项指定Harrold Rust为其唯一代表,在进一步通知房东之前,Harrold Rust应具有完全的权力和责任,以按照本租户工作函的要求代表租户行事。
5.2房东代表。在扩建后的房屋装修开始施工之前,房东应就本租户工作函中规定的事项指定一名代表,该代表在进一步通知租户之前,应按照本租户工作函中的要求,拥有代表房东行事的全部权力和责任。
7
5.3本租户工作函中的实质时间。除非另有说明,否则本文中对“天数”的所有引用均指日历日。在所有要求租户批准或交付项目的情况下,如果没有书面批准通知或该项目未在规定的时间段内交付,则由房东全权选择,在该期限结束时,该项目应自动被视为已由租户批准或交付,下一个随后的期限应开始。
5.4租户的租赁违约。尽管租赁中有任何相反的规定,但如果租户在扩建后的房屋装修基本完成之日或之前的任何时间发生了本租户工作函或租赁超出任何适用的通知和治愈期的违约,则(i)除依据租约授予业主的所有其他权利和补救措施外,业主有权扣留全部或任何部分扩大的处所津贴(ii)业主在本租户工作函条款下的所有其他义务均应免除,直到根据租赁条款纠正这种违约为止。
8