查看原文
免责申明:同花顺翻译提供中文译文,我们力求但不保证数据的完全准确,翻译内容仅供参考!
EX-10.3 7 展览103-annexestosqmx.htm EX-10.3 表103-annexestosqmx
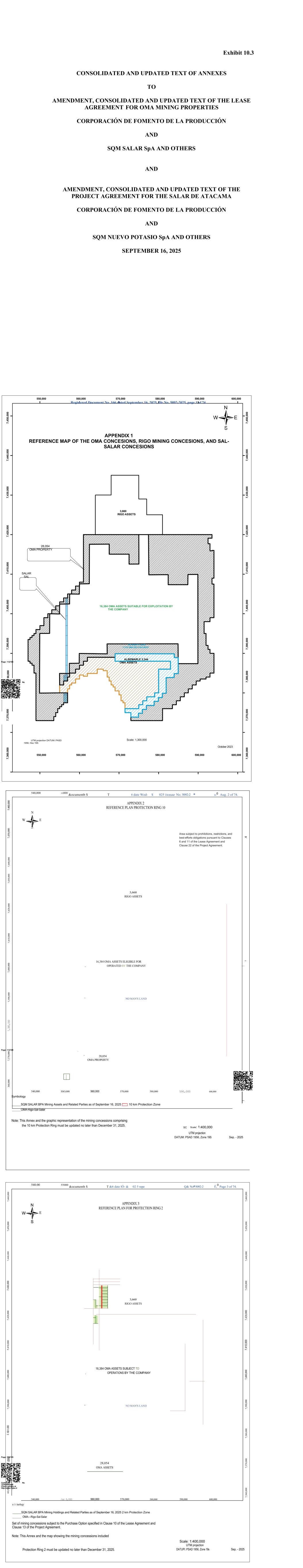
附件 10.3 OMA Mining Properties CORPORACi ó n de FOMENTO de LA Producci ó n和SQM SALAR Spa及其他的租赁协议OMAP0F的修订、合并和更新文本的合并和更新文本以及Salar de ATACAMA CORPORACi ó n de FOMENTO de LA Producci ó n和SQM NUEVO POTASIO Spa和ODM的项目协议的修订、合并和更新文本附录1 OMA特许、RIGO采矿特许、SAL-SALAR特许的参考地图3,660 RIGO资产28,054 OMA财产SALAR SAL 16,384 OMA资产适合公司开发无人土地1,370 OMA属地页码:112/185 ALBEMARLE 3,344 OMA资产证号123456865496查有效性http://www.fojas.cl UTM投影数据:PASD 1956,HSO19S规模:1,300,0002023年10月550000560,000570,000570,000580,000590,000590,000600,0000007,430,0007,440,0007,450,0007,360,0007,370,0007,380,0007,390,0007,400,0007,410,0007,420,0007,430,0007,440,0007,450,0007,370,000540,00055000 & ocumentb $ T6 date Wed-$ 025 issue No. 5092-2 $ 0 Aug. 2 of 74。附录2参考计划保护环10 N W E S区域须遵守租赁协议第6和11条以及项目协议第22条规定的禁止、限制和尽最大努力义务。3,660 RIGO资产16,384 OMA资产资格”“由公司经营—“无人土地页:113/185 '”28,054 OMA产权证书123456865496验证有效性,网址为http://www.fojas。Symbology 540,000 SSO,000560,000570,000570,000580,000590,000600,000 SQM SALAR双酚A采矿资产和截至2025年9月16日的关联方f“”“”l 10公里保护区OMA-Rigo-Sal-Salar注:本附件以及包含10公里保护环的采矿特许权的图形表示必须在2025年12月31日之前更新。SC规模:1:400,000 UTM投影数据:PSAD 1956,Zone 19S Sep.-2025 360,0007,380,0007,400,0007,450,0007,460,0007,390,0007,410,0007,420,0007,430,0007,440,00060,000540.00 55000 & ocumenth $ T & 6 date l ó-& 025 repe Q & No. 5092-2 É,0 page 3 of 74。附录3保护环参考计划2 e 3,660 RIGO资产16,384 OMA资产受制于,由公司运营"无人土地页:114/18528,054 OMA资产证号123456865496查有效性http://www.fojas.cl u i i iuology540,000/or 0.000560,000560,000570,000580,000580,00059,000600,000 SQN SALAR BPA矿业控股及关联方截至2025年9月16日2公里保护区OMA — Rigo-Sal-Salar一套采矿特许权受制于租赁协议第10条和项目协议第13条规定的购买选择权。注:本附件和显示采矿特许权的地图包含比例尺:1:400,000 UTM投影保护环2必须不迟于2025年12月31日更新。DATPU:PSAD 1956,Zone 19s Sep.-2025 000‘0 Bt’丨7,430,0007,390,0007,400,0007,410,0007,420,0007,440,0007,440,0007,450,0007,460,0007,390,0007,400,0007,410,0007,420,0007,430,0007,360,0007,370,0007,380,0007,440,0007,45 0, 00 0 7, 46 0, 00 0


 
70 ,0 00 7.3550,000560,000570,000570,000580,000590,0002025年9月16日第166号登记文件,档案编号5092-2025,第74页第4页。附录4须予恢复原状的不动产LOT L LOT H LOT F LOT A LOT M LOT J LOTS E、F、G、H页码:115/185证书123456865496检查有效性http://www.fojas。UTM投影规模:1,350,000日期:PASD 1956,HSO 19S July-2024 550,000560,000570,000570,000580,000590,000600,0007,350,0007,360,0007,370,0007,380,0007,390,0007,400,0007,410,0007,420,0007,430,0007,440,0007,450,0007,350,0007,360,0007,380,0007,390,0007,400,0007,410,0007,420,0007,430,0007,440,0007,450,000登记的第166号文件,日期为2025年9月16日,档案编号5092-2025,第74页第5页。1附录5 –租金税率附录5所得税税率对于下列每一种产品,应根据销售价格(税后净额)和税率的括号,按照每种情况规定的累进比额表计算和缴纳税款:锂产品页面:116/185证书编号123456865496验证有效性,网址:http://www.fojas.cl碳酸锂(Li2CO3)技术等级和电池等级价格范围Li2CO3美元/吨分级,进步与边际(%)0至4,0006.8%(*)4000至5000以上8.0% 5000至6000以上10.0% 6000至7000以上17.0% 7000至10000以上25.0% 10000以上40.0%(*)在新配额和原配额的情况下:只要公司电池级碳酸锂、技术级碳酸锂、技术级氢氧化锂、电池级氢氧化锂的年累计销量以公吨为单位,不超过理论产能的60%(定义见附件9),对这些产品的销售适用6.8%税率的结果,公司每销售1吨将减少272美元。此优惠仅适用于此价格区间。一旦公司各年度累计销售电池级碳酸锂、技术级碳酸锂、技术级氢氧化锂、电池级氢氧化锂,以相同产品公吨为单位计量,超过保函付款最低营运能力(附件9),则此优惠不适用于超过保函付款年度最低营运能力的吨。以上均不适用于附件6所述计算碳酸锂转化为氢氧化锂的收入、计算从其他锂产品转化为锂产品的收入或计算从其他锂产品转化为其他锂产品的收入。氢氧化锂(LiOH)技术级和电池级LiOH价格区间美元/吨分层、累进、边际税率(%)0至5,0006.8%(*)5000至6000以上8.0% 6000至7000以上10.0% 7000至10000以上17.0% 10000至12000以上25.0% 12000以上40.0%(*)对于新配额和原配额:前提是公司各年度累计销售电池级碳酸锂、技术级碳酸锂、技术级氢氧化锂、电池级氢氧化锂,单位为公吨,不超过理论产能(定义见附件9)的60%,对这些产品的销售适用6.8%税率的结果,注册文件第166号,日期为2025年9月16日,档案编号5092-2025,第74页第6页。2附录5 –租金收益率(%)10%公司出售的每吨将扣除272美元。此优惠仅在此价格范围内适用。一旦公司电池级碳酸锂、技术级碳酸锂、技术级氢氧化锂、电池级氢氧化锂的年累计销量(以各自产品公吨计量)超过保函付款最低营运能力(附件9),则此优惠不适用于超过保函付款年最低营运能力的吨。以上各项均不适用于计算由碳酸锂转化而来的氢氧化锂收入,也不适用于根据附件6计算由其他锂产品转化而来的锂产品收入。氯化钾(KCL)KCL价格区间美元/吨分层、累进、边际率(%)0至3003.0%超300至4007.0%超400至50010.0%超500至60015.0%超60020.0%硫酸钾K2SO4价格区间美元/吨分层、累进、边际税率(%)0至5003.0%约500至6007.0%约600至70010.0%超700至80015.0%超800 20.0%氯化镁或双氯酸盐页码:117/185氯化钠(卤酸盐)硼酸证书123456865496检查有效性所得税率(%)10%收入率(%)10% 2025年9月16日第166号登记文件, 第5092-2025号档案,第74页第7页。3附录5 –租金税率暂定所得税率(%)10%暂定所得税率(%)10%其他产品其他锂产品其他规则:a)与原配额相关的收入将在2024年至2030年期间等额分配,并将使用碳酸锂和氢氧化锂的统一税率6.8%计算(*).page:118/185证号123456865496验证有效性http://www.fojas.cl b)氯化钾在任何情况下的最低理论支付量为运行中的氯化钾理论产能的60%的季度当量。为此,公司应在每年第一季度内向CORFO报告当年氯化钾理论产能。根据提供信息的职责,公司必须提交所有证明文件,以验证所指示的理论产能,这将由CORFO进行验证。c)硫酸钾在所有情况下的最低理论支付量为运营中硫酸钾理论产能的60%的季度当量。为此,公司应在每年第一季度内向CORFO报告当年硫酸钾理论产能。根据其提供信息的义务,公司必须提交所有必要的证明文件,以验证所指示的理论产能,这将由CORFO进行验证。d)硼酸的最低理论支付量,在任何情况下,是目前运行的硼酸理论产能的60%的季度当量。为此,公司应向CORFO报告,在每年第一季度内,当年硼酸理论产能。根据提供信息的义务,公司必须提交所有证明文件,以核实所述理论产能,这将由CORFO核实。e)在其他产品和其他锂产品的情况下,公司必须根据附件6中规定的特许权使用费计算机制,在临时基础上并在最多三个付款期内支付按加权平均最终销售价格(扣除税款)计算的相当于百分之十的特许权使用费。在三个付款期到期之前,公司必须与CORFO善意协商计算特许权使用费的确定费率或费率范围;为此,公司应根据本协议中为此目的所要求的信息,向CORFO提供与新产品有关的所有技术和经济数据。


 
注册文件第166号,日期为2025年9月16日,档案编号5092-2025,第74页第8页。4附录5 –如果未能达成协议,则特许权使用费应由独立专家和/或审计师根据适用的争议解决程序的规定确定,该产品的费率为百分之十,在此期间仍然有效。f)固定年租金为15,000美元,相当于每季度3,750美元。g)氯化钾的收入用于转换:销售湿的,不是根据国际市场所需的加工程度完成的,而由公司向关联方进行转化为其他钾产品的,则按本附件规定的价格区间适用相应的费率,为此目的使用相应季度内向非关联终端客户的成品氯化钾平均销售价格的81%。h)公司向土著组织转让氯化钠(或Halite)的情况下,这些体积应从附件6中的收入计算基础中扣除。i)在公司转让给土著组织的氯化镁(或铁氧基)的情况下,这些体积应从附件6中的收入计算基础中扣除。为免生疑问,仅就标题为“其他规则”的这一节而言,“理论产能”应理解为“特定锂产品的年产能,基于公司生产过程在智利安装和建造的工业设备和厂房的设计。”page:119/185证书123456865496验证有效性http://www.fojas。注册文件第166号,日期为2025年9月16日,档案编号5092-2025,第74页第9页。1附录6 –收入计算方法产品i的收入= ∑(销量×率×售价)附件6收入计算机制公司应按照租赁协议第七条(租金)规定的方式,按照下文规定的计算机制,确定每个租期对应的租金金额,同时向您提供附件7所述所有信息的数字化格式的系统化信息(通过CORFO获取信息)(如适用),连同结算或付款报表所依据的所有证明文件,以及电子转账或存款证明。尽管有上述规定,并考虑到公司拥有确定租金金额和交付商定文件的电子平台或手段,公司同意通过上述平台提供上述要求的信息。本附件所指的销售价格是公司将从非关联第三方竞争性地收取的价格,不存在扭曲上述价格的因素,例如,例如,仅通过举例说明,补贴、赠款、maquila合同、合资合同、承购合同,或由于任何可能被归类为反竞争的做法。各产品租金由公司支付,注明:期间租金总额:=碳酸锂(电池级)+租金技术级碳酸锂+租金电池级氢氧化锂+技术级氢氧化锂收入+其他锂产品收入+氯化钾收入+ SOP租金+租金ABO +租金氯化钠+租金氯化镁+其他产品租金+固定收益一般,各产品收益率计算公式如下:页:120/185证号123456865496在http://www.fojas.cl验证有效性,其中,销售量:对应于公司开具发票的产品的公吨,还包括与以下相关的数量:(a)借方票据,以及(b)与在相应纳税期间开具的发票相关的贷方票据。费率:对应适用的费率,详见附件5。销售价格:按每种适用情形规定的每一种产品确定:销售价格以美元为单位确定。为此目的,当以2025年9月16日第166号登记文件、第5092-2025号文件、第74页第10页以外的货币表示所作和用于计算收益的销售时。2附录6 –收益计算方法美元,应使用智利中央银行(或以该身份充当其替代或替代的实体)在相应销售文件签发之日报告的汇率换算为所述货币;如果该日期没有可用汇率,则应使用前一个营业日的汇率。此外,就本附件而言,“CODELCO”是指智利国家铜业公司, “私人股东”是指Sociedad Qu í mica y Minera de Chile S.A.和SQM Nueva Potasio SpA。适用的收益计算方法是根据公司及其关联公司在向非关联第三方销售方面的状况确定的,具体如下表所示:(1)锂产品的计算机制公司在新配额、附加配额、效率配额、补充配额的情况下销售的总MT适用以下机制。page:121/185独家在新配额和原配额的情况下,将从每售出一公吨按6.8%的比率计算的收入中扣除272美元,前提是每年累计销售电池级和技术级碳酸锂,以及技术级和电池级氢氧化锂,以公吨计量,不超过最低运营能力(根据附件9)。一旦电池级和技术级碳酸锂,以及技术级和电池级氢氧化锂在各年度的累计销售额(以公吨计量的这些产品)超过最低运营产能(根据附件9),则此折扣将不适用于超过该百分比的公吨。以上各项均不适用于计算碳酸锂转化而来的氢氧化锂收入,也不适用于计算依据本附件从其他锂产品转化而来的锂产品收入。案例A:公司向非关联第三方开具的锂产品销售发票金额等于或大于公司在纳税期间锂产品销售总额的50%的,适用以下规定:证书123456865496验证有效性,网址:http://www.fojas。注册文件第166号,日期为2025年9月16日,档案编号5092-2025,第74页第11页。3附录6 –收入计算方法来自产品a的收入=收入1 +收入2 +收入3 +收入4收入1 = ∑(销量i ×率×销售价格i)收入2 = ∑(销量i ×率×价格j)案例A.1:如果公司向非关联第三方开具发票的锂产品销售总额等于或超过公司在纳税期间开具发票的锂产品销售总额的50%且(a)该等销售向至少3个不同的客户及(b)其占该等销售额的比例均不超过70%,则收益按以下方式厘定:收入1:对于公司向非关联第三方开票的锂产品销售:其中,销售价格i:∑(发票价值i)发票价值i ∑(销售量):对应于公司在纳税期间向非关联第三方开具的发票i上锂产品的总净值,包括(a)借方票据,以及(b)在纳税期间开具的与上述发票相关的贷方票据。销量i:对应于发票i中确定的公吨锂产品,还包括与以下相关的数量:(a)借方票据,以及(b)与所述发票i相关的贷方票据,这些票据已在相应的纳税期间内签发。率:对应于根据销售价格i得出的累进和边际税率,如附件5所述。收入2:就公司向关联方开具发票的锂产品的销售而言,拟销售给非关联第三方和/或销售用于化学转化为锂产品或其他锂产品:其中,销售量i:这对应于发票i上确定的锂产品单位,还包括与以下相关的数量:(a)借方票据,以及(b)在相应收入期间签发的与上述发票i相关的贷方票据。page:122/185证号123456865496验证有效性http://www.fojas.cl价格j:对应于(a)i价格,和(b)最终售价之间的较高值。销售价格i:rans(发票价值i)rans(销售量i)发票价值i:这对应于发票i上锂产品的税前总价值,由公司在纳税期间签发给CODELCO、私人股东和与上述相关的所有各方,以便后者可以将所述销售分配给不相关的第三方或转换为锂产品或其他锂产品,包括(a)借方票据,以及(b)与已在收入期间签发的此类发票相关的贷方票据。


 
注册文件第166号,日期为2025年9月16日,档案编号5092-2025,第74页第12页。4附录6 –收益计算方法收入3 = ∑(Max {转换量i × [(其他锂产品i的转换价i ×率)-(转换i中使用的锂产品j的价格×转换因子i ×率锂产品j)];0 })最终销售价格:∑(净值2)∑(销量2)净值2对应于CODELCO、私人股东、所有关联方开具的锂产品税后净值:除公司发票以外的先前发票,发给所有非关联第三方,包括(a)借方票据和(b)与在收入期间开具的发票相关的贷方票据。销量2:对应于私人股东CODELCO和除公司以外的所有关联方向所有非关联第三方开具发票的锂产品总数量,单位为公吨,还包括与以下相关的数量:(a)借方票据,以及(b)与在相应收入期间开具的此类发票相关的贷方备忘。利率:对应于根据附件5,基于价格j得出的累进和边际利率。收入3:重新计算由关联方向无关联第三方开具发票的锂产品销售,拟用于化学转化为其他锂产品:其中,转换量i:对应于通过化学反应转换并由私人股东CODELCO和除公司以外的所有与上述相关的各方向无关联第三方开具发票的其他锂产品i的数量,单位为公吨,源自公司生产的锂产品j。转换价格i:∑(净转换率)页:123/185净转换率i率其他锂产品j转换中使用的锂产品j的价格i ∑(转换量):这对应于其他锂产品向无关联第三方开具的发票的税前净值,已转换并包括(a)借方票据,以及(b)与此类发票相关的贷方票据,这些发票已由CODELCO、私人股东以及除公司之外的上述所有关联方在纳税期间开具。:这对应于根据第七节中描述的机制,在3个临时支付期的最长期限到期之前,各方将本着诚意协商得出的费率。其他锂产品租赁协议之三(h)i.:对应价格j为“租金2:针对公司向关联方开具发票、拟向非关联第三方销售和/或销售以转换为锂产品或其他锂产品”的碳酸锂或氢氧化锂从与所使用的锂产品j相同的租金支付期。证书123456865496查验http://www.fojas有效性。注册文件第166号,日期为2025年9月16日,档案编号5092-2025,第74页第13页。5附录6 –收益计算方法收益4 = Max {转换量× [(转换价格×氢氧化率)-(碳酸盐价格×转换系数×碳酸盐比率)];0 }锂品率j:对应碳酸锂或氢氧化锂的累进率和边际率,根据附件5,根据转换中使用的锂产品j的价格计算。转换因子i:其他锂产品i和锂产品j之间根据附件10考虑化学计量等效性和行业标准良率的数值比率。销售的其他锂产品类型和用于每次化学转化的锂产品类型的每一组合应单独计算收入3。收入4:重新计算由碳酸锂化学转化的氢氧化锂由关联方向非关联第三方开具的销售发票。其中,转换量:对应于私人股东CODELCO和除公司以外的所有与上述相关的各方根据其技术规格通过化学反应转化并销售的氢氧化锂的数量,以公吨为单位开票给非关联第三方,源自公司生产的碳酸锂。转换价格:∑(净转换率2)净转换率2 ∑(转换量):对应于已转换氢氧化锂向非关联第三方开具的发票上的税项净值,包括(a)借方票据,以及(b)与此类发票相关的贷方票据,这些票据已由CODELCO、私人股东以及除公司之外的上述所有关联方在纳税期间签发。Hydroxide:对应氢氧化锂率,按附件5,以换股价为基础。碳酸盐率:对应碳酸锂速率,根据附件5, 基于碳酸盐价格。page:124/185碳酸盐价格:对应于与所用碳酸锂相同的收入确认期间的“收入2:针对公司向关联方开具销售发票、拟销售给非关联第三方和/或销售以转换为锂产品或其他锂产品”中定义的价格j。转换因子:按附件10所述因子相当于1。证书号123456865496在http://www.fojas.cl查有效性CASE A.2:如果公司向非关联第三方开具的锂产品销售发票总额等于或超过公司在纳税期间开具发票的锂产品销售总额的50%,且(a)该等销售对象少于3个不同客户或(b)任何单一客户占该等销售的70%以上,则收入确定如下:注册文件第166号,日期为2025年9月16日,文件编号5092-2025,第74页第14页。6附录6 –收入计算方法,其中,销量i:这对应于公司发票i上标识的公吨锂产品,还包括与以下相关的数量:(a)借方票据,以及(b)在相应收入期间开具的与上述发票i相关的贷方票据。暂定价格:对应于(a)对非关联方和间接关联方的销售价格和(b)对非关联方的销售价格两者中的较高者。非关联方销售价格:∑(非关联方价值)非关联方价值∑(非关联方销售量):对应于公司、CODELCO、私人股东以及与上述相关的所有各方在纳税期间向非关联方第三方开具的锂产品发票的税前价值,包括(a)借方票据和(b)与在相应纳税期间开具的发票相关的贷方票据。非关联销售量:这对应于公司、CODELCO、私人股东以及与上述相关的所有各方在收入期间向所有非关联第三方开具发票的以公吨为单位的锂产品销售量,还包括与以下相关的数量:(a)借方票据,以及(b)与在相应收入期间开具的发票相关的贷方票据。:∑(非关联及间接关联值)非关联及间接关联值销售价格非关联及间接关联值∑(非关联及间接关联值):对应于公司、CODELCO、私人股东、包括上述所有关联方、所有非关联第三方、以及所有间接关联方在收入期间就锂产品开具发票的税项净值,包括(a)借方票据,以及(b)与在相应纳税期开具的发票相关的贷方票据。page:125/185非关联和间接关联销售量:这对应于以公吨为单位的锂产品销售量,由公司、CODELCO和私人股东,包括上述所有关联方、所有非关联第三方和所有间接关联方在各自的收入期内开具发票,还包括与以下相关的销售量:(a)借方票据,以及(b)与各自收入期内开具的发票相关的贷方票据。暂定税率:对应累进和边际税率,按附件5,由暂定价格产生。鉴于这种情况,公司应在以下期间就用于确定已付租金的暂定价格与根据第七节所述机制任命的独立专家确定的价格之间产生的任何正差异重新计算、结算和支付租金。租赁协议第三(g)节应在适用范围内确定相应季度和后续季度的支付价格计算价格的价格、程序和/或替代公式(如有必要)。证书123456865496验证有效性,网址:http://www.fojas。暂定收入= ∑(销量i ×暂定价格×暂定价格)+转换重新计算1 +转换重新计算2注册的第166号文件,日期为2025年9月16日,文件编号5092-2025,第74页第15页。7附录6 –收益计算方法折算重新计算1 = Max {折算量× [(折算价×氢氧化率)-(碳酸盐价格×折算率×碳酸盐率)];0 }其中,最终折算率:对应最终折算价产生的有效折算率。最终价格:这对应于(a)暂定价格和(b)专家价格中的较高者。专家价格:对应通过质疑程序确定的价格, 在适用的情况下。转换重新计算1:对于由关联方向非关联第三方开具发票的由碳酸锂化学转化而来的氢氧化锂的销售,其中,转换量:对应于私人股东CODELCO和除公司之外的所有与上述相关的各方根据技术规范通过化学反应转化而销售的氢氧化锂的数量,以公吨为单位向非关联第三方开具发票,源自公司生产的碳酸锂。转换价格:∑(净转换价值)净转换价值∑(转换量):对应于已向非关联第三方开具的转换后氢氧化锂发票的税后净值,包括(a)与此类发票相关的借方票据和(b)贷方票据,这些票据已由CODELCO、私人股东以及除公司以外的上述所有关联方在纳税期间开具。Hydroxide:对应氢氧化锂率,按附件5,以换股价为基础。碳酸盐率:对应碳酸锂率,按附件5,以碳酸盐价格为基础。page:126/185碳酸盐价格换算系数:对应与所用碳酸锂相同付款期的碳酸锂价格。:按附件10所述系数相当于1。证书号123456865496在http://www.fojas.cl验证有效性重新计算转换2:对于关联方向非关联第三方销售由锂产品化学转化而成的其他锂产品,租金重新计算= ∑(销售量i ×最终费率×最终价格)− ∑(销售量i ×暂定费率×暂定价格)重新计算转换2 = ∑(Max {转换量i × [(转换价i x其他锂产品i的费率)-(转换i使用的锂产品j的价格×转换系数i ×锂产品j的费率)];0 })


 
注册文件第166号,日期为2025年9月16日,档案编号5092-2025,第74页第16页。8附录6 –收入计算方法,其中,转换量i:这是指通过化学反应转换并由私人股东CODELCO和除公司之外的所有与上述相关的各方销售的其他锂产品i的数量,以公吨为单位向无关联第三方开具发票,源自公司生产的锂产品j。转换价格i:∑(净转换价值)净转换价值i ∑(转换量):对应于I转换的其他锂产品给非关联第三方的发票的税前价值,其中包含(a)借方票据,以及(b)与此类发票相关的贷方票据,这些票据已由CODELCO、私人股东以及除公司之外的所有与上述相关的各方在纳税期间签发。其他锂产品i费率:对应于各方在3个临时付款期的最长期限届满之前,根据第七节所述机制善意协商的结果费率。其他锂产品的租赁协议三(h)i.转换i中使用的锂产品j价格:这对应于与所使用的锂产品j相同的租金支付期的碳酸锂或氢氧化锂的加权平均价格。产品费率:锂产品j转换系数i:对应碳酸锂或氢氧化锂的累进费率和边际费率,根据附件5,由转换i中使用的锂产品j的价格产生。根据附件10,其他锂产品i和锂产品j. page:127/185销售的其他锂产品类型和用于化学转化的锂产品类型的每个组合应计算单独的收入3,其中考虑了化学计量等效性和行业标准收率。案例B:对于公司向非关联第三方开具的锂产品销售发票金额低于公司在收入期锂产品销售总额的50%的情形,酌情适用以下情形。CASE B.1:如果公司关联方CODELCO和私人股东向非关联第三方的锂产品开票销售额等于或超过该关联方锂产品销售总额的50%且(a)向至少3个不同客户进行且(b)均不占该等销售额的70%以上,则应按以下方式确定收入:其中,销量i:这对应于公司发票i上标识的锂产品公吨,并且还包括与以下相关的数量:(a)借方票据,以及(b)与上述发票i相关的贷方票据,这些票据是在相应的收入期间签发的。证书123456865496验证有效性http://www.fojas。营收= ∑(销量i ×率×营收价格)+转换调整1 +转换调整2注册的第166号文件,日期为2025年9月16日,档案编号5092-2025,第74页第17页。9附录6 –收益计算方法:对应(a)对非关联方和间接关联方的销售价格和(b)对非关联方的销售价格两者中的较高者。:∑(不相关价值)∑(不相关销量):对应于公司、CODELCO、私人股东以及与上述相关的所有各方在收入期间向不相关第三方开具的锂产品发票的税后净值,包括(a)借方票据,以及(b)与在相应纳税期间开具的发票相关的贷方票据。:这对应于以公吨为单位的锂产品销售量,由公司、CODELCO、私人股东以及与上述相关的所有各方在收入期间向所有不相关的第三方开具发票,还包括与以下相关的数量:(a)借方票据,以及(b)与在相应收入期间开具的发票相关的贷方票据。:∑(非关联及间接关联价值)∑(非关联及间接关联销量):这对应于公司、CODELCO、私人股东、包括上述所有关联方、所有非关联第三方、以及所有间接关联方在收入期间开具的锂产品发票的税前价值,其中包括(a)借方票据和(b)与已在相应收入期间开具的此类发票相关的贷方票据。营收价格非关联方销售价格非关联方价值非关联方销售:这对应于公司、CODELCO、私人股东、包括前述所有关联方、所有非关联方第三方、所有间接关联方在各自营收期间以MT为单位的锂产品销量, 还包括与以下相关的数量:(a)借方票据,以及(b)与在相应收入期间已开具的此类发票相关的贷方票据。数量不相关和间接相关的价格不相关和间接相关的价值不相关和间接相关的销售数量比率:对应于累进和边际比率,根据附件5,由价格产生。页码:128/185证号123456865496验证有效性在http://www.fojas.cl重新计算换算1:对于由关联方向非关联第三方开具发票的由碳酸锂化学转化而来的氢氧化锂的销售,其中,换算量:对应于通过化学反应,按照技术规范,由私人股东CODELCO和除公司之外的所有与上述相关的各方销售的氢氧化锂的数量,以公吨为单位开票给非关联第三方,来源于公司生产的碳酸锂。转换重新计算1 = Max {转换量× [(转换价格×氢氧化率)-(碳酸盐价格×转换因数×碳酸盐率)];0 }注册的第166号文件,日期为2025年9月16日,文件编号5092-2025,第74页第18页。10附录6 –收益计算方法重新计算转换2 = ∑ Max {转换量i × [(转换价格i ×其他锂产品费率i)-(转换使用的锂产品j价格i ×转换因数i ×锂产品j费率)];0 })转换价格:∑(净转换价值)∑(转换量)净转换价值:对应于转换后的氢氧化锂向非关联第三方开具的发票上的税项净值,包括(a)借方票据和(b)与该等发票相关的贷方票据,已由私人股东CODELCO在纳税期内开具,及除本公司外与前述有关的所有各方。氢氧化率:这对应于氢氧化锂率,如附件5所述,基于转换价格。碳酸盐率:对应碳酸锂率,按附件5,以碳酸盐价格为基础。碳酸盐价格:对应本次转换所用碳酸锂在与所用碳酸锂相同支付期内的价格。根据附件10中描述的因子相当于1的转换因子。重新计算换算2:对于由关联方向非关联第三方开具发票的从锂产品化学转化而来的其他锂产品的销售,其中,换算量i:对应于通过化学反应转换并由私人股东CODELCO和除公司之外的所有与上述相关的各方销售的其他锂产品i的数量,以MT开具发票给非关联第三方,源自公司生产的锂产品j。转换价格i:∑(净转换价值)净转换价值i ∑(转换量):这对应于就其他锂产品向非关联第三方开具的发票的税前净值,经转换和调整以包括(a)借方票据,以及(b)与此类发票相关的贷方票据,这些票据是由CODELCO、私人股东以及除公司之外的上述所有关联方在纳税期间签发的。page:129/185其他锂产品i率转换所用锂产品j的价格i锂产品j率:对应于根据其他锂产品租赁协议第七节(h)所述机制,在3个临时付款期的最长期限届满之前,各方将本着诚意协商得出的费率。三(h)。:指在与所使用的锂产品j相同的租金支付期内,用于本次转换的碳酸锂或氢氧化锂的价格。:对应于碳酸锂或氢氧化锂的累进费率和边际费率,根据附件5,由化学品转换中使用的锂产品j的价格产生。证书123456865496验证有效性http://www.fojas。:注册文件第166号,日期为2025年9月16日,档案编号5092-2025,第74页第19页。11附录6 –收入计算方法暂定收入= ∑(销量×暂定税率×暂定价格)+转换重新计算1 +转换重新计算2转换因子i其他锂产品i和锂产品j之间考虑化学计量等效性和行业标准收率的数值比率,如附件10所述。对销售的其他锂产品类型和用于化学转化的锂产品类型的每一组合,分别计算一次折算2重新计算收益。CASE B.2:若公司关联方CODELCO、 及私人股东向非关联第三方(a)该等关联方的锂产品销售总额低于50%,或(b)向少于3个不同客户进行,或(c)任何单一客户占该等销售的70%以上,则收入应按以下方式确定:其中,销售量i:这对应于公司发票i上标识的锂产品的公吨(MT),还包括与以下相关的数量:(a)借方票据,及(b)与上述发票i有关并于有关收入期间发出的信贷票据。暂定价格:对应于(a)对非关联方和间接关联方的出售价格和(b)对非关联方的出售价格两者中的较高者。非关联方销售价格:∑(非关联方价值)非关联方价值∑(非关联方销量):对应于公司、CODELCO(私人股东)以及与上述相关的所有各方在收入期间向非关联方第三方开具的锂产品发票的税后净值,包括(a)借方票据,以及(b)与在相应纳税期间开具的发票相关的贷方票据。page:130/185证书编号123456865496在http://www.fojas.cl验证有效性不相关的销售量不相关和间接相关的销售价格不相关和间接相关的价值:这对应于以公吨为单位的锂产品销售量,由公司、CODELCO、私人股东和与上述相关的所有各方向所有不相关的第三方开具发票,还包括与以下相关的数量:(a)借方票据,以及(b)与在相应收入期间开具的发票相关的贷方票据。:∑(非关联及间接关联价值)∑(非关联及间接关联销量):这对应于公司、私人股东CODELCO、包括上述所有关联方、所有非关联第三方、以及所有间接关联方在收入期间开具发票的锂产品的净值(不含税),其中包含(a)借方票据,以及(b)与在相应纳税期间开具的发票相关的贷方票据。


 
注册文件第166号,日期为2025年9月16日,档案编号5092-2025,第74页第20页。12附录6 –收入计算方法租金重新计算= ∑(销售量i ×最终价格×最终价格)− ∑(销售量i ×暂定价格×暂定价格)转换重新计算1 = Max {转换量× [(转换价格×氢氧化物比率)-(碳酸盐价格×转换系数×碳酸盐比率)];0 }不相关和间接相关的销售量:这对应的是以公吨为单位的锂产品销售量,由公司、CODELCO、私人股东、包括上述所有关联方、所有非关联第三方、所有间接关联方开具发票,并且还包括与以下相关的数量:(a)借方票据,以及(b)与在相应收入期间开具的发票相关的贷方票据。暂定费率:对应累进费率和边际费率,如附件5所述,按暂定价计算。鉴于这种情况,公司应在以下期间就用于确定已付租金的暂定价格与根据第七节所述机制任命的独立专家确定的价格之间产生的任何正差异重新计算、结算和支付租金。租赁协议第三(g)节(如适用)应确定计算相应季度和后续季度的支付价格的价格、程序和/或替代公式(如有必要)。其中,最终利率:对应最终价格产生的有效利率。最终价格:这对应于(a)暂定价格和(b)专家价格中的较高者。专家价格:这与适用时通过质疑程序确定的价格相对应。转换重新计算1:对于关联方向非关联第三方开具发票的由碳酸锂化学转化而来的氢氧化锂的销售,其中,page:131/185转换量:这是指私人股东CODELCO根据技术规范通过化学反应生产并由公司以外的所有前述相关方销售的氢氧化锂的数量,以公吨为单位向非关联第三方开具发票,源自公司生产的碳酸锂。转换价格:∑(净转换价值)证书123456865496净转换价值∑(转换量):对应于已转换氢氧化锂向非关联第三方开具的发票上的税项净值,包括(a)借方票据,以及(b)与此类发票相关的贷方票据,这些票据已由CODELCO、私人股东以及除公司之外的所有与上述相关的各方在纳税期间签发。验证有效性http://www.fojas。氢氧化率:对应于氢氧化锂率,如附件5所述,以换算价格为基础。注册文件第166号,日期为2025年9月16日,档案编号5092-2025,第74页第21页。13附录6 –收益计算方法换算重新计算2 = ∑(Max {换算量i × [(换算价i ×其他锂产品率i)-(换算所用锂产品j的价格i ×换算率i ×锂产品率j)];0 })碳酸盐指数:这对应的是碳酸锂比率,根据附件5,以碳酸盐价格为基础。碳酸盐价格:对应与所用碳酸锂相同付款期限的碳酸锂价格。根据附件10中描述的因子,相当于1的转换因子。重新计算换算2:对于由关联方向非关联第三方开具发票的从锂产品化学转化而来的其他锂产品的销售,其中,换算量i:这是指通过化学反应转化并由私人股东CODELCO和除公司之外的所有与上述相关的各方销售的其他锂产品i的数量,以公吨为单位向非关联第三方开具发票,源自公司生产的锂产品j。转换价格i:∑(净转换价值i)∑(转换量)净转换价值i:对应于I转换的其他锂产品给非关联第三方的发票的税前净值,包含(a)借方票据和(b)与上述发票相关的贷方票据,这些票据已在纳税期间由CODELCO、私人股东以及除公司之外的所有与上述相关的各方签发。其他锂产品i费率:对应各方将善意协商的结果费率,在3个临时付款期最长期限届满前, 根据其他锂产品租赁协议第七.三(h)节所述机制。转换i中使用的锂产品j价格:这对应的是与所使用的锂产品j相同租金支付期的碳酸锂或氢氧化锂的加权平均价格。page:132/185证号123456865496验证有效性http://www.fojas.cl锂产品j率换算系数:对应碳酸锂或氢氧化锂的累进率和边际率,根据附件5,由转换中使用的锂产品j的价格产生。其他锂产品i和锂产品j之间根据附件10考虑化学计量等效性和行业标准产率的数值比率。销售的其他锂产品类型和用于化学转化的锂产品类型的每一组合应分别计算转换2重新计算费。CASE C:如果公司及其关联方在付款期的销售不允许应用上述机制,并且只要注册文件第166号,日期为2025年9月16日,文件编号5092-2025,第74页第22页。14附录6 –收入计算方法收入a =收入1 +收入2收入1 = ∑(销售量i ×率×销售价格i)可以适用上述情况A和B,即根据第七节所述机制任命的独立专家。租赁协议三(g)(如适用)应确定相应季度和后续季度的价格、程序和/或计算价格的替代公式(如有必要)。(二)其他锂产品的计算机制租金按以下方案计算:案例A:公司就其他锂产品向非关联第三方开具的销售发票金额等于或大于公司该纳税期间其他锂产品销售总额的50%的情形,适用以下情形,视情况:CASE A.1:如果公司向非关联第三方开具发票的其他锂产品销售总额等于或超过公司在纳税期间开具发票的其他锂产品销售总额的50%且(a)该等销售是向至少3个不同的客户进行且(b)这些客户均不占该等销售的70%以上,则应按以下方式确定收入:收入1:对于公司向非关联第三方开具发票的其他锂产品销售:凡,销售价格i:rans(发票价值i)rans(销售量)发票i金额:这对应于公司在纳税期间向非关联第三方开具的发票i上的其他锂产品的总净额(不含税),包括(a)借方票据,以及(b)与在纳税期间开具的此类发票相关的贷方票据。销量i:对应于发票i中确定的其他锂产品的公吨,还包括与以下相关的销量:(a)借方票据,以及(b)在相应的收入期间签发的与上述发票i相关的贷方票据。Page:133/185费率:对应于根据《其他锂产品租赁协议》第七节所述机制,在3个临时付款期的最长期限届满之前,各方将本着诚意协商的费率。三(h)。租金2:公司向关联方开具发票的、拟销售给非关联第三方的其他锂产品的销售,不含化工转化为其他锂产品的销售:证书123456865496验证有效性http://www.fojas。其中,销售量i:对应于发票i上确定的其他锂产品的公吨,还包括与以下相关的数量:(a)借方票据,以及(b)在相应的收入期间已签发的与上述发票i相关的贷方票据。营收2 = ∑(销量i ×率×价格j)登记的第166号文件,日期为2025年9月16日,档案编号5092-2025,第74页第23页。15附录6 –收入计算方法暂定收入= ∑(销售量×暂定税率×暂定价格)价格j:这对应的是(a)销售价格i,(b)最终销售价格中的较高者。销售价格i:∑(发票价值i)∑(销售量)发票价值i:对应于发票i上其他锂产品的税前总价值,由公司在纳税期间签发给私人股东CODELCO和除公司之外的上述所有关联方,以便后者可以将所述销售分配给非关联第三方,不包括转换为其他锂产品的销售,包括(a)借方票据, 及(b)与已于收入期内发出的该等发票有关的贷方票据。最终销售价格:∑(净值2)净值2 ∑(销量2)对应于私人股东CODELCO和除公司以外的上述所有关联方向所有第三方开具发票的其他锂产品的税后净值:包括(a)借方票据,以及(b)与在收入期间开具的发票相关的贷方票据。销量2:这对应于私人股东CODELCO和除公司以外的上述所有关联方向所有无关联第三方开具发票的其他锂产品的总金额,单位为公吨,还包括与以下相关的数量:(a)借方票据,以及(b)在相应的收入期间已开具的与此类发票相关的贷方票据。费率这对应于各方将善意协商的费率,在:3个临时付款期的最长期限届满之前,按照第七节中描述的机制。其他锂产品合同租赁的三(h),基于价格j.案例A.2:如果公司向非关联第三方销售其他锂产品的开票总额等于或超过公司在租赁期内开票销售其他锂产品总额的50%且(a)该等销售向少于3个不同客户进行或(b)任何单一客户占该等销售的70%以上,则租金确定如下:page:134/185证号123456865496在http://www.fojas.cl验证有效性,其中,销量i:这对应于公司发票i上标识的其他锂产品的公吨,还包括与以下相关的销量:(a)借方票据,以及(b)在相应的收入期间签发的与上述发票i相关的贷方票据。:对应的是(a)对非关联方和间接关联方的销售价格和(b)对非关联方的销售价格两者中的较高者。:∑(非关联值)∑(非关联量)暂定价格非关联方销售价格非关联值:对应公司、CODELCO、民营股东、前述所有关联方向非关联第三方开票的其他锂产品税前净值


 
注册文件第166号,日期为2025年9月16日,档案编号5092-2025,第74页第24页。16附录6 –收入计算方法租金重新计算= ∑(销售量i ×最终利率×最终价格)− ∑(销售量i ×暂定利率×暂定价格)纳税期间,包括(a)借方票据,以及(b)与在相应纳税期间开具的发票相关的贷方票据。非关联销售量:对应于其他锂产品的销售量,单位为公吨,由公司、CODELCO、私人股东以及与上述相关的所有各方在收入期间向所有非关联第三方开具发票,还包括与以下相关的销售量:(a)借方票据和(b)与在相应收入期间开具的发票相关的贷方票据。非关联及间接关联销售价格:∑(非关联及间接关联价值)∑(非关联及间接关联销售数量):对应公司、CODELCO、私人股东、包括上述所有关联方、所有非关联第三方、所有间接关联方在收入期间开具发票的其他锂产品的净值(不含税),包含(a)借方票据,以及(b)与相应收入期间开具的发票相关的贷方票据。:这对应于公司、CODELCO和私人股东——包括上述实体的所有关联方、所有非关联第三方和所有间接关联方——在各自的收入期内以公吨为单位开具发票的其他锂产品的销量,还包括与以下相关的销量:(a)借方票据,以及(b)与在相应收入期内开具的发票相关的贷方票据。非关联及间接关联价值非关联及间接关联销量暂定费率:此对应拟临时使用的费率,其他锂产品如附件5所示。鉴于这种情况,公司应在下一期间就用于确定已付租金的暂定价格与根据第七节所述机制任命的独立专家确定的价格之间产生的任何正向差异重新计算、结算和支付租金。租赁协议第三(g)节(如适用)应确定计算相应季度和随后季度的支付价格的价格、程序和/或替代公式(如有必要)。Where,page:135/185 Final rate:对应于各方将在3个临时付款期限的最长期限届满之前,根据《其他锂产品租赁协议》第七节.3(h)中所述的机制,根据最终价格,本着诚意协商得出的有效利率。最终价格:对应于(a)暂定价格、(b)专家价格中的较高者。专家价格:此处对应适用时通过争议解决程序确定的价格。B类:公司向非关联第三方开具发票的其他锂产品销售金额低于租赁期内公司其他锂产品销售总额的50%的,酌情适用以下规定。证书123456865496验证有效性http://www.fojas。注册文件第166号,日期为2025年9月16日,档案编号5092-2025,第74页第25页。17附录6 –收入计算方法收入= ∑(销量×费率×租金价格)CASE B.1:如果公司关联方CODELCO和私人股东向非关联第三方销售其他锂产品的开票销售额等于或超过该关联方销售其他锂产品总额的50%且(a)向至少3个不同客户进行且(b)均不占该等销售额的70%以上,则收入确定如下:凡,销量i:这对应于公司发票i上标识的公吨其他锂产品,还包括与以下相关的销量:(a)借方票据,以及(b)在相应的收入期间签发的与上述发票i相关的贷方票据。租金价格:对应于(a)向非关联方和间接关联方的销售价格和(b)向非关联方的销售价格两者中的较高者。非关联方销售价格非关联方价值非关联方销售:∑(非关联方价值)∑(非关联方销售数量):对应于公司、CODELCO、私人股东以及上述所有关联方在收入期间向非关联方第三方开具发票的其他锂产品的净值(不含税),包括(a)借方票据, 及(b)与有关课税期内开具的发票有关的贷记票据。:这对应于公司、CODELCO、私人股东以及与上述相关的所有各方在收入期间向所有非关联第三方开具发票的其他锂产品的销量公吨,包括(a)借方票据,以及(b)与在相应收入期间开具的发票相关的贷方票据。数量非关联及间接关联方销售价格:∑(非关联及间接关联值)∑(非关联及间接关联值)页码:136/185证号123456865496在http://www.fojas.cl验证有效性非关联及间接关联值非关联及间接关联值销售量:这对应于公司、CODELCO、私人股东(包括前述所有关联方、所有非关联第三方、所有间接关联方)在各自收入期间开具的其他锂产品的税前净值,包含(a)借方票据,以及(b)与在相应收入期间开具的发票相关的贷方票据。:这对应了以公吨为单位的其他锂产品的销售量,由公司、CODELCO、私人股东、包括与上述相关的所有各方、所有不相关的第三方和所有间接关联方开具发票,并进一步包括与以下相关的数量:(a)借方票据,以及(b)与在相应收入期间开具的发票相关的贷方票据。费率:对应于根据其他锂产品租赁协议第七.三(h)节中所述机制,在3个临时付款期的最长期限届满之前,各方将本着诚意协商的费率。注册文件第166号,日期为2025年9月16日,档案编号5092-2025,第74页第26页。18附录6 –收益计算方法CASE B.2:如果公司关联方CODELCO和私人股东向非关联第三方销售其他锂产品的开票销售额(a)低于该关联方销售其他锂产品总额的50%,或(b)向少于3个不同客户进行,或(c)任何单一客户占该等销售额的70%以上,则收益确定如下:凡,销量i:这对应于公司发票i上确定的其他锂产品的MT,还包括与以下相关的销量:(a)借方票据,以及(b)在相应收入期间签发的与上述发票i相关的贷方票据。暂定价格:对应于(a)向非关联方和间接关联方的销售价格与(b)向非关联方的销售价格两者中的较高者。非关联方销售价格:∑(非关联方价值)非关联方价值∑(非关联方销量):对应于公司、CODELCO、私人股东以及与上述相关的所有各方在收入期间向非关联第三方开具发票的其他锂产品的税后净值,包括(a)借方票据,以及(b)与在相应纳税期间开具的发票相关的贷方票据。非关联销量:这对应于其他锂产品的销量,单位为公吨,由公司、CODELCO、私人股东以及与上述相关的所有各方在收入期间向所有非关联第三方开具发票,还包括与以下相关的销量:(a)借方票据,以及(b)在相应收入期间已开具的与此类发票相关的贷方票据。非关联及间接关联销售价格:∑(非关联及间接关联价值)页数:137/185价值非关联及间接关联销售数量非关联及间接关联销售数量∑(非关联及间接关联销售数量):这对应于公司、CODELCO、私人股东、包括上述所有关联方、所有非关联第三方、以及所有间接关联方在收入期间开具的其他锂产品的税前净值,其中包含(a)借方票据,以及(b)与相应纳税期间开具的发票相关的贷方票据。:这对应于公司、CODELCO、私人股东、包括上述所有关联方、所有非关联第三方和所有间接关联方开具发票的其他锂产品的销量公吨,还包括与以下相关的数量:(a)借方票据,以及(b)与已在相应收入期间开具的此类发票相关的贷方票据。证书123456865496验证有效性,网址:http://www.fojas。暂定费率:此处对应暂定使用的费率, 其他锂产品如附件5所示。暂定收入= ∑(销售量×暂定税率×暂定价格)登记的第166号文件,日期为2025年9月16日,档案编号5092-2025,第74页第27页。19附录6 –收入计算方法所得税重新计算= ∑(销售量i ×最终税率×最终价格)− ∑(销售量i ×暂定税率×暂定价格)收入=其他锂产品数量×转换系数×锂产品价格×锂产品税率+转换重新计算鉴于这种情况,公司应重新计算、结算,并就用于确定已付租金的暂定价格与根据第七节所述机制任命的独立专家确定的价格之间产生的任何正向差异在下一期间支付租金。租赁协议第三(g)节(如适用)应确定计算相应季度和后续季度的付款价格的价格、程序和/或替代公式(如有必要)。其中,最终费率:对应于根据其他锂产品租赁协议第七.三(h)节中所述机制,在3个临时付款期限的最长期限到期之前,各方将本着诚意协商的费率。最终价格:对应(a)暂定价格、(b)专家价格中的较高者。专家价格:对应适用时通过争议解决程序确定的价格。案例C:对于公司仅以转化为锂产品为目的向关联方销售的其他锂产品,不适用前述A、B情形;因此,收入应按以下方式计算:其中,其他锂产品的数量:这对应于报告期内公司向私人股东CODELCO和与上述相关的所有各方销售的用于化学转化为锂产品的其他锂产品的数量,单位为公吨。转换因子:这对应于其他锂产品转换为锂产品的转换因子,如附件10所示。锂产品价格::此处对应碳酸锂或氢氧化锂的价格,在适用等级中,用于计算同一收入期的收入,如适用。page:138/185锂产品费率:这对应于相应锂产品的费率,如附件5所述。证书号123456865496在http://www.fojas.cl验证有效性重新计算换算:适用于公司开票时用于计算收入的锂产品与关联方向非关联第三方开票的锂产品不同,且与化学转换的其他锂产品挂钩。转换重新计算= max {锂产品销售量× [(锂产品销售价格×锂产品销售率)-收入计算中使用的锂产品转换系数/锂产品销售的转换系数×(价格


 
注册文件第166号,日期为2025年9月16日,档案编号5092-2025,第74页第28页。20附录6 –收入计算方法收入=其他锂产品的量i ×换算系数×其他锂产品的价格j ×其他锂产品的率j其中,锂产品销售量:对应于私人股东CODELCO和除公司以外的所有与前述有关的各方以公吨为单位向无关联第三方开票销售的锂产品的数量,源自公司生产的其他锂产品,但用于计算其他锂产品收入的数量除外。所售锂产品价格:∑(所售锂产品净值,不含税)所售锂产品净值,不含税∑(锂产品销量):对应于就所售锂产品数量向非关联第三方开具的发票的税后净值,包括(a)与发票相关的借方票据,以及(b)与上述发票相关的贷方票据,这些票据已在纳税期间由CODELCO、私人股东以及除公司之外的上述所有关联方开具。锂产品销售费率:对应以所售锂产品价格为基础所得碳酸锂或氢氧化锂的累进费率和边际费率。收入计算中使用的锂产品转换系数:这对应于计算收入时使用的化学转换锂产品的转换系数,如附件10所示。锂产品销售转换系数:这与所售锂产品的转换系数相对应,用于附件10所示的化学转换。租金计算中使用的锂产品价格:这对应于进行重新计算的同一收入期间的电池级碳酸锂或电池级氢氧化锂的加权平均价格,有别于所销售的锂产品。收入计算中使用的锂品率:对应基于化学转化中使用的锂产品价格得出的碳酸锂或氢氧化锂的累进率和边际率。CASE D:For sales of other Lithium products by the Company marketed to related parties for the purpose of chemical converting into other Lithium products:page:139/185 where,volume of other Lithium product i:responds to the quantity of other Lithium product i sold by the Company in the revenue period to CODELCO,the private shareholder,and all parties related to the previous,in metric tons,for chemical converting into other lithium products。证书123456865496验证有效性http://www.fojas。转换因子:对应于从其他锂产品j到其他锂产品i的化学转换因子,将由各方确定(如适用)。收益计算中使用的锂产品×收益计算中使用的锂产品的费率)】;0 }注册文件第166号,日期为2025年9月16日,文件编号5092-2025,第74页第29页。21附录6 –其他锂产品j的收益计算方法价格:这与化学转换的其他锂产品j的价格相对应,用于计算同一收入期的收益(如适用)。其他锂产品j的费率:这对应于根据其他锂产品租赁协议第七节所述机制,在3个临时付款期的最长期限到期之前,各方将本着诚意协商的费率。三(h)。CASE E:如果公司、CODELCO、私人股东和所有关联方在租赁期内的销售不允许应用上述机制,并且仅在无法应用前面案例A、B、C或D的情况下,根据适用的第七节所述机制任命的独立专家。租赁协议三(g)(如适用)应制定价格、程序和/或计算相应季度和后续季度支付价格的替代公式(如有必要)。(3)氯化钾的计算机制公司应为氯化钾支付等于以下两者中较高者的金额:(x)按照附件5的规定,按公司、CODELCO、私营股东、与前述相关的所有各方在同一时期向非关联第三方作出的销售期间的加权平均价格,并按1.8%的费率,支付的最低销售量等于在运行的理论氯化钾产能的60%的季度当量, (y)适用以下机制的结果:案例A:公司向非关联第三方开具的销售氯化钾开票金额等于或大于公司在纳税期间氯化钾销售总额的50%的情形,适用以下情形,如适用:案例A.1:如果公司向非关联第三方开具的氯化钾销售发票金额等于或超过公司在纳税期间开具发票的氯化钾销售总额的50%,并且(a)该等销售是向至少3个不同的客户进行的,并且(b)这些客户均不占该等销售的70%以上,则按以下方式确定收入:page:140/185证号123456865496在http://www.fojas.cl Revenue 1验证有效性:对于公司向非关联第三方开具的氯化钾销售发票:凡,销售价格i:∑(发票净值j)销售量i ∑(销售量j):对应于发票i中确定的氯化钾产品的MT,还包含与以下相关的数量:(a)借方票据,以及(b)收入a =收入1 +收入2 +收入3 +收入4 +收入5收入1 = ∑(销售量i ×率×销售价格i)登记的第166号文件,日期为2025年9月16日,文件编号5092-2025,第74页第30页。22附录6 –收入计算方法收入2 =与上述发票i相关且已在相应收入期间开具的∑(销量i ×率×价格j)信用票据。税发票j的净值:这对应于公司向非关联第三方的发票上确定的氯化钾的销售价值,包括(a)借方票据,以及(b)在相应的纳税期间开具的与此类发票相关的贷方票据。销量j:对应于公司向非关联第三方的发票j中确定的公吨氯化钾,还包括与以下相关的数量:(a)借方票据,以及(b)在相应的纳税期间已签发的与上述发票j相关的贷方票据。费率:对应累进费率和边际费率,根据附件5,由销售价格i产生。收入2:用于销售公司开具发票的氯化钾给关联方,拟销售给非关联第三方,不包括化学转化为其他钾产品的销售:其中,销售量i:对应于发票i上标识的氯化钾产品的MT,还包括与以下相关的数量:(a)借方票据,以及(b)在相应的收入期间已开具的与上述发票i相关的贷方票据。价格j:对应于(a)销售价格i,和(b)最终销售价格两者中的较高者。零售价格:∑(发票净值i)∑(销售量)发票净值i:对应公司向私人股东CODELCO和除公司以外的上述所有关联方开具发票的氯化钾的净值(不含税),以便后者可以将所述销售分配给不相关的第三方,其中包括(a)借方票据和(b)与在纳税期间开具的发票相关的贷方票据。最终售价:∑(净值2)∑(销量2)页数:141/185净值2:对应私人股东CODELCO和除公司以外的上述所有关联方向所有非关联第三方开具的氯化钾发票的税项净值,包括(a)借方票据和(b)与该等发票相关的贷方票据,这些票据已在纳税期内开具。销量2:这对应于私人股东CODELCO和除公司以外的所有关联方向所有非关联第三方开具的氯化钾发票总量,单位为公吨,还包括与以下相关的数量:(a)借方票据,以及(b)在相应的收入期间已开具的与此类发票相关的贷方票据。证书123456865496验证有效性http://www.fojas。Rate:对应累进和边际税率,根据附件5,由Price j.登记的第166号文件产生,日期为2025年9月16日,档案编号5092-2025,第74页第31页。23附录6 –收入计算方法收入3 = ∑(转换量i ×率×价格)收入4 = Max {(转换量×转换价格×转换价格率)-已付收入i;0 }收入3:对于公司向关联方开具发票的氯化钾销售,拟用于化学转化为其他钾产品:其中,转换量i:对应于公司向关联方开具的发票i上标识的氯化钾产品的公吨(MT),拟用于化学转化为其他钾产品,还包括与以下相关的卷:(a)借方票据, 及(b)与上述发票i有关并已于有关收入期间发出的信贷票据。价格:∑(净值3)*81% ∑(销量3)净值3:对应私人股东CODELCO和公司以外的所有关联方向所有非关联第三方开具的氯化钾发票净值,包括(a)借方票据和(b)与在纳税期间开具的发票相关的贷方票据。销量3:这相当于私人股东CODELCO和除公司以外的所有关联方以公吨为单位向所有非关联第三方开出的氯化钾总开票量,还包括与以下相关的数量:(a)借方票据,以及(b)在相应的收入期间已开出的与此类发票相关的贷方票据。率:对应于累进率和边际率,如附件5所述,由价格产生。收入4:重新计算关联方向非关联第三方销售除硝酸钾以外的化学转化所得其他钾产品的发票:where,page:142/185证号123456865496在http://www.fojas.cl查有效性转换量转换价净换算值转换率:对应于除硝酸钾以外的通过化学反应转化的产品数量,由CODELCO、私人股东以及除公司之外的所有与上述相关的各方根据公司的氯化钾发票销售给所有非关联第三方,单位为公吨。:∑(净转换价值)∑(转换量):对应于已转换产品给非关联第三方的发票净值,包括(a)借方票据和(b)与上述发票相关的贷方票据,这些票据已在纳税期间由CODELCO、私人股东以及除公司之外的所有与上述相关的各方签发。:对应于由转换价格产生的累进和边际税率,如附件5所述。


 
注册文件第166号,日期为2025年9月16日,档案编号5092-2025,第74页第32页。24附录6 –收入计算方法收入5 =混配量× [(混配价×混配率)-(KCL价格× KCL率)]暂定收入= ∑(货量×公约率×暂定价格)+转换收入1 +转换重新计算2 +重新计算3收入支付i:对应公司发票i上的租金支付给CORFO的美元金额。租金5:含氯化钾(KCL)混配物的租金:其中:混配量:对应公司在收入期间为混配物发运的氯化钾数量,CODELCO和私人股东,单位为公吨。混合价格:KCL价格× 1.13 KCL价格:这对应于公司、CODELCO、私人股东以及与上述相关的所有各方向所有非关联第三方开具的氯化钾发票的税前价格,包括(a)借方票据,以及(b)与在收入期间开具的发票相关的贷方票据。掺混率:指氯化钾的累进率和边际率。KCL率:指氯化钾的累进率和边际率,如附件5所述。混合:任何其他含有KCL的钾产品,它是由与其他产品直接混合产生的,没有化学转化,并且比它所含的KCL产生更高的利润。案例A.2:如果公司向非关联第三方开具的氯化钾销售发票总额等于或超过公司在纳税期内开具发票的氯化钾销售总额的50%,且(a)该等销售向少于3个不同的客户进行或(b)任何单一客户占该等销售的70%以上,则收入确定如下:凡,page:143/185销售量i暂定价格非关联方销售价格:对应于公司发票i上标识的氯化钾产品的MT,不包括向关联方提供的旨在将化学品转化为其他钾产品的发票,还包括与以下相关的数量:(a)借方票据,以及(b)与上述发票i相关的贷方票据,这些票据已在相应的收益期内签发。:对应于(a)向非关联方和间接关联方的销售价格与(b)向非关联方的销售价格两者中的较高者。:∑(不相干值)证书123456865496验证有效性http://www.fojas。未关联价值∑(未关联销量):对应于公司、私人股东CODELCO以及上述所有相关方在收入期间向未关联第三方开具发票的氯化钾的税后净值,包括(a)借方票据,和(b)贷方票据注册文件第166号,日期为2025年9月16日,文件编号为5092-2025,第74页第33页。25附录6 –收入计算方法所得税重新计算= ∑(销售量i ×最终税率×最终价格)− ∑(销售量i ×暂定税率×暂定价格)与相应纳税期间开具的发票相关联。销量无关:这对应于公司、CODELCO、私人股东和与上述相关的所有各方在收入期间向所有无关联第三方开具发票的氯化钾销量公吨,还包括与以下相关的销量:(a)借方票据,以及(b)与在相应收入期间开具的发票相关的贷方票据。非关联及间接关联销售价格:∑(非关联及间接关联价值)非关联及间接关联价值∑(非关联及间接关联销售数量):这对应于公司、CODELCO、私人股东、包括上述所有关联方、所有非关联第三方、以及所有间接关联方在收入期间开具的氯化钾发票的税前价值,其中包含(a)借方票据,以及(b)与各自纳税期间开具的发票相关的贷方票据。非关联和间接关联销量:这对应于公司、CODELCO、私人股东、包括上述所有关联方、所有非关联第三方、以及所有间接关联方在收入期间开具发票的氯化钾销量公吨,还包括与以下相关的销量:(a)借方票据,以及(b)与在相应收入期间开具的发票相关的贷方票据。暂定税率:对应累进和边际税率,按附件5,由暂定价格产生。鉴于这种情况,公司应重新计算、结算、支付租金,在下一期间, 关于用于确定已付租金的暂定价格与根据第七节所述机制任命的独立专家确定的价格之间产生的任何正向差异。租赁协议三(g)应在适用的范围内,必要时确定计算相应季度和随后季度付款价格的价格、程序和/或替代公式。where,page:144/185证号123456865496验证有效性http://www.fojas.cl最终利率:对应最终价格产生的有效利率。最终价格:这对应于(a)暂定价格和(b)专家价格中的较高者。专家价格:这与适用时通过质疑程序确定的价格相对应。转换收入1:用于向关联方销售公司开具发票的氯化钾,拟用于化学转化为其他钾产品:转换收入1 = ∑(转换量i ×率×价格)注册文件第166号,日期为2025年9月16日,文件编号5092-2025,第74页第34页。26附录6 –收益计算方法转换重新计算2 = Max {(转换量×转换价格×转换价格率)-股息支付i;0 }其中,转换量i:对应于公司向关联方提供的发票i中确定的氯化钾产品的公吨(MT),旨在转换为其他钾产品,还包括与以下相关的数量:(a)借方票据,以及(b)在相应收入期间签发的与上述发票i相关的贷方票据。价格:∑(净值3)*81% ∑(销量3)净值3:这对应于私人股东CODELCO和公司以外的所有关联方向所有非关联第三方开具的氯化钾发票的税前价值,包括(a)借方票据,以及(b)与在相应收入期间开具的发票相关的贷方票据。销量3:表示私人股东CODELCO和除公司以外的所有与上述相关的各方向所有无关联第三方开具的氯化钾发票总量,单位为公吨,还包括与以下相关的数量:(a)借方票据,以及(b)与在相应收入期间开具的此类发票相关的贷方票据。率:对应于累进率和边际率,如附件5所述,由价格产生。转换2的重新计算:对于由关联方向非关联第三方开具发票的化学转换衍生的其他钾产品的销售,硝酸钾除外:其中,转换量:对应于通过化学反应转换并销售的产品数量,根据公司的氯化钾发票i,由CODELCO、私人股东、除公司以外的前述所有关联方,向所有非关联第三方支付MT.转换价格:∑(净转换价值)∑()页:145/185支付的净转换转换率收入i:对应于就转换产品向非关联第三方支付的发票的税前价值,包括(a)借方票据,以及(b)与此类发票相关的贷方票据,这些票据已由CODELCO、私人股东以及除公司之外的所有与上述相关的各方在收入期间签发。:对应累进和边际税率,按照附件5,由转换价格产生。:对应公司发票收入支付给CORFO的美元金额i.证书123456865496验证有效性http://www.fojas。重新计算3:用于销售含氯化钾(KCL)的混合物:注册文件第166号,日期为2025年9月16日,文件编号5092-2025,第74页第35页。27附录6 –收入计算方法收入= ∑ [(销量i ×率×价格)+(销量j ×率j ×价格j)+(销量k ×率k ×价格k)] +转换调整+混合收入其中:混合量:对应公司、CODELCO和私人股东在租赁期内为混合物发运的氯化钾数量,单位为公吨。混合价格:KCL价格× 1.13 KCL价格:这对应于公司、CODELCO、私人股东以及与上述相关的所有各方向所有非关联第三方开具的氯化钾的税前价格,包括(a)借方票据,以及(b)与已在收入期间开具的此类发票相关的贷方票据混合率:指氯化钾的累进和边际税率。KCL率:指氯化钾的累进率和边际率,如附件5所述。Blend:与其他产品直接混合产生的任何含有KCL的其他钾产品, 没有化学转化,这会产生比KCL含量更高的利润。B类:公司向非关联第三方开具的销售氯化钾发票金额低于公司该纳税期间氯化钾销售总额的50%的情形,酌情适用以下情形。CASE B.1:如果公司关联方CODELCO和私人股东向非关联第三方销售的氯化钾开票数量等于或超过该关联方销售氯化钾总量的50%且(a)向至少3个不同客户进行且(b)这些客户占该等销售额的比例均不超过70%,则收入确定如下:其中,page:146/185销售量i:这对应于公司发票i上标识的氯化钾产品的MT,这并不是为了将化学品转化为其他钾产品,还包括与以下相关的数量:(a)借方票据,以及(b)与所述发票i相关的贷方票据,这些票据是在相应的纳税期间签发的。证号123456865496验证有效性在http://www.fojas.cl率:对应累进率和边际率,按附件5,按价格计算。价格:对应于(a)非关联、间接关联销售价格与(b)非关联销售价格两者中的较高者。非关联方销售价格:∑(非关联值)∑(非关联销量)重新计算3 =混交量× [(混交价×混交率)-(KCL价格× KCL率)]


 
注册文件第166号,日期为2025年9月16日,档案编号5092-2025,第74页第36页。28附录6 –收益计算方法不相关价值:对应于公司、CODELCO、私人股东以及与上述相关的所有各方在收入期间就氯化钾向不相关的第三方开具发票的税后净额,包括(a)借方票据,以及(b)在相应的纳税期间已开具的与此类发票相关的贷方票据。非关联销售量:这对应于公司、CODELCO、私人股东以及与上述相关的所有各方在收入期间向所有非关联第三方开具的氯化钾发票的销售量(以公吨为单位),还包括与以下相关的销售量:(a)借方票据,以及(b)与已在相应收入期间开具的此类发票相关的贷方票据。:∑(非关联及间接关联价值)∑(非关联及间接关联销量):对应于公司、CODELCO、私人股东、包括上述所有关联方、所有非关联第三方、以及所有间接关联方在收入期间内开具的氯化钾发票的税项净额,其中包含(a)借方票据,以及(b)已在相应纳税期内开具的与该等发票相关的贷方票据。:这对应于公司、CODELCO、私人股东、包括与上述相关的所有各方、所有非关联第三方和所有间接关联方在收入期间就氯化钾开具发票的销量公吨,还包括与以下相关的销量:(a)借方票据,以及(b)与在相应收入期间开具的发票相关的贷方票据。销量j:这对应于公司发票j上确定的产品给关联方的MT,即氯化钾,用于化学转化为硝酸钾,还包括与以下相关的数量:(a)借方票据,以及(b)在相应的纳税期间签发的与上述发票j相关的贷方票据。率j:对应累进率和边际率,按附件5,由价格j产生。价格j:价格*81%.page:147/185销售额k:对应于公司发票j上确定的给关联方的产品的MT,即氯化钾,打算用于化学转化为硝酸钾以外的其他钾产品,还包括与以下相关的数量:(a)借方票据,以及(b)已在相应收入期间开具的与上述发票j相关的贷方票据。率k:对应累进率和边际率,按附件5,由价格k产生。价格k:价格*81%证123456865496查http://www.fojas有效性。转换重新计算= Max {(转换量×转换价格×转换付款率)-已付收入k;0 }不相关和间接相关的销售价格不相关和间接相关的价值不相关和间接相关的销售数量注册文件第166号,日期为2025年9月16日,文件编号5092-2025,第74页第37页。29附录6 –收入计算方法其中,转换量:对应于通过化学反应转化的产品数量,硝酸钾除外,并根据公司的氯化钾发票k,由CODELCO、私人股东和除公司之外的所有与上述相关的各方以公吨为单位销售给所有无关联第三方。转换价格:∑(净转换价值)净转换价值∑(转换量):对应于除硝酸钾以外的转换产品向非关联第三方开具的发票的税后净值,包括(a)借方票据,以及(b)与上述发票相关的贷方票据,这些票据已在纳税期间由CODELCO、私人股东以及除公司之外的所有与上述相关的各方签发。折算率:对应于累进和边际折算率,如附件5所述,由折算价产生。已付收入k:这对应于公司发票k上的租金支付给CORFO的美元金额。其中:混合量:这对应于公司、CODELCO和私人股东在收入期间为混合而发运的氯化钾数量,单位为公吨。混合价格:KCL价格× 1.13 KCL价格:这对应于公司、CODELCO、私人股东以及与上述相关的所有各方向所有非关联第三方开具的氯化钾发票的税前价格,包括(a)借方票据,以及(b)与在收入期间开具的发票相关的贷方票据。混合率:这对应于累进率和边际利率, 如附件5所述,为氯化钾。KCL率:对应氯化钾累进率和边际率。page:148/185证书编号123456865496验证有效性http://www.fojas.cl Blend:任何其他含有KCL的钾产品,其与其他产品直接混合产生,无需化学转化,且产生的毛利高于其所含的KCL。案例B.2:如果公司的关联方CODELCO和私人股东向非关联第三方销售氯化钾的开票销售额(a)低于该关联方氯化钾总销售额的50%,或(b)向少于3个不同客户进行,或(c)任何单一客户占该等销售额的70%以上,则收入按如下方式确定:混调收入=混调量× [(混调价格×混调率)-(KCL价格× KCL率)]暂设收入= ∑ [(销量i ×暂定率×暂定价)+(销量j ×率j ×价格j)+(销量k ×率k ×价格k)] +折算调整+混合收入登记文件第166号,日期为2025年9月16日,文件编号5092-2025,第74页第38页。30附录6 –收入计算方法,其中,销售量i:这对应于公司发票i上确定的氯化钾产品的MT,该产品不打算用于化学转化为其他钾产品,还包括与以下相关的数量:(a)借方票据,以及(b)在相应的纳税期间签发的与上述发票i相关的贷方票据。暂定费率:对应基于暂定价的所得累进和边际费率。暂定价格:对应(a)非关联、间接关联销售价格与(b)非关联销售价格两者中的较高者。非关联方销售价格:∑(非关联方价值)非关联方价值∑(非关联方销量):对应于公司、CODELCO、私人股东以及与上述相关的所有各方在收入期间就氯化钾向非关联第三方开具发票的税后净额,包括(a)借方票据,以及(b)已在相应纳税期间开具的与该等发票相关的贷方票据。:这对应于公司、CODELCO、私人股东以及与上述相关的所有各方在收入期间向所有无关联第三方开具的氯化钾发票的销量公吨,还包括与以下相关的销量:(a)借方票据,以及(b)与在相应收入期间开具的发票相关的贷方票据。:∑(非关联及间接关联价值)∑(非关联及间接关联销量):对应公司、CODELCO、私人股东、包括上述所有关联方、所有非关联第三方、以及所有间接关联方在收入期间内开具的氯化钾发票的税项净额,其中包含(a)借方票据,以及(b)在相应纳税期内已开具的与该等发票相关的贷方票据。page:149/185销量j:对应于公司、CODELCO、私人股东、包括上述所有关联方、所有非关联第三方、以及所有间接关联方在收入期间的氯化钾开票的销量公吨,还包括与以下相关的销量:(a)借方票据,以及(b)与已在相应收入期间开具的此类发票相关的贷方票据。:这对应于公司给关联方的发票j上标识的产品的MT,由氯化钾组成,用于化学转化为硝酸钾,还包括与以下相关的体积:(a)借方票据,以及(b)在相应的纳税期间签发的与上述发票j相关的贷方票据。证书123456865496验证有效性http://www.fojas。率j:对应累进率和边际率,按附件5,由价格j产生。价格j:暂定价*81%.销量k:对应公司发票j上标识的产品公吨给关联方,即氯化钾,拟用于非关联销量非关联及间接关联销售价格非关联及间接关联价值非关联及间接关联销售量注册文件第166号,日期为2025年9月16日,档案编号5092-2025, 第74页,第39页。31附录6 –收入计算方法租金重新计算= ∑ [(销售量i ×最终价格×最终价格)+(销售量j ×最终价格×最终价格)+(销售量k ×最终价格×最终价格)] − ∑ [(销售量i ×暂定价格×暂定价格)+(销售量j ×暂定价格×暂定价格)+(销售量k ×暂定价格)折算重新计算= Max {(折算量×转换价格×转换支付率)-收入支付k;0 }化学转化为硝酸钾以外的其他钾产品,并且还包括与以下相关的数量:(a)借方票据,以及(b)与所述发票j相关的贷方票据,这些票据已在相应的纳税期间内签发。率k:对应累进率和边际率,按附件5,由价格k产生。价格k:暂定价*81%鉴于这种情况,公司应就用于确定已付租金的暂定价格与根据第七节所述机制指定的独立专家确定的价格之间产生的任何正差异,在以下期间重新计算、结算和支付租金。租赁协议第三(g)节(如适用)应确定价格、程序、和/或计算相应季度及后续季度付款价格的替代公式(如有必要)。其中,最终利率:对应最终价格产生的有效利率。最终价格:这对应于(a)暂定价格和(b)专家价格中的较高者。专家价格:对应适用时通过质疑程序确定的价格。Where,pay:150/185 Certificate No. 123456865496 Verify validity at http://www.fojas.cl conversion volume conversion price net conversion:对应基于氯化钾发票,从公司向CODELCO、私人股东以及除公司之外的所有与前述相关的各方,向所有非关联第三方转换和销售的产品数量公吨。:∑(净换算值)∑(换算量):这对应于除硝酸钾以外的已加工产品向非关联第三方开具的发票的税前价值,包括(a)借方票据,以及(b)与此类发票相关的贷方票据,这些票据已由私营股东CODELCO和除公司以外的上述所有关联方在纳税期间开具。


 
注册文件第166号,日期为2025年9月16日,档案编号5092-2025,第74页第40页。32附录6 –收益计算方法对应于累进和边际税率,如附件5所述,由转换价格产生。转换率:已付收入k::这对应于公司发票k上的租金支付给CORFO的美元金额。其中:混合量:这对应于公司、CODELCO和私人股东在租赁期内为混合而发运的氯化钾数量,单位为公吨。混合价格:KCL价格× 1.13 KCL价格:这对应于公司、CODELCO、私人股东以及与上述相关的所有各方向所有非关联第三方开具的氯化钾发票的税前价格,包括(a)借方票据,以及(b)与已在收入期间开具的此类发票相关的贷方票据。混合率:这对应于附件5中规定的氯化钾的累进率和边际率。KCL率:对应氯化钾累进率和边际率。混合:任何其他含有KCL的钾产品,它是由与其他产品直接混合产生的,没有化学转化,并且产生比它所含的KCL更高的利润。案例C:如果公司、CODELCO、私人股东以及上述所有关联方在付款期内销售氯化钾不允许应用上述机制,并且仅在无法应用上述A和B案例的情况下,根据适用的租赁协议第七节所述机制任命的独立专家。如有必要,应根据租赁协议第三(g)节(如适用)确定相应季度和随后季度的付款价格的价格、程序和/或计算价格的替代公式。page:151/185(4)SOP、ABO、氯化钠、氯化镁、其他产品的计算机制这些产品的租金按(a)每个产品的最低租金和(b)根据每个产品的计算机制的租金中的较大者计算:(a)每个产品的最低收入:SOP的最低收入:证书123456865496在http://www.fojas查询有效性。混调收入=混调量× [(混调价格×混调率)-(KCL价格× KCL率)]注册文件第166号,日期为2025年9月16日,文件编号5092-2025,第74页第41页。33附录6 –收入计算方法SOP最低收入:SOP最低租金量*SOP价格*1.8% SOP最低租赁量:硫酸钾理论最低支付量为硫酸钾理论产能60%的季度当量,详见附件5。SOP价格:公司及关联方同期向非关联第三方销售期间的加权平均价格;期间未发生销售的,价格为171美元/吨加公司及关联方向除公司外的所有非关联第三方开具的客户氯化钾销售均价的1.24倍之和,包含(a)借方票据,以及(b)与该等发票相关的贷方票据,已在收入期间开具。ABO最低营收:最低ABO营收:最低ABO营收体量*ABO价格*1.8% ABO最低收益量:硼酸理论最低支付量为硼酸理论产能60%的季度当量,详见附件5。ABO价格:支付权利金时可获得的最近一个季度智利离岸出口加权平均价格。氯化钠最低版税:无。此外,公司转让给土著组织的氯化钠(或Halite)数量将从特许权使用费计算基础中扣除。氯化镁最低版税:无。此外,公司转让给土着组织的氯化镁(或铁氧石)的体积将从特许权使用费计算基础中扣除。其他产品最低收入:无。(b)按各产品计算机制的收入:案例A:公司向非关联第三方开具的销售发票金额等于或大于公司该收入期间销售总额的50%的情形,适用以下情形,如适用:page:152/185证书编号123456865496在http://www.fojas.cl验证有效性案例A.1:如果公司向非关联第三方开具发票的销售总额等于或超过公司在纳税期间开具发票的销售总额的50%,并且(a)该等销售是向至少3个不同的客户进行的,并且(b)这些客户均不占该等销售的70%以上, 那么税则确定如下:收入1:对于公司向非关联第三方开具发票的销售:其中,收入a =收入1 +收入2 +收入3 +收入4 +收入5收入1 = ∑(销售量i ×率×销售价格i)登记的第166号文件,日期为2025年9月16日,档案编号5092-2025,第42页,共74页。34附录6 –收入计算方法收入2 = ∑(销量×率×价格j)售价i:∑(发票价值i)发票金额i:∑(销售量)对应于公司在纳税期间向非关联第三方开具的发票i的总净值(不含税),其中包含(a)借方票据,以及(b)与在纳税期间开具的发票相关的贷方票据。销量i:对应于公司发票i上确定的产品的公吨(MT),还包括与以下相关的数量:(a)借方票据,以及(b)在相应的收入期间已签发的与上述发票i相关的信用票据。各产品按附件5规定的费率。收入2:对于公司向关联方开具发票的销售,拟销售给非关联第三方,不包括化学品转化为其他产品的销售:其中,销售量i:对应于发票i上标识的产品的MT,还包含与以下相关的数量:(a)借方票据,以及(b)已在相应收入期间开具的与上述发票i相关的贷方票据。价格j:对应于(a)销售价格i,(b)最终销售价格两者中的较高者。销售价格i:rans(发票价值i)rans(销售量)发票i金额:这对应于公司在收入期间向CODELCO、私人股东以及除公司以外的所有前述关联方签发的发票i的总净额(不含税),以便后者可以将所述销售分配给非关联第三方,包括(a)借方票据,以及(b)在纳税期间签发的与所述发票相关的贷方票据。最终销售价格:∑(净值2)∑(销量2)页数:153/185净值2:销量2:这对应于私人股东CODELCO和除公司以外的所有与上述相关的各方向所有不相关的第三方开具发票的净值(不含税),包括(a)借方票据,以及(b)与在收入期间开具的发票相关的贷方票据。这相当于私人股东CODELCO和除公司以外的所有与上述相关的各方以公吨为单位向所有非相关第三方开具的产品发票总额,还包括与以下相关的数量:(a)借方票据,以及(b)与在相应的收入期间开具的此类发票相关的贷方票据。证书123456865496查验http://www.fojas有效性。费用:对应附件5规定的费率。注册文件第166号,日期为2025年9月16日,档案编号5092-2025,第74页第43页。35附录6 –收入计算方法收入3 = ∑(转换量i ×率×价格)收入4 = Max {(转换量×转换价格×转换付款率)-已付收入i;0 }收入3:对于公司向关联方开具发票的销售,拟用于化学品转化为其他产品:其中,转换量i:对应于公司发票i上标识的产品的公吨(MT),拟用于化学品转化为其他产品,还包括与以下相关的数量:(a)借方票据,及(b)与上述发票i有关并于有关收入期间发出的信贷票据。率价格不含税净值3:各产品按附件5规定。:∑(不含税净值3)∑(销售量3):对应公司向CODELCO、私人股东和上述所有关联方开具发票的不含税净值,以便后者可以将所述销售分配给不相关的第三方进行转换,其中包含(a)借方票据,以及(b)与在纳税期间开具的发票相关的贷方票据。销售数量3:这对应于公司向CODELCO、私人股东和与上述相关的所有各方开具发票的产品总金额,以便后者可以将所述销售分配给不相关的第三方进行转换,单位为公吨,还包括与以下相关的数量:(a)借方票据,以及(b)与在相应收入期间开具的此类发票相关的贷方票据。营收4:重新计算关联方开具的销售发票,意在将化学品转化为附加值更高的其他产品:其中,转换量:对应转化销售的产品数量,以公司发票i为基础,由私人股东CODELCO开具发票,除公司以外的所有与上述相关的各方, 致所有无关联第三方Mt. page:154/185证号123456865496验证有效性在http://www.fojas.cl转换价格净转换价值转换率支付的租金i:∑(净转换价值)∑(转换量):对应于税后净值,由CODELCO、私人股东和除公司以外的前述所有关联方就转换产品向无关联第三方开具发票,包括(a)借方票据,以及(b)与在收益期内开具的发票相关的贷方票据。:这与附件5中规定的费率相对应。:这对应于公司发票i上的税款支付给CORFO的美元金额。


 
注册文件第166号,日期为2025年9月16日,档案编号5092-2025,第74页第44页。36附录6 –收入计算方法收入5 =混配量× [(混配价×混配率)-(SOP价格× SOP率)]暂定收入= ∑(销量i ×率×暂定价格)+转换调整+混合收入收入5:含硫酸钾混配物(SOP)的收入:其中:混配量:这对应于公司、CODELCO和私人股东在租赁期内送去混配量,单位为公吨。混合价格:SOP价格× 1.13 SOP价格:这对应于公司、CODELCO、私人股东以及与上述相关的所有各方向所有非关联第三方开具的税前SOP价格,包括(a)借方票据,以及(b)与在收入期间开具的发票相关的贷方票据。混合率:对应于SOP的累进率和边际率。SOP费率:指SOP的累进费率和边际费率。Blend:任何其他含有SOP的钾产品,其产生的毛利高于其所含SOP。案例A.2:如果公司向非关联第三方开具发票的销售总额等于或超过公司在纳税期间开具发票的销售总额的50%,并且(a)该等销售是向少于3个不同的客户进行的,或者(b)任何单一客户占该等销售的70%以上,则应纳税所得额确定如下:如果,:对应于公司发票i上标识的产品的公吨(MT),还包括与以下相关的数量:(a)借方票据,及(b)与上述发票i有关并已于有关收入期间发出的信贷票据。:对应于(a)向非关联方和间接关联方的销售价格与(b)向非关联方的销售价格两者中的较高者。page:155/185销售量i暂定价格非关联方销售价格非关联方价值非关联方销售数量a非关联方和间接关联销售价格:∑(非关联方价值)∑(非关联方销售数量):表示公司、CODELCO、私人股东以及与上述相关的所有各方在收入期间向非关联第三方开具的税后净额,包括在相应收入期间开具的(a)借方票据和(b)与发票相关的贷方票据。:表示公司、CODELCO、私人股东以及与上述相关的所有各方在纳税期内向所有非关联第三方开具发票的销量(公吨(MT),还包括与以下相关的销量:(a)借方票据,以及(b)与在相应的收入期间开具的发票相关的贷方备忘。:∑(非关联、间接关联值)∑(非关联、间接关联量)证书123456865496检查有效性http://www.fojas。注册文件第166号,日期为2025年9月16日,档案编号5092-2025,第74页第45页。37附录6 –收入计算方法租金重新计算= ∑(销售量i ×最终利率×最终价格)− ∑(销售量i ×暂定利率×暂定价格)转换重新计算= ∑(Max {(转换量×转换价格×转换支付率)-已付收入i;0 }):这对应于公司、CODELCO、私人股东、包括上述所有关联方、所有非关联第三方和所有间接关联方在收入期间开具发票的税额净额,其中包含(a)借方票据,及(b)与有关课税期内开具的发票有关的贷记票据。:这对应于公司、CODELCO、私人股东,包括与上述所有相关方、所有非关联第三方和所有间接相关方开具的以公吨为单位的销售数量,并进一步包括与以下相关的数量:(a)借方票据,以及(b)与在相应收入期间开具的发票相关的贷方票据。非关联及间接关联价值非关联及间接关联销量费:对应暂定价格附件5中的费率。鉴于这种情况,公司应在下一期间就用于确定已付租金的暂定价格与根据第七节所述机制任命的独立专家确定的价格之间产生的任何正差异重新计算、结算和支付租金。租赁协议第三(g)节(如适用)应确定相应季度和后续季度的支付价格计算价格的价格、程序和/或替代公式(如有必要)。哪里, 最终利率:对应最终价格产生的有效利率。最终价格:这里对应的是(a)暂定价格和(b)专家价格中的较高者。专家价格:对应适用时通过质疑程序确定的价格。页码:156/185证书编号123456865496验证有效性,网址:http://www.fojas.cl其中,转换量转换价格净转换价值:对应于转换和销售的产品数量,基于公司的发票,由CODELCO、私人股东和除公司之外的所有与上述相关的各方在MT.:∑(净转换价值)∑(转换量):对应于转换产品向非关联第三方的发票税前价值,包括(a)借方票据,以及(b)与此类发票相关的贷方备忘,由CODELCO在收入期间签发,民营股东,以及除公司以外的前述所有关联方。注册文件第166号,日期为2025年9月16日,档案编号5092-2025,第74页第46页。38附录6 –收入计算方法混调收入=混调量×(混调价格×混调速率-SOP价格× SOP速率)收入= ∑(销量i ×速率×价格)+转换调整+混调收入转换率:指附件5中规定的费率。已付租金i:对应公司发票上的租金支付给CORFO的美元金额i.混合收入:含硫酸钾混合物的收入(SOP):其中,混合量:对应公司、CODELCO和私人股东在收入期间为混合而发送的SOP数量,单位为公吨。Blend价格:SOP价格× 1.13 SOP价格:这对应于公司、CODELCO、私人股东以及与上述相关的所有各方向所有非关联第三方开具的税前SOP价格,包括(a)借方票据,以及(b)与在收入期间开具的发票相关的贷方票据。混合率:对应于SOP的累进率和边际率。SOP费率:指SOP的累进费率和边际费率。Blend:任何其他含有SOP的钾产品,其产生的毛利高于其所含SOP。案例B:对于公司向非关联第三方开具发票的销售金额低于公司该纳税期间销售总额的50%的情况,应酌情适用以下案例案例B.1:如果公司关联方CODELCO和私人股东向非关联第三方开具发票的销售金额等于或超过该关联方销售总额的50%且(a)向至少3个不同客户进行且(b)均不占该等销售金额的70%以上,则收入应计算为:page:157/185其中,:对应于公司发票i上标识的产品的MT,还包括与以下相关的数量:(a)借方票据,以及(b)在相应的收入期内已签发的与上述发票i相关的贷方票据。证书123456865496验证有效性http://www.fojas。:对应(a)非关联、间接关联销售价格与(b)非关联销售价格两者中的较高者。:∑(非关联值)∑(非关联销量):对应公司、CODELCO、私人股东、所有关联方开具的税项净值,销量i价格非关联方销售价格非关联值登记文件第166号,日期为2025年9月16日,文件编号5092-2025,第47页,共74页。39附录6 –收入计算方法转换重新计算= Max {(转换量×转换价格×转换付款率)-已付收入i;0 }混合收入=混合量×(混合价格×混合率-SOP价格× SOP率)在纳税期间向不相关的第三方提供的与销售量无关的和间接相关的价值,包括(a)借方票据,以及(b)与在相应纳税期间开具的发票相关的贷方票据。:这对应于公司、CODELCO、私人股东以及与上述相关的所有各方在收入期间向所有非关联第三方开具发票的销量公吨,还包括与以下相关的销量:(a)借方票据,以及(b)已在相应收入期间开具的与此类发票相关的贷方票据。:∑(非关联及间接关联价值)∑(非关联及间接关联销售数量):这对应于公司、CODELCO、私人股东、包括上述所有关联方、所有非关联第三方、所有间接关联方在收入期间开具发票的税后净额,包括(a)借方票据, 及(b)与有关课税期内开具的发票有关的贷记票据。:这对应于公司、CODELCO、私人股东,包括与上述相关的所有各方、所有非关联第三方和所有间接关联方,在各自的收入期间内以公吨为单位开具发票的销售量,还包括与以下相关的数量:(a)借方票据,以及(b)在各自的收入期间内已开具的与此类发票相关的贷方票据。非关联及间接关联销售量率:对应附件5中的费率。其中,转换量:对应产品转换销售的数量,以公司发票i为基础,由私人股东CODELCO及与前述相关的所有各方在MT.向所有非关联第三方开具发票。转换价格:∑(转换净值)页:158/185证号123456865496在http://www.fojas.cl查询有效性净转换金额转换率收入i ∑(转换量):对应于转换产品向非关联第三方开具的发票的税后净值,包括(a)借方票据,以及(b)与所述发票相关的贷方票据,在纳税期间开具。:对应附件5规定的费率。:对应公司发票收入支付给CORFO的美元金额i.混调收入:含硫酸钾混调收入(SOP):非关联和间接关联销售价格


 
注册文件第166号,日期为2025年9月16日,档案编号5092-2025,第74页第48页。40附录6 –收入计算方法暂定收入= ∑(销量i ×率×暂定价格)+转换调整+混合收入其中,混合量:对应于公司、CODELCO和私人股东在收入期间为混合料发运的SOP数量,单位为公吨。Blend价格:SOP价格× 1.13 SOP价格:这对应于公司、CODELCO、私人股东以及与上述相关的所有各方向所有无关联第三方开具的税前SOP价格,其中包含(a)借方票据,以及(b)与在收入期间开具的发票相关的贷方票据。混合率:对应于SOP的累进率和边际率。SOP费率:指SOP的累进费率和边际费率。Blend:任何其他含有SOP的钾产品,其产生的利润高于其所含SOP。案例B.2:如果公司关联方CODELCO和私人股东向非关联第三方开具的销售发票(a)低于该关联方销售总额的50%,或(b)向少于3个不同的客户进行,或(c)任何单一客户占该等销售的70%以上,则应按以下方式确定收入:其中,:对应于公司发票i上标识的产品的公吨(MT),还包括与以下相关的数量:(a)借方票据,及(b)与上述发票i有关并已于有关收入期间发出的信贷票据。:对应于(a)向非关联方和间接关联方的销售价格与(b)向非关联方的销售价格两者中的较高者。page:159/185:∑(非关联值)∑(非关联销售量):对应于公司、CODELCO、私人股东以及与上述相关的所有各方在纳税期间向非关联第三方开具的销售发票净值,包括(a)借方票据,以及(b)与在相应纳税期间开具的发票相关的贷方票据。:这对应于公司、CODELCO、私人股东以及与上述相关的所有各方在收入期间向所有非关联第三方开具的以公吨为单位的销售数量,还包括与以下相关的数量:(a)借方票据,以及(b)与在相应收入期间开具的此类发票相关的贷方备忘。:∑(非关联及间接关联值)∑(非关联及间接关联量)证书123456865496验证有效性http://www.fojas。:指公司、CODELCO、私人股东包括上述实体的所有关联方、所有非关联第三方、销售数量i暂定价格非关联方销售价格非关联价值非关联销售数量非关联和间接关联销售价格非关联和间接关联价值登记的净额(税后),日期为2025年9月16日,文件编号5092-2025,第74页,第49页。41附录6 –收入计算方法所得税重新计算= ∑(销售量i ×最终税率×最终价格)− ∑(销售量i ×暂定税率×暂定价格)转换重新计算= Max {(转换量×转换价格×转换支付率)-已付收入i;0 }所有间接关联方,在纳税期间,包括(a)借方票据,以及(b)与在相应纳税期间开具的发票相关的贷方票据。:这对应于公司、CODELCO和私人股东(包括上述所有关联方、所有非关联第三方和所有间接关联方)在各自收入期间开具的以公吨为单位的销售量,还包括与以下相关的数量:(a)借方票据,以及(b)在各自收入期间已开具的与此类发票相关的贷方票据。非关联及间接关联销售容量率:对应暂定价格附件5中的费率。鉴于这种情况,公司应在以下期间就用于确定已付租金的暂定价格与根据第七节所述机制任命的独立专家确定的价格之间产生的任何正差异重新计算、结算和支付租金。租赁协议第三(g)节(如适用)应确定计算相应季度和后续季度的支付价格的价格、程序和/或替代公式(如有必要)。其中,最终利率:对应最终价格产生的有效利率。最终价格:这对应于(a)暂定价格和(b)专家价格中的较高者。专家价格:这对应通过质疑程序确定的价格, 在适用的情况下。其中,PAG:160/185证书编号123456865496在http://www.fojas.cl验证有效性换算量换算价净换算值换算率:对应于转换销售的产品数量,基于公司的发票,由CODELCO、私人股东以及除公司之外的所有与前述相关的各方向MT.的所有非关联第三方开具发票:∑(净换算值)∑(换算量):对应于转换后的产品向非关联第三方开具的发票的税前价值,包括(a)借方票据,以及(b)与此类发票相关的贷记备忘,营收期由民营股东CODELCO及除公司以外的前述所有关联方发行。:对应附件5规定的费率。注册文件第166号,日期为2025年9月16日,档案编号5092-2025,第74页第50页。42附录6 –收入计算方法Blend revenue = blend volume ×(blend price × blend rate-SOP price × SOP rate)Rent paid i:对应于公司发票上的租金支付给CORFO的美元金额i. Blended revenue:revenue from blends from containing potassium sulfate(SOP)(SOP):where,blend volume:对应于公司、CODELCO和私人股东在收入期间发送给blending的SOP数量,单位为公吨。混合价格:SOP价格× 1.13 SOP价格:这对应于公司、CODELCO、私人股东以及与上述相关的所有各方向所有非关联第三方开具的税前SOP价格,其中包含(a)借方票据,以及(b)与在收入期间开具的发票相关的贷方票据。混合率:对应SOP的累进率和边际率。SOP费率:指SOP的累进费率和边际费率。Blend:任何其他含有SOP的钾产品,其产生的毛利高于其所含SOP。案例C:如果公司、CODELCO、私人股东以及上述所有关联方的销售在付款期内不允许应用上述机制,并且仅在无法应用上述A和B案例的情况下,根据第七节所述机制任命的独立专家(如适用)。如有必要,租赁协议的第三(g)条应设定相应季度和随后季度的支付价格的价格、程序和/或计算价格的替代公式。5)固定租金:公司每季度应支付固定租金3750美元。page:161/185证书123456865496验证有效性http://www.fojas。注册文件第166号,日期为2025年9月16日,档案编号5092-2025,第74页第51页。1附录7 – CORFO获取信息附录7 CORFO获取信息将随结算或付款报表(如适用)一起提供或提供以下信息:页码:162/185证书编号123456865496在http://www.fojas.cl上验证有效性(i)有关对公司经营的物业进行的提取和/或生产操作的信息:a.关于卤水提取和回注的详细信息:i.每季度提交以下正式填写的表格:•表4,每月MOP和SOP提取表。•表5,回注表。二。每半年提交一次以下信息:•附抽取量分析的报告,其中必须包括以下内容:o当前环境监测点的每月抽取量和公司例行执行的用于运营目的的流量测量,以及它们的物理和化学特性(密度、% Li、% K、% Na、% SO4、% mg)。o前一段所指流量计记录的证明文件。o样品的化学分析证书副本。o显示每个抽井的空间位置的地理文件(KMZ)。o直接回注盐水月容量及其物理和化学特性(密度、% Li、% K、% Na、% SO4、% MG)的信息(如适用)。如果没有直接回注, 必须明确说明这一点。o间接回注的月量及其物理和化学特性。o直接和间接回注系统的流量计规格的证明文件。o回注卤水的化学分析证书副本。o该期间的蒸发值。o KMZ,其中包含关于卤水和间接回注点或区域的信息。b.按季度交货的生产信息:i.从该Pertenencias的卤水生产的所有产品的技术规格和代码。ii。截至本日,下文详述的盐库存库存信息以及相应的KMZ文件,其中包含指示这些盐的库存区域周长的物理位置数据:•废弃盐;• Halites;• Sylvite,扣除运往Atacama盐沼氯化钾工厂的公吨;•光卤酸钾,不包括运往Atacama盐沼氯化钾工厂的公吨;•水铝土矿;•光卤石锂和其他盐(Kainites和Schoenites)。•钾和硫酸锂。三。该期间生产的上述盐的月度产量报告,包括其化学特性。四。按类型分列的每种最终产品的月度产量,每种工厂(Li ↓ CO 丨BG和TG,LiOH BG和TG,MOP,SOP,ABO,及其他)。v.表6和表7。vi。获得最终产品和中间盐的采样。


 
注册文件第166号,日期为2025年9月16日,档案编号5092-2025,第74页第52页。2附录7 – CORFO获取信息c.质量平衡(冶金平衡)和效率统计数据每半年和每年进行一次,根据表8合并为单一文件。d.为履行有关以下领域的合同义务而获取相关生产研究和分析:i.地质/水文地质(概念模型、数学-数值水平衡及其支持数据),必须与水务总局和环境监管局共享;ii。储备研究;三。勘探分析和信息;四。化学研究和/或锂和钾回收/效率过程的分析和/或研究;v.直接和间接回注研究和/或卤水浓度研究;和vi。任何与有关财产的合同义务的目的和阿塔卡马盐滩的可持续性相关的未来研究。缔约方应确保履行本款规定的义务不涉及披露受缔约方或第三方拥有的知识产权和/或工业产权约束的信息,即商业秘密、发明、专有技术、模型、样品、设计、技术或操作信息以及所有图纸、示意图和图表,前提是此类材料包含有关某一工艺或其部分的详细和具体信息。(ii)有关环境合规的信息:页码:163/185 a.与公司在物业上的运营相关的环境评估程序相关的所有记录以及因此而发布的RCA。这些记录包括与进入环境影响评估系统的初步磋商、环境影响陈述和环境影响研究有关的记录,以及公司提交的特定行业环境许可。b。RCA或部门授权要求的环境监测和后续活动的结果,包括那些虽然不公开,但仅提交给环境主管部门的报告——无论是SMA、水务总局、国家地质和矿务局,还是必须向其提供环境信息的任何其他实体。c。进行的所有环境监测和后续活动的结果,以及为分析阿塔卡马盐沼环境成分行为的合同义务目的而编制的概念和数值模型及其各自的证明文件和相关研究,前提是此类信息不构成任何环境或部门文书中确立的义务。同样,它可以为合同义务的目的访问所有相关信息,这些信息虽然不构成项目环境评估特定文件的一部分,也不属于环境资格决议中承诺的监测活动,但源于公司研究阿塔卡马盐沼状况的最佳做法。d.与未来与阿塔卡梅尼奥人民委员会和/或与社区相关的任何实体的协议所产生的环境监测和后续系统可能产生的合同义务目的相关的报告。证书123456865496验证有效性http://www.fojas。注册文件第166号,日期为2025年9月16日,档案编号5092-2025,第74页第53页。农业主管区域部长办公室,根据RCA3附件7 – CORFO获取信息(iii)产品营销信息和收入计算:页码:164/185证书编号123456865496在http://www.fojas.cl验证有效性a.确定销售价格和审查季度付款情况所需的文件:i.公司每个季度以其原始货币计算的销售分类账副本和适应支付特许权使用费计算要求的销售附属分类账。ii。公司销售发票复印件。三。与该期间发票适当关联的贷方和借方票据副本。四。各关联方对最终客户的销售分类账和/或销售辅助分类账。v与公司相关的公司对最终客户的销售发票副本,包括贷方票据和借方票据,不得针对客户名称进行编辑, 并采取必要的防范措施,对所提供的信息进行保密。六、与非关联第三方的销售合同及其修订或采购订单的副本。七。所有国内销售的运输舱单复印件。八、Salar de Atacama.ix出口重量控制系统的产品出货报告。公司产品全部销售化学分析证书。x。非源于阿塔卡马盐滩的产品销售,由总经理签署的凭证,并附有支持交易的采购发票和库存记录。xi。表1:公司销售额,表2:对终端客户销售额。xii。与其他期间的发票相关联的贷方票据将不在收入计算中考虑。十三。氯化钾和硫酸钾(SOP)送配数量报告。b.出口单证:i.向国家海关总署提交的各季度单次出境单证副本。如果这些仍在处理中,则与相应货物相关的单一出口文件。ii。价值变动报告(IVV)的副本。iii。出口表3号c.装运提单。央行签发的付款当天观察到的汇率证明。d.更新的产品溯源报告:包含公司当前和过去销售情况的数据库,识别每个产品的溯源码,以及该产品在关联方之间的移动,直至其销售给最终客户或不相关的第三方。e.协议和其他商业安排:公司必须提供与第三方的当前商业协议的详细信息和副本,具体说明此类协议的性质——例如补偿协议、产品回购、maquila安排、转换、寄售、营销,和承购协议等——以及所涉及的库存水平,如果与协议的性质相关,这些协议是根据这些协议执行的。据了解,上述规定应适用于原产于领土并由公司或其任何关联公司销售的产品,如先前定义。(iv)获取发送给其他机构的信息:a.公司定期向国家地质和矿务局、SMA、水务总局、国家林业公司提交的报告及其各自的附件、表格和报告的副本,以及日期为2025年9月16日的第166号注册文件,文件编号为5092-2025,第54页,共74页。4附录7 – CORFO获得有效信息。特别是,公司必须提供水文地质报告、物理化学和生物监测数据、调查、分析、研究、审计、合规目标和截止日期的副本,以及与其项目环境监测相关的任何其他信息,以及数据来源或来源的相应数字备份。b.与CCHEN授权和控制程序相关的报告和文件,以及确保对合同监督信息进行适当交叉检查所需的所有数据。c.以及向任何其他监管机构提供的有关生产和环境因素的任何信息。(v)关于保护采矿资产的报告:公司应向CORFO提交一份年度报告,详细说明与财产、Rigo财产、Sal和Salares采矿财产以及Protection Ring 2和Protection Ring 10中存在的采矿特许权有关的行政、管理、保管、保护、保护、保护、维护和持续监测的所有行动,无论这些行动是否由公司拥有或其持有任何采矿所有权。此类报告还必须包含有关地表土地状况、任何不遵守规定、对资源的任何负面影响以及可能发现的任何其他相关情况的详细信息。尽管有上述规定,公司有义务立即将影响或可能影响上述采矿资产的完整性和持续存在的任何情况或事件,以及公司就为此目的进行的抗辩而采取的任何行动通知CORFO。page:165/185证书123456865496验证有效性http://www.fojas。表号。季度:03销售信息年份:2023(厂房+周期+溯源码DUS单证类型号文件文件日期编号。原始发票原始发票日期客户A:有/无关联?A:Yes/no Is it a conversion?工厂合同产品代码规格代码商业产品销售量销售单位销售金额销售货币y备注1100国内发票国内发票524252432018年4月30日2018年4月30日524252432018年4月30日SAN FELIPE,Inc. SAN FELIPE, Inc. No no no no no p6 p6 mgcl2 mgcl2 bischofite bischofite bischofite bischofite bischofite bischofite # # # # # # # # # # # #吨# # # # # # # # CLP CLP 1 R egistered D ocum ent N o. 166 dated Septem ber 16,2025,file N o. 5092-2025,p. 55 of 74。页次:166/185证号123456865496验证有效性在http://ww w.fojas.cl


 
(厂房+周期+批次)溯源原始文档。没有。分支机构名称文件类型文件文件文件日期客户名称客户A:是/否相关合同产品商业产品销售量销售单位销售金额销售货币Exchan ge率备注12331233 SQM-IB SQM-IB发票发票VC18-1745 VC18-1641 2018年4月24日2018年4月19日进口EX否否KCL KCL MOP-G MOP-G 27,10028,400吨7,452.507,526.00欧元0.81 1910.8075 R egistered D ocum ent N o. 166 dated Septem ber 16,2025,file N o. 5092-2025,p. 56 of 74。page:167/185证书123456865496验证有效性http://ww w.fojas。表2季度:03与非关联客户相关的销售信息年份:2023注册的第166号文件,日期为2025年9月16日,文件编号5092-2025,第74页第57页。表3季度:03出口信息年份:2,023文件编号DUS目的地国编号单证金额原货币销售条款销售代码原产地提单B/L离岸价离岸价金额海运金额合同品码备注82294147韩国19,5262,318,400 CFR ANGAMOOS PORT HLCUSCL1804047442,313,600.004,800.00 Li2CO3丨BG丨82294155韩国19,527644,000 CFR ANGAMOOS PORT HLCUSCL180404883 642,400.001,600.00 Li ↓ CO丨TG表4季度:03月度提取信息MOP和SOP年份:2023期间平均卤水浓度P6 =撒拉尔工厂年月MOP/SOP提取面积期间提取卤水总量卤水提取量(m φ)平均密度(tons/m φ)Li % K % MG % Cl % Na % B % CA % SO丨% P6 202304 MOP 45572661.22 50.1762,348表第5季度:03再注入信息年份:2023页:168/185证书编号123456865496验证有效性http://www.fojas.clP6 =撒拉尔工厂年月(直接/间接)回注系统期间回注卤水总量再注入卤水(m φ)平均密度(t/m φ)期间再注入卤水平均浓度Li % K % MG % Cl % Na % B % Ca % SO4 % P6 202304间接MOP 362,391.3641,2140.15 12,716第09/16/2025号第166号登记文件,档案编号5092-2025,第74页第58页。表6季度:03期间销售信息年份:2023年期间平均浓度P6 =盐碱地植物年月干基质中间盐(TMS)总采收量(至小数点后3位)数量(TMS)Li % K % P6 2.02 304处置费308,967,0000.02 70.381 P6 2,02304 Halite 131,108.59 40.0151,341 P6 2,02304 Silvinite 492,869.40 60.04615,972 P6 2,02304 Carnalitak 226,757,0001,4658,967 P6 2,0 2304 Bischofite 106,071,0000.3900.500 P6,0 2304 CarnalitaLi--P6 2,02304硫酸盐类55,00.383 p6 2,0 2305 Halite 217,435.88 70.0261,840 p6 2,0 2305 Silvinite 641,979.74 30.04 814,317 p6 2,0 2305 Carnalitak 63,737,0001,3167,355 p6 2,0 2305 bischofite 70,199,0000.92 10.33 3 p6 2,0 2305 CarnalitaLi--p6 2,0 2305硫酸盐145,0000.59412,448 p6 2,0 2306废弃销售333,702,0000.01 80.312 p6 2,0 2306 Halite 159,853.96 00.0251,828 p6 2,0 2306 Silvinite 543,547.0400.04 415,457 p6 2,0 2303信息制作年份:2023页:169/185证书123456865496查阅http://www.fojas有效性。P1 = S卡门碳酸盐厂P2 = S卡门氢氧化物厂P6 =盐碱厂Li2CO3BG Li2CO3TG LiOHBG LiOHTG KCL SOP ABO产品代码合同年月生产总量(到小数点后3位)数量(吨)% Li ↓ CO丨% LiOH % KCL纯度(产品百分比)P1 Li ↓ CO 丨BG 2023041,418.5 999.200 P1 Li ↓ CO丨TG2023042032.89 99.000 P2 LiOH丨BG 丨BG 202304145,01356,500 P2 LiOH TG202304293,04155,000 P6 KCL202304141,245.93 493,970 P6 SOP 202304 0-P6 FEB日期为2025年9月16日,档案编号5092-2025,第74页第59页。页:170/185证号123456865496验证有效性http://www.fojas.cl


 
注册文件第166号,日期为2025年9月16日,档案编号5092-2025,第74页第60页。附录8 –新费用–附加费用–效率费用–补充费用附录8新费用-附加费用-效率费用-补充费用合计MT LCE合计MT LME说明988,800185,7671)新股份600,000112,7232)额外分期付款271,80051,0633)效率费用300,00056,3614)补充费用2,160,600405,914合计注1:上表所示费用的条件、条款、限制和终止情况载于项目协议(锂特别规则)条款十一。注2:上表1)、2)、3)项所列费用自起始日起至2030年12月31日止有效。第4项)规定的费率自2025年9月16日签署的合同修订、合并和更新版本生效之日起生效,有效期至2030年12月31日。page:171/185证书123456865496验证有效性http://www.fojas。注册文件第166号,日期为2025年9月16日,档案编号5092-2025,第74页第61页。附录9-最低营运能力用于保证最低付款附件9保证最低付款的最低作业能力(理论产能的60%)新装置原始总吨吨吨吨吨吨生产年份当前厂房扩建1总计当前厂房最低2018年39,600-39,600-39,6002019年39,600-39,6002020年39,600-39,600 2021年39,60015,48055,080-55,0802022年39,60030,00069,600-69,600202339,60030,00069,600-69,600202410,20030,00040,20029,40069,600202510,20030,00040,20029,40069,600202610,20030,00040,20029,40069,60020279,90030,00039,90029,70069,60020289,90030,00030,00030,00030,39,90029,70069,6002,0299,90030,00039,90029,70069,6002,0309,90030,00039,90029,70069,600307,800285,480593,280207,000800,280注1:扩建1的最低运营能力应在其商业调试时适用,无论是整体或通过模块。注2:本附件应在自修订生效之日起的最长2年内,由各方更新和商定,于2025年9月16日签署的合同的合并和更新文本,以反映允许确定保证付款的最低运营能力的生产能力。如果在上述更新后的年份中,由于实施了新的扩建和/或转换工厂,各方必须再次更新并就最低保证付款的最低运营能力表达成一致。页次:172/185证号123456865496在http://www.fojas.cl注册文件第166号验证有效性,日期为2025年9月16日,档案编号5092-2025,第74页第62页。附录10 –当量附件10等效为计算所销售的产品与分配为原始配额、额外配额、新配额、补充配额和效率配额的锂金属之间的当量,应考虑以下数值和表述:a)对于每售出一单位碳酸锂,无论其质量和/或含量如何,均应核算0.18 787单位LME。b)对于每售出一单位无水氢氧化锂,无论其质量和/或含量如何,均应核算0.28 983单位LME。c)对于每售出一单位单水氢氧化锂,无论其质量和/或含量如何,LME的0.16541单位将被记入贷方。d)对于每售出一单位的一水硫酸锂,将记入0.09 221单位的LME,这假设一水硫酸锂的最低保证出口品位为85%,因为硫酸锂是一种中间产品,随后被转化为氢氧化锂进行最终销售。e)对于每售出一单位的无水硫酸锂,将记录0.10732单位的LME,这假设无水硫酸锂的最低保证出口品位为85%,鉴于硫酸锂是一种中间产品,随后会转化为氢氧化锂进行最终销售。如果公司决定生产和销售氯化锂,则考虑以下数字和表述:page:173/185 f)对于每售出一单位氯化锂,将记录0.04 9000单位LME,这假设氯化锂的最低保证出口等级为30%,因为氯化锂是一种中间产品,随后被转化为碳酸锂或氢氧化锂进行最终销售。如果公司决定将硫酸锂转化为锂产品,则适用以下换算系数:g)1mt硫酸锂= 0.43684mt碳酸锂,假设硫酸锂的最低保证品位为85%。h)1mt硫酸锂= 0.49618mt氢氧化锂, 假设硫酸锂的最低保证品位为85%。证书123456865496验证有效性http://www.fojas。注册文件第166号,日期为2025年9月16日,档案编号5092-2025,第74页第63页。附录10 –当量如果公司决定将碳酸锂转化为氢氧化锂,则适用以下换算系数:i)1公吨碳酸锂= 1公吨氢氧化锂。j)如果公司决定将其他锂产品转化为锂产品或其他锂产品,各方应为计算收入的目的就各自的换算系数、当量以及其他相关因素达成一致。若未能达成一致意见,则转换系数应在适用范围内由独立专家和/或审计师根据商定程序的规定确定。k)若公司决定将锂产品转换为其他锂产品,则各方应为计算租金的目的,就各自的转换系数、等价以及其他相关因素达成一致。若未达成一致意见,则转换系数应由独立专家和/或审计师根据商定程序的规定,在适用范围内确定。l)如果公司决定将氯化钾转换为硝酸钾以外的其他钾锂产品和混合(定义见附件6)以外的其他产品,则各方应为计算租金的目的就各自的转换系数、当量和其他相关因素达成一致。如果未能达成一致意见,转换系数应由独立专家和/或审计员根据商定程序的规定酌情确定。page:174/185证号123456865496验证有效性http://www.fojas.cl


 
注册文件第166号,日期为2025年9月16日,档案编号5092-2025,第74页第64页。附录11-优惠锂价的理论年产能附件11优惠锂价的理论年产能碳酸锂和氢氧化锂的理论年产能应根据上述每种产品生产的年总装机容量确定,并必须反映合同期限内发生的任何生产扩张。最优惠价格义务适用于所述理论生产,最初适用于所述产能的15%,每年增加2.5%,直至达到最高25%。每种产品的总量、每种产品受此义务约束的数量、年化增长趋势、到2030年可能承诺给CORFO选定为专门生产者的公司的数量,以及其他要素和/或补充信息,必须包括并反映在一份实施议定书中,各方必须商定并通过相互同意起草该议定书,以便实施专门生产者优惠价格条款。page:175/185证书123456865496验证有效性http://www.fojas。注册文件第166号,日期为2025年9月16日,档案编号5092-2025,第74页第65页。附录12 –研发支出总额附件12研发贡献总额特定研发用途的研发贡献总额90% 10%年度总额US $ 20189,694,0801,077,120110,771,200(1)20199,694,0801,077,120110,771,20020209,694,0801,077,120110,771,200202113,483,5841,498,17614,981,760202217,038,0801,893,12018,931,200202317,038,0801,893,120118,931,200202417,038,0801,893,120118,931,200202617,038,0801,893,120118,931,200202以合同期限的比例月数为准。注册文件第166号,日期为2025年9月16日,档案编号5092-2025,第74页第66页。基数贡献=年度总金额–合作机构年度价值每个社区年度贡献i =固定e i +会员值i +距离值i附件13向ATACAM ñ o土著组织捐款的年度贡献的分配公式,每个案例的分配公式如下:1。用于投资和/或发展项目的Atacame ñ o土著社区基金捐款分配公式(“基金一”):用于促进Salar de Atacama流域Atacame ñ o土著社区可持续发展的投资和/或发展项目的捐款,如果自主自愿决定接收,则对应于项目合同第16条第3款(“年度总金额”)中所示金额的总和。基金一的年度总额减去第16.3.5节规定的分配给合作实体的资金数额(“合作实体的年度数额”),应称为“基础缴款”。只有属于Salar de Atacama盆地Atacame ñ o或Lickanantay民族的土著社区,这些社区是在2023年11月9日(CORFO 2023年第1361号豁免决议日期)之前根据第19,253号法律的规定建立和登记的,该决议启动了土著协商“Salar de Atacama捐款的分配”,根据国际公认的用于这些目的的最佳做法(以下简称“Atacame ñ o土着社区基金One 2025 – 2030”),经正式注册并能够证明其法律地位和截至同日在CONADI的现有理事机构,其章程包括确保适当使用资源的治理机制。page:177/185基金一的Atacame ñ o土着社区基金一2025-2030受益人之间每年的基金缴款分配采用以下公式进行:固定i = 50% ×基金缴款N VMembers i = 40% x基金缴款x Members i总会员证书123456865496检查有效性http://www.fojas。2025年9月16日第166号注册文件,第5092-2025号文件, 第74页,第67页。page:178/185证书编号123456865496 http://www.fojas.cl total members = ∑ n member ii = 1 vdistance i = 10% × base contribution × community i distance factor ∑ = 1 community distance factor community i distance factor = maximum distance + minimum distance – community i distance where:i = index used to refer to a specific atacame ñ o indigenous community in the Fondo Uno 2025-2030 program。Community i = Atacame ñ o土着社区基金一2025-2030年,其贡献计算。在分配分配时验证有效性标准公式说明固定i =社区i的固定金额。在销售前一年在CONADI正式注册的Fund One 2025 – 2030的Atacame ñ o土著社区之间每年平均分配。50%基数贡献=年度总金额–协作机构年度价值。N = Fund One 2025-2030中Atacame ñ o土著社区的数量,在出售前一年在CONADI正式注册。VMembers i =社区i的可变金额。社区i的成员数量相对于所有土著社区成员总数的分布。仅考虑在销售前一年在CONADI正式注册的Fund One 2025-2030的Atacame ñ o土著社区。成员人数是根据CONADI截至该基金年度捐款当年4月的信息确定的。40%基数贡献=年度总金额–协作机构年度价值。成员i =社区成员数i.成员总数=所有Atacame ñ o土著社区基金一2025-2030年成员数的总和,该基金在出售前一年在CONADI正式注册。Vdistance i = variable amount for community i. distribution relatively to the distance of community i,which contribution is calculated based on a factor determined by the distance in km from the farest community(maximum distance)to the nearest community(maximum distance)to the location east:562,0 11 North:7,393,704 accord社区i距离系数:这是最大距离(km)加上最小距离(km),减去社区i到办公室的距离(km)


 
注册文件第166号,日期为2025年9月16日,档案编号5092-2025,第74页第68页。WGS84(目前公司KCL管理办公室(MOP)在阿塔卡马盐滩的位置)。以公里为单位的距离是根据CONADI关于社区位置的官方位置数据确定的。它只考虑2025-2030基金的Atacame ñ o土著社区,这些社区在销售前一年在CONADI正式注册。公司KCL(MOP)分部。Factor社区距离:所有Atacame ñ o土著社区Fund One 2025-2030的距离因素总和,在销售前一年在CONADI正式注册。2.对Atacame ñ o土著社区发展项目基金(“基金二”)的分配公式捐款。为自主自愿决定接收的Salar de Atacama盆地Atacame ñ o土著社区生活和人类发展计划所载倡议、项目和/或方案的制定和实施所作的贡献,对应于项目合同第16条第16.4.1节所示的数额。只有属于Salar de Atacama盆地Atacame ñ o或Lickanantay民族的土著社区,在召集日期(2024年10月4日)之前根据第19,253号法律的规定在CONADI建立和登记,并且其理事机构在土著协商对话阶段结束日期(2025年8月8日)仍然有效(以下简称“Atacame ñ o土著社区基金二2025 – 2030”)。基金二的分配将采用以下公式进行:(a)基于与业务的接近程度和成员人数的多项式:page:179/185(i)60%的Atacame ñ o土著社区基金二2025-2030位于距离地点不到60公里的东部:56 2.011北部:7.39 3.704根据UTM WGS84坐标(公司KCL管理办公室(MOP)在Salar de Atacama的当前位置)并对应于Peine、Socaire、Camar、Talabre和Toconao的Atacame ñ o土著社区。(ii)Fondo DOS 2025-2030计划下位于以下坐标60公里以上的Atacame ñ o土著社区的40%:东部:56 2.011,北部:7.39 3.704(UTM WGS84坐标)(公司KCL管理办公室(MOP)目前位于Salar de Atacama的位置)。证书123456865496验证有效性http://www.fojas。注册文件第166号,日期为2025年9月16日,档案编号5092-2025,第74页第69页。页码:180/185证书编号123456865496 http://www.fojas.cl(b)然后,在(a)小节(i)和(ii)中所示的Atacame ñ o土著社区基金二2025 – 2030的每一组内,将根据两个标准分配资源:-基金的85%将按每个社区的成员人数按比例分配。-剩余的15%将由同一群体内的社区平均分配。1)公式根据UTM WGS84坐标(公司KCL Management Office(MOP)在Salar de Atacama的当前位置)对位于距离位置不到60公里的Atacame ñ o土著社区基金二2025-2030的贡献表示:东:56 2.011北:7,393,704如下:每个社区的年度贡献i =固定i + VSocios i固定i = 15% ×年度总金额× 60% N1 VMembers i = 85% ×年度总金额× 60% × Members i总成员总数= ∑ N1 Members i i = 1其中:i =指数用于指距离该位置不到60公里的特定社区东:562,011北:7,393,704根据UTM坐标WGS84(公司KCL管理办公室(MOP)在Salar de Atacama的当前位置)。2)公式根据UTM WGS84坐标(公司KCL Management Office(MOP)在Salar de Atacama的当前位置)对位于60多公里的Atacame ñ o土著社区基金二2025-2030的贡献表示:东:56 2.011北:7.39 3.704如下:在每个社区年度贡献时检查有效性i =固定i + VSocios i固定i = 15% x年度总金额x40 % N2成员i = 85% ×年度总金额× 40% ×成员i总成员总数= ∑ N2成员i i = 1其中:i =用于指距离该地点60公里以上的特定社区的指数东:562,0 11北:7,393,704根据UTM坐标注册文件第166号,日期为2025年9月16日,文件编号5092-2025, 第70页,共74. http://www.fojas。Page:181/185 Certificate 123456865496 WGS84(current location of the Company’s KCL Management Office(MOP)in the Salar de Atacama)。验证有效性分配分配说明标准公式说明固定i =社区固定金额i。截至作出贡献的前一年的12月31日在CONADI正式注册的Fondo DOS 2025-2030的Atacame ñ o土著社区之间每年平均分配,与以下两组社区区分:(i)那些位于距离东部位置不到60公里的社区:56 2.011北:根据WGS84 UTM坐标(公司KCL管理办公室(MOP)在Salar de Atacama的当前位置)7,393,704;以及(ii)那些位于距离该位置超过60公里的社区。15%年度总金额= 900万美元,根据是否(i)小于60公里,或(ii)超过60公里的位置,根据UTM WGS84坐标(公司KCL管理办公室(MOP)在Salar de Atacama的当前位置),在每组土著社区之间分配:东部:562,0 11北部:7,393,704。N1 =根据UTM WGS84坐标(公司KCL(MOP)管理办公室目前位于Salar de Atacama),截至作出捐款的前一年12月31日在CONADI正式注册的、且距离东:56 2.011北:7,393,704地点不到60公里的DOS 2025-2030基金下的Atacame ñ o土著社区的数量。N2 = DOS 2025-2030基金中截至作出捐款的前一年12月31日在CONADI正式登记的Atacame ñ o土著社区的数量,且根据坐标UTM WGS84,位于距离东:56 2.011北:7.39 3.704公里以上的位置(该办公室登记的当前位置,日期为2025年9月16日的第166号文件,文件编号5092-2025,第74页第71页。KCL(MOP)分部的公司在Atacama的Salar)。Vpartners i变量Community i. = of amount每组内Community i成员数量的分布,相对于他们所属的同一组内Atacame ñ o土著社区基金DOS 2025-2030成员总数。区分以下两组社区:(i)位于距离位置不到60公里的区域:56 2.011 North:7.39 3.704根据UTM WGS84坐标(公司KCL管理办公室(MOP)在Salar de Atacama的当前位置);以及,(ii)位于距离上述位置60公里以上的区域。只有Atacame ñ o土着社区基金2 2025-2030年,截至作出捐款的前一年的12月31日在CONADI正式注册,才被考虑。成员人数根据CONADI截至计算本基金年度缴款当年4月的信息确定。85%年度总金额= 900万美元,根据距离所在地60公里以上或以下,由每组土著社区分成:东部:562,0 11北部:7,393,704根据UTM WGS84坐标(公司KCL管理办公室(MOP)目前位于Salar de Atacama的位置)。成员总数=每个群体内Atacame ñ o土著社区基金DOS 2025-2030成员人数的总和,这些成员截至捐款发生前一年的12月31日在CONADI正式登记。根据距离以下位置是否多于或少于60公里来划分区域:东部:56 2.011,北部:7.39 3.704,根据WGS84 UTM坐标(公司KCL管理处(MOP)当前位置位于、位于、位于、位于阿塔卡马)。page:182/185证号123456865496验证有效性http://www.fojas.cl3。分配公式:向Atacame ñ o土著协会的项目和/或倡议融资专属基金(“基金四”)捐款。


 
注册文件第166号,日期为2025年9月16日,档案编号5092-2025,第74页第72页。http://www.fojas。123456865496年度捐款=年度总额–年度技术支持机构对Salar de Atacama盆地Atacame ñ o土著协会的项目和/或倡议的捐款,这些项目和/或倡议与其最初的创建目的有关,根据其章程的规定,并自主和自愿决定接收,对应于项目合同第16条第16.6.1节所示金额的总和。由基金四组成的年度总金额,减去项目合同第16条第16.6.6节规定的分配给技术支持机构的资源金额,应称为“年度捐款”。只有属于Salar de Atacama盆地Atacame ñ o或Lickanantay民族的土著协会,在召集日期(2024年10月4日)之前根据第19,253号法律的规定与CONADI建立和登记,其董事会自土著协商对话阶段结束日期(2025年8月8日)起生效。它们的章程必须包括根据国际公认的这些目的的最佳做法确保适当使用资源的机制,并根据其创始目标保持定期和积极的运作(以下简称“Atacame ñ o土着协会”)。基金四的年度捐款的分配应采用以下公式:(a)40%将分配给持有用水使用权的Atacame ñ o土著灌溉协会。(b)60%将分配给其他Atacame ñ o土着协会,其目的不在(a)款所示。然后,在(a)和(b)中指出的每组Atacame ñ o土着灌溉者协会内,资金的分配将基于在CONADI注册的Atacame ñ o成员的数量。1)对持有用水权的Atacame ñ o土着灌溉者协会的贡献公式表述如下:page:183/185证书验证有效性每个协会的年度贡献i = VMembers i VMembers i =年度贡献x 40% x Members i Total Members Total Members = ∑ N1 Members i i = 1其中:i =用于指特定Atacame ñ o土着灌溉协会的指数。注册文件第166号,日期为2025年9月16日,档案编号5092-2025,第74页第73页。年度贡献=年度总金额–技术支持机构年度价值2)对具有(a)小节所示目的以外的Atacame ñ o土著协会的贡献公式表述如下:每个协会的年度贡献i = VSocios i VMembers i =年度贡献× 60% ×会员i会员总数会员总数= ∑ N2会员i i = 1其中:i =用于指具有(a)小节所述目的以外的协会的指数。页码:184/185123456865496 http://www.fojas.cl证号在分配标准下检查有效性标准公式描述VSocios i =可变数量的协会i。每个协会的成员数量i在每个集合内的分布,相对于他们所属的同一集合中的Atacame ñ o土著协会的成员总数。有两组Atacame ñ o土着人协会被区分为Atacame ñ o土着人协会:(a)持有用水权或从事灌溉的人,以及(b)组织结构与(a)项所示不同的人。仅考虑截至作出捐款的前一年12月31日在CONADI正式注册的Atacame ñ o土着协会。成员人数是根据CONADI截至计算年度贡献当年4月的信息确定的。对基金四的年度捐款=年度总金额–年度技术支持机构金额,除以每组Atacame ñ o土著协会,取决于他们是(a)拥有水权的灌溉者,还是(b)为(a)以外的目的而成立的协会。N1 =持有水权的Atacame ñ o土著协会Atacame ñ o灌溉者的数量。N2 = Atacame ñ o土著协会的数量,其成立目的与(a)中所示的不同。会员i =协会会员数i.会员总数=截至作出贡献的前一年的12月31日在CONADI正式注册的每个集团内的所有会员人数之和。2025年9月16日第166号注册文件,第5092-2025号档案, 第74页,共74. http://www.fojas。根据他们是(a)拥有水权的灌溉者,还是(b)为(a)以外的目的而成立的协会,将这些团体分为几类。page:185/185证书123456865496验证有效性